jose manuel mada palma
portafolio.




José Manuel Mada Palma Arquitecto

CONTACTO
662 353 5891
arq.manuelmada@gmail.com
Hermosillo, Sonora México
HABILIDADES
AutoCad
Sketchup
Microsoft 365
Twinmotion
Adobe Illustrador Adobe Photoshop V-Ray Opus
Revit


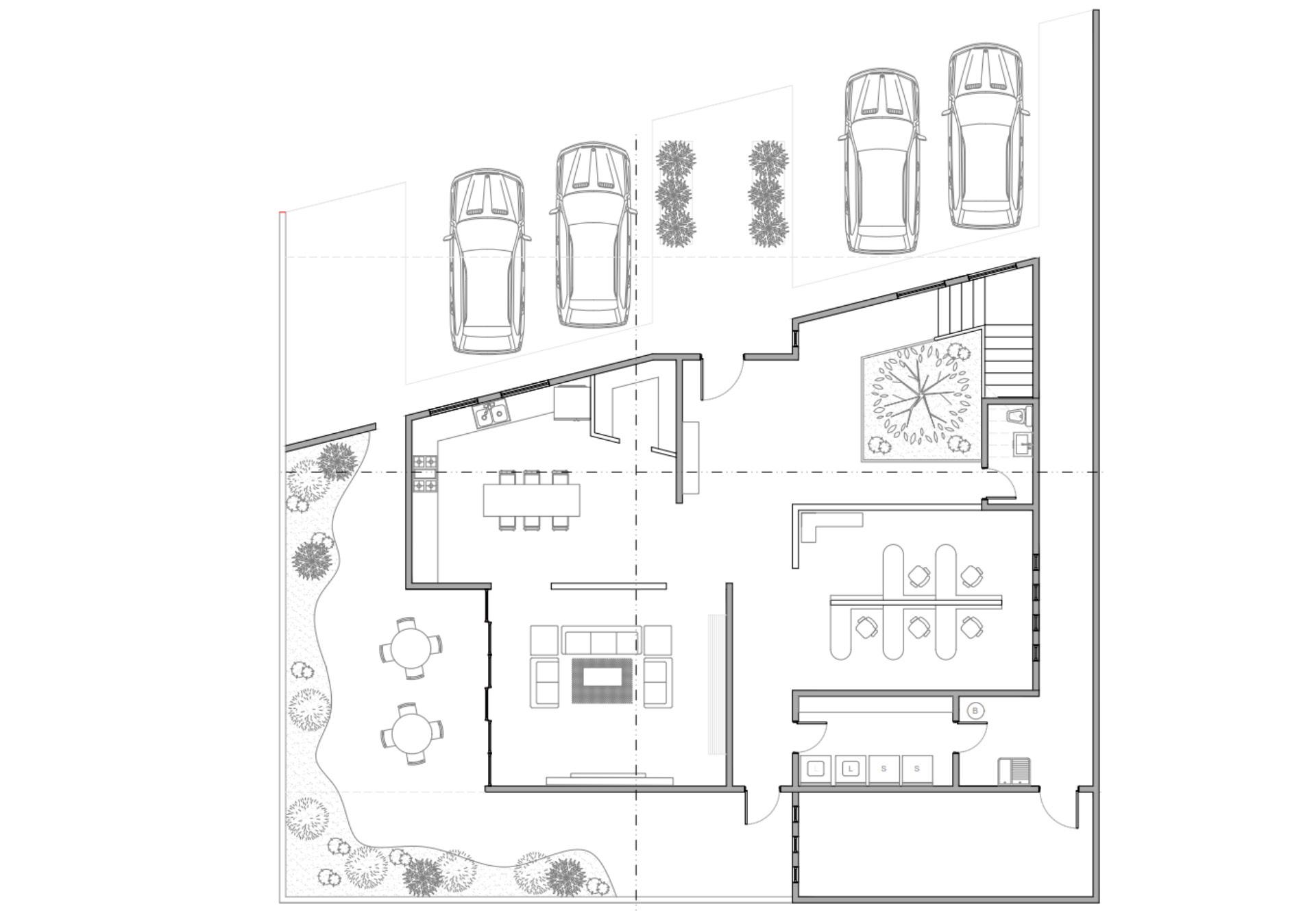
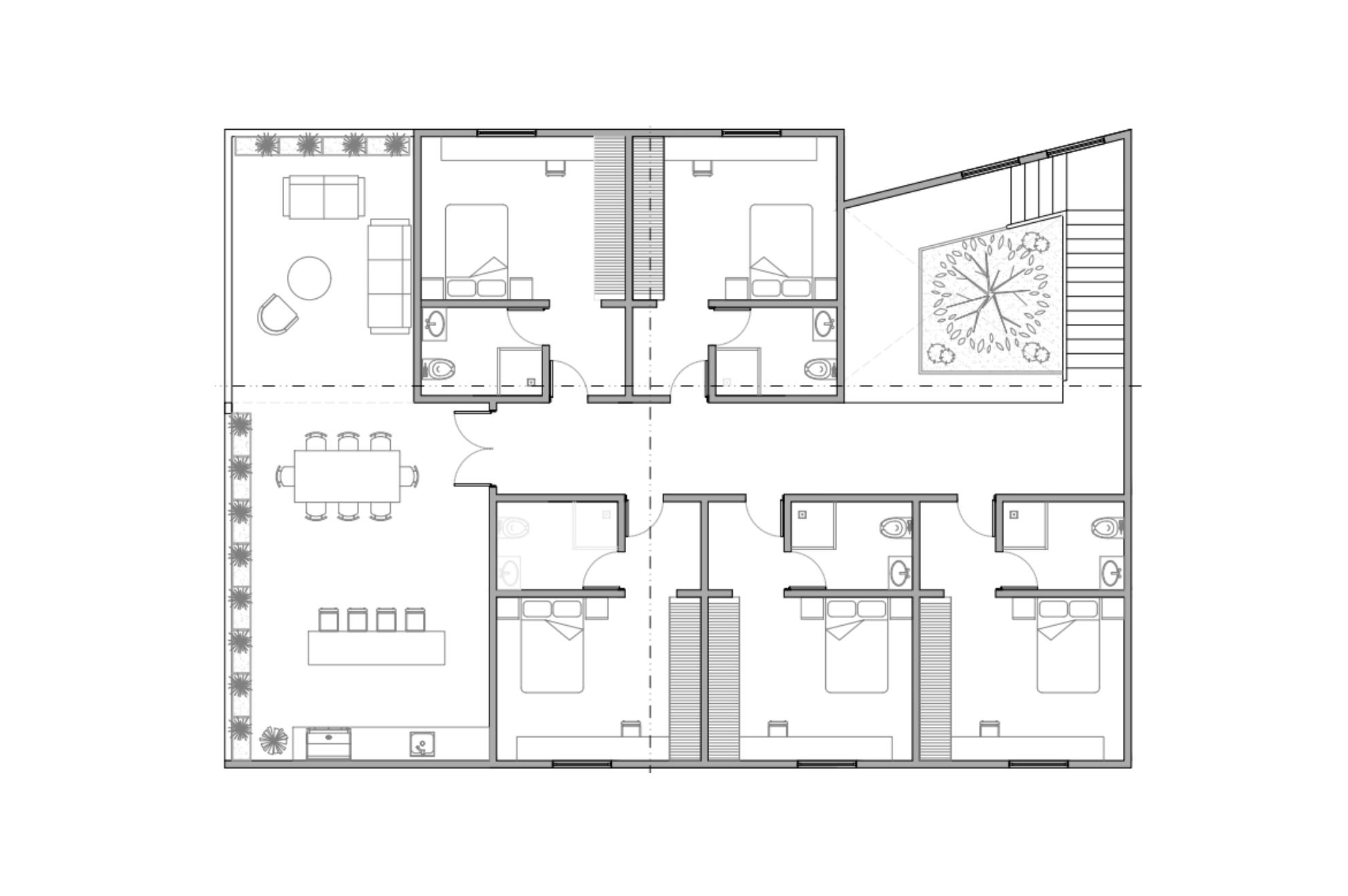
LOFT DE CAMPO
Arquitecto: José Manuel Mada Palma
Año: 2022
Ubicacion: Zamora, Sonora, Mexico
Casa de descanso en un pueblo ubicado a 30 minutos de la ciudad de Hermosillo, Sonora. Su diseño se enfoca en crear un ambiente fresco con conexión al exterior, además de espacios que permiten una variedad de actividades en un espacio pequeño.




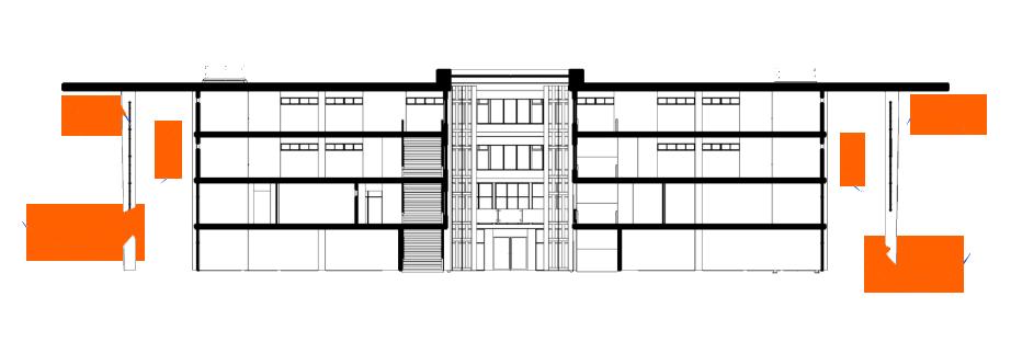
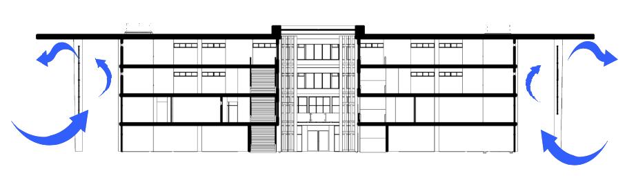
BIBLIOTECA CENTRAL DE HERMOSILLO
Arquitecto: José Manuel Mada Palma
Año: 2023
Ubicacion: Hermosillo, Sonora, Mexico
Concebida como un espacio moderno, multifuncional y sostenible, se erige como un centro educativo y cultural de referencia, con el proposito de promover el acceso a la informacion, el conocimiento y cultura en la region.

Análisis solar:
Debido a la orientación del edificio, la fachada sur y oeste reciben la mayor cantidad de iluminación solar durante el día.

Iluminación:
La celosía es compuesta de metal, esto permite absorber calor para después ser expulsado por el aire. Esta estrategia tiene la finalidad de evitar rayos de luz intensos en los muros del edificio.

Ventilación:
La celosía de la fachada fue diseñada para permitir la circulación de aire en los costados del edificio con la finalidad de expulsar el aire caliente hacia afuera.
Primer piso
Segundo piso
Tercer piso
Cuarto





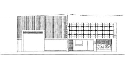
EFFORT DESARROLLOS
Arquitecto: José Manuel Mada Palma
Colaboradores: Effort Desarrollos
Año: 2023
Ubicacion: Hermosillo, Sonora, Mexico
Proyecto hecho en prácticas profesionales para la oficina, bodega y taller de la empresa. Una casa adaptada a oficina, construcción de bodega y taller en lote vecino.
Planta baja
PRIMER PISO
Planta alta
SEGUNDO PISO


DEPARTAMENTOS CUCURPE
Arquitectos: José Manuel Mada Palma, Jesus Francisco Valenzuela Tellez
Año: 2022
Ubicacion: Hermosillo, Sonora, Mexico
Proyecto dirigido para empleados y estudiantes foráneos.




