Portfolio


![]()


Sobre mi.
1. Casa Erika E.
(vivienda con taller en planta baja)
2. Casa Ricardo E.
(ampliacion, vivienda de interes social)
3. Casa Luis J.B.
(vivienda con dos comercios en planta baja)
4. Departamentos B.J.
(departaments con comercio en planta baja)
5. Casa I. Allende.
(vivienda unifamiliar en las montañas)


Me considero un arquitecto con alma creativa, mente estructurada y pasión digital, con experiencia en el desarrollo de soluciones habitacionales funcionales y accesibles, enfocadas en transformar ideas en realidades.
Me especializo en proyectos del giro residencial (interés social y medio) ampliaciones y rediseños adaptados al contexto físico, social y económico de cada cliente.

Proyecto: Casa Erika Estudillo
Tipología: Casa Habitación de 2 niveles, interés medio, con un taller en planta baja.
Superficies
Terreno: 255 m2
Proyecto: 458 m2
Ubicación: Llano Grande, Huixquilucan, Estado de México.
Fecha: May 2024


Cuando tome este proyecto el cliente ya había construido la cimentación y los muros de la planta baja. El encargo consistió en el anteproyecto arquitectónico para rediseñar los espacios de la planta baja y el diseño del segundo nivel y la planta de techos.




Proyecto: Casa Ricardo Estudillo
Tipología: Casa Habitación de 2 niveles, interés social.
Superficies
Terreno: 62 m2
Proyecto: 128 m2
Ubicación: Privada Antonio Gaudí,
Residencial Parque san Mateo, Cuatitlan de Melchor Ocampo, Estado de México.
Fecha: Ene 2025


El encargo fue a nivel anteproyecto y consistió en diseñar dos propuestas para ampliar la vivienda de dos niveles a tres. Como resultado se logro duplicar el metraje de la vivienda en un 100%, ademas de optimizar las dimensiones de los espacios existentes.



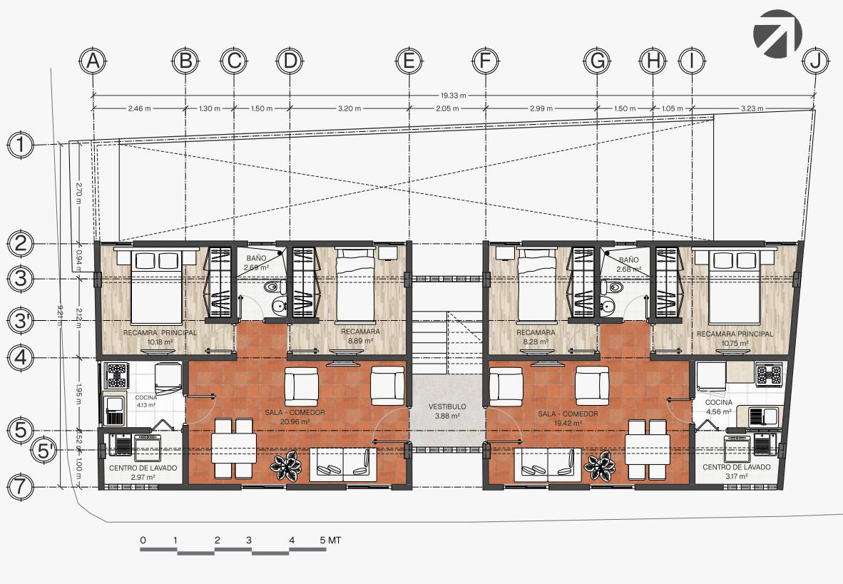
Proyecto: Casa Luis Juárez
Tipología: Casa Habitación con dos locales comerciales en Planta Baja
Superficies
Terreno: 250 m2
Proyecto: 514 m2
Ubicación: Calle Cedros S/N esquina
Ciruelos, Las Flores, Xochitepec, Morelos, México.
Fecha: Jun 2023


A solicitud del cliente el encargo consistió en la elaboración del anteproyecto arquitectónico para la planeación y edificación para una casa habitación de dos niveles, con dos locales comerciales en la planta baja, en un terreno que presenta una pendiente descendente del 17% y está ubicado en una esquina.




Proyecto: Deptos. Benito Juárez
Tipología: Departamentamentos con comercio en Planta Baja
Superficies
Terreno: 169 m2
Proyecto: 363 m2
Ubicación: Sierra Madre del Norte
esquina Sierra San Pedro, Benito Juárez, Naucalpan, Estado de México.
Fecha: Jun 2017


Este anteproyecto fue diseñado para un cliente que buscaba reusar el espacio de un lote semivacío de 8.50m de fondo por 19.50m de frente en una esquina dentro de una zona urbana, para lo cual se proyectó un edificio de departamentos de dos niveles con locales comerciales en la planta baja y que además fuera autosuficiente en la generación energía eléctrica para la iluminación del mismo.





La distribución arquitectónica en la planta baja está formada por cuatro locales comerciales de 16m2, cada uno con servicio sanitario. Al centro de los locales se ubica el núcleo de las escaleras con acceso a los departamentos. En el espacio posterior a los locales se propuso un estacionamiento para tres vehículos medianos o grandes, además de un cuarto eléctrico para el banco de baterías alimentadas por los paneles solares propuestos en el nivel de azotea.




Proyecto: Casa I. Allende
Tipología: Casa Habitación de 2 niveles, interés medio.
Superficies
Terreno: 1011 m2
Proyecto: 529 m2
Ubicación: Paraje Agua Escondida, Ignacio Allende, Huixquilucan, Estado de México.
Fecha: Nov 2007


Este fue mi primer encargo después de graduarme como arquitecto y consistió en el diseño del proyecto arquitectónico ejecutivo y supervisión de obra para una vivienda unifamiliar de dos niveles ubicada en una zona montañosa a 2,900 m.s.n.m. en el poblado de Ignacio Allende, municipio de Huixquilucan, Estado de México.





El proyecto fue desplantado en un terreno con una superficie irregular y con una pendiente pronunciada por lo que se generó un terraplén para desplantar el primer nivel y el segundo nivel se elevó 2.50 mts. por medio de una plataforma que sirvió como base para la planta alta y así aprovechas las visuales generadas hacia la parte baja de las montañas.





