Skip to main content

陳書宇作品集

Page 1

[ 在學作品集 ] SHU-YU CHEN 陳書宇 中原大學建築系畢業生 2017 - 2022
目錄 零 傘 士林夜市複合遊客服務中心設計 山 之 形 野柳國小改建與地質公園周邊整體場域規劃 十 + 口 學生綜合宿舍設計 中華一翻 中華路連接行為再定義

陳書宇 Shu-Yu Chen

出生於1999年,台北人,於2022年畢業於中原大學建築系,個性外向善於觀察,喜歡插畫、街舞、打排球。 對於創作方面的事情有很大的憧憬,每當接觸到新的媒材的時候總是會躍躍欲試,喜歡完成一件事的滿足感 。在學期間除了努力保持學科上高GPA的成績外,有在自學日文、插畫電繪以及攝影等技能。擅長的繪圖軟體 有PS、AI、AutoCad與SketchUp,渲染軟體則是使用Enscape、lumion以及twinmotion,相信可以成為貴事 務所不小的助力。

此外在學期間我也積極參與學院內舉辦的活動,強化自身社交與應對能力。曾擔任過五系聯合迎新總召、招 生營隊幹部等職務。

零 傘 X Scatter

士林夜市複合遊客服務中心設計

大學部三年級上學期 \

個人作業 \ 基地:台北捷運劍潭站 \

關鍵字:夜市商圈、都市縫合、通透性、遊客中心 \ 指導老師:黃世銘 \

成為路線指引之前,先知道自己所處何方

本次基地位置坐落於捷運劍潭站的北邊,與捷運軌道高架相鄰。由捷運軌道作為分野,西側是熱鬧的士林夜市以及 即將落成的OMA操刀的台北表演藝術中心,東側是劍潭山、銘傳大學以及士林的主要幹道中山北路。身為交通樞紐 地帶,卻又被幾個性質迥異、關係斷裂的區域所包夾。此次,在這裡設計一棟機能性建築,同時具有遊客中心、背 包客棧以及咖啡廳等機能,我希望這棟建築能滿足不同的使用者族群,並縫合這些斷裂的區域,最終能成為士林夜 市新的地方印象與面對外國旅客的新門面。

SHU-YU CHEN 陳書宇在學作品集

在實際的基地走訪之後,我發現士林夜市範圍內的攤販雖然有些是以店面的形式在營業,但更多的店家則是以餐車 的方式在經營,在加上基地現況的使用,我覺得這個地方在使用上最缺乏的是一個停留點,能讓人好好地坐下來享 用手中的餐點,並用另一種不是被人潮推來擠去的方式去觀察這個地方。

因此,我以停留點與公共空間做為出發點發展設計,在策略上引入不同的表演空間,散落在基地之中,企圖使人停 留在這裡,並藉由通透的空間引導人們理解身處的環境,從機能上以及分為上縫合由捷運路線所分割的區域。

零傘 - 士林夜市複合遊客服務中心設計

基地(上圖橘紅色範圍)相鄰捷運淡水信義線(上圖黃色範圍),因此由捷運所帶來的氛圍差異在基地的範圍內相當明 顯,一側是原始的山巒,另一面則是高度發展的夜市區域,但是礙於動線、夜市的分布以及使用的時間(夜晚)所致 ,基地現況下人們無法意識到自己距離原始的山巒如此地相近。因此我認為在建築中,不只人們要能自由穿梭,視 線也必須是通透的,讓兩側的景色是能連接在一起的,除了讓使用者能意識到自己身處的環境之外,也讓劍潭山不 再只是城市的背景。

設計手法

配置上我將機能主體建築以公共性與私密行拆成兩個部分,並在量體間所形成的核心區域內放入三種不同性質的表 演空間作為公共空間的核心,最大程度上的讓基地兩側的視線是通透的。在形式上,在深入研究過基地周遭的歷史 後,發現無論是河流改道之前還是之後,士林吊橋與捷運劍潭站所使用的懸索結構都形成了鮮明的地方印象,因此 在零傘之中我也使用了相同的結構作為建築的主要視覺印象。

SHU-YU CHEN 陳書宇在學作品集

基地分析
街頭藝人表演空間 固定表演空間 零傘 - 士林夜市複合遊客服務中心設計 東立面 EAST ELEVATION 南立面 SOUTH ELEVATION 北立面 NORTH ELEVATION SHU-YU CHEN 陳書宇在學作品集
5 1 2 3 4 西立面 WAST ELEVATION 1F PLAN
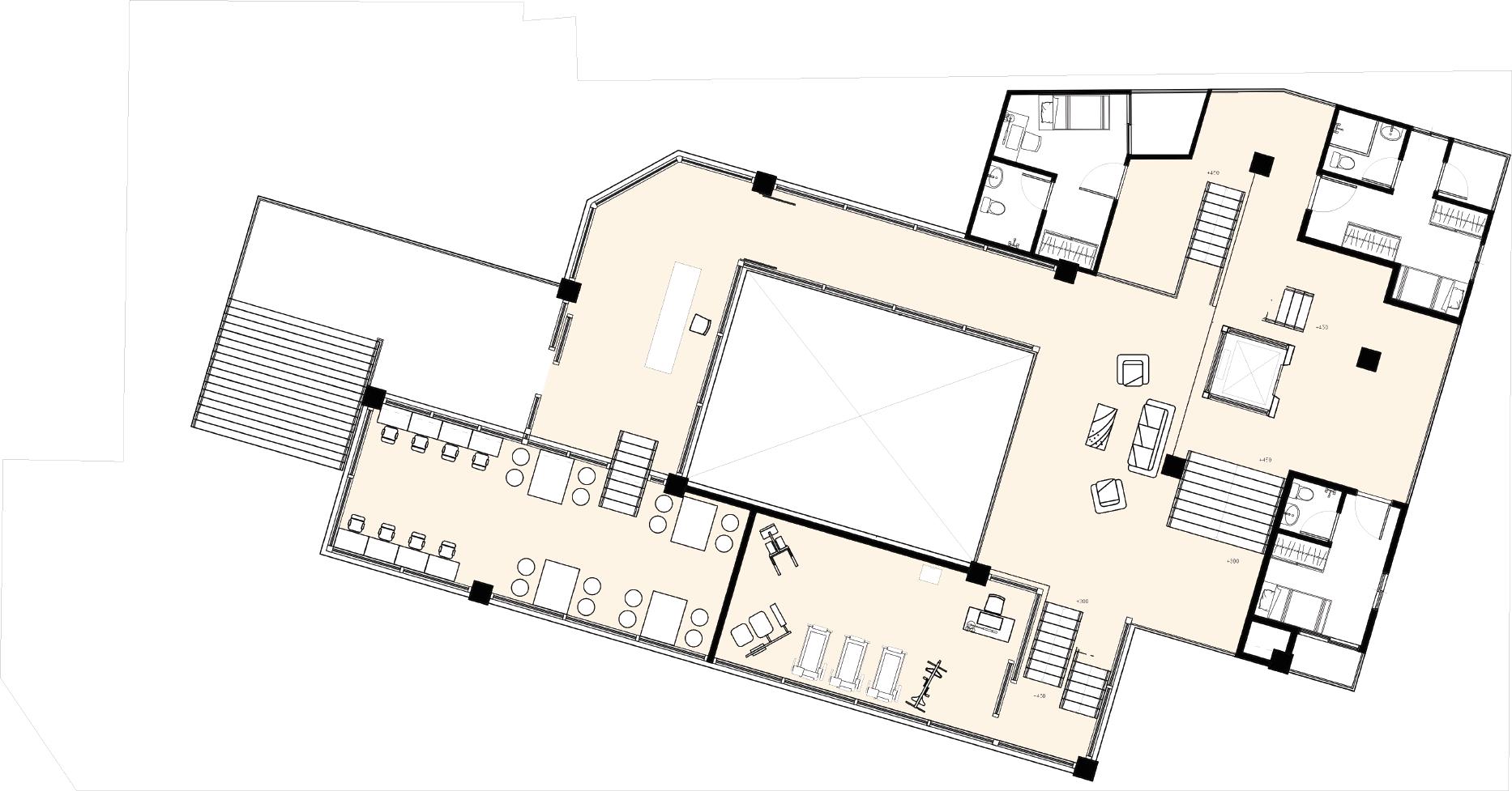
4.餐酒館
零傘 - 士林夜市複合遊客服務中心設計
1.街頭藝人表演空間 2.固定式表演空間 3.室內表演空間
5.廚房
10 15
2F PLAN 3F PLAN ROOFTOP 6.遊客資訊中心 7.戶外交誼空間 8.背包客棧臥室 9.背包客棧櫃台 10.客棧浴廁 6 7 8 9 11 12 13 14 11.影片放映室 12.戶外交誼廳 13.背包客棧臥室 14.背包客棧浴廁 15.機房
SHU-YU CHEN 陳書宇在學作品集

在基地的核心區域,2F與3F設置了一個位於2.5層的平台 ,使用者可以在這個平台上360度的環顧四周,也能在平 台上欣賞下方表演空間的演出,平面上連接兩棟主要量體 的路徑呈現一個X型,順應著表演空間的輪廓,同時配合 建築通透的設計重點,以一個輕量化的平台存在於基地的 領空。

同樣位於核心區域的一樓地面層設計了一個以35公分高為 單位,高低起伏的木質量體,使用者可以在這裡找到最適 合自己的角落休憩,也可以做為觀看表演的座位席,更可 以做為舞台的布景之一,是一個自由度極高的使用空間。

零傘 - 士林夜市複合遊客服務中心設計
A-A’ SECTION

山 之 形 The Shape of Mountain

野柳國小改建與地質公園周邊整體場域規劃

大學部三年級上學期 \ 個人作業 \ 基地:野柳國小、地質公園周邊 \ 關鍵字:單面山、自然地景再現、景觀建築、遊客中心 \ 指導老師:黃世銘 \

自然侵蝕與人文侵蝕的交會點

山、海、風的交會處,形成了野柳地區獨有的奇特地景,近百年來的漁村文化更是將居民與這片土地緊緊的連結 在一起。但在地質公園的設立,觀光業的蓬勃發展之後,不只破壞了當地居民的生活模式,這片珍稀土地的利用 也變的利益導向,原始的海岸被填海造陸成為水族館的領地,精彩的風蝕地形也被柵欄圍起,整個小鎮的步調, 也從慢活的漁村小鎮,變成了門庭若市的觀光地點。透過整體場域的規劃,希望能將向大自然所佔據的土地歸還 ,重新連接被截斷的山、海、地景,並重新洗牌自然與人文的關係。

CHEN 陳書宇在學作品集

SHU-YU

本次基地位置坐落於萬里區的野柳國小現址,北側依著大單面山,東側是填海造陸的水族館區域,西側是居民常 活動的港口區域,南邊則是住宅區。本次在這裡設計一個遊客中心,以及地景上的整理作為野柳新的入口意象, 在這個人流龐大的核心地帶,與性質完全不同的四種區域,我認為在這裡比起單一的一座建築,從不同機能與不 同氛圍的區域跨越到另一個區域的體驗才是應該著重的重點。秉持著再現地景的決心,假設性的將觀光建築全數 拆除,並將填海造陸的區域還原成海岸線,重新定義北台灣海港觀光城市之於自然的關係。

山之形 - 野柳國小改建與地質公園周邊整體場域規劃

基地觀察

從地景整合的思維出發,我從地質的角度開始分析基地。本次基地的範圍較大,因此我用更廣闊的視角開始觀察野 柳的周邊,野柳地區的海岸地形除了主要區域獨特的風蝕、海蝕地形之外,還有北海岸從外木山開始一直延伸至野 柳的海峽地形,經過觀察地質公園內的地形走向,我相信在海洋世界填海造陸的土地底下,也藏著相同的地質。

在假設將海洋世界區域的地形還原成原始樣貌的情況下,我打算將基地東側與西側的海洋相連,以動線的引導讓使 用者可以在兩塊海岸間快速的穿梭,並且創造出一個進入地質公園的新的入口意象。

在實際走訪地質公園內部過後,我觀察到地質公園內部的 使用情況並不是很理想,為了保護地景而規劃出來的棧道 因為空間不足,加上短時間內大量湧入的人潮,使得動線 阻塞不通,以此作為發展基礎,我決定將基地作為一種滯 洪池機能的使用,以舒緩地質公園內部的流動情形。

發展出了一種小單元,轉化過後成為大小不一的互動裝置 ,並且藉由裝置的排列組合,創造出具有韻律感的動線引 導,也能營造出別緻的空間感受,圍塑出不同型態的機能 空間,更能作為歇息的停留點等留滯作用。

SHU-YU CHEN 陳書宇在學作品集
單元尺寸 單元組合 表演空間 廊道

從小尺度的小單面山單元漸漸擴大,並延伸進建築量體中,作為進入遊客中心的動線引導,單元也從圍 塑出空間,到最後成為空間,組合成量體後再連接到真正的單面山。

山之形
- 野柳國小改建與地質公園周邊整體場域規劃
全區配置圖
1F PLAN 2F PLAN
SHU-YU CHEN 陳書宇在學作品集
山之形 - 野柳國小改建與地質公園周邊整體場域規劃 E-E’Section D-D’Section C-C’Section B-B’Section A-A’Section
SHU-YU CHEN 陳書宇在學作品集 海景咖啡廳 遊客中心
山之形
- 野柳國小改建與地質公園周邊整體場域規劃
地質公園出口銜接 連接海的路徑 港口方向視角
學生綜合宿舍設計 大學部三年級下學期 \ 個人作業 \ 基地:中原大學恩慈小門路口 \ 關鍵字:大學宿舍、公共性、生活空間單元 \ 指導老師:陳宣誠 \
+ 口

可及與不可及的生活探討

大學,作為一個出社會就業的實驗場,學生們在學校必須學習的除了本科專業領域的技能外,如何好好的打理自 己的生活、如何融洽的與同儕社交,也是重要的課題,對於現階段中原大學擁有的宿舍空間來說,制式化的集合 式房間,固定且缺乏使用、分布單一的自修室與交誼廳,恐怕不是一個好環境準備開始自己獨立生活。對於易受 環境影響的學生族群來說,真正適合他們的空間是甚麼?是本設計最核心探討的議題。

SHU-YU CHEN 陳書宇在學作品集

本次的基地位置位於中原大學側門的對街,雖然不是車流最多的區域,但因為鄰近學校停車場,且作為聯外道路 的捷徑,更是多數學生租屋處的必經巷口,不乏看到人車混雜的景象。

源自我對學校宿舍的實際觀察,我選擇以現況最缺乏的公共空間可及性作為切入點發展設計,並且探討大學生族 群對於私密空間以及公共空間的使用配比,企圖達成一種對於學生宿舍來說最剛好的生活型態。

十+口 -
學生綜合宿舍設計

基地分析

基地的西北側對街是中原大學校園,西南側對街是住宅區,東側的區域則是坐落在此的老舊眷村大觀園,在這片開 發較早的區域,因為建築的有機生長,造就出了大觀園錯綜複雜的空間結構,可以簡單的歸類成節點與廊道的串聯 交織,其中因為過道的過度狹窄造成壓迫感,使得節點的部分變成一種,讓人可以喘息的空間的錯覺,但由於整體 來說節點分布算多,空間體驗並不會過於緊張。

Program分析

中原大學力行宿舍,在學生的交談中被戲稱為力行監獄,根據實地走訪的觀察過後發現,宿舍內設有交誼廳、自修 室等公共空間,但學生並不會使用,而是在房間門口的圍牆,必經道路的樓梯口等地方聚集,原因是因為宿舍公共 設施的可及性不高,且集中在宿舍的角落區域,無法供應整棟宿舍的學生便利使用,因此圍牆邊與樓梯口等地點即 使做為過道,但依舊被學生作為交誼場所使用。

SHU-YU CHEN 陳書宇在學作品集

設計理念

以可及性作為出發點,我期望將宿舍內公共空間的可及性做到最高,實現的方法以將公共空間打碎並散布在宿舍中 每層樓的核心區域,並且彼此垂直串聯,以創造出更多空間與空間對話的可能性。

另一個對可及性的探討則是來自於結構,以台灣最常見的樑柱結構來說,結構往往是發展設計的一個框架,也是一 種不可及的存在,因為樑的高度通常取決於樓板的高度,各層樓的樓板高度固定,且一般來說不喜露出。在設計中 ,我嘗試挑戰把結構當成一個可及的存在,結合十字型結構與常見的口字型結構兩種不同的結構,以結構作為設計 空間的出發點,嘗試會不會在設計之中碰撞出不同的空間使用。

全區配置圖

十+口 - 學生綜合宿舍設計

東立面 EAST ELEVATION

南立面 SOUTH ELEVATION

北立面 NORTH ELEVATION

SHU-YU CHEN 陳書宇在學作品集
十+口 -
西立面 WEST ELEVATION 1F PLAN 2F PLAN
學生綜合宿舍設計
3F PLAN 4F PLAN 5F PLAN
SHU-YU CHEN 陳書宇在學作品集
十+口 - 學生綜合宿舍設計 交誼空間垂直串聯 口袋交誼廳

中華一翻! ChuKa IchiBan

中華路連接行為再定義

大學部五年級 \ 個人作業 \ 基地:台北市中華路、中華商場舊址 \ 關鍵字:城牆、北門、中華一翻! \ 指導老師:曹拯元 \

逝去的過往就別再回頭望?

生活了22年的台北市,這個城市給我的印象就是繁榮、急促、擁擠。在高樓向上長的同時,人們卻是拼命地往地下 鑽。被人群推著走的同時,人們也逐漸失去了在都市中漫遊的機會。

水道、城牆、道路、鐵道、高架、地下街,中華路在順應著時代,不斷變換自己角色的同時,觀 望著台北城的興 衰,聚落的始末,卻又因為這些過往,迫不得已的成為分割這座都市的一道裂縫,城牆雖然在100年前就被拆除了 ,但是卻從未真正的消失。

SHU-YU CHEN 陳書宇在學作品集

曾經在這裡發生過的繁榮景象、中華商場所帶來的人情味、不同使用交織在一起所帶來的迷人尺度變化都以不復存 在,取而代之的卻是一條快速、平坦、冷漠的「中華路」。在邁向台北市的同時,我嘗試重新建立中華路的跨越行 為,實質意義上的推導這座看不見的城牆,並重現人與人在此產生交集的榮景,翻轉台北市的用路行為,讓人能在 X、Y、Z的向度上自在的漫遊!

中華一翻! - 中華路連接行為在定義

從台北市的行人行為研究出發,在公共運輸系統日益完善的情況下,步行在日常交通行為中的比重也逐漸增加, 因此,比起完善的道路設施,「人行空間」才是當下最需注意的。因為想探討的議題是人移動的快與慢的關係 ,以車與人兩種分別代表快與慢的角色為出發點,挑選了車到與人行空間相互截斷,且空間占比懸殊的台北市西 門至北門間的中華路路段作為基地。

中華路作為歷史的主要幹道之一,在歷史的軌跡之中一直扮演著重要的角色,卻也因為過往而使現在的中華路不 得以的成為了切割台北的裂痕。從1884年台北城完工以來,中華路在150年間經歷各種政權、政策所帶來的空間 改革,反覆的興建與拆除之後,才變成現今我們所見的姿態。

假設在未來的狀況下,自動駕駛技術日益成熟,未來有望將車道縮減,並且將土地返還給這座城市。

SHU-YU CHEN 陳書宇在學作品集

車道縮減策略diagram
配置圖

在設計上,我將無人使用的西門地下街打開並拓 寬,提供人們自由選擇想走的路線,並藉由高低

穿梭的行為體現中華路歷史的尺度變化。並藉由 置入一個個小土丘來造成視野以及行為上的阻擋 ,讓人放慢速度的同時,分隔人行以及車流的使 用。藉由在節點之間創造一個中介空間,將節點

的機能延伸至建築內,以此拉近節點的使用行為 ,並在機能上呼應曾經出現在此地的商業行為, 嘗試還原過去的繁榮景象。

1F PLAN 1969 中華商場天橋連接 1982 忠孝橋通車 忠孝橋引道落成 1989 鐵路地下化工程 1992 中華商場拆除 1993起 忠孝橋引道開始拆除 2000 西門地下街竣工 2016 引道全數 1884 台北城完工 1895 進入日本時期 1904 城牆拆除,水道填平 1919 都市改正 鐵路、三線路、圓環形成 1945 台灣光復 1957 中華街棚屋出現 1961 中華商場落成 2022 現今 中華一翻! - 中華路連接行為在定義
中華路時間軸 中華路歷史剖面
SHU-YU CHEN 陳書宇在學作品集 B2 PLAN B1 PLAN
中華一翻! - 中華路連接行為在定義
場景透視圖 場景透視圖
B-B’ SECTION
A-A’ SECTION
SHU-YU CHEN 陳書宇在學作品集 C-C’ SECTION D-D’ SECTION 場景透視圖 場景透視圖
中華一翻! - 中華路連接行為在定義
E-E’ SECTION F-F’ SECTION 模型照片 模型照片 模型照片
SHU -YU CHEN CHUNG YUAN CRISTIAN UNIVERSITY DEPARTMENT OF ARCHITECTURE 58 GRADUATE

Turn static files into dynamic content formats.

Create a flipbook