Portfolio_ Jiyoon Hwang

Page 1

JIYOON HWANG

COLUMBIA GSAPP

selected worksample from 2020-2023

EVERYTHING COMES TO LIFE

“Everything comes to life” embodies an exploration of architecture as a dynamic system that interacts with its surroundings, adapts to changing conditions, and evolves over time. Rather than simply a static object, buildings and spaces are living organisms that respond to the needs and desires of their users, as well as the climate, culture, and context in which they exist.

This exploration is divided into chapters that cover multiscale design, from landscape to urban environments, buildings, and objects with various material experiment. Through books, physical objects, and digital drawings, the goal is to inspire and stimulate human imagination, emotion, and creativity.

CHUKOTKSKY TRAVELING LANGUAGE CENTER

SEONG DONG PRISON PROJECT: BREATHING LIFE INTO VISUALIZING BIOCLIMATIC BUILDING PROTOTYPE

HOUSING FOR INDIVIDUALS

HYBRID WATERSHED MACHINE FOR JAMAICA BAY

PARASITE LIGHTING SYSTEM

Y HOUSE: PREFABRICATED UNIT USING GRASSHOPPER

HARLEM JAZZ BALLS

Chukotka, Russian Arctic

INTO ISOLATION

Seoul, Korea

AND CNC

Cali, Columbia

Seoul, Korea

New York, US

Seoul, Korea

Seoul, Korea

New York, US

01

CHUKOTSKY TRAVELING LANGUAGE CENTER

This project aims to preserve the endangered Indigenous languages and cultures in Chukotsky, the Russian Arctic area, by providing recording, editing, and archiving studios that will be available for daily use by local people. The project has a permanent basement landscape with temporary elements that travel across four villages in Chukotsky. The entire program functions as an annual cycle, including an inflatable performance center, portable unit, and snow dome that change with the seasons.

GSAPP Adv Studio V 2022 Professor Leslie Gill and Khoi A. Nguyen
recording editing reading archiving traveling
Language family map in Arctic area, QGIS
winter Chukotka traveling education center
AIR ARGON KRYPTON ARGON + KRYPTON COLORED ARGON COLORED AIR summer fall/ spring
Seasonal change
Chukotka traveling education center

Storyteller Chukotsky have permanace basement landscape with temporary elemenets. Whole program works as an annual cycle with inflatable performance center, portable unit, snow dom by season.

8
Annual cycle
1 2
1. storytelling room with the combination
3 5 4 6 2
combination of inflatable and tensile structure 2. toilet unit 3. editing room 4. recording booth 5. reading room 6. ice dome Landscape Model, Foam, spackle, CNC Chukotka traveling education center Icedome, Tissue, Handmade Inflatable performing center, Resin, 3D printed Model

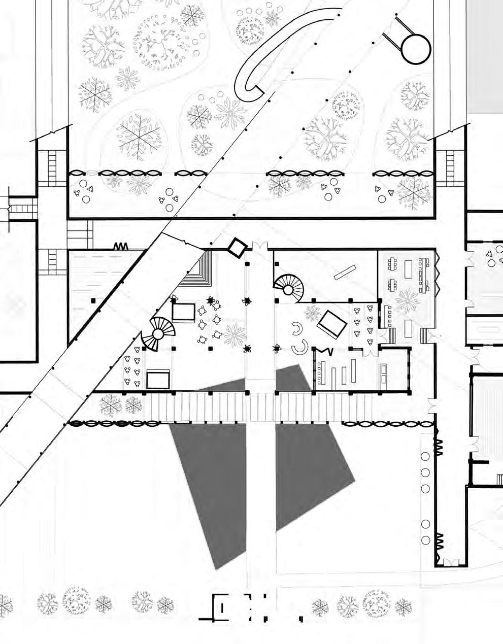
SEONG DONG PRISON PROJECT: BREATHING LIFE INTO ISOLATION

Design studio 2018

Professor Hangman Zo

Seong-dong transition is a adaptive-reuse project to renovate prison which exists like an isolated island on a block surrounded by Ogeum Station intersection. While architecture is dependent on matter, society changes at an incomparably rapid pace. I asked how to respond to the rapidly changing demands of society under the most closed condition of a prison with layers of outer walls, main walls, and prison rooms. Elements such as existing walls and pillars of the original building are left and ETFE box which provides flexible functions. Inside the box is newly covered and follys are freely scattered and the new box absorbs the surrounding elements such as water, tree, people and a new diagonal axis.

02
ETFE facade New diagonal path Original prison wall Folly Water Seong Dong prison project
Breathing life into isolation
Perspectiv view from
People Tree
1. new
2. water 3. archive 4. cafe 5. outdoor garden 6. semi-ourdoor
7.
8.
9.
A A’ B B’ C C’ D D’ 1 2 3 4 5 6 7 8 9
axis
space
old corridor
old wall
old entrance Seong Dong prison project
Breathing life into isolation
A-A’ section C-C’ section B-B’ section D-D’ section

03

VISUALIZING BIOCLIMATIC BUILDING PROTOTYPE

This project aims to represent perspective section drawing of Husos Architect’s Host and Nectar garden building located in Cali, Colombia. Drawing explores the immaterial aspects that are intrinsic and fundamental elements incorporated with biologists, gardeners, the community, and the local zoo. Drawing shows how human and nature co-exists, and interact in a building.

Designed by Husos Architects GSAPP Visual studies, Spring 2023 Professor Marc Tsurumaki

HOUSING FOR INDIVIDUALS

Living alone is no longer regarded as a lonely lifestyle but rather as a symbol of independence and responsibility. Housing for individuals are situated in the heart of the residential area in Banpo district, Seoul, South Korea. This space is specifically designed for single individuals, including celibates, divorced individuals, and seniors. Given the limited space, the quality of life is greatly influenced by the availability of natural light. I have designed a facade system that utilizes reflective aluminum to maximize sunlight penetration and enhance the living experience.

04
Professional work in Seoul, South Korea 2021 Facade system & Lobby design CCA Architects, Choon Choi, AIA
Housing for Individuals
Facade system
Housing for Individuals 03 04

Facade system

200 LED LINE BAR T10 ALUMINUM SANDWICH PANEL T2 ANODIZED ALUMIUM PLATE 20 700 100 90 SECTION DETAIL-4 SECTION DETAIL-3 200 100 90 LED LINE BAR T10 ALUMINUM SANDWICH PANEL T2 ANODIZED ALUMIUM PLATE T2 ANODIZED ALUMIUM PLATE LOW-IRON TEMPERED GLASS GUARDRAIL (H:1200) LOW-IRON INSULATED GLASS T10 ALUMINUM SANDWICH PANEL 1 : 10단 면 상 세 도 A 1
section detail -03 section detail -04
Housing for Individuals
Facade system

Housing for Individuals

3,000 3,000 3,000 20,800 X6 3,800 1,300 3,200 8,300 Y3 Y3 Y2 X4 2,800 3,000 3,000 3,000 X3 X1 X2 X5 1 : 804 층 평 면 도 A 1 3,800 1,300 3,200 8,300 Y3 Y3 Y2 3,000 3,000 3,000 20,800 X6 X4 2,800 3,000 3,000 3,000 X3 X1 X2 X5 DN 1 : 80옥 상 층 평 면 도 A 1 건축한계선(3M) 공개공지표지판 3,800 1,300 3,200 8,300 Y3 Y2 3,000 3,000 3,000 20,800 X6 X4 2,800 3,000 3,000 3,000 X3 X1 X2 X5 1 801 층 평 면 도 A 1 GF
RF
2F - 15F
Facade system

05

HYBRID WATERSHED MACHINE FOR JAMAICA BAY

Humans have been inventing machines to produce labour, profits, and values. However, machines in out project are invented as imaginations for a different kind of labour on landscapes. Instead of exploiting the landscape, the ‘labour’ is a actually playful way for human and all apecies to experiment, interact with landscape.Hybrid machines on Jamaica bay act as a way of emerge hybrid water action, dealing with differnet problems in salt marsh degradation- pollution, sea level rise and erosion.

GSAPP Adv Studio IV 2022 Professor Marco Ferrari and Elise Hunchuck Collaboration with Weiyu Xu and Xienyi Deng Sanitary sewer Hybrid watershed machine for Jamaica bay
NYC watershed system sewer CSO system Runoff CSO Outfall
Hybrid watershed machine for Jamaica bay Landfill & Wetland sink Catch basin & Green infrastructure sink NYC watershed system
Mapping that shows the contamination level on Jamaica bay New York, QGIS

Hybrid watershed machine for Jamaica bay

Machine card

PARASITE LIGHTING SYSTEM

This project is a parametric lighting system designed using Grasshopper as a design tool and fabricated by CNC. The system allows for flexibility in the number and size of openings, which can be adjusted based on parameters. The concept for this project draws inspiration from barnacles found on rocks in the sea. This paraside light attached to the walls, casting illumination into the surrounding space. This gives the impression that the light is emanating from deep within the walls, stimulating the imagination of the users.

06
Digital design studio 2018 Collaboration with Chan Heo Professor Hangman Zo

This lighting system is made of Medium Density Fibreboard and consists of 42 apertures and 210 distinct trapezoidal-shaped pieces, with one bulb attached to each opening. Each trapezoidal piece is connected with cable ties.

CNC Layout Joint
Boundary Ellipse Divide Line
Loft
Move point by Graph mapper Cover Cover with Hexagonal cell Loft surface Attractor Scale Move Loft Thickness

07

Y HOUSE : PREFABRICATED UNIT USING GRASSHOPPER AND CNC

Y House is an architecture project that showcases the potential of prefabrication technology, using grasshopper, and CNC (computer numerical control) technology.

The Y House’s construction process is highly efficient and reduces waste, making it a sustainable and environmentally friendly option. The use of prefabricated materials and modular design allows for quicker and more effective construction.

Digital design studio, 2018 Collaboration with Team Gamma Professor Hangman Zo C. wall
Y House
B. foundation
DN UP ND UP DN 1F 2F
A. main frame Assembly Diagram & Plan

HARLEM JAZZ BALLS 08

GSAPP, If buildings could talk, 2023

The artwork is interactive sound installaion at a playground in Riverside Park in Morningside Heights. It aims to introduce the children and visitors of Morningside Heights to the jazz history of neighboring Harlem in a playful manner. The installation is made of ten sound modules that are installed along a railing of an appropriate height for children to interact. Each module will be made of a plushie ball and a rope, with electronic parts secured along the top of the speaker and along the rope. The visual side of the installation is inspired by musical notesthe foam balls on a cord. They are arranged in a way that hints at the tempo and the pitch of the sound module.

Professor Sharon Ayalon Collaboration with Claire Koh, Yilin Zhang, and Renwen Yu

Audio circuit/ Battery

Speaker with reflection panel

Squeeze ball that represent notes

Interactive sound installation

Turn static files into dynamic content formats.

Create a flipbook
Issuu converts static files into: digital portfolios, online yearbooks, online catalogs, digital photo albums and more. Sign up and create your flipbook.
Portfolio_ Jiyoon Hwang by Jiyoon Hwang - Issuu