6604 THE REINTEGRATION RESIDENCES

Page 1

THE REINTEGRATION RESIDENCES

JIMMIE LEE DUBUQUE III

CIRCULATION DIAGRAM

INTEGRATION AND SYNTHESIS OF STRUCTURE

SITE CONTEXT PLAN
-6 2 SITE AND GROUND FLOOR PLAN

2ND LEVEL

3RD LEVEL

ROOF PLAN 4TH LEVEL
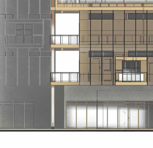
EAST ELEVATION
SOUTH SECTION PERSPECTIVE
SOUTH ELEVATION
FACADE INTEGRATION - AXON AND WALL SECTION DETAIL
UNIT PLANS ENVIRONMENTAL SPHERE - BUILDING SECTION PERSPECTIVE - EAST

Turn static files into dynamic content formats.

Create a flipbook
Issuu converts static files into: digital portfolios, online yearbooks, online catalogs, digital photo albums and more. Sign up and create your flipbook.