Jim Ji | Architectural Engineering Portfolio 2024 | University of Waterloo

Page 1

Architectural Engineering

P O R T F O L I O .
2024
Jim Ji
SUMMER

Hello there,

I am a third year Architectural Engineering student at the University of Waterloo.

I love to doodle, take cold showers, read, and think about Architecture!

I have loved buildings ever since I was a boy, and to this day, I still look up to admire the tall buildings.

Now, I am working to expand my knowledge on what happens within those tall buildings. I thrive to become a Full-Stack Architect, someone who can seamlessly unite Architecture, Building Science, Structural Engineering and Real Estate Development!

This portfolio is a testament to my contiunously evolving projects, knowledge and skills.

I hope you enjoy.

E: jim.ji@uwaterloo.ca

T: (519) 992 1203

C O N T E N T S .

01 Phoenix Tiny Library

02 Parkcrest Manor

03 EV1 Reclad

04 Windrush Weddings

05 Parametric Revit Families

06 Personal Works

PT L

PHOENIX TINY LIBRARY

2B Studio Final Project

Location: Phoenix, Arizona

Collaborators: LeAnne Kinlin, Ocean Laidman, Diana Nguyen

Softwares: Revit, D5 Render, Climate Consultant 6.0

A tiny library project has been commissioned by the City of Pheonix, Arizona in hopes to plant multiple hubs of information and technology, and to allow for better access to learning for the general public. As such, the top priorities of the PTL project was to create a build form that is replicable, easy to construct and has a high energy efficiency to combat Phoenix’s hot climate. Many environmental, construction and mechanical solutions are introduced to maximize occupant comfort while minimizing the energy consumption of the building. Most notably, the tiny library optimizes shading to limit direct sunlight and maximizes diffuse light. In doing so, the building simultaneously creates a welcoming environment, but also minimizes unwanted solar gains in this hot climate.

01
PHOENIX TINY LIBRARY SITE PLAN 1:500 5 2 4 3 1 6 A 5750 7545 3455 5500 3390 25640 5000 3270 1830 371 1829 4691 2540 3470 2640 FLOOR PLAN 1:200
B D 2910 2523 2235 C RECEPTION 4.2 m x 3.1 m WR 2.5 m x 2.9 m HP AHU MECH. 2.2 m x 2.9 m WAITING AREA 9.3 m x 2.8 m BOOK STORAGE 9.3 m x 6.7 m STUDY AREA 9.3 m x 4.7 m ROOF OVERHANG OPEN TO ABOVE OUTDOOR SEATING AREA 10 m x 5 m VESTIBULE FIBRE CEMENT SIDING 20MM x 20 MM WOOD SLATS 90 MM OC CONCRETE VESTIBULE 280MM X 280MM MASS TIMBER COLUMNS BENCH E 3145 4550 4550 3150 15395 2702 1905 2500 5600 2689 5012 2015 1905 7448 3200 3413 2647 2695 3764 4572 1665 2700 AHU HP 2500MM SUSPENDED LIGHTS 1168MM LED LIGHTS CEILING EXHAUST FAN 600MM ROUND DUCT 300MM ROUND DUCT 500MM x 500MM DIFFUSERS ELECTRIC HEAT PUMP EXHAUST AND INTAKE PIPES ERV INTEGRATING WITH AIR HANDLING UNIT 600MM x 600MM RETURN GRILLE 600MM x 600MM RECTANGULAR RETURN DUCT PLAN MECHANICAL PLAN 1:200

ENVIRONMENTAL STRATEGIES

PASSIVE + ACTIVE

COOL ROOF

EPDM cool roof provided to combat solar radiation with reflective coating.

LED LIGHTING

Higher efficiency LED lighting provided to minimize internal heat gains.

INSULATION & AIR SEAL

Superior insulation values and air-tight enveloppe used to fight against Phoenix hot and dry climate.

HIGH EFFICIENCY HVAC

Air-source heat pump minimizes energy consumption & achieves quicker temperature control.

CROSS & STACK VENTILATION

Operable clerestory windows for natural ventilation. Mechanical louvres and temperature sensors allow for night flushing and cross-ventilation.

PHOTOVOLTAIC PANELS

SHADED WINDOWS

Larger shaded glazing units for view can be provided while mitigating large amounts of heat loss due to complete shading.

Provides green energy to the building and achieves close to net-zero energy rating.

CLERESTORY

INTERMEDIATE TEMPERATURE ZONE

The main design feature of the building is the indoor-outdoor space along the entire building perimeter. This space acts as an intermediate climate zone and shades both the windows and the walls. Since the climate in Phoenix is hot and dry, heat is not retained in the air via humidity but is heated by the sun. As such, shading both the walls and windows can dramatically decrease the air temperature in direct contact with the enveloppe. This leads to less heat loss and a lower dependance on the HVAC system. All leading to a more efficient building!!!!

These daylighting windows are used

CLERESTORY WINDOWS

windows are used only for the purpose of daylighting and ventilation. These smaller overhead windows provide natural sunlight while lower windows used for view.

SUSTAINABLE MATERIALS

A timber superstructure and wood accent exteriors are proposed for its sustainability and low life cycle costs. Wood is also nonconductive to heat.

SUMMER

SOLSTICE WINTER SOLSTICE

N E S W 6:01 AM 7:01 PM 2:00 PM August 24 N E S W 7:34 AM 5:21 PM 10:00 AM December 24 and rating.
GROUND FLOOR 0 LOWER INTERIOR 4300 5 2 HIGHER INTERIOR U/S OF FOOTINGSITE -152 4 3 RAMP FOR MAIN ENTRANCE 20MM x 20MM WOOD SLATS 90MM OC LOW E DOUBLE GLAZED WINDOW 1 6 GROUND FLOOR LOWER INTERIOR 4300 5 2 6000 U/S OF FOOTING -1200 SITE -152 4 3 EMERGENCY EXIT BEYOND RAMP FOR EMERGENCY EXIT LOW-E DOUBLE GLAZED WINDOWS 1 6 GROUND FLOOR 0 LOWER INTERIOR 4300 B D HIGHER INTERIOR 6000 U/S OF FOOTING -1200 C SITE -152 1600MM x 1000MM SOLAR PANELS OUTDOOR SEATING AREA SIDE EXIT RAMP A E GROUND FLOOR 0 LOWER INTERIOR 4300 B D HIGHER INTERIOR 6000 U/S OF FOOTING -1200 C SITEWOOD TEXTURED FIBRE-CEMENT SIDING RAMP FOR MAIN ENTRANCE HVAC INTAKE EXTERIOR HEAT LOW-E DOUBLE SIDE EXIT RAMP A E WOODEN SLAT SHADING DEVICE GROUND FLOOR 0 LOWER INTERIOR 4300 5 2 HIGHER INTERIOR 6000 U/S OF FOOTING -1200 7545 SITE -152 4 3 WOOD SLAT SCREEN WALL WOOD SLAT COVER 1600MM X 1000MM SOLAR PANELS 350MM X 350MM MASS TIMBER BEAMS CLERESTORY WINDOWS CLERESTORY WINDOWS HVAC INTAKE & EXHAUST 12.7MM EPDM RUBBER ROOF MEMBRANE ROOF LAMINATE 12.7MM OSB ROOF SHEATHING 3 X 50.8MM RIGID INSULATION BOARDS VAPOUR RETARDER 15.9MM WOOD DECK 12.7MM EDPM ROOF MEMBRANE 12.7MM OSB ROOF SHEATHING 3 X 50.8MM RIGID INSULATION BOARDS VAPOUR RETARDER 15.9MM WOOD DECK WOOD SLAT COVER 150MM X 230MM TIMBER ROOF RAFTER DIFFUSERS FOUNDATION WALL & FOOTING BEYOND COLUMN FOOTING BEYOND 1 6 EAST-WEST SECTION 1:200 5 NORTH ELEVATION 1:400 4 SOUTH ELEVATION 1:400 2 EAST ELEVATION 1:400 3 WEST ELEVATION 1:400 1

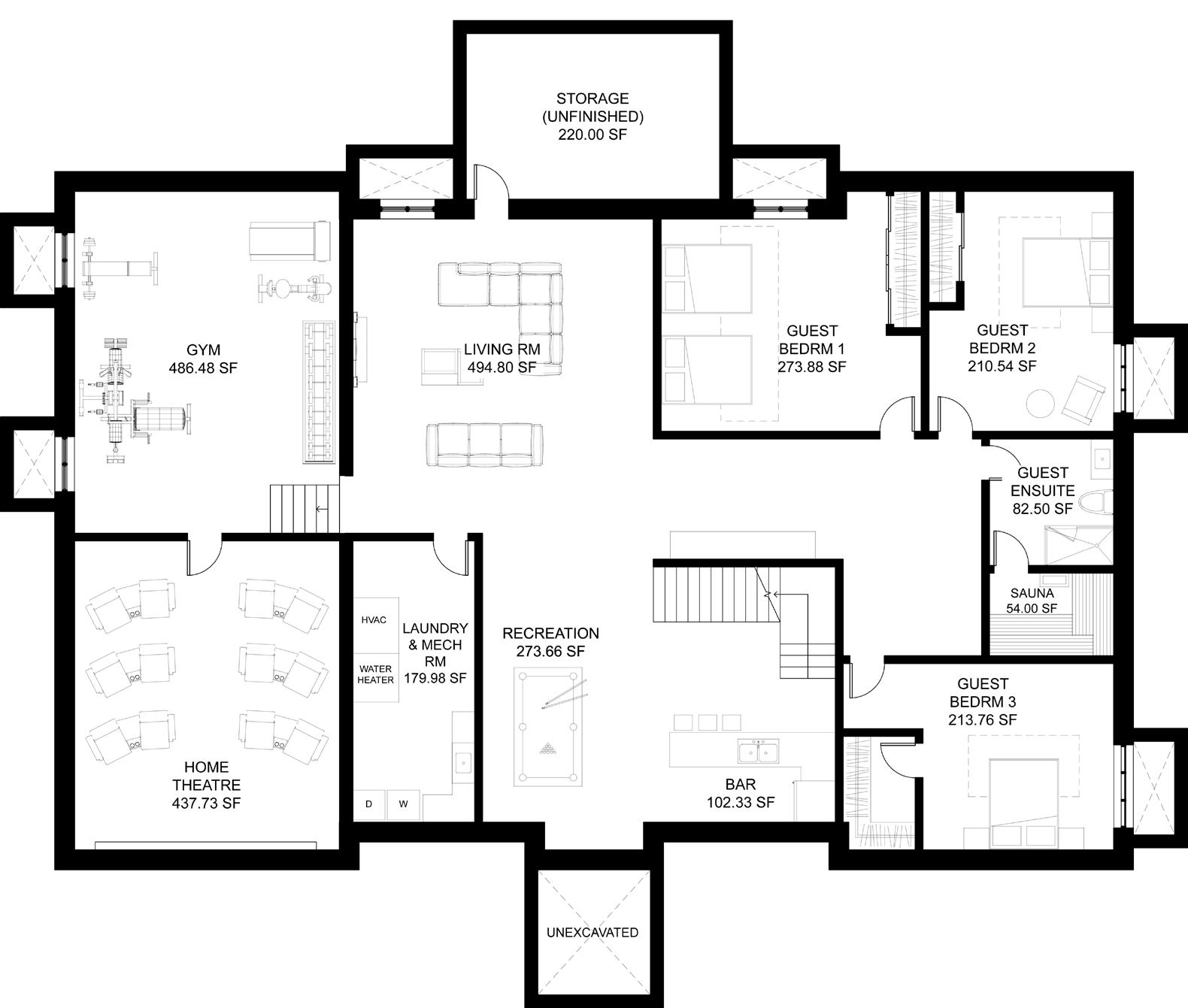
PARKCREST MANOR

Development Case Study

Location: Toronto, ON

Softwares: Revit, D5 Render, Project Libre, Illustrator, Photoshop

Located in Scarborough, this wood framed custom home was designed to suit a 3 generational family with rooms for the grandparents, parents and 4 children. This home serves as a social space with open concept layouts to allow mingling between generations, and extra room to accommadate many visitors. The overall design focuses on balance between connection and seclusion, with a ground floor layout that firstly welcomes visitors with separate dining and seating areas, transitioning to private family areas as you walk through the home.

02 SOUTH 1:200 1
SOUTH ELEVATION 1:200

GROUND FLOOR PLAN 1:200

SECOND FLOOR PLAN

1:200

BASEMENT FLOOR PLAN 1:200

Note: Minor Variance required for building height non-compliance.

SITE PLAN 1:500

MONTH 1: Site Acquisition + Bidding

MONTH 2: Due Dilligence Period

MONTH 3: Topo Survey + Boundary

MONTH 5, 6, 7: Zoning Review + Minor Variance Application

MONTH 7, 8: Engineering Design Phase

DEVELOPMENT GANTT 2 YEAR TIMELINE

GANTT CHART & TIMELINE

TIMELINE

MONTH 9, 10, 11:

Building Permit Application

MONTH 12 - 24: Construction (1 year timeline)

UW EV1 RECLAD

2A Studio Final Project

Location: Waterloo, Ontario

Collaborators: Diana Nguyen, Timothy Tanuwidjaja, Ahmed Rosli

Softwares: Revit, AutoCAD, D5 Render

As structures start to age, the building enveloppe degrade, and with older windows and heating systems, it starts to become less energy efficient. Instead of demolishing these old buildings, it is more sustainable to retrofit them. This projects aimed to do just that, to give the University of Waterloo Environment 1 building, built in 1970, new life through a recladding of its exterior enveloppe. With R-30 insulation, high-efficiency windows, modular shading devices and a pre-fabricated steel stud wall system, this project provides a fast and sustainable solution to aging buildings!!

03

GRAVEL BALLAST

8 MM ROOFING PROTECTION BOARD

5 x 66 MM POLYISOCYANURATE RIGID

INSULATION

VAPOR RETARDER & AIR BARRIER

SINGLE-PLY FELT IN ASPHALT

51 MM CONC. TOPPING TO SLOPE TO DRAIN

203 MM HOLOW-CORE CONCRETE ROOF DECK

140 x 140 MM HSS BEAM

TOP ROOF SLAB 10973

ALUMINUM SUNSHADE

6 MM ALUMINUM PANEL

EXISTING 203 MM HOLLOW -CORE CONCRETE SLAB

198 MM THERMALLY BROKEN CASCADIA CLIP @ 450 MM O.C. VERTICALLY

SECOND FLOOR 3963 THIRD FLOOR 7620

6 MM ALUMINUM COMPOSITE PANEL

27 MM AIR GAP & Z-GIRT

198 MM POLYISOCYANURATE RIGID INSULATION 13 MM DENSGLASS SHEATHING 155 MM STEEL STUD

ADHESIVE AIR/WATER/VAPOUR MEMBRANE 254 MM EXISTING CONCRETE BEAM

FIRST FLOOR 0

9 MM DIMPLE DRAINAGE WRAP

132 MM POLYISOCYANURATE RIGID INSULATION

ADHESIVE AIR/WATER/VAPOR MEMBRANE

190 MM EXISTING CONCRETE FOUNDATION WALL

MM

EXISTING 203 MM HOLLOWCORE CONCRETE SLAB

EXISTING CONCRETE LEDGE HUNG FROM FLOOR SLAB

EXISTING

102
MM CONCRETE SLAB
102 MM EXISTING CONCRETE SLAB
HYDRONIC BASEBOARD HEATER 63
TOPPING
RIGID TO DRAIN ROOF Project No. 1. THESE CONTRACT DOCUMENTS ARCHITECT'. THE ARCHITECT DOCUMENTS BY THE CONTRACTOR. WRITTEN/GRAPHIC CLARIFICATION THE CONTRACT DOCUMENTS. CONTRACTOR FOR DESIGN 2. DRAWINGS ARE NOT TO CONDITIONS AND DIMENSIONS DISCREPANCIES WITH THE WORK. 3. POSITIONS OF EXPOSED THE ARCHITECTURAL DRAWINGS. GOVERN OVER THE MECHANICAL BE LOCATED AS DIRECTED Drawing No. Title: © UNIVERSITY OF WATERLOO AE500 0001 GROUP FOUNDATION SECTION ROOF 1 : 20 ROOF TO FOUNDATION DETAIL 1 REV.ISSUE ROOF TO FOUNDATION DETAIL 1:40 3
MM CONCRETE
100
WEEP TILE
GRAVEL BALLAST ROOFING PROTECTION BOARD 5 x 66 MM POLYISOCYANURATE RIGID INSULATION VAPOR RETARDER & AIR BARRIER SINGLE-PLY FELT IN ASPHALT 51 MM CONC. TOPPING TO SLOPE TO DRAIN 203 MM HOLLOW-CORE CONCRETE ROOF DECK 6 MM ALUMINUM PANEL CONTINUOUS STEEL SILL CANT STRIP 127 MM VERTICAL Z-GIRT 198 MM CASCADIA CLIP 13 MM DENSGLASS SHEATHING 140 x 140 MM HSS BEAM PREFINISHED METAL FLASHING REINFORCED MEMBRANE 19 MM SLOPED P.T. PLYWOOD PARAPET WOOD BLOCKING & SPRAY FOAM INSULATION 19 MM SLOPED P.T. PLYWOOD ALUMINUM COMPOSITE PANEL FASTENER 1 : 5 WALL TO ROOF DETAIL 1 ROOF TO WALL DETAIL 1:15 2 THIRD FLOOR 7620 6 MM ALUMINUM COMPOSITE PANEL 27 MM AIR GAP & Z-GIRT 198 MM POLYISOCYANURATE RIGID INSULATION ADHESIVE AIR/WATER/VAPOUR MEMBRANE 13 MM DENSGLASS SHEATING 155 MM STEEL STUD 254 MM EXISTING CONCRETE BEAM 200mm HYDRONIC BASEBOARD HEATER 140 x 65 x 10 MM STEEL ANGLE 140 MM STEEL STUD BASE TRACK 140 x 140 MM HSS BEAM 65 x 140 x 10 MM STEEL ANGLE & 108 MM POST-INSTALLED CONCRETE ANCHOR ALUMINUM FURRING STRIPS STEEL STUD LINTEL & BASE TRACK 27 MM VERTICAL STEEL Z-GIRT 78 MM STEEL FLOOR TRIM 13 MM GYPSUM BOARD ALUMINUM COMPOSITE PANEL FASTENER STEEL FLASHING PRE-FAB WALL PANEL JOINT 198 MM THERMALLY BROKEN CASCADIA CLIP @ 450 MM O.C. VERTICALLY 560 1 : 5 SECOND TO THIRD FLOOR DETAIL 2 THIRD TO SECOND FLOOR DETAIL 1:15 1
6 MM ALUMINUM COMPOSITE PANEL 27 MM AIR GAP & VERTICAL Z-GIRT 198 MM POLYISOCYANURATE RIGID INSULATION 13 MM DENSGLASS SHEATING 155 MM STEEL STUD ADHESIVE AIR/WATER/VAPOUR MEMBRANE 254 MM EXISTING CONCRETE BEAM FLASHING THERMAL SPACER 140 x 140 MM HSS BEAM ALUMINUM FLASHING CORRUGATED STEEL SOFFIT 13 MM DENSGLASS SHEATHING LED SOFFIT LIGHT FIXTURE ALUMINUM COMPOSITE PANEL FASTENER 198 MM THERMALLY BROKEN CASCADIA CLIP @ 450 MM O.C. VERTICALLY 55 x 102 x 10 MM STEEL ANGLE PRE-FAB WALL PANEL JOINT 51 x 140 MM STEEL JOIST 65 x 135 x 5 MM STEEL TRIM 65 x 140 x 10 MM STEEL ANGLE 108 MM POST-INSTALLED CONCRETE ANCHOR 80 MM STEEL C-CHANNEL STEEL FREEZE TRIM BRICK TIE & INTEGRATED RETENTION TRIM VENT & DRAIN OPENING @ 610 MM O.C. STEEL KNIFE PLATE SHELF ANGLE 711 Scale Project No. 1. THESE CONTRACT DOCUMENTS ARE THE PROPERTY OF THE ME, HEREBY CONTRACTOR FOR DESIGN CONFORMANCE ONLY. 2. DRAWINGS ARE NOT TO BE SCALED FOR CONSTRUCTION. CONTRACTOR THE ARCHITECTURAL DRAWINGS. THE LOCATIONS SHOWN ON THE ARCHITECTURAL Drawing No. Title: TIMOTHY TANUWIDJAJA DIANA NGUYEN JIM JI AHMED ROSLI AE501 0001 GROUP 16 RECLAD WALL AND WINDOW CONNECTION DETAILS 1 : 5 FIRST TO SECOND FLOOR DETAIL 1 REV.ISSUE DATE SECOND TO FIRST FLOOR DETAIL 1:15 2 102.5 x 64 MM BRICK VENEER 25 MM AIR GAP 198 MM POLY. RIGID INSULATION BOARD AIR BARRIER/VAPOR RETARDER 13 MM DENSGLASS SHEATHING 140 MM STEEL STUD 13 MM GYPSUM BOARD BRICK TIE & INTEGRATED RETENTION TRIM SERVICE CUT 200 MM HYDRONIC BASEBOARD HEATER ALUMINUM FLASHING VENT & DRAIN OPENINGS @ 610 MM O.C. STEEL STUD BASE TRACK 108 MM POST-INSTALLED CONCRETE ANCHOR STEEL KNIFE PLATE SHELF ANGLE 165 MM CEMENT BOARD 10 MM DIMPLE DRAINAGE BOARD FIN. GRADE 0 132 MM STEEL CLIP ANGLE THIRD FLOOR 7620 200mm HYDRONIC BASEBOARD HEATER 65 x 140 x 10 MM STEEL ANGLE 108 MM POST-INSTALLED CONCRETE ANCHOR ALUMINUM FURRING STRIPS STEEL STUD LINTEL & BASE TRACK 78 MM STEEL FLOOR TRIM 13 MM GYPSUM BOARD 560 Scale Project No. DOCUMENTS BY THE CONTRACTOR. UPON WRITTEN APPLICATION, THE ARCHITECT WILL PROVIDE WRITTEN/GRAPHIC CLARIFICATION OR SUPPLEMENTAL INFORMATION REGARDING THE INTENT OF THE CONTRACT DOCUMENTS. THE ARCHITECT WILL REVIEW SHOP DRAWINGS SUBMITTED BY THE WORK. 3. POSITIONS OF EXPOSED OR FINISHED MECHANICAL OR ELECTRICAL DEVICES ARE INDICATED ON Title: © UNIVERSITY OF WATERLOO TIMOTHY TANUWIDJAJA DIANA NGUYEN JIM JI AHMED ROSLI 1 : 5 0001 GROUP 16 RECLAD WALL DETAILS 1 : 5 WALL DETAIL AT GRADE 1 REV.ISSUE DATE WALL DETAIL AT GRADE 1:15 1

ARTS LECTURE HALL

SCHOOL OF ACCOUNTING AND FINANCE

: 500 SITE PLAN 1

SITE PLAN 1:1500

EV3
ML
EV2 EV1
J.G. HAGEY HALL OF THE HUMANITIES
Orange Section PAS
1
0m 5m 10m 20m 50m SCALE BAR 1:500

WINDRUSH WEDDINGS

Professional Works | Summer 2023

Location: County of Simcoe, GTA

Company: COmanage Ltd.

Software: Bluebeam

This proposed outdoor wedding venue will be located over an old winery, with lots of room for guests to celebrate, walk around and be surrounded by nature. The goal of this concept is to give guests a sense of awe and enthusiasm as they drive into the site, towards the wedding area. With large differences of elevations, this site gives much opprtunity for outdoor activities in the winter and careful layout of the wedding area invites the guests in to celebrate wedding season!! This concept plan was submitted for a Pre-Consultation Meeting with Township staff and has been accepted to move onto the design phase.

SITE CHALLENGES

ECOLOGY & Greenbelt

Boundaries

TRAFFIC Numbers & Site Access

NOISE Levels & Distance to Neighbours

REQUIRED APPLICATIONS

1. Official Plan Amendment

2. Zoning By-Law Amendement

3. Site Plan Control

3. Building Permit

REQUIRED DOCUMENTS

1. Architectural Package

2. Planning Justification Report

3. Site Servicing & Grading Plan

4. Stownwater Management Plan

5. Topographic & Boundary Survey

6. Natural Heritage Evaluation / Environmental Impact Evaluation

7. Geotechnical and Hydrogeological Reports

8. Traffic Impact Study

9. Noise Study

10. Landscape Plan

04

PARAMETRIC REVIT

FAMILIES

Professional Works | Winter 2024

Company: Architecttura Inc.

Location: Windsor-Essex County

ADJUSTABLE DINING TABLE

4

8

05
Seats
6
Seats Seats
10
Seats

ROOF ACCESS LADDER

ADJUSTABLE SOFA

Long Ladder + Shorter Cage Long Ladder + Cage Medium Ladder + No Cage Medium Ladder + Large Platform Short Ladder
4 Seater 3 Seater 2 Seater 1 Seater
Short Ladder + No Parapet Return

SKETCHES

PERSONAL
06
WORKS

DIGITAL DOODLES

MARKETING DESIGN

MAR Architect Inc.
Renderings by

Let’s connect: jim.ji@uwaterloo.ca (519) 992 1203 linkedin.com/jim-ji

T H
N K Y O U !
A

Turn static files into dynamic content formats.

Create a flipbook
Issuu converts static files into: digital portfolios, online yearbooks, online catalogs, digital photo albums and more. Sign up and create your flipbook.