ARCHITECTURE PORTFOLIO - JILL

Page 1

ARCHITECTURE PORTFOLIO

TABLE OF CONTENTS

1 2 3 4 5 6 7

THE SOCIAL HARBOUR

THESIS PROJECT

JUSTIN RESIDENCE

RESIDENCE INTERIOR DESIGN

CREED CAP OFFICE

OJ FARMHOUSE

FARMHOUSE

AYATANA COORG VILLAS

RESORT ARCHITECTURE

30 X 40 ICON

RESIDENCE

MISCELLANEOUS

AWARDS AND SKILLS

00

THE SOCIAL HARBOUR

The Social Harbour is a proposal for Cochin International convention and Exhibition Centre. The project aims at being a hub for cultural exchange in the heart of Kerala, Kochi. Rich in heritage and local festivals the social harbour has spaces for exposure and interaction between the common man and the visitor.

A JOURNEY THROUGH THE SOCIAL HARBOUR

8 9 THE SOCIAL HARBOUR THE SOCIAL HARBOUR
01
ACADEMIC THESIS PROJECT 2021 | KOCHI | 2.5 LAKH SQ FT

MASTER PLAN

DESIGN EVOLUTION

The existing vegetations and constraints of the site were kept in mind during the design process which gave way to an organic and sustainable masterplan evolution.

SITE AND SURROUNDING CONTEXT GIVES WAY FOR A PUBLIC SPACE NEAR THE ENTRANCE 1

5 6 PEDESTRIAN SPINE THAT CONNECTS THE URBAN PLAZA TOWARDS THE FOCAL POINT DRAWS THE PUBLIC TOWARDS THE SITE VERTICAL ROAD NETWORKS AROUND THE PEDESTRIAN THE SITE

ROADS WITH SAME 12 M ROAD WIDTH TO BE ABLE TO HANDLE TRAFFIC WHILE EVENTS TAKE PLACE, PLAZA FORMED AT THE INTERJUNCTION OF THE ROADS

6

THAT CONNECTS THE URBAN PLAZA TOWARDS THE FOCAL POINT DRAWS THE PUBLIC VERTICAL ROAD NETWORKS AROUND THE PEDESTRIAN SPINE GIVES ACCESS FOR THE VEHICLES INTO THE SITE

5

6 PEDESTRIAN SPINE THAT CONNECTS THE URBAN PLAZA TOWARDS THE FOCAL POINT DRAWS THE PUBLIC TOWARDS THE SITE

SPACE

6

CONNECTS THE URBAN PLAZA TOWARDS THE FOCAL POINT DRAWS THE PUBLIC VERTICAL ROAD NETWORKS AROUND THE PEDESTRIAN SPINE GIVES ACCESS FOR THE VEHICLES INTO THE SITE

ROADS

3 4 2

VERTICAL ROAD NETWORKS AROUND THE PEDESTRIAN SPINE THE SITE

10 11 THE SOCIAL HARBOUR THE SOCIAL HARBOUR
5. CENTRAL URBAN PLAZA 3. WALKWAY TO VIEW POINT 1. SITE
2
4. GREEN WALKWAY AND RADIAL ROADS 6. INTERSECTING 2. ENTRANCE PLAZA DEFINED BY ENTRY ROADS

STEPPED CONTOUR SEATING

ELEVATED RAMPS STREET LIGHTS AND BOLLARD LIGHTS

1.SECURITY CABIN

2.GUEST HOUSE

3.ART GALLERY

4.OFFICE

5.CONVENTION CENTRE 1

6.CONVENTION CENTRE 2

7.EXHIBITION CENTRE 1

8.EXHIBITION CENTRE 2

9.RESTAURANT

10.OUTDOOR PAVILION

11.RETAIL SHOPS

12.VIEW POINT

13.PORT

12 THE SOCIAL HARBOUR
LANDSCAPE SEATS
MASTER PLAN 1 1 1 1 5 7 9 10 8 6 3 3 2 2 4 11 12 13 13
14 15 THE SOCIAL HARBOUR THE SOCIAL HARBOUR
Rhino + GH Lumion Photoshop Tools used:

CONVENTION CENTRE

16 17 THE SOCIAL HARBOUR THE SOCIAL HARBOUR 1.RECEPTION 2.LOUNGE 3.VIP LOUNGE 4.VIP PARKING 5.OFFICES 6.HALL A 7.HALL B 8.STORAGE 9.GREEN ROOM 10.AV ROOM 11.KITCHEN 12.COLD STORAGE 13.DRY STORAGE 14.STAFF DINING 15.UTILITIES
GROUND FLOOR PLAN
07 06 01 02 ENTRY 05 05 04 03 09 09 08 TRANSITION SPACE TO EXHIBITION HALL 08 10 10 11 13 14 15 15 15 12 FIRST FLOOR PLAN 21 21 20 16 17 18 19 23 24 25 26 27 27 20 27 20 22 22 16.VIP LOUNGE 17.MEETING 18.PANTRY 19.HALL C 20.STORAGE 21.GREEN ROOM 22.AV ROOM 23.KITCHEN 24.COLD STORAGE 25.DRY STORAGE 26.STAFF DINING 27.UTILITIES 28. SPILL OUT

LARGE OVERHANGS ON FACADE

PROMOTING TRANSPARENCY BETWEEN THE BUILDING AND THE ENVIRONMENT.

ATRIUM SPACE

DOUBLE HEIGHT ATRIUMS AND CUTOUTS FOR HEIRARCHY IN SPACES

LOUNGE SPACE

LETTING NATURAL LIGHT INTO THE INTERIOR SPACES

18 19 THE SOCIAL HARBOUR THE SOCIAL HARBOUR

CONCEPTS

DESIGN EVOLUTION

INCORPORATING DIFFERENT LEVELS OF INTERACTION SPACES, SPILL OUT ZONES AND GREEN POCKETS ON THE INTERIOR AND EXTERIOR OF THE BUILDINGS

20 21 THE SOCIAL HARBOUR THE SOCIAL HARBOUR
TRANSITION SPACES NATURAL LIGHT THROUGH ATRIUMS RHINO PHOTOSHOP LIMION TOOLS USED:

RESEARCH & ANALYSIS

CASE STUDY - CHACKOLAS PAVILION

Identification of different layers that needs to be considered in the design of a convention and exhibition centre and comparison of the different case study projects based on the layers for a more comprehensive understanding of the merits and demerits of the projects

22 23 THE SOCIAL HARBOUR THE SOCIAL HARBOUR

RESEARCH & ANALYSIS

CASE STUDY - C9 CONVENTION CENTRE

24 25 THE SOCIAL HARBOUR THE SOCIAL HARBOUR

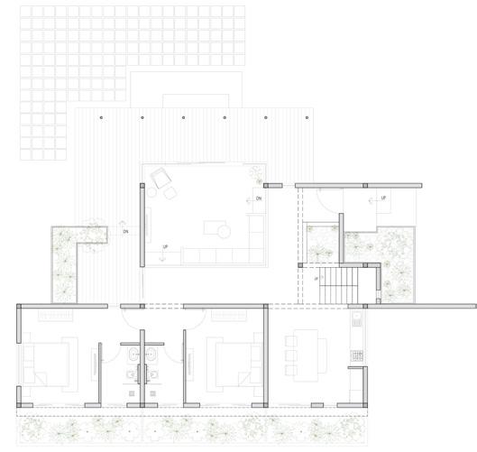
JUSTIN RESIDENCE

A house for a family of 5 - A young couple, their 2 kids and grandmother. The brief was for a house that feels airy, spacious and lets in a lot of light. The push and pull on the different space of the house brings about a break in the linearity of the house.

26 27 JUSTIN RESIDENCE JUSTIN RESIDENCE
RESIDENTIAL PROJECT | FREELANCE PROJECT 2020| THRISSUR | 3500 SQ FT 02

GROUND FLOOR PLAN

28 JUSTIN RESIDENCE LEGEND 1. FOYER
LIVING
4.
5.
6.
7.
8. KITCHEN 9. WORK
03 04 05 06
2.
ROOM 3. DINING HALL
GUEST BEDROOM
PATIO
GRANDPARENTS BEDROOM
BREAKFAST COUNTER
AREA
31 JUSTIN RESIDENCE 10 12 11 FIRST FLOOR PLAN

NORTH ELEVATION

SOUTH ELEVATION

32 33 JUSTIN RESIDENCE JUSTIN RESIDENCE

CREED CAP OFFICE

An office space for an investment advisory firm. The brief was for a workspace that is flexible, free, hybrid, accommodating their current workflow while allowing for scalibilty in the future.

34 35 CREEDCAP OFFICE CREEDCAP OFFICE
INTERIOR DESIGN PROJECT | OFFICE PROJECT 2022| OJENAHALLI | 1690 SQ FT 03 Texture Paint Oak wood Paint Fluted Glass Terracotta
36 37 CREEDCAP OFFICE CREEDCAP OFFICE

LOUNGE ROOM - 1

AN EXTENSION OF THE WORKSPACE, LOUNGE 1 PROVIDED FOR INFORMAL INTERACTIONS & DISCUSSIONS.

38 39 CREEDCAP OFFICE CREEDCAP OFFICE
AGL QUARTZARCTIC WHITE PVD BRASS FINISH 107 WOOLASH LAMINATE (GREENLAM) 5049 - SUD RED OAK (GREENLAM) 107 WOOLASH LAMINATE (GREENLAM) SOLID TEAK WOOD BEADING CARBONISED TEAK VENEER 107 WOOLASH LAMINATE (GREENLAM) SOLID TEAK WOOD BEADING CARBONISED TEAK VENEER 107 WOOLASH LAMINATE (GREENLAM) SOLID TEAK WOOD BEADING CARBONISED TEAK VENEER AGL QUARTZARCTIC WHITE PVD BRASS FINISH D A B 390 MM 1200 MM 1150 MM C WHITE EMULSION PAINT WHITE EMULSION PAINT WHITE EMULSION PAINT CU -F-11.2 CU -F-12.1 CU -F-12 CU -F-2.1 CU -F-1.4 CU -F-6.0 FFL 860 MM 1800 MM 750 MM 480 MM 100 MM 100 MM 250 MM SLAB LVL +2820 MM BEAM LVL +2520 MM FROM FFL FROM FFL B C D A

PANTRY

THE MOOD OF THE PANTRY WAS DESIGNED TO BE A BREAK FROM THE AMBIENCE OF THE REST OF THE SPACE. WITH A POP OF COLOUR IT ACTS AS AN INFORMAL AND FUN SPACE TO HANG OUT.

SLAB LVL +2820 MM BEAM LVL +2520 MM FROM FFL FROM FFL

TERRACOTTA COLOUR WAS ADDED TO THE SPACE BY USING LAMINATES AND TILES. IT WAS COMPLIMENTED WITH THE MUTE TONE OF GRANITE FOR COUNTERS AND WHITE TILES FOR THE KITCHEN BACKSPLASH.

40 41 CREEDCAP OFFICE CREEDCAP OFFICE
B C A
138 - SUD TERRACOTA (GREENLAM) INTERNAL LAMINATES 261 - SUD DARK GREY (GREENLAM) TILE DADO –CERAMIC TILE WITH TERRACOTA FINISH SOM ETRIC V E W GRANITE COUNTER TOP SADARAHALLI GRANITE 60 X 240 MM TERRACOTA TILE FFL 20 MM STEEL ROD 10 MM STEEL ROD GRANITE 8303 – SHADOW DANCE (ASIAN PAINT) TILE DADO –CERAMIC TILE WITH TERRACOTA FINISH BREAKFAST COUNTER ( CU-F-5) SOM ETR C V IE W GRANITE COUNTER TOP SADARAHALLI GRANITE 60 X 240 MM TERRACOTA TILE N FFL 20 MM STEEL ROD 10 MM STEEL ROD 5 MM G RAN TE E D GE D E TAIL GRANITE GRANITE 20 MM 30 MM
BREAKFAST COUNTER ( CU-F-5) SOM ETR C V E W GRANITE COUNTER TOP SADARAHALLI GRANITE 60 X 240 MM TERRACOTA TILE ON FFL 20 MM STEEL ROD 10 MM STEEL ROD 5 MM 5 MM G RAN TE E D GE D E TA L GRANITE GRANITE 20 MM 30 MM 138 - SUD TERRACOTA
INTERNAL LAMINATES 261 - SUD DARK GREY
100 X 100MM WHITE TILE B C D 600 MM 850 MM 900 MM 850 MM 850 MM 300 MM 300 MM 600 MM 280 MM 700 MM A
TILE DADO –CERAMIC TILE WITH TERRACOTA FINISH
(GREENLAM)
(GREENLAM)
CU
CU
CU -F-6.0 FFL
WHITE EMULSION PAINT WHITE EMULSION PAINT WHITE EMULSION PAINT WHITE EMULSION PAINT
CU -F-4
-F-5
-F-3.0
A

COUNTER TOP 25MM 60MM

(GREENLAM) F N GERSK P D E TAIL

F OR D RAWERS

F N GERSK P D E TAIL F OR SH UTTER

SUD TERRACOTA (GREENLAM) 20MM 20MM DRAWER DRAWER DRAWER

LAMINATES

FINGERSKIP DETAIL - DRAWER FINGERSKIP DETAIL - SHUTTER

E LE VA TION FFL GRANITE COUNTER TOP ISOM ETRIC V IE W P A N TRY C OUN TER F IN GERSK 20MM 25MM F N GERSKIP 20MM 25MM 20MM 20MM PANTRY COUNTER ELEVATION ISOMETRIC VIEW

42 43 CREEDCAP OFFICE CREEDCAP OFFICE DRAWER DRAWER DRAWER E LE VATION FFL GRANITE
ISOM ETR C V E W 138-
TERRACOTA
20MM 25MM 60MM 261-
20MM 25MM 20MM 20MM
COUNTER TOP
SUD
(GREENLAM) F IN GERSK P D E TA L F OR D RAWERS
SUD DARK GREY (GREENLAM) F IN GERSKIP D E T
E LE VA GRANITE
SOM ETRIC V IE W P AN TR 138-
INTERNAL
261-
20MM 25MM 60MM 20MM 20MM DRAWER DRAWER DRAWER FFL 138-
TERRACOTA
20MM 25MM 60MM INTERNAL
261- SUD DARK
COUNTER AND OVER HEAD CABINET ( CU-F-3 0) F N GERSK P D E TAIL F OR SH UTTER 20MM
SUD
DARK
GREY (GREENLAM)
SUD
LAMINATES
GREY (GREENLAM)
PANTRY COUNTER AND OVER HEAD CABINET ( CU-F- 3 0) PANTRY
TILE DADO –CERAMIC TILE WITH TERRACOTA FINISH PANTRY BREAKFAST COUNTER
PANTRY GRANITE COUNTER TOP SADARAHALLI GRANITE 60 X 240 MM TERRACOTA TILE E L FFL 20 MM STEEL ROD 10 MM STEEL ROD TILE DADO –CERAMIC TILE WITH TERRACOTA FINISH ISOM ETR C V IE W GRANITE COUNTER TOP SADARAHALLI GRANITE 60 X 240 MM TERRACOTA TILE FFL 20 MM STEEL ROD 10 MM STEEL ROD 5 MM 5 MM 50 MM G RANITE E D GE D E TAIL GRANITE GRANITE 20 MM 30 MM TILE DADO –CERAMIC TILE WITH TERRACOTA FINISH SADARAHALLI 60 X 240 MM TERRACOTA TILE E LE VA TION FFL 20 MM STEEL ROD 10 MM STEEL ROD 5 MM 5 MM 50 MM G RA NITE E D GE D E TA L GRANITE GRANITE 20 MM 30 MM BREAKFAST COUNTER GRANITE EDGE DETAIL ELEVATION ISOMETRIC VIEW
( CU-F-5)

PANTRY

PANTRY

( CU-F-5)

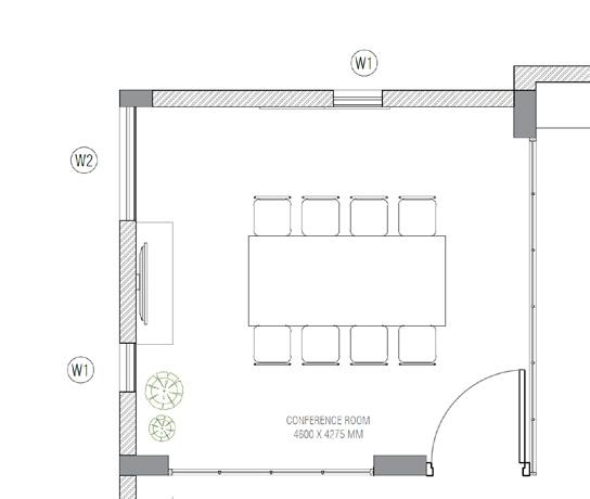
CONFERENCE ROOM

THE CONFERENCE ROOM IS MEETING SPACE 6+ PAX. THE TEXTURED PAINT ON THE WALLS BRINGS DOWN THE BRIGHTNESS OF THE ROOM AND FOCUSES ON THE STATEMENT PENDANT LIGHT IN THE CENTRE.

44 45 CREEDCAP OFFICE CREEDCAP OFFICE
A B C D 8303 – SHADOW DANCE (ASIAN PAINT) 107 WOOLASH LAMINATE (GREENLAM) 5049 - SUD RED OAK (GREENLAM) 107 WOOLASH LAMINATE (GREENLAM) SOLID TEAK WOOD BEADING CARBONISED TEAK VENEER TILE DADO –CERAMIC TILE WITH TERRACOTA FINISH
BREAKFAST COUNTER
PANTRY SOM ETR C V E W GRANITE COUNTER TOP SADARAHALLI GRANITE 60 X 240 MM TERRACOTA TILE E LE VAT ON FFL 20 MM STEEL ROD 10 MM STEEL ROD 5 MM G RAN TE E D GE D E TAIL GRANITE 20 MM HERB BOUQUET 8417 CEMENT GREY TEXTURE PAINT TILE DADO –CERAMIC TILE WITH TERRACOTA FINISH
( CU-F-5)
BREAKFAST
PANTRY SOM ETRIC V E W GRANITE COUNTER TOP SADARAHALLI GRANITE 60 X 240 MM TERRACOTA TILE E LE VAT ON FFL 20 MM STEEL ROD 10 MM STEEL ROD G RAN TE E D GE D E TA L HERB BOUQUET 8417 CEMENT GREY TEXTURE PAINT Title OPEN ELEVATION CONFERENCE ROOM 950 MM 1300 MM A B C D 2140 MM 860 MM A FFL BFC.LVL +2400 MM FROM FFL TEXTURED PAINT WHITE EMULSION PAINT WHITE EMULSION PAINT WHITE EMULSION PAINT CU-F-2.0 BEAM LVL +2520 MM SLAB LVL +2820 MM 1420 MM 790 MM 2260 MM 2140 MM FROM FFL FROM FFL
COUNTER

FINGERSKIP DETAIL

PLYWOOD WITH LAMINATE AND MS SUPPORTS

PLYWOOD WITH LAMINATE AND MS SUPPORTS

EDGE OF TABLE FINISHED IN WOOD BEADING AS PER SELECTION

EDGE OF TABLE FINISHED IN WOOD BEADING AS PER SELECTION

40 X 80 MM MS SUPPORTS

40 X 80 MM MS SUPPORTS

ISOMETRIC VIEW

PLAN SIDE ELEVATION

ELEVATION SIDE ELEVATION ELEVATION

GRANITE TOP

PLYWOOD WITH LAMINATE FINISH

20 X 2OMM M.S BOX SECTIONS

ISOMETRIC VIEW

ISOMETRIC VIEW

25MM 60MM

25MM 60MM

20MM

20MM

FINGERSKIP DETAIL

FINGERSKIP DETAIL

STEEL FRAME

STEEL FRAME

FINGERSKIP DETAIL SUPPORT

46 47 CREEDCAP OFFICE CREEDCAP OFFICE SWITCH
BOARD
BOARD SWITCH BOARD SWITCH

WORKSTATION

THE WORKSTATION IS A SPACE THAT IS FUNCTIONAL AND CLUTER FREE. WITH CLEAN AESTHETICS. THE PLANTERS PROVIDE A REFRESHING BREAK IN THE SPACE.

MS SUPPORTS

20 X 40 MM

ISOMETRIC VIEW

48 49 CREEDCAP OFFICE CREEDCAP OFFICE
PLAN
ELEVATION

05 TOILET 01, TOILET 02 SB03B 2100 EXHAUST SOCKET

06 PANTRY SB04 950 2 X 6A SWITCH AND SOCKET

07 PANTRY SB05 950 1 X 6A SWITCH AND SOCKET 1 X 16A SWITCH AND SOCKET

08 PANTRY SB06 1050 1 X 16A SWITCH AND SOCKET

09 PANTRY SB07 1350 1 X 16A SWITCH AND SOCKET

10 PANTRY, LOUNGE 02 SB07A 2720 ROUTER SOCKET, DATA POINT

11 CONFERENCE ROOM SB08 800 2 X LIGHT SWITCH 1 X ROUTER SWITCH

12 CONFERENCE ROOM (TABLE TOP) SB08A 750 2 DATA POINT, PHONE POINT

13 CONFERENCE ROOM SB08B 2200 ROUTER SOCKET, DATA POINT

14 CONFERENCE ROOM (TABLE TOP) SB09 750 2 X 6A SWITCH AND SOCKET

15 CONFERENCE ROOM, LOUNGE 02 SB10 500 3 X 6A SWITCH AND SOCKET HDMI DATA POINT

16 WORKSTATION (TABLE TOP) SB11 750 2 X 6A SWITCH AND SOCKET

17 WORKSTATION SB11A 750 2 X 6A SWITCH AND SOCKET, AC SWITCH

18 CONFERENCE ROOM, WORKSTATION SB12 2250 AC SOCKET

19 WORKSTATION SB13 1050 2 X 6A SWITCH AND SOCKET, DATA POINT

20 WORKSTATION SB14 800 3 X LIGHT SWITCH

21 BALCONY SB15 300 2 X 6A SWITCH AND SOCKET

22 LOUNGE 02 SB16 800 2 X LIGHTS SWITCH 2 X FAN SWITCH AND REGULATOR 1 X ROUTER SWITCH

23 LOUNGE 02 SB17 500 2 X 6A SWITCH AND SOCKET

24 LOUNGE 02 SB18 200 2 X 6A SWITCH AND SOCKET, ROUTER SOCKET, HDMI DATA POINT

25 LOUNGE 02 SB19 800 2 X LIGHT SWITCH 1 X EXHAUST SWITCH

50 51 CREEDCAP OFFICE CREEDCAP OFFICE
ELECTRICAL AND LIGHTING LAYOUT Rev No. Project Drawing Title Drawing No. Project No. NOTE · The drawing is the property of Space_Agency Architects and unauthorised use or reproduction of the drawing is not permitted without the Architect's permission. · The drawing is not to be scaled · All dimensions are in millimetres and all levels are in metres unless otherwise indicated. · Any discrepancy in the drawing is to be brought to the Rev No. Details Date #463,9th Cross, Jayanagar 1st Block, Stage R0 07.11.22 FOR CO-ORDINATION N DESIGN DEVELOPMENT R1 SA - 2209 DD-101 ELECTRICAL DWG UP 1 2 3 TOILET 02 1500 X 2470 MM W1 W1 W1 W1 W1 W1 W1 W2 W2 W2 W2 W3 W5 W5 MD D1 D1 DN UP -1 -2 -3 -4 LIFT SD1 CONFERENCE ROOM 4650 4275 MM WORKSTATION 9700 X 4575 MM BALCONY 3570 3995 MM PANTRY 3500 4335 MM LOUNGE 01 2275 3825 MM ENTRY 3450 1860 MM LOUNGE 02 3000 X 4220 MM TOILET 01 1250 X 2760 MM 4 -5 10 D2 EQ. SB08 SB01 SB14 740 1120 EQ. 1100 1560 800 800 2675 800 825 3000 825 800 EQ. EQ. EQ. EQ. EQ. 800 955 1910 955 2010 2440 740 EQ. EQ. EQ. 2675 2355 750 1280 1260 1260 2570 945 890 650 EQ. EQ. 650 600 800 1800 600 2420 800 1500 955 1910 955 1090 1325 1300 1330 SB16 SB12 SB12 EQ. EQ. EQ. EQ. 920 EQ. EQ. 1000 2325 SB05 SB03 SB19 SB10 SB17 A2 DD-101 ELECTRICAL DWG 1:50 SB02 EQ. EQ. 1200 1000 200 400 600 600 800 200 400 200 1580 1600 400 2140 SB09 SB09 1200 1100 460 1840 2750 1260 900 900 900 950 900 940 1355 1865 EQ. SB06/ 700 SB04 SB07 SB10 SB11A 1200 SB13 SB13 400 SB15 200 585 430 1700 SB03B 300 SB03B 200 SB03A SB11 1200 2125 EQ. EQ. 90 2135 2130 2095 2020 EQ EQ EQ EQ 1815 1910 400 1265 SB07A SB08B 400 535 535 SB08A 200 1200 SB07A 200 300 SB11 SB11 SB11 SB11 1200 ELECTRICAL SCHEDULE FOR CREED CAP SLNO LOCATION NAME HEIGHT (FROM FFL) SWITCH BOARD CONFIGURATION 01 ENTRY SB01 800 2 X 6A SWITCH AND SOCKET 4 X LIGHT SWITCH 02 LOUNGE 01 SB02 500 3 X 6A SWITCH AND SOCKET 03 PANTRY SB03 800 5 X LIGHT SWITCH 1 X GEYSER SWITCH 1 X EXHAUST SWITCH 1 X ROUTER SWITCH 04 TOILET 01 SB03A 2250 GEYSER SOCKET
WORKING DRAWINGS
SL NO SYMBOL DESCRIPTION 1 CODE RECESSED CEILING LIGHT 2 CEILING MOUNTED LIGHT 3 RECESSED CEILING LIGHT 4 FIXTURE LEGEND RECESSED CEILING LIGHT PENDANT LIGHT WALL LIGHT 10 SPIKE LIGHT FOR LANDSCAPE 11 DOOR BELL
52 53 CREEDCAP OFFICE CREEDCAP OFFICE
TOILET DRAWINGS Rev No. Project Drawing Title Drawing No. Project No. NOTE The drawing is the property of Space_Agency Architects and unauthorised use or reproduction of the drawing is not permitted without the Architect's permission. The drawing is not to be scaled All dimensions are in millimetres and all levels are in metres unless otherwise indicated. Any discrepancy in the drawing is to be brought to the Rev No. Details Date #463,9th Cross, Jayanagar 1st Block, Stage R0 04.11.22 FOR CO-ORDINATION N R1 SA - 2209 DD - 201 TOILET 02 DWG 1:20 OPEN ELEVATION ELE 201 A B C D E 1590 2280 280 1290 1290 1200 A 2470 START START 1200 D1 1620 I-WL 1.2 VITRIFIED SUBWAY TILE 300 x 100 I-WL 1.1 VITRIFIED TILE 300 x 300 I-WL 1.0 WHITE EMULSION PAINT SF 04 HEALTH FAUCET SF 01 SINK FAUCET SF 02 WASH BASIN SF 03.1 FLUSH PLATE MIRROR 300 300 300 300 START START START START START 300 100 TOILET PAPER HOLDER SF 03 WATER CLOSET 350 350 1000 I-WL 2 SADARAHALLI GRANITE COUNTER TOP I-WL 2 SADARAHALLI GRANITE 750 1200 TOWEL RING 500 510 450 FFL BOC LVL @ 2820 MM 420 550 300 100 START 280 1:25 TOILET 02 FIXTURE MARKOUT PLAN 201 A 1290 B C D E 1200 EQ EQ 600 110 420 350 350 SF 01 SINK FAUCET SF 02 WASH BASIN SF 03 WATER CLOSET 470 TOILET PAPER HOLDER SF 04 HEALTH FAUCET 1500 2 FULL TILES R FULL TILES 2320 1:25 TOILET FLOORING LAYOUT PLAN 201 START 600 600 R SLOPE 150 150 I-WL 2 SADARAHALLI GRANITE I-FL 02.2 GREY VITRIFIED TILE 600 X 600MM FLOOR DRAIN EQ. EQ. EQ. EQ. 1:25 REFLECTED CEILING PLAN PLAN 200 EQ EQ
WORKING DRAWINGS

OJ FARMHOUSE

54 55 OJ FARMHOUSE OJ FARMHOUSE
A Farmhouse designed inside out with a lean footprint but spacious, roomy and modular to accommodate changing needs.
ONGOING PROJECT | OFFICE PROJECT 2022| OJENAHALLI | 1640 SQ FT 04
A farmhouse designed in a serene green plush of land in Coorg.

BASE PLAN

AREA: BUILT UP - 1640 SQFT

OUTDOOR DECK - 530 SQFT

COURTYARD - 245 SQFT

The farmhouse is situated in a lush green site. The design gives way for a smooth transition between the natural landscape and internal spaces through planned courtyards. The expansive glass walls in the living room allows for uninterupted views of the surrounding landscape blurring the lines between inside and outside.

56 57 OJ FARMHOUSE OJ FARMHOUSE
1 3 5 2 4 7 6 8 9
COURTYARD
1.9M WIDE CORRIDOR

SECTION

THE STEP DOWN LIVING ROOM IS A WARM WELCOMING CENTRAL POINT OF THE FARMHOUSE THAT DRAWS ATTENTION TOWARDS THE OUTDOOR SPACE THROUGH FULL HEIGHT GLAZINGS. THE SLOPING MONIER TILED ROOF AND THE GLASS PUNCTURES IN IT GIVES A PLAY OF LIGHT AND SHADOW WITHIN THIS SPACE.

58 59 OJ FARMHOUSE OJ FARMHOUSE
SD1 W1 GL1 GL1 OUTDOOR PATIO STEP DOWN LIVING ROOM FOYER COURTYARD MONIER TILE ROOF COURTYARD PLANTER NGL NGL A2 201 SECTION AA 1:50 450 450 OPENINGS AS PER WALL ELEVATION 2700 600 1700 200 2400 C F G H 5700 1900 2700 B' 3800 GROUND FLOOR FFL @ +0.6M LVL DECK LVL @ +0.3M LVL SLOPED ROOF FL @ +4.80M LVL DECK PERGOLA TO DETAIL ENTRANCE PERGOLA TO DETAIL 300 4800 5100 C G

THE SLOPED ROOF GIVES WAY FOR A LARGE DOUBLE HEIGHT LIVING ROOM ON THE INSIDE AND A COVERED AND SHADED SPACE ON THE OUTDOOR DECK. THE LARGE GLAZINGS BETWEEN THESE SPACES GIVES A VISUAL CONTINUITY THROUGHOUT.

60 61 OJ FARMHOUSE OJ FARMHOUSE SECTION
GL1 SD3 SD2 GARDEN BEDROOM 1 D1 CORRIDOR STEP-DOWN LIVING ROOM DECK SD1 900 300 4600 A2 201 SECTION CC 1:50 2400 2530 370 50MM PCC 1650 2400 800 450 NGL V2 1300 200 830 2200 DECK FFL @ +0.3M LVL TERRACE FFL @ +3.15M LVL SLOPED ROOF FL@ +4.76M LVL GROUND FLOOR FFL @ +0.6M LVL JAALI WALL TO DETAIL 150 300 3150 1610 5210 3150 2600 200 500 2 4 3 5 3600 2000 4600 1 3900 700 2 4 3 5 1 A2 201 DECK DETAIL CUT SECTION NTS 150 350 50 201 DECK DETAIL ELEVATION 100 50

STRUCTURAL DETAILS

THE MAIN DESIGN ELEMENTS IN THE FARMHOUSE IS THE COMBINATION OF SLOPED, FLAT ROOF AND JACK ARCHED ROOF. THERE IS ALSO A COMBINATION OF RCC, STEEL COLUMNS AND STONE COLUMNS.

THE WALLS ARE MADE OF CONCRETE BLOCKS AND EXPOSED CSEB BLOCKS.

62 63 OJ FARMHOUSE OJ FARMHOUSE
SLOPED ROOF FRAMING JACK ARCHED ROOF BEAM LAYOUT RCC COLUMNS 400 X 200MM SQUARE HOLLOW COLUMN 72 X 72 X 4MM STONE COLUMNS 300 X 150 MM 400 X 200 MM RCC BEAMS 500 X 200 MM RCC BEAMS FLAT ROOF
64 65 OJ FARMHOUSE Y8@6"(B) C F 1900 1900 1900 1800 1800 2-Y12 2-Y16 2-Y16 3,5 C F SECTION:A-A 5 2-Y12 PRODUCED BY AN AUTODESK STUDENT VERSION 4 1/2 INCH BRICK ISMB 250 L SECTION 100 X 100 X 8MM CONCRETE FILLING 200 X 500MM RCC BEAM 3' 4 3 5 1300 2000 4600 Y8@6"(B) A C 1900 1900 1900 2-Y16 2-Y12 2-Y12 2-Y16 2-Y16 3,5 4 3 A C SECTION:A-A A B8A(200X450) 5 B4A,B6(200X500) 2-Y12 PRODUCED BY AN AUTODESK STUDENT VERSION 3' 4 3 5 1300 2000 4600 Y8@6"(B) A C F I 1900 1900 1900 1900 1800 1800 2-Y16 2-Y12 2-Y12 2-Y16 2-Y16 3,5 200 700 Y10@ 150C/C A C F H SECTION:A-A +3.10m LVL FROM FFL A A 450 B8A(200X450) 150 5 B4A,B6(200X500) 2-Y12 2-Y16+ 2-Y12 600 600 PRODUCED BY AN AUTODESK STUDENT VERSION PRODUCED BY AN AUTODESK STUDENT VERSION PRODUCED BY AN AUTODESK STUDENT VERSION JACK ARCHED ROOF CIELING DETAIL
BOARD
REFERENCES
ROOF DESIGN - JACK ARCHED ROOF MOOD
AND
DETAILS
DESIGN ELEMENT - JACK ARCHED ROOF
66 67 OJ FARMHOUSE OJ FARMHOUSE
FLOORING LAYOUT Rev No. Drawing Title NOTE Rev No. Details Date 6 FULL TILES 3600 1600 2 FULL TILES R 10 FULL TILES 5500 4400 8 FULL TILES 8 FULL TILES 4401 3300 6 FULL TILES 10000 18 FULL TILES R BEDROOM 2 3600 X 4400 MM TOILET 02 1800 X 2700 MM LVL ±0.0M STEP-DOWN LIVING ROOM 5500 x 4700MM FOYER 3490 X 1500MM 1900MM WIDE CORRIDOR TOILET 01 1800 X 2700 MM KITCHEN & DINING 4400 X 4400 MM BEDROOM 1 3600 X 4400 MM 1900MM WIDE CORRIDOR LVL +0.6M LVL +0.3M LVL+0.6M VITRIFIED TILE WOODEN FINISH 5500 10 FULL TILES 4400 8 FULL TILES START START START START TO DETAIL DD 203 LVL +0.3M SIRA GREY GRANITE LEATHER FINISH R 190 150 START 10700 R 53 FULL TILES 6101 610 5 FULL TILES 400 R 6 FULL TILES R 1500 3000 14 FULL TILES R R MOSAIC TILES START START START 4850 START TO DETAIL - DD 203 UP UP DN DN DET-01 103A DET-03 103A DET-05 103A DET-04 103A DET-07 103A DET-06 103A I-FL 04.0 ENTRANCE TO DETAIL - DD 208 DET-02 103A DET-05 103A GL1 SD1 GL1 W1 GL3 GL2 W5 W3 W2 SD2 D1 D2 D2 D2 D1 MD COURTYARD TO DETAIL 190 VITRIFIED TILE WOODEN FINISH I-FL 04.0 I-FL 05.0 I-FL 03.0 550 X 550 MM KOTA STONE LEATHER FINISH I-FL 07.0 I-FL 03.1 550 X 550 MM KOTA STONE POLISHED FINISH WITH PAPER JOINT I-FL 03.0 550 X 550 MM KOTA STONE LEATHER FINISH WITH 2MM SPACER DET-06 103A 1525 150 CODE DESCRIPTION SYMBOL LEGEND 550 X 550 MM KOTA STONE LEATHER FINISH VITRIFIED TILE WOOD FINISH I-FL TERRACE TILE I-FL 550 X 550 MM KOTA STONE POLISHED FINISH I-FL I-FL SIRA GREY GRANITE I-FL MOSAIC TILE I-FL 6 FULL TILES 3600 1600 2 FULL TILES R 10 FULL TILES 5500 4400 8 FULL TILES 8 FULL TILES 4401 3300 6 FULL TILES 10000 18 FULL TILES R BEDROOM 3600 X 4400 MM TOILET 02 1800 X 2700 MM LVL ±0.0M STEP-DOWN LIVING ROOM 5500 4700MM FOYER 3490 X 1500MM 1900MM WIDE CORRIDOR TOILET 01 1800 X 2700 MM KITCHEN & DINING 4400 X 4400 MM BEDROOM 1 3600 X 4400 MM 1900MM WIDE CORRIDOR LVL +0.6M LVL +0.3M LVL+0.6M VITRIFIED TILE WOODEN FINISH 5500 10 FULL TILES 4400 8 FULL TILES START START START START TO DETAIL DD - 203 LVL +0.3M SIRA GREY GRANITE LEATHER FINISH R 190 150 START 10700 R 53 FULL TILES 6101 610 5 FULL TILES 400 R 6 FULL TILES R 1500 3000 14 FULL TILES R R MOSAIC TILES START START START 4850 START TO DETAIL DD 203 UP UP DN DN DET-01 103A DET-03 103A DET-05 103A DET-04 103A DET-07 103A DET-06 103A I-FL 04.0 ENTRANCE TO DETAIL DD 208 DET-02 103A DET-05 103A GL1 SD1 GL1 W1 GL3 GL2 W5 W3 W2 SD2 D1 D2 D2 D2 D1 MD COURTYARD TO DETAIL 190 VITRIFIED TILE WOODEN FINISH I-FL 04.0 I-FL 05.0 I-FL 03.0 550 X 550 MM KOTA STONE LEATHER FINISH I-FL 07.0 I-FL 03.1 550 X 550 MM KOTA STONE POLISHED FINISH WITH PAPER JOINT I-FL 03.0 550 X 550 MM KOTA STONE LEATHER FINISH WITH 2MM SPACER DET-06 103A 1525 150 CODE DESCRIPTION SYMBOL LEGEND 550 X 550 MM KOTA STONE LEATHER FINISH VITRIFIED TILE WOOD FINISH I-FL 03.0 TERRACE TILE I-FL 07.0 550 X 550 MM KOTA STONE POLISHED FINISH I-FL 03.1 I-FL 04.0 SIRA GREY GRANITE I-FL 05.0 MOSAIC TILE I-FL 06.0
WORKING DRAWINGS

2 X LIGHT SWITCH 2. DOOR BELL 800

WORKING DRAWINGS

3 X 6A SOCKET AND SWITCH 2. HDMI

DATA POINT LIVING SB04 150 1. 1 X 6A SOCKET AND SWITCH

1000

1. 1 X 6A SOCKET AND SWITCH

2. 1 X 16A SOCKET AND SWITCH

BEDROOM 1 550

1. 1 X LIGHT SWITCH

2. 1 X UNIVERSAL SOCKET AND SWITCH

1. 4 X LIGHT SWITCH

2. 1 X UNIVERSAL SOCKET AND SWITCH

3. FAN SWITCH AND REGULATOR

1. 2 x LIGHT SWITCH

2. FAN SWITCH AND REGULATOR

SB19 BEDROOM 02 550

GYSER SWITCH

2 X LIGHT SWITCH

1 X 6A SOCKET AND SWITCH

1. 2 X LIGHT SWITCH

2. 1 X UNIVERSAL SOCKET AND SWITCH

3. FAN SWITCH AND REGULATOR

4. AC SWITCH

SB20 BEDROOM 02 550

1. 3 X LIGHT SWITCH

2. 1 X UNIVERSAL SOCKET AND SWITCH

1. HDMI

BEDROOM 02 SB21 600

2. TV SOCKET AND SWITCH

3. 1 X 6A SWITCH AND SOCKET

68 69 OJ FARMHOUSE OJ FARMHOUSE SB18 SB15 1365 1335 SB19 SB20 SB21 550 1365 SB01 SB09 SB08 SB04 SB07 SB10 SB12 SB11 550 SB14 SB17 1250 SB03 SB02 700 300 A2 106A ELECTRICAL LAYOUT - GF 1:70 SB16 SB06 SB05 1200 SB16 1200 SB22 SB22 SB13 600 SB10A SB10A 300 300 SB10A 150 W1 D1 D1 D2 D2 SD1 GL1 GL1 SD3 SD3 W4 W2 W5 W3 BEDROOM 2 3600 X 4400 MM TOILET 2 1800 X 2700 MM LVL ±0.0M STEP-DOWN LIVING ROOM 5500 x 4400MM FOYER 1390 X 1500MM 2100MM WIDE CORRIDOR TOILET 1 1800 X 2700 MM KITCHEN & DINING 4400 X 4400 MM DECK 11000 x 3100MM COURTYARD 1390 x 1800 MM LVL +0.30 BEDROOM 1 3600 X 4400 MM 2000MM WIDE CORRIDOR 1500MM WIDE LANDING LVL+0.6M LVL+0.6M LVL+0.3M LVL+0.6M UP GL2 GL3 2 3 4 5 6 7 8 9 10 12 13 14 15 16 LVL+0.6M LVL+0.3M LVL+0.3M LVL+0.6M LVL+0.6M LVL+0.00M UP DN DN DN UP MD 11 17 18 D2 V1 V1 SD2 SB25 1975 1975 1975 1975 1975 1975 1975 1975 1800 1800 1800 1800 300 500 300 200 600 300 300 300 150 150 150 150 150 LOCATION NAME HEIGHT(BOP) SWITCH BOARD CONFIGURATION ELECTRICAL LEGEND FOR OJ FARMHOUSE SB02 800 CORRIDOR SB07 1. 7 X LIGHT SWITCH 2. FAN SWITCH AND REGULATOR DINING 800 1. 6 X LIGHT SWITCH 2. 2 X AC SWITCH SB09 1. 2 X 16A SWITCH AND SOCKET FOR FRIDGE AND OVEN KITCHEN BELOW SINK SB08 1. 1 X 16A SWITCH AND SOCKET FOR RO PURIFIER KITCHEN 1200 BEDROOM 1 SB13 800 TOILET 02 SB17 800 1. 4 X LIGHT SWITCH 2. GYSER SWITCH ENTRANCE SB01 1. 2 X LIGHT SWITCH 2. DOOR BELL 800 LIVING SB03 450 1. 3 X 6A SOCKET AND SWITCH 2. HDMI 3. DATA POINT LIVING SB04 150 1. 1 X 6A SOCKET AND SWITCH SB10 KITCHEN 1000 SB11 BEDROOM 1 550 1. 4 X LIGHT SWITCH 2. 1 X UNIVERSAL SOCKET AND SWITCH 3. FAN SWITCH AND REGULATOR SB12 BEDROOM 1 550 1. 1 X LIGHT SWITCH 2. 1 X UNIVERSAL SOCKET AND SWITCH 1. 2 x LIGHT SWITCH 2. FAN SWITCH AND REGULATOR BEDROOM 02 SB21 600 SB19 BEDROOM 02 550 1. 3 X LIGHT SWITCH 2. 1 X UNIVERSAL SOCKET AND SWITCH SB20 BEDROOM 02 550 1. 2 X LIGHT SWITCH 2. 1 X UNIVERSAL SOCKET AND SWITCH 3. FAN SWITCH AND REGULATOR 4. AC SWITCH 1. HDMI 2. TV SOCKET AND SWITCH 3. 1 X 6A SWITCH AND SOCKET 1. 1 X 6A SOCKET AND SWITCH 2. 1 X 16A SOCKET AND SWITCH SB14 TOILET 1 800 1. 1 X LIGHT SWITCH 2. GEYSER SWITCH TOILET 02 SB18 1000 1. 2 X LIGHT SWITCH 2. 1 X 6A SOCKET AND SWITCH SB15 TOILET 1 1000 1. 2 X LIGHT SWITCH 2. 1 X 6A SOCKET AND SWITCH SB24 CORRIDOR AS/SITE 1. AC SOCKET STAIR SB23 4100 1. 3 X LIGHT SWITCH SB16 TOILET 01, TOILET 02 1. GEYSER SOCKET 2650 LIVING (ON THE TABLE) SB05 150 1. 2 X 6A SOCKET AND SWITCH CORRIDOR SB06 600 1. 1 X LIGHT SWITCH 2. 1 X 6A SOCKET AND SWITCH BEDROOM 01, BEDROOM 02 SB22 2500 1. AC SOCKET SL NO 01 02 03 04 05 06 07 08 09 10 12 13 14 15 16 17 18 19 20 21 22 23 24 25 SB10A KITCHEN, TOILET 1, TOILET 2 2400 1. EXHAUST SOCKET 11 SB25 CORRIDOR 800 1. 2 X LIGHT SWITCH 26 SL NO SYMBOL DESCRIPTION 1 CEILING MOUNTED LIGHT 2 3 4 RECESSED CEILING LIGHT - IP rated 6 WALL LIGHT 7 FIXTURE LEGEND SPIKE LIGHT FOR LANDSCAPE PENDANT LIGHT 5 DOOR BELL STRIP LIGHT MIRROR LIGHT 8 AC 9 10 PENDANT LIGHT
ELECTRICAL LAYOUT SB18 SB15 1365 1335 SB19 SB20 SB21 550 1365 SB01 SB09 SB08 SB04 SB07 SB10 SB12 SB11 550 SB14 SB17 1250 SB03 SB02 700 300 A2 106A ELECTRICAL LAYOUT GF 1:70 SB16 SB06 SB05 1200 SB16 1200 SB22 SB22 SB13 600 SB10A SB10A 300 300 SB10A 150 W1 D1 D1 D2 D2 SD1 GL1 GL1 SD3 SD3 W4 W2 W5 W3 BEDROOM 2 3600 X 4400 MM TOILET 2 1800 X 2700 MM LVL ±0.0M STEP-DOWN LIVING ROOM 5500 x 4400MM FOYER 1390 X 1500MM 2100MM WIDE CORRIDOR TOILET 1 1800 X 2700 MM KITCHEN & DINING 4400 X 4400 MM DECK 11000 x 3100MM COURTYARD 1390 x 1800 MM LVL +0.30 BEDROOM 1 3600 X 4400 MM 2000MM WIDE CORRIDOR 1500MM WIDE LANDING LVL+0.6M LVL+0.6M LVL+0.3M LVL+0.6M UP GL2 GL3 1 2 3 4 5 6 8 10 12 13 14 15 16 LVL+0.6M LVL+0.3M LVL+0.3M LVL+0.6M LVL+0.6M LVL+0.00M UP DN DN DN UP MD 11 17 18 D2 V1 V1 SD2 SB25 1975 1975 1975 1975 1975 1975 1975 1975 1800 1800 1800 1800 300 500 300 200 600 300 300 300 150 150 150 150 150 LOCATION NAME HEIGHT(BOP) SWITCH BOARD CONFIGURATION ELECTRICAL LEGEND FOR OJ FARMHOUSE SB02 800 CORRIDOR SB07 1. 7 X LIGHT SWITCH 2. FAN SWITCH AND REGULATOR DINING 800 1. 6 X LIGHT SWITCH 2. 2 X AC SWITCH SB09 1. 2 X 16A SWITCH AND SOCKET FOR FRIDGE AND OVEN KITCHEN BELOW SINK SB08 1. 1 X 16A SWITCH AND SOCKET FOR RO PURIFIER KITCHEN 1200 BEDROOM 1 SB13 800 TOILET 02 SB17 800 1. 4 X LIGHT SWITCH 2.
ENTRANCE
1.
1.
3.
SB10 KITCHEN
SB11
SB01
LIVING SB03 450
BEDROOM 1 550
SB12
TOILET 1
1.
1.
2.
SB15 TOILET 1
1.
2.
SB24 CORRIDOR AS/SITE 1. AC SOCKET STAIR SB23 4100 1. 3 X LIGHT SWITCH SB16 TOILET 01, TOILET 02 1. GEYSER SOCKET 2650 LIVING (ON THE TABLE) SB05 150 1. 2 X 6A SOCKET AND SWITCH CORRIDOR SB06 600 1. 1 X LIGHT SWITCH 2. 1 X 6A SOCKET AND SWITCH BEDROOM 01, BEDROOM 02 SB22 2500 1. AC SOCKET SL NO 01 02 03 04 05 06 07 08 09 10 12 13 14 15 16 17 18 19 20 21 22 23 24 25 SB10A KITCHEN, TOILET 1, TOILET 2 2400 1. EXHAUST SOCKET 11 SB25 CORRIDOR 800 1. 2 X LIGHT SWITCH 26 SL NO SYMBOL DESCRIPTION 1 CEILING MOUNTED LIGHT 2 3 4 RECESSED CEILING LIGHT - IP rated 6 WALL LIGHT 7 FIXTURE LEGEND SPIKE LIGHT FOR LANDSCAPE PENDANT LIGHT 5 DOOR BELL STRIP LIGHT MIRROR LIGHT 8 AC 9 10 PENDANT LIGHT SB01 SB04 SB02 W1 SD1 GL1 GL1 FOYER 1390 X 1500MM DECK 11000 x 3100MM 1500MM WIDE LVL+0.3M LVL+0.3M DN DN UP MD 300 LOCATION NAME HEIGHT(BOP) SWITCH BOARD CONFIGURATION ELECTRICAL LEGEND FOR OJ FARMHOUSE SB02 800 CORRIDOR SB07 1. 7 X LIGHT SWITCH 2. FAN SWITCH AND REGULATOR DINING 800 1. 6 X LIGHT SWITCH 2. 2 X AC SWITCH 1. 2 X 16A SWITCH AND SOCKET FOR SB08 KITCHEN 1200 ENTRANCE SB01 1. 2 X LIGHT SWITCH 2. DOOR BELL 800 LIVING SB03 450 1. 3 X 6A SOCKET AND SWITCH 2. HDMI 3. DATA POINT LIVING SB04 150 1. 1 X 6A SOCKET AND SWITCH LIVING (ON THE TABLE) SB05 150 1. 2 X 6A SOCKET AND SWITCH CORRIDOR SB06 600 1. 1 X LIGHT SWITCH 2. 1 X 6A SOCKET AND SWITCH SL NO 01 02 03 04 05 06 07 08 SL NO SYMBOL DESCRIPTION 1 CEILING MOUNTED LIGHT 2 3 4 RECESSED CEILING LIGHT - IP rated 6 WALL LIGHT 7 FIXTURE LEGEND SPIKE LIGHT FOR LANDSCAPE PENDANT LIGHT 5 DOOR BELL STRIP LIGHT MIRROR LIGHT 8 AC 9 10 PENDANT LIGHT
SB14
800
1 X LIGHT SWITCH 2. GEYSER SWITCH TOILET 02 SB18 1000
1000
2 X LIGHT SWITCH
1 X 6A SOCKET AND SWITCH
70 71 OJ FARMHOUSE OJ FARMHOUSE
STAIRCASE DRAWING Rev No. Project Drawing Title Drawing No. Project No. Drawn Chkd Scale Date #463,9th Cross, Jayanagar 1st Block, Bangalore 560011 admin@space-agency.in www.space-agency.in Stage DESIGN DEVELOPMENT R0 SA-2108 DD - 205 VILLA OJ FARMHOUSE STAIRCASE DETAIL 28.03.2023 1:30 SACHID JIJLINNE GROUND FLOOR FFL @ +0.6M LVL STAIRWELL FFL@ 5.90M LVL TERRACE FFL @ +3.15M LVL A DET TYPICAL STEP SECTION 1:10 50 250 150 210 SOLID WOOD MS SUPPORT FOR TREAD MS STRINGER BEAM A DET TYPICAL STEP ELEVATION 1:10 20 900 200 20 860 50 Rev No. Project Drawing Title Drawing No. Project No. Drawn Chkd Scale Date Rev No. Details Date #463,9th Cross, Jayanagar 1st Block, Bangalore 560011 admin@space-agency.in www.space-agency.in Stage R0 28.03.23 FOR CO-ORDINATION DESIGN DEVELOPMENT R0 SA-2108 DD - 205 VILLA OJ FARMHOUSE STAIRCASE DETAIL 28.03.2023 1:30 SACHID JIJLINNE 1 2 3 4 5 6 7 8 9 10 13 14 15 16 17 18 STAIRWELL 3300 OHT 150 350 D3 3150 900 LVL+0.60M LVL+3.15M GROUND FLOOR FFL @ +0.6M LVL STAIRWELL FFL@ 5.90M LVL TERRACE FFL @ +3.15M LVL TREAD - 250MM RISER - 175MM DET A 2100 100 A DET TYPICAL STEP SECTION 1:10 50 250 150 210 SOLID WOOD MS SUPPORT FOR TREAD MS STRINGER BEAM DET TYPICAL STEP ELEVATION 1:10 20 900 200 20 860 50 STEEL STAIRCASE WITH WOODEN TREAD TYPICAL STEP ELEVATION TYPICAL STEP SECTION NOTE Rev No. Details 1 2 3 4 5 6 7 8 9 10 11 12 13 14 15 16 17 18 STAIRWELL 3300 3975 1925 OHT 1500 GL2 GL3 150 350 D3 3150 900 900 LVL+0.60M LVL+1.925M LVL+3.15M TREAD - 250MM RISER - 175MM DET A 2100 100 205 SEC SECTION A-A 1:30 5 6 7 8 9 10 12 13 14 15 16 900 17 205 PLAN STAIRCASE PLAN - ABOVE LINTEL 1:30 LVL+2.155M LVL+3.15M 11 18 DN SEC A SEC A 3300 900 GL2 GL3 TREAD - 250MM RISER - 175MM D3 UP GL2 GL3 1 2 3 4 5 6 7 8 9 10 12 13 14 15 16 900 17 3400 205 PLAN STAIR PLAN - GF 1:30 LVL+0.60M LVL+1.925M 11 18 2500 SEC A SEC A 1800 TREAD - 250MM RISER - 175MM 100 1 2 3 4 5 6 7 8 9 10 11 12 13 14 15 16 17 18 STAIRWELL 3300 3975 1925 OHT 1500 GL2 GL3 150 350 D3 3150 900 900 LVL+0.60M LVL+1.925M LVL+3.15M TREAD - 250MM RISER - 175MM DET A 2100 100 205 SEC SECTION A-A 1:30 5 6 7 8 9 10 12 13 14 15 16 900 17 205 PLAN STAIRCASE PLAN - ABOVE LINTEL 1:30 LVL+2.155M LVL+3.15M 11 18 DN SEC A SEC A 3300 900 GL2 GL3 TREAD - 250MM RISER - 175MM D3 UP GL2 GL3 1 2 3 4 5 6 7 8 9 10 12 13 14 15 16 900 17 3400 205 PLAN STAIR PLAN - GF 1:30 LVL+0.60M LVL+1.925M 11 18 2500 SEC A SEC A 1800 TREAD - 250MM RISER - 175MM 100 Drawing Title NOTE · The drawing is the property of Space_Agency Architects Rev No. Details Date R0 28.03.23 FOR CO-ORDINATION STAIRCASE DETAIL 1 2 3 4 5 6 7 8 9 10 11 12 13 14 15 16 17 18 STAIRWELL 3300 3975 1925 OHT 1500 GL2 GL3 150 350 D3 3150 900 900 LVL+0.60M LVL+1.925M LVL+3.15M GROUND FLOOR FFL @ +0.6M LVL STAIRWELL FFL@ 5.90M LVL TERRACE FFL @ +3.15M LVL TREAD - 250MM RISER - 175MM DET A 2100 100 205 SEC SECTION A-A 1:30 5 6 7 8 9 10 12 13 14 15 16 900 17 205 PLAN STAIRCASE PLAN - ABOVE LINTEL 1:30 LVL+2.155M LVL+3.15M 11 18 DN SEC A SEC A 3300 900 GL2 GL3 TREAD - 250MM RISER - 175MM D3 UP GL2 GL3 1 2 3 4 5 6 7 8 9 10 12 13 14 15 16 900 17 3400 205 PLAN STAIR PLAN - GF 1:30 LVL+0.60M LVL+1.925M 11 18 2500 SEC A SEC A 1800 TREAD - 250MM RISER - 175MM 100 NOTE · The drawing is the property of Space_Agency Architects Rev No. Details Date R0 28.03.23 FOR CO-ORDINATION 1 2 3 4 5 6 7 8 9 10 11 12 13 14 15 16 17 18 STAIRWELL 3300 3975 1925 OHT 1500 GL2 GL3 150 350 D3 3150 900 900 LVL+0.60M LVL+1.925M LVL+3.15M TREAD - 250MM RISER - 175MM DET A 2100 100 205 SEC SECTION A-A 1:30 5 6 7 8 9 10 12 13 14 15 16 900 17 205 PLAN STAIRCASE PLAN - ABOVE LINTEL 1:30 LVL+2.155M LVL+3.15M 11 18 DN SEC A SEC A 3300 900 GL2 GL3 TREAD - 250MM RISER - 175MM D3 UP GL2 GL3 1 2 3 4 5 6 7 8 9 10 12 13 14 15 16 900 17 3400 205 PLAN STAIR PLAN - GF 1:30 LVL+0.60M LVL+1.925M 11 18 2500 SEC A SEC A 1800 TREAD - 250MM RISER - 175MM 100 1 2 3 4 5 6 7 8 9 10 11 12 13 14 15 16 17 18 STAIRWELL 3300 3975 1925 OHT 1500 GL2 GL3 150 350 D3 3150 900 900 LVL+0.60M LVL+1.925M LVL+3.15M TREAD - 250MM RISER - 175MM DET A 2100 100 205 SEC SECTION A-A 1:30 5 6 7 8 9 10 12 13 14 15 16 900 17 205 PLAN STAIRCASE PLAN - ABOVE LINTEL 1:30 LVL+2.155M LVL+3.15M 11 18 DN SEC A SEC A 3300 900 GL2 GL3 TREAD - 250MM RISER - 175MM D3 UP GL2 GL3 1 2 3 4 5 6 7 8 9 10 12 13 14 15 16 900 17 3400 205 PLAN STAIR PLAN - GF 1:30 LVL+0.60M LVL+1.925M 11 18 2500 SEC A SEC A 1800 TREAD - 250MM RISER - 175MM 100
WORKING DRAWINGS

AYATANA FOREST VILLAS

ONGOING PROJECT | OFFICE PROJECT 2023| COORG| 2100 SQ FT

Forest villas is the new designed resort villa project of Ayatana Group , with 12 similar units to be built over 36 acres of land. The project is a relaxing getaway spot, immersed in nature and away from the buzz of the city.

TOOLS USED:

SKETCHUP ENSCAPE

72 73 FOREST VILLAS COORG FOREST VILLAS COORG
05

GROUND FLOOR PLAN

74 75 FOREST VILLAS COORG FOREST VILLAS COORG LEGEND 1. ENTRANCE 2. COURTYARD 3. LIVING AND DINING 4. BEDROOM 01 5. TOILET 01 6. DRESSING 01 7. BEDROOM 02 8. TOILET 02 9. DRESSING 02 10. BALCONY 01 11. BALCONY 2 12. OUTDOOR DECK 1 13. OUTDOOR DECK 2 3.70 M x 2.90 M 3.70 M x 7.70 M 7.30 M x 6.25 M 5.87 M x 6.37 M 4.17 M x 1.82 M 1.54 M x 1.82 M 4.82 M x 4.25 M 2.97 M x 1.80 M 1.65 M x 1.82 M 5.09 M x 2.10 M 7.45 M x 2.10 M 16.27 M x 4.60 M 6.82 M x 3.35 M
1 2 3 4 5 6 10 11 8 7 12 ENTRANCE 9
76 77 FOREST VILLAS COORG FOREST VILLAS COORG CONCEPT PLOT 1 ENTRANCE 1A 1 3 2A 2B 10B 3A 2 12 10A 10 9 7 8 6 5 4 11 1 3 2A 2B 10B 3A 2 12 10A 10 9 7 8 6 5 4 11 2B 1 3 2A 1A MASTERPLAN

THE RESORT VILLA STAND ON STEEP CONTOUR WITH MAGNIFICIENT VIEWS OF THE LANDSCAPE OF COORG. THE BALCONYS DECK ARE AND INFINITY POOL FACES THE STEEP VALLEY TAKES IN THE SCENERY.

78 79 FOREST VILLAS COORG FOREST VILLAS COORG
SECTION AA
KEYPLAN B B NGL A1.20 TD-01 SECTION BB 1:50 W4 W6 LIVING ROOM BALCONY TILE ROOF 600 [2'] 600 [2'] 825 [2'-9"] 700 [2'-4"] 2350 [7'-9"] 2400 [7'-10"] DECKING SHEET AS PER STRUCTURAL DETAIL OUTDOOR DECK 01 OUTDOOR DECK 02 SD1 +0.00 M LVL ENTRANCE FFL @ -2.00 M LVL OUTDOOR DECK 01 FFL @ +0.45 M LVL GROUND FLOOR FFL @ -2.75 M LVL OUTDOOR DECK 02 FFL @ + 5.140 M LVL SLOPED ROOF FL@ + 2.625 M LVL FLAT ROOF FFL @ 4775 [15'-8"] 535 [1'-9"] 2 3 1' 1850 [6'-1"] 6450 [21'-2"] 150 [6"] D1 DOOR, WINDOW AND GLAZING SCHEDULE SL NO CODE WIDTH(mm) HEIGHT(mm) SILL(mm) LINTEL(mm) QTY DOOR SCHEDULE 1 MD 1200 2250 0 2250 1 D1 1000 2100 0 2100 2 D2 900 2100 0 2400 1 SD1 2650 2100 0 2100 2 SD2 3800 2100 0 2100 1 SD3 1950 2100 0 2100 1 SD4 3100 2100 0 2100 1 SD5 1000 2100 0 2100 2 WINDOW SCHEDULE 1 W1 1200 2400 0 2400 1 W2 1200 2400 0 2400 1 W3 3200 2400 0 2400 1 W4 1400 2200 150 2350 1 W5 450 1400 700 2100 3 W6 1150 1400 700 2100 1 W7 2400 1800 600 2400 1 W8 3050 1800 600 2400 1 W9 1000 1500 600 2100 1
SECTION AA SECTION

SECTION BB

80 81 FOREST VILLAS COORG FOREST VILLAS COORG
SECTION
THE CENTRAL COURTYARD GIVES ACCESS TO BOTH THE ROOM UNITS AND TO THE LOWER DECK WITH THE POOL AND OUTDOOR SEATING. SECTION BB KEYPLAN WINDOW SCHEDULE

SLOPED ROOF FRAMING

STRUCTURAL DETAILS

SEISMIC RESISTANT STEEL STRUCTURE WITH DECKING SHEET AND POROTHERM BRICK WALLS. DECKING SHEET IS USED FOR THE FLOOR SLAB, FLAT AND SLOPING ROOF SLAB.

FLAT ROOF FRAMING

COLUMNS

GROUND FLOOR FRAMING

RETAINING WALL

PEDESTAL LAYOUT

CONCEPT MODEL

84 85 FOREST VILLAS COORG FOREST VILLAS COORG

PROPERTIES

A combination of traditional and urban contemporary architectural style. Consciously designed as a compact house, with earth elements. Ideation evolved from an exploration of volumes, where light plays a major role. Earthy elements bring the house closer to its surroundings.

86 87 30 X 40 ICON 30 X 40 ICON
40 ICON
PROJECT | OFFICE PROJECT 2023| NELMANGALA| 2100 SQ FT 06
30 X
RESIDENCE ONGOING
88 89 30 X 40 ICON 30 X 40 ICON
Drawing Title Drawing No. NOTE The drawing is the property of Space_Agency Architects and unauthorised use or reproduction of the drawing is not permitted without the Architect's permission. The drawing is not to be scaled All dimensions are in millimetres and all levels are in metres unless otherwise indicated. Any discrepancy in the drawing is to be brought to the immediate notice of the Architect. The drawing is to be read in conjunction with all other relevant Architectural, Structural and Services drawings and specifications Rev No. Details Date N R0 06.09.22 FOR CO-ORDINATION GROUND FLOOR PLAN DINING 3200 x 2400 MM 10'8'' x 8'0'' TOILET-1 1595 x 1560 MM 5'4" X 5'2" KITCHEN 3755 x 2200MM 12'6" X 7'4" ENTRY 1345 X 900 4'6" X 3'0" PARKING 2500 X 4850 8'2" X 15'9" FOYER 1900 X 4400 6'4" X 14'8" BEDROOM -1 3300 x 3390 MM 11'0'' x 11'4" LIVING ROOM 3350 x 3650 MM 11'2'' x 12'2" STAIRCASE 2680 X 2085 9'0'' X 7'0'' UP UTILITY 875 x 2345MM (2'7'' 7'10'') 925 925 925 925 925 925 2575 5000 SETBACK LINE SETBACK LINE SETBACK LINE SETBACK LINE R O A D W1 MD W3 W4 V1 W5 D4 D1 W7 D2 D3 W2 W3 W6 9000 12000 SUMP IN MASONRY 1500 X 2300 x 1800 MM 5'0" X 7'6" x 6'0" A2 A1.01 GROUND FLOOR PLAN 1:50 LVL ±0.0 M LVL +0.30 M LVL -0.05 M LVL +0.30 M LVL +0.30 M LVL +0.30 M W8 W8 1 2 3 4 5 6 7 8 9 10 11 12 13 5' 1175 3400 3550 2480 1660 725 300 850 7 6 4 3 1 A B C D 5 2 1040 2500 -1 -2 SEC SEC B SEC A SEC A SEC C SEC C POOJA UNIT 400 x 900 MM 1'4'' x 3'0'' DN UP DOOR, WINDOW AND GLAZING SCHEDULE WINDOW SCHEDULE Drawing Title NOTE · The drawing is unauthorised use permitted without · The drawing is · All dimensions unless otherwise · Any discrepancy immediate notice · The drawing is relevant Architectural, specifications Rev No. N R0 FOR FIRST FLOOR TOILET-2 2700 x 1300 MM 8'10'' x 4'3" TOILET-3 2800 x 1560 MM 9'4" 5'2" WALK-IN 2300 x 1500 MM 7'8" X 5'0" BEDROOM-2 3300 x 3000 MM 11'0'' x 10'0" BALCONY 3350 3475 MM 11'2'' x 11'7" CUT OUT SKYLIGHT ABOVE CORRIDOR 2700 X 4400 9'0" X 14'8" SEC B SEC SEC A SEC A SEC C SEC C W12 D1 V2 W9 W11 W10 V3 D2 D1 D3 D2 W10 W8B A2 A1.02 FIRST FLOOR PLAN 1:50 LVL +3.45 M LVL +3.45 M W8B 19 20 21 22 23 24 25 26 27 28 29 30 13 14 15 16 17 18 UP MASTER BEDROOM 3300 3390 MM 11'0'' x 11'4" 5' 1175 3400 3550 2480 1660 725 300 850 7 6 4 3 1 A B C D 5 2 1040 2500 DN
BASE PLANS
90 91 30 X 40 ICON 30 X 40 ICON
FLOOR parking area tile Base tile W
Highlighter
W h t e p aint Highlighter
Toilet
Terracotta
FINISHES
FLOOR WALLS PAINT FINISHES WALLS PAINT FINISHES WALLS PAINT FINISHES FLOOR FINISHES DADO TILES WALL FINISHES
ALLS
Tile
Tile
Base tile PAINT FINISHES
finish
92 93 30 X 40 ICON 30 X 40 ICON
TERRACE FLOOR COMPUND WALL FINISHED FLOOR LEVEL 3000 MM 3000 MM 1500 MM FIRST FLOOR PARAPET WALL 3000 MM 900 MM 30 X 40 ICON / SECTIONAL VIEW
SECTIONAL ELEVATIONS

SECTIONAL ELEVATIONS

94 95 30 X 40 ICON 30 X 40 ICON FIRST FLOOR 3000 MM 2700 MM 3000 MM PARAPET WALL THIRD FLOOR FINISHED FLOOR LEVEL COMPOUND WALL
COMPUND WALL STAIRCASE LANDING 300MM STEP DOWN 3000 MM 2100 MM 3000 MM FIRST FLOOR TERRACE FLOOR PARAPET WALL FINISHED FLOOR LEVEL COMPUND WALL STAIRCASE LANDING 300MM STEP DOWN 3000 MM FIRST FLOOR FINISHED FLOOR LEVEL

WORKING DRAWINGS

A200 Block Masonry Wall

LEGEND

from FFL to 300MM)

A150 PARAPET

(ht from FFL to 3FT)

A150 POOJA WALL

(ht from FFL to BOTTOM OF LINTEL)

A100 POOJA WALL

(ht from FFL to BOTTOM OF LINTEL)

98 99 30 X 40 ICON 30 X 40 ICON NOTE The drawing is the property of Space_Agency Architects and unauthorised use or reproduction of the drawing is not permitted without the Architect's permission. The drawing is not to be scaled All dimensions are in millimetres and all levels are in metres unless otherwise indicated. Any discrepancy in the drawing is to be brought to the immediate notice of the Architect. The drawing is to be read in conjunction with all other relevant Architectural, Structural and Services drawings and specifications Rev No. Details Date N R1 06.09.22 GFC R2 15.10.22 GFC R3 16.02.23 GFC R4 23.04.23 POOJA WALL CHANGE DINING 3200 2400 MM 10'8'' x 8'0'' TOILET-1 1595 1560 MM 5'4" X 5'2" KITCHEN 3755 x 2200MM 12'6" X 7'4" ENTRY 1345 X 900 4'6" X 3'0" PARKING 2500 X 4850 8'2" X 15'9" FOYER 1900 X 4400 6'4" X 14'8" BEDROOM -1 3300 x 3390 MM 11'0'' 11'4" LIVING ROOM 3350 x 3650 MM 11'2'' x 12'2" STAIRCASE 2680 X 2085 9'0'' X 7'0'' UP UTILITY 875 2345MM (2'7'' x 7'10'') 925 [3'-0 3/8"] 925 [3'-0 3/8"] SETBACK LINE SETBACK LINE SETBACK LINE SETBACK LINE R O A D W1 MD W4 V1 W5 D4 D1 W7 D2 D3a W2 W3 W6 SUMP IN MASONRY 1500 X 2300 1800 MM 5'0" X 7'6" x 6'0" LVL ±0.0 M LVL +0.30 M LVL +0.30 M LVL +0.30 M LVL +0.30 M W8B W8A 1 2 3 4 5 6 7 8 9 10 11 12 13 5' 7 6 4 3 1 A B C D 5 2 POOJA UNIT 390 x 1000 MM 1'3'' 3'4'' UP 3200 350 2990 1560 810 600 550 540 1900 500 2750 500 2315 1450 2990 300 A200 A200 A100 A200 A200 A200 A200 A200 A100 A100 A200 A150 300 325 2300 1275 840 A100 A200 L100 A200 A200 680 A200 2085 WALL UPTO THE BOTTOM OF MID LANDING SLAB 1200 1595 2400 1200 200 200 WALL AS PER STAIRCASE DETAIL A2 DD-A6.01 MASONRY LAYOUT GF 1:50 900 A150 A200 400 200 POOJA WALL CHANGED AS PER SITE
(ht
(ht
(ht
(ht
A200 Block Masonry Wall
from FFL to ceiling) A100 Block Masonry Wall
from FFL to ceiling) L100 LEDGE Wall
from FFL to 1200MM) L75 PLANTER BOX
LAYOUT NOTE The drawing is the property of Space_Agency Architects and unauthorised use or reproduction of the drawing is not permitted without the Architect's permission. The drawing is not to be scaled All dimensions are in millimetres and all levels are in metres unless otherwise indicated. Any discrepancy in the drawing is to be brought to the immediate notice of the Architect. The drawing is to be read in conjunction with all other relevant Architectural, Structural and Services drawings and specifications Rev No. Details Date N R1 06.09.22 GFC R2 15.10.22 GFC R3 16.02.23 GFC R4 23.04.23 POOJA WALL CHANGE A200 WALL UPTO THE BOTTOM OF MID LANDING SLAB WALL AS PER STAIRCASE DETAIL
MASONRY
ceiling) A100 Block Masonry Wall (ht from FFL to ceiling) L100 LEDGE Wall (ht from FFL to 1200MM) L75 PLANTER BOX (ht from FFL to 300MM) A150 PARAPET (ht from FFL to 3FT) LEGEND A150 POOJA WALL (ht from FFL to BOTTOM OF LINTEL) A100 POOJA WALL (ht from FFL to BOTTOM OF LINTEL) Drawing Title NOTE The drawing is the property of Space_Agency unauthorised use or reproduction of the permitted without the Architect's permission. The drawing is not to be scaled All dimensions are in millimetres and all unless otherwise indicated. Any discrepancy in the drawing is to be immediate notice of the Architect. The drawing is to be read in conjunction relevant Architectural, Structural and Services specifications Rev No. Details N R1 GFC R2 GFC R3 GFC R4 POOJA WALL CHANGE MASONRY LAYOUTTOILET-2 2740 x 1300 MM 8'11'' x 4'3" TOILET-3 2800 1560 MM 9'4" 5'2" WALK-IN 2300 x 1500 MM 7'8" X 5'0" BEDROOM-2 3300 x 3000 MM 11'0'' x 10'0" BALCONY 3350 3475 MM 11'2'' 11'7" CUT OUT SKYLIGHT ABOVE CORRIDOR 2700 X 4400 9'0" X 14'8" W12 D1 V2 W9 W11 W10 V3 D2 D1 D3 D2 W10 W8D LVL +3.45 M LVL +3.45 M W8C 19 20 21 22 23 24 25 26 27 28 29 30 13 14 15 16 17 18 UP MASTER BEDROOM 3300 3390 MM 11'0'' x 11'4" 5' 7 6 4 3 1 A B C D 5 2 DN OP1 OP2 OP3 2600 350 940 1240 1400 350 2290 1600 2050 2990 875 200 500 505 1450 1000 1460 700 700 1560 3160 1500 1600 625 675 2200 750 200 300 485 665 200 2400 A200 A100 A200 A100 L100 A200 A200 A100 A100 L100 A200 A200 A100 A100 A200 A200 A200 A200 A75 A100 450 450 400 A100 850 400 A200 A100 875 600 2200 2085 A2 DD-A6.02 MASONRY LAYOUT FF 1:50 2645 400 200 400 200 A200 A200 DOOR, WINDOW AND GLAZING SCHEDULE 7 W7 1850 900 1500 2400 1 UPVC SLIDING A200 Block Masonry (ht from FFL to ceiling) A100 Block Masonry (ht from FFL to ceiling) L100 LEDGE Wall (ht from FFL to 1200MM) L75 PLANTER BOX (ht from FFL to 300MM) A150 PARAPET (ht from FFL to 3FT) LEGEND A150 POOJA WALL (ht from FFL to BOTTOM A100 POOJA WALL (ht from FFL to BOTTOM
(ht from FFL to
100 MISCELLANEOUS 101 MISCELLANEOUS
AWARDS AND SKILLS 07
MISCELLANEOUS

SKETCHES

102 MISCELLANEOUS 103 MISCELLANEOUS
DEGREE & MOMENTO AWARDED BYHON. GOVERNOR OF KERALA SCULPTURE AND MODEL MAKING PAINTINGS

Turn static files into dynamic content formats.

Create a flipbook
Issuu converts static files into: digital portfolios, online yearbooks, online catalogs, digital photo albums and more. Sign up and create your flipbook.