

Curriculum Vitae

Hello, I am Jibin John Joseph Thiruvananthapuram, Kerala josephjibinjohn@gmail.com LinkedIn
As a recent graduate in architecture, I am passionate about tectonics and coalition of differrent parameters of a complex system. With hands-on experience in design software and a strong foundation in both technical and creative aspects of architecture, I am eager to contribute to dynamic architectural teams and develop innovative, functional, and aesthetically pleasing spaces.
Education
Bachelor of Architecture (B.arch)
School of Planning & Architecture Bhopal , India. Year of Graduation - 2024
- Taj ul Masjid (Urban design)
- Flood Resilient Housing (Thesis)
- Amphibious Dwelling Spaces (Research Component)
Experience
Architecture Intern
Stapati Architects - Bangalore , India. (Jan 2023 - June 2023)
- Assisted senior architects with drafting and design for residential and commercial projects using AutoCAD and Revit
- Conducted site visits, prepared drawings, and supported project management
- Developed 3D models and visualizations using SketchUp , Enscape and AdobeSuite for client presentations
Skills
Presentation
Adobe Photoshop
Adobe Indesign
Adobe Illustrator
Visualiser
V ray
Enscape
Lumion
Drafting
AutoCAD
Competitions and Certifications
EDGE - Designing for Greater efficiency
120 Hours 2022
Biophillic Youth Centre , ArcAce
NASA -Griha 2022
Top 3
Tiny House Competition
Contents
Academic Works
1. Flood Resilient Community Housing - Thiruvananthapuram , Kerala
Final Year Thesis , an experimentation with different materials and and spatial configuration on an indiuvidual module and larger neighbourhood level , Ultimately combatting flood
2. Youth Centre for Pre-Teen & Teenagers - British Columbia , Canada
Competition organised by ArcAce , Our team had to combine or harmonise different elements that setup an appealing experince for kids undergoing afterschool programs.
3. Mid Rise Apartment - Thiruvananthapuram , Kerala
Third year Design Studio , Tasked us with creating a perfect apartment setup aligning with climate the locality
Professional Works
4. Farookh’s Residence - Bangalore, Karnataka
A luxury residence with four levels and multiple bedrooms , toilets and open spaces.
5. Garden Grub - Kochi , Kerala
An experimentation approach to modular public eating spaces which had a play of semi open and fully open spaces
6. Empire Office - Bangalore , Karnataka
An office having varying levels of intimacy for the major food chain in South India






Flood Resilient Community Housing , Kerala , India.
Undergraduate Thesis 2024
For my undergraduate thesis countering flood was the main objective . Each site has it owns strengths and weakness and my thesis is an example of how focusing on individual dwelling units and making them independent structures and capitalising on the built landscape we can effectively slow down or live with heavy flooding conditions . As you may have noticed ‘Resilience’ is quite different from ‘Resistance’ and can be defined using a system which comprises of several parameters. This system’s principles are applied on site level to achieve a fully capable design

These flood return maps showcase the probability of a flood happening and the extent to which it affects the nearby infrastructure and the people on it. 1 in 10 shows the chance of a flood happening in 10 yrs . Therefore the 1 in




These flood return maps showcase the probability of a flood happening and the extent to which it affects the nearby infrastructure and the people on it. 1 in 10 shows the chance of a flood happening in 10 yrs . Therefore the 1 in 1000 showcases a centurion disaster which implies thatt the entire selected parcel of land is flooded .
Why Not Embrace Floods?

A Resilient Approach
Often times Resilience is mistaken or confused for Resistance. Resilience even though is defined using statements in dictionaries cannot be defined in this case using a statement But is defined as a system with an underlying framework.
Many scholars have given the system framework and I have adapted the parameters in those framework and have architecturally interpreted those words to aid me in the design process
Technical
This deals with the physical aspects of the sytem
This deals with the people or the authority handling the situation
Organizational Social







Programmable Iterations

Residential Component
Commercial Component Services
1-2 DU units
2-6 Beds
Static elevation/ outdoor Space
Tailor
Handicrafts
Tea Stall
Eateries
Bakeries
Community Kitchen
Ration Shop
Cycle Repair
Market Space

Iterations Non FLood Scenario





Community Centre


Community Centre located on the highest ground can be turned into a flexible shelter in case of worst condition where certain modules dont function as designed due to other variables
Non Flood Scenario



The Bio Swale is designed to flow along the a natural valley formed in the site and is wide enough to creatre certain spatial experiences and can be further designed to produce focal points for atttracting peope
Sequenced Detention Basin Safe-to-fail Walkway

Flood Scenario
These courtyards are retrofitted with geo cellular crates that allow the ground to suck up to 3-4 times than normal which allows for water to attenuate slowly

These walkway baords are stilted above wetland swamp and are designed to be flooded allowing it to be used based on seasonal variations

Reprogrammed Units

The units are reprogrammed based on the intensity of the floods.Units will allow for boat storafe or essential supplies to be stored in the lower most level

Youth Centre , British Columbia , Canada.
Competition 2023
The brief of this competition was to create a biophilic youth centre in the quiet hillocks of Coquitlam City . This Centre is to aid youth between the ages of 12-19 year old teen and pre teenagers of the locality. Our main goal was to creat a volume which opens up to its users , one with a less intimidating appeal , one which creates a sense of belonging.
The building linguistics or tectonics , form where integration of semi open spaces were in accordance with the prinicple of having the vilume welcome the users inside, in this case the youth of coquitlam city
Biophilia

Concept - Ideation Process

Biophilic elements were mainly focused on transitional spaces like landings of stairs , corridors , elevated planes .,etc.
Sense of belonging


Invoking a sense of belonging in this volume was done by crafting and mixing a used set of building linguistics and modern ones
Signature


The main challenge was harmonising the contrast characters while retain a certain level of uniqueness
1.


2.Splitting based on pragramming

3. Addition of Open Space


Drone View showing the volume surrounded by lush forest on all 3 sides aiding the building to add to its biophilic elements and “punctures or rips” creating auditory and/or visual effects
Legend
1. Main Entry 2. Front Office 3. Meeting Space 4. Exhibition Space 5. Workshops - Mezzannine
6.Storage 7.Toilets 8. Transitional Bridge 9.Study Pods 10.Library 11.Admin 12.Open Play Space

Isometric Exploded View
Composite RCC Frame
Circular Timber Columns



Roof Structure
1 - Roofing Slates
2- HR Sarking
Wood Fibre Board - 22 mm
Insulation Board - 140 mm
4. Battens - 140 mm
5.Vapour Membrane - 10 mm
6.Plaster Board Lining Board - 22 mm
Wall - System Panel Glazed
7 -Vertical
Rectangular Mullion - 50x30 mm
8- Horizontal
Rectangualr Mullion- 50x30 mm
Floor Structure
9 - Terrazo - 19 mm
10 - Wood Sheathing
Chip Board - 22 mm
11. Wood Fibre
Insulation Board - 140 mm
12.Joists - 140 mm
13.Expanded Polystyrene Board - 22 mm


Mid Rise Residential Tower , Thiruvananthapuram , Kerala.
Academic Work
2022
‘Home is where the heart is’
This project was my attempt at bringing the community together by allowing a certain percentage of public circulation space as communal gathering space
The initiation of such a design was user comfort and creating a certain intimacy level in each dwelling unit
Concept - Ideation Process

Narrow Floorplate
The Intial thought process of developing the form was to follow a narrow floorplate for individual dwelling unit and the whole building floorplate

Communal Gathering Intimacy Gradient
Establishing a certain intimacy gradient was my second move in making the 2BHK dwelling units functional allowing natural lighting and ventilation to almost all functional spaces
Most Private Least Private

Adding a certain gathering space on each floor allowed the 4 families on each floor plate to develop a community and socialise for more events making the quality of life in the apartment better



Sectional



Professional Works
Stapati BLR
Jan 2023 - June 2023

During my stint at Stapati BLR as a trainee architect , I was involved in 12 projects ranging from high end luxury residences to office spaces . I was responsible for creating visuals for client presentation for most projects and was heavily involved in a few projects for creating working drawings for electrical , plumbing , HVAC , joinery , jucntion details,.etc.

Mr. Farookh’s Residence , Bangalore.
Professional Work
Stapati BLR 2023
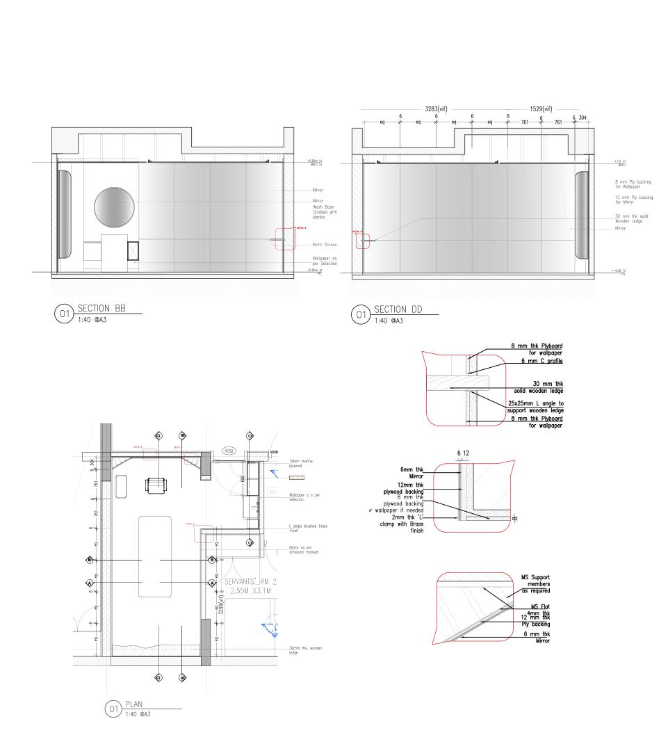
Mr. Farookh’s Residence located in Bangalore was a very high end luxury residence boasting 6 levels with basement having its own entertainment system to a terrace level having a personal gym. The house has a heavy usage of marble finishes to wooden texture wall finishes . My involvement included sorting out different joinery details and junction details .





Garden Grub , Kochi.
Professional Work
Stapati BLR 2023
Garden Grub is a food court located in Edapally , Cochin where we tried experimenting with modular roofifn options to create repeated or organic patterns emulating natural patterns being to fit in with the theme of a jungle

Visualised Sections


Empire Office , Bangalore.
Professional Work
Stapati BLR 2023
Empire the fast-food joint wanted a office building with a properly sorted out circulation pattern for people with different clearances .I was mostly involved in making presentation drawings and visuals for a client presentation.
Diagram



Visualisation of Open Workstation



