PROYECTO ECOLOGIC





Proyecto de interiorismo Retail
Arq. Jhonny Delgadillo Vaca
Arq. Jhonny Delgadillo Vaca
PORTADA
INDICE --------------------------------------
ESTUDIOS PREVIOS
Perfil del cliente --------------------------
Conceptualización ---------------------------
Bosquejos conceptuales / Paleta de colores
Análisis zonas calientes y frías
Zonificación --------------------------------
Diagrama Funcional --------------------------
circulaciones
VISUAL MERCHANDISING – ESCAPARATES ----------
Escaparates
Vistas exteriors
VISUAL MERCHANDISING POP-UP BAR -------------
Conceptualizacion
“ El carisma de la campiña agrícola “
Bosquejos conceptuales ----------------------
Ubicación pop-up bar ------------------------
Planos técnicos
Zonificación y distribución
Iluminación ---------------------------------
Vistas internas -----------------------------
ESPACIO RETAIL ECOLOGIC ---------------------
Acabados de techos
Acabados de suelos --------------------------
Acabados de paramentos verticales -----------
ECOLOGIC:
Una Eco tienda ubicada en Barcelona España con toda clase de soluciones ecológicas y sostenibles para la vida diaria de sus clientes.
Valores de la empresa:
- Ser respetuoso con el medio ambiente
- Sustentabilidad medioambiental y económica
CLIENTES OBJETIVO:
Jóvenes y familias jóvenes entre los 25 a 45 años de un perfil socioeconómico medio – alto.
- Equilibrio
- Ecología
- Emprendimiento
- Innovación
PRODUCTOS Y SERVICIOS:
- Pequeña decoración, lámparas y mobiliarios
- Soluciones ecológicas para el hogar (pintura barnices, acabados ecológicos)
- Textiles sostenibles para el hogar (cortinas, cojines, frazadas, etc)
- Elementos de moda (vestimenta) Sustentables
- Soluciones energéticas para el hogar (paneles solares, consultoría energética)
- Productos de Domótica
- Comestibles a granel
- Productos sustentables de limpieza
- Pop up bar
- Rentabilidad
- Amor por nuestro entorno natural y social
“DE La caLiDEz DE Los paisajes rurales a su hogar”
Se busca para este proyecto tomar inspiración de los paisajes del área rural y de la campiña como lugares que nos otorgan una experiencia llena de alegría, luz, energía y naturaleza. Además de que ambiente el proyecto como un sito del cual se puede obtener productos ecológicos y amigables con el medio ambiente a partir de la confianza que la campiña pueda inspirar a clientes.
sobre la materialidad:
Para la propuesta se escogerán materiales evocativos de la campiña rural, tanto así como acabados pétreos, acabados en maderas claras y rústicas y la búsqueda de la saturación de texturas y colores que evoquen energía y alegría.
Paleta de colores:
Se busca una paleta de colores que evoque el paisaje rural europeo, donde se destaca los cielos claros y soleado, la vegetación baja, los colores tierra y los grises y blancos de las montañas. Des esta forma se desarrolla una paleta de colores complementaria entre el azul cielo, verde musgo, blanco, mostaza y gris en tonalidades intensas que llenen de energía, alegría y llamen la atención bajo un concepto eco amigable y natural
Ingreso + zona de cajas
Una vez analizados las zonas frías y calientes a partir de la circulación natural a contrarreloj del ser humano, véase en el diagrama de la parte de inferior de esta lamina que el proyecto ECOLOGIC cuenta con una zona caliente unificada en la parte sud-oeste del complejo; quedando así, en la parte Norte y la parte nor-este zonas frías desconectadas de la circulación natural.
Tomando en cuenta la posición de las áreas frías, estas deberán contar con atractores para atraer a los clientes desde las zonas calientes.
ZONA FRIA
ZONA CALIENTE
DIRECCION DE CIRCULACIÓN NATURAL
Diagrama de circulación natural y zonas frías y calientes
Para la zonificación de las distintas áreas de venta, se las agrupa por actividad. Todo lo que se refiera al hogar entrará como ECOLOGIC HOME, todo lo que se refiere a ropa y accesorios eco amigables como ECOLOGIC FASHION y todo lo que se refiere a productos de venta a granel, productos de cocina, productos de limpieza para el hogar en conjunto del pop-up bar como ECOLOGIC FOOD. Además, se ubica zonas de atención al cliente como el de asesoría energética, y el pop-up bar, en la parte más lejana de las zonas frías para hacer de ellos objetos atractores desde la zona caliente del proyecto.
ESPACIOS DE SERVICIO
ESPACIOS DE VISUAL MERCHANDISING
ESPACIOS DE VENTAS
ZONA FRIA
ZONA CALIENTE
Funcionalmente las tres áreas principales del ECOLOGIC, ECOLOGIC HOME, ECOLOGIC FASHION y ECOLOGIC FOOD se encuentran segregadas unas de otras; sin embargo se busca que haya una conexión visual directa entre estas a través de elementos conectores de gran amplitud visual.
REFERENCIAS:
ESPACIOS DE SERVICIO
ESPACIOS DE VISUAL MERCHANDISING
ESPACIOS DE VENTAS
ZONA FRIA
ZONA CALIENTE
La propuesta muestra un pasillo principal en forma de “ T” que da un recorrido directo hacia la parte posterior de las zonas frías; así, garantizando en cuanto ingrese un cliente una visual directa hacia un espacio de servicio (asesoría energética) y a un espacio de visual merchandising (pop-up bar). Mediante este pasillo principal y teniendo los remates atractores permite que el cliente recorra toda la tienda y pueda acceder por pasillos de acceso al resto de las áreas de venta de productos.
REFERENCIAS:
PASILLO PRINCIPAL PASILLO DE ACCESO
ZONA FRIA
ZONA CALIENTE
CERCANIA LUZ
NATURALEZA
Composición VISUAL
SUSTENTABILIDAD
Mood board escaparate
ecologic food
Distribución DE ELEMNTOS VISUALES
La composición que se genera en el escaparate es direccional hacia el logo de ECOLOGIC. se cuenta tanto con una composición diagonal con vegetación decorativa y otra con una composición de productos de venta a granel
Seguencas secas decorativas
Marco con arte musco
Logo ECOLOGIC FOOD
Productos de venta a granel
Cajas de madera reciclada
VISTA DE ESPACAPARTE ECOLOGIC FASHION
VISTA DE ESPACAPARTE ECOLOGIC FASHION - LUMINOTECNIA
VISTA DE ESPACAPARTE ECOLOGIC FOOD - LUMINOTECNIA
VISTA DE ESPACAPARTE ECOLOGIC HOME
Ecologic
pop-up bar:
Dentro del proyecto de ECOLOGIC se propone como parte del visual merchandising de la propiedad y de la marca un pop-up bar como un espacio efímero que siempre regrese a la tienda como un espacio que es parte de ella.
Para los servicios y productos del pop-up bar se considera los productos de venta a granel de la tienda y se propone que este ofrezca muestras además de proveer versiones grandes de licuados smoothie bowls de frutas con cereales y picados de frutos secos.
Adicionalmente también este espacio puede proveer la compra de productos a granel ya pesados y embolsados tanto cuando este se encuentre dentro de la tienda o se encuentre fuera de esta.
SENSACIONES
NATURALEZA
LUZ NATURAL
CERCANÍA
CALIDEZ/ ALEGRIA
PRODUCIÓN
AGRICOLA
REUTILIZACIÓN
REFERENTES
CONCEPTO
PAISAJES CAMPESTES
PRODUCTOS DE ORIGEN
AGRICOLA
VENTA DEL PRODUCTOR
AL COMPRADOR
Productos del pop-up bar
”EL CARISMA DE LA CAMPIÑA AGRICOLA a sUs MaNos”
Reinterpretación de las visuales a las texturas como muros decorativos de musgo
Se propone la misma paleta de colores del proyecto en general para mantener un solo lenguaje en la propuesta
Se busca una materialidad evocativa del área rural y así ofrecer productos frescos de la naturaleza.
Así, se plantea los siguientes materiales:
- Planchas de madera de pino
- Cajones de madera reciclada
- Luces decorativas de colores
- Acero inoxidable texturizado
”EL CARISMA DE LA CAMPIÑA AGRICOLA a sUs MaNos”
El pop-up bar se encuentra ubicado en la parte posterior hacia el este del proyecto. Se considera esta ubicación dentro del proyecto ECOLOGIC dado que desde el ingreso 1 se tiene una visual directa hacia este a través de un pasillo succionador y a través del ingreso 2 se va junto con el sentido de circulación natural del ser humano, que es en contra de las manecillas del reloj, hacia el mismo pasillo succionador ya mencionado; así, de esta forma se incentiva un recorrido amplio de toda la tienda, ya que de esta forma cualquier cliente al verse atraído por el pop-up bar a través del pasillo succionador tendrá en su recorrido una vista general de todas las secciones del comercio, ya sea ECOLOGIC HOME, ECOLOGIC FASHION y finalmente ECOLOGIC FOOD.
Zona de intervención del pop-up bar dentro del proyecto
Dirección de corredor visual desde ingreso oeste Dirección de corredor visual desde ingreso sur
Pasillo de succión con conexión directa al pop-up bar
ZONA DE INTERVENCI ÓN DEL POP-UP BAR DENTRO DEL PROYECTO ECOLOGIC
UBICACIÓN ESC. 1:100
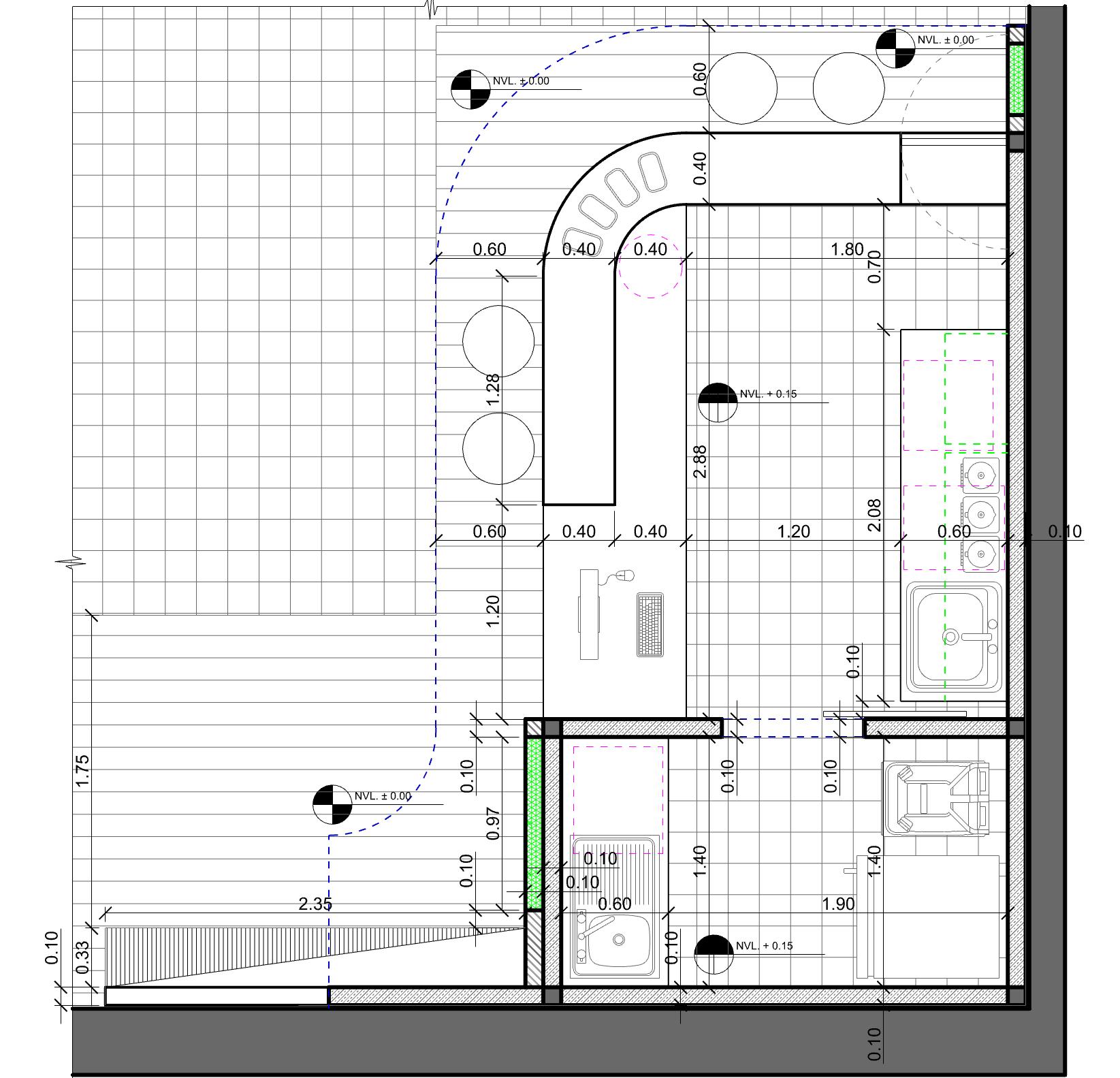
Dada la naturaleza y efímera de un espacio pop-up se planea para el bar de ECOLOGIC un área de compra por impulso cerca a una caja propia de la barra ya que cuando este no se encuentre dentro del comercio principal pueda efectuar la venta de algunos productos.
ESC. 1:30
Se observa el despliegue de materialidad tanto en planchas de acero texturizado, en paneles decorativos con musgo, el uso de madera de pino en barra superior y el uso de cajones de manzana reciclados para dar un acabado rústico que nos recuerda a la campiña rural.
ESC. 1:30
ESC. 1:30
En la isometría se observa el despliegue de la materialidad tanto en planchas de acero texturizado, en paneles decorativos con musgo, el uso de madera de pino en barra superior y el uso de cajones de manzana reciclados para dar un acabado rústico que nos recuerda a la campiña rural
Constructivamente el proyecto se desarrolla con una estructura en acero galvanizado construida en seco. Toda la estructura se encuentra con juntas empernadas para su fácil armado y desarmado. Los elementos de barra cuentan con la misma estructura con acabados en planchas de acero texturizado, planchas de madera de pino, cajones de manzana, planchas de drywall ya tratadas con el acabado final para ser empernadas directamente en la estructura además todos los mobiliarios como la contra barra con acabado de acero inox, meson de limpieza en el office, repisas de cajones de manzana, repisas para fruta y dispensador de granos son elementos sobrepuestos lo cual facilita el desmontaje y montaje de estos a la hora de que el pop up bar cambia de ubicación. Adicionalmente en suelos se cuenta con planchas de madera osb con el acabado de láminas de piso vinílico de las cuales las juntas entradas placas posterior razón tornado serán selladas con silicona para el fácil lavado del material.
diagrama de zonificación
1. Área de exposición de productos a la venta
2. Área de lavado de utensilios y vajilla
3. Área refrigeración a largo plazo
4. Área de residuos principal
5. Caja
6. Área de lavado de frutas y verduras
7. Mesón de emplatado 1 con refri mini bar y maquina de hielo por debajo
8. Área de licuado
9. Área de consumo
10.Área de corte de toppings frescos (frutas y/o verduras)
11. Mesón de emplatado 2
12. Área toppings secos y entrega para llevar
Diagrama de distribución b.o.h. y ventas
- Repisas de cajones de manzana con productos a la venta
- Lavavasos
- Fregadero de una fosa
- Basurero
- Refrigerados de 12 pies
Diagrama de distribución barra
- Computadora de caja
- Basurero debajo de barra
- Mobiliario base con cajonería y repisa
- Recipientes metálicos empotrados en mesón para toppings secos
Diagrama de distribución contra barra
- Cajones de manzana como repisas de almacenaje para productos frescos
- Refrigerador tipo minibar
- Licuadoras semi industriales
- Maquina de hielo
- Fregadero de una fosa para lavado de productos frescos
-
Código: L1
- MASTER VLE
Ledbulb DT5.960w E27
927g93cl G
- 2700 K
- Marca: Philips
- 806 Lm
-
Angulo: Esfera
-
Código: L4
- Master Ledstrip
4.3w930
475lm/M 5m
- 3000 K
- Marca: Philips
- 475 Lm X M
- Angulo: 60°
- Cantidad: 1 2
- Cantidad: 8m
-
Código: L2
- MASTER VLE
Ledbulb DT5.960w E27
927g93cl G
- 2700 K
- Marca: Philips
- 806 Lm
- Angulo: Esfera
- Pantalla de lampara rustica de latón
- Cantidad: 2
-
Código: L3
- MAS Ledspot
VLE D 6-50W
927 PAR20 25D
-
Codigo: l5
- Master smart ledstrip RGB
4.3w930 475lm/m 5m
- 3000 k
- Marca: philips
- 475 lm x m
- Angulo: 60°
-
2700 K
- Marca: Philips
- 500 Lm
-
Angulo: 25°
- Cantidad:6
- (Tomese en cuenta que se colocara de forma puntual en algunos, no en todos los cajones de manzana con acabados traslucidos)
- Cantidad: 32m
Cielo falso de drywall con estructura metálica con acabado de masilia plástica texturizada en placa y pintado con pintura latex de interior color pantone 17-4725 tcx
Código: T1
Cielo falso de drywall con estructura metálica con acabado de masilia plástica texturizada en placa y pintado con pintura latex de interior color pantone 11-0700 tcx
Código: T2
Cielo falso de drywall con estructura metálica con acabado de masilia plástica texturizada en placa y pintado con pintura lateX de interior color pantone 15-1147 tcx
Código: T3
Cielo falso de drywall con estructura metálica con acabado liso en placa y pintado con pintura oleo mate de interior color pantone 17-4725 tcx
Código: T4
Cielo falso con estructura de madera aglomerada de capacidad estructural con paneles de vidrio esmerilado de 4mm de espesor de forma triangular
Codigo: T5
Cielo falso de drywall con estructura metálica con acabado de enchape de ladrillo blanco rustico
Codigo: t2
Suelo de cerámica rectificada 0,30 x 0,30
Suelo de porcelanato de con textura de madera clara 0,20 x 0,60
Revoque de cemento con texturizado de masilla acrílica y pintado con pintura plástica de alto trafico color pantone 17-4725 tcx
Revoque de cemento con texturizado de masilla acrílica y pintado con pintura plástica de alto trafico color pantone 11-0700 tcx
Revoque de cemento con texturizado de masilla acrílica y pintado con pintura 15-1147 tcx
Mural en revoque de yeso con acabado de masilia plástica texturizada en el paramento y pintado con pintura látex de interior color pantone 17-4725 tcx , 15-1147 tcx, 11-0700 tcx , 19-0231 tcx y 14-4304 tcx.
Zócalo de cerámica blanca
Revoque de yeso con acabado de masilia plástica texturizada en el paramento y pintado con pintura látex de interior color pantone 17-4725 tcx Con zócalo de cerámica blanca
Código: P2
Código: P1
Revoque de yeso con acabado de masilia plástica texturizada en el paramento y pintado con pintura látex de interior color pantone 11-0700 tcx Con zócalo de cerámica blanca
Código: P4
Revoque de yeso con acabado de masilia plástica texturizada en el paramento y pintado con pintura látex de interior color pantone 15-1147 tcx Con zócalo de cerámica blanca
Código: P3
Revoque de yeso con acabado liso en el paramento y pintado con pintura látex de interior color pantone 11-0700 tcx Con zócalo de cerámica blanca
Código: P5