ANALISIS GENERAL DEL CENTRO CULTURAL DE NARIHUALA

Page 1

D o s i e r T A L L E R E L H O M B R E Y S U C O N T E X T O
UCV UNIVERSIDAD CESAR VALLEJO TALLER DEL HOMBRE Y SU CONTEXTO ESCUELA DE ARQUITECTURA CÁTEDRA
MONTENEGRO
M. ARQ. JUDITH NECIOSUP

AUTORES

PANTA PANTA DARLY VANESSA

PANTA YENQUE JHONATAN DAVID

CENTRO CULTURAL ALTO HOSPICIO

JERARQUÍA: el patio de acceso anexado al patio de sal forma un espacio amplio y libre, dando la sensación de ser el espacio principal que lleva a los espacios secundarios que por lo general están techados.

ORGANIZACIÓN: Están organizado por tramas rectas, pero sin seguir una cuadrícula.

RELACIÓN: En su ingreso se encuentra un parasol que relaciona los primeros espacios entre los dos bloques, el patio interior se encuentra de manera escalonado que da acceso hacia los espacios internos.

CONFIGURACIÓN: la planta posee una configuración en U.

TARAPACÁ

Cuenta
área
1500
Paulina
Urbina,
2011
ÁREA
AÑO
Av. Los Tamarugos – Av los K wis Alto Hospicio Región de Tarapacá Chile
un
de
m2
Medel Nicolás
José Spichiger y Pedro Bartolomé
UBICACIÓN:
ARQUITECTOS:
DE CONSTRUCCIÓN
ANÁLISIS FORMAL Y ESPACIAL
REFERENTES
DE ATENAS ACROPOLIS REFERENTES Atenas Grecia. 21.000 m2 129.000.000$ Bernard Tschum Michael Photiad s 1999 - 2009 UBICACIÓN: ÁREA CONSTRUIDA COSTO: ARQUITECTOS: AÑO DE CONSTRUCCIÓN:
.
Área verde.
MUSEO
Zona principal. Zona secundaria
Zona vertical.
REGLAMENTO NACIONAL DE EDIFICACIONES GH 020 COMPONENTES DE DISEÑO URBANO A.040 EDUCACIÓN A.070 COMERC O A.080 OFICINAS A.090 SERV CIOS COMUNALES A.120 ACCES BILIDAD PARA PERSONAS CON DISCAPACIDAD A.140 BIENES CULTURALES INMUEBLES Y ZONAS MONUMENTALES SEGÚN EL PDU CADA VIVIENDA UBICADA EN ESQU NA DEBE TENER UN RETIRO DE 2.5 M COMO MÍNIMO EL CUAL NO SE CUMPLE, YA QUE COMO PODEMOS APREC AR EN LAS IMÁGENES LAS CASAS NO TIENEN EL RETIRO ESTABLECIDO. ADEMÁS NO TODAS LAS CALLES ESTÁN ASFALTADAS Y MUCHAS DE ELLAS NO CUENTAN CON VEREDAS NI SEÑALIZAC ONES

AREAS TOTALES

PROGRAMA ARQUITECTONICO

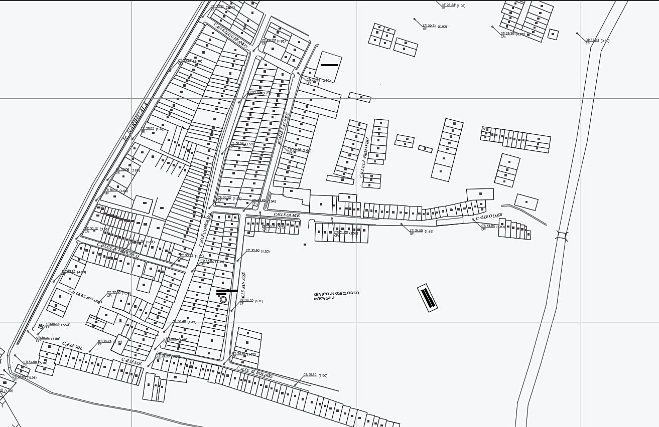
No todas las vías están asfaltadas y cuando llueve se produce ligeros des izamientos de lodos.

El centro poblado tiene una trama irregular en torno a la huaca de narihualá, la misma ubicándose en el centro de gran cantidad de zonas agrícolas.

No hay ret ros respetados por normativa y presenta deficiencia de ingresos.

leyenda

La escultura ub cada en el ingreso del pueblo no cuenta con una reseña h storia, por ser un pueb o con histor a el ingreso debe ser mas jerarquizado

V as principa es Vías secundarias V as terc ar as

1 2 3
TRAMA URBANA Y UNIDADES DEL PAISAJE ANÁLISIS PAISAJÍSTICO
3
2 1
Dentro
cerca
os motor zados como
cam ones
V
ZONA DE CULT VO ZONA URBANA ARBORIZAC ÓN V V ENDAS
del contex o urbano
de terreno a fo ma de ransporte es por med o de vehícu
E carro
motos nea es y hay mucho lu o de transpor e pesado Vías pr nc pales Vías
secundar as
as erc arias
E l e m e n t o s t e x t u r a l e s
PARCELAS

ESTRATEGIAS URBANAS

Espacio Publico

Parque Sensoriales

Espacios f exibles y ab ertos para as diferentes actividades ejecutadas como Talleres, salones y danzas

Senderos

Cam natas en os cerros para generar ambientes de recreac ón cultural y deport va

¿ Que es ?

Espacios publ cos que func onen como zonas de recreacion activa para niños, ovenes y adultos.

¿ Para que ?

Para generar espacios flexib es func onales y generadores de situaciones todas en base a la cu tura e intercamb o cu tural ¿ Que se busca ?

¿ Como lograrlo ?

A part r de a intervención metodo óg ca de conocer as necesidades de los habitantes

Centro cultural comunitario

Integración de os sistemas urbanos del territor o a part r de un paisaje cultural.

¿ Para quién ?

Para la comunidad segregada enmarcada por las determ nantes urbanas de terr torio.

¿ Por qué ?

Por que el sector carece de espacios públ cos y act vos

ESTRATEGIAS URBANAS

¿ Que es ?

Transportes y ciclov as mas ordenados s gu endo la articulacion vial.

¿ Para que ?

Para generar espacios flex b es funcionales y generadores de una buena articu ación v al.

Movilidad

Articulación del sistema de transporte

Faci acceso a traves de la configurac ón un sistema de conex ón vial con as zonas segregadas

Ciclovias y camnios peatonales

Vías y ejes pensados en el peatón y elementos para facilitar a falta de accesibil dad a a gunas zonas.

¿ Que se busca ?

¿ Como lograrlo ?

A part r de a intervención metodológ ca en el sector de red v al.

Centro cultural comunitario

Integración de os s stemas urbanos de territorio a part r de un paisaje cultural.

¿ Para quién ?

Para la comunidad segregada enmarcada por as determinantes urbanas del terr torio.

¿ Por qué ?

Por que el sector carece de ordenam ento v al.

secundaria

Vía principal Vía
Estacionamiento
Caminos Peatonales

ESTRATEGIAS URBANAS

Comunitario

Participativo

Programas que generen que a comunidad participe en e desarrollo del diseño Arqu tectónico.

Lugar de identidad

Crear espacios a partir de las necesidades de a comunidad y sobre todo de las expectativas

¿ Que es ?

Espacio de dent dad cultural, donde la comunidad participe y desarrole habil dades

¿ Para que ?

Para generar espacios flexib es func onales y generadores de situaciones todas en base a la cu tura e intercamb o cu tural

¿ Como lograrlo ?

A part r de a intervención metodo óg ca de conocer as necesidades de los habitantes

Centro cultural comunitario

¿ Que se busca ? Integración de os sistemas urbanos del territor o a part r de un paisaje cultural y un ugar de identidad.

¿ Para quién ?

Para la comunidad segregada enmarcada por las determ nantes urbanas de terr torio y representem dent dad cultura .

¿ Por qué ?

Por que el sector carece de espacios para a cultura y a comunicac ón.

ESTRATEGIAS URBANAS

¿ Que es ?

Protección amb ental que genere vent lac on natura y area ver alrededor del espac o

¿ Como lograrlo ?

A part r de a intervencion amb ental que se va a generar

Centro cultural comunitario

¿ Para quién ? Para los usuarios v s tantes y de la misma zona

¿ Para que ? para generar identidad con e entorno y restructurar el area verde que esta deficiente en la zona ¿ Que se busca ? integracion con la zona urbana. ¿ Por qué ? Por que el sector carece de area verde

Ambiental

Protección Ambiental

Mejor a de a flora y fauna a través de os recorridos que sirven para generar identidad con as act v dades y puntos turísticos existentes.

Colinas

Urbanidad amb ental ta leres de restauración y turismo.

ESTRATEGIAS URBANAS

Cultura

Biblioteca

Un elemento como a bib ioteca integrara la comuna con la ciudad conso idando la red de coleg os que ex sten actua mente

Centro cultural

Localizado en la zona centro, generando el desarrllo de cualidades y aptitudes de os estud antes.

¿ Que es ?

Patr mon o cultura de Narihua á.

¿ Para que ?

Para darle una or entac on en la parte cultual y comp ementar o a centro arqueológ co ya existente.

¿ Como lograrlo ?

A part r de una buena ntervención urbana

Centro cultural comunitario

¿ Que se busca ? Integrar espac os que perm tan identidad cultura .

¿ Para quién ?

Para todos los usuar os como n ños jóvenes y adultos.

¿ Por qué ?

Por que la zona necesita de un mejor imp emento cu tural donde le perm ta rea izar d ferentes act vidades.

ESTRATEGIAS URBANAS

¿ Para que ?

Parque deportivo

Institucional Espacios recreativos y esparc mientos que convoquen act vidades y competencias deportivas sector de usos mixto ( residencia - cu tural - comerc al ).

Municipalidad

Aprovechar la existenc a de estas nst tuc ones y rea izar mejores organizac ones administrativas propic ar tambien los programas técnicos amb entales.

¿ Que es ?

Centros instituciona es y recreativos.

Para poder impulsar mas e desarro lo educativo en la comunidad.

¿ Como lograrlo ?

E ecutando y planificando bien cada area del proyecto.

Centro cultural comunitario

¿ Que se busca ?

Una mejor calidad de enseñanza y nivel educativo alto.

¿ Para quién ?

Para toda la comunidad participat va

¿ Por qué ?

Por que t enen el potencia para lograr o

ESTRATEGIAS PROYECTUALES

¿ Que es ?

Enmarcar un ingreso para que se v al ce y se sienta de una mejor manera por el usuario.

¿ Para que ?

Para que se de un mejor entorno y se enmarquen ciertos ingresos pr nicpales.

Generar Ingreso

Generar un ngreso ampl o que se sienta como una agradable bienvenida, ayudando a d namizar el entorno y captar la atención de los visitantes.

¿ Que se busca ?

¿ Como lograrlo ?

Por med o del emplazamiento or g nado en cada espacio del proyecto

Centro cultural comunitario

Jerarquización, y enmarcamiento de espacios.

¿ Por qué ?

¿ Para quién ?

Para los usuarios v sitantes como turistas, y del mismo sector que tamb én acuden al lugar e lugar.

Por que no hay caracter arquitectonico.

ESTRATEGIAS PROYECTUALES

Potenciar

Comercio

Potenc ar la dent dad y comercio urbano en la zona a través del turismo.

¿ Que es ? potenciamiento e dentidad urbana.

¿ Para que ?

¿ Como lograrlo ? con la ayuda y part cipación del usuario i nteresado en el proyecto y las autoridades.

Centro cultural comunitario

Mejorar la economía y e aprovechamiento de la v sita turística en el ámbito comercial. ¿ Que se busca ? Un buen desarrol o económico

¿ Para quién ?

Para a misma comunidad en benefic o de ellos

¿ Por qué ?

Por que no hay mpulso económico.

ESTRATEGIAS PROYECTUALES

¿ Que es ?

Recuperar y dinamizar e contexto urbano

¿ Para que ?

Para que se genere una mejor trama y emp amiento.

Recuperar

Entorno

Recuperar la cultura y el turismo en a zona por medio de la estética respetando el entorno.

¿ Como lograrlo ?

Realizando un buen emplamiento y distribucion arquitectonica.

Centro cultural comunitario

¿ Que se busca ? contorno composición y estética arquitectónica.

¿ Por qué ?

¿ Para quién ?

Para toda la comunidad afectada por estas deficiencias.

Por que se necesita de propuestas arquitectónicas que jerarqu cen con la zona

Dinamizar Altura

Dinamizar e proyecto creando una compos ción que presente variedad de tamaños como doble o triple altura

ESTRATEGIAS PROYECTUALES

¿ Que es ?

Perfil urbano que se integre a la trama urbana.

¿ Para que ?

Para que se proyecte un mejor est lo arquitectónico

Integrar

Perfil Urbano

ntegrar el entorno por medio de soluc ones novedosas e innovadoras con volúmenes que se adapten al perfil que posee el lugar

¿ Que se busca ?

¿ Como lograrlo ?

Co las estrategias bien organ zadas y proyectadas.

Centro cultural comunitario

Un perfi moderno, ordenado y original

¿ Por qué ?

¿ Para quién ?

Para los n ños jovenes y adu tos que v siten la zona.

Por que se necesita de un proyecto a a altura de la comunidad y v sitantes.

ESTRATEGIAS PROYECTUALES

Articular

Recorridos

Rea izar recorr dos que tengan flu dez y que estén conectados con los equipamientos internos como externos.

¿ Que es ? Recorridos estructurados y asfa tados.

¿ Para que ?

Para que origine una red v al organizada l bre de pe igros de accidentes y accesibilidad facilitada.

¿ Que se busca ?

Seguridad, libres accesos y orden.

¿ Como lograrlo ?

or g nando una buena trama vial y ordenada.

Centro cultural comunitario

¿ Para quién ?

Para os transportistas y comunidad.

¿ Por qué ? por que hay un buen orden de red vial en la zona.

PROCESO

UNIR INTERSECTAR ELEVAR INCORPORAR

AISLAMIENTO VISUAL EJES

EMPLAZAMIENTO
Nodos
Unidad Modular
EMPLAZAMIENTO
Modulo aula/alumno UNIDAD MODULAR EJES CONEXIONES TRAMA 5.20 5.20 DELIMITACIÓN ESPACIOS POSICIONAMIENTO VIVIENDA DETERMINAR-ESPACIO PROPUESTA DE DISEÑO ESTACIONAMIENTOS LAS PIEZAS SE COLOCAN EN BASE UNA DELIMITACIÓN Y SE NOTA EL JUEGO DE VOLÚMENES INTERSECTANDO UNO CON OTRO. ELEVACIÓN DE VOLÚMENES
Ing
PROCESO
MODULO
LEVANTAMIENTO DE MUROS
SALAS DE EXPOSICIONES SALON DE USOS MÚLTIPLES INGRESO CAFETERÍA TÓPICO SERVICIOS PRIMERA PLANTA SEGUNDA PLANTA TALLERES BIBLIOTECAS CIRCULACIÓN VERTICAL ADMINISTRATIVA
ZONIFICACIÓN
POR ZONAS ZONIFICACIÓN I N G R E S O S DE EXPOSICIONES SALÓN DE USOS MÚLTIPLES ZONA DE SERVICIO Z COMERCIAL ÁREA VERDEINGRESO Z. DE ADMINISTRACIÓN BIBLIOTECAS CICULACIÓN VERTICAL CICULACIÓN VERTICAL TALLERES S.EXPOSICIONES Z.COMERCIAL Z.DESERVICIO Z. USOS MÚLTIPLES INGRESO C.V BIBLIOTECA Z.ADMINISTRACIÓN TALLERES
POR AMBIENTES ZONIFICACIÓN S. EXPOSICIONES 1,2,3 Y 4 CAFETERIA - TOPICO C. BASURA, C. BOMBAS/ C. CISTERNA, C. TABLERO SALÓN, FOYER, SS.HH ALMACÉN INGRESO C.V ALMACÉN, ESTANTERÍA DE LIBROS, S DE LECTURA PARA NIÑOS, S. DE LECTURA PARA ADULTSO Y 4 SS.HH S. REUNIONES, SS.HH, SECRETARIA, TESORERIA, CONTABILIDAD, ADM. CICULACIÓN VERTICAL CICULACIÓN VERTICAL S. DE REUNIONES ADMINISTRACIÓN SS.HH CONTABILIDAD TESORERIA S E C R E T A R I A ATENCIÓN S. DE LECTURA PARA ADULTOS ESTANTERIA DE LIBROS S. DE LECTURA PARA NIÑOS SS.HH SS.HH SS.HH SS.HH T. COMPUTO T. DIBUJO T. TEATRO T. ESCULTURA T. MÚSICA T. DANZA VESTIDOR DEPOSITOS T. COMPUTO, T. DIBUJO, T. TEATRO, T. ESCULTURA, T. MÚSICA, T. DANZA, VESTIDORES, DEPOSITOS SS.HH I N G R E S O S. DE EXPOSICIÓN 3 CAFETERÍA ÁREA VERDEINGRESO S. DE EXPOSICIÓN 4 S. DE EXPOSICIÓN 2 S. DE EXPOSICIÓN 1 SS.HH SALÓN FOYER A L M A C E N TOPICO D E P O S I T O S C. DE BOMBAS/ CISTERNA C DE BASURA SS.HH PUNTO DE REUNIÓN C. TABLEROS
SIN INTERVENCIÓN TERRENO DE CENTRO CULTURAL INTERVENCIÓN TERRENO DE CENTRO CULTURAL CENTRO ARQUEOLOGICO CON POCO CARACTER ARQUITECTONICO FALTA DE VEGETACIÓN ACUMULACION DE BASURA EN LOS ALREDEDORES POCA ILUMINACION EN LOS SECTORES

ZONA ADMINISTRATIVA ZONA COMPLEMENTARIA

ORGANIGRAMAS
POR ZONAS

ZONA CULTURAL ZONA DE SERVICIOS

ORGANIGRAMAS
POR ZONAS

ZONA ADMINISTRATIVA ZONA COMPLEMENTARIA

FLUJOGRAMAS
POR ZONAS

ZONA CULTURAL ZONA DE SERVICIOS

FLUJOGRAMAS
POR ZONAS
POR ZONAS DIAGRAMA DE RELACIONES DIRECTA: 01 INDIRECTA: 02 NULA: 0

RELACIONES

GENERAL

VISTA ISOMÉTRICA

LATERAL

IDEA RECTORA Y DIAGRAMA DE
VISTA VISTA POSTERIOR LA TRAMA QUE GENERA GENERA ALGUNOS VOLÚMENES HACIENDO QUE SE CREEN ESPACIOS LIBRES
Y
CERRADOS, ESTA TRANSIC ÓN Y TRANSFORMACIÓN NOS PERMITE CRUZAR FIGURAS PENETRÁNDOLE ENTRE SÍ.

PLANTA

PLANTAS GENERALES P R I M E
R A P L A N T A SEGUNDA

PLANTA

PLANTAS GENERALES P R I M E R
A P L A N T A SEGUNDA

A-A

CORTES
CORTE B-B
GENERALES CORTE

CORTE C-C

CORTES GENERALES CORTE D-D

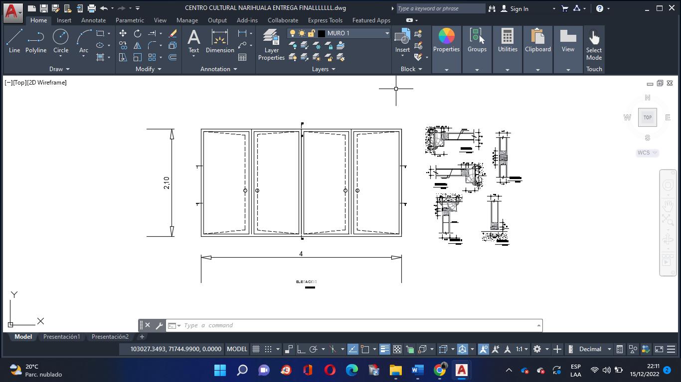
ELEVACIONES GENERALES

ELEVACIÓN A ELEVACIÓN B

ELEVACIÓN C

ELEVACIÓN D
ELEVACIONES GENERALES
PLANO DE DETALLES
ESTACIONAMIENTO
CORTES
RENDERS
RENDERS
RENDERS
RENDERS

Turn static files into dynamic content formats.

Create a flipbook
Issuu converts static files into: digital portfolios, online yearbooks, online catalogs, digital photo albums and more. Sign up and create your flipbook.