P
ORTAFOLIO

![]()


San Francisco Cruz Sandoval

. 3 2 M 2 8 043.32 m2




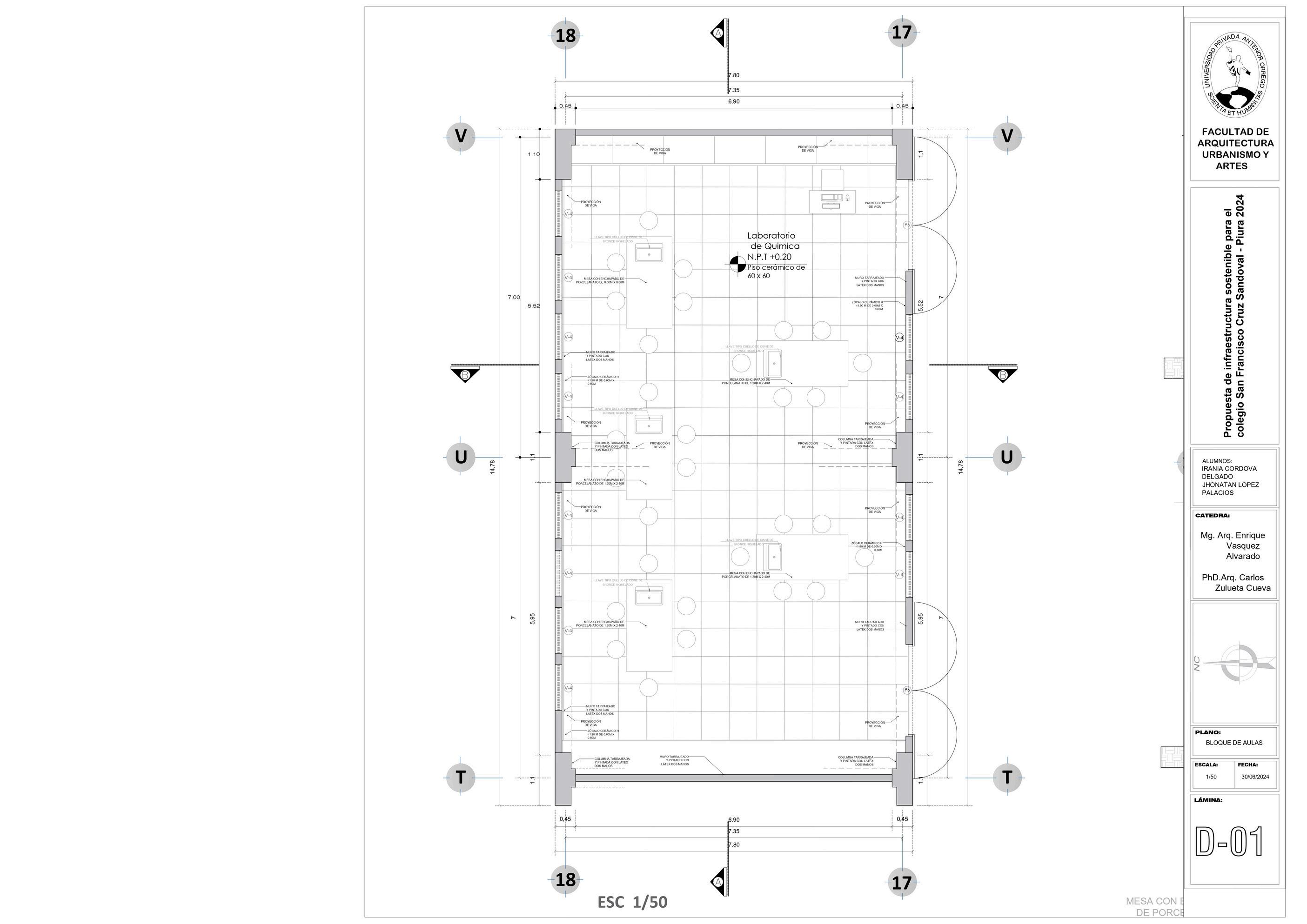
Tipo de equipamiento: Educativo
Ubicación: Jr. Arteaga, calle Tupac
Amaru y Luis Agurto
Área del terreno: 8043.32 m2
Puntos a favor:
No se encuentra en una zona a riesgos de inundaciones. No está relacionada directamente a una avenida principal. Su radio de influencia infiere en 12 barrios aledaños.
Está ubicado cerca a zona residencia, comercial y a establecimientos de salud. Cuenta con todos los servicios básicos.




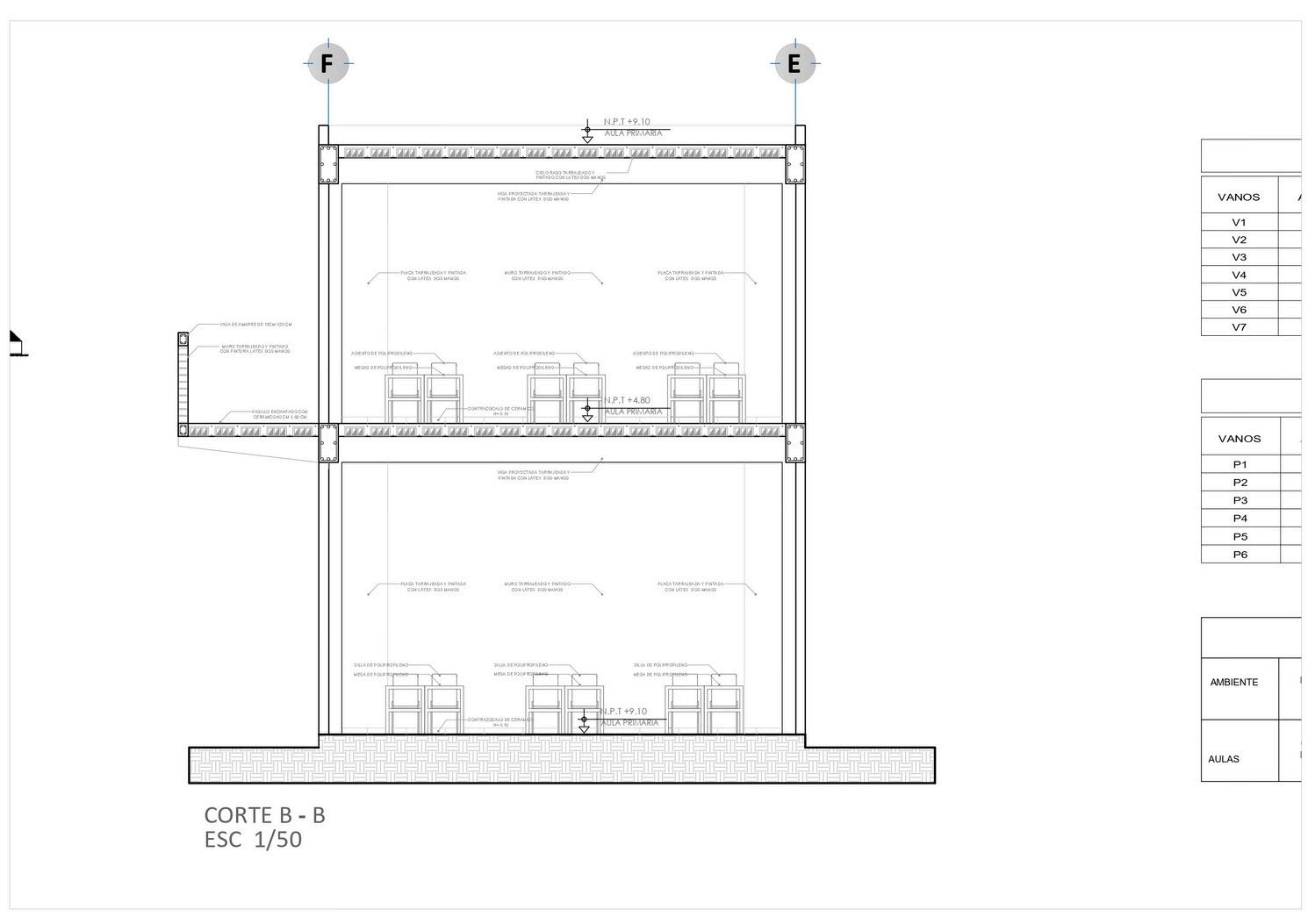
Mobiliario que ayuda a la autonomía del niño
Mesas hexagonales que permiten el trabajo en grupo


























Patio de inicial



