ARQUITECTURA Y DISEÑO. EN EL PERÚ-GRUPO 6

Page 1

ARQUITECTURAY DISEÑOENELPERU J I M E N E Z M E N D O A N D R E A F E R N A N D A N A R C I S O M A U R I C I O Q U E R B I N J H O N E L R O J A S C H A L A N L E A N D R O S A N T O S A R R I E T A , Y E S Y C A A M E L I A A D I Y O V A N N Y U C E D A Y A R A N G O DOCENTE: ALUMNOS:
E N E L P R E S E N T E P O R T A F O L I O P R E S E N T A M O S L A R E C O P I L A C I O N Y D E S A R R O L L O D E L A S I N V E S T I G A C I O N E S D U R A N T E E L C I C L O A C A D E M I C O 2 0 2 2 - 2 E N U N I V E R S I D A D P R I V A D A D E L N O R T E . L O S T E M A S A T R A T A R S O N U N C O N J U N T O D O N D E A B A R A C A N L A H I S T O R I A D E L P E R U D E S D E L A E P O C A P R E H I S P A N I C A H A S T A L A A C T U A L I D A D CONTENIDODEL PORTAFOLIO
INDICE SEMANA 1: SEMANA 2: SEMANA 3: SEMANA 4: SEMANA 5: SEMANA 6: CASA GARCIA LASTRE ALTO ECHIN CULTURA MOCHICA CHAN CHAN VILCASHUMAN CATEDRAL DE CUSCO
INDICE SEMANA 7: SEMANA 9: SEMANA 10: SEMANA 11: SEMANA 13: SEMANA 14: LAS CIUDADES DEL VIRREINATO BALCONES DEL BIRREINATO HOSPITAL DOS DE MAYO PALZA SAN MARTIN UNIDAD VECINAL RIMAC VIVIENDA COLECTIVA.CONJUNTO RESIDENCIAL CIPRESES

INTODUCCION

COMO FUTUROS FORJADORES DE LA NUEVA ARQUITECTURA DE NUESTRO PAÍS ES ESENCIAL SABER LA IMPORTANCIA DE TODO EL RECORRIDO QUE NUESTRA HISTORIA QUE LOGRAR ESTABLECER UN LEGADO Y SOBRE TODO SUS CONOCIMIENTOS QUE DEBEN SEGUR PRESENTES ALA HORA DE PLANTEAR NUEVOS DISEÑOS. LA ARQUITECTURA DEL SIGLO XX NOS AYUDO A COMPRENDER MEJOR LO QUE SON LAS RESIDENCIA Y PLAZAS INCONFUNDIBLE POR SUS CARACTERÍSTICAS DE RITMO DE JUEGO DE VOLÚMENES, DE ESCALA, DE COLORES Y ELEMENTOS QUE DESTACAN FACTORES ARQUITECTÓNICOS.

SEÑOR DE SIPAN CULTURA MOCHE

SITIO ARQUEOLOGICO SECHIN ALTO

CULTURA CHAN CHAN EPOCA COLONIAL VILCASHUMAN

150-300 d.C. Durante estas los mochicas se impones sobre la cultura Virú, tanto en el plano militar como en lo ideológico imponiendo así sus creencias religiosas.

El hallazgo del complejo arqueológico Sechín hace 82 años obligó a su descubridor y primer investigador, el sabio Julio C. Tello

850 d.C. Chan Chan fue fundado por el pueblo chimú

1400 - 1500 d.C.

Edificada en tiempos de los incas Tupac Yupanqui y Huayna Capac tras el triunfo del inca Pachacutec

1539 d.c Construida la Catedral de Cusco sobre la base del palacio de Viracocha Inca.

CATEDRAL DE CUSCO

VIVIENDA COLECTIVA (CONJUNTO RECIDENCIAL LOS CIPRESES) UNIDAD VECINAL DE RIMAC

ciudad de Arequipa fundada el 15 de agosto de 1540 por Garcí Manuel de Carbaja

1540 d.c 1620 d.c 28 de febrero de 1875 empieza a funcionar el Hospital Nacional Dos de Mayo

1875 d.c a principios del siglo XVII empezaron a aparecer los balcones cerrados de cajón imponiéndose su predominio desde la década de 1620

1917 d.c 1937-1954 d.c

6 de julio de 1917 El proyecto para la plaza fue autorizado por la Municipalidad de Lima

1952-1954

Durante el gobierno de Manuel Odría, se inicia la construcción de la Unidad Vecinal Rímac el cual no culmina a su totalidad

2013 d.c

Construcción del conjunto residcencial LOS CIPRESES

CIUDADES DEL VIRREINATO(AREQUIPA) BALCONES DEL VIRREINATO HOSPITAL II DE MAYO PLAZA SAN MARTIN DE LIMA

CASA GARCÍA LASTRE

Arquitectura

Arquitectura y Diseño del Perú SEMANA 1
en el periodo formativo

CASA GARCIA LASTRE

ANTECEDENTES Y UBICACIÓN

HISTORIA

1914 Construida por el arquitecto Claudio Sahut para H García Lastres

Según el arqueólogo Lizardo Tavera, si bien se considera que el descubrimiento del sitio Sechín ocurrió en 1937, hubo un contacto previo del padre de la arqueología peruana.

El arqueólogo Henning Bischof propone una secuencia cronológica para la evolución cultural de Sechín, que va desde el año 3,400 a.C. al año 1,000 a.C. Esto abarca los períodos Precerámico Tardío e Inicial con el período Sechín

UBICACIÓN Y GEOGRAFÍA EMPLAZAMIENTO

Obra
.Av. Nicolás de Piérola Nº 412 .Av. Nicolás de Piérola Nº 412
arquitectónica

CASA GARCIA LASTRE

CASA GARCIA LASTRE

ANÁLISIS ESPACIAL ANÁLISIS ESTRUCTURAL

La edificación está constituido por dos alturas a la que hay que sumar la última generada por la propia mansarda, teniendo un total de cinco entradas entrando remarcadas en la fachada que da a la colmena y el ventanal de la planta baja de la esquina mediante columnas con fuste de granito rojo.

MATERIALES PREDOMINANTES

Cimiento: Corrido ciclópeo. •Sobrecimiento: ladrillo y cemento. •Techo: madera •Piso interior: concreto armado •Entre piso: barro .Escaleras: marmol

•Los suelos en salón principal son de tonos de madera de diferentes matices y formas geométricas. •La madera fueron lacados en tonos blancos y líneas rectas, los alfices con tonos áureos con sobre fondos blancos y decoraciones con motivos de estilo del segundo imperio

ELEMENTOS COMPOSITIVOS

Los elementos que más resaltan en esta obra son los ornamentos y materiales que posee, la mampostería aumenta una decoración vegetal al conjunto que se diferencia a comparación de los demás elementos por los vegetales en los frutos. Siendo esto una inspiración por los cortes vegetales en Europa, pero con un toque más de identidad.

TRASCENDENCIA Y

VALOR ARQUITECTÓNICO ESTADO DE CONSERVACIÓN

ANTES

El 6 de octubre de 1987 se hizo una remodelación de la obra arquitectónica debido a su mal estado de conservación, cambiándole principalmente los colores principales de la fachada, a lo que se ve ahora.

La casa García Lastre es un ejemplo importante de la arquitectura republicana en nuestro país debido a ser uno de los primeros diseños de este estilo, combinando diferentes épocas e inspirándose de diversos elementos de europa. Para los historiadores del arte, la arquitectura se reduce al estudio de lo bello, armonioso y el uso estético de todo los elementos de una obra y el lenguaje a aquellas obras que toman en cuenta el espacio y los lenguajes artísticos con lo cual se limitara a estudiar una selección.

AHORA
CASA GARCIA LASTRE

Arquitectura y Diseño del Perú

ALTO SECHIN

Arquitectura en el periodo formativo SEMANA 2

ALTO SECHIN

ANTECEDENTES Y UBICACIÓN

HISTORIA

El hallazgo del complejo arqueológico Sechín hace 82 años obligó a su descubridor y primer investigador, el sabio Julio C. Tello

Según el arqueólogo Lizardo Tavera, si bien se considera que el descubrimiento del sitio Sechín ocurrió en 1937, hubo un contacto previo del padre de la arqueología peruana.

El arqueólogo Henning Bischof propone una secuencia cronológica para la evolución cultural de Sechín, que va desde el año 3,400 a.C. al año 1,000 a.C. Esto abarca los períodos Precerámico Tardío e Inicial con el período Sechín

UBICACIÓN Y GEOGRAFÍA EMPLAZAMIENTO

ALTO SECHIN

ANÁLISIS FUNCIONAL ANÁLISIS FORMAL

Este templo tiene múltiples interpretaciones algunos de lo ven como un monumento conmemorativo de una acción trágica (batallas entre soldados y el pueblo que escenificaban el poder y la fuerza) mientras otros consideran que era un espacio para estudios en medicina debido a las paredes del templo cuentan con grabados que muestran desde las figuras de órganos hasta personas que no cuentan con brazos.

ARQUITECTURA

ANÁLISIS FORMAL

PAISAJES MONOLITICOS

MONOLITOS

PASAJES

ALTO SECHIN

ANÁLISIS ESPACIAL ANÁLISIS ESTRUCTURAL

Son grupos de pequeñas construcciones de un solo piso ubicados tanto en el Sector Alto como en el Sector Bajo y sirvieron como Son de forma cuadrangular y dimensiones variadas, oscilando entre los 49 metros cuadrados y 80 metros cuadrados, está formada por un conjunto de recintos interconectados entre sí. Las residencias tienen una entrada principal orientada al norte y otra "trasera" que comunica con patios o espacios abiertos. Algunos de los cuartos tienen banquetas o pequeñas plataformas

La estructura principal es llamado templo tiene forma piramidal.

Su planta mide 300 m de largo por 350 de ancho y una altura de 35 m.

Está formada por terraplenes y paredes levantadas.

Su templo se extiende en cinco canchas o plazas, patios circulares hundidos de carácter ceremonial.

Fue centro administrativo de la cultura Sechín comparten con el complejo arqueológico pampa de las llamas moxeke.

ALTO SECHIN

ELEMENTOS COMPOSITIVOS

Sechín Alto cuenta con una planta cuadrada y con forma de pirámide escalonada, contando con edificaciones de esquina redonda. Muchos de estos edificios cuentan con escalinatas de barro.

Los murales conservan extensos polícromos bajo relieve y pinturas típicas de la época.

ESTADO DE CONSERVACIÓN

Las edificaciones fueron construidas en el período Formativo Inicial, entre los años 2.000 a.C. a 1500 a.C. Descubierta por Julio C. Tello en 1937.

TRASCENDENCIA Y VALOR ARQUITECTÓNICO

Las murallas con piedras, cuñas del mismo material y mortero de barro. Se conservan con pintura mural y grandes relieves polícromos.

Esta edificación está considerada como el complejo arqueológico más importante de América Prehispánica por su planificación y arquitectura ciclópea monumental.

Hoy en día se puede visualizar el complejo arqueológico, el cual está tan bien conservado que se puede apreciar sus extensos polícromos bajo relieve y pinturas típicas de la época

A pesar de su antigüedad, el complejo está arquitectónicamente distribuido y planificado adecuadamente, siendo apreciado hasta la actualidad por su conservación.

Arquitectura y Diseño del Perú

SEMANA 3

ANTECEDENTES Y UBICACIÓN

EVOLUCIÓN EN EL TIEMPOGOBERNANTE

Señor de Sipán Señora de Cao No se conoce gobernante

COMIENZO EXPANSIÓN OCASO

UBICACIÓN GEOGRÁFICA

Surgió en el intermedio temprano entre los años 100 y 800 d. C. en el norte del Perú. En el norte del Perú. En el valle del río Moche (actual provincia de Trujillo. En el departamento de La Libertad).

EMPLAZAMIENTO

Pueblo de Moche

Complejo arqueológico de las huacas del sol y la luna

PARALELISMO HISTORICO

Uso del papel en China

La peste bubónica azota en Asia. Se funda Constantinopla Construcción de la pirámide del sol Teotihuacán.

Inauguración del coliseo Romano

Separación administrativa de las zonas oriental y occidental de imperio romano.

Caída del Imperio Romano Occidente

Los árabes iniciaron su expansión por toda Europa.

Apogeo de la cultura moche Máximos logros, en lo político, militar, económico y cultural. Huacas del Sol y de la Luna valle de Moche) y las del Complejo El Brujo (en el valle de Chicama).

El periodo de la Expansión 300 a 600 d.C.

Devastación ocasionada por el fenómeno del Niño. pérdida de cosechas, hambrunas, colapso de los santuarios.

El periodo del Ocaso 650 y 700 d.C

El período del Comienzo 150 y 300 d.C

Los mochicas se imponen sobre la cultura Virú Gallinazo. Señor de Sipán.

476 0 100 85 285 330 150 500-600 700 800

CONDICIONES CLIMÁTICAS

TEMPERATURA: 16.5º en invierno y 25º humedad HUMEDAD RELATIVA: 80% todo el año húmedo VIENTOS: Del S-E CLIMA : Cálido húmedo de costa Recibe sol por el norte todo el año menos en verano

ANALISIS URBANO/ARQUITECTONICO

N O S E MOCHE TRUJILL O
PLANTA RECORRID O SOLAR E O O E N S S N
ELEVACIÓN

ESPACIOS CONSTRUIDOS EN EL NÚCLEO URBANO MOCHE

Existencia de conceptos de uso de suelo y diferenciación de actividades.

Trama regular, tipo damero. Formado por un conjunto de callejones casi paralelos.

Trama urbana: que exhibe ciertos niveles de planificación, a partir de la presencia de espacios públicos y vías de circulación, quienes además delimitan a los bloques arquitectónicos o manzanas Vías de circulación: presentes en el sitio han sido clasificadas en tres tipos: plazas, calzadas y callejones.

Las plazas: Articulaban la red de callejones, tenían un carácter público donde se desarrollaron actividades de intercambio de bienes, culto, etc.

Vivienda Campesinos

Viviendas de elite (nobleza).

Forma rectangular y pequeña Techos inclinados

planos o a dos aguas. Carácter emblemático.

altas

Uso de piedra para el cimiento

Antesa
Cocina Depósito Depósito
Dormitorio Patio
Depósito Acceso
LA VIVIENDA Y SU FUNCIONALIDAD
FUNCIÓN
VIVIENDA
CARACTERISTICAS DE VIVIENDAS PLANTA VIVIENDA
DE LA

HUACA DEL SOL

PRESENTA TERRAZAS SUPERPUESTAS

La planta esta con forma de Cruz originalmente, se tenia un eje longitudinal y uno transversal de menor tamaño pirámide con terrazas escalonadas, escalera o rampas.

Fue el centro político administrativo mochica

Mide: 493 m. de largo por 160 m. de ancho y 41 m. de alto. Existen evidencia de postes, vigas y dinteles hechos de madera, especialmente de algarrobo, así como cañas de guayaquil (especie similar al bambú), carrizo, esteras de totora y cordajes de fibras vegetales, que sirvieron para la

CARACTERISTICAS

-Sus construcciones se realizaron en base a adobe y barro, con casa de techo de a dos aguas.

- Construyeron las Huacas que tienen una forma piramidal escalonada truncada.

Agua Fibras vegetales Masa de

ADOBE

bloque de adobe tramado" Engrosamiento o sobreposición

SISTEMA

CONSTRUCTIVO Soportado por pilares y pilastras. Ventanas altas. Grandes hornacinas.

RECONSTRUCCIÓN

DE LAS SALAS CON

2
PatioCeremonial Plaza
Plataforma 2
adobes paralelepípedos
con moldes l adobes
E
Escalones profusamen t e decorados con relieves y representac i ones realizadas con pintura policroma Relieves policromos con motivos de alta significación simbólica Recinto Esquinero Frontis Norte Decorado con relieves policromos, que tienen como motivo central la repetida representación del rostro Dios degollador
congregación
HUACA DE LA LUNA Terraza 1 Destinado a determinados eventos rituales, dirigidos a quienes los presenciaban desde esta ubicación. Frontis
Altar Mayor
hechos
con marca de caña MATERIAL DE CONSTRUCCI ÓN TEXTURAS
ICONOGRAF
Plaza 1 Espacio de
y de acceso principal al complejo.
PLAZA 2 PLAZA 3 ACCESO PRINCIP AL Cercada por gruesos muros de adobe Ingreso a la plaza mediante un corredor laberíntico VOLUMETR IA ASIMETRI CA Rampas de acceso PLATAFORMA PRINCIPAL o Pirámide escalonada MAYO R SALA S HIPOSTILAS Planta cuadrangular de unos 100 m de lado Aprox. 25 m de altura 2.PLATAFORMA SUPERIOR Conecta con la Rampa Principal Aprox. 175 m largo y 90 m de ancho. ESPACIOS PRINCIPALES 1.PLATAFORMA PRINCIPAL PLAZA CEREMONIAL Rectangular techado a dos aguas. ALTAR ANALISIS ESPACIAL

ESTRUCTURAL

HUACA DE LA LUNA.

ELEMENTOS COMPOSITIVOS

FONTIS NORTE

Materiales de construcción:

-Adobes paralelepidedos hechos con moldes llanos. -Adobe con marca de caña.

-Posee 21 m de altura 3 terrazas y al interior 4 patios ceremoniales. -Detalle de relieve pictórico en las paredes. Está soportado por pilares y pilastras, cercado por gruesos muros de adobe y pirámide escalonada.

HUACA DEL SOL.

-Posee 345 m de largo, 160 m de ancho, 42 m de altura y tiene 5 terrazas superpuestas. -E de postes, vigas y dinteles hechos de madera e garrobo, guayaquil y carrizo.

Escalones profusamente decorado con relieves y representaciones realizadas con pintura policroma

RECINTO ESQUINERO

fachada de la plataforma 1 dibujos de los frisos

Plataforma en forma de cruz Pirámide con terrazas escalonada

Relieves policromos con motivos de alta significación simbólica

RECINTO ESQUINERO

El Recinto Ceremonial, ubicado en una esquina de la Plaza 1. Sobre sus paredes está representado el "Calendario Ceremonial".

ESTADO DE CONSERVACIÓN

Los mochica inculcaron en su arquitectura los diseños de distintas categorías, las cuales se pueden clasificar como: formas cerámicas, vida diaria, el mundo natural y lo desnatural. Los murales conservan extensos polícromos bajo relieve y pinturas típicas de la época.

ESTADO DE CONSERVACIÓN

La cultura Moche se desarrolló entre los años 100 a.C. y 700 d.C. en la costa norte

Los restos tanto arqueológicos como arquitectónicos se mantienen en buen cuidado gracias a la ley del patrimonio.

ELEMENTOS COMPOSITIVOS RESALTANTES

La cultura mochica tiene una gran trascendencia en el Perú, al contar con obras arquitectónicas de gran importancia que sirven hasta la actualidad.

Algunos ejemplos son el sistema de riego e irrigación que utilizaron para convertir el desierto en un gran cultivo de vegetales y verduras. También se diseñaron las huacas del Sol y la Luna, las cuales tuvieron de función principal como centros religiosos y gubernamentales

Las obras arquitectónicas de gran importancia, como las Huacas del Sol y la Luna, perduran hasta la actualidad en buen estado siendo parte de un legado cultural.

TRASCENDENCIA Y VALOR ARQUITECTÓNICO

Arquitectura y Diseño del Perú

CHAN CHAN

SEMANA 4

CHAN CHAN

HISTORIA

850 d.C.

Chan Chan fue fundado por el pueblo chimú

1470

Los incas atacaron el reino chimú, doblegaron a sus gobernantes y destruyeron Chan Chan

Actualidad

Hoy en día, en Chan Chan sólo puede visitarse la ciudadela Nik An, la más estudiada y restaurada

UBICACIÓN Y GEOGRAFÍA

EMPLAZAMIENTO

COMPLEJO ARQUEOLÓGICO

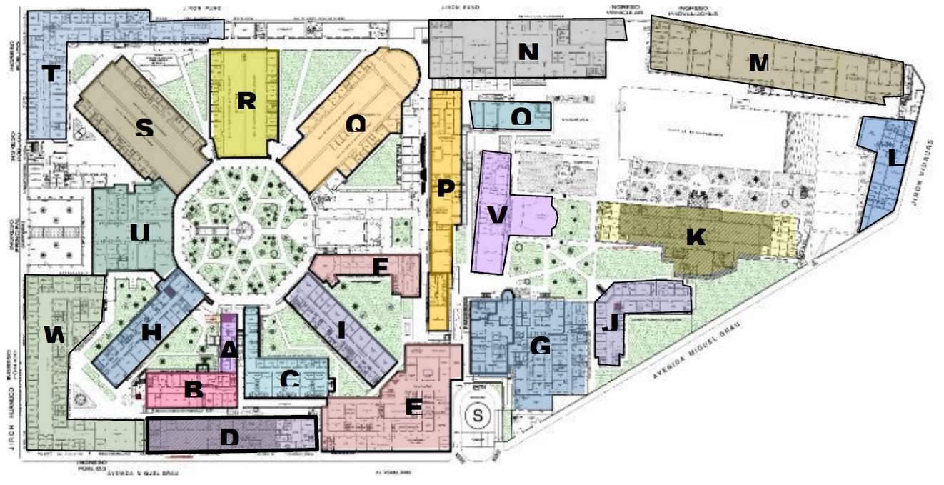
Se ubica al noroeste del área metropolitana de Trujillo entre los distritos de Trujillo y Huanchaco. En la provincia de Trujillo, Departamento de La Libertad en Perú.

Dirección: VWVG+Q5C, Huanchaco

CHAN CHAN

Chan Chan está formado por 10 "ciudadelas"

Para construir esta ciudad se utilizaron materiales propios de la región Las ciudadelas fueron construidas usando muros de adobe sobre cimientos de piedra unidos con barro más anchos en la base y angostos en la cima. Para construir pisos, rellenos de paredes, rampas y plataformas, se emplearon adobes rotos, junto con tierra, piedras y otros desechos. Uno de los detalles que más admiran los actuales visitantes es la gran belleza, variedad y cantidad de muros decorados con altorrelieves Estos fueron hechos con moldes y decoraron las paredes de patios, audiencias y corredores, al interior de las ciudadelas.

Son áreas cercadas de forma rectangular.

Tienen orientación norte / sur Están divididos en tres sectores

Es notable un alto grado de planificación en su construcción.

Acceso principal ubicado al norte Compartir una similar zonificación al interior de las ciudadelas.

La presencia de plazas audiencias depósitos, plataforma funeraria y pozos

En el interior hay muchas estructuras 9 tienen muchas características comunes Vistos desde el norte y el sentido de las agujas del reloj han sido bautizadas como Squier

La ciudadela Rivero que ocupa un área de 8,7 hectáreas o Gran Chimú (la más grande) con 22 1 hectáreas Las demás, tienen un promedio de 14 hectáreas.

También las clases sociales ocupando diferentes áreas y edificios propios a su condición económica.

Las ciudadelas estaban protegidas por altas murallas y tenían un solo acceso facilitando el control de los que ingresaban y salían

Además del área nuclear vemos que sea organización de Chan Chan otras 2 zonas de importancia Al sur y oeste de las ciudadelas, conjuntos de construcciones menores aglutinadas, llamadas "barrios marginales" y "complejos arquitectónicos de elite" finalmente, una serie de estructuras dispersas como depósitos, caminos pirámides caminos, cementerios, acequias huertos hundidos ("huachaques") y diques

ESTRUCTURAL Mausoleo Audiencias Almacenes Taller textil Segunda plaza Plaza ceremonial Gran huachaque ceremonial Cocina Palacio del Curaca Chimú Muro de Adobe Fisos decorados En la ciudad de Chan Chan, su sistema constructivo esta marcado por materiales de la zona Cimiento Piedra y barro Zanja Gravilla y arena Sogas Tensadas Cubierta de enlucido Muro de hormigón prensado Caña Guayaquil Muros Muros de celosía Adobes intercalados que forman muros translucidos, en hileras y apoyadas en tensión de caña brava. CHAN CHAN
ESPACIAL

CHAN CHAN

Elementos compositivos

Los techos de estas construcciones fueron realizadas con quincha por su sistema ligero y flexible.

Se usaron materiales vegetales como: palo de algarrobo caña de guayaquil, carrizo y totora.

arquitectónico. Estado de conservación

Trascendencia y valor

experimento in situ del adobe conservación consolidación de frisos (1998)

Muros trabajados con adobes puestos de manera intercalada formando muros traslucidos obtenido pardes altas en celosías romboidal o diseño de escapes patrón de rombos o cuadrados de manera alternativa. Hileras superpuestas apoyadas en tendidos de caña brava.

Sector de audiencias en nik an (ex tschudi 1951)

vista actual del sector de audiencias protegido en el programa enso con coberturas (2016)

Esculturas antropomorfas con mascara de arcilla que tenían una altura de 0.70 a 1.00 m de alto Ardilla algarrobal costera antes se consideraba que era nutrias. Se presume que podían estar manifestando la fertilidad.

Un referente estructural del complejo y es considerado unos de los mas finos ejemplos de la arquitectura chimú

En la actualidad es el único palacio al se puede ingresar por turismo desde 1964

Vista aerea antigua del palacio en nik an Planimetría actual con las cubiertas implementadas

SEMANA 5
Arquitectura y Diseño del Perú Vilcashuaman
Arquitectura en el periodo formativo

Antecedentes y Ubicación

HISTORIA

1400 1500 d.C. Edificada en tiempos de los incas Tupac Yupanqui y Huayna Capac tras el triunfo del inca Pachacutec

UBICACIÓN Y GEOGRAFÍA

Época de la colonia

La Iglesia de San Juan Bautista se levantó sobre sus bases con piedras extraídas de muros incas.

EMPLAZAMIENTO

Actualidad Declarado como patrimonio nacional, es considerada una de las ciudades inca más importantes del Tawantinsuyo.

COMPLEJO ARQUEOLÓGICO

Vilcashuamán es un complejo arqueológico en la capital de la provincia de Vilcashuamán perteneciente al departamento de Ayacucho en el Perú.

Está ubicado a 118 kilómetros al sur de la ciudad de Ayacucho, a 3.490 metros sobre el nivel del mar en el distrito de Vilcashuamán.

VILCASHUMAN

Análisis

Desde 1942 se reportan intervenciones en Vilcashuamán. Estas se intensifican entre la décadade1970y la actualidad (Sialer,2019).Alrededor de la cuarta parte de los elementos constructivos de los paramentos se encuentran en su ubicación original. El resto de elementos han sufrido algún tipo de intervención.

Planimetria

La principal causa de deterioro del monumento es la acumulación de aguas pluviales acumuladas en las diversas plataformas quela componen Vilcashuamán ha sido ampliamente intervenido en la últimas décadas, lo cual ha afectado significativamente su autenticidad Las zonas de riegos se encuentran asociadas a los paramentos intervenidos en décadas pasadas.

Se debe profundizar en estudios estructurales, de suelos, sísmicos y de caracterización de materiales constructivos.

Reconstrucción

Apilamiento

Anastilosis

Unidades líticas originales

La desestructuración de paramentos, desfragmentación y fracturación de unidades pétreas, perdida de unidades pétreas, etc.

Lesiones superficiales: 55% Exfoliación, descamación superficial de unidades pétreas, eflorescencia de sales, presencia de líquenes y musgos, presencia de plantas vasculares, etc.

Plaza del Vilcashuamán moderno, con el Vilcarhuamán Inca y la iglesia colonial de San Juan Bautista donde antaño estuvo el Templo del Sol. Estructura escalonada adornada con vanos trapezoidales sirve de base a lo que fuera el Templo del Sol en Vilcashuamán y ahora es la iglesia de San Juan Bautista. Ingreso de forma trapezoidal de doble jamba, símbolo de poder y nobleza. Los Incas los usaron sólo en los templos y palacios más importantes Vista posterior del Ushnu. Es una pirámide escalonada de piedra. Ushnu, o pirámide que usabaIncapara presidir las ceremonias más importantesdel Tawantinsuyu. Foto de 1946. "Kallanca" ubicada detrás del Ushnu.
VILCASHUMAN
RECONSTRUCCIÓN ISOMÉTRICA DE VILCASHUAMÁN, SEGÚN E. HARTH TERRÉ
ESPACIAL ESTRUCTURAL Kallanka Templo del Sol Ushnu Templo de la Luna Anderes Piedra de Sacrifico Akllahuasi Cancha Piedras encajadas perfectamente para no usar mortero MATERIALES
Análisis
VILCASHUMAN
Vilcashuaman

Elementos compositivos Trascendencia y valor arquitectónico. Estado de conservación

asientos localizados en la plataforma superior de los ushnus

Algunos vanos y escalinatas que conducen a la plataforma superior del ushnu

El 25 de marzo colapsó un segmento de muro en la parte sur del sector El Ushnu de la Zona Arqueológica de Emergencia (ZAM) Vilcas Huamán a consecuencia de las fuertes lluvias producidas los días previos

Detrás del Ushnu se encuentra una edificación que, según creen los expertos de Vilcashuamán, se trataba del palacio de Pachacútec, una construcción en la que se refleja la gran calidad de la arquitectura inca construcción inca es muy común encontrarse con plazas trapezoidales, una de las principales características de su arquitectura inca

Piedras puestos de manera intercalada perfectamente para no usar mortero. verdaderos mosaicos formados por bloques de piedra tallada que encajaban perfectamente

En estas secciones, se realizaron las siguientes acciones: 1. Relevamiento y codificación de elementos líticos 2. Limpieza de escombros 3. Estabilización de elementos líticos en riesgo de colapso 4. Retiro de material acumulado en la parte superior del muro 5 Consolidación de talud 6. Intervención para la evacuación de agua pluviales 7. Señalización con carteles y señales

Ortofoto de paramento reconstruido

En la parte sur de la Plaza Trapezoidal se encuentra la que seguramente es la construcción más importante de todo el complejo arqueológico de Vilcashuamán. Se trata del Templo del Sol, un lugar dedicado al dios poderoso de los incas, el Inti. Junto a él se encuentran otros lugares de interés como el Templo de la Luna

VILCASHUMAN

Arquitectura y Diseño del Perú Catedral de Cusco

SEMANA 6
Arquitectura en el periodo formativo

Antecedentes

HISTORIA

y Ubicación La Catedral del Cuzco o Catedral Basílica de la Virgen de la Asunción es el principal templo de la ciudad del Cuzco, en el Perú y alberga la sede de la Arquidiócesis del Cuzco. UBICACIÓN Y GEOGRAFÍA
EMPLAZAMIENTO Dirección: Plaza
s/n
Coordenadas: 13°30′59″S 71°58′41″O Catedral
1539 Construida la
del
1492
1972 El
1983 La
1533 Construcción
de Armas
08002
de Cusco
Catedral de Cusco sobre la base
palacio de Viracocha Inca.
Llegada de los españoles
templo forma parte de la Zona Monumental del Cuzco declarada como Monumento Histórico del Perú.
obra arquitectónica forma parte de la zona central declarada por la UNESCO como Patrimonio Cultural de la Humanidad.
de las primeras obras coloniales CATEDRAL DE CUSCO
Análisis Es El Principal Templo De La Ciudad Del Cusco Se Encuentra Ubicada En El Sector Noreste De La Actual Plaza De Armas Del Cusco: el Complejo Ocupa Un Área De 3956 Mts2 L Catedral Del Cuzco Es De Planta Rectangular Del Tipo Basilical Con Tres Naves: Nave De La Epístola, nave Del Evangelio Y La Nave Central, coincidentes Con Las Tres Puertas De La Fachada. Tiene Catorce Pilares Cruciformes Que Definen La Distribución De Las 24 Bóvedas Son Soportadas Por Unas Estructuras Básicas Formadas Por 21 Arcos De Piedra Y 32 Arcos Del Medio Punto El Altar Mayor Esta Hecho Completamente De Plata; Por Otro Lado, La Sacristía Esta Construida De Cuarenta Lienzos De Los Obispos Y Arzobispos Cusco. BASÍLICA CATEDRAL IGLESIA DEL TIEMPO IGLESIA DE LA SAGRADA FAMILIA RECORRIDO PILARES CONTRAFUERTES BOVEDA TORRES PLANIMETRIA CORTES ELEVACIONES PRIMERA VISION %DE LLENOS=70% %DE VACIOS=30% HORIZONTAL VERTICAL A. Basílica Catedral B. Iglesia de El Triunfo C. Capilla de la Sagrada Familia D. Puerta central o del Perdón E. Puerta del lado de la Epístola F. Puerta del lado del evangelio G. Coro H. Altar Mayor I. Ábside J. Sacristía K. Atrio L. Nave Central M. Nave Lateral N. Capillas TORRE LATERAL IZQUIERDA FORNTISPICIO TORRE LATERAL DERECHA PRIMER CUERPO DE LA CATEDRAL VA DESDE LOS CIMIENTOS HASTA LA BASE LA TORRE. EL SEGUNDO CUERPO SERIAN LA MISMAS TORRES CATEDRAL DE CUSCO

El sistema constructivo abovedado, la entrada principal con las dos torres con terminación en cúpula, y observamos la elevación lateral.

ladrillo pastelero Mortero Mortero Tejas nervaduras y plementería relleno de piedra hasta nivel de arco

DETALLE DE LA BÓVEDA DETALLE DE LA CÚPULA DETALLE DEL ALMOHADILLADO

Tiene catorce pilares cruciformes que definen la distribución de las veinticuatro bóvedas de nervadura, siendo las más grandes la bóveda de ingreso y la del crucero. Las 24 bóvedas son soportadas por unas estructuras básicas formadas por 21 arcos de piedra y 32 arcos de medio punto.

A. Basílica Catedral B. Iglesia de El Triunfo C. Capilla de la Sagrada Familia D. Puerta central o del Perdón E. Puerta del lado de la Epístola F. Puerta del lado del evangelio G. Coro H. Altar Mayor I. Ábside J. Sacristía K. Atrio L. Nave Central M. Nave Lateral N. Capillas
J C H A L G M N N M I B F E D
Análisis ESPACIAL ESTRUCTURAL
CATEDRAL DE CUSCO

Elementos compositivos Trascendencia y valor arquitectónico. Estado de conservación

Las torres rematan en una cúpula rodeada por pinaculos y coronada por una cruz latina.

Frontón combinado en los pórticos laterales y pináculo como remate.

Puerta de acceso tachonada.

En marzo de 1993, el Arzobispado del Cusco, el Instituto Nacional de Cultura-Cusco, la Municipalidad del Qosqo y el Gobierno de la Región Inca solicitaron apoyo internacional para realizar obras de restauración en la Catedral del Cusco. En marzo de 1994 se firma el convenio de cooperación con la Embajada de la República Federal de Alemania en el Perú y con la Agencia Española de Cooperación Internacional (AECI) para la restauración del campanario de la torre del Evangelio. En mayo de 1994, se iniciaron los trabajos de restauración en la torre. Los trabajos se culminaron en junio de 1995.

Es un estilo renacentista y contrasta con el barroco y el plateresco de sus interiores donde se conservan una de las muestras de la orfebrería mas significativas del arte colonial.

Altares de madera delicadamente labradas y una admirable colección de lienzos

junto a una sola capitular, tres naves, una sacristía diez capillas laterales entre otras decoraciones.

Ventana en arco de medio punto y archivolta acomisada.

culminan restauración del lienzo Alegoría a la Inmaculada. Trabajos de conservación de pintura perteneciente a la Catedral estuvo a cargo de Justo Allende Ascue durante un año.

Destaca por su plantaría de la catedral donde se aprecia la carroza de plata cusqueña surmontada de un templete.

CATEDRAL DE CUSCO

Arquitectura y Diseño del Perú Las Ciudades del Virreinato

Arquitectura en el periodo formativo

SEMANA 7

Antecedentes y Ubicación

CUIDADES DEL VIRREINATO - AREQUIPA HISTORIA

fundada el 15 de agosto de 1540 por Garcí Manuel de Carbaja l 22 de septiembre de 1541 Las gestiones del traslado estuvieron a cargo de Garcí Manuel de Carbajal

UBICACIÓN Y GEOGRAFÍA

EMPLAZAMIENTO

CIUDAD DE AREQUIPA

Desde 1853 por disposición del virrey Martín Enríquez inicia la aplicación del sistema de insaculación

Análisis Funcional

1612 autoriza la demarcación del obispado de Arequipa

La arquitectura de lucas Poblete recrea los fundamentos del estilo neoclasicista donde se aprecia los principios del clasicismo romano. Características periféricas de los centros de conocimiento y arte a falta de ritmos constantes cuando desarrolla la desproporción entre columnas y frontón, la esbeltez de los arcos triunfales en la catedral y establecimientos en las fachadas del palacio Goyeneche so pruebas de detalles arquitectónicos

CUIDADES DEL VIRREINATO - AREQUIPA

Hitos Compositivos Resaltantes Análisis Formal

TIPOLOGIA FORMAL:

Jerarquía social refleja en la portada de decoración.

Genera elementos de composición con nuevos estilos. Nuevos materiales. Genera puertas y aperturas en el segundo piso. Muestra fachadas de color blando. Cambio las bóvedas por techos planos.

Grosor de muros de cajón. Tipos de aparejo de los muros. Evolución en el tiempo. Cambio de bóvedas por techo plano. Creación de segundos pisos. Utilización de columnas. Utilización de nuevos materiales.

CUIDADES DEL VIRREINATO - AREQUIPA

Situación o Estado de Conservación Trascendencia y Valor Arquitectónico

La reconstrucción des pues de 1960 d John t Crooker, D Gonzalo Olivares rey de castro quien tuvo a su cargo la nueva sede del consejo provincial y la incorporación del convento de santa catalina al turismo D Rene Uría y D Luis Felipe calle quien reconstruyo la plaza san Francisco y D Alejandro Alva Manfredo artífice de los segundos pisos de los portales de la plaza de armas.

La estructura general del monasterio cuyas partes se encuentra interrelacionadas, son las características de un conjunto económico social en el tiempo y el espacio.

Se puede definir como una estructura que se da por una agrupación de zonas siendo así paquetes funcionales residencial simbólico y servicios. Organizaciones agrupadas a partir de ejes estructurales como: Eje residencial dado por las calles Eje simbólico definido por distintos cultos u oración. Eje de servicio dado por ambientes en relación. Y atreves de vacíos y masas relaciones espaciales como: Espacios vinculados por otro común, espacios contiguos y espacios paralelos

PLAZAS MAYORES - PLAZA MAYOR DE AREQUIPA Antecedentes y Ubicación Análisis Funcional HISTORIA UBICACIÓN Y GEOGRAFÍA EMPLAZAMIENTO 15 de agosto 1540 Fundado por García Manuel de Carvajal en el valle del río Chili 22 de Septiembre 1541 Se elevo a categoría de ciudad por real cédula fechada en Fuensalida 1844 Incendio y reconstrucción del centro cívico incluido la plaza Actualidad Sin cambios desde la ultima reconstrucción en 1844 Dirección en google maps: JF27+F6H, Arequipa 04001 Se generan caminos de forma radial a partir de la pileta central, y llega con caminos a los monumentos históricos al rededor de la plaza, dándolo el carácter de plaza mayor de Arequipa.

PLAZAS MAYORES - PLAZA MAYOR DE AREQUIPA

Situación o Estado de conservación Análisis Formal

La plaza presenta una regularidad geométrica, de gran tamaño. La pileta del centro cuenta con una escultura de un duendecillo con una trompeta, hechos en bronce. Según cuenta la leyenda podría tratarse de un solado del siglo XVI o de un mensajero oficial de confianza del inca Mayta Capac.

Elementos Compositivos resaltantes

Los elementos compositivos mas resaltantes es un primer lugar, el centro de ella donde se encuentra una escultura de broce por encima de una fuente, en segundo lugar son los grandes jardines y caminos a escala monumental, y tercero y ultimo los grandes hitos arquitectónicos de Arequipa.

El Comité del Patrimonio Mundial de la Unesco emitió diversas recomendaciones a la Municipalidad Provincial de Arequipa, para la conservación del patrimonio de la ciudad. La razón es que Arequipa es reconocida como Patrimonio Cultural de la Humanidad desde noviembre de 2000. Incluido la plaza mayor de Arequipa, siendo un lugar bien conservado.

Antecedentes y Ubicación

Se encuentra en Perú, en el corazón del departamento de Arequipa, provincia de Arequipa, distrito de Arequipa, en el jirón Sanfrancisco de la antigua calle Seminario.

INTRODUCCIÓN

POZO HOUSE es una de las residencias de la primera mitad del siglo 18 y desde entonces se ha convertido en un referente de la arquitectura de la época colonial. Así mismo es uno de los representativos del estilo barroco arequipeño Este es uno de los pocos edificios en Arequipa que permite a los visitantes tener una idea de cómo fueron las construcciones de la zona.

Análisis Funcional

Primer patio Primer patio Huerto

ELEVACIÓN

Se puede observar monogramas religiosos, adornos en las ventanas, un amplio frontón.

LA ARQUITECTURA CIVIL - TRISTAN
DEL POZO HOUSE
Figura 1. Mapa de ubicación de la Casa Tristandelpozo Fuente:Googlemaps.
1736 1738 1868 1738 1958 1985 1974 2000 2001
ARQUITECTONICA
EVOLUCIÒN

CORTE

Se visualiza las salas de exposiciones periódicas renovables de carácter arqueológico y artístico con techos abovedados.

Elementos Compositivos Resaltantes

VOLUMETRIA

Galerías

La portada de esta casona es rectangular, flanqueada con pilastras reunidas a maneras de nicho

Lineal Bóveda circular
Circulación

LOS CALLEJONES DE CUARTOS - CALLEJON DE PETATEROS HISTORIA

Antecedentes y Ubicación

UBICACIÓN Y GEOGRAFÍA

Denominado en 1613: “Callejón de los Sombrereros”. Del origen de la apertura de este callejón o pasaje no se tiene noticia histórica.

Finalmente tomó el nominativo de Pasaje Olaya, en homenaje al héroe patriota chorrillano José Olaya, ajusticiado en la época de la independencia por los realistas frente al entonces Callejón de Petateros.

Análisis Funcional

Actualidad

Se le conoce actualmente como Pasaje Olaya, el cual es un ligar muy turístico y recorrido por muchas personas.

El callejón está ubicado en barrios altos, uniendo la plaza Mayor de lima y el jirón Ucayali

EMPLAZAMIENTO
La vivienda colectiva construida para sectores de la población de bajos recursos
173, Lima 15001
Pje. de José Olaya

Análisis Formal

El Callejón está formado por un conjunto de oscuras y estrechas habitaciones alineadasen hileras opuestas a lo largo de un pasaje central que, al mismo tiempo, sirve como únicomedio de comunicación con la vía pública.

Análisis Estructural Elementos Compositivos Resaltantes

La estructura del callejón se observa como regular y centralizada

Algunos elementos con los que cuenta es la estatua de José Olaya en medio del pasaje, honor por el cual también apodó su nombre la calle.

Situación o Estado de Conservación

Ha sido un auténtico protagonista de muchos de los proyectos de renovación urbana gestados en Lima, desde mediados de los años XX.

Trascendencia y Valor arquitectónico

La existencia y evolución del callejón de Petateros o la falta de ella, en algunos casos fue decisiva en el desarrollo y consolidación del moderno centro de Lima de fines del siglo XIX e inicios del siglo XX.

EL BALCÓN- PALACIO ARZOBISPAL DE LIMA

Ubicación y Geografía

Este monumento se encuentra en el centro histórico de Lima, frente a la Plaza Mayor de Lima

Elementos Compositivos Resaltantes

Antepecho: compuesto de tableros cerrados o abiertos y también de alguna andana de balaustres o jarrillas. Celosías: varillas de cedro entrecruzadas.

Balaustres: unidos con arquillos, a veces seguía una faja estrecha de pequeños tableros sobre la que se asentaban los canecillos entablados que recibían la torta de barro de la cubierta

Análisis Formal Situación o Estado de Conservación

La plataforma del balcón era similar a la de los corredores y se formaba por cuartoncillos salientes del muro, a veces sobre canecillos, que soportaban una viga sobre la que se asentaban los soportes verticales de la cubierta.

La Municipalidad de Lima y del Rímac se unieron en una iniciativa para refaccionar, con el apoyo de vecinos de la zona y distintas empresas privadas, unos 400 balcones coloniales y republicanos.

Trascendencia y Valor Arquitectónico

Los balcones virreinales tienen una gran trascendencia en la historia peruana, un ejemplo muy conocido llamado El balcón de "cajón de madera" de origen árabe llega a Lima en el siglo XVI, convirtiéndose en uno de los elementos más característicos de la casa limeña, perdurando durante siglos en los diferentes estilos artísticos.

Arquitectura y Diseño del Perú Balconesdel Virreinato

Arquitectura en el periodo formativo

SEMANA 9

BALCONESDELVIRREINATOPALACIOARZOBISPALDELIMA

AntecedentesyUbicación

HISTORIA

Actualidad

La fachada del antiguo palacio fue demolida a finales del siglo XIX

La edificación actual fue inaugurada el 8 de diciembre de 1924

considerado como el primer ejemplo del estilo arquitectónico neocolonial que se desarrolló en Lima durante el siglo XX.

Actualmente se conoce como patrimonio nacional, siendo un destino turístico muy buscado.

UBICACIÓNYGEOGRAFÍA

EMPLAZAMIENTO

Este monumento se encuentra en el centro histórico de Lima, frente a la Plaza Mayor de Lima

ELBALCÓN-PALACIOARZOBISPALDELIMA

Análisis Formal

Los balcones de madera El Palacio del Arzobispo de Lima es uno de los edificios más bellos de toda la capital, la sede del Arzobispado de Lima ha abierto sus puertas muy recientemente a un museo religioso, donde se puede ver una gran colección de arte de los siglos XVI, XVII y XVIII. La característica especial de este edificio son los balcones de madera que fueron finamente esculpidos en su magnífica fachada barroca con este estilo de construcción y el carácter de otro lugar diferente del centro histórico. Muy recomendado visitar.

AnálisisEspacial

Balcones abiertos: sólo contaban con el antepecho sobre la plataforma pero carecían del cerramiento alzado entre el antepecho y la cubierta Su altura era de una vara y cuarta, su anchura como para que quepa una silla dentro y en algunos de ellos se alzaba un guarda polvos de madera para protección de la lluvia.

Balcones rasos: no sobresalen del muro de la fachada, el vano del muro se rasga hasta el suelo de la habitación pero no existe la plataforma exterior volada El antepecho cierra la parte baja de vano sin sobresalir en un volumen antepuesto a la fachada.

Balcones de cajón: surge como una derivación externa de los corredores volados de madera alzados en los patios limeños, variando el modo de cerramiento en todo el frente visible mas no en la estructura del piso, la cubierta y la de los soportes. Se le atribuía la misma anchura que los corredores volados o bien un ancho de una vara y cuarta.

AnálisisEstructural

Balcón del Palacio Arzobispal, en la esquina de Cruz de las gradas y Arzobispo. En 1535, Francisco Pizarro otorgó el terreno que actualmente ocupa el palacio, para casa del párroco de la ciudad. Antiguamente era una construcción muy sencilla, con balcones de cajón y modesta fachada. Es en 1924 que se inaugura el actual edificio, diseñado por Ricardo de Jaxa Malachowski y se dice está inspirado en el Palacio de Torre Tagle, siendo su estilo el neocolonial.

Balcones largos de cajón: inicia mente como galerías corridas abiertas, la introducción de los vidrios los transformó diferenciándolos en dos tipos, como balcones abiertos en las casas de múltiples usuarios y balcones de cajón corrido en las casas de un solo vecino.

Caracteristicas

La p ataforma del balcón era similar a la de los corredores y se formaba por cuartoncillos salientes del muro, a veces sobre canecillos, que soportaban una viga sobre la que se asentaban los soportes verticales de la cubierta.

La estructura básica del balcón limeño se mantuvo invariable a pesar de su evolución. E panel externo recubría la armadura estructural con el ensamblaje de trabajos de carpintería propios de la arquitectura virreinal peruana

PARTESBASICASDELAESTRUCTURADEL BALCONLIMEÑO. 1.CORNISA 2.REJILLA 3.CELOSIA 4.MIRILLA 5.MANDIL
Tipos de balcones

ELBALCÓN-PALACIOARZOBISPALDELIMA

Elementos compositivos resaltantes

Cuerpo interior formado por canes y ménsulas talladas

Friso calado y bajo Tableros o recuadros ensamblados en cruz y escuadras Ventanas compuestas por bastidores de celosías mudéjares Arrimadores forrados por azulejos

Situaciónoestadode conservación

La plataforma del balcón era similar a la de los corredores y se formaba por cuartoncillos salientes del muro, a veces sobre canecillos, que soportaban una viga sobre la que se asentaban los soportes verticales de la cubierta.

En la colonia republicana hay diferentes núcleos de nivel socioeconómicos esto genero el interés de la municipalidad. Programar y buscar vecinos de la zona con distintas empresas privadas que patrocinen diversos balcones en situación de peligro, contribuyendo de esta manera la prevención de esta herencia histórica

Trascendenciayvalorarquitectónico

Monumento histórico que deja la historia en la arquitectura, siendo una ventana a la historia que estos vivieron y son capaces de hacernos viajar a estas épocas virreinales llenas de ornamentos y tiempos trascendentes para el Perú.

Arquitectura y Diseño del Perú

HOSPITAL II DE MAYO

SEMANA 10
Arquitectura del siglo XIX en el Perú

ANTECEDENTES Y UBICACIÓN

HOSPITAL II DE MAYO HISTORIA

28 de febrero de 1875 empieza a funcionar el Hospital Nacional Dos de Mayo

Permaneció ocupado por las fuerzas chilenas durante la Guerra del Pacífico, desde el 20 de febrero de 1881 hasta el 29 de diciembre de 1883.

El 05 de Octubre de 1885, Daniel A. Carrión, pasó a la inmortalidad siendo estudiante del sexto año de Medicina en el hospital, al demostrar la Unidad Nosológica de la Fiebre de la Oroya y la Verruga Peruana

Actualmente es sede de la primera escuela de medicina nacional, la Facultad de Medicina de San Fernando y posteriormente todas las nuevas escuelas han solicitado campo clínico para la formación de los futuros profesionales médicos.

UBICACIÓN Y GEOGRAFÍA

EMPLAZAMIENTO

DIRECCIÓN:
"HISTORIA DE LA MEDICINA PERUANA", S/N, AV. MIGUEL GRAU
HTTP://HDOSDEMAYO GOB PE/PORTAL/RESENA HISTORICA/#:~:TEXT=LOS%20OR%C3%ADGENES%20DEL%20HOSPITAL%20NACIONAL,PRIMER%20HOSPITAL%20EN%20EL%20PER%C3%BA
PARQUE
13, LIMA 15003

HOSPITAL II DE MAYO

ANÁLISIS FUNCIONAL

El hospital 2 de mayo actualmente es el más antiguo del Perú fue inaugurado oficialmente el 28 de febrero de 1875 con la pompa digna de tan magno acontecimiento y con la asistencia del entonces presidente de la república don Manuel Prado.

ANÁLISIS FORMAL

El cuerpo que llamaremos octogonal en que está la capilla del gran sus surtidor y las puertas principales de las enfermeras del cuerpo posterior destinado a las hermanas de la caridad cocina caballeriza colchón ería cisterna y otras dependencias que que bien podrían denominarse domésticas

Planta cuadrada en el centro un patio jardín octogonal del cual pertenecen informa radial los pabellones para los enfermos siendo de un piso los antiguos y 3 pisos los modernos puede decirse que está dividido en 3 grandes cuerpos la entrada en cuyos lados encuentra 2 salones para los enfermeros de paga el salón de recibo y otras dependencias

Sistema estructural muros portantes muro adobe columna madera cielo Razo madera cobertura barro zócalo mármol cerco reja fierro ha acabado muro externo yeso sobre cimiento, ladrillo techo de madera piso exterior los z portada ladrillo y cal acabado muro externa yeso claraboya de Haití una linterna fierro.

El área del terreno es de 55.401.00 M2 Área de Techada 29.280.00 M2

Filiación cultural república, clásico esculturas 6 pilares

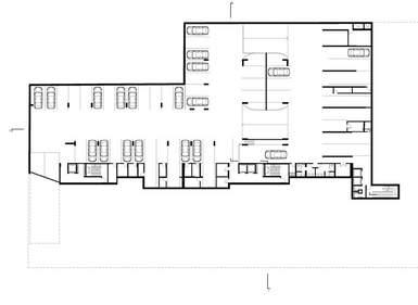
HOSPITAL II DE MAYO ANÁLISIS ESPACIAL ANÁLISIS ESTRUCTURAL A 1 - Banco de sangre 2 - Gastroenterología, Endoscopia 3 Centro Quirúrgico B 1,2 Hematología 3 Patología C 1 Diagnóstico por Imágenes 2,3 - Centro Quirúrgico D 1 - Modulo de TBC, Programa TBC/Asma E 1 - Emergencia y Cuidados Críticos 2 - Cuidados Críticos, Observación/Estar Médico F 1 - Comunidad Cristiana/Capilla G 1,2,3 - Gineco Obstetricia 4 Administración H 1,2,3,4 Hospitalización I 1,2,3,4 Hospitalización J 1 Consultorios Pediatría, Emergencias Pediátricas K 1- Hospitalización, Neumología en remodelación 2 - Pabellón Santa Rosa L 1 - Control Patrimonial M 1 - Seguridad, Almacén/Lavandería/Talleres N 1 - Servicios de Nutrición, Cocina/Comedores/Cuna Jardín O 1 - Unidad de Mantenimiento P 1 - Administración Central, Unidad de Hemodiálisis Q 1 - Hospitalización “SAN ANDRES” / “JUAN ARCE” R 1 - Hospitalización “SAN PEDRO” / “SANTA ANA” S 1 - Hospitalización “SANTO TORIBIO” / “VIRGEN DEL CARMEN” T 1 Consultorios Rehabilitación, Cirugía de Día, Odontología, Oftalmología, Otorrinolaringología, urología U 1 Dirección General, Logística, Economía V 1 Sede Docente Académica UNMSM Auditorio W 1 - Consulta externa: Reumatología, Medicina, Hematología, Endocrinología,

PLAZA SAN MARTIN

Arquitectura y Diseño del Perú Arquitectura del siglo XX en el Perú SEMANA 11

ANTECEDENTES Y UBICACIÓN

PLAZA SAN MARTIN HISTORIA

6 de julio de 1917

El proyecto para la plaza fue autorizado por la Municipalidad de Lima

27 de julio de 1921

La plaza San Martín fue inaugurada por el presidente de la república, Augusto Leguía

17 de agosto de 1960

Se realizó un evento en la Plaza San Martín donde se recuerda el 110 aniversario de la muerte de Don José de San Martín

27 de julio de 2021

Se celebraron los 100 años desde la inauguración de la plaza

UBICACIÓN Y GEOGRAFÍA

EMPLAZAMIENTO

DIRECCIÓN: PLAZA SAN MARTIN, AV. NICOLÁS DE PIÉROLA 994, LIMA 15001

PLAZA SAN MARTIN

ANÁLISIS FUNCIONAL ANÁLISIS

El 17 de junio de 1921 fue inaugurada la plaza San Martin con el motivo del centenario de la independencia del Perú. el trazado, ornamentación, mobiliario y jardinería de la plaza fue diseñado por Manuel piqueras Cotolí. las bancas exedras) y balaustradas fueron hechas de mármol y el piso de granito, también habían cuatro fuentes de agua, faroles de bronce y jardines de flores.

ARQUITECTURA

En primer plano se observan los jardines de la plaza, en segundo plano el monumento y al fondo los edificios que la conforman. la conformación de la plaza por parte de los edificios que a su alrededor se encuentran fue gradual. los primeros edificios de la plaza fueron el teatro colón y el edificio Giacoletti, construidos ambos en 1914 y en estilo art Nouveau.

FORMAL

La plaza guarda una unidad por medio de la uniformidad entre sus fachadas, correspondiendo al viejo tipo de plaza barroca que crea un marco arquitectónico coherente en torno al espacio central y su monumento. El estilo final de la mayoría de los edificios que rodean este espacio es neohispano o neocolonial dentro de una composición espacial clásica de raíz hispana y europea.

ENBELLECIMIENTO DEL ENTORNO

Inmediatamente después inaugurada la Plaza empezaron a proyectarse a su alrededor diversas obras de embellecimiento. Estas comprendían la construcción de edificios, cinemas, un hotel y portales de aspecto europeo. Los trabajos se fueron ejecutando paralelamente con el termino de las obras de ornamentación de la Plaza.

Ya a fines de los años 20 y durante los 30, el lugar iba adquiriendo su configuración definitiva. La Plaza ofrecía una imagen moderna además de una indudable presencia. Los numerosos cafés y restaurantes que se iban abriendo en ambos portales le conferían cierto aire parisino

VISTASDELASCALLES: 1y2Jr.Carabaya. 3y6Jr De la Un ón 4Jr Qui cayAv NicolásdePiérola 5Jr Ocoña

PLAZA SAN MARTIN

ANÁLISIS ESPACIAL

ANÁLISIS ESTRUCTURAL

Se representan la manifestación física de un periodo de búsqueda hacia una ciudad nueva, es el paso entre la ciudad antigua virreinal y la nueva etapa de ciudad moderna y con un carácter mucho más cosmopolita.

ANÁLISIS URBANISTICO

La estatua se yergue sobre un pedestal de granito, en forma de pirámide trunca, con un basamento escalonado. Posiblemente Benlliure se inspiró en una de sus obras anteriores, el monumento al General Martínez Campos (Jardines del Retiro de Madrid, 1907), sobre todo en cuanto al pedestal rocoso, una tipología que también tuvo un significativo antecedente en el monumento a Pedro el Grande, en San Petersburgo. Otros antecedentes se pueden encontrar en el monumento erigido en Mendoza, Argentina, y más aún con el pedestal diseñado y ornado por su compatriota Torcuato Tasso en Corrientes, así mismo en la Argentina, cuyo carácter pedregoso era más naturalista y menos figurativo que el diseñado por Benlliure.

PLAZA SAN MARTIN

ELEMENTOS COMPOSITIVOS

Fuentes circulares en las esquinas rodeadas de jardines sevillanos. Portal de Pumacahua. Bancas de mármol. Portal de Zela.

Estatua del libertador José de san Martin

TRASCENDENCIA Y

VALOR ARQUITECTÓNICO ESTADO DE CONSERVACIÓN

La Municipalidad de Lima inicio el mantenimiento integral de la Plaza San Martín, removiendo áreas verdes dañadas y baldeando pisos y mobiliario urbano, incluidas bancas, balaustradas, fuentes y piletas deterioradas y sucias.

Para fines de la década de 1920 e inicios de 1930 la plaza ya estaba casi totalmente configurada, ofreciendo una imagen moderna de la ciudad, además de su importancia por ser el punto de convergencia entre el Jirón de la Unión, la avenida La Colmena, la calle Belén y el paso hacia la Casona de San Marcos y la Universidad Católica, lo que permitió la proliferación de múltiples cafés, restaurantes y la librería “Plaisier de France”.

Comprende cuatro fuentes de agua.

16 bancas ornamentales.

32 bronces artísticos.

82 faroles ornamentales.

El mármol y los faroles son traídos de Italia.

Jorge Paurinotto, subgerente de Servicios a la Ciudad y Gestión Ambiental de la comuna explicóproceso de evaluación de daños de cuyas áreas verdes fueron arruinadas en un 90%.

La plaza San Martín es un espacio que desde siempre ha sido importante en la estructura física de Lima, distinguiéndose cuatro periodos:

Primero corresponde a la etapa prehispánica, cuando el área era el cruce de importantes caminos de comunicación. Segundo periodo corresponde a la creación del Monasterio de la Encarnación y el convento hospital de San Juan de Dios. Tercer periodo corresponde a la gestión del alcalde Helguera, quien manifiesta que el cruce de vías del ferrocarril. Cuarto periodo, que corresponde a la creación de la plaza en sí.

21 de septiembre 2017

Arquitectura

UNIDAD VECINAL RÍMAC

SEMANA 13
y Diseño del Perú Arquitectura peruana en lasegunda mitad del siglo XX

Antecedentes y Ubicación

UNIDAD VECINAL RÍMAC HISTORIA

1937

Se debaten muchas ideas urbanísticas para Lima fomentadas por el propio Belaunde

1946

Jose Luis Bustamante creó la Corporación Nacional de Vivienda que impulsó la contrucción de siete unidades vecinales

1952-1954 Durante el gobierno de Manuel Odría, se inicia la construcción de la Unidad Vecinal Rímac el cual no culmina a su totalidad

1963-1968

Enrique Ciriani interviene en el desarrollo de nuevos edificios de viviendas que complementen la zona que había sido construida

UBICACIÓN Y GEOGRAFÍA EMPLAZAMIENTO

Se emplaza en el Cercado de Lima

UNIDAD VECINAL RÍMAC

Análisis FUNCIONAL Análisis formal

Todas estas construcciones disponían de grandes áreas verdes, son de bloques de viviendas con espacios comunes, que privilegian :además del tránsito peatonal antes que de el vehiculares dentro de las unidades.

La idea habría estado inspirada en diseños urbanísticos ingleses de "ciudades jardín", por supuesto que traslada dos a la versión peruana de edificios que contaban con un máximo de cuatro pisos de un cinco.

El concepto se trataba de complejos habitacionales autónomos; por ello, contaban con mercado, médica posta, comisaría, centro cívico o comunitaria locales, escuelas primarias, cine-teatro, cancha de fútbol, piscina y una iglesia.

Fue durante el gobierno del Arq

Fernando Belaunde(1963-1968),que el Arq. enrique Ciriani interviene en el desarrollo de nuevos edificios de viviendas que complementen los alrededores que había sido construida, siguiendo el plan de urbano propuesto por Agurto.

arquitectura

zonificación

Acceso vehicular Tipologías

Lotes destinados para la construcción de viviendas unifamiliares; estos cuenta con2 a 4 pisos.

El diseño inicial era de 2pisos,constituido por el área social en el primer nivel y el área privada (dormitorios)en el segundo.

Actualmente los chalets tradicionales, han sido desplazados por nuevas construcciones las cuales pueden llegar a los 4pisos, y han pasado a ser multifamiliares tipologia-distribución

plan ideal plan actual

UNIDAD VECINAL RÍMAC

análisis espacial análisis estructural

PLAN IDEAL

El plan ideal era generar edificios altos que puedan albergar ciento de familias, dándoles mayor uso a los suelos para los verdes y recreación, tenía caminos dinámicos, cocheras al aire libre y varios ingresos, se puede evidenciar el orden que esta unidad podría ofrecer aquí todos los equipamientos que éste tenía.

PLAN ACTUAL

En la actualidad se puede evidenciar que casi el 50% de la unidad ha sido pasada a manzaneo, retirando varias áreas verdes que con las que contaban, Esta es la parte esencial que tenía la mayoría de las unidades habilitaciones urbanas en ese entonces, y que ahora habían pasado a ser terrenos rectangulares y típicos. Promueve una calidad de vida diferente a sus habitantes.

El edificio cuenta con pilares en el primer piso, dando prioridad a los peatones de que puedan transitar debajo de ellos y no romper con la circulación urbana. en los siguientes niveles se puede evidenciar subir los mismos pilares y que cuenta con vigas peraltadas. es una típica construcción de albañilería confinada y a porticada.

UNIDAD VECINAL RÍMAC

Elementos compositivos

Vistas de ingresos a servicios comunales

Vistas de edificios multifamiliares.

Trascendencia y valor arquitectónico Estado de conservación

Entre 1963 y 1968, durante, el arquitecto Enrique Ciriani, interviene en este proyecto, desarrollando nuevos edificios y con una infraestructura nueva para aquella época que iba a complementar el plan urbano original propuesto por Agurto.

La unidad vecinal del Rímac es un conjunto habitacional moderno de la creación de Arq. Santiago Agurto. Se encuentran cerca al centro histórico de lima y al margen derecho de rio Rímac, fue parte de la construcción de varios conjuntos diseñados para la clase media y con una ubicación céntrica acorde al crecimiento de Lima. Cuenta con una geometría sencilla en una especie de cuadrado perimetral y construcciones poligonales.

Amplios espacios públicos y aéreas verdes

Perspectivas de elevaciones sobre pilotes.

Trabajadores de la JUNPUR supervisados por el Administrador César Santillana en plena faena de arborización y cuidado de las áreas verdes.

Arquitectura

del

SEMANA 14
y Diseño
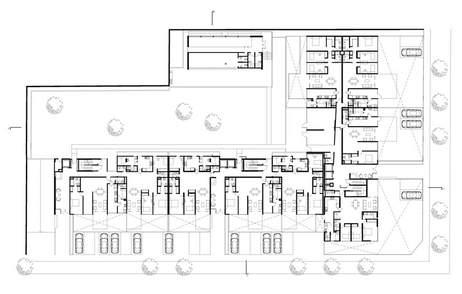
Perú Arquitectura posmoderna y contemporánea en el Perú –Infraestructura urbana VIVIENDA COLECTIVA: conjunto residencial cipreses

Antecedentes y Ubicación

VIVIENDA COLECTIVA HISTORIA

A finales del siglo XIX

Se propiciaron el desarrollo de las viviendas colectivas, que responden a la gran demanda de viviendas en suelo urbano.

Mediados siglo XX Surgen las primeras viviendas colectivas en Perú 2013 Construcción del conjunto residcencial LOS CIPRESES

UBICACIÓN Y GEOGRAFÍA EMPLAZAMIENTO

El conjunto residencial se desarrolla en el terreno ubicado en la esquina de la avenida Javier Prado con la calle Los Cipreses, en San Isidro, Lima.

VIVIENDA COLECTIVA

Análisis FUNCIONAL Análisis formal

Esta vivienda esta compuesta por tres torres (dos de 15 pisos con tres y cinco departamentos por planta respectivamente y una de 5 pisos con tres departamentos por planta) que en conjunto suman 133 departamentos, el proyecto aprovecha las característ cas en esquina del terreno, logrando que todos los ambientes tengan vista a la calle o hac a el jardín interior.

Para preservar el perfil urbano, al tener por normativa alturas variables en el lote se prolongó la fachada del volumen de 5 pisos sobre la torre contigua de 15 con una solución basada en un lenguaje arquitectónico de mayor densidad que funciona como un zócalo a escala urbana

La imagen del edificio hacia la Av. Jav er Prado tiene una mayor presencia de vanos ordenados y aleros que enmarcan los cuerpos de cada torre Hacia el interior se plantea un lenguaje más informal basado en el desplazam ento horizontal de los vanos creando un ritmo acentuado por diversos tonos de color.

arquitectura

Las viviendas colectivas, especialmente en las grandes ciudades, parecerían ser una escala pertinente para ensayar la dimensión de lo nuestro. En cambio, la gran parte de la población vive apilada, cuando no en condiciones de hacinamiento. Además, el espacio doméstico está enfrascado, aislado, relegado a la dimensión de lo privado, fuera de los ojos de lo público.

COMPOSICION

Presenta ritmo en la elevación, además de ello la volumetría se da por dos prismas cuadrangulares ensambladas, uno horizontal y el otro verticalmente corte elevacion elevacion

Planta Primera Planta Baja Planta Sótano AREA VERDE LOS BLOQUES ESTAN EN FORMA DE UNA L ADEMAS DE ELLO TENIENDO UNA CIRCULACION APROPIADA

VIVIENDA COLECTIVA

análisis espacial análisis estructural

Conformación de bloque en L, la volumetría se da por dos primas cuadrangulares ensamblados, uno horizontal y el otro vertical. Se generan tres bloques con sus propia circulación vertical y su ingreso. Además, de ingresos a el patio interno para cada bloque y áreas comunes.

El edificio Los Cipreses es un proyecto que comprende tres torres de departamentos. Cada torre estará compuesta por quince pisos, Todas las torres se construyeren en el sistema constructivo a base de placas. Para lograr cimientos fuertes y seguros, Sika participó con productos de sus líneas de impermeabilizantes, desmoldantes, aditivos y curadores bajo la asesoría de un grupo de técnicos destinados a asistir al cliente en los procesos de aplicación y planeamiento.

VIVIENDA COLECTIVA

Elementos compositivos

presencia de vanos ordenados y aleros que enmarcan los cuerpos de cada torre. presenta ritmo en la elevación. Al encontrarse en una esquina, los departamentos de las torres aprovechan todas las visuales hacia la calle y el jardín interior.

material noble preparadas por proyectistas con alma inmobiliaria, la respuesta tenía que venir de la vereda del frente. Como innovación

Trascendencia y valor arquitectónico Estado de conservación

expresión arquitectónica que tenía que ver con una alternativa individualizada, correspondiente a la época actual. Una suerte de fragmentación, modulación y pixelamiento de los frentes a mano de sus vanos, alejándose del total cerramiento y también de la completa apertura.

Compuesto por tres torres. dos de 15 pisos con tres y cinco departamentos por planta. la volumetrías da por dos prismas cuadrangulares ensamblados uno horizontal y el otro vertical

Se plantea un lenguaje más informal basado en el desplazamiento horizontal de los vanos creando un ritmo acentuado por diversos tonos de color.

Arquitectura y Diseño del Perú

COLISEO NACIONAL

Arquitectura posmoderna y contemporánea en el Perú –Infraestructura urbana.

SEMANA 15

ANTECEDENTES Y UBICACIÓN

COLISEO NACIONAL HISTORIA

1951

Se alentó la construcción de un nuevo estadio que reemplace al pequeño "Nacional"

27 de octubre de 1952 Inauguración del nuevo estadio nacional

24 de mayo de 1964

Se tuvo que reducir la capacidad del Estadio Nacional de 53 000 a 45 000 espectadores

24 de julio de 2011

El Estadio Nacional fue reinaugurado con un partido amistoso Perú-España

UBICACIÓN Y GEOGRAFÍA

EMPLAZAMIENTO

DIRECCIÓN: C. JOSÉ DÍAZ S/N, LIMA 15046

COLISEO NACIONAL

ANÁLISIS FUNCIONAL ANÁLISIS FORMAL

El Estadio Nacional de Lima, Perú, es el principal escenario deportivo del fútbol en el Perú, es un referente urbano por su ubicación en el centro de la ciudad y lo es más como el lugar donde se dieron nuestros pocos, pero importantes logros en el deporte más popular del mundo.

Su remodelación y ampliación ha otorgado a la ciudad de Lima, en crecimiento y desarrollo, un hito, no sólo por su gran volumen y su imagen moderna los que destacan en el continuo urbano, sino y sobre todo por la importancia que el ciudadano común le da al fútbol.

ARQUITECTURA

Esta estructura se levanta hasta el octavo piso y sobre ella se apoyan los tijerales de acero que conforman la cobertura del estadio.

De esta estructura nacen las vigas en voladizo que soportan los palcos del 6to.

7mo. Y 8vo nivel. Al interior de la nueva fachada, entre los dos anillos estructurales Se resuelven todas las nuevas escaleras de escape para palcos y tribunas, así como los ascensores, corredores y plataformas.

La fachada está anclada a la estructura principal de concreto que rodea el Estadio. Las planchas de aluminio perforadas, sujetas a la estructura, son de color natural (plateado) con algunas de color rojo como acento., En la parte superior de la fachada, separada por un vacío, está la cobertura de membrana geosintética, que es sostenida por una estructura armada sobre tijerales metálicos. La cobertura como elemento formal corona el edificio y refuerza la unidad del conjunto.

COLISEO NACIONAL

ANÁLISIS ESPACIAL ANÁLISIS ESTRUCTURAL

COLISEO NACIONAL

ELEMENTOS COMPOSITIVOS

torre miguel dasso torre principal se daría en concesión Palcos vip Reflectores Cabinas para periodistas palcos techos en todas las tribunas. iluminación nueva, luces adicionales. tablero electrónico ubicado en un espacio estratégico para poder ser visto. laureles deportivos iluminación especial ubicado detrás como un elemento principal . Sistema de irrigación pista atlética

TRASCENDENCIA Y VALOR ARQUITECTÓNICO ESTADO DE CONSERVACIÓN

ETAPAS DEL REMODELAMIENTO:

PRIMERA(CUMPLIDA)

Bajar nivel a un metro de profundidad, hacer 3 hileras en tribuna norte, oriente y sur 5 hileras en occidente.

SEGUNDA(EN PROCEESO)

Amplia en 4 metros del perímetro para colaborar 3 niveles de palcos en el perímetro del estadio. Techado del perímetro con laminas metálicas de 35 metros de ancho.

TERCERA(FATLA)

Estacionamiento subterráneos ubicados en la explanada sur 2 niveles del sótano, iluminación y colocación de elementos decorativos

Su propuesta del arquitecto JOSE BETIN busca una imagen moderna e impactante para el estadio nacional pero respetando los elementos representativos de la estructura original, la torre y los laureles deportivos. la capacidad no variara significativamente

ESTADO ACTUAL INAGURACION: 1952 AFORO: 45 000 PERSONAS

TABLERO PALCOS SISTEMA DE IRRIGACION

El estadio representa una respuesta social de nuestro diferente gobiernos a los largo del siglo xx ya que al no llegar a proyectarlo como el primer estadio nacional se termino de edificar bajo una mirada totalmente diferente en este proceso de investigación nos encargaremos de reinterpretar los cambios que ah sufrido a lo largo de los años para poder concretarse

CONCLUCIONES PARA FINALIZAR SOBRE LA ARQUITECTURA EN EL PERÚ PODEMOS APRECIAR COMO ES LA DIVERSIDAD CULTURAL Y DE QUE MANERA EL PERÚ BRINDO UN APORTE A LA HISTORIA ATREVES DE SU FAMOSAS EDIFICACIONES, LAS CUALES A SU VEZ ALBERGARON CULTURAS QUE SERIAN CALVE PARA EL DESARROLLO Y FORMA DE VIDA DE TODA UNA CIVILIZACIÓN. EN ESTOS ESTILOS VISTOS PODEMOS CONOCER UN POCO MAS DE LOS ACONTECIMIENTOS QUE SURGIERON. GRACIAS A ELLO AHORA SON PARTE DE NUESTRA CULTURA Y MONUMENTOS NACIONALES LOGRAS OBSERVAR CARACTERÍSTICAS Y COMPOSICIONES. EN EL SIGLO XX NOS DEJAN GRANDES OBRAS ARQUITECTÓNICAS DE LA CUAL NOS SENTIMOS ORGULLOSOS DE PODER TENERLOS Y OBSERVARLOS

SEMANA 1

https://issuu.com/dlizana/docs/arquitectura republicana siglo xix-entrega final https://pdfcoffee.com/arquitectura republicana modificado 2 pdf free.html

SEMANA 2

https://andina.pe/agencia/noticia-sechin-conoce-cultura-anterior-a-chavin-marco-un-hito-la-arqueologia-peruana-757358.aspx

https://peru.info/es-pe/talento/noticias/6/24/sechin--conoce-la-cultura-previa-a-chavin-que-marco-un-hito-en-la-arqueologia-peruana https://www.arqueologiadelperu.com.ar/cerrosechin.htm https://wikisabio.com/el-templo-del-cerro-sechin/ http://www.perutoptours.com/index02ansechin.html

SEMANA 3

https://es.wikipedia.org/wiki/Cultura moche

http://www.scielo.org.co/scielo.php?script=sci arttext&pid=S1657 97632007000200007

https://www.deperu.com/arqueologia/frizos.html

https://andina.pe/agencia/noticia declaran patrimonio cultural a nueve bienes muebles las culturas nasca y moche 904251.aspx

https://journals.openedition.org/bifea/6327

SEMANA 4

ANÁLISIS ARQUITECTÓNICO CIUDADELA DE CHAN CHAN. (2022, 30 marzo). Issuu. Recuperado 14 de septiembre de 2022, de https://issuu.com/atempo.architects/docs/formato de 1 https://www.arqueologiadelperu.com.ar/chanchan.htm

https://www.researchgate.net/figure/Figura 3 Taller orfebre ubicado en el complejo 3 barrio al sur de la ciudadela fig11 284163877 https://m.megaconstrucciones.net/?construccion=chan-chan#&ui-state=dialog https://www.arqueologiadelperu.com.ar/chanchan.htm https://chanchan.gob.pe/labores-de-conservacion-de-chan-chan-permitiran-abrir-nuevos-y-atractivos-espacios-turisticos/

SEMANA 5

ARQUEOLOGÍA Y ETNOHISTORIA EN VILCASHUAMÁN. (2002, junio). PUCP. https://revistas.pucp.edu.pe/index.php/boletindearqueologia/article/download/1846/1782/ https://www.arqueologiadelperu.com.ar/vilcashuaman.htm

https://www.arqueologiadelperu.com.ar/vilcashuaman.htm

https://ilam.org/index.php/noticias/novedades del patrimonio/item/329 complejo arqueologico de vilcashuaman fue declarado patrimonio cultural de peru https://www.denomades.com/blog/vilcashuaman-inca-ayacucho/ https://journals.openedition.org/bifea/1635

https://qhapaqnan.cultura.pe/sites/default/files/articulos/Vilcas.pdf

BIBLIOGRAFíA
Tavera, L. (s. f.) Chan Chan. Lizardo Tavera. Recuperado 14 de septiembre de 2022, de https://www.arqueologiadelperu.com.ar/chanchan.htm

https://es.wikipedia.org/wiki/Catedral del Cuzco https://issuu.com/fiorella1255/docs/final3 http://bvpad.indeci.gob.pe/doc/pdf/esp/doc2188/doc2188 contenido pdf http://apuntesdearquitecturadigital.blogspot.com/2016/07/infografia-academica-la-catedral-del.html

SEMANA 7

https://www.unia.es/es/publicaciones-libre-descarga/item/los-balcones-de-lima-y-su-conservacion https://peru21.pe/lima/lanzan campana adopta balcon 43624 noticia/#:~:text=La%20alcaldesa%20de%20Lima%2C%20Susana,republicanos%20en%20peligro%20de%20colapso.dsnhfinhdxc0ibv dfsckbidncpigfv dsnhpbvnjf´pd http://repositorio.unsa.edu.pe/handle/UNSA/6961

http://www.arqandina.com/anuario/pages/anuario05/pages/30.htm#

SEMANA 9

https://www.bbva.com/es/tristan-del-pozo-la-casa-del-arte-arequipa/ https://www.slideshare.net/maisaq/vivienda colonial en la sierra. https://www.slideshare.net/CarmenRivera12/casa-tristan-del-pozo https://issuu.com/ddc-arequipa/docs/arequipa patrimonio cultural de la https://www.unia.es/es/publicaciones libre descarga/item/los balcones de lima y su conservacion https://peru21.pe/lima/lanzan-campana-adopta-balcon-43624-noticia/#:~:text=La%20alcaldesa%20de%20Lima%2C%20Susana,republicanos%20en%20peligro%20de%20colapso.dsnhfinhdxc0ibv

SEMANA 10

dfsckbidncpigfv dsnhpbvnjf´pd http://repositorio.unsa.edu.pe/handle/UNSA/6961 http://www.arqandina.com/anuario/pages/anuario05/pages/30.htm# https://www.bbva.com/es/tristan del pozo la casa del arte arequipa/ https://www.slideshare.net/maisaq/vivienda-colonial-en-la-sierra. https://www.slideshare.net/CarmenRivera12/casa-tristan-del-pozo https://issuu.com/ddc arequipa/docs/arequipa patrimonio cultural de la http://sigrid.cenepred.gob.pe/docs/PARA%20PUBLICAR/CISMID/ESTUDIO%20DE%20VULNERABILIDAD%20SISMICA%20ESTRUCTURAL,%20NO%20ESTRUCTURAL%20Y%20FUNCIONAL%20HOSPITAL%20NACIONAL%20DOS%20DE%20MAYO,%20E L%20CERCADO%20DE%20LIMA.PDF https://es.scribd.com/presentation/393329669/Hospital 2 de Mayo

BIBLIOGRAFíA
SEMANA 6

https://ciudadmas.com/reflexiones/importancia urbana del espacio de la plaza san martin para la ciudad de lima/ https://www.munlima.gob.pe/2017/09/21/mml-inicia-restauracion-de-areas-verdes-e-infraestructura-urbana-en-la-plaza-san-martin/ https://es scribd.com/document/122512951/Plaza San Martin

https://www.academia.edu/33427485/PLAZA SAN MARTIN

https://es wikipedia.org/wiki/Monumento a San Mart%C3%ADn (Lima) https://www.urbipedia.org/hoja/Plaza San Mart%C3%ADn (Lima)

https://limacultural8.wixsite.com/website/post/unidad-vecinal-del-r%C3%ADmac http://itinerarioarquitectonico.blogspot.com/2013/02/unidad vecinal del rimac 25.html https://cammp.ulima.edu.pe/edificios/unidad-vecinal-rimac-i-etapa/ https://issuu.com/mafepoma/docs/portafolioa4 1022 grupo1 copy https://www.facebook.com/102097941668695/posts/107004397844716/

https://www.archdaily.pe/pe/02-256837/conjunto-residencial-cipreses-juan-carlos-doblado-nomena-arquitectos?ad medium=gallery https://www.studocu.com/pe/document/universidad-privada-de-tacna/arquitectura/ficha-tecnica-ejemplos-confiables/10957938 http://infosaleman.blogspot.com/2010/ https://www.skyscrapercity.com/threads/cat%C3%A1logo general de edificios peruanos.260596/page 18 https://www.behance.net/gallery/34609409/Infografia-del-Estadio-Nacional https://www.skyscrapercity.com/threads/lima estadio nacional del per%C3%BA 42 377.1033553/page 14 https://www.skyscrapercity.com/threads/estadios-de-peru.1532333/ https://www.google.com/imgres?imgurl=http%3A%2F%2F4.bp.blogspot.com%2F y7boTOy

BIBLIOGRAFíA
uAo%2FTGGF3Gr4XbI%2FAAAAAAAAAEM%2FrlIb2feSfIg%2Fs1600%2Finfografia.jpg&imgrefurl=https%3A%2F%2Fwww.skyscrapercity.com%2Fthreads%2Flima-estadio-nacional-del-per%25C3%25BA-42-377.1033553%2Fpage14&tbnid=i5DlQQY7c2IaiM&vet=10CAIQxiAoAGoXChMIwOis2NjR-wIVAAAAAB0AAAAAEAw..i&docid=uFiQo2ILxdGOIM&w=1575&h=1152&itg=1&q=panel%20del%20estadio%20nacional%20del%20peru&ved=0CAIQxiAoAGoXChMIwOis2NjRwIVAAAAAB0AAAAAEAw#imgrc=w1k4Z8yBAfk3RM&imgdii=MhlGg g58fN8UM SEMANA 11
13
SEMANA 15
SEMANA
SEMANA 14

Turn static files into dynamic content formats.

Create a flipbook
Issuu converts static files into: digital portfolios, online yearbooks, online catalogs, digital photo albums and more. Sign up and create your flipbook.