DESAFIO ALACERO PARA ESTUDIANTES DE ARQUITECTURA 2022

Page 1


La problemática que se vve en este mercado es sus espacos, debido a que cada cubículo donde se produce la venta de mercaderia es muy reducdo, puesto que no se utiliza una gran cantidad de espacio dentro de la zona de estudio

Soución: nuestra soucón a este mercado es otorgarle el diseño de la arquitectura modular con ello el objetvo sera aumentar un pso más para que os moradores o vendedores de esta zona puedan vender sus productos de forma cómoda TUNGURAHUA

ECUADOR UBICACIÓN

HUACHI BELÉN

AXONOMETRÍA

PLANTAS Y FACHADAS

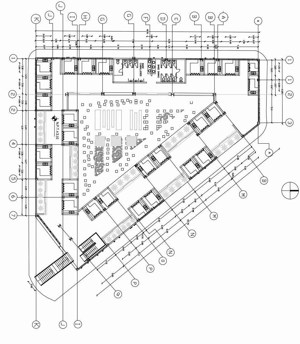
PLANTA TERCER NIVEL

AMBIENTES INTERIORES

PERSPECTIVA DEL PROYECTO TERMINADO

MAPA ACTUAL DEL LUGAR CONTEXTO DEL PROYECTO
PROPUESTA
FACHADA FRONTAL
FACHADA LATERAL
RENDERS EXTERIOR

ESTRUCTURA DE ACERO DEB DO A QUE SUS COLUMNAS ESTAN

HECHOS DE ESTE MATER AL CON UNA D MENS ÓN DE 40 40 CM

CON EL FIN DE GARANT ZAR UNA ESTRUCTURA

FUERTE Y DE CAL DAD

CR STAL TEMPLADO DENTRO DE ESTA ABERTURA

CON D MENSION DE 1 87 * 2 57 M CON EL F N DE AYUDAR A QUE SE MANTENGA LA LUZ NATURAL

DENTRO DEL MERCADO

QU EBRA SOLES EN LAS FACHADAS PARA CONTROLAR LA NS DENC A SOLAR Y CON ELLO AYUDAR A QUE NO ENTRE LA LUZ DE FORMA D RECTA

LAM NAS DE ACERO CORTE PERFORADO CON UNA SEPARAC ÓN DE 0 20 CM Y CON UN ESPESOR DE 3

CM AL GUAL QUE POSEE UN ANGULO DE 45 GRADOS

CON EL F N DE TRANSM T R UNA SENSAC ÓN DE TRANSPARENC A EN EL NTER OR DE LA ED F C ÓN Y PROVOCAR JUEGOS DE SOMBRA DENTRO DEL M SMO

ESCALERAS DE MATER AL METAL CO NDUSTR AL ZADO DEB DO A QUE LA RES STENC A DE SU MATER AL ES EL ADECUADO YA QUE SE ENCUENTRA DE MANERA EXTERNA AL MERCADO

CORTE D-+D
CORTE C-C
SCREEN PANEL
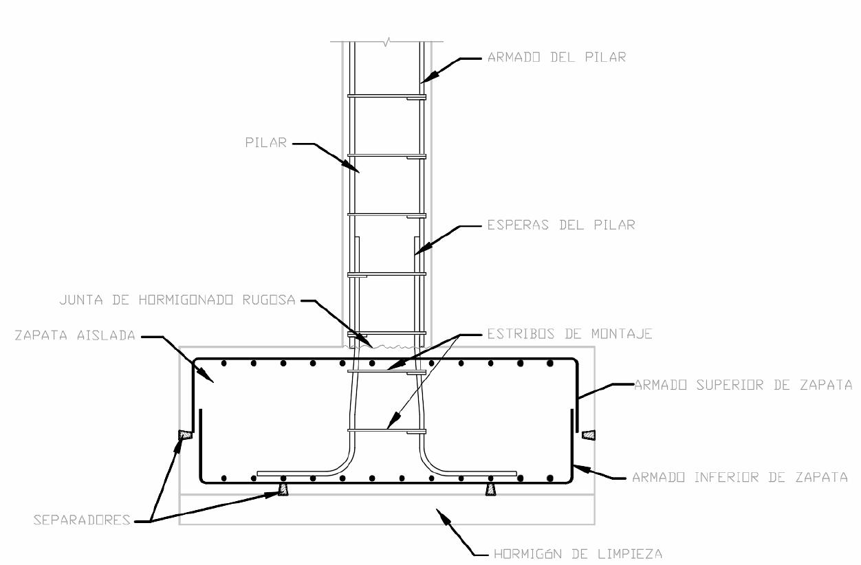
DETALLE ZAPATA

Turn static files into dynamic content formats.

Create a flipbook
Issuu converts static files into: digital portfolios, online yearbooks, online catalogs, digital photo albums and more. Sign up and create your flipbook.