Portfolio - Jan Erik Svendsen

Page 1

PORTFOLIO

JAN ERIK SVENDSEN

byromsregistrering - aquarelle

UTVALGTE ARBEIDER

dokumentformat - A4 dobbelspread

2018-2024

INTRODUKSJON

Portfolioen inneholder et utdrag fra utvalgte prosjekter gjennom studieløpet mitt ved NTNU. De nyligste prosjektene presenteres først, og utdragene er valgt for å illustrere teknikker og metoder jeg ofte anvender.

2

INNHOLD

CV

Diplomoppgave | AAR4990 Masteroppgave i Arkitektur

10. semester

Ulletun | AAR4510 Boligprosjektering og Byplanlegging

8. semester - eksamensprosjekt

Rendringer | AAR4810 Arkitekturvisualisering

9. semester - eksamensprosjekt

Maridalsveien 48 | AAR4620 Ark.prosjektering m. Lys og Farge

9. semester - eksamensprosjekt

Urban produksjon | AAR4466 Store Bygninger

6. semester - eksamensprosjekt

16-25

32-39

40-49

3
side
side
4-5 side 6-15
side 26-31 side
side

Jan Erik Svendsen 25.04.1997

E-post: jesvends@gmail.com

Telefon: +47 410 06 967

Utdanning

2018 - 2024

NTNU, Trondheim

Master i arkitektur, 5-årig

2017-2018

2013-2016

NTNU, Trondheim

Datateknologi masterprogram sivilingeniør

Tangen VGS, Kristiansand

Studiespesialisering med formgivingsfag

Relevant erfaring

2022-2023

2021-2022

Sommer 2021

Vår 2020

Høst 2019

Sommer 2016

2015-2021

Praktikant | Seil Arkitekter AS Kristiansand, Norge

Studentassistent | Utvikling av digitale kommunikasjonsplatformer ved

Institutt for Arkitektur og Planlegging, NTNU

Trondheim, Norge

Byggeplassarbeid | Thomas Oscar Ugland AS

Kristiansand, Norge

Læringsassistent | Arkitektur 2 ved NTNU

Trondheim, Norge

Læringsassistent | Arkitektur 1 ved NTNU

Trondheim, Norge

Ambassadør og samarbeidspartner | Trigger AS

Oslo, Norge

Kunstnerassistent - Oljemaleri og trykk | Hos Frank Brunner

Kristiansand, Norge

4

Programmer

God kjennskap: Litt kjennskap: Autocad, Archicad, Illustrator, InDesign, Photoshop, Revit, Rhino, Enscape, D5 Render, Premiere Pro

Grasshopper (m. ladybug tools++), Twinmotion

Språk

Norsk

Engelsk

Svensk

Dansk

Morsmål

Flytende

God kjennskap

God kjennskap

Andre interesser og erfaringer

Ved siden av studiet har jeg et mangfold av interesser jeg liker å bruke tiden min på. I dag prioriteres ofte kaffebrygging, klatring, buldring, snowboard og når tiden når til litt

frihåndstegning eller maling. Ellers verdsettes å reise rundt for å oppleve nye steder og kulturer.

Annen erfaring og studier:

2019 - 2020 2016-2017

Frivillig medarbeider i Trikkestallen Skatepark, Trondheim

Bidrag til vedlikeholding, drift og bygging i hallen.

X-sport, Hedmarktoppen Folkehøyskole, Hamar

Mulighet til å dedikere tid til hobby, sosiale bekjentskap, reising og møter med mangfoldige kulturer.

5

DEN POSTINDUSTRIELLE SKJEBNE

hvordan omforme industrien

Diplomoppgave 10. semester ved NTNU

Sted: Trondheim, Norge

Varighet: 20 uker

Veiledere: Mari Synnøve Gjertsen

Denne oppgaven er en romlig og programmatisk undersøkelse av hvordan industrien passer inn i vårt bygde miljø. Industrien presses ut av sentrum med følger som påvirker manges hverdag, miljøet og mye mer, og dermed stiller oppgaven spørsmål ved hvordan eksisterende industriområder kan tilpasses for en bevaring av sentrumsnær produksjon i områder for blandet bruk. Tematikken undersøkes i en case rundt tomten til det nedlagte bryggeriet til Christianssands Bryggeri (CB) i Kristiansand.

6

Håndtegnet aksonometri av nye bryggeritomten

10

Forrige side:

Render av produksjonsområdene i Limtrehallen

Denne siden:

Fasaderender av tilbygg ved Limtrehallen

11

Scale lines and symbols

1m 5m 10m 0.1m 0.5m 1m 2m 10m 20m 1:250
Fasade Øst M 1 til 200

Scale lines and symbols

1m 5m 10m 0.1m 0.5m 1m 2m 10m 20m 1:250
Fasade Sør M 1 til 200

ULLETUN

nybygg i historisk kontekst

Eksamensprosjekt 8. semester ved NTNU

Sted: Trondheim, Norge

Varighet: 8 uker

Veiledere: Stuart Mcleod Salway Dickson, Kerstin Höger og Amund Klæbo Lyngstad

Prosjektet var del av et kombinert masterkurs innen bolig og byplanlegging med fokus på å jobbe både i stor og liten skala. Tematikken var koblet på Oslotriennalen “Mission Neighbourhood” hvor vi først i grupper laget bokkapitler om nabolagene vi jobbet i, for så å jobbe videre individuelt eller i par på prosjekteringsoppgaver.

Gruppen min jobbet med den historiske Ullevål Hageby om å lage en utvidelse på grensen mot Ullevål Sykehus i sørøst. Vi arbeidet felles om bokkapittelet og individuelt videre i prosjekteringen. Tomten var spennende og utfordrende med bratt terreng og mye vegetasjon. Mest interessant var møtet mellom hagebyen med dens sterke karakter i nord mot den større typologien til sykehuset i sør.

16
17
Denne siden: Modellfotokollasj
18 A
19 Master plan A 20m 100m 200m 10m 100m 50m 1 til 1000 1m 3m 5m
20

1m 3m 5m

21 5m 10m 20m 1 til 200 5m 10m 20m 10 100 0 1 til 1000
Cluster plan
22 GSEducationalVersionGSEducationalVersio
23 Dwelling
1m 3m 5m 10m 1m 10m 3m 5m 5m 10m 20m 10 100 50 1 til 1000 1m 3m 5m
plans
24
25 Section B-B 1m 3m 5m 10m 1m 10m 3m 5m 5m 10m 20m 10 100 50 1 til 1000
1m 3m 5m

ARKITEKTURVISUALISERING

stemning og uttrykk

Emne om Arkitekturvisualisering

Sted: Trondheim, Norge

Varighet: 12 uker

Veiledere: Knut Ramstad

I 9. semester tok jeg kurset AAR4810 Arkitekturvisualisering der fokuset var å lære om og produsere egne rendringer med valgfri programvare og prosjekt.

For å lære mest mulig om rendring og modellering fokuserte jeg på et referanseprosjekt av Oliver Leech Architects kalt “Butterfly House”, men plassert i et naturlig landskap. Alt ble modellert i Rhino, rendret i D5 Render og bearbeidet i Photoshop.

26
27
Denne siden: Eksteriørrender
28
29
30
31

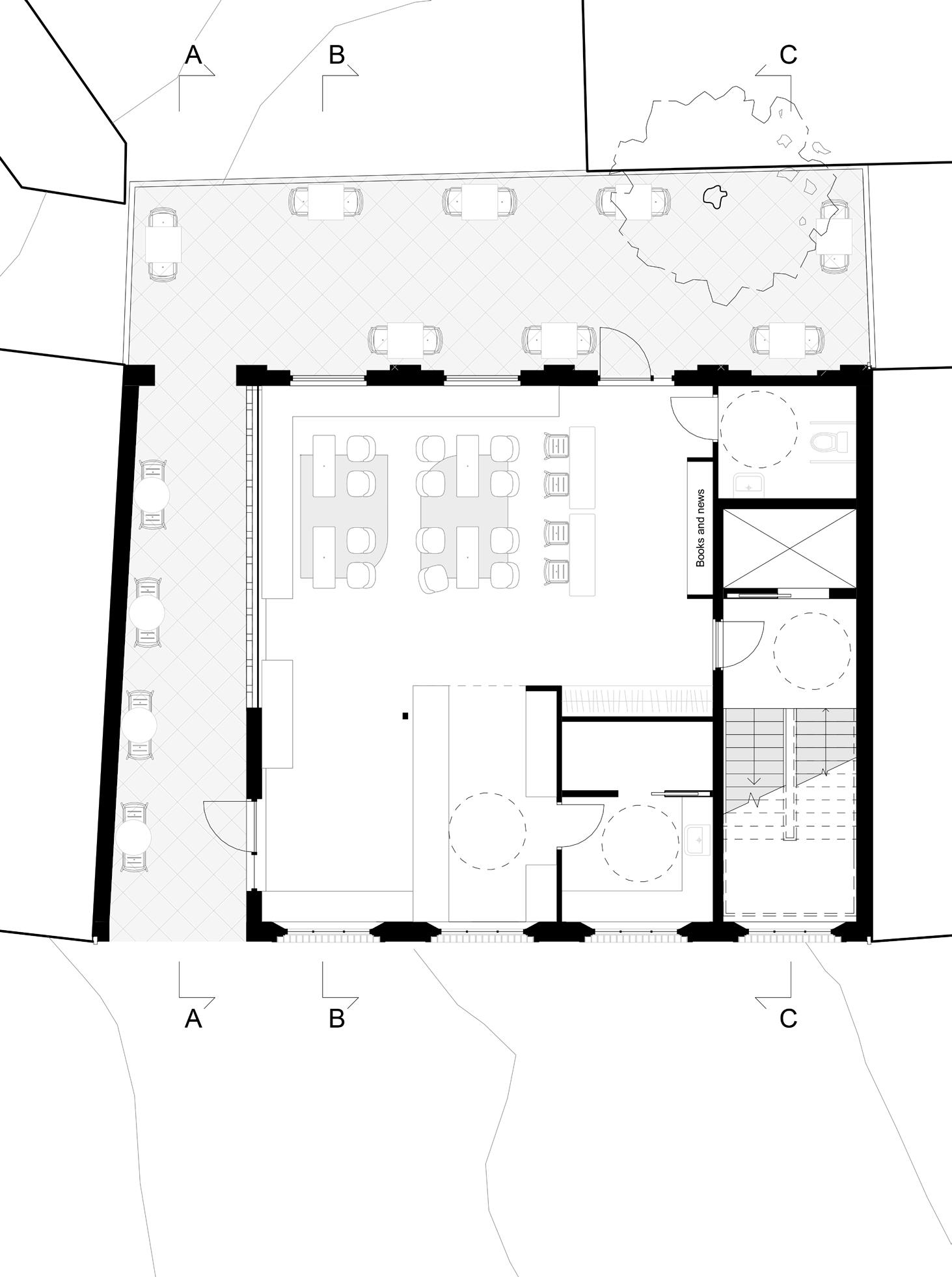
MARIDALSVEIEN 48

et studie av lys, farge og materialitet

Eksamensprosjekt 9. semester ved NTNU

Sted: Trondheim, Norge

Varighet: 5 uker

Veiledere: Kine Angelo, Barbara Szybinska

Matusiak og Anders Wunderle Solhøy

Prosjektet er en in-fill i en bygård ved Alexander Kiellands plass i Oslo. Kursets fokus var lys, farge og materialitet satt i kontekst, og for å best utnytte tiden rundt dette ble plan og program mer tematisk og konseptuelt. Prosjektets kontekst består av eldre bygårder hovedsakelig i puss og tegl, og ønsket var å utforske hvordan å tilpasse seg det gamle også ved mer moderne byggeteknikker.

Verdt å nevne er at kurset fokuserer på formgivning sidestilt med å lære teknikker og strategier for studier og formidling av kvaliteter rundt lys, farge og materialitet. Dermed hadde kurset en lengre og mer beskrivende liste krav til innlevert materiale for å styrke vår evne til å kommunisere med andre eksperter innen fagområdene vi utforsket.

32
33
Denne siden: Redigert modellfoto
34

Denne siden: Fasader med material og fargekode

35
36

Forrige side: Konstruksjonsprinsipper

Denne siden: Fargekoder for materialvalg

37 PV panels
Brick Brick detail Metal profile
Stucco plinth
38 1m 5m 10m
Maridalsveien
c+36 c+36 c+36

Forrige side: Grunnplan

Denne siden: Snitt og kvalitetsanalyser

No-greenery lines

1st and 2nd floor with backyard building shading view.

and

39
1m 5m 10m jesvends. Maridalsveien
No-skyline
1st 2nd floor without backyard building shading view.

URBAN PRODUKSJON

produksjonens integrering i byen

Eksamensprosjekt 6. semester ved NTNU

Sted: Trondheim, Norge

Varighet: 17 uker

Med: Bjarte Knobel

Veiledere: Steffen Wellinger

Urban produksjon er en utforskning av muligheten til å bringe industrien, som ofte befinner seg i perifere områder langt unna der vi bor og lever, inn til sentrumsnære og urbane bydeler. Vi begge liker tematikken bak “15 minute city” og for å realisere et slikt prinsipp er integrering av produksjonsindustrien i dagliglivet viktig. Ved å studere muligheter innen produksjon, i vår oppgave med fokus på tekstilproduksjon, ville vi lage et prosjekt som skaper lokalt forankrede arbeidsplasser med høyt fokus på relasjonen mellom produsent og sluttprodukt. Nymoderne industri, eller industri 2.0, er mer effektiv, maskiner tar mindre plass, det skapes mindre støy, produksjonen kan stables vertikalt og avansert teknologi åpner muligheter for spesialtilpassede produkter på bestilling kontra masseproduksjon og overskuddsvarer.

40

Denne siden: Illustrasjon av byrommet utenfor prosjektet

41
44 10 M 5 M 2.5 M A B B

Disse sidene: Plan for andre etasje

Som tidligere nevnt kan produksjonen medbringes oppover i etasjene, og som system valgte vi en todeling av funksjoner med de store, åpne produksjonslokalene i øst, og med kontor- og servicefunksjoner lokalisert i vest. Utsalgslokalene, vist i utomhusplanen i forrige spread, henvender seg mot vest til en sidegate som oppstår mellom oss og nabotomten Ø02. Viktig for oss var tematikken om en transpa -

rent produksjon der også produksjonsaktiviteten blir synlig for forbipasserende i øst, men også med innsikt fra utsalgslokalene i vest. I stedet for å gjemme bort industrien kan aktiviteten berike nærmiljøet og skape interesse.

BJARTE KNOBEL

Ø01 - ARK6 2021

2. ETASJE

45
A
46
47 PRODUCED BY AN AUTODESK STUDENT VERSION 10 M 5 M 2.5 M
Snitt A-A Snitt B- B
48
49 PRODUCED BY AN AUTODESK STUDENT VERSION 10 M 5 M 2.5 M
50 jesvends@gmail.com (0047) 410 06 967

Turn static files into dynamic content formats.

Create a flipbook
Issuu converts static files into: digital portfolios, online yearbooks, online catalogs, digital photo albums and more. Sign up and create your flipbook.