Septiembre de 2024

![]()
Septiembre de 2024



Hábitat domestico personal
Jesus Antonio Flores Bu
Bioclimática 1 | Arquitecta Gabriela Fu
La Residencial Venecia ofrece el beneficio de completa libertad para la construcción de casas dentro de la misma. Cada dueño puede realizar modificaciones en base a sus preferencias o para mejorar áreas. Aunque existen casualidades que pueden ya haber estado desde un principio o haber aparecido, afectando la iluminación, ventilación o comodidad en general. Se propone una seria de cambios para beneficiar los aspectos mencionados.
La familia conformada por padre, madre y tres hijos empezó a habitar la vivienda actual desde hace 12 años. Fue de las primeras casas en la zona en implementar varios cambios en el diseño. En un inicio se modifico en base a las preferencias espaciales de los padres y con el tiempo se cambiaron y construyeron mas espacios con necesidades que surgieron. Aunque tales hayan provocado la aparición de nuevas.






1.Cocina
2.Entretenimiento
3.Seguridad
4.Iluminación
5.Higiene
6.Ambientación
1
2

Materiales d



Concreto, cerámicas, madera y yeso en techos de espacios 301 y 210
Promedio de Decibeles
Noche: 63 dB Dia: 55 dB


























Sala en segunda planta


201 en segunda planta

43 años
Me gustan espacios amplios e iluminados
Me gusta la mecánica, construir y ver peliculas
Estrés por trabajo o salud de familia

41 años
Me gustan espacios amplio, iluminados y ventilados, con vista
Me gustar reunirme con amigos y salir en familia
Estrés por trabajo o salud de familia
31 años
Me gustan los espacios abiertos
Relajarme, como estar en una amaca
Suelo tener estres por dolores de cabeza y espalda

19 años
Me gusta organizar, cuidar plantas, dibujar y leer
Mayoría del tiempo en cuarto con computadora
Preferencia por lugares tranquilos para trabajar

15 años
Prefiero la comodidad y tranquilidad Me suelo estresar
Me gusta jugar videojuegos y escuchar musica

9 años
Me gusta organizar, cuidar plantas, dibujar y leer
Mayoría del tiempo en cuarto con computadora
Preferencia por lugares tranquilos para trabajar













Abultamiento de objetos
Incoherencias de iluminación
No hay área verde
Consumo de energía elevado por dependencia de cisterna
Repello de paredes se cae por mal trabajo
Cuarto de empleada: pequeño, no hay luz y ventilación natural
Cuarto de hijo menor: insuficiente luz y ventilación natural
Cuarto de hijo medio: Filtración de agua en pared
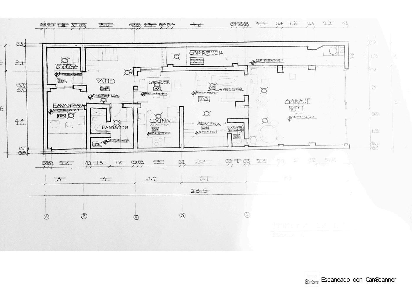
En el diseño original de la casa solo habían 2 plantas y un patio
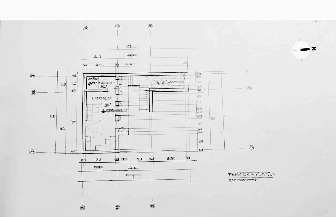
La primera modificación añadió una bodega en el lugar del patio y una habitación encima de la misma. En la segunda se extendió el cuarto hasta cubrir completamente la lavandería, se construyo otra habitación encima de la mencionada, se colorcaron escalera para poder subir y se aprovecho un espacio en el techo para para construir una terraza.
Los cambios se dieron por necesidad pero surgieron problemas. La luz y ventilación natural son insuficientes en la primera planta. Afectando negativamente a la sala del primer nivel, cocina, comedor y gravemente al cuarto de empleada y el área de lavandería.






Idea principal:
Hacer una expansión en el techo junto a la terraza, donde se ubicara la nueva lavandería. Lo cual permite que la ropa seque al sol y al estar ubicada el área donde se lava en el mismo lugar, no es necesario subir del primer piso hasta el tercero con canastas de ropa, disminuyendo el riesgo de accidentes.
Con la expansión también se puede lograr colocar contenedores de agua en el techo, permitiendo flujo de agua sin energía. Al cambiar de lugar la lavandería queda libre el antiguo espacio para nuevas utilidades.
Propuesta uno:
Se puede usar el espacio como una nueva habitación de primer piso, siendo mas espacioso y mas cómodo, con baño mas agradable. También teniendo varios tomacorrientes. La antigua habita y su baño se abrirían, conectando con el interior de la casa. La cocina se puede expandir para mayor comodidad y facilidad de organización, además de que se hace posible construir una ventana grande para mayor entrada de luz a la cocina.
Las tuberías de la cocina y baño de la nueva habitación conectarían con las del baño 209. El baño de la habitación 301 también se conectaría si se cambia de lado y la nueva lavandería también podría dependiendo de la expansión que se realice.
Propuesta dos






Propuesta dos:
Una expansión del cuarto existente hacia el extremo del espacio antiguo de lavandería y una expansión de la bodega perpendicular a la anterior. Priorizando la comodidad de la habitación y capacidad de bodega para organización.
Se puede observar el area en el techo expandido, con suficiente espacio para colocar contenedores de agua, pila y lavadora. Se accede por unas gradas que se encunetran en frente de la ventana mas grande de la habitacion en la tercera planta
Propuesta tres:
En el espacio de la sala colocar la habitación del primer piso. La sala cambia al área del comedor, el comedor donde esta la cocina y la cocina donde se ubicaba la habitación anteriormente, se puede realizar una ligera expansión de la cocina hacia el área de la antigua lavandería. La bodega se puede expandir para cubrir el resto del espacio mencionado.
Fundir una losa en el techo si se puede y puede que sea la mejor opción. Para solucionar el problema de secado de ropa y flujo de agua, al mismo tiempo se da mas espacio en la primera planta. De las variaciones parece ser mejor opción la propuesta 1. Para conseguir una habitación con mayor espacio. Un mayor espacio para la cocina y la oportunidad de abrir un ventanal para mayor entrada de luz.


E l , p uga p plantas y hacer asados
La propuesta si se considera interesante. En especial por las remodelaciones en la primera planta. La reubicación de la habitación para empleada y expansión de la cocina junto a ventanas de mayor tamaño. Aunque no parece ser posible por el costo de invertir para poder soportar la tercera planta. La idea principal fue de agrado debido a que ya se había tenido la idea de crear una tercera planta. Llamo la atención especialmente el resultado de la nueva habitación y cocina extendida con mejor iluminación y puede que se use en un futuro.
https://www.admagazine.com/gran-diseno/los-puntos-dela-arquitectura-de-le-corbusier-20210207-8083-articulos
https://shademap.app/@14.0828,-87.2041,15z,1726674921269t,0 b,0p,0m https://www.canva.com