Jess Xiong - RDVM Portfolio 2024

Page 1

RETAIL DESIGN &

Projects 2022 - Current

VISUAL MERCHANDISING
PORTFOLIO XIONG JIAXI (JESS)

Based in Singapore, Jess is a Retail design professional with diverse experiences in Architecture, store design, visual merchandising and project management.

She is a graduate of National University of Singapore with a Bachelors of Arts in Architecture (Honors).

Passionate about the luxury beauty industry, Jess has most recently devoted herself to growing her professional expertise as a visual merchandiser at Armani Beauty under L'Oréal, after nearly 2 years as a retail designer with Guerlain under LVMH.

As a native Chinese speaker, she has worked with multiple different markets in the APAC region with special focuses on Travel Retail China. Her experience has allowed her to work on a range of projects in both local market and travel retail context, honing different skills such as project management, design development and stakeholder coordination.

In her years of experience, Jess has been responsible for the roll out of “Bee Concept” with Guerlain for over 30 unique project openings. She also heavily contributed to the roll out of “Red Ribbon Concept” with Armani Beauty in designing key POSMs and planograms, while also executing multiple pop ups of various scales.

Key projects in this portfolio include those listed in the contents page.

// Local Market

// Travel Retail

VM DEVELOPMENT

// Gondola Back Panel

// Travel Retail Exclusive Cloche

// Post Execution Photos

“RED RIBBON CONCEPT”

// Post Execution Photos

POP UPs

// ARMANI MAKEUP-LAB

// CNY 2024

CONTENTS
C1 - Internal use

GUERLAIN “BEE CONCEPT” ROLL OUT

MAY 2022 – MARCH 2023

LOCAL MARKET PROJECTS

OPENED 2022

LADPRAO, TH

TAKASHIMAYA HCMC, VN

SHINSEGAE GANGNAM, KR

SMITH & CAUGHEYS, NZ

ISETAN GARDENS, MY

DAVID JONES, AUS

RUSTANS MAKATI, PH

OPENED 2023

SHINSEGAE MAIN

(NON-EXHAUSTIVE)

TRAVEL RETAIL PROJECTS

OPENED 2022

MACAU GALAXY

LOTTE MAIN, KR

LOTTE WORLD, KR

BANGKOK WEST, TH

PHUKET AP, TH

OPENED 2023

NARITA T1 AP, JP

OKINAWA INT AP

OKINAWA DOM AP

BEIJING T3 AP, CN

SH T2 ARRIVAL, CN

SH T1 MAIN, CN

(NON-EXHAUSTIVE)

“BEE CONCEPT” – Local Market Renders

** Renders done in-house using combination of SketchUp & Twilight

ATRIUM TYPE

WALLED STORE TYPE

OPEN BOOTH TYPE

CANOPY TYPE

C1 - Internal use

“BEE CONCEPT” – Local Market Roll Out

POST EXECUTION PHOTOS

Completed Project: Smith & Caugheys, NZ Photo taken in 2022 Completed Project: Shinsegae Gangnam Photo taken in 2022 Completed Project: Isetan Gardens, MY Photo taken in 2022

“BEE CONCEPT” – Travel Retail Renders

** Renders done in-house using combination of SketchUp & Twilight

BOOTH
INTERNAL OUTLET CORNER
TYPE
TYPE OPEN BOOTH TYPE
OPEN

“BEE CONCEPT” – Airport Roll Out

POST EXECUTION PHOTOS

C1 - Internal use
Completed Project: Phuket AP Photo taken in 2022 Completed Project:
Beijing T3 Arrival
Photo taken in 2024 Completed Project: Okinawa Dom. AP Photo taken in 2023

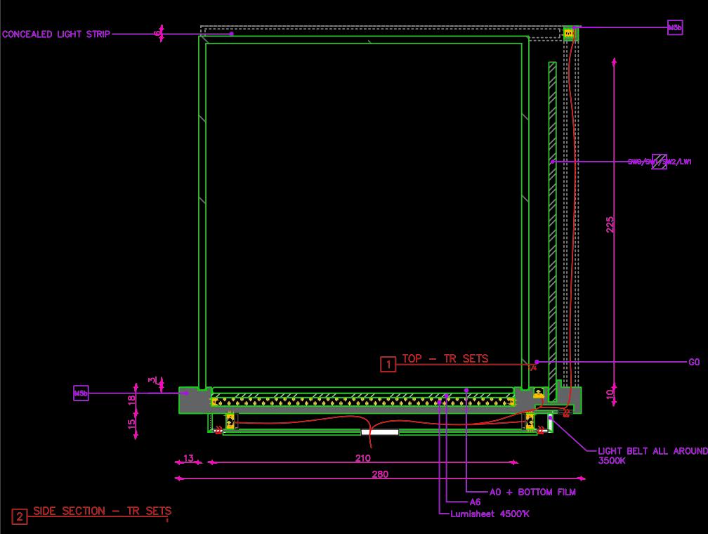
TRAVEL RETAIL DISPLAY DESIGN

GONDOLA BACK PANEL DEVELOPMENT

SIZING DIFFERENCES

MULTI-AXIS OPTIONS

MAKEUP OPTIONS

H500MM 1500MM 1300MM 1200MM 1100MM H450MM H500MM 1500MM 1300MM 1200MM 1100MM H450MM OVERVIEW

CLOCHE DEVELOPMENT

Soft Merchandising options for a refreshed travel retail cloche, with specific emphasis on clean, minimal, and strong geometric shapes. The design also came with interchangeable back panel options for different product placement -- this interchangeability allows for greater versatility of usage without constantly changing the main body with different products.

TECHNICAL DETAILS

MULTI-AXIS

PANEL MATERIAL: WT6 A

B MAKEUP

A GLASS CASE

PANEL MATERIAL: SW1

C MAKEUP PANEL MATERIAL: RED VELVET

B BACKING MATERIAL PANEL

C A0

D BOTTOM FILM

E LUMISHEET 4500K

F ASYMMETRICAL LIGHTING FRAME

G MAIN CLOCHE BODY

D SKINCARE PANEL MATERIAL: SW0

E FRAGRANCE

PANEL MATERIAL: SW5

DEPTH TO BE INSERTED INTO CLOCHE
8MM

CLOCHE DEVELOPMENT

POST EXECUTION PHOTOS

C1 - Internal use
C1 - Internal use

ARMANI “RED RIBBON” ROLL OUT

MARCH 2023 - PRESENT

TRAVEL RETAIL PROJECTS

OPENED 2023

XIN HAI GANG, CN

HAITANGBAY BLK C, CN

WANGFUJING, CN

ICN T1 WEST, KR

SH T2 ARRIVAL, CN

OPENED 2024

TY GATE C5, TW

DFS HYSAN, HK

HKIA EHS, HK

C1 - Internal use

“ARMONIA” – Xin Hai Gang, Haikou

New Opening: June 2023

Only “Armonia” concept flagship for Armani Beauty for TR APAC

C1 - Internal use

“RED RIBBON” – Hai Tang Bay Block C, Sanya

New Opening: Dec 2023

First “Red Ribbon” concept flagship store opening for Armani Beauty

C1 - Internal use

“RED RIBBON” – Airport Roll Out

POST EXECUTION PHOTOS

Completed Project:

Completed Project:

Completed Project:

C1 - Internal use
TYAP Gate C5 Photo taken in 2024 SSG T1 West Photo taken in 2024 SH T2 Arrival Photo taken in 2023
C1 - Internal use

1 – 30 MAY 2023

SANYA, HAINAN

BLOCK A

Scope:

Design Adaptation + Execution

Material Review

PLV Production

Planogram Planning

Retail-tainment Implementation

C1 - Internal use
– Armani
Up Lab”
POP UP
“Make-

POP UP – Armani “Dragon Year” CNY

JAN – FEB 2024

Various Locations

Counter Implementation: Xinhaigang, Haikou

C1 - Internal use
HPP: Changi T3, SG HPP: Melbourne Dep, AU WINDOW: Sunrise Window, SH HPP: Incheon AP, KR

Turn static files into dynamic content formats.

Create a flipbook
Issuu converts static files into: digital portfolios, online yearbooks, online catalogs, digital photo albums and more. Sign up and create your flipbook.