THE KINSHIP
530 B STREET
Adaptive reuse
By Jessica Steele
June 2024
In Partial Fulfillment of the Requirements for the Degree of
Interior Architecture & Design

STEELE ALL RIGHTS RESERVED
![]()
By Jessica Steele
June 2024
In Partial Fulfillment of the Requirements for the Degree of
Interior Architecture & Design

STEELE ALL RIGHTS RESERVED
As the world continues to march its way towards urbanization, the effects on family structures and dynamics will continue to evolve. The future will likely depend on various factors such as, technological advances, environmental considerations and evolving social norms. According to the UN Department of Economic and Social affairs, 68% of the world population is projected to live in urban areas. In fact, trends are showing that young adults are willing to live smaller due to and are continuing this way once they have kids. It may come as no surprise that home pricing is likely to remain unfordable as long as new construction is thwarted.
The San Diego housing market, like the rest of the nation, is experiencing a lack of single-family homes and the major issue is lack of vacant land for new builds in and around San Diego. Simultaneously, commercial buildings throughout the US and right here in San Diego sit nearly-empty due to changing cultural shifts in our post-pandemic society.
This thesis explores the transformation of an empty office building in downtown San Diego into a creative solution for quality urban family life. This adaptive reuse project is a new take on what it means to raise a family in a bustling downtown environment by providing families access to an affordable and wholesome lifestyle.
Approved by:
AN ADAPTIVE REUSE PROJECT
Presented to the Undergraduate Faculty of The NewSchool of Architecture & Design by Jessica
Steele
Undergraduate Chair:
Studio Instructor:
Date:
Date:
To my mom and dad-
I am especially grateful to you both for supporting me emotionally and financially (with blocks). Thank you for always encouraging my creativity.
To my brothers-
I want to thank you deeply for being there for me and showing me how much you care when I get your phone calls. I’m proud of you both.
To my sister-
You are such a light in this world. Thank you for listening to me and making me laugh. I hope to be your sister in every lifetime.
Evan-
With you by my side, I feel like I can do anything. Thank you for always cheering me on, I love you.
CC.-
Thanks for the healthy competition, the post-final presentation dinners, the motivation, the inspiration, the weird snacks, and most of all- the laughter. I cannot wait to see what the future holds for all of you.
a poem dedicated to my loved ones
i carry your heart with me by E.E Cummings
i carry your heart with me (i carry it in my heart) i am never without it (anywhere i go you go, my dear; and whatever is done by only me is your doing, my darling) i fear
no fate (for you are my fate, my sweet) i want no world (for beautiful you are my world, my true) and it’s you are whatever a moon has always meant and whatever a sun will always sing is you
here is the deepest secret nobody knows (here is the root of the root and the bud of the bud and the sky of the sky of a tree called life; which grows higher than soul can hope or mind can hide) and this is the wonder that’s keeping the stars apart
i carry your heart (i carry it in my heart)
The Kinship at 5 30 B Street is an adaptive reuse project of a once-vacant office building that applies the Danish philosophy of hygge. Each space, large and small, public and private, is thoughtfully designed with this concept in mind. The ground level of The Kinship lends itself to the public through seamless indooroutdoor transitions and large operable windows that allow natural lighting and breezes to reach deep into the interiors. The ground level was designed to address the lack of healthy food options and grocery stores in downtown San Diego. While it successfully addresses these needs, it also applies the concept of Hygge to a public food hall by creating cozy dining spaces that are warm and inviting.
The t errace level was intentionally chosen to include building amenities like a gym, yoga studio and residential clubhouse because of its ample outdoor access. Most importantly, it also houses an elementary school designed to accommodate roughly 150 students. The Montessori elementary school is key to supporting the quality of life for the families living in the condos above. Designed with hygge in mind, the common area of the school has a large seating structure for its students to gather on, as well as different break-away areas that place an emphasis on a child’s natural interests and activities. The school also has access to more than half of the terrace, which provides ample outdoor space
for its students to play and interact with their surroundings. The interiors are heavily inspired by the teaching methodology of Montessori education by using natural palettes also seen in Scandinavian design, but still maintains a welcome playfulness.
The c ondominiums and apartments in the rest of the tower offer a variety of floor plans to accommodate a single occupant to a multi-generational family. Each level is planned out to stack condominium levels with apartment levels in order to increase occupancy within the building and ease the construction process. The floor plans were designed around an existing core, which left space on the northern section of each floor to be developed into community gathering spaces. The residences at The Kinship are spacious and functional floor plans that offer a stylish refuge with designer-selected finishes and appliances. Even located in the busy financial district of downtown San Diego, every residence within The Kinship is designed to evoke a feeling of comfort and contentment, the true embodiment of the Hygge lifestyle.
Many families face the dilemma of choosing to raise their children in the city versus a suburban neighborhood, especially when weighing costs and quality of life. Urban versus suburban experiences will always vary depending on the city or neighborhood, but there are general categories in both areas.
Living in the s uburbs often means that there is more access to outdoor space like backyards and parks, and with a wealth of outdoor spaces means the physical, social, emotional and intellectual benefits of regular connection to nature. This is a major perk when compared to lack of greenery in a city environment. In addition to ample outdoor space, suburban living also equates to more living space. More space is often linked to improved mental health, a balanc e d mindset and less stress due to the ability to move from room to room with ones home. Additionally, better access to schools are another perk to suburban life,. Schools within suburban neighborhoods are often more superior in teacher-to-student ratios and less congestion.
S afety is often the biggest factor when families decide to move into the suburbs, especially when there is a sense of camaraderie with neighbors. However, surprising trends show that crime has increased significantly in suburban neighborhoods due to the COVID-19 pandemic when people and families were motivated to relocate from the city to the suburbs. With the uptick in suburban crime, considering a suburb for safe family living may an outdated narrative. Since big city crime rates are falling, it a hopeful signal that raising a family in a urban setting may be back on the table for many families.
The k ey differences between the two lifestyles come down to transportation,
cost of childcare, and cultural diversity of the people within each environment. Ultimately, the key difference in raising children in the city versus the suburbs is what families spend their money on. Raising a family in an urban location is linked to lower spending on transportation due to public transit and depending on the city, walk-ability. As a result of public transportation, children often develop a greater sense of independence living in a city than they would in a suburb. City schooling is seen as the major difference when compared to suburban schooling and there are many pros and cons. City schools allow children to make friends from other neighborhoods within the city limits, although forming communities in suburbs is much easier. Schools in a city environment can also be more competitive, especially when enrolling a child into preschool or kindergarten. The biggest reason why many parents pick city living over the suburbs is providing children with ample opportunities to interact with peers from different backgrounds, which enhances their social skills and cultural awareness.
In s ummary, raising a family in the city or suburbs each have their own advantages and disadvantages. The choice depends on the family’s priorities, lifestyle preferences and specific needs. Though based on trends in raising families in urban versus suburban areas suggest that more families are staying in the city .

The graph above illustrates the trends in raising families in urban versus suburban areas from 2010 to 2024. Based on the data:
Urban Areas: There is a clear upward trend in the percentage of families raising children in urban areas, increasing from 45% in 2010 to 61% in 2024. Suburban Areas: Conversely, the percentage of families raising children in suburban areas has been declining, from 55% in 2010 to 39% in 2024.
This shift s uggests a growing preference for urban living among families, possibly due to factors such as increased access to amenities, cultural experiences, and educational opportunities that cities offer. Urban families often find innovative solutions to create a family-friendly environment. Examples include forming community groups to advocate for better parks and playgrounds, or joining cooperative living arrangements and multigenerational housing setups. These approaches help mitigate the higher costs of urban housing and the limited space by pooling resources and support networks.
Whil e raising a family in a city presents unique challenges, many urban families are finding creative and resourceful ways to make it work, emphasizing the advantages of cultural enrichment, convenience, and vibrant community life. The Kinship at 530 B Street offers a variety of amenities and designs tailored to meet the needs of families. Overall, the family-focused building in downtown San Diego designed to provide convenient, safe, and community-oriented environments for families, making city living more accessible and enjoyable. It also addresses a solution to the rising vacancy rates of downtown San Diego office buildings.
The trend of rising office building vacancies has been significantly influenced by several key factors:
The COVID-19 pandemic accelerated the adoption of remote work, leading many companies to reconsider the necessity of maintaining large office spaces. Even post-pandemic, many organizations continue to offer flexible work arrangements, reducing the demand for traditional office space. Economic uncertainties and shifts in business models have led companies to downsize or reevaluate their real estate needs. This has resulted in higher vacancy rates as businesses look to cut costs by reducing their physical footprint . There is a growing emphasis on work-life balance and employee well-being, which supports the continuation of remote or hybrid work models. This cultural shift reduces the need for centralized office space. San Diego’s office market is experiencing significant challenges, with vacancy rates hitting high levels and affecting the downtown area the most. As of early 2024, the overall office vacancy rate in San Diego stands at approximately 14%, a significant increase partly driven by changes in work patterns post-pandemic, such as the shift to remote work. Overall, the San Diego office market is grappling with high vacancy
rates and a shift in demand dynamics, driven by broader trends in remote work and evolving business needs. However, the continued interest in strategic conversions of existing office spaces are seen as mitigating factors that could stabilize the market in the long run. Adaptive reuse, the process of re-purposing old buildings for new uses, has gained momentum as a response to rising office vacancies. This approach offers several benefits as follows.
Adaptive reuse is environmentally friendly as it reduces the need for new construction materials and minimizes waste. By re-purposing existing structures, developers can lower the carbon footprint associated with new builds. Transforming vacant office buildings into residential, mixed-use, or community spaces can revitalize urban areas. This can attract new businesses and residents, boosting local economies and reducing blight. Lastly, many cities face housing shortages, and converting office spaces into residential units can help meet this demand. This approach is often quicker and less costly than new construction, providing a viable solution to urban housing crises.
The conversion 530 B Street into a mixed-use development addresses the needs to the family and the surrounding neighborhood. The building will also contribute to the revamping of a bleak financial district and act as a viable repurposing solution.
1. ATMOSPHERE turn down the lights
2. PRESENCE be here now, turn off the phones
3. PLEASURE good food, good times
4. EQUALITY “we” over “me”
5. GRATITUDE take it all in
6. HARMONY live among each other
7. COMFORT get comfy, take a break
8. TRUCE drama free
9. TOGETHERNESS build relationships
10. SHELTER this is a place of peace
Hygge is a Danish and Norwegian term that embodies a mood of coziness, comfort, and contentment. It is often associated with a feeling of well-being and a warm atmosphere. The concept is deeply rooted in Scandinavian culture and emphasizes simple pleasures, togetherness, and a sense of belonging. Applying hygge to interior architecture involves creating spaces that promote relaxation, warmth, and a sense of security.
Below are the key elements and ideas of hygge when applied to the interior architecture of The Kinship:
WARM LIGHTING
- Use of Natural Light: Maximize natural light through large windows
- Soft, warm lighting: Use of soft warm lighting to create an inviting atmosphere
COMFORTABLE FURNITURE
- Soft textiles like plush pillows
- Ergonomic furniture that is comfortable and functional
NATURAL MATERIALS
- Wood, stone and leather to add warmth and an organic feel
NEUTRAL COLOR PALETTE
- Earthy tones to create a calm and serene environment
- Maintain consistent throughout the space
PERSONAL TOUCHES
- Decorative items with meaning, or handcrafted artwork to create a sense of individuality and warmth
GREENERY
- Indoor plants to add life and freshness to the interiors
This concept was chosen for The Kinship at 530 B Street because it is a way of life that emphasizes the importance of enjoying the good things in life with those who we hold dear to our hearts. It encourages the idea of being present and enjoying the simple, everyday moments with our friends and family. It involves spending quality time with our loved ones, creating a sense of community and togetherness. Now more than ever, our society needs to embrace this lifestyle. After a pandemic that kept us apart, politics that divided us, and technology that has distracted us, it is time to get back to our roots and strip away all the materialism of modern living and enjoy the simplicity of just being in the moment.


Daylight duration: 10h0m30s | Sunrise: 6:46am Culmination: 11:46am | Sunset: 4:47am

SUMMER Daylight Duration: 14h19m6s | Sunrise: 5:40am Culmination: 12:50pm | Sunset: 8:00am

PUBLIC MARKET
• CHEF PODS
• BRICK AND MORTAR
• BATHROOMS
• SEATING/TABLES
• GREENERY
• ICE CREAM/DESSERT
COFFEE SHOP
APARTMENTS
LEVEL ONE
• TK-KINDERGARTEN CLASSROOMS
• ALL-PURPOSE ROOM
• CAFETERIA
• BATHROOMS
• FACULTY BREAK ROOM
LEVEL TWO
• SPLIT-GRADE CLASSROOMS
• COMPUTER LAB
• JANITOR ROOM
• BATHROOMS
• LIBRARY
• BREAKAWAY AREA
• INDOOR/OUTDOOR GYM
• YOGA STUDIO
• CLUBHOUSE
• POOL
• LOUNGE
• 3 BED
RESIDENCE
• 2 BATH
• KITCHEN
• PANTRY
• LIVING ROOM
• PATIO
• OFFICE
MEDIUM RESIDENCE
• 2 BED
• 2 BATH
• KITCHEN
• LIVING ROOM
• PATIO
SMALL RESIDENCE
• 1 BED
• 1 BATH
• KITCHEN
• LIVING ROOM
• PATIO

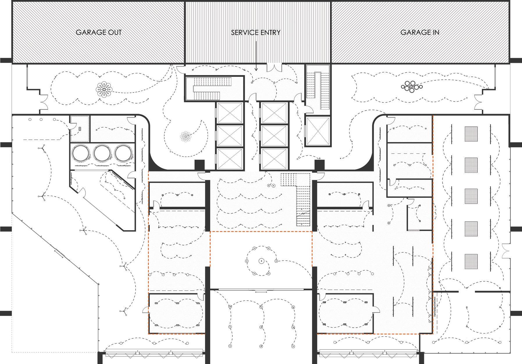
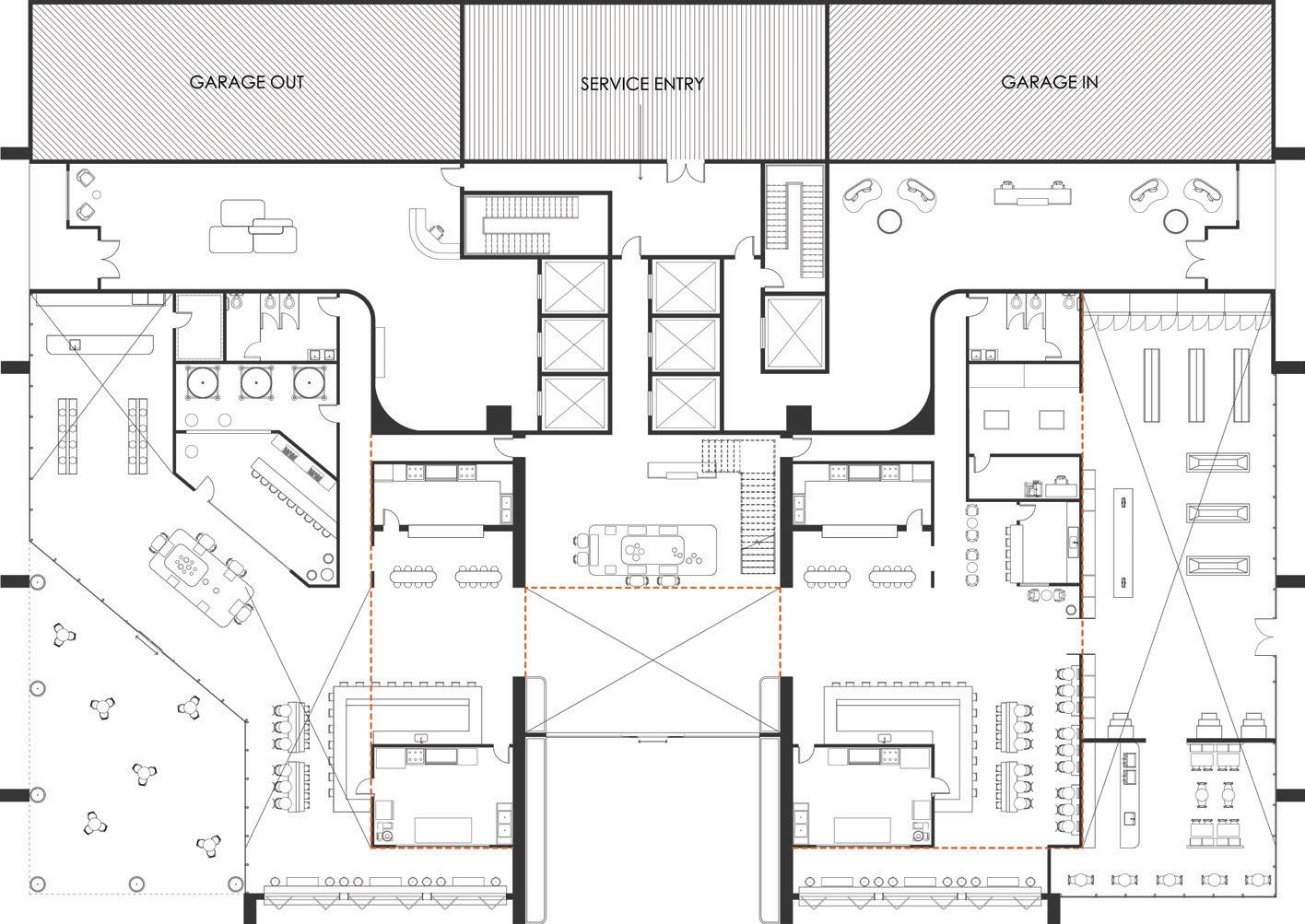
NARRATIVE: The first level of The Kinship is a delicate balance of public and private spaces. Fika Food Hall offers a dynamic, community-centric marketplace where various food vendors, artisans, and grocery store come together under one roof. It has an open-plan layout with communal seating areas to encourage social interaction. Designed with unique aesthetics and using the concept of hygge, it serves as a gathering place where people can meet, socialize, and enjoy meals together,
fostering a sense of community. The goal with the ground floor is to revitalize the financial district of downtown San Diego by drawing residents and visitors to the area, increasing foot traffic and benefiting surrounding businesses. It will provide a platform for local chefs and act as an incubator for culinary talent, allowing chefs and food entrepreneurs to experiment and innovate with new dishes and concepts. The grocery store offers an aspect of health and well-being with a focus on providing fresh produce and healthy food options, which can help improve the overall diet and health of residents in the building and surrounding neighborhood. As a neighborhood hub, it serves as informal community hubs where neighbors can meet and interact, fostering a sense of community and belonging.
The ground floor also offers private access to the residential units and the elementary school in the tower above. Each space was thoughtfully placed to follow the flow of incoming and outgoing traffic that runs along both side of the building.

5th Avenue

B Street
A ELEMENTARY SCHOOL ENTRANCE | 1,967 SF
B GROCERY STORE | 2,323 SF
C COFFEE SHOP | 783 SF
FOOD HALL | 8,017 SF D
ENTRANCE/LOBBY | 2,100 SF E
MICRO BREWERY | 708 SF F
ICE CREAM SHOP | 633 SF G
RESIDENTIAL ENTRANCE | 2,104 SF H
The layout of the ground level was highly influenced by daily activities based on the time of day they occur. School drop off starts early in the morning and most Americans do their grocery shopping by 10:00 am, both spaces are located on the east side of the building. The food hall is centrally located and continues to the west for lunch, dinner, drinks and dessert. Finally, at the end of the day, residents enter their building on the west.
6th Avenue

When designing the lighting plan, it was essential to have natural lighting reach as deeply as possible into the building. Where natural lighting cannot occur due to surrounding building shadow, many warm lights fill these spaces in order to create a comfortable and inviting atmosphere.
INTERIOR SECTION OF DINING SPACE




In order to reduce waste and environmental impact, the majority of the flooring is the re-purposed polished concrete. It is also highly durable and suitable for longlasting performance.

While Hygge is often associated with serene environments, it was also important for the food hall to be stimulating. Different ceramic tile is located around each bar area to represent the eatery’s different concept.

While wood flooring is only used in the coffee shop and brewery, it is also seen in different stains throughout the food hall and grocery store as a nod to Scandinavian influence.






NARRATIVE: Visir is an old Norse word that come from the act of a “growing sprout”. Visir Elementary School is an urban elementary school inspired by Scandinavian design and incorporating Montessori-style learning that prioritizes natural light, sustainable materials, functional outdoor spaces, and flexible, minimalist interior design. This environment would support a child-centered, inclusive, and well-being-focused educational philosophy, with an emphasis on hands-on,
experiential learning and a strong connection to nature. The use of sustainable, natural materials such as wood are prevalent. Influenced by the idea of a growing sprout, the main gathering space features a large indoor/ outdoor cushion seating area that appears to be growing from the ground. Inanelementaryschoolsetting,it’scrucial tousematerialsthatarebothdurableand easy to clean to maintain a hygienic environment. The interiors follow a minimalist approach, characterized by clean lines, uncluttered spaces, and a neutral color palette with pops of color for vibrancy. The design would promote a sense of community and inclusivity, with common areas for social interaction and communal activities.

A CAFETERIA | 1,050 SF
B ENTRANCE/GATHERING HALL | 3,848 SF
C KINDERGARTEN | 1,167 SF
PRE-K | 1,132 SF D
CLUB HOUSE | 1,371 SF E
GYM | 3,465 SF F
YOGA STUDIO | 338 SF G
When designing the layout of the floor plan, it was important that the students and residents of the building get nearlyequal square footage for amenities in order to provide both users with access to the terrace. Since connection to the outdoors is an important to the philosophy of hygge and Montessori style schooling, the terrace design has landscape for native plant species and ample room for play.
According to the IBC (International Building Code), the occupancy load for classrooms in educational facilities is generally based on an occupant load factor of 20 square feet per person. This means that the total area of the classroom is divided by 20 to determine the maximum number of occupants allowed.
A LIBRARY | 1,065 SF
B BREAKAWAY SPACE | 4,249 SF
C-G MIXED GRADE CLASSROOMS | 959-988 SF H COMPUTER LAB | 471 SF
INTERIOR SECTION OF ELEMENTARY SCHOOL



LVT (Luxury vinyl tile) are durable, water-resistant, and easy to clean. It is ideal for classrooms, hallways and multipurpose rooms.

Vinyl Upholstery is used on the large cushion because of its resistance to moisture, cleanability and durability.

Sheet vinyl is ideal for places that see a lot of moisture. It can be easily cleaned using standard cleaning solutions.





NARRATIVE: The shortage of single-family homes in San Diego is a multifaceted issue resulting from high demand, limited land availability, restrictive zoning laws, high construction costs, and economic factors that favor multi-family developments. This situation has significant implications for housing affordability and urban density, impacting the overall quality of life for San Diego residents. Family-friendly apartment spaces emphasize spacious living areas, multiple
bedrooms, dedicated play and study areas, and safe outdoor spaces. They combine these elements with convenience and safety features to create a comfortable and supportive environment for families. In terms of the floor plan configurations at The Kinship, the plumbing system has been stacked in vertical alignment to reduce construction complexity and costs by minimizing the need for extensive piping and ensure easy maintenance. The interior schemes are influenced by the “golden hour” period of time right before sunset, in which the daylight is soft and diffused, creating a warm, glowing effect. Which is the perfect way to capture the essence of hygge in the condominiums. Integrating hygge into family interiors involves focusing on comfort, warmth, and togetherness. By using soft lighting, comfortable furniture, inviting communal areas, and personal touches, the condo spaces at The Kinship fosters a sense of well-being and connection for the entire family.


(0, 1, 1, 2, 3, 5, 8, 13, ...)
The typical floor plan of the levels that house the family-oriented condominiums was inspired by the Fibonacci Sequence. Each square footage is roughly the sum of the previous square footages of the unit type. This was to create a modular design that is functional for the occupants.

The lighting for each condominium was designed to make the most use of natural lighting, regardless of north, south, east or west-facing units. In order to maximize natural lighting, light-colored walls and ceilings were painted to reflect natural lighting, making the space feel brighter and more open. Artificial lighting was layered with a color temperature between 2700K and 3000K were used for warm, soft lighting to mimic the depth and variation of natural lighting- especially during the golden hour to capture the beauty of San Diego’s sunset. Additionally, colors and natural materials like wood, stone and woven textiles were used to enhance the natural feel.
9'6"




FLOOR PLAN: 1 bd | 1 ba
Kitchen/Living | 418 SF
Bedroom | 167 SF
Patio | 61 SF
Closet | 44 SF
Bathroom | 82 SF




FLOOR PLAN: 2 bd | 2 ba
Kitchen/Living | 659 SF
Bedroom 1 | 206 SF
Bathroom 1 | 77 SF
Patio | 121 SF
Bedroom 2 | 246 SF
Bd 2 Closet | 45 SF
Bathroom 2 | 142 SF





FLOOR PLAN: 3 bd | 2 ba
Kitchen/Living | 935 SF
Bedroom 1 | 213 SF
Bathroom 1 | 94 SF
Patio | 155 SF
Bedroom 2 | 209 SF Bd 1 Closet | 53 SF Bathroom 2 | 77 SF Bedroom 3 | 162 SF Office | 103 SF





Integrating residential family housing, downtown urban elementary schools, and public food halls into urban environments yields a multitude of benefits that significantly enhance the social, economic, and cultural fabric of neighborhoods. Residential family housing in adaptive reuse commercial buildings revitalizes underutilized spaces, promotes economic growth, and fosters a sense of community. It preserves historical architecture, reduces environmental impact, and provides convenient access to essential services, enhancing urban livability.
Similarly, establishing an urban elementary school downtown offers convenient education access, encourages families to settle in the city, and fosters stronger community bonds. Schools serve as community hubs, supporting local businesses and promoting sustainable living by reducing reliance on cars and decreasing traffic congestion.
Furthermore, a public food hall serves as a vibrant gathering space, fostering social interactions and supporting local entrepreneurs. It revitalizes neglected spaces, stimulates economic development, and enhances the neighborhood’s cultural landscape by celebrating diverse culinary traditions. Public food halls also contribute to sustainability by emphasizing local sourcing and eco-friendly practices.
In conclusion, the integration of residential family housing, urban elementary schools, and public food halls creates dynamic, inclusive, and sustainable urban neighborhoods. These elements collectively drive economic growth, foster community connections, celebrate cultural diversity, and promote sustainable living, making them essential components of contemporary urban planning and development.
Anthroholic. (2023, December 8). Impact of urbanization on family. Anthroholic. https://anthroholic.com/impact-of-urbanization-on-family
Massey, D. S., & Tannen, J. (2018). Suburbanization and segregation in the United States: A historical perspective. RSF: The Russell Sage Foundation Journal of the Social Sciences, 4(2), 18-35. doi:10.7758/RSF.2018.4.2.01
Owojori, O. M., Okoro, C. S., & Chileshe, N. (2021). Current status and emerging trends on the adaptive reuse of buildings: A bibliometric analysis. Sustainability, 13(21), 11646. https://doi.org/10.3390/su132111646
Parker, K., Horowitz, J. M., Brown, A., Fry, R., Cohn, D., & Igielnik, R. (2018, May 22). What unites and divides urban, suburban and rural communities. Pew Research Center. https://www.pewresearch.org/social-trends/2018/05/22/ what-unites-and-divides-urban-suburban-and-rural-communities/
Ribbon. (2019, June). Understanding food halls and the benefits of participating in one. Ribbon. Retrieved from https://www.ribbonme.com/blog-details/understanding-food-halls-and-the-benefits
Sullivan, J. (2024, June 14). America’s suburban crime problem is growing. Time. https://time.com/6904210/america-suburban-crime-problem-essay/
Little, M. (2021, November 5). The New American Elementary School? Prekindergarten in Public Schools and Implications for the Build Back Better Framework. Urban Institute. https://www.urban.org/research/ publication/new-american-elementary-school-prekindergarten-publicschools-and-implications-build-back-better-framework

Born and raised in the vibrant Bay Area, my affinity for creativity has been evident from a young age, manifesting in various forms and mediums. My professional journey began in the bustling kitchen of a local culinary school, where I started as a server and moved up to an assistant chef. This experience ignited a deep passion for the culinary arts, prompting me to pursue a degree in Hospitality and Tourism Management from San Francisco State University.
While in college, I worked as a bakery assistant and quickly advanced to a cake decorator, a role that capitalized on my creative talents. After earning my degree in 2017, I moved to San Diego to be closer to my sister and transitioned into a finance role at a local restaurant group. Though I found success, my heart yearned for something more aligned with my creative instincts.
The downtime during the COVID pandemic provided me the chance to reflect deeply on my true aspirations. This period of self-reflection led to a bold decision to pursue a career in interior design, prompting me to enroll at the NewSchool of Architecture and Design. As I approach graduation, I am eager to apply the wealth of knowledge and confidence I have gained over the past four years, both creatively and personally.
Looking ahead, I aim to join an interior architecture and design firm, harnessing my diverse experiences and newfound confidence. My ultimate goal is to open my own business, bringing together all aspects of my artistic and professional journey.
