

PORTFOLIO

KAUPPINEN
JESSE
Hei! Olen 26-vuotias arkkitehti, erikoistunut ihmisläheiseen ja vastuulliseen suunnitteluun. Vapaa-ajallani kiipeilen boulderseinillä ja rentoudun kokkaamalla. Vankka taustani teatteri- ja tanssiharrastuksissa on kehittänyt luovuuttani, itsevarmuuttani ja kykyäni toimia osana ryhmää.
Kansainväliset projektit ja opintokokemukset ovat vahvistaneet viestintä- ja projektinhallintataitojani.
Olen tottunut työskentelemään niin monikulttuurisissa tiimeissä kuin itsenäisesti. Olen tunnollinen ja motivoidun tehtävistä, jotka vaativat tarkkuutta ja ratkaisulähtöistä ajattelua. Nautin mahdollisuuksista ylittää itseni.
Arkkitehtuurissa minua inspiroivat viihtyisät tilakokemukset ja kestävä suunnittelu muunneltavuuden, korjausrakentamisen ja ekologisten materiaalien kautta. Tähän portfolioon valitut työt heijastavat arvojani: ekologista kestävyyttä, empatiaa ja huolenpitoa rakennetussa ympäristössä.


Jesse Joonatan Kauppinen
18.5.1999
+358 40 733 7028
kauppinenjesse@gmail.com
Työkokemus
6.5.-13.7.2025
Archinfo / Venice Biennale Architettura Exhibition attendant
Toimin Venetsiassa Suomen paviljongissa näyttelyn ja Suomen edustajana. Työhön kuului näyttelyn ja paviljongin esittely, ylläpito sekä oheiskirjallisuuden myynti. Kansainvälinen työympäristö ja vuorovaikutus eri maiden paviljonkien kanssa laajensivat arkkitehtuurillista ymmärrystä sekä ammatillista verkostoa.
Vastuutehtävät
Toimihenkilö (2023) Spinni ry DJ-kerho
Kv-tutor (2023)
Vaihto-opiskelijoiden orientaatio
Tampereen yliopisto
Konseptivastaava (2022) Erasmus+ EntreSTEAM, yrittäjyyskurssi
Zaragoza, Espanja.
Koulutus
Arkkitehti (2025)
Tekniikan kandidaatti (2023)
Tampereen yliopisto
Vaihto-opinnot (2024)
Université Catholique de Louvain Bryssel, Belgia.
Arkkitehtiylioppilas (2020-2022)
Oulun yliopisto
Ylioppilas (2015-2018)
Kallion lukio, Helsinki Kielitaito
Suomi - Äidinkieli
Englanti - Erinomainen
Ruotsi - Perusteet
Ranska - Alkeet
Ammattitaito
Adobe CC Archicad AutoCAD Enscape Morpholio MS Office Procreate QGIS Revit Rhinoceros SketchUp Twinmotion WordPress Olen myös näppärä 3D-tulostamaan ja rakentamaan erilaisia pienoismalleja!
1.6.-31.8.2024 & 6.6.-31.8.2022
Arkkitehtitoimisto Freese & Schulman Avustava suunnittelija
Mallinsin Revitillä infokatoksia, pitkospuurakenteita sekä apurakennuksia Sammallahdenmäen historialliseen UNESCOn maailmanperintökohteeseen Raumalla. Aiemmin olin mukana Talman koulun rakennushistoriaselvityksessä päivittämällä ja tekemällä monia erilaisia kaavioita, inventoimalla kohdetta, valokuvaamalla sekä taittamalla julkaisua.
Pienryhmäohjaaja (2021) Oulun yliopisto
Toimihenkilö (2021)
Opiskelija-SAFA Suosittelija
Katarina Siltavuori Archinfo
14.6.-20.8.2021
Jatke Oy
Rakennusapulainen
Olin mukana rakennustehtävissä teollisuusrakennuksella ja huolehdin myös työmaan siisteydestä. Työmaalla pääsin seuraamaan työvaiheita sekä miten erinäiset rakenteet muodostuvat. Käytännön näppituntuma on varmasti hyödyksi arkkitehdin ammatissa.

katarina.siltavuori@archinfo.fi +358 50 599 2510
Simo Freese
Arkkitehtitoimisto Freese simo.freese@freese.fi +358 40 7571277



Museum of Emotions -kilpailutyössä halusin luoda voimakkaan tilallisen kokemuksen, jossa puristuksen ja vapautumisen tunteet vuorottelevat. Miljöönä toimi suomalainen kallioinen metsämaisema, johon rakennus sulautuu harmaantuneen puuverhouksensa ansiosta säilyttäen samalla veistoksellisen ilmeensä. Tilaa määrittävät kaksi eri kulmassa laskevaa seinää: jyrkempi, kaareva ja hiiltyneellä puulla päällystetty seinä synnyttää painostavaa tunnelmaa, kun taas vastapuolen lämmin savirappaus ja johdattava kaide ohjaavat kohti luonnonvaloa. Kapea reitti kuljettaa kävijän tunteiden ääripäiden läpi pimeydestä kohti avaruutta ja rauhaa, päättyen palkitsevaan järvinäkymään.
















Rakennusperinnön hoidon kurssilla suunnittelimme täydennysrakennuksen Tampereen Juhannuskylään puretun paloaseman paikalle. Tavoitteena oli luoda kokonaisuus, joka sulautuu ympäristöönsä mutta näyttäytyy paikoin vahvasti. Moneen suuntaan avautuva viherkatto muodostaa kaikille avoimen pihan, joka jatkaa viereisen päiväkodin leikkialuetta ja kutsuu eri-ikäisiä yhteiseen oleskeluun. Katon alle sijoittuva ikäihmisten kohtaamispaikka tarjoaa tiloja yhdessäoloon esimerkiksi puutarhassa sekä harrastuksiin, kuten yhteiseen ruoanlaittoon. Kulmakahvila tuo alueen käyttäjät yhteen katon alle ja osaksi elävää kaupunkitilaa.
Työryhmä: Axel Plateau & Runar Hidle












Rakennussuunnittelu V -kurssilla keskityimme hoivan integroimiseen arkkitehtuuriin Tampereen Pohjois-Hervannan alueella. Ryhmämme suunnitteli konseptin, jossa suuri parkkialue ja sen ympäristö vehreytetään vaiheittain: pysäköintialueet pienenevät, asfaltti korvataan kasvillisuudella, ja katoille muodostetaan yhteisötiloja, kuten kasvihuoneita, verstaita ja saunoja. Parvekkeet laajennetaan pihoiksi hirsirakentein, ja lisääntyvä vihreys parantaa asukkaiden elinoloja sekä tukee paikallista ekosysteemiä. Konsepti painottaa yhteisöllisyyttä, omavaraisuutta sekä ihmisen ja luonnon välistä vuorovaikutusta.
Työryhmä: Akseli Jokinen & Johannes Kivelä







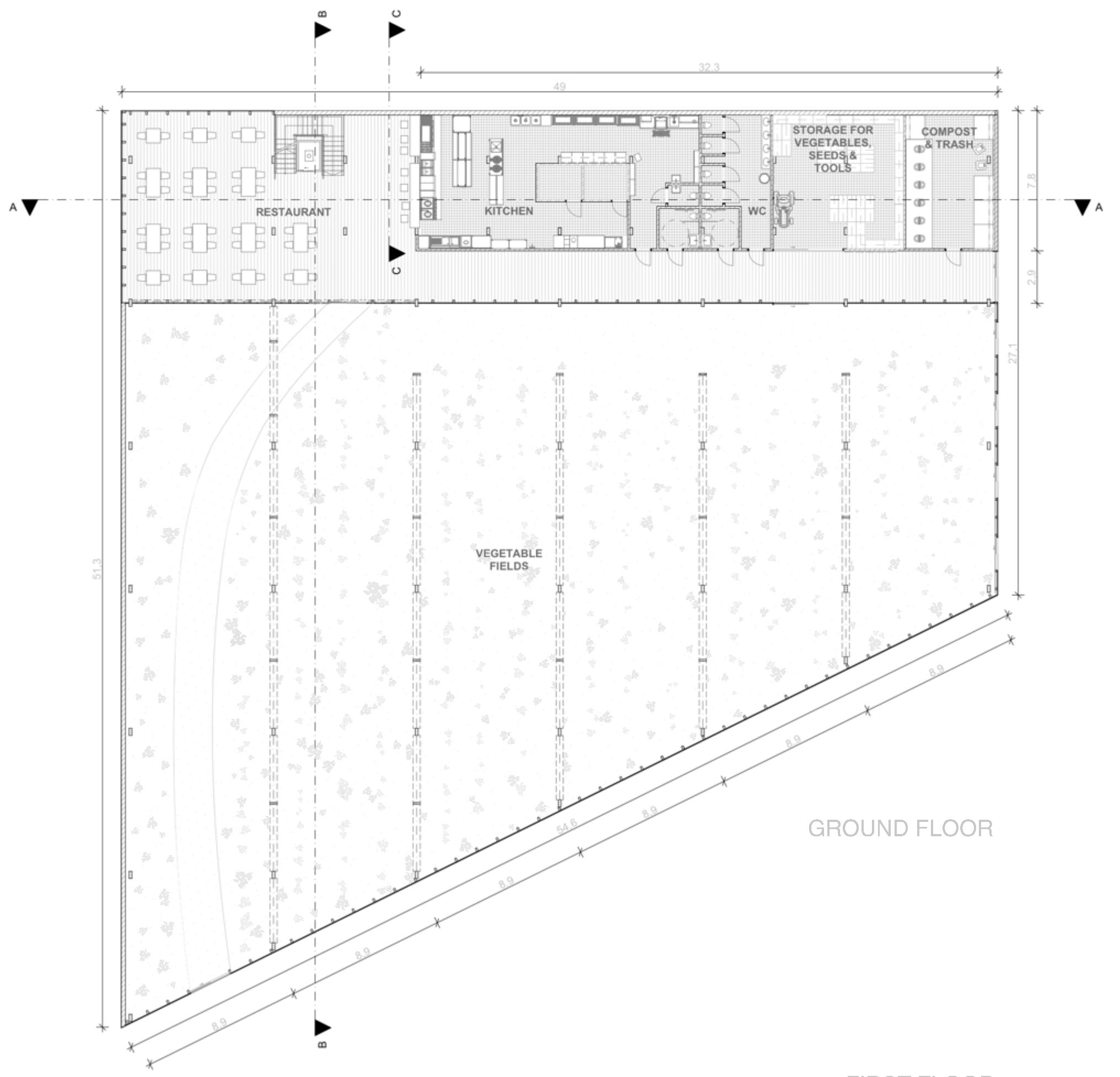
Belgiassa studiokurssilla suunnittelimme kasvihuoneen ja ravintolan yhdistävän konseptin Venetsian Certosan saarelle. Suunnittelussa korostuivat kestävät materiaalit ja passiiviset ratkaisut. Hyödynsimme saaren alkuperäistä tiilimuuria, ja ikkunat kevyestä polykarbonaatista maksimoivat auringonvalon kasvien kasvua varten. Katon muoto ohjaa sadevettä säiliöihin viljelyalueilla, tukien omavaraisuutta. Liukuovet ja kattoikkunat parantavat ilmanvaihtoa. Ravintola tarjoaa tuoretta ruokaa suoraan kasvihuoneesta, ja asiakkaat kulkevat viljelysten läpi, mikä tekee ruokailusta kokonaisvaltaisen elämyksen.
Työryhmä: Márton Kocsis









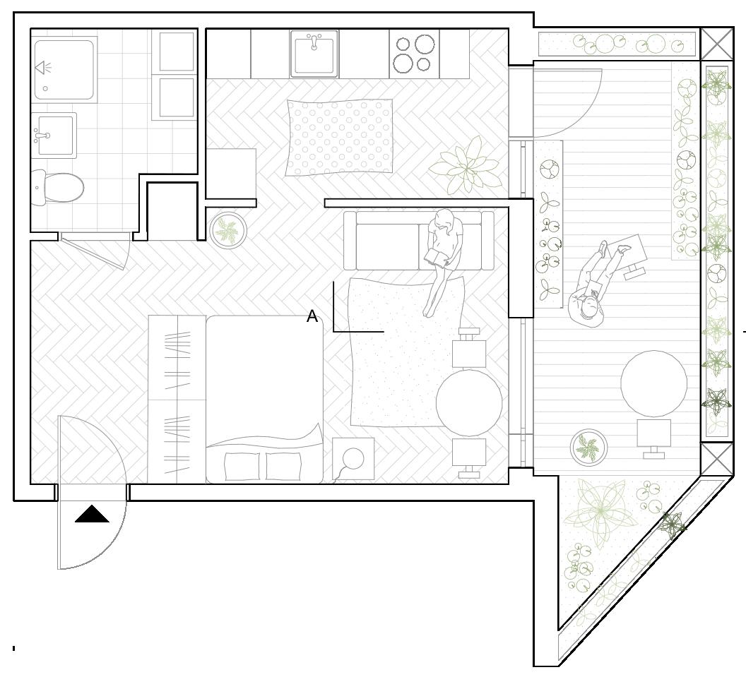
Architectural Design -kurssien työssäni tutkin, miten pienillä interventioilla voidaan saada aikaan suuria vaikutuksia elävöittämällä opiskelija-asumista täydennysrakentamisen keinoin ja muuntamalla parkkipaikka tamperelaisten yhteisölliseksi piha-alueeksi. Uudistus parantaa yhteyksiä tilojen, yhteisöjen ja ympäristön välillä lisäten yhteisiä tiloja, kuten monikäyttöinen paviljonki, parvekkeet, yhteiskeittiö, ja sauna. Myös muut ratkaisut, kuten päätyjen yksiöiden muuttaminen yhteisasunnoiksi, tukevat asumisen monimuotoisuutta ja viihtyisyyttä.










