Skip to main content

PORTAFOLIO ARQUITECTURA

Page 1

Jess Velayarce UCSM
PORTFOLIO
901 607 578 jessis.vr2@gmail.com
Jessenia Cristabel Velayarce Riveros

ESTUDIOS

Actualmente - 2023

2021

2021

EXPERIENCIA LABORAL

Enero hasta la fecha - 2023

Estudiante de Arquitectura de 9no semestre UCSM

Diplomado en Fabricacion Digital UNSA, Fab Lab Peru, Ecoings, S.A.C

Diplomado en Gestion de Proyectos UNSA. Ecoings.S.A.C

Marzo a Noviembre - 2022

Diseño de instalaciones y domótica

Inkapower Automation

Asistente de Arquitectura Edificio las Esclavas, Umacollo. Invercon

VOLUNTARIADOS

2020

2021

2021 junio- 2019- 2020

IDIOMAS

Representante Nacional, Región Arequipa OPEA

Encargada General de Ambiente y Áreas verdes Red de Arequipa Voluntaria

Representante del Sistema Ambiental MIRA (Mesa Concertada Regional Arequipa- CCIA_ Cámara del Comercio e Industria)

Presidenta de Rotaract Selva Alegre

Rotary International Básico - Ingles

Avanzado - Frances

SKILLS

MS -OFFICE ADOBE CC

CAD/ 3D

Word| Exel | PPt

Ph

Autocad | Sketchup |ArchiCad

01 M A N Z A N A K C A R M E N A L T O

Adaptarse al lugar es la estrategia de la naturaleza

02 M U S E O A M B I E N T A L A V E N I D A E J E R C I T O

PROPUESTA URBANA

La propuesta se baso en lograr eficiencia en transporte para la avenida ejercito, y logrando configurar subcentralidades a lo largo de ella, se distribuye los paraderos de buses y taxis por horarios y distancias Se aumenta el espacio publico con un rediseño de alamedas y zonas en desuso

La propuesta busco la CONEXION DE LA AVENIDA EJERCITO CON LAS QUINTAS SALAS, para dar pie a creación de actividades para la localidad, culturales y ambientales

PLANTAS
03 V I V R O C A R M E N A L T O

CENTRO CULTURAL Y EDUCATIVO,

Es la generación de un ambiente de convivencia e integración social mediante

NUEVOS SISTEMAS

EDUCATIVOS con el objetivo de fomentar el desarrollo de la IDENTIDAD CULTURAL a través de anexar los espacios con actividades enfocadas a la NATURALEZA

La propuesta

El Objetivo

El proyecto busco el aprovechamiento de todas las visuales del lugar Para que cada espacio tenga la singularidad de actividades pero a la vez pertenezca a un todo.

04
A C
V I V I E N D A S
H A C A

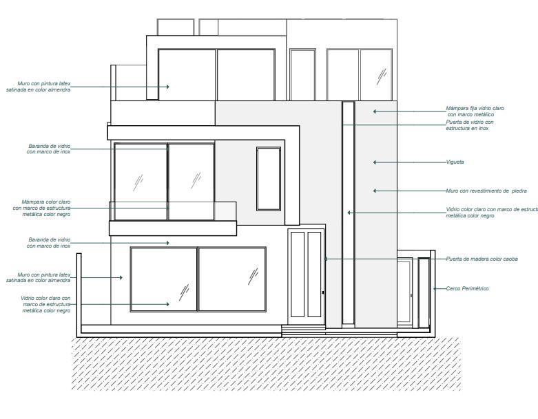
ELEVACION POSTERIOR

El Objetivo

La casa busca el confort térmico aprovechando la máxima incidencia de radiación en Arequipa, para uso energético

ELEVACION FACHADA

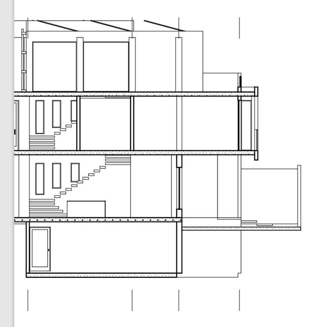
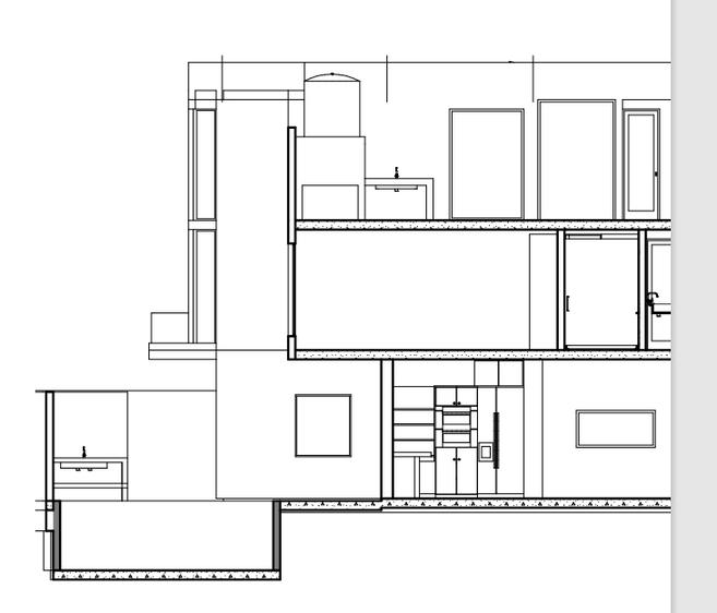
CORTE C-C
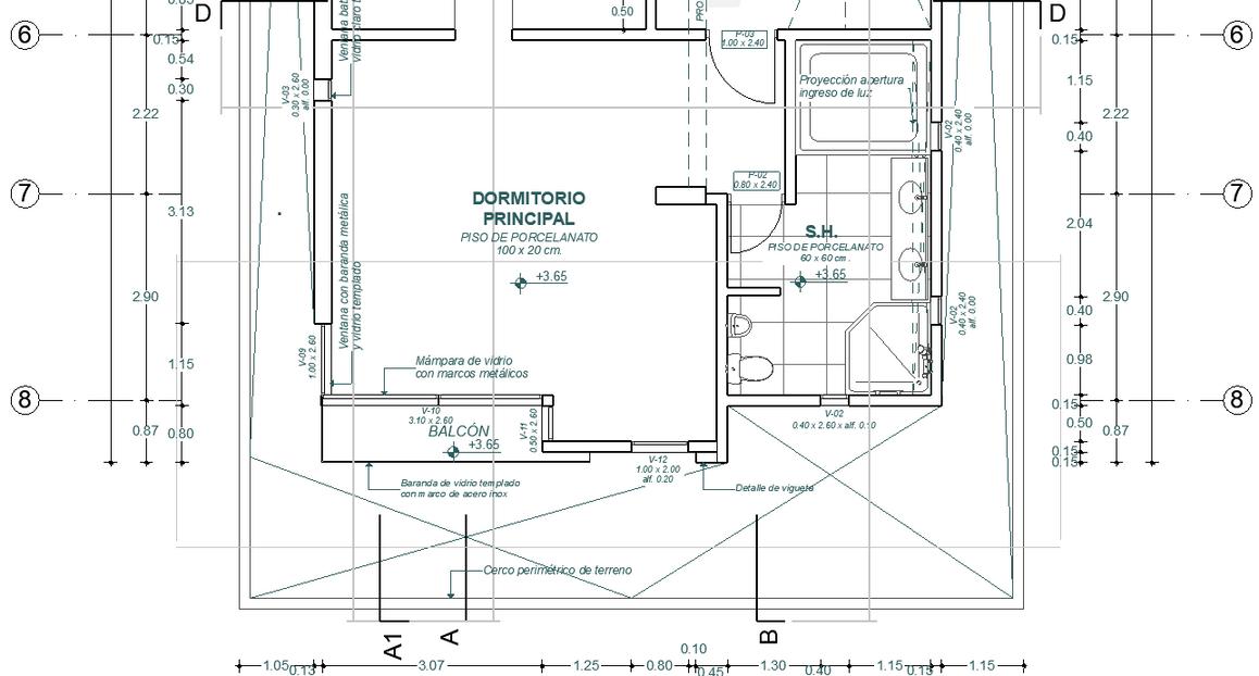
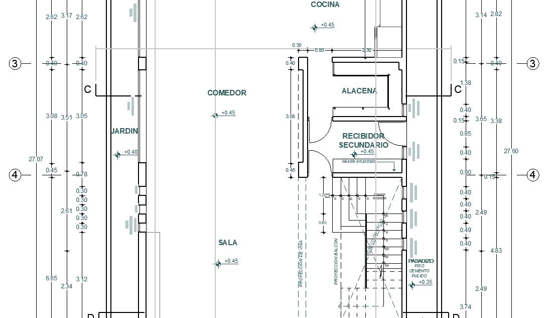
PLANTA 1 PLANTA 2 3D FACHADA INTERIOR

GRA CIAS

C O O P E R A C I O N Y C O - E X I S T E N C I A . . . m i M a x i m a

Turn static files into dynamic content formats.

Create a flipbook