Architectural Design Portfolio 2021 | Jerome Basilio

Page 1

p o
l
r t f o
i o

PROFILE

LANGUAGES

English

Tagalog

SKILLS

Computer

Adobe Creative Suite

Microsoft Office

AutoCad

Rhinoceros

QGIS

REVIT

Canon and Sony Cameras

iMovie

Final Cut Pro

SketchUp

Mac OS

PC

Manual

Conceptual sketch

Physical modelling

Hand draft

Photo collage

Laser cut (Universal LS)

877 Polson Avenue, Winnipeg, MB R2X 1M4

1.204.292.3252

basilio.eng.jerome@gmail.com

EDUCATION

2012 - 2018 Bachelor of Environmental Design Faculty of Architecture | University of Manitoba

RECOGNITION

2017 - 2018

4th Prize Barkman Design Competition (Group) Annual Landscape Architecture Design Competition University of Manitoba

Engelbert Jerome Basilio
1-6 7-8 9-10 11-12 13-14
01

PEACE TRAIL

Gretna, MB & Neche, ND (US-Canadian border)

Red River Watershed is the designated location of the studio project. The proposed Peace Trail project is located in the bordering towns of Neche and Gretna. The idea of having a project on the international border is inspired by the research conducted from the recent asylum seekers entering Canada from the United States of America. Peace Trail was also inspired by American and Canadian public spaces such as the Peace Garden west of the Manitoban province. The project was furthered more through site visits and interviews conducted through the community of Gretna and Neche. It is found that Neche and Gretna had more than 50 years of history through being the main entry port of export to having sports teams together.

The narrative of Peace Trail is set 20 to 50 years from now, the border towns would serve as an entry point for future asylum seekers, immigrants, and visitors because of government tensions and climate change. The Peace Trail is a green corridor trail that connects the rural town of Neche in the American border to Gretna in the Canadian border. The green corridor aims to flourish the deep history of the two rural towns that represent their friendship. The already existing trail in Neche is extended with prairie vegetation and various trees through Gretna. The trail also has entry points from both towns accommodating residents and visitors. The trail is connected to commercial zones and recreational spaces. Part of Peace Trail is a recreational complex of both indoor and outdoor fields.

Gretna, Manitoba | Neche, North Dakota

01
EVLU 4014 Emergent Futures Studio | Winter 2018 | University of Manitoba 02
Red River Watershed Subbasins

The Peace Trail does not only includes a forested trail but also a Sports Complex Recreational Park. The Recreational Park is created to commemorate the history of the friendship of neighbouring towns through their sports team. The park houses outdoor space for tennis, baseball, soccer, track and field, hockey, and an indoor sports centre. The park is situated south of Gretna’s High School Mennonite Collegiate Institute. Existing outdoor courts are relocated to the Recreation Park with the rural expansion west of town taking over space. The Recreation Park is also strategically placed along the border for Neche residents’ easy accessibility. The lack of a nursing home, a growing problem within Gretna’s population, was an issue that is also considered with the town’s increasing number of elderly. The nursing home is part of the Recreation Park to promote a healthy lifestyle through playing sports and is also along another entry point through the forested trail for easy accessibility. Recreation Park is also designed to attract visitors/border crossers through sports.

140 m 350 m 630 m 0 m
Section 1 Section 2
FORESTED TRAIL RETENTION BASINS RURAL EXPANSION
Bridge Perspective
03
PEACE TRAIL MASTERPLAN
4 3 1 2 3 5 6 7 1 2 3 4 5 6 7 Nursing home Sports centre Parking lot RECREATION PARK PLAN Nursing Home Perspective Sports Centre Perspective Outdoor hockey rink Tennis courts Baseball field Soccer and track field 50 m 125 m 225 m 0 m 04

The remediation process starts with land excavation and berm construction. A retention pond is constructed to ease spring flooding. Along the shoreline of Pembina river and along the retention ponds are trees and vegetation planted to extend the riparian forest. The riparian extension would help prevent the flooding moving northwards. Prairies and wetland plants are also planted, which targets better water management and water purification. The vegetations are also specifically chosen to provide habitat and resource for wildlife, promoting biodiversity to the park. The Peace trail acts as a sanctuary for all living things, humans and animal alike.

RETENTION BASIN|POND

BERM & BASISN CONSTRUCTION

PRAIRIEMEADOW SHORELINE STABILIZER AND DRAINAGE CHANNELS

Prairie Cordgrass Wild Meadow Bluejoint Reed Canary Grass Pedestrian Bridge on Pembina River Context Map
metres
Berm 5
Height fill
deep
Excavated Land 5 m
Ground Plane
05
Red
CHANNELS
Summer condtion of Retention Basin - Meadow WETLAND PLANTS
REFORESTATION
Grass Creeping Spike Rush Sandbar Willow Water Arum Sweet Gale
30 m
DECIDUOUS EVERGREEN
06
Eastern cottonwood Red Maple Black Walnut Oak Swamp White Black Willow False Indigo Black Spruce Tamarack Cedar White Balsam Fir

CHAIN REACTION

Winnipeg, MB

PLAN VIEW OF BARRIER

ASSEMBLY DIAGRAM

07 02

One of the things that we took into consideration is weight and movability. We made sure that each block unit can be easily transported from one place to another. The seating function of the proposal shows how versatile the seating area can be, in terms of transporting it and specific functions. Each unit can be used by itself for individual seats (with wooden planks) and can be grouped to form a bench or a bigger seating area. The dimensions of each block are carefully adjusted for vertical and horizontal use, depending on seating height preference. A specific function is that when it is grouped vertically (shown in the illustration) it creates spaces where you can put things on them like food or bag.

INDIVIDUAL MODEL

DIMENSIONS 08
Vehicular Crash Illustration
ASSEMBLY BARRIER MODEL
Pedestrian Benches
09 SECTION PERSPECTIVE

FOAM BLOCK

Winnipeg, MB

Foam Block is an interactive installation that triggers a familiarity with colours, game/play, and construction. A light gauge steel frame with 8 inch by 8 inch wire grid serves as a framework to hold the colourful foam cubes. The blocks piece into one another and plug into the grid to create a consistent yet continuously changing structure in the landscape.

Located along the skating path, it encourages visitors to move through and interact with space and perhaps seek warmth momentarily. Foam Block aims to create a scenario that would engage visitors in a playful way, while provoking ideas of design, creativity, space, and making.

Warming Hut Design Competition | Fall 2019 | Architects At Play 03 10 14’ 14’ 8’ 8’
8” cube polyuerathane foam light gauge steel frame with 8” wire grid ASSEMBLY DIAGRAM

HENDERSON HOUSE

Winnipeg, MB

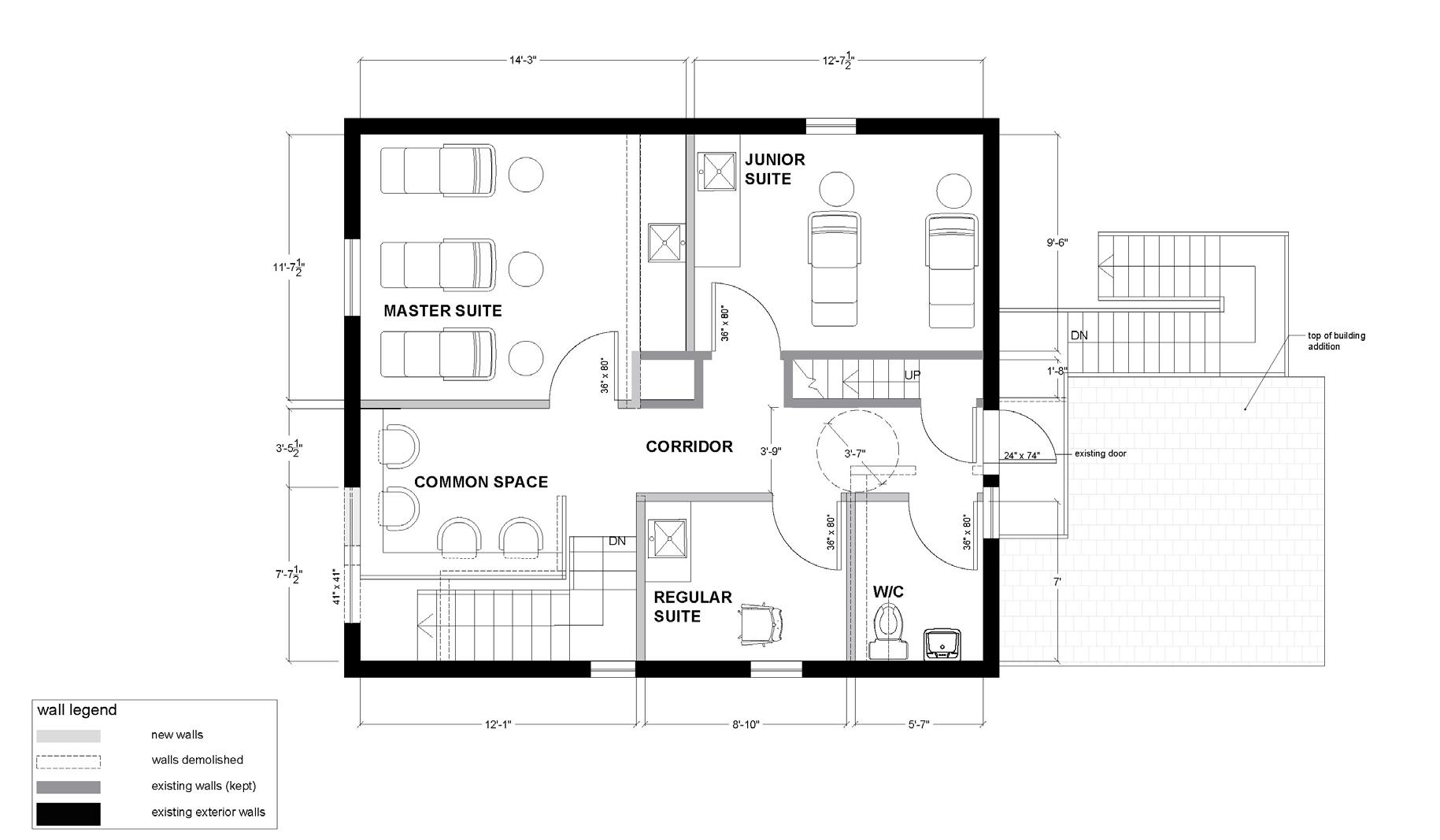
The proposal is to change the facility into a multi-use commercial renting space for individual business owners that focuses on beauty services. The commercial house was initially used as a medical clinic. The property owner wanted to convert it into more of a commercial space like the rest of the surrounding houses and buildings that they also owned.

As a team, we have decided on a proposal for greater communal use at the front area to utilize the green space that the property already has. Also, we decided to remove the stairs and convert them to a ramp for better access from the sidewalk to the property. The entrance is also at the front and back of the building. It will house 3 regular suites, 1 junior suite, and 2 master suites. The first floor will house potential hair studios and a tattoo parlor. The second floor will also potentially house hair studios, a tattoo parlor, and a nail studio.

OmniSalon Suite Proposal - Client | Summer 2021 | Architects At Play 11 04
N SITE PLAN PROPOSAL
167 Henderson Highway, Winnipeg, Manitoba

FIRST FLOOR FLOOR PLAN

SALON SUITE DESIGN PROPOSAL | PRESENTATION

SECOND FLOOR FLOOR PLAN

SALON SUITE DESIGN PROPOSAL | PRESENTATION

N N
12

SHOWROOM MOODBOARDS

Winnipeg, MB

Structube | Summer 2021

As part of the visual directive of Structube, all of the furniture within the same line has to be in the same room so clients can visualize their house with the products that we carry in different settings and for clients to easily match it from the same styles.

I am also challenged to play with colours and to make sure furniture in the same area is at a relatively close price point from budget-friendly rooms to high-end. I have to also consider the buyer’s perspective and the local interior trends that will captivate the clients to each room.

LIVING ROOM MOOD BOARD

LIVING ROOM

13 05
DULCE DAMASCUS MAURICE MAZGALA MYRTILLE TATE BLU + PEONY
LEA
TIJII DEMBA
AMOUR
ALIKA + EUCALYPTUS SHANE + FICUS LEAF PAISLEE RENFREW HANEDA HANEDA RODRIGO HANEDA RIMINI LULA HANEDA JAMMU CATI MUGZ KATIA Colour Palette

DINING ROOM MOOD BOARD

DINING ROOM

BEDROOM MOOD BOARD

MALI ALBERT ALBERT MAIA ADEN ANAYA AUREL COMB + DRACENA KAMIL REX SAMARIA SHIRLEY ARON + ARECA UMBRIA SARA YAMINA ESTHER GORZELIN + EUCALYPTUS II BAUHAUS ELLIS ARMANN
LIVIA VAUGHN KYOTO SHANY GRAYSON RODRIGO KOMAL SHANY MAYARA ORCHID DENZEL DULCE TUPELO LONDON SADIE PALM + BANYA TETRA + REINA FELIPE ADALYN ASPECT I ASPECT II SKYROS
BEDROOM 14 Colour Palette Colour Palette
f i n Jerome Basilio basilio.eng.jerome@gmail.com 1.204.292.3252

Turn static files into dynamic content formats.

Create a flipbook
Issuu converts static files into: digital portfolios, online yearbooks, online catalogs, digital photo albums and more. Sign up and create your flipbook.