Portfolio

![]()

Pursuing a Master’s of Architecture at Florida A&M University. Seeking an opportunity to develop, network, learn, and gain experience in real-world architectural design. A quick learner and works well in a collaborative setting. Individually, able to meet deadlines and will always show up ready to produce.
Tallahassee, Florida (850) 499-3219
jeremiahantoniosantos@gmail.com https://issuu.com/jeremiahsantos/docs/ jeremiah_santos_portfolio_2025
Computer Aided Design
Software
• Revit
• Archicad
• Rhino
• Grasshopper
• AutoCAD
• 2020 Design
Visualization Software
• Lumion
• Enscape
• Twinmotion
• D5 Render
• Dall•E
• MidJourney
Graphic Design Software
• Adobe Illustrator
• Adobe InDesign
• Adobe Photoshop
Other
• 3D Printing
• Laser Scanning
• Photogrammetry
JUN. 2023 - NOW
- Produced conceptual renderings for project design and presentation.
- Supporting senior architects and designers with tasks such as producing detailed drawings, writing specifications, and coordinating project details.
- Work closely with team to communicate project needs.
- Delivered drawing deadlines on time and worked well with others.
-Attending site visits to document existing conditions, monitor construction progress, and gather information for ongoing projects.
Drafter (SST), Linn's Prestige Kitchen's
FEB. 2019 - NOV. 2022
- Used CAD to draft floor plans for kitchens, baths, and more.
- Gained exposure to cabinetry as well as designing with different materiality.
- Able to read architectural blueprints and produce drawings based on them.
- Produced crown and molding detailed call outs for installer application.
EXPECTED MAY 2025
MAY. 2021 MAY. 2023
Masters of Architecture
Florida A&M University
AIAS member , NOMAS
Bachelor's of Science in Architectural Studies
Florida A&M University
HBCU Architecture Student Forum 2022
AIAS member, Clemons Rutherford Award Recipient
Associate of Arts
Northwest Florida State College
President’s List
“Ajackofalltradesisamasterofnone,butoftentimes better than a master of one.”
-WilliamShakespeare
01 03 04 02
Mass Timber in the City The Sound of the High Line Aperature
Climate + Innovation Mixed-Use in Atlanta, GA Eco-Hub in Miami, FL Viewing Tower in the Everglades Perfomance Hall, NYC





to interpret, invent, and deploy numerous methods of building systems, with a focus on innovations in wood design on a real site.
ProgramsUsed:Revit/Lumion
Atlanta is currently growing at a rate of 1.53% annually and its population has increased by 4.73% since the most recent census. It also ranks 10th economically in the nation with a GDP of $276 billion. The urban population is 4.5 million and the Atlanta metropolitan area is home to 5.6 million, making it the 9th largest in the United States. The Combined Statistical Area is even larger at 6.2 million. In addition, the diversity within Atlanta is very evident with it being the 2nd largest majority black metro area in the country.

POPULATION OF ATLANTA
498,715 (according to the 2020 Census)







extrude mass slide publicplaza



extrusion shift
Similar to the idea of Yin and Yang, the buildings form and program integration would act as the opposing forces that work harmoniously through out creating an authentic mixed-use building.

Urban Market
Community Center
Childcare
Shared Work Offices
LVL 16
green roof terrace
LVL 12-15
collaborative work spaces
LVL 11

private offices, conference rooms
urban farm
LVL 10
LVL 9
library shared common area
LVL 7-8
open indoor space (open hall room)
LVL 6
food hall, seating areas, outdoor terrace
LVL 5
outdoor seating area
roof top bar
LVL 4

lobby, classrooms offices
LVL 3
indoor playground gym
LVL 2
shared commercial kitchen
cafe, indoor seating areas, gym, classrooms, offices
LVL 1
farmers market, lobby, offices
Ground Floor
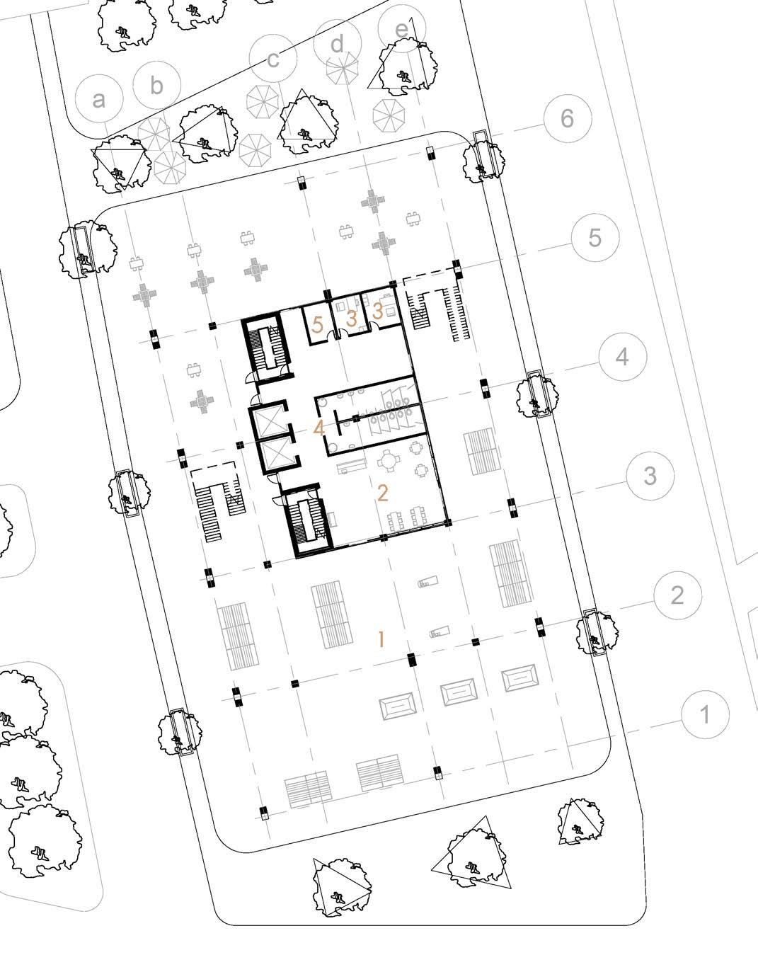
1 - farmers market

2 - lobby
3 - office
4 - restroom 5-mechanical

1 - gym
2 - sauna
3 - lockers
4 - offices
5 - indoor playground
6 - mechanical
7 - restroom

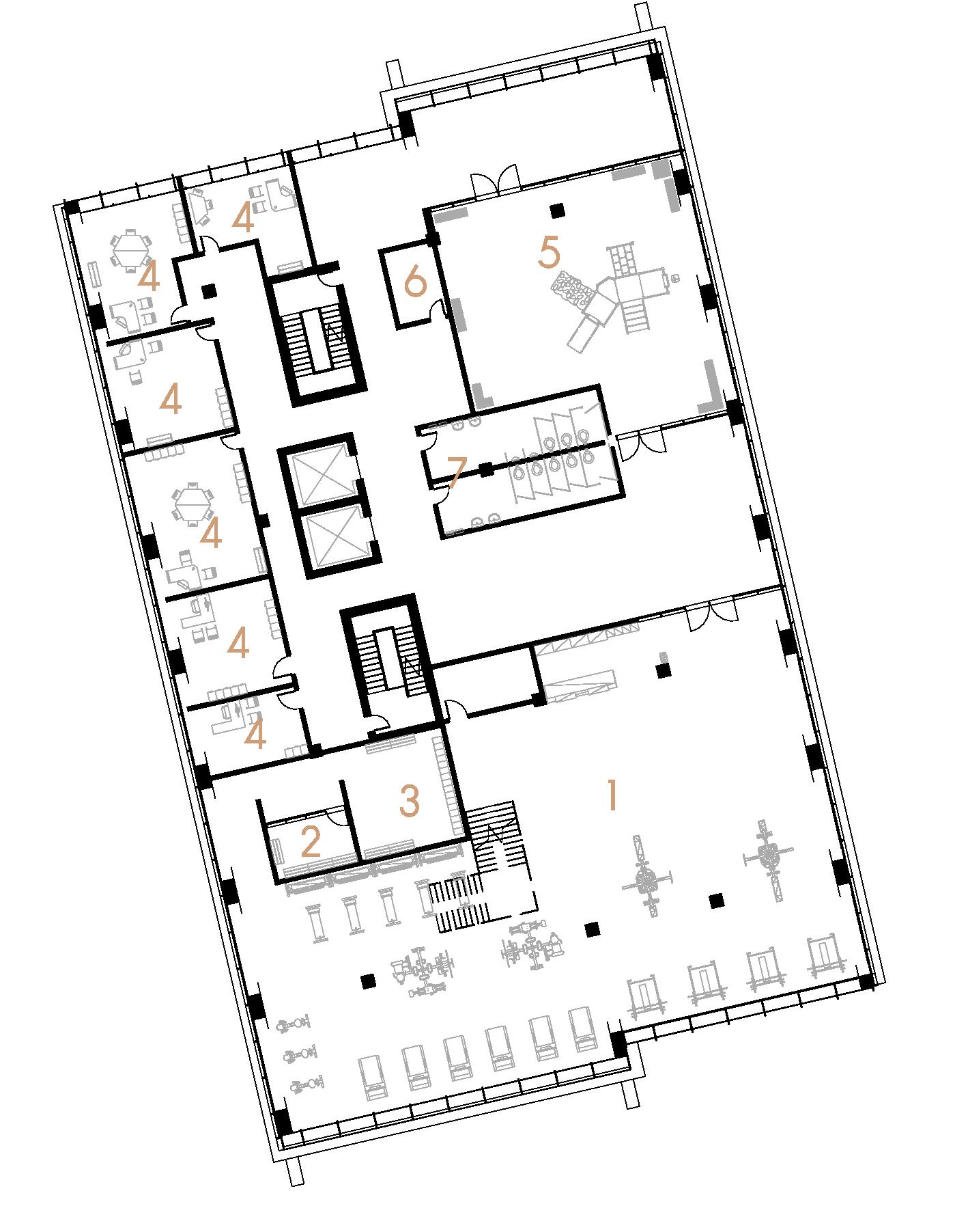
1 - shared office space
2 - conference room
3 - private office space
4 - lounge area
5 - kitchenette
6 - printer room
7 - mechanical
8 - restrooms




1 - vertical wood louvers for sun shading
2 - double pane insulated glazing unit
3 - stainless steel framing structure for curtain wall
4 - aluminum tenon connection for louver stability
5 - interior threaded steel rod

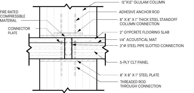
1 (beam to column)

2 (column to column)
Pereformance Hall in NYC
Nestled along the iconic High Line in New York City, this performance hall reimagines the intersection of architecture, urban life, and artistic expression. Designed as both a cultural landmark and a seamless extension of the city’s elevated park, the venue fosters an immersive experience where performance and public space converge.
ProgramsUsed:Revit/Lumion



The concept of “Fragmentation & Floating” for the performance hall along the High Line responds to the site’s layered urban context by deconstructing traditional massing and elevating key programmatic elements.

siteboundary
extrude mass slice mass

createheirarchy pushattheentry
transparency



































































Screen & Enclosure































































































































































































































































Placing the entrance of my building facing that side creates a continuous path from the Hudson towards the performance hall. The inclusion of an entry located on the High Line level creates a distinct connection with the building as it provides users with another destination access.

Incorporating one main control room for the HVAC System allows for easy handling and access when needed including access to the chiller and boiler. This is located on the ground level. From there each level is equipped with an air condition handling unit to help with flow throughout the building. Lastly a cooling tower is placed on the roof.
































































































































Facade Panel Assembly




























1 - aluminum flashing fascia plate w/sealant continuous metal cleat/termination w/ fasteners
2 - facing pre-cast concrete wall w/ airgap and water proofing tied to 6” metal stud with batt insulation
3 - cant strip
60m pvc flashing
60m fleece backed membrane
4 - tapered concrete deck over bituthene waterproofing membrane galvanized corrugated structural metal roof deck
5 - custom aluminum mesh kinectic facade panels
6 - double pane low-e insulating glass
7 - extended aluminum mullion connection to a rod profile, w/ horizontal actuator and actuator bracket to activate kinectic facade
8 - aluminum spandrel panel
9 - steel column reinfored and encased in concrete
10 - secondary wide flange steel beam with fire protective spray
11 - primary wide flange steel beam with fire protective spray
12 - suspended 12 gauge ceiling wire tied to modular ceiling panel
13 - 4” concrete floor slab on 3” metal deck fastened to curtain wall
14 - steel base plate with anchor bolts on leveling grout tied into reinforced concrete foundation
15 - concrete slab above water proofing and compacted fill
16 - cast-in-place reinfored concrete wall
17 - 4” diameter perforated drain pipe with water proofing
18 - reinforced concrete footing
19 - existing pavement









Eco Hub in Miami, FL
a mixed use building supporting both education, exhibitions, innovative co-working spaces, and engaging environmental innovation by supporting emerging environmental technology startups.
ProgramsUsed:Revit/Lumion













































































































EXHIBIT

























polycarbonate panels reinforced with metal vertical louvers















to consider the adaptive reuse / modification of an existing structure, by proposing a new enclosures / envelope to improve the visitor experience.
ProgramsUsed:Rhino/Grasshopper




With development increasing in South Florida during the mid 1800’s, Efforts to dredge and drain the everglades were in full effect. Canals and levees were created to drain and reclaim the wetlands for urban and agricultural use, to store and provide water to developed areas, and to provide flood control. They have met those objectives but, in the process, have transformed the landscape and ecology of south Florida.


branchingout/fibrous/threaded


shutter/apertures/openings





Custom Shade Cell



