REFERENTES DE HOTELES NACIONAL E INTERNACIONAL

Page 1

PRADEEP KODIKARA & JINESHI SAMARAWEERA

HOTEL KUMAON

Ubicado en el pueblo de Kasar Devi, la India. Región, kumaon

El día más corto es el 22 de diciembre, con 10 horas y 15 minutos de luz natural; el día más largo es el 21 de junio, con 14 horas y 3 minutos de luz natural

La temporada de lluvia es caliente, bochornosa y parcialmente nublada y la temporada seca es cómoda y mayormente despejada

La temperatura máxima promedio de 26ºC y la mínima de 19 °C

El período más húmedo del año dura 4 meses, del 5 de junio al 5 de octubre, El mes con más días bochornosos en Almora es Agosto, con 27 3 días bochornosos

Las diez villas de lujo son un ejemplo de respeto por el paisaje y el entorno ya que no se ha sometido a la tierra al edificio, sino que se ha integrado como si siempre hubiera estado ahí Las villas se encuentran separadas en el paisaje, dando privacidad a cada habitación y con vistas a las magníficas montañas de Nanda Devi en la distancia Kumaon no solo destaca por su magnífico diseño, sino por su localización

UBICACIÓN CLIMA
ÁREA CONSTRUIDA: AÑO Pradeep Kodikara y Jineshi Samaraweera 29.66090434944792,
1160 m² 2017
ARQUITECTO: COORDENADAS:
79.67194959016773

MATERIALIDAD

El acabado interior busca la simplicidad rústica

MADERA DE PINO LOCAL :

• Piso madera

• Puertas

• Ventanas

• muebles 'KOTA', UN GRANITO INDIO:

• Terrazas

• balcones

HORMIGÓN DE KADDAPA:

• muros

• Sistemas estructurales

ACERO:

• voladizo

• Estura de soporte pared 2nivel

los tres lados del comedor también se cubrieron con palos de bambú para reducir el impacto visual de la voluminosa estructura de acero

Los plafones de hormigón se mantienen sin revocar, al igual que las paredes de cenizas volantes acabadas con solo una capa de pintura en el interior

ladrillos de cenizas volantes

se cubrieron con palos de bambú para dar una sensación de ligereza

piedra extraída de una cantera cercana

POSICIONAMIENTO

Este proyecto se encuentra infiltrado , y con un volado en su volumen , tiene una perspectiva de suspendido, ganando visuales a profundidad en su entorno.

2 INFILTRAR APOYAR

VARIANTES DE POSICIONAMIENTO

Con este posicionamiento , el proyecto logra enmarcar visuales a su entorno , generando calidad y placides al momento de utilizar los diferentes espacios

3 SUSPENDER

Su orientación hacia el norte y la altura de su nivel de emplazamiento, permite tener visuales profundas del entorno próximo y lejano

HIMALAYA

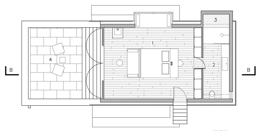
PROGRAMA:

ENTRADA CAMINO A PIE CHALETS SALÓN RESTAURANTE AGUA DE LLUVIA CUARTO DE SERVICIO COMIDA RICA
PROGRAMA
PROGRAMA

TUKI LLAJTA - LODGE

Ubicado en la región Junín, San Jerónimo de Tunán, en el corazón del valle

La temperatura máxima promedio 17ºC y la temperatura mínima es de 2ºC

La temporada de lluvia dura 5 4 meses, de octubre a abril, el mes con más lluvia es Febrero, con 33 milímetros de lluvia.

el día más corto dura 11 horas y 25 minutos de luz natural; el día más largo 12 horas y 50 minutos de luz natural

ALTITUD: 3383 m.s.n.m.

En la temporada mas ventosa la velocidad promedio de 11 km/h Y la menos es de 8 4 km/h

ÁREA CONSTRUIDA: 1639 m² aprox

Es un alojamiento ubicado en la cima de una loma, construido con una arquitectura adaptada al entorno, y con materiales autóctonos y detalles que definen la auténtica calidad de vida.

UBICACIÓN CLIMA

TEJAS

LADRILLO+CONCRETO

ACTIVIDADES

Gastronomía Actividades culturales

Convivir con la naturaleza(vicuñas)

Fogatas al aire libre

ACTIVIDADES EXTRAS

Visitas guiadas a nevados

Visitas guiadas a centros arqueológicos

Visitas al valle Del Mantaro

Caminatas por la colina

MATERIALIDAD MADERA PIEDRA
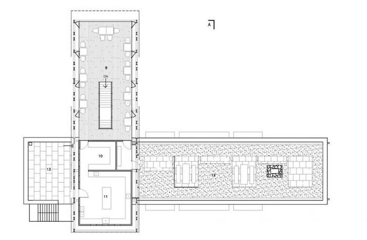
PROGRAMA

POSICIONAMIENTO

Este proyecto se encuentra infiltrado , en una topografía aterrazada , generando espacios desnivelados y con diversas visuales a su entorno

VARIANTES DE POSICIONAMIENTO

Con este posicionamiento el proyecto logra enmarcar visuales a su entorno

ESTRATÉGIAS

Turn static files into dynamic content formats.

Create a flipbook
Issuu converts static files into: digital portfolios, online yearbooks, online catalogs, digital photo albums and more. Sign up and create your flipbook.