Untitled Design

Page 1

JENNIFERSHERIDAN INTERIOR DESIGN PORTFOLIO Jensheridan15@gmail.com 631-624-6351 LinkedIn

SKILLSANDABILITIES

AUTOCAD SKETCHUP

IVY INTERIOR DESIGN

CET COMMERICAL INTERIORS

INDESIGN ORGANIZED

ABILITY TO MULTITASK

2

TABLEOFCONTENTS

Project 1: New York City Loft

Project 2: Transitional Housing

Project 3: Zest Retail and Bar

Project 4: Contract Documents

3

PROJECT1

New York City Loft

This partner project's goal was to create an Art Deco-style apartment that needed to be functional for a single 38-year-old man and his parents, whose mother is disabled. This project intends to bring back the aesthetics from the roaring twenties 100 years later. The space is meant to be jaw-dropping with bold blues, greens, and gold accents. Intended for a historyloving bachelor, I wanted to incorporate the looks of the 1920s, a significant part of New York City's captivating history, but with a 21st-century twist. AutoCAD and SketchUp skills were used to develop an apartment based on the client's desires. All materials, cabinets, and furniture were hand-selected to create a seamless Art Deco appearance while suiting the client's sustainable and ADA- accessible needs.

4

ADA COMPLIENT KITCHEN

The kitchen was designed to be ADA-accessible for the client's mom. The toe kick along the base cabinets is 9" high and deep to accommodate ADA guidelines. All appliances are eco-friendly, and the cabinets are solid black painted oak. The countertops are marble, and the backsplash is a white herringbone tile to make the space feel brighter and more prominent.

Chester Ceramic Backsplash Nia Bar Stool
5
Garrison Round Pendant Kohler Purist 3inch Cabinet Pull Electric Blinds

OFFICE

The office is a chic, Art Deco design that accommodates all of the clients needs. The space was strategically placed in the second-floor corner to allow plenty of natural light. On the backside of the wall is a solid black oak storage unit that is durable and ecofriendly. Art Deco wallpaper and gold accessories finish off the room, making it the perfect office space for the client.

Brandt Comfort Sleeper S1
6
Staggered Glass Floor Lamp Liam Chair
Delancey Wingback Chair
Mutchler Desk D1

MASTER BEDROOM

The master bedroom fits the perfect aesthetic of NYC architecture. The space allows plenty of natural light to make the space feel more open. The olive green paint. millwork, gold-painted case ceiling, and a sunburst headboard genuinely bring the Art Deco concept to life.

Deco Sun Headboard Grooves Easy Care Rug
R1
Hand Carved Thalia Nightstand N1
7
Olive Green Paint

MASTER BATHROOM

Keeping the same olive-colored walls as the master bedroom makes the space flow nicely. To the left of the entry door is a large walk-in closet with custom cabinetry. A spacious walk-in shower and a large tub with white subway tiles make the space feel very open. The green mosaic flooring breaks up the space, adding contrast. A large L-shaped double vanity provides plenty of storage. The floor pattern provides eye appeal to contrast with the solid colors provided on the walls.

Uttermost Devoll Gold Rectangular Wall Mirror Blair Lever Handle Widespread Bathroom Faucet Fontana 12" Gold Round Rain/Square Shower Head 8 Affinity Tile Monteca Olive Green Paint

PROJECT2

Transitional Housing

This partner project will be a facility with spaces that support community members partnering with local community organizations such as the Isabella Community Restoration House (ICRH), the Central Michigan District Health Department (CMDHD), the Mount Pleasant Area Diversity Group, and the Michigan Economic Development Corporation. The center is committed to diversity, equity, and inclusion (DEI). It will focus on health/wellness, current work environment trends, and transitional housing to address critical opportunities for marginalized community members. The facility will support community members regardless of age, race, gender, sexual orientation, gender identity, religion, cultural background, ethnicity, socioeconomic status, educational level, or disabilities.

9

CONCEPT Sustainable

Concept Statement: Giving all individuals in the community the ability to become sustainable by balancing their needs, goals, and dreams through support and guidance.

10

Floor Plan Concept

The floor plan of Drexel University's Millennium Hall was used as the concept for designing the transitional housing level. Along the sides of the building are apartments meant for families, couples, and single individuals. Each apartment has a fully stocked kitchenette. Every family apartment has a full bathroom. A full communal kitchen and a common room area are centrally located. This floor plan allows easy movement throughout the space and also provides an equal amount of natural sunlight for each room.

Final Floor Plan

Transitional Housing Floorplan

Drexel University Millennium Hall

11
Inspiration

Well Building Standards

The WELL Building Standard® is a performance-based system for measuring, certifying, and monitoring features of the built environment that impact human health and well-being, through air, water, nourishment, light, fitness, comfort, and mind.

Specifying water-saving toilets and showers helps reduce the water used.

Providing the areas with VOC Reduction of paint, fabrics, and materials. Screened-in doublehung windows throughout the building easily bring fresh air.

Integrating LED lighting and skylights to optimize comfortable lighting.

Adding acoustical subflooring material increases the comfort of the area. All areas are designed for accessibility to create comfort for all.

The cafe is located in the basement of the building, which encourages movement to different areas. The co-working space in the basement provides active workstations like sit and stand desks. Both stairwells are easily accessible for use.

Hand washing supplies are found throughout the areas. There is food storage provided in every apartment and the communal kitchen.

Health and wellness awareness by following WELL Building Standards.

J if Sh id 12
AIR LIGHT THERMAL COMFORT
MIND
WATER MOVEMENT NURISHMENT

Types of Apartments

The family and single-family bed apartments are very spacious to accommodate all family sizes. These rooms are all painted in snowbound white with a light wood-colored LVT. Each of these rooms comes equipped with a fully stocked kitchenette. The kitchenette has a full-size refrigerator and a deep sink. The family-sized apartments are the only ones planned with a full bathroom.

Family sized apartment Studio Apartment Family Apartment Bathroom West Elm Bed
Credenza D1
West Elm
Night Stand N1 13
West Elm
Brandt
Comfort Sleeper S1

Kitchen Standards

The apartment kitchenettes consists of light grey cabinetry, a sink, a refrigerator, and a microwave. The communal kitchen has two ovens and a refrigerator for cooking.

Communal Kitchen
Apartment Kitchen
Quartz Countertop White Subway Tile Backsplash Light Gray Cabinetry Samsung Refrigerator Samsung Oven 14

Communal Bathrooms

Throughout the second floor, there are five communal ADA bathrooms. These bathrooms are all painted in snowbound white with blue rubber flooring. These selections were chosen because the white walls make the space seem larger and the rubber flooring prevents slipping. The toilet and shower have water saving capabilities. All lighting within this space has LED bulbs.

15
Gracelyn Collection Kohler Toilet Uline Trash Can Scarabeo Sink Rubber Flooring

PROJECT3

Zest Retail and Bar

This is a partner project whose building exists in Mt.Pleasant, MI, and could be relocated anywhere in the U.S., but it needs to be planned for retail and restaurant spaces. This building was relocated to Montauk, NY, and was planned to sell clothing, a family-friendly restaurant, and a 21+ night club.

16

CONCEPT

"Zest"

Concept Statement: "Zest" is the concept of the project. The meaning of "Zest" derives from the word "enthusiastic" and "energetic." From location and demographic research, the lively environment of "Zest" will interest visitors. The "zesty" and upscale elements of the building will encourage visitors to enjoy themselves and connect with others.

17

Entry

The entryway has floor-toceiling wallcovering, concrete flooring, two sofas with emerald green commercial-grade fabric, and a chandelier. The name of the restaurant was added to reinforce branding through the signage. The lighting fixture matches the other lighting throughout the building. The host stand on the right keeps new customers in one place before getting seated.

Emerald Green Velvet Upholstery
Wallcovering if Sh id 18 Concrete Flooring
Hostess Stand Key to plan LynPon Modern Gold Ceiling Light

Restaurant Seating

Different seating selections were chosen to make the space more exciting, which goes with our concept, "zest." The table seating has tiled flooring underneath, while the rest is concrete for easy maintenance. Also, the wallcovering is being installed behind the booths and entryway to break up the colors in the space. Each chair has a gold body with commercial-grade mauve and emerald green commercial-grade upholstery for the booths. We chose circle booths to reinforce an organic line to tie in with the different seating options.

S4
S3
S2
Booth Seating
Emerald Green Velvet Circle Booth Seating
Dining Chairs
19
Sputnik Bulb Chandelier Tile Flooring

Restaurant Bar

The pink chairs and gold accents in the second floor bar repeat the color scheme from the other floors to create repetition. Also, the tile and mirrored wall behind the bar give an exciting and fun feel that can be described as zestful.

S1
20
Bar Stool
Backsplash Chandelier Over Bar
Marble Countertop Branch Rectangle Table T2

Zest Night Club

The furniture in the thirdfloor bar is repeated from the second floor. This allows seating to be moved as needed and to inventory a limited selection. There is greenery on the ceiling to incorporate plants. White subway tile is used for the back bar wall, and a lightup sign for "Zest Bar." The dance floor and DJ booth area will create a stimulating and enjoyable environment.

Table Seating Chandelier Over Table Chandelier Over Bar
21
Standing Table Dance Floor Tile

Zest Night Club Bar

The bar design has a marble-like quartz countertop, mauve performance velvet bar stools, and three commercial-grade sputnik pendants. The backsplash is a white subway tile that helps contrast the gold shelves and light-up LED signs. The bar counter and shelves have an LED light strip to illuminate such spaces (not shown).

S1
Bar Stool Chandelier Over Bar White Subway Tile Backsplash
22
Marble- Like Quartz Countertop Concrete Flooring

PROJECT4

Contract Documents

Contract Documents were prepared for a commercial interior design firm located on the 6th floor of a 6-story building. The space will be used as their office and studio.

23

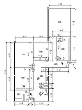
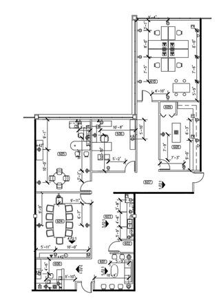
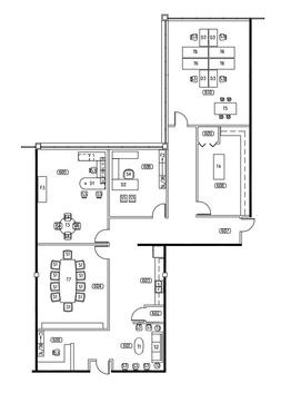
Demolition Plan

24

Construction Plan

25

Furniture Plan

26

Power and Data Plan

27

Room Finish Schedule

28

Reflected Ceiling Plan

29

Elevations and Wall Details

30
Contact Information THANKYOUFORVIEWING 631-624-6351 Jensheridan15@gmail.com LinkedIn Naples, Fl 31

Turn static files into dynamic content formats.

Create a flipbook
Issuu converts static files into: digital portfolios, online yearbooks, online catalogs, digital photo albums and more. Sign up and create your flipbook.