ANÁLISIS URBANO GRÁFICO TÉCNICO - DISTRITO DE SAN BORJA

Page 1

REGLAMENTACIÓN

6.7.1. ZONIFICACIÓN

PLANO DE ZONIFICACIÓN (SAN BORJA)

Conclusiones:

Se verifica que San Borja es un distrito residencial mayoritariamente de densdad baja, con un Comercio Zonal en Avenidas Principales

FUENTES: Elaboración del Análisis y la Postproducción Fuente Propia | Plano de Zonificación del Distrito de San Borja | Municipalidad de San Borja

ESTUDIANTES:

ESTUDIANTES: ANÁLISIS URBANO

JESSICA ALEXANDRA ZAMORA QUINTOS....

SHIRLEY NATALIE FIGUEROA TUTAYA...

JHAIR JIMENEZ DAVILA....

JESÚS MIGUEL ARQUIÑEGO BARTUREN...

JENNIFER IVONNE OLAYA TAFUR...

CÁTEDRA:

OMAR ANGELO WINCHO CHILQUILLO

GIOVANNA MARIELEE ROSADO DAVIRAN

CURSO:

FACULTAD:

TALLER DE ARQUITECTURA 6

ARQUITECTURA Y DISEÑO

LÁMINA: L-35

Residencial Baja 60% Residencial Media 20% Residencial Alta 20% Otros 65% Comercio Zonal 25% Comercio Vecinal 10%
verifica:
RESIDENCIAL 6.7. REGLAMENTACIÓN
Del Plano se Zonificación Se
COMERCIO

REGLAMENTO DE EDIFICACIONES Y NORMAS COMPLEMENTARIAS DE LA ZONIFICACIÓN DEL DISTRITO DE SAN BORJA

PARÁMETRO URBANO C. GENERALES

Municipalidad de San Borja

ESTACIONAMIENTOS

Uso privado. La norma considera también condicionamientos especiales

APLICACIÓN PLANO DE ALTURAS

Según el número de pisos:

ÁREA MINIMA DE VIVIENDA

A excepcion de viviendas unifamiliares, se considera el siguiente cuadro, para las viviendas

PLANO DE ÁREAS DIFERENCIADAS

FUENTES:

Elaboración del Análisis y la Postproducción Fuente Propia | Plano de Zonificación del Distrito de San Borja | Municipalidad de San Borja

ÁREA LIBRE PARA RESIDENCIALES

Según el plano de áreas diferenciadas

ESTUDIANTES: ANÁLISIS

URBANO

ESTUDIANTES:

JESSICA ALEXANDRA ZAMORA QUINTOS....

SHIRLEY NATALIE FIGUEROA TUTAYA...

JHAIR JIMENEZ DAVILA....

JESÚS MIGUEL ARQUIÑEGO BARTUREN...

JENNIFER IVONNE OLAYA TAFUR...

CÁTEDRA:

OMAR ANGELO WINCHO CHILQUILLO

GIOVANNA MARIELEE ROSADO DAVIRAN

CURSO:

FACULTAD:

TALLER DE

ARQUITECTURA 6

ARQUITECTURA Y DISEÑO

LÁMINA: L-36

6.7.2.
PARÁMETROS URBANOS
A C B E D

PARÁMETROS URBANOS

FUENTES: Municipalidad de San Borja | Gerencia de Desarrollo Urbano y Catastro

ESTUDIANTES: ANÁLISIS URBANO

JESSICA ALEXANDRA ZAMORA QUINTOS............15%

SHIRLEY NATALIE FIGUEROA TUTAYA..................20%

JHAIR JIMENEZ DAVILA.........................................20%

JESÚS MIGUEL ARQUIÑEGO BARTUREN................15%

JENNIFER IVONNE OLAYA TAFUR..........................18%

CÁTEDRA:

OMAR ANGELO WINCHO CHILQUILLO

GIOVANNA MARIELEE ROSADO DAVIRAN

CURSO: TALLER DE ARQUITECTURA 6

FACULTAD:

ARQUITECTURA Y DISEÑO

LÁMINA: L-37

6.7.2.

VIII .- PROPUESTA URBANA Y DE EQUIPAMIENTO

8.1.- Plano de Ubicación del terreno del proyecto (03 propuestas).

8.2.- Criterio de selección del terreno del proyecto (03 propuestas).

8.3.- Propuesta elegida .

.8.4.- Micro análisis – Propuesta elegida

ÍNDICE

VIII .- PROPUESTA URBANA Y DE EQUIPAMIENTO

7.2.- Problemáticas encontradas, diagnóstico centrado al objeto arquitectónico y tipología.

7.2.1.- Diagnostico

General del Distrito.

8.5.- Programa arquitectónico – Propuesta elegida

8.6.- Criterio de diseño – Propuesta elegida

IX .- CONCLUSIONES

X .- REFERENCIAS

7.2.2.- Diagnostico Particular del Distrito.

7.2.3.- Tipología del Proyectos en relación con el distrito sector.

7.2.4.- Referentes arquitectónico (03 propuestas).

PROBLEMATICAS SOCIALES REGISTRADOS

DE EQUIPAMIENTO DE SEGURIDAD

PEA SEGÚN OCUPACIÓN PRINCIPAL

Profes., científicos e intelectuales

Técnicos de nivel medio y trab. asimilados

Jefes y empleados de oficina

Trab.de serv. pers.y vend. del comerc

Obreros. construc., conf.,papel, fab.,instr

Obreros y oper.minas,ind. manuf.y otros

Miembros p.ejec. y leg. direct.,adm. pub.y emp

Ocupación no especificada

2.7%

1.3%

1.6%

Mayormente entre las 7am a 10am

Mayormente entre las 7pm a 11pm

FUENTES: https://www.inei.gob.pe/media/MenuRecursivo/publicaciones_digitales/Est/Lib1714/Libro.pdf

ESTUDIANTES:

CÁTEDRA:

CONCLUSIONES

Se concocelatendenciadelademanda vehicular en las principales vías e intersecciones del distrito, existe congestión vehicular en dos horarios marcados,enlamañanaynochedonde los habitantes hacen sus jordanas laborales.

Analizando el reporte de la Central de Emergencias del distrito, encontramos que hubo un incremento los delitos contra el patrimonio (hurto de accesorios de vehículos, robo a transeúntesyrobodevehículos.

Seencontroporcentajesdeinfeccionesa la via respiratoria, enfermedades endocrinas y nutricionales, ya que en el distritodeSanBorjaexistenlugarescon altaconcentracióndegente,cambiosde temperaturaytabaquismopasivo.

FACULTAD: CURSO: LÁMINA:

60 40 20 0
VEHICULAR AREA
RENOVACIÓN
TRÁFICO SERVICIOS DE SALUD ESPACIOS PUBLIICOS FALTA
INTENSIDAD
DE
URBANA CONGESTIONAMIENTO VEHICULAR
32% PRINCIPALES
18% 49% DESDE SAN BORJA HACIA SAN BORJA 34% 50% 15% AUTO TAXI TRANSPORTE PUBLICO
MODOS DE ACCESO/SALIDA
DIAGNÓSTICO GENERAL DE SAN BORJA DIAGNÓSTICO
ARQUITECTURA Y DISEÑO TALLER DE ARQUITECTURA 6 L-38
OMAR ANGELO WINCHO CHILQUILLO GIOVANNA MARIELEE ROSADO DAVIRAN JESSICA ALEXANDRA ZAMORA QUINTOS.... SHIRLEY NATALIE FIGUEROA TUTAYA... JHAIR JIMENEZ DAVILA.... JESÚS MIGUEL ARQUIÑEGO BARTUREN... JENNIFER IVONNE OLAYA TAFUR...

DIAGNÓSTICO PARTICULAR DEL DISTRITO

ESTRATEGIAS

la accesibilidad busca la inclusion de todos los ciudadanos en los espacios publicos y privados

Educación Superior Tecnológica 5 PROBLEMATICA

Se realizó un mapeo deL Distrito de San Borja donde no existen muchas Educaciones Superiores.

Implementar de equipamientos y mobiliarios de talleres de diversas areas requeridas

Estrategia de aprovechamiento de tiempo libre de los estudiantes, mediante espacios recreativos "ocio".

Implementacion de espacios con areas verdes ya que brinda una sensación de paz y tranquilidad,

Dos Institutos se encuentran ubicados en zonas que no son ideal para el aprendizaje, alto vandalismo y con poco acceso a los servicios basicos.

Se propone plantear una Educación Superior Tecnologica, siendo el objetivo principal los jovenes e adultos donde permitan desarrollar su potencia y alcanzar sus metas.

En el cuadro nos indica un total de 119 Instituciones Basicas en el Sistema privado y publico, en comparacion al cuadro Superior que solo tiene 3 Instituciones Privadas.

MATRICULADO EN EL SISTEMA

Por motivos economicos y financieros, la mayoria de los estudiantes dejan el estudio y se dedican a laborar

Se disminuyo la tasa de creciemiento anual a -1.40% de matriculandos en el sector basico del 2018 al año siguiente. En el 2019 se matricularon 3486 estudiantes, donde el crecimiento sigue siendo desfavorable.

CONCLUSIONES: Según el Distrito de San borja, se analisa las primeras problematicas encontradas en el ambito educativo, como la falta de Instituciones Superiores, falta de de economia y la igualdad social. Se propuso diversas estrategias favorables para la zona elegido, tomando en cuenta a los usuarios y el entorno.

https://www.munisanborja.gob.pe/wp-content/uploads/2019/11/Parte-4-Diagn%C3%B3stico-distrital..pdf

ESTUDIANTES:

JESSICA ALEXANDRA ZAMORA QUINTOS....

DIAGNÓSTICO

SHIRLEY NATALIE FIGUEROA TUTAYA...

JHAIR JIMENEZ DAVILA....

JESÚS MIGUEL ARQUIÑEGO BARTUREN...

JENNIFER IVONNE OLAYA TAFUR...

OMAR

PRIMARIASECUNDARIAN. UNIVERSITARIOUNIVERSITARIO 750 500 250 0
MAYOR INSTITUCIONES DE NIVEL BASICO FALTA DE ECONOMIA DESIGUALDADES SOCIALES
TRABAJO POR NIVEL EDUCATIVO ALCANZADO BASICA REGULAR INICIALSECUNDARIATOTALPRIMARIA 164SISTEMA266 E. PUBLICO 56179320 SISTEMA E. PRIVADO BASICA REGULAR BASICA ALTERNATIVA 22SISTEMA E. PUBLICO SISTEMA766 E. PRIVADO BASICA ESPECIAL BASICA PRODUCTIVA SUPERIOR NO UNIVERSITARIA PEDAGÓGICAARTÍSTICATOTALTECNOLÓGICA -SISTEMA E. PUBLICO 33 SISTEMA E. PRIVADO SUPERIOR NO UNIVERSITARIA PEDAGÓGICAARTÍSTICATOTALTECNOLÓGICA -SISTEMA E. PUBLICO 3 SISTEMA3486486 E. PRIVADO BASICA REGULAR INICIALSECUNDARIATOTALPRIMARIA 19522766SISTEMA79283210 E. PUBLICO 28552996SISTEMA96633812 E. PRIVADO BASICA REGULAR BASICA ALTERNATIVA 12299SISTEMA E. PUBLICO SISTEMA377139436 E. PRIVADO BASICA ESPECIAL BASICA PRODUCTIVA NUMERO DE EDUCACIONES EDUCATIVAS
EDUCATIVO
60.7% 20% 15.5% 3,8%
CÁTEDRA: FACULTAD: CURSO: LÁMINA:
DISEÑO
L-39
ANGELO WINCHO CHILQUILLO GIOVANNA MARIELEE ROSADO DAVIRAN
ARQUITECTURA Y
TALLER DE ARQUITECTURA 6

4 AÑOS

DURACIÓN

Para el caso de ESU (Educación Superior Universitaria).

INSTITUTO DE TURISMO

Forma personas en los campos de la ciencia, tecnología y social ,para contribuirconsudesarrolloindividual, social. Adquiriendo los conocimientos oportunos para conocer a fondo este entorno tan importante en la actualidad..

INSTITUTO DE D. DE MODAS

3 AÑOS

DURACIÓN

Para el caso de IESTP (Instituto de Educación Superior Tecnológico Público).

Es una disciplina que integra diversos componentes de orden socio cultural , tiene el objetivo de analizar el mercado global e idear el mejor producto, de acuerdo a la demanda de necesidades y preferencias.

INSTITUTO DE COMERCIO

3 AÑOS

DURACIÓN

Para el caso de IESTP (Instituto de Educación Superior Tecnológico Público).

ZONA DONDE FALTA IMPLEMENTACION:

Se crea profesionales para un mundo empresarial. Por ende adquieren conocimientos y habilidades practicas en negocios y comercio

CONCLUSIONES: Se realizo un diagnostico del Distrito con el objetivo de tener puntos claves de institutos como referentes de moda y comercio y lugares destacados para la economia laboral como espacios publicos de centros culturales, agencias y centro comerciales, como resultado positivo de la investigacion donde San borja esta con mayor potencia en el ambito laboral.

https://www.munisanborja.gob.pe/wp-content/uploads/2019/11/Parte-4-Diagn%C3%B3stico-distrital..pdf

INSTITUCIONES SUPERIORES ESTUDIANTES:

JESÚS

JENNIFER

C. CULTURALES
TIPOLOGIA AGENCIA DE VIAJE
CENTROS COMERCIALES
CÁTEDRA: FACULTAD: CURSO: LÁMINA:
OMAR
GIOVANNA
ARQUITECTURA Y DISEÑO TALLER DE ARQUITECTURA 6 L-40
DIAGNÓSTICO
ANGELO WINCHO CHILQUILLO
MARIELEE ROSADO DAVIRAN JESSICA ALEXANDRA ZAMORA QUINTOS.... SHIRLEY NATALIE FIGUEROA TUTAYA... JHAIR JIMENEZ DAVILA.... MIGUEL ARQUIÑEGO BARTUREN... IVONNE OLAYA TAFUR...

CRITERIO DE ELECCIÓN BASADO EN UN INSTITUTO QUE GOCE DE CALIDAD URBANA

UBICACIÓN

Av. Javier Prado Este , Av. Del Aire y Ca. de Las Letras

Av. San Luis con Av. Julio Bailletti

PARÁMETROS

1.16 Ha. Terreno Baldío

Menor a 1 Ha. Terrenos Construidos destinados a Vivienda

ENTORNO

CONCLUSIONES

FUENTES: Google Earth

DIAGNÓSTICO

Frente a la Rambla

Aledaño a Zonas Comerciales

Detrás de Zona Residencial

: Se escoge la Opcion 01

ESTUDIANTES: CÁTEDRA:

JESSICA ALEXANDRA ZAMORA QUINTOS....

SHIRLEY NATALIE FIGUEROA TUTAYA...

JHAIR JIMENEZ DAVILA....

JESÚS MIGUEL ARQUIÑEGO BARTUREN...

JENNIFER IVONNE OLAYA TAFUR...

Frente a Vegetación

Aledaño a Instituto ADEX

Paralela a la Av. Javier Prado.

Av. San Luis y Av. Ludwig Van Beethoven

Menor a 1 Ha. Autiparking de Empresa Volkswagen

OMAR ANGELO WINCHO CHILQUILLO GIOVANNA MARIELEE ROSADO DAVIRAN

Al costado de un parque Aledaño a Colegio Maria Milagrosa Colidante a zonas residenciales..

FACULTAD: CURSO: LÁMINA:

TALLER DE ARQUITECTURA 6

ARQUITECTURA Y DISEÑO

PRIMERA OPCIÓN 02 SEGUNDA OPCIÓN 8.2. CRITERIO DE
DEL TERRENO DEL PROYECTO
SELECCIÓN
01 03 TERCERA OPCIÓN
L-41

LEYENDA

Terreno Escogido

Se verifican que todos los terrenos, son aledaños a Zonas Comerciales y Residenciales.

Así mismo tdos los terrenos están cerca a Av. Principales.

Los terrenos gozan de amplios espacios de áreas verdes.

Sin embargo por la forma y diversos Equipamientos Urbanos, se decide utilizar el Terreno 01 Áreas Verdes

FUENTES: Google Earth

8.2. CRITERIO
DEL
DEL PROYECTO
DE SELECCIÓN
TERRENO
https://earth.google.com/web/search/san+borja/@-12.08607464,-76.9957347,173.00048837a,681.469816d,35y,123.35126389
831718h,0t,0r/data=CigiJgokCSA2MlfPLCjAERmxNHmMNijAGUPfjeZTP1PAISkT04AcQVPA 01 02 03
Javier Prado Este Terrenos
https://earth.google.com/web/search/san+borja/@-12.0874205,-77.00826915,151.81381443a,1095.46318212d,35y,352.55448486h,0t,0r/data=CigiJgokCbdphNbOLCjAEeIa34 8gNijAGQ0cjBzFPlPAISVcuJdUQFPA
h,0t,0r/data=CigiJgokCcebnvSxJijAEYG1jSVAQijAGX4q6W8ZPVPAIR4YrKm2QVPA https://earth.google.com/web/search/Volkswagen+Euroshop+San+Borja,+Avenida+San+Luis,+San+Borja/@-12.09815416,-76.99418338,159.07588355a,453.34248645d,35y,336.29
Avenida
ESTUDIANTES: CÁTEDRA: FACULTAD: CURSO: LÁMINA: DIAGNÓSTICO
ARQUITECTURA Y DISEÑO TALLER DE ARQUITECTURA 6 L-42
OMAR ANGELO WINCHO CHILQUILLO GIOVANNA MARIELEE ROSADO DAVIRAN JESSICA ALEXANDRA ZAMORA QUINTOS.... SHIRLEY NATALIE FIGUEROA TUTAYA... JHAIR JIMENEZ DAVILA.... JESÚS MIGUEL ARQUIÑEGO BARTUREN... JENNIFER IVONNE OLAYA TAFUR...

PROPUESTAS DE UBICACIÓN DE TERRENO

PROPUESTA 1
JR ENRIQUE PALLARDELLI 67.71m 65.38 m 135 m 151.50 m PROPUESTA 2 OTROS USOS SEGÚN PROYECTO SEGÚN NORMATIVA LIMA LIMA SAN BORJA OMAR ANGELO WINCHO CHILQUILLO GIOVANNA MARIELEE ROSADO DAVIRA ZAMORA QUINTOS, JESSICA • FIGUEROA TUTAYA, SHIRLEY • JIMENEZ DAVILA, JHAIR • ARQUIÑEGO BARTUREN, JESUS • OLAYA TAFUR, JENNIFER INSTITUTO UBICACIÓN Y LOCALIZACIÓN INDICADA 9/04/2023 AV. JULIO BAILLETTI AV. SAN LU I S AV. SAN L U I S CALLE DE LAS BELLAS ARTES L-44 AV. JAVIER PRADO ESTE AV. SAN LUIS ESTREMADOYRO AV. JULIO BAILLETTI 11,659 m² 448 m CORTES: 8,618 m² 3,041 m² SAN LUIS A 10 VECINAL 4 AV. JULIO BAILLETTI
7 0.74 m 47.55m 46.51m 34.73 m 21.8 143.92m 1 2 5 .6 0 m 55 m PROPUESTA 3 OTROS USOS SEGÚN PROYECTO SEGÚN NORMATIVA LIMA LIMA SAN BORJA OMAR ANGELO WINCHO CHILQUILLO GIOVANNA MARIELEE ROSADO DAVIRA ZAMORA QUINTOS, JESSICA • FIGUEROA TUTAYA, SHIRLEY • JIMENEZ DAVILA, JHAIR • ARQUIÑEGO BARTUREN, JESUS • OLAYA TAFUR, JENNIFER INSTITUTO UBICACIÓN Y LOCALIZACIÓN INDICADA 9/04/2023 L-45 Av. SAN LUIS CAUDE MONTEVERDI LUDWING VAN BEETHOVEN MAURICIO CASATI 11,138m² 550 m CORTES: CALLE BELLMAN C 24 VECINAL 7 LUDWING VAN BEETHOVEN AV. SAN L U I S AV. SAN L U I S CALLE 3 CAUDE MONTEVERDI LUDWING VAN BEETHOVEN FRANZLISZT M A URI CI O CAS AT I R I CARDO WAGN ER JOHANNES BRAHMS FRANZLISZT FRAYANGELICO 6,725m² 4,413m² AV.SAN LUIS

REFERENTES ARQUITECTÓNICOS

FICHA TÉCNICA

ARQUITECTOS: UBICACIÓN:

Perkins&Will Seattle- USA

Descripción enviada por el equipo del proyecto.

Este edificio de ciencias biológicas tiene seis pisos de altura e incluye espacio comercial en su planta baja, además de cuatro niveles de estacionamiento subterráneo.

El plano típico del Instituto demuestra cómo se realiza el "diagrama de pétalos" en el lado trapezoidal.

Diversas funciones programáticas se despliegan alrededor del atrio central con espacios de colaboración formales e informales entremezclados, que crean anillos concéntricos de circulación en el interior y el exterior de la planta.

FUENTES: https://www.archdaily.pe/pe/779174/allen-institue-perkin

ESTUDIANTES: DIAGNÓSTICO

PROPUESTA 1
JESSICA ALEXANDRA ZAMORA QUINTOS.... SHIRLEY NATALIE FIGUEROA TUTAYA... JHAIR JIMENEZ DAVILA....
IVONNE OLAYA TAFUR...
COLABORACIÓN
JESÚS MIGUEL ARQUIÑEGO BARTUREN...
JENNIFER
ALLEN INSTITUTE - SEATTLE (USA) ALLEN INSTITUTE - SEATTLE (USA) ATRIO LABORATIORIO OFFICINAS CONFERENCIA
"POD" 1. 2. 3. 4. 5.

IDEA GENERATIVA:

La idea generativa para el diseño del Instituto es un enfoque innovador: a diferencia de las instalaciones convencionales en las que las funciones están "estratificadas" por uso, el Instituto está diseñado en torno a "pétalos" superpuestos de uso agrupados alrededor de un atrio central para maximizar las oportunidades de colaboración mientras se eliminan los límites entre modalidades de investigación

FUENTES: https://www.archdaily.pe/pe/779174/allen-institue-perkins-plus-will

DIAGNÓSTICO

El Instituto Allen está ferozmente comprometido a resolver algunos de los mayores misterios de la biociencia, investigando lo desconocido de la biología humana, en el cerebro, la célula humana y el sistema inmunológico.

ESTUDIANTES: CÁTEDRA: FACULTAD: CURSO: LÁMINA:

PROPUESTA 1
ARQUITECTURA Y DISEÑO TALLER DE ARQUITECTURA 6 L-47
OMAR ANGELO WINCHO CHILQUILLO GIOVANNA MARIELEE ROSADO DAVIRAN JESSICA ALEXANDRA ZAMORA QUINTOS.... SHIRLEY NATALIE FIGUEROA TUTAYA... JHAIR JIMENEZ DAVILA.... JESÚS MIGUEL ARQUIÑEGO BARTUREN... JENNIFER IVONNE OLAYA TAFUR...

REFERENTES ARQUITECTÓNICOS

RECICLAJE & AMPLIACIÓN INSTITUTO SUPERIOR RECICLAJE & AMPLIACIÓN INSTITUTO SUPERIOR

TECSUP TECSUP

FICHA TÉCNICA

ARQUITECTOS:

Gonzalo Cruz / Andres Campoverde / Martin Cruz

UBICACIÓN:

Santa Anita

ÁREA:

Superficie construida: 2125 m2 | Área del terreno: 88150 m2

AÑO:

2012-2013

PROBLEMÁTICA

El campus es una excepción en la zona ya que a pesar que data de 1984, las inmediaciones aun presenta problemas serios de equipamiento urbanos.

Se busca por lo tanto re-porgramar los contendores, repensar sus conexiones interiores, si es que requieren o no de algún articulador o rediseñar el acceso al campus a través del pabellón 14, inicialmente sin salida directa al exterior.

El lugar original de intervención estaba conformado por un conjunto de 2 edificios inutilizados y con severo deterioro.

Había un componente urbano que colindaba con la calle pero estaba aislado de la misma debido a un muro de cerco ciego. Por lo tanto la rehabilitación no solo impactaba sobre las nexión urbana.

PARTIDO ARQ.

REHABILITAR las edificaciones (pabellón 14) y el taller de mantenimiento.

NUEVO ingreso desde la calle, creando una nueva fachada y una pequeña plaza de acceso que refuerce la imagen de la institución.

FUENTES: https://www.archdaily.pe/pe/02-233033/reciclaje-y-ampliacion-campus-tecsup-utec-procesos-urbanos

DIAGNÓSTICO

ESTUDIANTES:

JESSICA ALEXANDRA ZAMORA QUINTOS....

SHIRLEY NATALIE FIGUEROA TUTAYA...

JHAIR JIMENEZ DAVILA....

JESÚS MIGUEL ARQUIÑEGO BARTUREN...

JENNIFER IVONNE OLAYA TAFUR...

CÁTEDRA:

OMAR ANGELO WINCHO CHILQUILLO

GIOVANNA MARIELEE ROSADO DAVIRAN

CURSO: TALLER DE ARQUITECTURA 6

FACULTAD:

ARQUITECTURA Y DISEÑO

LÁMINA: L-48

7.2.4.
PROPUESTA 2

FUENTES:

REFERENTES ARQUITECTÓNICOS

PARTIDO ARQ.

NUEVO ingreso desde la calle, creando una nueva fachada y una pequeña plaza de acceso que refuerce la imagen de la institución.

PROBLEMÁTICA

URBANIZAR. Es posible encararla abriéndose y sobreexponiéndose o cerrarse aun más. El cliente apuesta por la primera opción de forma optimista.

DERRIBAR MUROS EXISTENTES, ABRIR UNA PLAZA DE ACCESO

Se recicla y remodela el Pabellón 14 y se le asigna el rol de edificio de acceso al campus y oficinas.

ESTUDIANTES:

7.2.4.
PROPUESTA 2
FACULTAD: CURSO:
CÁTEDRA:
LÁMINA:
1
ARQUITECTURA Y DISEÑO TALLER DE ARQUITECTURA 6 L-49
DIAGNÓSTICO OMAR ANGELO WINCHO CHILQUILLO GIOVANNA MARIELEE ROSADO DAVIRAN
JESSICA ALEXANDRA ZAMORA QUINTOS.... SHIRLEY NATALIE FIGUEROA TUTAYA... JHAIR JIMENEZ DAVILA.... JESÚS MIGUEL ARQUIÑEGO BARTUREN... JENNIFER IVONNE OLAYA TAFUR...

7.2.4. REFERENTES ARQUITECTÓNICOS

REFORZAR LA IMAGEN DE LA INSTITUCIÓN MÁS PEATONALIZACIÓN

URBANIZAR. Es posible encararla abriéndose y sobreexponiéndose o cerrarse aun más. El cliente apuesta por la primera opción de forma optimista.

DERRIBAR MUROS EXISTENTES, ABRIR UNA PLAZA DE ACCESO

Se recicla y remodela el Pabellón 14 y se le asigna el rol de edificio de acceso al campus y oficinas.

FUENTES: https://www.archdaily.pe/pe/02-233033/reciclaje-y-ampliacion-campus-tecsup-utec-procesos-urbanos

DIAGNÓSTICO

ESTUDIANTES:

JESSICA ALEXANDRA ZAMORA QUINTOS....

SHIRLEY NATALIE FIGUEROA TUTAYA...

JHAIR JIMENEZ DAVILA....

JESÚS MIGUEL ARQUIÑEGO BARTUREN...

JENNIFER IVONNE OLAYA TAFUR...

CÁTEDRA:

OMAR ANGELO WINCHO CHILQUILLO

GIOVANNA MARIELEE ROSADO DAVIRAN

CURSO:

FACULTAD:

TALLER DE ARQUITECTURA 6

ARQUITECTURA Y DISEÑO

LÁMINA:

L-50

1 4 3 3

INSTITUTO ARAUCO DUOCUC INSTITUTO ARAUCO DUOCUC

FICHA TÉCNICA

ARQUITECTOS:

Cuenta con un bloque principal de siete salas de clases, laboratorios de computación, talleres de hidráulica y electricidad, entre otros. Un segundo bloque revestido en metal alberga las oficinas de administración, biblioteca, cafetería y capilla. Se trata de una edificación que tiene a la madera como principal elemento arquitectónico, desde la solución estructural, hasta los detalles de sus muros cortina.

CARRERAS

Electricidad

Automatización Industrial

Administración Financiera

Prevención de Riesgos

Mantenimiento Electromecánico

FUENTES: https://www.archdaily.pe/pe/885963/cft-arauco-duocuc-gdn-architects?ad_medium=gallery

ESTUDIANTES:

CÁTEDRA:

FACULTAD: CURSO: LÁMINA:

7.2.4.
PROPUESTA 3
REFERENTES ARQUITECTÓNICOS
ÁREA: AÑO: UBICACIÓN: GDN Architects 2700 m² Santiago de Chile 2015
DIAGNÓSTICO
ARQUITECTURA Y DISEÑO TALLER DE ARQUITECTURA 6 L-51
OMAR ANGELO WINCHO CHILQUILLO GIOVANNA MARIELEE ROSADO DAVIRAN JESSICA ALEXANDRA ZAMORA QUINTOS.... SHIRLEY NATALIE FIGUEROA TUTAYA... JHAIR JIMENEZ DAVILA.... JESÚS MIGUEL ARQUIÑEGO BARTUREN... JENNIFER IVONNE OLAYA TAFUR...

REFERENTES ARQUITECTÓNICOS

VISTAS EXTERIORES

El complejo se proyectó como una nave horizontal de dos niveles que se emplaza en el terreno conformado por un bosque/plantación de pino radiata. Generando un contraste entre la verticalidad del bosque y este volumen horizontal que alberga principalmente el programa académico, salas de clases, laboratorios, entre otras.

VISTAS INTERIORES

FUENTES: https://www.archdaily.pe/pe/885963/cft-arauco-duocuc-gdn-architects?ad_medium=gallery

ESTUDIANTES: CÁTEDRA:

JESSICA ALEXANDRA ZAMORA QUINTOS....

FACULTAD: CURSO: LÁMINA: DIAGNÓSTICO

SHIRLEY NATALIE FIGUEROA TUTAYA...

JHAIR JIMENEZ DAVILA....

JESÚS MIGUEL ARQUIÑEGO BARTUREN...

JENNIFER IVONNE OLAYA TAFUR...

7.2.4.
PROPUESTA 3
OMAR
GIOVANNA
DISEÑO
ARQUITECTURA 6 L-52
ANGELO WINCHO CHILQUILLO
MARIELEE ROSADO DAVIRAN ARQUITECTURA Y
TALLER DE

PROPUESTA ELEGIDA

8.3 TERRENO ELEGIDO

El terreno fue elegido por todas las integrantes del grupo por las siguientes razones:

Hectáreas

1.16 ha

Calledelasletras

No presenta trafico

No presenta trafico

Perímetro

521.68 m

Metros Cuadrados

11,558.83 m²

Av. de las Poesías Calle de las letras

Tiempo

ESTABLECIMIENTOS ALEDAÑOS

C ENTRO COMERCIAL / RETAIL

LA RAMBLA WONG

SMART FIT PLAZA VEA

RESTAURANTES BANCOS Y AGENTES

LITTLE CEASARS RÚSTICA

mucho

Accesible en transporte publico

Buen estado de las calles

Como principal razón de elección del terreno fue porque éste se encuentra en una zona de alto tránsito , comercial , industrial y residencial.

BANCO DE LA NACIÓN

HOSPIITALES Y FARMACIAS

INCAFARMA CLINICA AUNA ONCOSALUD

CONCLUSIONES:

AV.

ESTUDIANTES: CÁTEDRA: FACULTAD: CURSO: LÁMINA:

DIAGNÓSTICO

SHIRLEY

JHAIR

JESÚS

JENNIFER

TALLER DE ARQUITECTURA 6

ARQUITECTURA Y DISEÑO

RESUMEN DEL TERRENO VÍAS
N AV. DE LAS POESÍAS AV. DEL AIRE CALL. DE LAS LETRAS AV. JAVIER PRADO ESTE
1.5 min
Javier prado
a Calle de las letras
trafico
trafico
aproximado de la Av
Este
No presenta
No presenta
5 - 7 min
Av.delasPoesías
JAVIER PRADO ESTE
Calledelasletras AV.JAVIERPRADOESTE AV.DELAIRE AV.
A v . d e la s P oesí a s A V. DE L A I RE
AV. JAVIER PRADO ESTE DEL AIRE OMAR ANGELO WINCHO CHILQUILLO GIOVANNA MARIELEE ROSADO DAVIRAN
L-53
JESSICA ALEXANDRA ZAMORA QUINTOS.... NATALIE FIGUEROA TUTAYA... JIMENEZ DAVILA.... MIGUEL ARQUIÑEGO BARTUREN... IVONNE OLAYA TAFUR...

DIAGNÓSTICO

ESTUDIANTES:

JESSICA ALEXANDRA ZAMORA QUINTOS....

SHIRLEY NATALIE FIGUEROA TUTAYA...

JHAIR JIMENEZ DAVILA....

JESÚS MIGUEL ARQUIÑEGO BARTUREN...

JENNIFER IVONNE OLAYA TAFUR...

OMAR ANGELO WINCHO CHILQUILLO GIOVANNA MARIELEE ROSADO DAVIRAN

TALLER DE ARQUITECTURA 6

ARQUITECTURA Y DISEÑO

ÁREAS Y DIMENSIONES EMPL AZAMIENTO N USO DE SUELO A B C F D E UBICACIÓN MAPA DE LIMA METROPOLITANA MAPA DE SAN BORJA COMERCIO TERRENO TERRENO RESIDENCIAL COMERCIO EDUCACIÓN ZONA DEL TERRENO COMERCIO CULTURA COMERCIO AV.JAVIERPRADOESTE AV.DELAIRE C.DELASLETRAS AV. DELAPOESÍA AV.CANADÁ ÁREASYDIMENSIONES A B C D E F 101.89 m 60.69 m 52.31 m 70.05 m 48.44 m 133,27 m
CÁTEDRA: FACULTAD: CURSO: LÁMINA: 8.4. MICRO ANALISIS
CÁTEDRA: FACULTAD: CURSO: LÁMINA:
ESTUDIANTES:
L-54

FUENTE: GOOGLE EARTH PRO/ ELABORACIÓN PROPIA

FUENTE: GOOGLE MAPS/ ELABORACIÓN PROPIA FUENTE: IMÁGENES GOOGLE

- 7:00 am/pm

FUENTE: GOOGLE MAPS/ ELABORACIÓN PROPIA

ESTUDIANTES: ANÁLISIS URBANO

JESSICA ALEXANDRA ZAMORA QUINTOS............20%

SHIRLEY NATALIE FIGUEROA TUTAYA..................20%

JHAIR JIMENEZ DAVILA.........................................20%

JESÚS MIGUEL ARQUIÑEGO BARTUREN................20%

JENNIFER IVONNE OLAYA TAFUR..........................20%

CÁTEDRA:

OMAR ANGELO WINCHO CHILQUILLO

GIOVANNA MARIELEE ROSADO DAVIRAN

CURSO: TALLER DE ARQUITECTURA 6

FUENTE: IMÁGENES GOOGLE

FACULTAD:

ARQUITECTURA Y DISEÑO

LÁMINA: L-55

PERFIL URBANO
TERRENO FLUJO PEATONAL FLUJO VEHICULAR AV. DEL AIRE AV. DE LA POESÍA CA. DE LAS LETRAS AV. JAVIER PRADO ESTE CORTE B-B’ CORTE A-A’ CORTE C-C’ LEVE INTENSO NODO LEVE INTENSO TR ÁFICO
TOPOGRAFÍA DEL
68m 65m 70m 68m 65m 68m 66m 6m 3m 0m
A B C D 6:00 - 7:00 pm 6:00
A A B B C C
8.4. MICRO ANALISIS

JESSICA ALEXANDRA ZAMORA QUINTOS....

SHIRLEY NATALIE FIGUEROA TUTAYA...

JHAIR JIMENEZ DAVILA....

JESÚS MIGUEL ARQUIÑEGO BARTUREN...

JENNIFER IVONNE OLAYA TAFUR...

TALLER

ARQUITECTURA Y DISEÑO

ESTUDIANTES: CÁTEDRA: FACULTAD: CURSO: LÁMINA: 8.5. PROGRAMA ARQUITECTÓNICO ESTUDIANTES: CÁTEDRA: FACULTAD: CURSO: LÁMINA:
DIAGNÓSTICO OMAR ANGELO WINCHO CHILQUILLO GIOVANNA MARIELEE ROSADO DAVIRAN
DE ARQUITECTURA 6 L-56

ARQUITECTONICO ARQUITECTÓNICOS

DIAGNÓSTICO

ESTUDIANTES:

JESSICA ALEXANDRA ZAMORA QUINTOS....

SHIRLEY NATALIE FIGUEROA TUTAYA...

JHAIR JIMENEZ DAVILA....

JESÚS MIGUEL ARQUIÑEGO BARTUREN...

JENNIFER IVONNE OLAYA TAFUR...

CÁTEDRA:

OMAR ANGELO WINCHO CHILQUILLO

GIOVANNA MARIELEE ROSADO DAVIRAN

CURSO:

FACULTAD:

TALLER DE ARQUITECTURA 6

ARQUITECTURA Y DISEÑO

LÁMINA:

8.5.
L-57

CRITERIOS PARA EL DISEÑO ARQUITECTONICO

Debe contar contar con un diseño estructural segúnelR.N.E.

Debe contar con un diseño de instalaciones electricas y sanitarias segúnelR.N.E.

Debe contar con un diseño bioclimatico y lo señalado en la norma A.040

Orientación correcta considerando el asoleamiento.

La solucion debe evitar ruidosdelentorno.

Solución del local debe responder a las caracteristicas del entorno(clima, suelo,medioambiente,trazadodevíasydesarrollofuturodelazona.

FUENTES: https://www.inei.gob.pe/media/MenuRecursivo/publicaciones_digitales/Est/Lib1714/Libro.pdf

ESTUDIANTES: ANÁLISIS URBANO

JESSICA ALEXANDRA ZAMORA QUINTOS............100%

SHIRLEY NATALIE FIGUEROA TUTAYA..................100%

JHAIR JIMENEZ DAVILA.........................................100%

JESÚS MIGUEL ARQUIÑEGO BARTUREN................100%

JENNIFER IVONNE OLAYA TAFUR..........................100%

Buscar tener ventilación cruzada.

CÁTEDRA:

OMAR ANGELO WINCHO CHILQUILLO

GIOVANNA MARIELEE ROSADO DAVIRAN

Generar funcionalidad conlosambientes

CURSO: TALLER DE ARQUITECTURA 6

FACULTAD:

ARQUITECTURA Y DISEÑO

LÁMINA: L-58

8.6 CRITERIO DE DISEÑO-PROPUESTA ELEGIDA

CRITERIO DE DISEÑO-PROPUESTA ELEGIDA

Enfilaocolumnas

Alternativas de circulaciones internas delosambientes

EnformasdeU

Engrupos

FUENTES: https://www.inei.gob.pe/media/MenuRecursivo/publicaciones_digitales/Est/Lib1714/Libro.pdf

ESTUDIANTES: ANÁLISIS URBANO

JESSICA ALEXANDRA ZAMORA QUINTOS............100%

SHIRLEY NATALIE FIGUEROA TUTAYA..................100%

JHAIR JIMENEZ DAVILA.........................................100%

JESÚS MIGUEL ARQUIÑEGO BARTUREN................100%

JENNIFER IVONNE OLAYA TAFUR..........................100%

Configuración1:

Anchomínimode0.60m

circulaciones donde existan mobiliarios de facil manipula que permitan rápida evacuación.

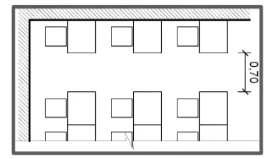
Configuración2:

Anchomínimode0.70m

cuando circulen máximo 6personas y distancia máxima hacia la puerta es de 15m.

Configuración3:

Anchomínimode0.90m

cuando circulen desde 7 hasta 50 personas.

CÁTEDRA:

OMAR ANGELO WINCHO CHILQUILLO

GIOVANNA MARIELEE ROSADO DAVIRAN

Configuración4:

Anchomínimode0.90m

cuando circulen personas con movilidad reducida.

CURSO: TALLER DE ARQUITECTURA 6

FACULTAD:

ARQUITECTURA Y DISEÑO

LÁMINA: L-59

8.6

8.6 CRITERIO DE DISEÑO: NORMA A.040 del R.N.E

DOTACIÓN DE SERVICIOS

Numeros de alumnosHombres Mujeres

De 0 a 60 alumnos

De 61 a 140 alumnos

De 141 a 200 alumnos

Por cada 80 alumnos adicionales

L= lavatorio , u= urinario , I= inodoro

1u , 1I

2u , 2i 3L, 3u , 3I 1L, 1u , 1I

2I 3L, 3I 1L, 1I

ART.6: Eldiseñoarquitectónicodeloscentroseducativostienecomo objetivocrearambientespropiciosparaelaprendizaje

Para la orientación y el asolemineto tomar en cuenta el clima, viento y recorrido del sol.

La ventilación debe ser permanente,altaycruzada.

La altura minima de los ambientesseráde2.5m.

El volumen de aire debe ser dentro del aula de 4.5m3 por estudiante.

La iluminación natural debe estar distribuida de manera uniforme.

FUENTES: https://www.inei.gob.pe/media/MenuRecursivo/publicaciones_digitales/Est/Lib1714/Libro.pdf

ESTUDIANTES: ANÁLISIS URBANO

JESSICA ALEXANDRA ZAMORA QUINTOS............100%

SHIRLEY NATALIE FIGUEROA TUTAYA..................100%

JHAIR JIMENEZ DAVILA.........................................100%

JESÚS MIGUEL ARQUIÑEGO BARTUREN................100%

JENNIFER IVONNE OLAYA TAFUR..........................100%

El dimensionamiento dl espacios basado en la medidas y proporciones del cuerpohumano.

El área de vanos para iluminación será el 20% de la superficie(mínimo).

Control de ruidos generados externaeinternamente.

El ancho minimo de una puertaseráde1.00m

Nivelesdeiluminación:

Aulas 250luxes. Talleres 300luxes. Circulaciones 100luxes.

SS.HH. 75luxes.

CÁTEDRA:

OMAR ANGELO WINCHO CHILQUILLO

GIOVANNA MARIELEE ROSADO DAVIRAN

CURSO: TALLER DE ARQUITECTURA 6

FACULTAD:

ARQUITECTURA Y DISEÑO

LÁMINA: L-60

1L,
2L,
1L,
2L,
1I

Contar con espacio suficiente para los medios de transporte de la zone(autos, mototaxis, motocicletas, bicicletas y/u otro medio de transporte.

Para la cantidad de estacionamientos se debe considerar en lo señalado por los parámetros de la zonificación establecidos por los gobiernos locales o provinciales.

La reserva de estacionamientos para personas con discapacidad se efectúa según lo señalado en la NormaA.120delRNE.

Si las condiciones lo permiten se puede contar con una bahía vehicular que permita el recojo y desembarquedelosusuarios.

Acorde a lo señalado en la N.T. Criterios Generales, para el diseño e instalción de las puertas, se debe considerar lo dispuesto en la Normas A.010, A.040, A080(oficinas) ,A..120 , A.130delRNE.

Las puertas de lso ambientes básicos, así como de los ambientes de gestión administritiva, pedagógica y de bienestar deben permitir el registro visual hacia el interior del ambiente. Quedan| exceptuados del registro visual los depósitos y los servicioshigienicoimplementadosenelIESPolaEESP.

Las ventanas deben tener fácil apertura y debe garantizar el crucedeventilaciónenelinteriordelambiente.

En los casos de centro de cómputo, tesoreria, entre otros, se deben considerar elementos de seguridad para salvaguardar losbienesalinterior

FUENTES: https://www.inei.gob.pe/media/MenuRecursivo/publicaciones_digitales/Est/Lib1714/Libro.pdf

ESTUDIANTES: ANÁLISIS

URBANO

JESSICA ALEXANDRA ZAMORA QUINTOS............100%

SHIRLEY NATALIE FIGUEROA TUTAYA..................100%

JHAIR JIMENEZ DAVILA.........................................100%

JESÚS MIGUEL ARQUIÑEGO BARTUREN................100%

JENNIFER IVONNE OLAYA TAFUR..........................100%

CÁTEDRA:

OMAR ANGELO WINCHO CHILQUILLO

GIOVANNA MARIELEE ROSADO DAVIRAN

CURSO: TALLER DE ARQUITECTURA 6

FACULTAD:

ARQUITECTURA Y DISEÑO

LÁMINA: L-61

8.6 CRITERIO
DE DISEÑO-PROPUESTA ELEGIDA

BIBLIOGRAFÍA

Alberto, C., Noriega, T., Municipal, C., Roel, A. J., Jorge, A., Martín, J., Corominas, V., Yazmín, R., Gonzales, M., Wong, M., Gonzalo, Q., Sáenz Ráez, E., Pachas, G. C., Carmen, M., Meza Gutiérrez, V., Maribel, J., & Vargas, G. (s/f). Gob.pe. Recuperado el 13 de abril de 2023, de https://www.munisanborja.gob.pe/wpcontent/uploads/2019/11/Parte-4-Diagn%C3%B3stico-distrital..pdf

Cabezas, C. (2013, marzo 20). Reciclaje y ampliación Campus TECSUP UTEC / Procesos Urbanos. ArchDaily Perú. https://www.archdaily.pe/pe/02-233033/reciclaje-y-ampliacion-campus-tecsup-utec-procesos-urbanos Interesante, M. [@medianamenteinteresante1349]. (2020, septiembre 11). 20 cosas que no sabías del distrito de San Borja - Lima, Perú. Youtube. https://www.youtube.com/watch?v=8umsW-aXNdM Mapa sectorizado. (2020, enero 10). Municipalidad de San Borja. https://www.munisanborja.gob.pe/mapasectorizado/

Municipalidad de San Borja. (2019, agosto 2). Municipalidad de San Borja. https://www.munisanborja.gob.pe/ Negrete-Aranda, R., Cañón-Tapia, E., Brandle, J. L., Ortega-Rivera, M. A., Lee, J. K. W., Spelz, R. M., & HinojosaCorona, A. (2010). Regional orientation of tectonic stress and the stress expressed by post-subduction highmagnesium volcanism in northern Baja California, Mexico: Tectonics and volcanism of San Borja volcanic field. Journal of volcanology and geothermal research, 192(1–2), 97–115.

https://doi.org/10.1016/j.jvolgeores.2010.02.014

San Borja. (s/f). Distrito.pe. Recuperado el 13 de abril de 2023, de https://www.distrito.pe/distrito-san-borja.html

San Borja - Final. (s/f). Scribd. Recuperado el 13 de abril de 2023, de https://es.scribd.com/presentation/405340536/SAN-BORJA-FINAL-ppt

Tapia, D. (2017, diciembre 22). CFT ARAUCO DUOCUC / GDN Architects. ArchDaily Perú.

https://www.archdaily.pe/pe/885963/cft-arauco-duocuc-gdn-architects?ad_medium=gallery

Valenzuela, K. (2015, diciembre 21). Allen Institute / Perkins+Will. ArchDaily Perú.

https://www.archdaily.pe/pe/779174/allen-institue-perkins-plus-will (S/f-a). Gob.pe. Recuperado el 13 de abril de 2023, de https://www.inei.gob.pe/media/MenuRecursivo/publicaciones_digitales/Est/Lib1714/Libro.pdf (S/f-b). Recuperado el 13 de abril de 2023, de http://file:///C:/Users/HP/AppData/Local/Temp/Rar$DIa0.612/planoalturassanborja.pdf

(S/f-c). Recuperado el 13 de abril de 2023, de http://file:///C:/Users/Jesus/Downloads/pme_2017-2022_-

_md_san_borja_lima%20(1).pdf

CONCLUSIONES

San Borja es un distrito ubicado en la parte este de la ciudad de Lima, Perú. Fundado en 1963, el distrito se ha desarrollado como una zona residencial de clase media alta, con una población estimada de alrededor de 120,000 habitantes.

En cuanto a su historia y evolución, San Borja fue originalmente una hacienda que fue adquirida por el gobierno peruano en la década de 1930 para la construcción de un aeropuerto. Sin embargo, el aeropuerto nunca se construyó y la tierra fue utilizada para proyectos urbanos en la década de 1960, lo que llevó a la creación del distrito.

En cuanto a su trama urbana, San Borja tiene una distribución de calles y avenidas bastante regular, con una estructura en forma de cuadrícula. El distrito cuenta con amplias zonas verdes y parques, como el Parque de la Amistad y el Parque de la Familia, que son utilizados por los residentes para actividades recreativas y deportivas.

En cuanto al sistema vial, San Borja cuenta con varias avenidas importantes, como la Avenida San Borja Norte y la Avenida Aviación, que conectan el distrito con otras partes de Lima. Además, el distrito tiene una serie de calles secundarias que conectan las diferentes áreas residenciales.

En cuanto a los servicios básicos, San Borja cuenta con una buena infraestructura de servicios públicos, como agua potable, electricidad y recolección de residuos. Además, el distrito cuenta con varios centros de salud y hospitales, así como con una estación de bomberos y una comisaría de policía.

En cuanto al equipamiento, San Borja cuenta con varios centros comerciales y tiendas, así como con una serie de instalaciones deportivas, como el Estadio Nacional y el Complejo Deportivo Villa María del Triunfo. Además, el distrito cuenta con una gran cantidad de restaurantes y cafeterías que ofrecen una variedad de opciones gastronómicas.

En cuanto al diagnóstico del distrito de San Borja, se han identificado algunos desafíos, como la necesidad de mejorar el transporte público y la gestión de residuos sólidos. Además,Además de los desafíos mencionados, el diagnóstico del distrito de San Borja también ha señalado la necesidad de mejorar la seguridad ciudadana y reducir los índices de delincuencia. Para ello, el distrito ha implementado medidas como la instalación de cámaras de seguridad y la coordinación con la policía local para patrullar las zonas más vulnerables.

Otro desafío identificado es la necesidad de mejorar la calidad de la educación en el distrito. Aunque San Borja cuenta con varias escuelas y colegios, se ha observado que muchos de ellos presentan deficiencias en cuanto a infraestructura y calidad educativa. Para abordar este problema, el distrito ha implementado programas de mejoramiento de la educación, incluyendo la construcción de nuevas escuelas y la capacitación de los docentes.

En cuanto a la demografía, San Borja cuenta con una población relativamente joven, con una edad promedio de alrededor de 35 años. El distrito también tiene una alta tasa de empleo y una población económicamente activa, lo que lo convierte en un importante centro de actividad económica en Lima.

.

Turn static files into dynamic content formats.

Create a flipbook
Issuu converts static files into: digital portfolios, online yearbooks, online catalogs, digital photo albums and more. Sign up and create your flipbook.