Jenna Gunter | Interior Design Portfolio

Page 1

WelcometomyCreativeSpace!

Hello!MynameisJennaGunter andIamarecentinteriordesigngraduate fromOklahomaStateUniversity.Ihavea passionforartanddesignaswellasa desiretousemyartisticabilitiestohelp enhancethelivesofothers.Interiordesign allowsmetoutilizemycreativepassion whileplacingpeopleattheheartofevery project.Iaminterestedinhealthcareand educationinteriors,butIamopento exploringallaspectsofdesign.

26-25 36-39 ➢ PACEPROGRAM ➢ ArtworkandDesigns

WILDFLOWERBOUTIQUE

Period

Sophomore | Fall2021 | SmallScaleCommercial

Software

AutoCAD | Sketchup | Enscape

ProjectDescription

Studentsworkedingroupsof2todevelopadesignconceptandbrandpackageforaclientinterested inopeningacottongoodsboutiqueinStillwater,Oklahoma.DrawinginspirationforOklahoma’s naturallandscapesandvibrantculture,Icombinedawarmterracottacolorschemewithindustrial elementstoreflecttherusticcharmofStillwaterwhileinfusingacontemporaryedge.

Deliverables

➢ FloorPlan

➢ PreliminaryDesign

➢ Renderings

4

WILDFLOWERBOUTIQUE

6
7

LUXURYHOTELREMODEL

Period

Junior | Spring2023 | EnvironmentalDesign

Software

AutoCAD | Sketchup | Enscape

ProjectDescription

Studentsworkedindividuallytodevelopadesignconceptandwithanemphasisonenvironmentaldesign.

ThedesigndrawsinspirationfromOklahomaState’scolorfulandruggedcowboyculture.Avibrant orangeandbluecomplementarycolorschemeevokestheOklahomasunsetagainstthevastbluesky, capturingthestate'snaturalbeauty.Hightexturematerialssuchaswoodandstonewerecarefullychosen toreflectcowboycommunitywhileaddingwarmthandauthenticitytothedesign.

Deliverables

➢ FloorPlan

➢ ReflectedCeilingPlan

PreliminaryDesigns

Renderings

13

LUXURYHOTELREMODEL

14 WineBar CoffeeBar Lobby/ Reception ADAPublicRR Spirit Shop FloorPlan

ReflectedCeilingPlan

15

LUXURYHOTELREMODEL

16
17

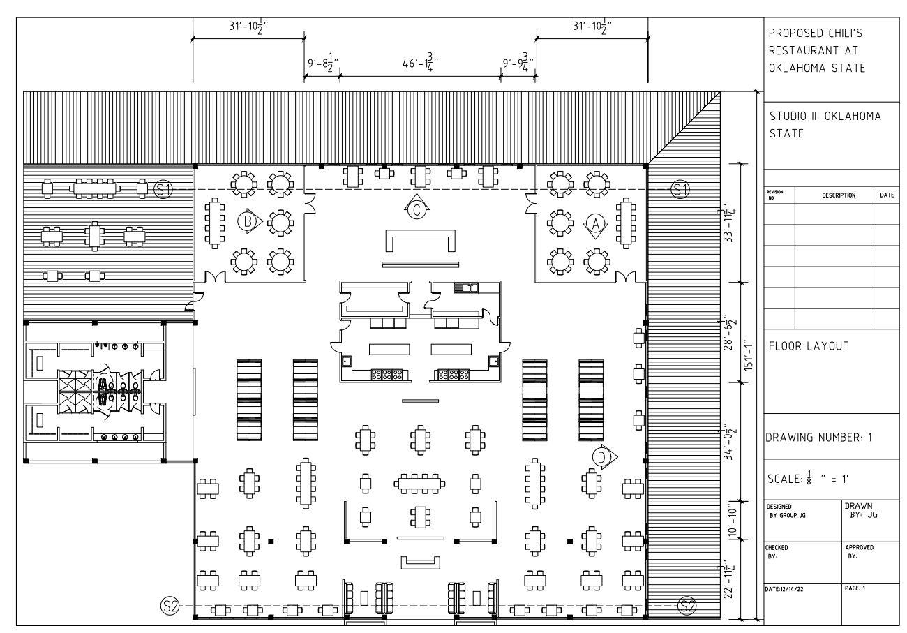
RESTAURANTREMODEL

Period

Junior| Fall2022 | ConstructionDocuments

Software

AutoCAD

ProjectDescription

TheChili’sBarandGrillsoughttoremodelanexistingrestaurantinStillwater,Oklahoma.

Workingindividually,Studentswererequiredtodesignanddraftasetofconstructiondocuments fortheclient.

Deliverables

➢ FloorPlan

➢ LightingPlan

FinishedFloorPlan

MaterialSelection

RestaurantRemodel

20
Section2 Section1

LightingPlan

FinishedFloorPlan

21

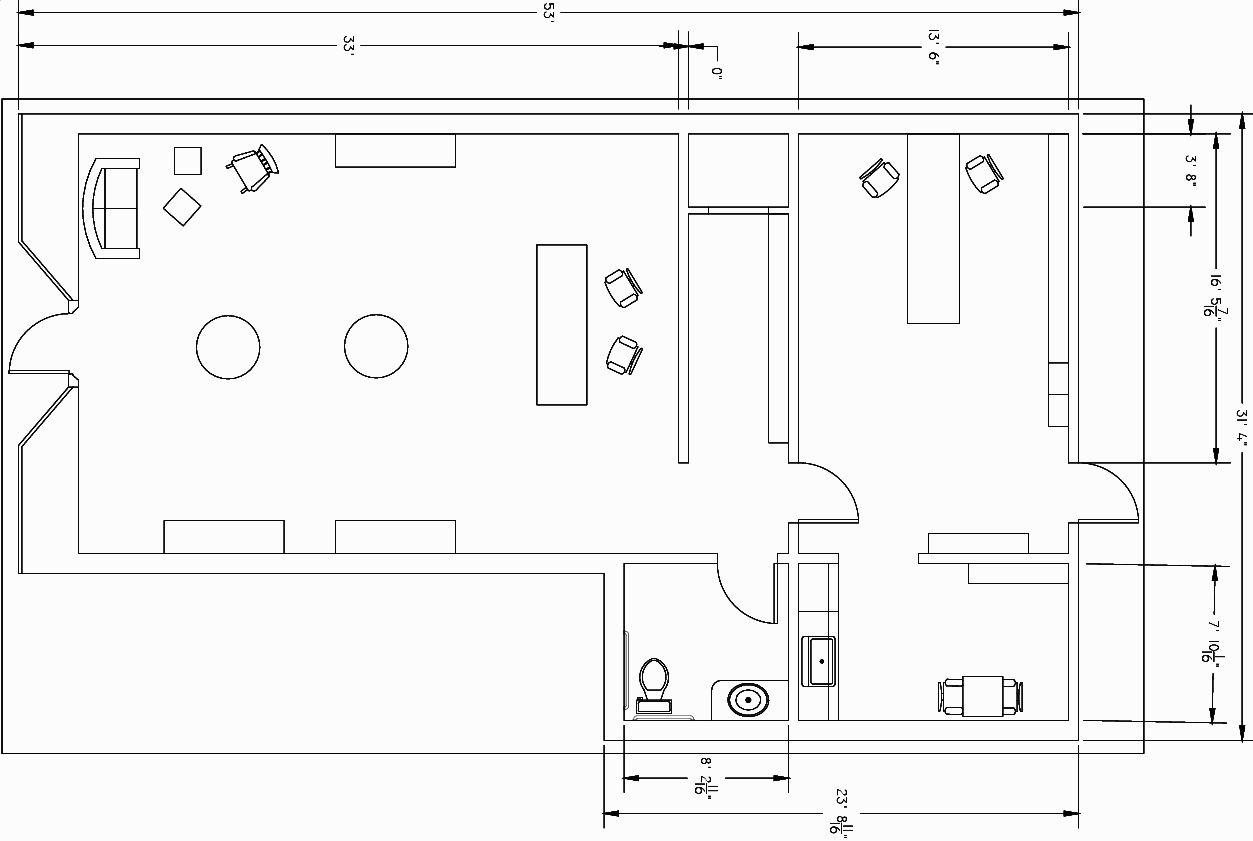
HEALTHCAREDININGAREA

Period

InternshipExperience | Summer2023 | JohnA.MarshallCompany,Tulsa

Software CET | AutoCAD

ProjectDescription

ThisOklahomaHospitalembracedaspiritofcommunalgatheringthroughtheirmodernized diningarea.Facingbudgetandspaceconstraints,Iwasabletocreateaneasyflowinglayout,catering todiverseneedsandpreferences.Thespaceincorporatessoothingbluesandelegantgreytonesthat seamlesslycomplementtheoverallhospitalambianceandmatchtheirbrandingconcept.

Deliverables

➢ FloorPlan

➢ FurnitureSelection

➢ Renderings

22
23

HEALTHCAREDININGAREA

24

9to5Dash

UpholsteredSeat Glides

ParallonLaminateTable

48”Wx30”Dx36”H

Glides

ParallonLaminateTable

48”Wx30”Dx36”H

Glides

SeatCushion: SeatBack:

Laminate: Baltic
25
CrispLinen CloudGrey

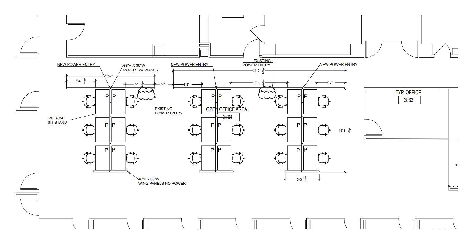
COMPANYWORKSPACE

Period

InternshipExperience | Summer2023 | JohnA.MarshallCompany,Tulsa

Software

CET | AutoCAD

ProjectDescription

Thisclientwasinterestedinupdatingtheirworkspace.Aneasyandefficientworkflowwasestablished throughoutthisspacebyarrangingtheworkstationsinalineardirection.Aerontaskchairsandsit-stand desksallowforanergonomicenvironmentthatpromotesemployeehealth,productivity,andoverall well-being.Theveneerfromthesedesksareconsistentwiththeexistingmaterialsthroughoutthebuilding.

Deliverables

➢ FloorPlan

➢ FurnitureSelection

➢ Renderings

26
27

COMPANYWORKSPACE

28

HermanMiller

Sit-To-StandDesk

AeronTaskChair

HermanMiller
29

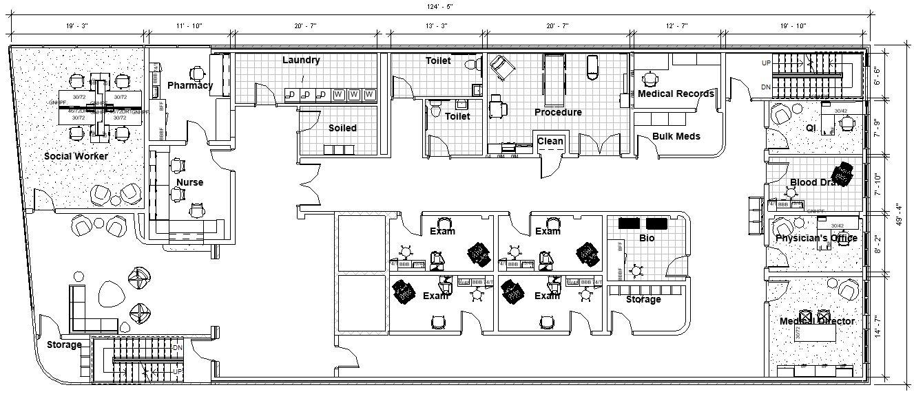
PACEPROGRAM

Period Senior| Fall2023 | LargeScaleCommercial

Software

Revit | AutoCAD | Enscape

ProjectDescription

Studentsworkedingroupsof3or4todevelopanadaptivereusesolutionfor3storybuildingin Stillwater,Oklahoma.ThePACECenteriscenteredaroundprovidingcomprehensivecareforolder adultparticipants,drawinginspirationfromthegracefulandfunctionaldesignofthescissor-tail flycatcher.Theconceptintegratesthebird'sformanddesignelementstocreateaspacethatprioritizes bothaestheticappealandpracticalfunctionality,ensuringanurturingandcomfortableenvironment.

Deliverables

➢ FloorPlan

➢ ReflectedCeilingPlan

PreliminaryDesigns

30
31

PACEPROGRAM

PACEPROGRAM

34
35

PACEPROGRAM

DimensionedFurniturePlan

36

ReflectedCeilingPlan

37

PACEPROGRAM

38
HermanMillerAeronChair SteelcaseBobLoungewHeadrest
39
HermanMillerMoraSystem

ART&DESIGNS

40
41

ART&DESIGNS

Jackson(2020)

WatercoloronPaper

Seriesofpetportraitsforfriend.

42

PianoRoom(2021)

PenonPaperandMarkeronPaper

GraphicsIIpenandmarkerhand draftedrenderings.

43

www.linkedin.com/in/jenna-gunter-m

ContactInfo
713W4thAve,Stillwater,OK74074

Turn static files into dynamic content formats.

Create a flipbook
Issuu converts static files into: digital portfolios, online yearbooks, online catalogs, digital photo albums and more. Sign up and create your flipbook.