Jenna Lund - Interior Design Portfolio

Page 1


about me

as a multi-disciplinary designer with a concentration on interior design, my focus lies in crafting functional and inspiring spaces while prioritizing inclusivity and sustainability. i have distinct interests in space planning to enhance the user experience, developing renderings to communicate concepts, and the selection and custom design of FF&E to create an interesting tactile and visual environment.

resume

contact

@idbyjenna

jennalund12@gmail.com

234 - 380 - 2879

@jenna-lund

education

experience

Interior Designer .................. July 2023-Present Hickok Cole Richmond, VA

- Developed and implemented innovative solutions to address technical and design challenges across all project phases

- Utilized BIM software to develop and produce both 2D and 3D drawings that effectively communicate the teams design intent

- Coordinated with clients, consultants, and product representatives through written and in-person correspondence

- Collaboratively prepared, produced, and delivered design presentations to clients

- Produced comprehensive FF&E packages for clients and dealers

- Prepared construction documents for issuance

Interior Design Intern ........... June 2022-Aug 2022 Hickok Cole Richmond, VA

- Assisted with multi-family residential and spec-suite projects through schematic and design development phases

- Organized and stocked material library through correspondence with product representatives

Savannah College of Art & Design ............ June 2023 Hudson High School ............................ May 2019 skills

Software:

Microsoft

02 03 04

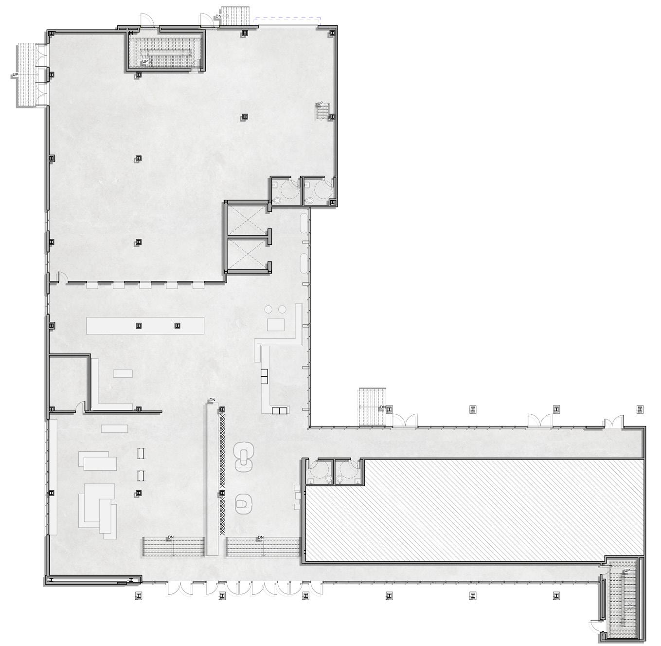
location: richmond, VA

year: 2023-2024

type: multi-family

natural grove

wrighthaven square, a multi-family community set to be built in richmond, VA, features a clubhouse inspired by scandinavian architecture and pitched roofs. the design embodies the concept of a natural grove, incorporating elements reminiscent of a vintage camping aesthetic throughout the clubhouse. these details can be found in spaces such as the leasing suite, living room, entertainment kitchen, and restrooms.

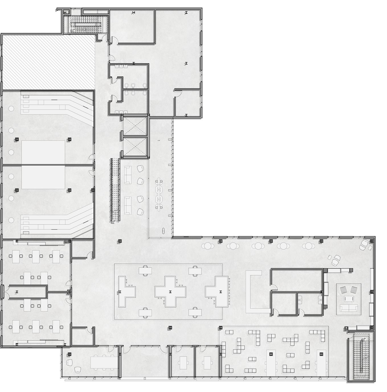
location: raleigh, NC

year: 2023-2024

type: multi-family

design concept

merge [verb] to combine, unite, or coalesce; to blend gradually by stages that blur distinctions

NHID BLOCK | RALEIGH, NC THE TRIBUTARY KANE REALTY CORPORATION
AXON -LEVEL 01 AMENITY 1

unit corridor gradation

the concept of merge continues on to the residential floors of the building through a corridor scheme in which paint colors transition from dark to light as users move towards the center of the building to create the illusion of a gradient.

stuff. a creative reuse community

location: new orleans, LA

year: 2022-2023

type: student work at SCAD

to create a consumption and waste conscious community through education about recycling and guidance through upcycling.

to relieve people overwhelmed with clutter by giving them an avenue to repurpose or refurbish belongings that are no longer functional or useful.

to ignite creativity within the community through shared skills, tools, and a collaborative creative reuse process.

the stuff. app offers information about the space at the user’s fingertips. it allows users to create an account where they can browse, sign up for, and track events and classes on the calendar. private appointments, equipment, and donations can also be booked on the app.

junction

the concept of junction focuses on the points of connection in a web that make up the larger whole. creative collaboration is encouraged among users searching for a link between them and their community. the concept should ignite a want in users to explore the interconnection of undiscovered elements and find direction towards a more intimate connection between the earth and people.

makerspace lounge

the makerspace lounge is a seating area with bar height table seating as well as a modular seating used to apply the concept. the seating module materials match the material of the carpet and a color grid directs users where the modules belong when not in use but allow users to move them as they please in order to encourage connecting with each other.

location: delray beach, FL

year: 2022

type: student work at SCAD

the opal collection aims to create destinations with their own colorful and unique experiences like the qualities of a natural opal gemstone. the delray beach location takes inspiration from the local architecture styles of art deco, streamline moderne, and mediterranean revival to create an experience that will stay with their guests after their time at the hotel. the spa offers services that are meant to help people, no matter their age, feel their best self and create a positive association with their age.

restore

nourish thrive

photography
princesses diptych
anti-greenwashing campaign
matcha chocolate packaging
pattern design

thank you

Turn static files into dynamic content formats.

Create a flipbook
Issuu converts static files into: digital portfolios, online yearbooks, online catalogs, digital photo albums and more. Sign up and create your flipbook.