
UNIVERSIDAD NACIONAL
HERMILIO VALDIZÁN

ESCUELA PROFESIONAL
DE ARQUITECTURA
![]()

UNIVERSIDAD NACIONAL
HERMILIO VALDIZÁN

ESCUELA PROFESIONAL
DE ARQUITECTURA


UNIVERSIDAD NACIONAL
HERMILIO VALDIZÁN

ESCUELAPROFESIONAL
DEARQUITECTURA
ARQUITECTURA SOSTENIBLE
DOCENTE:
ARQ. DR. RICARDO SANCHEZ MURRUGARRA
ALUMNOS:
JENNIFER SHIRLEY JESUS TRUJILLO
VIOLETA PONCE ALVINO










ESTA PROYECTO PROPONE EL DISEÑO DE UN CENTRO INTEGRAL DE PREVENCIÓN DE LA ANEMIA Y AGROINDUSTRIALIZACIÓN DE FRUTOS NATIVOS, UBICADO EN UN TERRENO DE 60,800 M² EN LA CARRETERA CENTRAL FEDERICO BASADRE, ZONA DE EXPANSIÓN URBANA DE PUCALLPA, UCAYALI. LA PROPUESTA RESPONDE A LOS ALTOS ÍNDICES DE ANEMIA Y ENFERMEDADES DIGESTIVAS EN LA REGIÓN, ESPECIALMENTE EN NIÑOS Y GESTANTES.
EL PROYECTO BUSCA TRANSFORMAR FRUTOS NATIVOS COMO EL CAMU CAMU, GUAYABA Y AZARA EN DERIVADOS FUNCIONALES A TRAVÉS DE CUATRO LÍNEAS DE PRODUCCIÓN: ALIMENTICIA, NUTRACÉUTICA, ECO-INDUSTRIAL Y BIOTECNOLÓGICA SU PRODUCTO INNOVADOR PRINCIPAL ES UN SENSOR DIGESTIVO COMESTIBLE, DISEÑADO PARA MONITOREAR EL ESTADO GASTROINTESTINAL MIENTRAS APORTA MICRONUTRIENTES ESENCIALES PARA PREVENIR LA ANEMIA Y PROBLEMAS DIGESTIVOS.
EL CENTRO INCLUIRÁ ÁREAS DE DIAGNÓSTICO NUTRICIONAL, EDUCACIÓN ALIMENTARIA, PLANTA DE PRODUCCIÓN Y PUNTOS DE VENTA. ADEMÁS, CONTARÁ CON CANALES DE DISTRIBUCIÓN ASEGURADOS COMO QALI WARMA, MINSA, MUNICIPALIDADES Y EL PROPIO CENTRO DE PREVENCIÓN, LO QUE GARANTIZA SOSTENIBILIDAD ECONÓMICA, CERO PÉRDIDA DE PRODUCCIÓN Y GENERACIÓN DE EMPLEO LOCAL.
ESTE MODELO ARQUITECTÓNICO Y PRODUCTIVO BUSCA SER REPLICABLE EN OTRAS REGIONES, INTEGRANDO SALUD, TECNOLOGÍA, PRODUCCIÓN LOCAL Y DESARROLLO TERRITORIAL CON ENFOQUE SOSTENIBLE.
ASPECTOS
INTRODUCTORIOS
planteamiento del problema Formulación del problema objetivos
justificaión y motivación estudio de mercado alcance
02
tipología antecedentes concepto de forma concepto de función conceptos bioclimáticos tema arquitectónico
03
METODOLOGÍA
metodología
tipología antecedentes concepto de forma concepto de función conceptos bioclimáticos tema arquitectónico 04
tipología antecedentes concepto de forma concepto de función conceptos bioclimáticos tema arquitectónico 02 PLANIFICACIÓN programa arquitectónico espacios 02

“LA MISIÓN DEL ARQUITECTO ES AYUDAR A LAS
“LA MISIÓN DEL ARQUITECTO ES AYUDAR A LAS
PERSONAS ENTENDER CÓMO HACER LA VIDA MÁS
PERSONAS ENTENDER CÓMO HACER LA VIDA MÁS
BELLA, HACER UN MUNDO MEJOR PARA VIVIR Y DARLE
BELLA, HACER UN MUNDO MEJOR PARA VIVIR Y DARLE
UNA JUSTIFICACIÓN Y UN SENTIDO A LA VIDA” ZAHA HADID
UNA JUSTIFICACIÓN Y UN SENTIDO A LA VIDA” ZAHA HADID




PLANTEAMIENTODELPROBLEMA
La anemia y la desnutrición crónica continúan siendo dos de los principales problemas de salud pública en el Perú, especialmente en zonas rurales y amazónicas. Según datos del Instituto Nacional de Estadística e Informática(INEI) yel MinisteriodeSalud(MINSA), másdel 40%de niños menoresde 5añosenregionescomoHuánucopresentananemiaferropénica,locuallimitasudesarrollocognitivo, inmunológico y físico. A pesar de los esfuerzos estatales mediante programas sociales como Qali Warma y campañas de suplementación, los indicadores se mantienen estancados, debido en gran partealafaltadeaccesoaalimentosfuncionalesyestrategiasintegralesdeintervenciónlocal.
Por otro lado, la región Huánuco y en especial zonas como Aucayacu cuenta con una biodiversidad agrícola extraordinaria, incluyendo frutos nativos de alto valor nutricional como el camu camu (Myrciaria dubia), la guayaba (Psidium guajava) y la azara (Azara serrata), los cuales poseen propiedades antioxidantes, antianémicas y antivirales comprobadas. Sin embargo, estos recursos permanecen subexplotados o desaprovechados, debido a la falta de infraestructura productiva, industrializaciónyarticulaciónconelmercado.
Esta desconexión entre la producción agrícola local y las necesidades nutricionales comunitarias representaunaoportunidadcríticadeintervención Laausenciadecentrosintegralesquetransformen estos frutos en derivados funcionales y nutracéuticos como cápsulas, gomitas, polvos y sensores comestibles limita no solo el aprovechamiento económico de las comunidades, sino también la posibilidad de mejorar la salud pública desde una base territorial, sostenible y culturalmente pertinente.
En este escenario, se hace necesaria la creación de un equipamiento arquitectónico multifuncional que integre producción, educación, salud comunitaria yturismo rural,basado en el potencial del camu camu y otros frutos aliados, para generar empleo, combatir la anemia y fortalecer la identidad alimentarialocal.





De los niños y niñas de 6 a 35 meses sufrieron de anemia en 2023, según la Encuesta Demográfica y de Salud
Familiar(ENDES)



En el Perú, los trastornos digestivos funcionales, como el síndrome de intestino irritable(SII),laenfermedadporreflujogastroesofágico(ERGE)ylagastritis,afectan a una proporción significativa de la población. A continuación, se detallan algunas estadísticasrelevantes: PrevalenciadetrastornosdigestivosenPerú
1 SíndromedeIntestinoIrritable(SII)
ElPerúesunodelospaísesdeLatinoaméricaconmayorincidenciadeSII. Cerca del 25% de las consultas en gastroenterología en el país son por esta patología.
Estudios en poblaciones específicas han reportado una prevalencia que varía entre 15% y 22%. Gobierno del PerúRepositorio UPCH+1Biblioteca Central PedroZulen+1



2.EnfermedadporReflujoGastroesofágico(ERGE)
EstudiosindividualesenPerúubicanlaprevalenciadeERGEalrededordel25%.
En un estudio realizado en Chiclayo, se encontró una prevalencia de ERGE del 26,51% en la población adulta.
Redalyc.orgBibliotecaCentralPedroZulen+1SciELOPerú+1
3.Gastritis
El80%deloscasosdegastritisenelpaísestánoriginadosporlapresenciadelabacteriaHelicobacterpylori,que secontraeporelconsumodeaguasinhervir.GobiernodelPerú
Implicacionesparaeldesarrollodeproductosinnovadores
Dado que aproximadamente 1 de cada 4 peruanos podría padecer de SII o ERGE, y considerando la alta incidencia de gastritis, existe una necesidad significativa de soluciones accesibles y efectivas para monitorear y manejar estos trastornosdigestivos.




PROBLEMAGENERAL:
¿De qué manera el diseño arquitectónico de un establecimiento de salud preventiva tipo I-3 con integración de agroindustrialización de frutos nativos puede contribuir a la prevención de la anemia y mejora de la salud digestiva en la poblaciónvulnerabledeUcayali?
¿Qué tipo de ambientes debe contemplar un centro de salud preventiva tipo I-3 con enfoque agroindustrial para atender adecuadamente la anemia y los problemas digestivosenUcayali?






¿Cómopuedeintegrarsefuncionalmentelaatenciónmédica,laorientaciónnutricionaly el procesamiento de frutos nativos dentro de un solo proyecto arquitectónico en Ucayali?
¿Cómo puede adaptarse el diseño arquitectónico de un centro de salud tipo I-3 con enfoqueagroindustrialalascondicionesclimáticasysocialesdeUcayaliparagarantizar espaciossaludablesyfuncionales?





OBJETIVOS
OBJETIVOGENERAL:
Diseñar un Establecimiento de Salud Preventiva I-3 para la anemia y salud digestiva con integración de agroindustrialización de frutosnativos–Ucayali
PROBLEMASESPECÍFICOS:
1. Identificar los ambientes necesarios que debe contemplar un centro de salud preventiva tipo I-3 con enfoque agroindustrial para responderadecuadamentealaatencióndelaanemiaylosproblemasdigestivosenUcayali.
2. Proponer una integración funcional entre los espacios de atención médica, orientación nutricional y procesamiento de frutos nativos en un solo proyecto arquitectónico, que contribuya a mejorar la prevención de la anemia y salud digestiva en la población de Ucayali.
3.Adaptar el diseño arquitectónico del centro de salud preventiva tipo I-3 con enfoque agroindustrial a las condiciones climáticas y socialesdeUcayali,afindegarantizarconfort,funcionalidadybienestarparasususuarios.





N ESTABLECIMIENTO DE SALUD PREVENTIVA I-3 PRODUCCIÓN PARA
IDENTIFICAR LOS AMBIENTES NECESARIOS QUE DEBE CONTEMPLAR
CONDICIONES A LAS CLIMÁTICAS
COMBATIR LA ANEMIA CENTRO DE SALUD PROPONER UNA INTEGRACIÓN FUNCIONAL
23

AGROINDUSTRIALIZACIÓN









CURSO:
La región de Ucayali, en el corazón de la Amazonía peruana, es una de las zonas con mayores niveles de vulnerabilidad nutricional y sanitaria del país. Según reportes oficiales del Ministerio de Salud y otras entidades nacionales, la anemia infantil afecta a más del 50% de los niños menores de cinco añosenestaregión,fenómenoquecomprometesudesarrollocognitivo,inmunológicoyeducativo.A esto se suma una creciente presencia de enfermedades digestivas, derivadas de una alimentación deficiente, hábitos inadecuados y falta de diagnóstico temprano. Esta realidad, sumada a la limitada infraestructura de salud preventiva y la escasa articulación entre salud, nutrición, industria y comunidad,plantealaurgentenecesidaddeunaintervenciónmultidimensional.
Pese a estas problemáticas, Ucayali posee una extraordinaria biodiversidad de frutos nativos con altísimovalornutricionalypropiedadesfuncionalesreconocidasanivelinternacional.Elcamucamu, la guayaba y la azara, por ejemplo, son fuentes naturales de vitamina C, hierro, antioxidantes y fibra dietética,todoselloscomponentesclaveenlaluchacontralaanemiaylostrastornosdigestivos.Sin embargo, estos recursos no cuentan con cadenas de transformación sostenibles, tecnología de industrializaciónlocalniunsistemadeaprovechamientoquelesotorguevaloragregadoconfinesde saludpública.
Frenteaestepanorama,seproponelacreacióndeunEstablecimientodeSaludPreventivaI-3parala
Anemia y Salud Digestiva con integración de Agroindustrialización de Frutos Nativos, que articule en un solo espacio la prevención en salud, la transformación productiva, la educación nutricional, el desarrollo tecnológico, la generación de empleo y la sostenibilidad ambiental. El proyecto se consolidará sobre un terreno de 60,800 m², estratégicamente ubicado en la Carretera Central Federico Basadre y 23 de Diciembre, en Pucallpa, una zona de expansión urbana con cercanía a industriaslocales,comercioactivoygranconectividadvial.
Uno de los componentes más innovadores del proyecto es el desarrollo de un sensor digestivo comestible elaborado a base de frutos amazónicos, que permitirá monitorear el estado gastrointestinal y aportar micronutrientes esenciales, representando una fusión entre arquitectura, salud, tecnología alimentaria e innovación social. Este producto, junto con otros derivados nutracéuticos, alimentarios y ecoindustriales, será distribuido a través de canales institucionales asegurados como Qali Warma, MINSA, municipalidades y el propio centro de prevención, garantizandomercadoconstante,impactosocialdirectoymínimapérdidadeproducción.


Desde el enfoque arquitectónico, el centro busca expresar una identidad amazónica auténtica, con un diseño funcional, bioclimático, autosostenible y adaptado a las condiciones ambientales del territorio. Se integrarán zonas de salud y producción agroindustrial todo ello articulado de forma armónicaparapromovereldesarrollohumanointegralyfortalecereltejidosocialdelentorno.
En síntesis, este proyecto es una respuesta concreta,territorialmente situada eintegral a problemas estructurales como la anemia, el desempleo, la informalidad productiva y la falta de acceso a servicios preventivos.Atravésdela arquitectura,lainvestigación aplicada yel usointeligentedelos recursos del territorio, se propone un modelo replicable, sostenible y transformador, que impulse el desarrollodelaAmazoníadesdesuspropiasraíces.
INFRAESTRUCTURA DE SALUD PREVENTIVA
CREACIÓN DE
2 CAMU CAMU, GUAYABA Y AZARA
SUBUTILIZADOS CADENA PRODUCTIVA SIN
ESTABLECIMIENTO DE SALUD PREVENTIVA I-3 PARA LA ANEMIA Y SALUD DIGESTIVA CON INTEGRACIÓN DE AGROINDUSTRIALIZACIÓN DE FRUTOS NATIVOS
3DESARROLLO SOSTENIBLE, Y GENERACIÓN DE EMPLEO
4 FALTA DE
ESCASA ARTICULACIÓN ENTRE SALUD, NUTRICIÓN, INDUSTRIA Y COMUNIDAD
1.ZONADESALUDYPREVENCIÓNCOMUNITARIA
Centrodediagnósticonutricionalydigestivo.
Consultoriosparaatenciónprimaria
Módulodeentregadesuplementosyusodelsensordigestivo.
Aulaparatallereseducativossobrenutriciónysaludpreventiva.
Farmaciacomunitaria
Plantadeprocesamientodecamucamu,guayabayazara. Áreasderecepción,lavado,pelado,extracciónyenvasado.
Laboratoriodecontroldecalidadeinnovacióndeproductos.
Zonadeelaboracióndenutracéuticosyelsensordigestivo. Cámarasfrigoríficasyalmacenessecos.
Patiodecargaydescarga.
3.ZONACOMERCIALYDEDISTRIBUCIÓN
Módulodeventasdeproductosderivados.
Puntodeinformaciónnutricional.
Oficinadearticulaciónconprogramassociales(QaliWarma,MINSA,municipalidades).
Plataformalogísticaparadistribuciónexterna.
4.ZONAADMINISTRATIVAYDEGESTIÓN
Oficinasadministrativasdelcomplejo
Saladereuniones,archivoyvigilancia.
Módulosparacoordinaciónconinstitucionespúblicasyprivadas.
5.ZONADESERVICIOSGENERALESYSOPORTE
Subestacióneléctrica/panelessolares.
Servicioshigiénicosparapersonalyvisitantes
Depósitosymantenimiento.
Estacionamientosyaccesosvehiculares.


1.PRODUCCIÓNAGRÍCOLA
│
├ Agricultoreslocalesorganizados
│ └ Camucamu,guayaba,azara
│
2.ACOPIOYSELECCIÓN
│
├ Centroderecolecciónyclasificación
│ └ Seaprovechafrutafrescaydedescarte(evitapérdida)
│
3 TRANSFORMACIÓN
│
├ Plantacomunitariadeprocesamiento:
│ ├ Secado–Deshidratado
│ ├ Triturado–Pulverizado
│ ├ Formulacióndederivados(cápsulas,gomitas,sensores)
│
4 CONTROLDECALIDADYEMPAQUE
│
├ Laboratoriobásicoconapoyouniversitario
│
5.DISTRIBUCIÓN
│
├ Gobierno(QaliWarma,MINSA,municipios)
├ ONGsdenutrición
├ Canalescomunitariosyplataformasonline
│
6.EDUCACIÓNNUTRICIONALYSEGUIMIENTO
│
└ Escuelas,comedores,promotoresdesaludmonitoreanelconsumo
DERIVADOS:
JUGOPASTEURIZADO-Bebidasaludableembotellada- S/6-8porbotella(300ml)
PULPACONGELADA-Enlatadodepulpacongelada-S/6-10porkg
Infusióndehojas-Antidiabéticonatural- S/8-10porbolsa(100g)
DERIVADOSNUTRACÉUTICOSYFARMACÉUTICOS
CÁPSULASNUTRACÉUTICAS-Cápsulasconpolvo- S/45-60porfrasco(60cápsulas)
POLVOLIOFILIZADO- suplementovitamínico(altaenvitaminaC)-S/120-160porkg
EXTRACTOLÍQUIDOCONCENTRADO- Comoantioxidanteyfuncional- S/25-30porfrasco(100ml)
DERIVADOSECO-INDUSTRIALESYBIOMATERIALES
Subproductosdelcamucamuparacompost empaquesbiodegradables tintesnaturales
DERIVADOINNOVADOR
SENSORDIGESTIVO
Concepto Costo Estimado por Unidad (en soles)
Materia prima (camu camu, guayaba, azara) S/ 0 30
Gelificantes y materiales comestibles base S/ 0.40
Componentes bioactivos (detector pH/Fe+) S/ 0.20
Microencapsulado o soporte base comestible S/ 0.30
Empaque individual y etiquetado S/ 0 25
Mano de obra + energía + depreciación equipos S/ 0 55
Costo total estimado por unidad S/ 2.00 aprox.



Un sensor digestivo comestible es un pequeño dispositiv elaborado con materiales biocompatibles y biodegradable (como biopolímeros naturales) que puede ser ingerido junt con los alimentos para monitorear condiciones del sistema digestivo, como el pH gástrico, temperatura, tiempo de tránsitointestinalolapresenciadeciertoscompuestos.

Mala absorción de hierro (clave en la anemia).
Niveles anormales de acidez (hipoclorhidria).
Trastornos digestivos que afectan la nutrición.

este sensor se puede fabricar a base de extractos y derivados del camu camu, guayaba y azara, usando sus propiedades antioxidantes y sus compuestos bioactivos para detectar desequilibrios digestivos y contribuir a la prevención de la anemia desde el sistema digestivo

Adiferenciadeunapastillacomún,estesensornoesmedicinal,sinoqueactúacomoundetectorinterno,yen algunos casos puede enviar información inalámbrica a un lector externo o cambiar de color/estructura para indicar un desequilibrio. En zonas rurales o con acceso limitado a diagnóstico clínico, puede ser una herramientaaccesible,seguraynoinvasivaparadetectar:
Dimensión
ImpactoDirecto
Beneficiarios
Económico Generacióndeempleolocalpermanenteenproducción,acopio,transformaciónyventa +100puestosdirectosy300indirectos
Aumentodelvaloragregadoaproductosnativos(de1sol/kgenchacraa20soles/100gen cápsulas).
Agricultores,transformadores, comercializadores
Reduccióndepérdidasagrícolas(aprovechamientodeexcedenteydescarte).
Social Reduccióndeanemiaencomunidadesvulnerables.
Educación
Cooperativasypequeñosagricultores
Niños,madresgestantes,adultosmayores
Empoderamientodemujeresenprocesosdeproducciónyliderazgocomunitario Mujeresruralesorganizadas
Ambiental
Fortalecimientodeidentidadlocalconusodeproductosamazónicosyandinos.
Poblacióngeneral
Educaciónalimentariaenescuelasconapoyodesensorescomestiblesyderivadosvisuales. Estudiantes,docentes,familias
Disminucióndedesperdicioalimentario(aprovechamientodel100%delfruto,inclusoen malestadoestético).
Usodetecnologíaslimpias(secadosolar,empaquesbiodegradables).


Medioambiente–Produccióncircular
Comunidadproductorayusuarios
Ubicación:Pucallpa.
Poblaciónestimada:250,000habitantesaprox.(2023)
Economíalocal:Agroindustriaencrecimiento(palmaaceitera,cacao,plátano,frutasnativas).
Problemasclave:Anemiainfantil,informalidadproductiva,empleoprecario,desperdiciodefrutos.
Producciónlocaldefrutos:
Camucamu:Pocoindustrializado,sevendeenfrescoofermentado.
Guayaba:Usotradicional,notransformadoagranescala.
Azara:Pococonocida,deusomedicinalancestral,sinindustrializar.
Faltadeinfraestructura:
Noexistencentrosdetransformacióntecnificadaparaderivadoscomo: Sensordigestivocomestible(productoestrellaeinnovador)
Cápsulasnutracéuticasysuplementosvitamínicos
Jugosyextractosfuncionales
Pulpacongelada,infusiones,compotas
Empaquesbiodegradablesybiomateriales
Limitadaarticulacióncomercial:
Agricultores no acceden a mercados institucionales (Qali Warma, MINSA, comedores escolares).
Inversióninicialrecuperablepor:
Ventasainstitucionesestatales. Ingresoporturismorural(centrodeinterpretaciónyproductos).
Ventadeproductosderivados:márgenesaltosporvaloragregado.
Generación de empleo directo e indirecto para mujeres, jóvenes, agricultores, transformadores,educadores,promotoresturísticos,etc.
Alianzas estratégicas: programas del MIDAGRI, MINSA, gobiernos locales, universidades,ONGs.
QaliWarma:Entregadiariadejugos,sensoresdigestivosyderivadosfuncionales.
Ministerio de Salud (MINSA): A través de postas, centros de salud y campañas de prevención.
Municipalidades y programas sociales: Comedores populares, ollas comunes, kits nutricionales.
Ventadirectaenelcentro:Tiendaagroecológicaypuntodesalud.
ArticulaciónconONGsyprogramasinternacionalesdenutrición.
Producciónagroindustrial(14–17):Operarios,técnicos,jefedeplanta,controldecalidad. Saludyprevención(7–9):Nutricionistas,técnicosdesalud,promotorescomunitarios.
Administraciónylogística(7–8):Gestión,contabilidad,limpieza,vigilancia.
Educaciónyturismo(5–7):Educadores,guíasturísticos,capacitadores.
Comercialización(3–5):Encargadosdetienda,atenciónalcliente,distribución.
Agricultoreslocales(25–30):Encargadosdelcultivoyabastecimiento
Recolectoressilvestres(10–12):Responsablesdelarecoleccióndefrutosenáreasamazónicas Transportistas (8–10): Realizan el traslado de materia prima, productos terminados y distribucionesinstitucionales.
Técnicosdecampo(4–5):Brindanasistenciatécnicaycapacitacióncontinuaalosagricultores.
Promotores sociales (5–8): Coordinan con comedores populares, programas sociales y municipalidadesparaasegurardistribuciónjustaycontinua.
Gracias a los convenios proyectados con Qali Warma, MINSA, municipalidades y otros organismos,elproyectogarantiza:
Producciónsinpérdida(compraaseguradamensual)
Rentabilidadamedianoplazoporvolumenconstante
Diversificacióndeproductosparamercadoscomerciales,turísticosysociales


Basada en beneficiarios institucionales y crecimiento controlado de producción y distribución.
Instituciones usuarias
Año
(Qali Warma, MINSA, Municipios)
Beneficiarios estimados mensuales
Producto Derivado
Sensor digestivo comestible
Cápsulas nutracéuticas
Pulpa congelada
Jugo pasteurizado
Productos a granel y biomateriales
Precio promedio (S/.)
S/ 4.00 (unidad)
S/ 45 (frasco x 60)
S/ 6 (100g)
S/ 6 (botella)
S/ variable
Los productos se fraccionan para tener rotación constante (evita acumulación)
La producción está calibrada a la capacidad de consumo fijo en programas y puntos de venta establecidos.
No se acumulan residuos: los excedentes se transforman en productos secundarios o bioinsumos.
Sensores requeridos/mes
Otros derivados (jugos, cápsulas, compotas, etc.)
Cantidad inicial estimada (mensual)
15,000 unidades
500 frascos
5,000 unidades
8,000 unidades
Ingresos estimados
S/ 60,000
S/ 22,500
S/ 30,000
S/ 48,000
S/ 10,000 aprox.
Se debe procesar como mínimo entre 5 y 6 toneladas al mes (mixto de frutos), con rendimiento ≥ 80%
Esto asegura cubrir:
Costos operativos (mano de obra, energía, transporte).
Rentabilidad base sin merma ni residuos.
Rotación semanal de productos frescos y conservados.


Corresponde al territorio inmediato donde se implantará el proyecto, es decir, la zona de intervenciónmáscercanaquerecibiráelimpactofísico,económicoysocialdeformadirecta.
Ubicación:Terrenode60,800m²ubicadoenlainterseccióndelaCarreteraCentralFederico
Basadre y 23 de Diciembre, en la zona de expansión urbana de Pucallpa, provincia de CoronelPortillo,regiónUcayali.
Componentesbeneficiados:
Poblacióndelentornourbano-ruraldelazona.
Comerciantes,trabajadoresyfamiliasquehabitanalrededordelejevial.
Empresasmadereras,ladrillerasyotrasindustriascercanas(empleodirecto).
Institucioneseducativascercanas.
Centro de salud más próximo (fortalecimiento con atención preventiva complementaria).
Corresponde a un territorio más amplio que, si bien no recibe el impacto constructivo inmediato, sí se beneficia de forma económica, social y sanitaria por la articulación regional delproyecto.
Coberturaestimada:
Provincia de Coronel Portillo y distritos colindantes como Manantay, Yarinacocha, Callería.
Región Ucayali en general, incluyendo zonas con alta incidencia de anemia en comunidadesnativasyrurales.
InstitucioneseducativasqueformanpartedeQaliWarma.
Establecimientos de salud articulados con MINSA para distribución de suplementosysensoresdigestivos.
Ollas comunes, comedores populares y municipalidades con acuerdos de distribucióndealimentosfuncionales.
El proyecto tiene un potencial de réplica y articulación a mayor escala mediante convenios institucionalesydistribucióndeproductosinnovadores:
Nivelnacional:
ProgramaQaliWarma,queatiendeamásde4millonesdeescolaresentodoelPerú. MINSAySIS,medianteredesdeatenciónpreventivaydiagnósticocomunitario. Municipalidadesygobiernosregionalesamazónicos,quepodríanreplicarelmodelo. ONGs y programas internacionales de nutrición que buscan soluciones locales sosteniblesparalaluchacontralaanemia.
Esteproyectonosolobeneficiaalazonadondeseconstruye,sinoque: Articulalaproducciónconunmercadoaseguradoanivelregionalynacional. Mejoralasaludpública,previenelaanemiaypromuevelanutriciónconsciente. Generaempleoformalydiversificadoenlacadenaproductivaylogística. Refuerzalaidentidadamazónicayelusosostenibledefrutosnativos.



ÁREADERECEPCIÓNYPRETRATAMIENTO
Maquinaria Función Capacidad Nº recomendado
Lavadora industrial de frutas
Limpieza de frutas fr 500 kg/hora 1 unidad
Banda transportado Clasificación por cali 1,000 kg/hora 1 unidad
Despulpadora multif Extrae pulpa de camu camu y 400 kg/hora 1 unidad
ÁREADETRANSFORMACIÓN
Maquinaria Función Capacidad Nº recomendado
Mezcladorapasteurizadora
Preparar néctares y mermeladas 150 L/batch 1–2 unidades
Reactor para gomitas / Cocción y mezcla con pectina o agar 100 L/batch 1 unidad
Horno deshidratador
Encapsuladora semiautomática


Deshidratar guayaba y azara 50-100 kg/día 1 mecánico + 1 solar
Cápsulas de camu camu o azara 1,000 cápsulas/hora 1 unidad
ÁREADECONSERVACIÓNYENVASADO
Maquinaria Función Capacidad Nº recomendado
Cámara de refrigerac Almacenar pulpa, jugo y fruta 10 m³ – 12 m³ 1 unidad
Envasadora al vacío / selladora Empaque de productos listos
Etiquetadora semiautomática
Identificación de productos
ÁREADECONSERVACIÓNYENVASADO
300 packs/hora 2 unidades
500 etiquetas/hora 1 unidad
Maquinaria Función Capacidad Nº recomendado
Trituradora de residuos orgánicos Transformar cáscaras y semillas
Compostera rotativa o biodigestor
300 kg/hora 1 unidad
Abono o biogás 500 kg/día 1 sistema modular

"EL TRABAJO DEL ARQUITECTO ES UNA RESPUESTA
"EL TRABAJO DEL ARQUITECTO ES UNA RESPUESTA
ESPACIO, QUE DEMANDA, Y TAMBIÉN UNA
CÓMO TRANSFORMARLO" ALVARO SIZA
ESPACIO, QUE DEMANDA, Y TAMBIÉN UNA PREGUNTA: CÓMO TRANSFORMARLO" ALVARO SIZA



SENSORESCOMESTIBLESPARAMONITOREODELPHGÁSTRICO
�� Referencia: Gao et al. (2021), “Edible Colorimetric Sensors for Gastric pH Detection” – ACS Applied Materials&Interfaces
Descripción: Se desarrolló un sensor en forma de cápsula comestible, hecho con materiales naturalesycompuestosvegetalessensiblesalpH.
Resultado: El sensor cambiaba de color según el pH del estómago, ayudando a detectar acidez gástricaoproblemasdigestivos.
Aplicación: Sirve para diagnóstico no invasivo de problemas digestivos y mejora de la absorcióndehierroencasosdeanemia.


�� Referencia: López-Rubio et al. (2010), “Biodegradable sensors and intelligent packaging from polysaccharides”–TrendsinFoodScience&Technology
Descripción: Se ha demostrado que biopolímeros como la pectina, celulosa y almidón (presentes en frutas tropicales como la guayaba) pueden formar películas comestibles para sensoresdealimentos.
Resultado:Lasmatricesbiodegradablespuedentransportarreactivosomoléculasinteligentes sinafectarsufuncionamiento.
Aplicación:Ensistemasdigestivosoempaqueinteligente.


��Referencia:Kalantar-Zadehetal (2017),“IngestibleSensors”–NatureElectronics
Descripción: Se desarrollaron sensores ingeribles capaces de medir temperatura, gases intestinales,pHyotrosparámetros,conectadosaunaappmóvil
Resultado:Demostraronquelossensoresingeriblespuedenrecorrereltubodigestivosindaño ydardatosentiemporeal.
Aplicación:Investigaciónmédica,nutriciónysaludpública.


�� Referencia: Giusti & Wrolstad (2003), “Acylated Anthocyanins from Fruits as Natural pH Indicators”–JournalofFoodScience
Descripción: Las antocianinas cambian de color según el pH (rojo en ácido, violeta en neutro, verde-amarilloenalcalino).
Resultado:Aplicacióncomoindicadoresnaturalesenalimentosysensorescomestibles.
Aplicación: Sensores visuales digestivos, control de calidad de alimentos, monitoreo de acidez estomacal.




Autor:GiampierreSalinasVega Universidad:CatólicadeSantaMaría,2018
OBJETIVOARQUITECTÓNICOGENERAL
Diseñar una nueva tipología de clínica especializada privada en gastroenterología, que atienda la demanda de salud especializada y contribuya a la formación médica práctica con ambientes adecuadosynormativos,bajoparámetrosdelMINSAyestándaresinternacionales.
MARCOTEÓRICO
Arquitectura como instrumento de cura: Se incorpora la psicología del espacio como parte activa en la recuperación del paciente Se busca reducir el estrés y mejorar el bienestar mediantecolor,forma,luznaturalyvegetación.
Ambientes de aprendizaje: La clínica también actúa como centro formativo, donde el diseño debe responder a métodos educativos modernos, espacios de interacción, información, producciónyexhibición.
Guías técnicas para laboratorios clínicos yhospitales: El proyecto aplica criterios normativos tantodelMINSAcomodeguíasinternacionalesparaáreasmédicasespecializadas.
En Arequipa, los centros médicos actuales no cumplen plenamente con las normas técnicas desalud
Muchoscentrossonadaptacionesdeviviendassincriteriomédiconieducativo.
Se plantea un modelo que combina salud especializada y educación médica privada, en una regiónconaltademandayescasaofertaenestecampo.
TERRENO
Ubicación:CallePazSoldán303,Mz.YLote5,distritodeYanahuara–Arequipa. Área:744m²
Entorno: Urbano patrimonial, con fuerte identidad arquitectónica, lo que condiciona alturas y fachadas.
Topografía:Pendienteleve,seaprovechacondiseñoescalonadoyterrazasfuncionales.
Seplanteaunaintegraciónvisualyfuncionalconeltejidourbano.
Área asistencial médica: Consultorios, diagnóstico por imágenes, endoscopía, farmacia, hospitalización.
Centroquirúrgico:Saladeoperaciones,recuperaciónpostoperatoria,esterilizacióncentral. Docenciamédica:Aulas,laboratorios,salasdediscusiónclínica.
Soporteyservicios:Admisión,administración,archivo,mantenimiento,estacionamiento.
Organizaciónenniveles:
Subsuelo:quirófanos,esterilización,UCI
Primernivel:atenciónprimariayconsultaexterna.
Nivelessuperiores:hospitalizaciónysalasespecializadas.
USUARIOS
Pacientesconafeccionesdigestivasorequerimientosdediagnósticoespecializado.
Estudiantesdemedicinaenprocesodeespecialización.
Personalmédicoytécnico.
PROPUESTAARQUITECTÓNICA
Estilocontemporáneo,conreferenciasalmodernismo(LeCorbusier,MiesvanderRohe).
Usodepatiosinteriores,terrazasajardinadas,ejesdecirculacióncontrolados. Sectoresnuclearizados:seorganizanzonasfuncionalessegúnusoyniveldeespecialidad.
Aprovechamientodelapendientedelterrenoparadistribuiráreaspornivelesdeprivacidady uso.
Se aplica control ambiental pasivo: confort térmico, ventilación cruzada, asoleamiento controlado.
Laclínicanosolobrindaatención,formaprofesionalesmédicos,porello: Sediseñanambientesdeaprendizajeactivos. Espaciosdedocenciaintegradosconáreasasistenciales. Relacióndirectaentreusuario–paciente–docente.


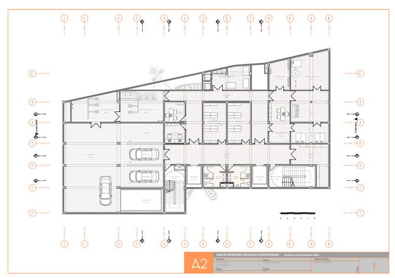
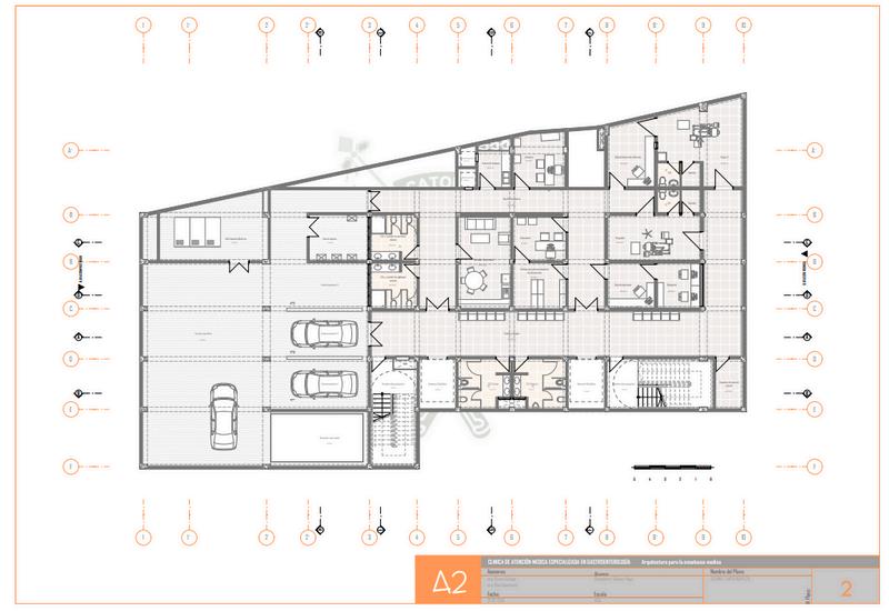
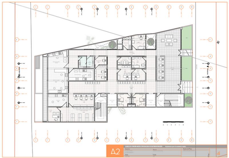
CLÍNICADEATENCIÓNMÉDICAESPECIALIZADAENGASTROENTEROLOGÍA–YANAHUARA,AREQUIPA
Autor:GiampierreSalinasVega Universidad:CatólicadeSantaMaría,2018
SERVICIOSBRINDADOS
-UPSSFarmacia
-UPSSCentraldeDesestabilización
-UPSSEnfermería
-UPSSAdministración
-UPSSCasadeFuerzas
-UPSSCentraldeGases
-UPSSAlmacén
-UPSSEducación
-UPSSCafetería
CUADRODEÁREAS

CONFORTTÉRMICOYLUMÍNICO
-UPSSConsultaExterna
-UPSSEmergencia
-UPSSCentroQuirúrgico
-UPSSHospitalización
-UPSSCuidadosIntensivos
-UPSSPatologíaClínica
-UPSSDiagnósticoporImágenes
ACCESIBILIDAD Y FLUJO
VEHICULARYPEATONAL



CONSIDERACIONESFUNCIONALES ESQUEMADECIRCULACIÓN


CONSIDERACIONESESPACIALES

CONSIDERACIONESMORFOLÓGICAS



La parte exterior presenta una espacialidad que permite el exterior y el interior por la transparencia, esto denota una “semblanza amable” de la presenciainstitucional.
En su conjunto una armonía entre la sobriedad respecto al manejo de formas, modulación, materiales y volumetría; y las intenciones de una presencia contemporánea que no pretende competir con la imagen urbanaexistente.



CLÍNICADEATENCIÓNMÉDICAESPECIALIZADAENGASTROENTEROLOGÍA–YANAHUARA,AREQUIPA
Autor:GiampierreSalinasVega Universidad:CatólicadeSantaMaría,2018



CURSO:



CLÍNICADEATENCIÓNMÉDICAESPECIALIZADAENGASTROENTEROLOGÍA–YANAHUARA,AREQUIPA
Autor:GiampierreSalinasVega Universidad:CatólicadeSantaMaría,2018



CURSO:



CLÍNICADEATENCIÓNMÉDICAESPECIALIZADAENGASTROENTEROLOGÍA–YANAHUARA,AREQUIPA
Autor:GiampierreSalinasVega Universidad:CatólicadeSantaMaría,2018




CURSO:




Autor:PalominoLópez,DiegoA.
UniversidadPeruanadeCienciasAplicadas(UPC),2018
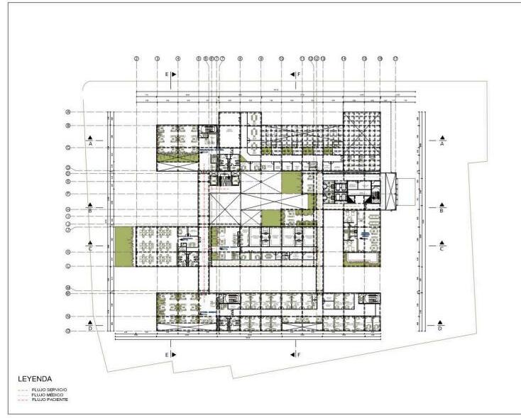
Diseñar un edificio que no solo atienda las necesidades físicas y médicas de los pacientes con A.C.V., sino que además integre la naturaleza al entorno construido como parte activa del proceso terapéutico y emocional, creando espacios de confort, prevención, rehabilitación y reinserción social
Elproyectosefundamentaencuatroenfoquescomplementariosdelaarquitecturaterapéutica:
1.Bioarquitectura:Usodeventilacióncruzada,luznatural,vegetaciónymaterialessaludables.
2.Helioterapia: Control de asoleamiento para mejorar estados depresivos y favorecer la recuperación.
3.Fitoterapia:Jardinesyaromasnaturalescomomedioparareducirelestrés
4.Hidroterapia: Presencia del agua como elemento físico y sensorial que mejora la movilidad y relajacióndelpaciente.
Ubicación:SanJuandeLurigancho–LimaEste.
Justificación: Alta densidad poblacional, alto índice de personas con A.C.V., deficiencia en infraestructuramédicaespecializada.
Accesibilidad:CercanoalaLínea1delMetro,ejeconectordeldistrito
PROGRAMAARQUITECTÓNICO
OrganizadoenunidadesfuncionalessegúnlanormativadelMINSA Algunasunidadesclave: Consultaexterna(consultorios,laboratorios,salasdeespera).
Rehabilitación física y sensorial (hidroterapia, mecanoterapia, terapia de lenguaje y ocupacional).
Internamiento(habitacioneshospitalariasconaccesoajardines).
Servicioscomplementarios(farmacia,bancodesangre,patología).
Educacióncomunitaria(auditorios,biblioteca,charlaspreventivas).
Administración,soportetécnicoymantenimiento.


Sistema aporticado de concreto, con tabiquería liviana (drywall) para flexibilidad y fácil mantenimiento.
Usodeestructurasmetálicasenzonasdeexpansiónograndesluces.
Materialesnormativos:pisosdevinil,zócalosboleados,techosverdes,celosíasdemadera.
Trama arquitectónica abierta que simula el entretejido de vegetación con el pavimento, conectandolonaturalconloconstruido.
Interiores:controlsolar,ventilaciónnatural,conforttérmico.
Exteriores:jardinesterapéuticos,pérgolas,espaciosparainteracciónpaciente–familia.
Transición suave entre espacios cerrados y abiertos, promoviendo bienestar emocional y percepcióndelibertad.
PacientesconA.C.V.(ambulatoriosyhospitalizados).
Personasmayoresde20añospropensasaestaenfermedad.
Médicos,personaltécnico,acompañantes,públicointeresadoenprevención.






CENTRODEPREVENCIÓNYREHABILITACIÓNPARAPACIENTESCONA.C.V.
Autor:PalominoLópez,DiegoA. UniversidadPeruanadeCienciasAplicadas(UPC),2018
SISTEMA CONSTRUCTIVO CONVENCIONAL Pórticode concreto/ tabiqueríadedrywall

SISTEMA CONSTRUCTIVO NO CONVENCIONAL
Otro sistema para la construcción de la edificación es el uso de las estructuras metálicas, que permiten formar espacios más amplios y de rápida construcción.
CELOSÍA DE MADERA/ TRAMA DE VEGETACIÓN


El centro de rehabilitación debe ocupar como máximo el 30% del área total del terreno según normativa y según los parámetros puede llegar hasta 4 pisos, por lo que se proyecta en 3 momentáneamente, teniendo a futuro el 20% de expansión del terreno tantode manera vertical comohorizontal.

Piso vinil / zócalo boleado
TECNOLOGÍA








Autor:PalominoLópez,DiegoA. UniversidadPeruanadeCienciasAplicadas(UPC),2018






Trastornos digestivos funcionales

Enfermedad por Reflujo



Áreasmínimasnecesarias(segúnelMINSA):
Saladeespera
Consultoriodemedicinageneral
Consultoriodenutrición
Áreadepromocióndelasalud


PREVENIRENFERMEDADESDIGESTIVASY
NUTRICIONALESCOMO:
1. ENFOQUE PREVENTIVO Y AMBULATORIO DE ATENCIÓN PRIMARIA EN SALUD
DIGESTIVA
CATEGORÍAPROPUESTA:CENTRODESALUDI-3SININTERNAMIENTO
Funciónprincipal:Prevencióndeenfermedadesdigestivasmediante
Controlmédicoambulatorio.
Promocióndeestilosdevidasaludables.
Consultoriosdemedicinageneral
Nutrición
Gastroenterologíabásica.
Promocióndeestilosdevidasaludables.
Orientaciónalimentariaynutricional.


Uso de productos derivados agroindustriales (jugos, cápsulas, compotas, etc.) como parte de la intervenciónnutricionalypreventiva.




Tópico(atenciónrápida)
Servicioshigiénicos
Oficinaadministrativa
Áreasopcionalesocomplementarias:
Laboratorios
Saladetallereseducativos
Módulo de agroindustria educativa/productiva







Según el MINSA (RM N.º 546-2011/MINSA), el nivel I-3 permite establecer programas preventivos con personal profesional (médicos generales, nutricionistas, obstetras), sin necesidad de internamiento ni infraestructura hospitalaria costosa. Esto se alinea perfectamente con el objetivo del centro: prevenir enfermedades digestivas funcionales, ERGE, gastritis, etc., mediante atención médica,nutricionalyeducacióncomunitaria


INNOVADORAENPREVENCIÓNDIGESTIVA
El uso de frutos nativos (como camu camu, guayaba, azara) para la elaboración de productos funcionales con propiedades digestivas es una estrategia de intervenciónnutricionalpreventiva.Estecomponente puede integrarse dentro del modelo de promoción de lasaludcomo:




Estonoexigequeelcentroseahospitalario (comounIII-2),sinoquesearticulecon sectorescomoeducación,agriculturay economíarural,enestrategias intersectoriales(ver:PlanNacionaldeSalud InterculturalMINSA)

D.Estrategiadeprevencióndelcáncergástrico–Arequipa
Intervenciones en Centros de Salud I-3 para detección temprana, educación alimentaria y promoción de alimentos naturales contra el cáncer gástrico. No se usa infraestructura hospitalaria.
UnestablecimientoI-3tienecostosaccesibleseninfraestructura,recursoshumanosy equipamiento.
Puede funcionar a nivel distrital o zonal, atendiendo directamente a comunidades vulnerables.

A.CentrodeSaludI-3dePangoa(Satipo,Junín)
Funciona sin internamiento, pero ofrece consultas médicas generales, atención nutricional, promocióncomunitariayprogramaspreventivosconproductoslocales(quinua,maca)
Implementa talleres para mejorar la alimentación y reducir enfermedades digestivas y de desnutricióncrónica.
B.CentrodeSaludSanJuandeYanac(Huancavelica)
Clasificado como I-3. Integra programas de educación alimentaria con cultivos locales para prevenirenfermedadesintestinalesyparasitosis,sinrequeriratenciónhospitalaria.
C.Programa“SaberesProductivosyNutricionales”–MINSA+MIDIS
Usa centros de salud I-2 o I-3 para complementar la atención médica con talleres de transformación de alimentos locales para combatir anemia y problemas digestivos, articulandosaludconproducción.


Permite integrar acciones sostenibles de prevención, nutrición y producción, sin requerirpersonalmédicoespecializadonihospitalización.
Función
Prevención y Promoción
Atención médica ambulatoria
Nutrición y consejería alimentaria
Educación comunitaria
Sin internamiento
Cómo se aplica en tu centro
Educación sobre causas y prevención del reflujo, gastritis, anemia y hábitos digestivos saludables.
Diagnóstico clínico básico, tratamiento inicial y derivación en casos severos de ERGE o gastritis.
Evaluación del estado nutricional, dietas individualizadas, uso de productos funcionales naturales.
Talleres prácticos con alimentos nativos para prevenir anemia y enfermedades digestivas
Suficiente, ya que tu enfoque es preventivo y educativo, no hospitalario ni quirúrgico.
Centro de Prevención Digestiva y Nutricional con Agroindustria Funcional debe clasificarse comounEstablecimientodeSaludCategoríaI-3porque: Tieneunenfoquepreventivoyambulatorio,nohospitalario. Abarcatantoproblemasdigestivoscomolaanemia,quesonpartedelaatenciónprimaria. Puede incorporar innovaciones como la agroindustria educativa y funcional sin salir del marconormativodesalud.
Hay múltiples proyectos análogos funcionando en Perú con buenos resultados bajo esta categoría.

“EL EJERCICIO DE LA ARQUITECTURA ES LA MÁS DELICIOSA DE LAS LABORES. ES TAMBIÉN JUNTO CON
“EL EJERCICIO DE LA ARQUITECTURA ES LA MÁS DELICIOSA DE LAS LABORES. ES TAMBIÉN JUNTO CON
LA AGRICULTURA, LA MÁS NECESARIA PARA EL HOMBRE.”
LA AGRICULTURA, LA MÁS NECESARIA PARA EL HOMBRE.”
PHILIP JOHNSON
PHILIP JOHNSON



Ucayali enfrenta altos niveles de anemia infantil y enfermedades digestivas, principalmente por falta de atención preventiva y escasa nutrición adecuada. A pesar de contar con frutos nativos como el camu camu, guayaba y azara, estos no son aprovechados en beneficio de la salud pública ni industrializados localmente. El terreno propuesto, ubicado en una zona estratégica de Pucallpa, no cuenta con centros de salud adecuados, lo que refuerza la necesidad de una intervenciónintegral.
Existe una fuerte desconexión entre la producción de alimentos nativos y el sistema de salud. Se identifican debilidades en infraestructura médica, ed agroindustriales y distrib necesario un proyecto que que prevenga, eduque y amazónico.



Se reconocen oportunidades como la biodiversidad local, la demanda institucional (Qali Warma, MINSA), el potencial








El proyecto se basa en un enfoque arquitectónico multifuncional que articula salud preventiva (Establecimiento I-3), agroindustria de frutos nativos,educaciónnutricional,turismovivencialycomercialización.Se introduce un sensor digestivo comestible como producto innovador, simbolizandoelvínculoentresalud,alimentaciónyterritorio.




El complejo se organiza en zonas funcionales: salud preventiva, planta agroindustrial,educación,logística,administración,turismovivencialy servicios. Se plantea una ejecución por fases y una operación con empleo local y distribución institucional fija. El diseño arquitectónico respondealclimaamazónico,esbioclimático,sostenibleyreplicable.


“LA ARQUITECTURA TRATA REALMENTE SOBRE EL BIENESTAR. CREO QUE LA GENTE QUIERE SENTIRSE
“LA ARQUITECTURA TRATA REALMENTE SOBRE EL BIENESTAR. CREO QUE LA GENTE QUIERE SENTIRSE
BIEN EN UN ESPACIO… POR UN LADO SE TRATA DE REFUGIO, PERO TAMBIÉN SE TRATA DE PLACER” ZAHA HADID
BIEN EN UN ESPACIO… POR UN LADO SE TRATA DE REFUGIO, PERO TAMBIÉN SE TRATA DE PLACER” ZAHA HADID






DEPARTAMENTO:









TERRENO:





RECREACIÓN(R) COMERCIO(C)
VIASPRINCIPALES VIAS

VIASSECUNDARIAS



1 ÉPOCADELARECONSTRUCCIÓN
Según relatos, Pucallpa ya erahabitadapormestizos






Fue creada el 13 de octubre, perteneció a la provincia de Ucayali-Loreto.


FUNDADORES 2

Arribaron quienes son consideradosfundadores:Eduardo del Äguila Tello, Augusto Cauper VideirayAntonioMayadeBrito

3 CREACIÓNDECALLERÍA 4
5 LÍMITESDECALLERÍA
Los límites del distrito de Callería fueron modificados en 1943 y precisanen1982.





PUEBLOSANJERONIMOCAPITAL
Setrasladólacapitaldeldistritoal pueblodePucallpa,anexadodela provinciadeUcayali.

6 LACAPITALIDAD
8 INFRAESTRUCTURAURBANA
Pucallpa se convierte oficialmente en capital de la provincia de Coronel Portillo, consolidando su crecimiento económico y político. 1970-1980 2
1970





Se expande la infraestructura urbana con la construcción de puentes y mejora de carreteras, lo que impulsa aún más el comercio y la integración con el restodelPerú. Actualidad

MADERAYAGRICULTURA 7
La industria maderera y la agricultura crecen en importancia, convirtiendo a Pucallpa en un centro comercial y económico claveenlaregiónamazónica 1990-2000 1990








Universidad Nacional de Ucayali




Hospital de Apoyo II Pucallpa


CONSTRUCCIONESMÁS IMPORTANTES
Centro de Convenciones y Exposiciones de Pucallpa

FUENTE:https://www.google.com/amp/s/www.iperu.org/distrito-de-calleria-provincia-de-coronel-portillo/amp











AXONOMETRÍA:








LEYENDA:
TERRENO
RESIDENCIAL(ZR)
COMERCIAL(ZC)
INDUSTRIALLIVIANA(I2)
GRANINDUSTRIA(I3)
GRANINDUSTRIAPESADA(I4)
RESERVAURBANA(ZRU)
ECOLOGICAEINTANGIBLE(ZPE)





AEROPUERTOINTERNAC I ONAL CAPFAPDAVIDABENSURRENGIFOAEROPUERTOINTERNACIONALCAPFAPDAVIDABENSURRENGIFO









CentroInfantildeAtención IntegralNUEVOBLOGNESI






Ladrilleria UcayaliSRL

Reciplastic Gutiérrez
RESIDENCIAL(ZR) TERRENO

OTROSUSOS(OU)
LAGUNASYRÍOS
YENDA: VIASSECUNDARIAS

Terrenodestinadoa equipamientodeSaludsegúnel
PDU2017-2027

PuestoDeSaludNueva MagdalenacategoríaI-2


CURSO:


CentroInfantildeAtención IntegralNUEVOBLOGNESI


RECREACIÓN(R)
VIASPRINCIPALES
VIASSECUNDARIAS LAGUNASYRÍOS
VIAS SALUD(H)












INDUSTRIA
RECREACIÓN(R) CURSO:
LAGUNASYRÍOS
VIASPRINCIPALES
VIASSECUNDARIAS
VIAS

MUY CÁLIDO, MODERADAMENTE
LLUVIOSO Y CON AMPLITUD TÉRMICA
MODERADA

T° PROMEDIO ANUAL
MÁX (FEBRERO) : 38° C
MIN (AGOSTO): 18° C


MÁX (MARZO) : 83.4%
MIN (SEPTIEMBRE) : 77%

MÁX : 29 KM/H
MIN : 0.22 KM/H 7:00 12:00















Carretera federico Basadre
VIAS URBANAS PRINCIPALES
Av. Centenario
Av. Yarinacocha
VIAS URBANAS SECUNDARIAS
Vias colectoras

VIAS LOCALES
Carretera Federico Basadre

Av. Yanacocha





CARRETERAFEDERICOBASADRE CARRETERAFEDERICOBASADRE
LEYENDA:

TERRENO
VIAS



CARRETERAFEDERICOBASADRE



















LEYENDA:

LAGUNAS
RÍOS
VIAPRINCIPAL
VIASSECUNDARIAS
VIASPROYECTADAS













Área con un suelo malo para la agricultura. Sin embargo, sus bosques permanentes tienen una infinidad de recursos como medicina, madera, etc.

Bosque sobre suelo arcilloso. Presenta un número reducido de individuos y gran cantidad de especies leñosas; hasta 300 especies leñosas.
Ubicado sobre suelo de arena blanca. Presenta el mayor número de individuos y el menor número de especies, así como árboles con diámetro reducido.
GALERÍA
Bosque sobre suelo arcilloso que, para la agricultura, se conoce como suelo húmedo y pesado.
De una fertilidad pobre, dedicados principalmente a la actividad pecuaria y en menor grado a la producción de palma aceitera, cacao, pijuayo para palmita, sacha inchi, entre otros.
Los bosques de varillales son el recurso más importante para la economía familiar. Sus troncos son generalmente delgados, derechos y de madera dura y resistente, por lo que son apropiados para la construcción del armazón de las viviendas rurales y urbano marginales.



Cercano a las riberas de las quebradas y con características muy húmedas. Los árboles están adaptados a ser removidos constantemente.
Depósito aluvial más antiguo. Cultivo de frutales como plátano, papaya, camu camu, guayabo y mango. Suelo limoso.
Ubicado a la orilla de los ríos; caracterizados por sus suelos inestables. Principalmente, se siembra arroz. Suelo limoso.
Hondonada usualmente inundada. Se caracteriza por suelos pantanosos, con abundante vegetación lianescente.
Depósito temporal. Cultivo de hortalizas, como frijol, caigua, repollo y zapallo. Suelo arenoso.



Mantiene humedad permanente, por eso las especies que lo habitan. Se le conoce como aguajal.
ZONA
Área más fértil de la Amazonía. Sin embargo, no se prestan para un cultivo continuo del suelo; son temporales.
%


La maloca es una edificación vernácula Icónica del paisaje amazónico que aún se ve en algunos grupos étnicos, representa una tipología de construcción espontánea y forma parte de una manifestación cultural de la Amazonia Peruana
Este tipo se ancla empotrando troncos verticales en el suelo, sobre los que se construye en una plataforma de ma Este tipo se edifica en las zonas elev que el nivel del agua no alcanza cua




En la Selva los niveles de los ríos son muy cambiantes, por lo que las viviendas que se construyen en sus orillas deben, además de respetar distancias, construirse sobre pilotes de madera empotrados en el suelo para evitar ser rebasadas por el nivel del agua en temporada de lluvias












Las viviendas se construyen con formas diferentes y con materiales propios del lugar como madera, palma, piedra cemento, entre otros.


De materiales más modernos




Las herramientas y maquinaria necesarias para los diversos "cortes" a utilizar, definen la disponibilidad y tipificación de los diversos elementos provistos por la industria maderera. (Tirantes, listones, tablas, tableros, etc.)
Las técnicas de unión de las piezas de madera, y por lo tanto, el grado de especialización requerido de la mano de obra.












Su proceso constructivo, definido fundamentalmente por sus técnicas de unión, que es básicamente de "montaje en seco", probablemente con algunas obras realizadas "in situ" (techos, entrepisos, paramentos verticales) y otras "en taller" (aberturas, mobiliario, etc.), para lo cual se deben prever las coordinaciones necesarias en la organización de la obra.

