Skip to main content

Jemmy Yusoef Sample Portfolio

Page 1


PORTFOLIO

JEMMY YUSOEF

Technical (IT) Skills

AutoCad

Revit

Written & Oral Communication

Teamwork

Collaboration

Problem Solving

Estimating Languages

JEMMY YUSOEF

Bristol, U.K

www.linkedin.com/in/jemmy-yusoef-6659216a

PERSONAL SUMMARY

I am a hard-working individual who strives for excellence and is always eager to learn new things. I enjoy facing challenges as they allow me to continually develop my skills and remain prepared for new tasks. As an aspiring architect, I aim to seize every opportunity to achieve the life goals I have set for myself.

Having completed both my Bachelor’s and Master’s degrees in Architecture, I am now seeking the practical experience necessary to pursue my Part 3 qualification and become a chartered architect. As I embark on this next phase of my career, I am particularly interested in exploring innovative design approaches and contributing to exciting projects that can transform our understanding of architecture. In addition to acquiring experience in the United Kingdom, I have a particular interest in obtaining international exposure, especially in the Middle East. My objective is to engage with diverse architectural styles and to enhance my understanding of global trends, thereby increasing the versatility and value of my skills.

EXPERIENCE

BDP/Summer Intern

August 2021 –September 2021

During my internship, I was tasked with various responsibilities that not only enhanced my existing skills but also introduced me to new competencies. I contributed to refining a Design and Access Statement and developed diagrams illustrating different zones and circulation paths within a building, as well as a diagram outlining the Fire Safety Plan and escape routes. Additionally, I created rendered visuals to facilitate understanding of the proposed changes to various spaces. I also assisted colleagues with their projects, utilizing various Adobe software such as Photoshop, which further advanced my digital illustration abilities. This experience significantly deepened my understanding of the professional environment I aspire to work in in the future.

Babcock International/Work Experience

1 Week In 2016

During my week at Babcock International, I acquired valuable experiences that will serve me well in the future. I received training in Computer-Aided Design and had the opportunity to participate in a mock meeting, which enhanced my understanding of corporate communication. This week was highly beneficial, as I developed new skills through various tasks and gained insights into the operational and communicative dynamics of organizations.

EDUCATION

Oxford Brookes University / Applied Design in Architecture - MArchD September 2022 - 2024,

University of The West of England / Architecture - BSc(Hons) September 2018 - 2022,

Colston’s Girls’ School / A-Levels and AS Level September 2015 - July 2017, A Level Physics - D, A-Level Art - B, EPQ - C, AS-Level Maths - C

CO-HOUSING

The location of this project is on Herepath Street, Bristol, which is close to the River Avon. The project aims to create dwellings for domestically abused victims and create a community which they can feel safe in. There is a communal hub where the community can get together and feel safe with the comfort of others around them. It can bring the community closer by involving them with games in the common room or a group meal in the shared dining space.

SITE PLAN

SOUTH ELEVATION

PUBLIC BUILDING

The aim of this project was to create a Public building that was used as a Re-wilding Hub. The building aims to take a sustainable approach by being designed with nature.

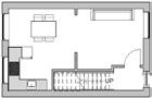
GROUND FLOOR PLAN

Welcome

FIRST FLOOR PLAN

SECOND FLOOR PLAN

INSTITUTION OF TIMBER ADVANCEMENTS

The aim of the project is to deliver a Timber Institution to the town of Moulvibazaar which, is located in the North-East region of Bangladesh. The project will deliver opportunities to the local community by providing a space where they can enhance their current craftmanship skills.

This project aims to promote the use of timber construction by providing a place where the community can go and learn about its use and the environmental factors associated with is. The Institution itself will try to use the least amount of concrete it can to show it is possible to shift away from the regular use of concrete.

RESTORING TO HEAL

The project aims to combat the issues caused by the food industry and encourage others to take part in resolving these problems. A long with this, the design has been created in a way that can help with healing for both humans and the environment as the food industry is not the only industry that has caused this earth a lot of damage. Therefore, this project aims to help in more than one area as one improvement can lead to the next.

The project uses a Biophilic and Salutogenic approach to adopt a restorative environment design to aid in both physical and mental health.

LONG
SHORT

SUMMER SUN ENVIRONMENTAL STRATEGY

Perforated panels close during hot summer days to allow enough light in as well as blocking the sun glare. This shading device helps the building from over-heating and needing air-conditioning. The Green roof can provide natural cooling using evapotranspiration. A cooling effect is given to the rooms below.

https://youtu.be/EyvYeS-

DETAIL

A - PARAPET WALL 1:5

1. Parapet flashing

2. Tapered rigid insulation

3. Continuous butyl sealant

4. Fastener to parapet backer

5. 1/4” - 14 Hex head fasteners with washer

6. Pop rivet @8” O.C.

DETAIL B - WINDOW SILL 1:5

7. Window frame component

8. 1/4” - 14 “Low profile fastener

9. Framed opening

10. Continuous butyl sealant on both sides of trim

11. Continuous butyl sealant

12. Exposed sealant

13. Exterior cap trim

14. Pop rivets @ 8” O.C.

DETAIL C - WINDOW HEAD 1:5

1. Continuous butyl sealant on both sides of trim

2. 1/4” - 14 “Low profile fastener

3. Framed opening

4. Base trim w/ pop rivets @ 8” O.C

5. Base flashing

6. Exposed sealant

7. Window frame component

DETAIL D - FLOOR TO WALL 1:5

8. Acoustic Flanking Band

9. Floor finish

10. Resilient Composite Batten

11. Kingspan Multideck 80 - 80mm trapezoidal profile giving maximum strength

12. Factory fitted wide cover flashing

13. Suspended ceiling using hook bolts

14. Factory fitted TENMAT FF102/50 Intumuscent fire barrier fixed to edge of slab with non- combustible

screws

15. Non - combustible insulation

16. Steel beam (Primary)

STRUCTURAL STRATEGY

Kingspan

Structural Deck –

Dead and live load from the slabs are transferred to the beams.

RD 158/750 Beam System

The load is transferred vertically to the footing.

Kingspan Multideck 8080mm trapezoidal profile

Reinforced Concrete Footing Steel Column

The load is then transferred to the columns.

The reinforced concrete footings allow for the load to be distributed appropriately so that the structure is prevented from sinking into the ground.

FIRE STRATEGY

The primary structure is used to transfer the load into the ground.

The building offers 7 emergency exits, 5 of which is accessible by the public. The exits lead to the front of the site where there is plenty of room for large crowds to rush out. Staff exits lead to the back of the site. The central staircase provides easy access from all building corners. The exit nearest to the staircase will be for upper-level evacuations, ensuring swift departures, while ground floor occupants are advised to use alternative exits to prevent congestion.

STRUCTURAL DEFECTS BOOKLET GUIDE

This booklet has been developed in response to the Rana Plaza collapse to assist in identifying safety concerns and to promote whistle-blowing.

It serves as an officially approved resource aimed at providing information on safe building practices. This document will enhance awareness and knowledge, enabling individuals to recognize and report potential faults effectively. It also offers guidance on safe building practices to be implemented.

UNSAFE LAND

COLUMNS

FOUNDATION

WINDOW SAG

LINTEL FAILURE

VIBRATIONS

BOLT CORROSION

CANTILEVER

Photo examples of window sagging

STRUCTURAL EXEMPLAR

Pile Foundation

Build a piling foundation using end-bearing driven piles. These piles are long concrete or steel columns which are driven into the ground to the required (high bearing capacity soil) so that the load of the structure can be transferred into the ground. This of foundation is suitable for wet or unstable ground where the hard layer is found very deep down.

A steel frame structure is recommended as steel is both a strong and light material. The load from each floor is transferred onto the beams which then transfers the load through the columns and into the foundation. Using a beam system as a secondary structure allows for larger floor spans which can mimise the amount of columns and allow for more space for machinery.

Composite floor slabs consisting of profiled steel decking can give maximum strength as the metal deck can provide shear bond with the concrete. The steel profile also minimises the amount of concrete needed and thus reduces the weight of the structure.

Providing cross-bracing can buildings stability as it can lateral movement and thus of damage being made to the of the building.

Ensuring a good level of lateral portant as it allows the structure eral forces applied to it.

2. Steel Frame Structure
3. Concrete Composite Floors
4.Bracing

can help improve the limit the buildings reduces the chances the structural elements

lateral stability is imstructure to resist the lat-

A space frame roof which consists of interconnected traingles is an ideal roof choice as it can be used with lightweight roofing sheets. This helps reduce the load on the buildings frame structure and foundation.

Load bearing walls should be used for staircases or lifts and placed around the centre of the building to act as a central shear core. This provides extra stability to the structure as the core walls can resist damaging lateral forces that can be exerted from strong winds or earthquakes.

This booklet has been developed to outline safe practices and prevent incidents similar to the Rana Plaza tragedy. It serves as a reference document providing an example of building structure for construction and design companies to use as guidance.

7.Moment Frame

The beams and columns should be connected using bolted moment connections as they can transfer bending and shear forces by attaching the primary beams to the flange of the columns.

8.

Floors where heavy machinery such as motors or pumps are used should provide a slit damper to the beam-to-column connection. This is so that energy can be dissipated in the dampers and improve the seismic performance of the connection.

5.Space Frame roof
6. Central Shear Core
Dampers

MODEL MAKING

YEAR 1 - LIGHT TESTING

YEAR 2 - FORM FINDING

YEAR 2 - GROUP PROJECT

MASTERS YEAR 2 KINETIC TESTING - SCISSOR MOVEMENT

SCISSOR GATE MOVEMENT

‘NOT SCISSOR’ GATE MOVEMENT

EXPERIMENTING WITH ‘NOT SCISSOR’ GATE MOVEMENT

‘L’ shape components are placed in the middle of the sequence which causes a change in direction of movement for the other half of the sequence.

If a connection is made to the central part where the direction of the scissor movement is flipped then the movement is restricted

OTHER WORKS

ESSAY

An excerpt from my essay on Theories of Architecture and Design. The guidelines stipulated that the essay should be derived from my Final Year Studio project, elucidating the process that led to my final design and highlighting the principal influences involved.

THEORETICAL ANALYSIS

A Salutogenic Mode of Design

Salutogenis is a term introduced by the medical socialist Aaron Antonovsky, that translates to “the origins of health” (Physiopedia, 2021) The salutogenic approach is an “approach to wellness focusing on health and not on disease ” (Physiopedia, 2021) This approach stems from Antonosky’s idea that it was “more important to focus on peoples’ resources and capacity to create health than the classic focus on risks, ill health, and disease,” (Physiopedia, 2021)

By using my understand of the principals of a salutogenis approach, I thought about the resources my site already possessed that can help in achieving the aims of my design without the need of creating or adding new elements to the site One of the very first things I investigated about the site was the direction of light and its behaviour throughout the year. This was a crucial step and foundation for developing my design as it would let me determine the orientation of the building and location for windows This step was taken because studies, such as the one conducted by Choi, Beltran and Kim, have shown that “natural window views with daylight are recognized as a significant factor in increasing indoor environmental quality” ( Choi, Beltran and Kim, 2012, p.65). This influenced my design by making the building South-East facing so that it can obtain as much sunlight as possible by facing the direction it is coming from and avoiding neighbouring buildings that can block out the light This is one of the ways a salutogenic approach works; “the sense of coherence represents the human’s ability to figure out, control and cope with an encountered situation by using internal and external resources” (Abdelaal and Soebarto, 2019) Sunlight is available throughout the year and so this means it is a resource of nature that can be relied on, and it is also a well-known asset to encouraging a healthier standard of physical and mental health

Figure 2 - A study of the sunlight on my site

BORNEO BAMBOO WORKSHOP 2023

Turn static files into dynamic content formats.

Create a flipbook
Jemmy Yusoef Sample Portfolio by jemmyyusoef - Issuu