JEFFREY SANJINEZ CORNEJO

![]()

Mi nombre es Jeffrey Sanjinez Cornejo, soy profesional Arquitecto de la Universidad Cesar Vallejo, con el ímpetu de formar parte de una empresa en la que pueda aportar con mis conocimientos adquiridos y al mismo tiempo que me permita aprender y desarrollarme profesionalmente.
Me considero una persona responsable, con la determinación de cumplir mis objetivos, muy disciplinado, con las ganas de siempre apoyar, trabajando en equipo, y al mismo tiempo dar lo mejor de mí en cualquier proyecto.
Arquitecto
UNIVERSIDAD CESAR VALLEJO| 2023
Asistente técnico en Obras Publicas
ESID PERÚ | 2023
Valorización y Liquidación de Obras Publicas
ESID PERÚ | 2023
Ingles - Nivel Basico
UNIVERSIDAD CESAR VALLEJO| 2023



















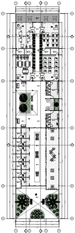
Centro cultural de 2 800m2 con 3 niveles, ubicado en el Centro Histórico de Piura con un diseño moderno conjugando el concretomadera y con integración hacia el entorno.

El proyecto se adaptó a los parámetros urbanísticos y normativa para edificaciones en Centro Histórico con la finalidad de generar ornamento con el resto de edificaciones existentes.


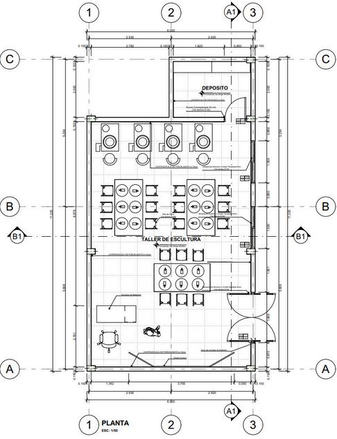
Centro multifuncional para la integración social con un área de 1050m2 ubicado en el distrito de Bellavista de la Union, proyecto destinado a satisfacer las necesidades de los pobladores.



De acuerdo a las necesidades del usuario, el proyecto se compone de un área de comercio al inicio, seguido de un área de distribución y administración en dos niveles, culminando con un área de talleres.


utilizando materiales sostenibles como la piedra y la madera implantado en un centro cultural ubicado en el distrito de Tambogrande - Piura.




Proyecto realizado a nivel de detalle y acabados, seguido de una distribución funcional que aporte como un espacio de confort en el componente de un Centro Cultural.

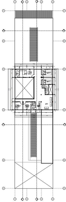
Este proyecto consta de 543 m2 ubicado en un lote de esquina, cuenta con 8 departamentos, un SUM y un área de terraza con piscina en la azotea.


Este proyecto destaca la funcionalidad de la vivienda multifamiliar en todos sus ambientes, teniendo como eje principal una torre de escaleras que destaca por tener un acabado de vidrio.

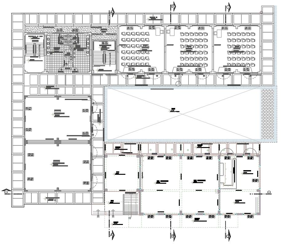
El Proyecto cuenta con un área de 1 700m2 implantados en la Universidad Nacional de Tumbes, esta compuesto de 3 bloques conectados mediante un patio central y que tiene como fin mejorar la calidad de la educación superior pública mediante su infraestructura.



Proyecto que consta de 3 niveles y una proyección para un cuarto bloque destinado a zona administrativa, se destaca un Auditorio de doble altura con pendiente en sus gradas ubicado en la segunda planta.



Proyecto de edificio multifamiliar (Hotel) de 4 niveles con amplia terraza en el cuarto nivel, ubicado en el distrito de Tumbes - Tumbes.



El proyecto se emplaza haciendo una conexión con un edificio en la parte posterior, así mismo destaca por una fachada moderna, haciendo un uso del concreto, vidrio y madera como componentes principales.