Jeet Bharadiya | Portfolio

Page 1

ANANT NATIONAL UNIVERSITY

JEET BHARADIYA PORTFOLIO

SELECTED WORKS 2021-2023

2021-Present

2018-2021

2018

Jeet Bharadiya

DOB • 20 August 2002

Ahmedabad, Gujarat

Email • jeet.bharadiya.soa21@anu.edu.in

Ph • +917990977965

Education

Bachelors of architecture, Anant national university, Ahmedabad

Diploma in Architecural Apprenticeship

L.J polytechnic Ahmedabad

Shiv-ashish School Bopal, Ahmedabad

Communication

English • Hindi • Gujarati

Digital Skills

Autocad

Sketchup

Twinmotion

Lumion

Enscape

Photoshop

Indesign

Archicad

Other Skills

Drafting

Model making

3D rendering

Competitions

Modular timber housing 2022 • TOP 15

Desert resilience hub 2023

NASA LIk Trophy 2022 • Citation II

NASA ANDC Trophy • Shortlisted

RSP/Workshops

Bundi Winter RSP 2022

Documentation Workshop

Archicad elective

RECURSION 1 M.T.H 2 INSTITUTION 3 HOUSING 4 D.R.H 5 STUDIO • LEARNING FROM MASTERS SEM V SUPERVISOR • PROF BHAVIK MEHTA ,PROF RAMESH PATEL STUDIO • COMMON SENSE SEM III SUPERVISOR • PROF UJJWAL DAWAR COMPETITION • 5 MEMBERS 2022 MODULAR TIMBER HOUSING STUDIO • URBAN VILLAGE SEM IV SUPERVISOR • PROF SUNNY BANSAL COMPETITION • 5 MEMBERS 2023 DESERT RESILIENCE HUB

RECURSION

SITE • VADODRA

Opp. Kotna beach Vadodra , on the banks of Mahi river. The programme was to design an architect's studio of 3-5 employes, using strategies to negotiatewith the site context,climatic conditions, morphology, etc. Project Recursion comprises four nested volumes arranged in a progressive introverted sequence, carefully situated to optimize climatic responsiveness while seamlessly integrating with one another. Furthermore, it replicates the structural form of the original volumes through the thoughtful selection of materials and construction techniques, maintaining architectural coherence

SEMESTER • III TYPE • INDIVIDUAL SUPERVISOR • PROF.UJJWAL DAWAR 1

VOLUMES

4 VOLUMES NESTED IN EACH OTHER

SHIFT II

WORKSPACE SHIFTS ACOORDING TO SUN

SPLIT

PRIVATE | PUBLIC

SHIFT I

VERANDAH SHIFTS FOR VIEWS

SHIFT III

SERVICES SHIFT ACCORDING TO WIND

LEVELS

FLOOR PLATES ACCORDING TO CONTOUR

Overall dimensions taken in reference to the existing trees.

PLAN • SECTION

VOLUME 1

DECK

The outer deck, affords a panoramic vista of the Mahi River to the west and south, integrating the natural environment seamlessly into the architectural composition.

VOLUME 2

VERANDAH

The shaded verandah acts as a transitional threshold between the deck and workspace, providing a seamless connection while offering shelter from direct sunlight.

VOLUME 3

WORKSPACE

The workspace is shielded by the western shaded verandah, optimizing cross ventilation through its linear design. .

VOLUME 3

SERVICES

The services are positioned in accordance with the river's draft-induced wind direction, maximizing natural airflow and environmental efficiency in the architectural layout.

MATERIALIZATION

The latter phase of the design process centered on exploring the impact of material selection and construction methodologies on the spatial experience. The central workspace is a concrete structure which provides good thermal insulation.The shaded verandah, composed of timber elements supported by surrounding columns, preserves the volumetric expression of the structure. The outermost volume, features a timber canopy atop its structure, serving to uphold its architectural integrity while also presenting a potential opportunity to cultivate creepers.

1 • METAL ROOFING

2 • WOODEN BOARDS

3

• STEEL RODS

4 • SLATE TILE FLOORING

5

• EXPOSED R.C.C

6

• BIFOLDING DOORS - WOOD

7

• TIMBER FRAME

8

• HARDWOOD FLOORING

1 2 4 3 5 7 8 6

TIMBER COLUMNS

Options for the Timber column which surrounds the shaded verandah and supports the structure. .

1 : 2 JOINERY

COMPETITION

HONORABLE MENTION

M.T.H
• 5
MEMBERS
2
TOP 15

The design's objective was to establish a universal timber building system, emphasizing a structural framework with minimal ground footprint. Achieved through the placement of steel trusses atop structural shafts, which concurrently facilitate circulation between levels, this approach redefines the park's boundaries. Accommodating three levels with timber walls and floors, the steel truss configuration enhances park views, complemented by foldable balconies for an enriched spatial experience. Modular configurations were developed using CLT accommodate units of differrent sizes

1 2 3 4 5 PARK

ROOF

C.L.T ROOF WITH DAMP PROOF COURSE DONE ON TOP AND SEALED BY C CHANNELS FROM ALL FOUR SIDES PROVIDING INSULATION FROM SNOW AS WELL AS DAMPNESS OCCURRED DUE TO THE SAME.

INSULATED PANELS

INSULATION INFUSED C.L.T PANELS FOR EXTERIORS AS WELL AS PARTITION WALL BETWEEN TWO UNITS PROVIDEDING BOTH THERMAL AND SOUND INSULATION.

FLOOR

C.L.T FLOOR PLATES USED TO HANG CORRIDOORS AND BALCONIES ALSO PROVIDES A FREE FLOOR PLAN ON EACH INDIVIDUAL LEVEL.

TRUSS

STRUCTURAL STEEL TRUSS FOR SPANING 48 M APPROX. TO PROVIDE SEEMLESS AND UNDIVIDED SPACE IN GROUND FLOOR

CONCRETE SHAFTS

CONCRETE SHAFTS ACTING AS LOAD BEARING ELEMENTS FOR TRUSS AS WELL AS PROVIDES CIRCULATION TO THE BUILDING WITHIN.

TYPE A TYPE B TYPE C

INSTITUTION

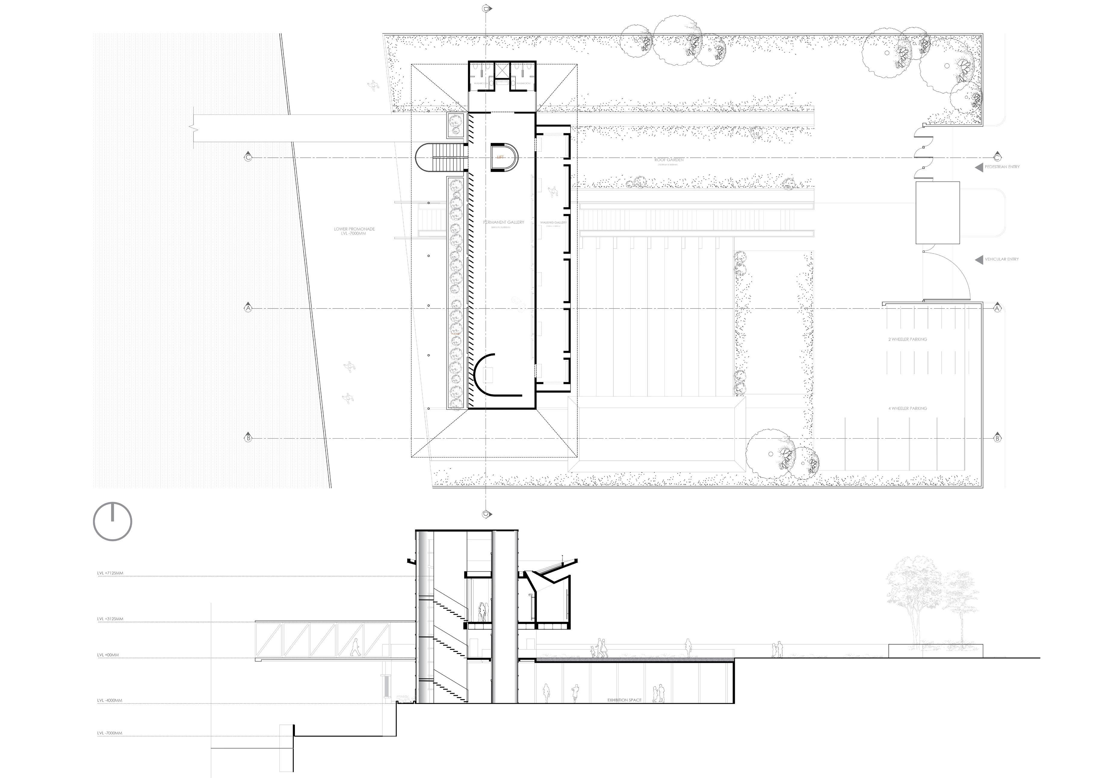
SITE • AHMEDABAD

Opp. Atma house on the banks of sabarmati river. The studio focused on taking inspirations from Master Architect Le Corbusier's Design Philosophy and understandings of modernism. The programme was to design an art and cultural centre. Including Exhibition space, Permanent gallery,Cafeteria and Amphitheatre with a proposed bridge connection. In the pursuit of depicting architecture as an art form, the design for this institution positions volumes across three functional levels, showcasing a deliberate arrangement aimed at harmonizing aesthetic and functional considerations for the users.

SEMESTER • V 3 TYPE • INDIVIDUAL SUPERVISOR • PROF.BHAVIK MEHTA PROF.RAMESH PATEL

ADDITION OF AMPHITHEATRE NEST

AXIAL PLACEMENT STACK

CONNECTING SERVICES

ANCHORING CIRCULATION ATTACH

SECONDARY ACTIVITIES MODIFY

MODIFYING OF THE ELEMENTS SUBMERGE

TWIST

• LOWER LEVEL

Connecting The prexisting 9m wide lower level promonade, visually and physically. The Amphitheatre opens to the view of sabarmati river PLAN

The exhibition gallery provided on the lower level has accesible green roof, also having the proposed connection to ATMA PLAN

• UPPER LEVEL

The walking gallery is seamlessly integrated with the permanent gallery, featuring dedicated light shafts strategically positioned to illuminate exhibits, while fractured openings at regular intervals enhance visual interest and spatial dynamics within the architectural composition.

WALL SECTION UPPER LEVEL Permanent gallery • Walking gallery

EXHIBITION HALL

The lower level encompasses an Exhibition Hall distinguished by dedicated niches formed through structural elements. Additionally, it harnesses natural light from the sloping roof above, which doubles as an accessible green space, ensuring a symbiotic relationship between architectural function and environmental integration.

At the uppermost level, the permanent gallery is accompanied by an attached walking gallery, featuring an open facade oriented towards the western aspect. Louvers provide shading while permitting natural ventilation and panoramic views of the Sabarmati River.

PERMANENT GALLERY

HOUSING

SITE • AMBLI GAM

The studio looked into the patterns of daily life, both domestic and social, in a settlement in Ambli, an urban village in western Ahmedabad, Gujarat. The initial research and documentation focused on understanding how the interaction between people and their surroundings shaped the formation of housing units and the spaces in between leading to genertion of clusters and thresholds with home. The goal was to provide with architectural solutions to villagers while preserving their cultural heritage. Reimagining the current social thresholds into improved versions. Using same materials.

SEMESTER • IV 4 TYPE • INDIVIDUAL SUPERVISOR • PROF.SUNNY BANSAL

By employing three distinct house types with varying shapes and sizes, a cluster was crafted to accommodate village residents, offering them urban spaces and Improved ameneties while preserving their traditional lifestyle.

The houses include thresholds that serve dual purposes: they can support farming equipment or crops and, during off-seasons, become spaces for communal gatherings and children's play.

DESERT RESILIENCE HUB COMPETITION • 5 MEMBERS 5
D.R.H

The project berg is a stepwell expanded into the endless dimensonalty of the ground makeing near to no presence on the surface of the site, creating it an urba void for the residents of Tempe as well as a Capacity Building for develepment of socio - economic skills of the ethnic group of native americans to develop and expand the native craft skills based in America, serving a promonade on the ground level.

Urban Void: By expanding the stepwell into endless dimensionality within the ground, the project creates an “urban void” on the surface. Urban voids are empty spaces within urban areas that can serve various purposes, such as parks, public squares, or gathering spaces. These voids can provide relief from the dense urban environment, allowing residents to connect with nature and promoting social interaction.

Capacity Building and Socio-Economic Development: Another crucial aspect of the project is its aim to support the development of socio-economic skills among Native Americans. This suggests a focus on capacity building and promoting the expansion of traditional Native American craft skills. This initiative could have significant socio-economic impacts, empowering the ethnic group by preserving and promoting their cultural heritage while also potentially creating income-generating opportunities through the craft industry.

WELL CICULATION EXPANDING ON Y AXIX WATER CONNECTION FLOOR PLATES WIND ANALYSIS VERTICAL FARMS ZONING
EXPLODED ISOMETRIC EXPLODED ISOMETRIC
Louis kahn trophy • Nasa 2022-2023 Group work CITATION II

Jeet Bharadiya

B.arch student, Anant national university, Ahmedabad

DOB • 20 August 2002

Ahmedabad, Gujarat

Email • jeet.bharadiya.soa21@anu.edu.in

Ph • +917990977965

Turn static files into dynamic content formats.

Create a flipbook
Issuu converts static files into: digital portfolios, online yearbooks, online catalogs, digital photo albums and more. Sign up and create your flipbook.
Jeet Bharadiya | Portfolio by Jeet.bharadiya - Issuu