Portafolio Arq. Esteban Baquero

Page 1

Arq.

José Esteban Baquero Infante

PORTAFOLIO
2022
PERFIL

ARQ. ESTEBAN BAQUERO

Portafolio arquitectura 2016 - 2022

Arquitecto, con conocimientos enfocados en diseño arquitectó nico, remodelación de interiores, avalúos inmobiliarios, vivienda y paisajismo. Con habilidades para el diseño de Interiores, dibujo técnico en software de arquitectura e ingeniería y renderizado de proyectos. Experiencia en diseño locativo, dibujo arquitectónico, dibujo de detalle, y, en el campo avalúos inmobiliarios.

Personal

José Esteban Baquero Infante Arquitecto

Edad: 28 Años Fecha Nacimiento: Nov. 1993 Ciudad: Bogotá D.C. Contacto

Teléfono/WhatsApp: 3202940272 Correo: Josee.baquero@gmail.com

Cursos de Extensión

Fotografía e Imagen Digital Básica Universidad Nacional de Colombia 2020 (30 Horas) Bogotá – Colombia

Educación

Arquitectura Universidad Nacional de Colombia 2016 - 2021 Bogotá – Colombia

Ingeniería Civil, 5 semestres Universidad Nacional de Colombia 2011 - 2014 Bogotá - Colombia

Bachillerato técnico Gimnasio Moderno Robinson Crusoe 2006 - 2010 Soacha – Colombia

Habilidades

Autocad : Avanzado

Revit : Medio - Avanzado

Sketch Up : Avanzado

Rhino Ceros : Medio - Avanzado

Twinmotion : Medio - Avanzado

Enscape: Medio - Avanzado

Adobe Illustraitor : Medio Adobe Photoshop : Avanzado

Adobe InDesign : Medio Affinity Designer : Avanzado Excel : Medio- Avanzado

Idiomas

Español: Natal Inglés: Nivel B2 Chino: Básico

CONTENIDO
A Portafolio Academico Universidad Nacional de Colombia Sede Bogotá 2016 - 2022 Trabajos y Proyectos Propios Arq. Esteba Baquero 2021 - 2022 B Pág. 38 Pág. 06

TRABAJO

INDEPENDIENTE

Local Calle 63

Diseño,modelado y Render

Diseño de un local para ropa Femenina

Chapinero - Bogotá D.C.

Local Neos Moda

Diseño,modelado y Render

Diseño de un local para ropa La Hormiga - Putumayo.

Oficina Local San Victorino

Diseño,modelado y Render

Espacio para oficinas dentro de un local en San Victorino - Bogotá D.C.

Casa Bucaramanga

Render y ambientación Bucaramanga, Santander

Propuesta Counter Sur CCI

Renderizado, modelado y diseño

Recibidor sur Centro de Comercio Internacional

Bogotá D.C

Patio casa Cotes

Renderizado, modelado y diseño

Cajicá

Cundinamarca

30

1 2
3 4 Pág. 08 Pág. 18 Pág. 26 Pág.
Pág. 14 5
Pág. 326

LOCAL CALLE 63

de Ropa

(1) LOCAL CALLE 63
Tienda
Bogotá, Chapinero 2022 Programa: SketchUp, Enscape Edición: Adobe Illustraitor, Adobe Photoshop Motivo: Diseño Local ropa femenina.

Propuesta

Detalle Propuesta Localización esc. 1:500
Local Calle 63 Chapinero Bogotá Propuesta y Render Vista generl antes de remodelación Vista general antes de remodelación
10 3 6 7 4 5 2 1 1. Acceso Principal 2. Zona jeans 3. Vestieres 4. Zona accesorios Hogar 5. Caja6. Zona General 7. Acceso Escaleras Axonometría
11 Cortes Longitudinales
CajaVista General Vista General Vista General Costado Norte
12
Vista General Detalle Acceso Vestieres
13
Vista General local en Remodelación Vista General Vista General Detalle ingreso piso 2.

LOCAL NEOSMODA

Tienda de Ropa

(2) NEOSMODA
La Hormiga, Putumayo 2022 Programa: SketchUp, Enscape Edición: Adobe Illustraitor, Adobe Photoshop Motivo: Diseño Local Neosmoda.
Detalle Propuesta Localización esc. 1:500 Propuesta Local NeosModa La Hormiga Putumayo Propuesta y Render Vista general Local Vista general Local
16 Axonometría Corte longitudinal 1 2 3 4 5 6 7 8 1. Acceso Principal 2. Exhibidores de pared 3. Caja4. Exibidor auxiliar 5. zona jeans 6. Bodega Auxiliar 7. Acceso a Bodega 8. Maniquies
17 Corte Longitudinal
Caja Vista General Vista General Vista General

DISEÑO, RENDER Y PLANOS

Victorino

(3) OFICINA SAN VICTORINO
San
Bogotá D.C., Centro de la ciudad 2022 Programa: SketchUp, Enscape Edición: Adobe Illustraitor, Adobe Photoshop Motivo: Propuesta y Renders oficina y lugar de descanso local de ubicado en el centro de la ciudad.

Oficina

Propuesta

Detalle Propuesta Localización esc. 1:500 Propuesta
San Victorino Bogotá
y Render Detalle. Vista antes de remodelación.
20
Vista General. Area de Bodega. Vista general Area Oficina
21 4,83 2,17 0,2 0,54 0,5 0,93 0,43 2,17 2,15 0,22 0,93 0,28 0,29 0,47 2,47 CORTE B:B Lamparas colgantes, verificar alturas, exterior lamapara color negro interior color naraja o amarillo Vidrio Templado con estructura en aluminio, altura 2,20 Acabado Escalera en Negro Acabado estructura en blanco 0,21 0,16 0,18 0,180,18 0,18 0,18 0,18 2,17 0,17 0,1 1,8 0,3 0,05 2,22 0,15 1,5 0,47 CORTE A:A 1,5 Altura piso Lampara: 2,23 Lamparas colgantes, verificar alturas, exterior lamapara color negro interior color naraja o amarillo Ver Plano detalles Vidrio Templado con estructura en aluminio, altura 2,20 2,2 Cortes
22 Planta General. Mueble Auxiliar Mueble TV Área de Descanso Comedor Franja Amarilla Escalera Metálica

Estructura a la vista

Lampara colgadas del techo

Separación en vidrio

Madera de pino o similar con fondo azul

Area de descanso

Area de Bodega

Estructura metalica de 50x50mm con acabado enblanco

Corte

23
Fugado.
24 Corte Fugado. Cuvierta a la vista Lámpara Colgada de estructura del tejado Borde color azul Mueble auxiliar División Vidrio Perfil metálico 150x50mm Perfil metálico 50x50mm Escalera

Pared Amarilla

Lamparas sujetas a estructura techo

Puerta en vidrio

Mueble Auxiliar

Lampara techo

Perfil 50x50mm acabado blanco

Escalera metálica con abado nergo brillante

25 Corte Fugado.

PROPUESTA Y RENDER

(4) CASA BUCARAMANGA
Render y asesoramiento Diseño Bucaramanga, Colombia 2022 Programa: SketchUp, Enscape Edición: Adobe Illustraitor, Adobe Photoshop Motivo: Renderizado, modelado y asesora miento en el diseño arquitectonico e interior.
Habitación Tipo y Patio Primer piso Localización esc. 1:500 Cocina Apatamento 2 Casa Bucaramanga Colombia Render y D. Interior Sala Primer Piso Terraza Social.
28
Terraza. Area Social Piso Tres. Vista General Terraza.
29 Axonometría

PROPUESTA

(5) COUNTER SUR
Y RENDER COUNTER CCI Recibidor acceso CCI Bogotá D.C., Centro de Comercio Internacional 2022 Programa: SketchUp, Enscape Edición: Adobe Illustraitor, Adobe Photoshop Motivo: Propuesta y Renders Recibidores Centro Internacional
Detalle Propuesta Localización esc. 1:500
Variación Materaliada propuesta
Counter Centro Internacional Bogotá Propuesta y Render Propuesta Counter Actual

DISEÑO Y RENDER

(6) PATIO CASA CAJICÁ
Patio Casa Cajicá Cajicá, Condominio Residencial Bosque Madero 2022 Programa: Autocad, SketchUp, Enscape Edición: Adobe Illustraitor, Adobe Photoshop Motivo: Diseño, modelado y renders de propuesta para el patio principal de la casa unifamiliar .
Detalle Propuesta Localización esc. 1:500 Propuesta. Patio Casa Cotes Bosque Madero Cajicá Propuesta y Render Vista General Patio Vista General.
34
Vista General del Proyecto. Planta Fugada. Vista General.
35
Nicho de Lectura. Zona social. Vista General desde el interior de la casa. Zona social.

RENDER Y AMBIENTACIÓN

(7) CASA VILLAVICENCIO
Modelado y renderizado Villavicencio, Sector Alcazares 2022 Programa: Autocad, SketchUp, Enscape Edición: Adobe Illustraitor, Adobe Photoshop Motivo: Modelado, renderizado y ambientación.
Habitación tipo. Localización esc. 1:500
Vista hacia el Patio.
Casa Alcazares Alcazares Villavicencio Render Zona TV.
Vista General Primer Piso.
TRABAJO ACADEMICO

Investigación

Diseño Equipamento

1 2
Parque Metropolitano Canoas Tesis de Grado
Tipologías PET Dulces de la 21 Bogotá Diseño Vivienda y Equipamento Edificio Uso Mixto 7 - 51 Enfasis en Diseño Arquitectónico Diseño Vivienda y Oficinas Consolidación Ciudad Tunal Taller Verticar de Lugar Urbano 3 4 Pág. 40 Pág. 44 Pág. 54 Pág. 66

PET Dulces de la 21

(1) INVESTIGACIÓN
Espacios Comerciales con área menor a lo usual. Bogotá D.C., Restrepo 2019 Programa: Autodesk REVIT Edición: Adobe Illustraitor, Adobe Photoshop Motivo: Proyecto Vertical de Lugar Urbano Equipo: Individual Profesor: Sebastián Serna Hosie

Cigarreria

DULCES DE LA 21 Carrera 21 No. 16-01 Restrepo, Antonio Nariño
y chance Corte esc. 1:75 Corte esc. 1:75 Plano esc. 1:75 Localización esc. 1:500 Esquina antes del PET (2005) Esquina actualmente
42

Axonometría

Andenes con un ancho de 3 m sin árboles.

El edificio aleda ño cuenta con distintos loca les comerciales, con uso mixto.

Carrera 16 via zonal

El sector se especializa en locales que ofrecen productos textiles yde marroquineria.

El local, con un área de seis metros cuadrados tiene como uso la venta de chance y de alimentos procesados. Esta ubi cado cerca de la iglesia Nuestra señora de la Valvanera y se encuentra en una esquina estratégica del sector.

Las especificaciones constructivas son sencillas, el piso consta de un mosaico de baldosa cerámica, los muros occidental y sur son compartidos con la edificación vecina, su fachada esta compuesta en la parte inferior por un zócalo de ladrillo a la vista y en la parte su perior un marco en aluminio que soporta el vidrio de las ventanas, en el interior solo un muro tiene acabados en estuco y pintura, el cielo razo es en sonocor y contiene dos bombillos que iluminan el espacio. El interior esta dividido en dos parte: el área de atención y el área donde se encuentra la cajera, separadas por una marquesi na en aluminio que tiene en su parte inferior una puerta de acceso. Esquema de relaciones

43

Museo y Centro Deportivo Parque Canoas

(2) DISEÑO EQUIPAMENTO
Diseño paisajistico y arquitectonico. Vereda Canoas, Municipio de Soacha 2021 Programa: Autocad, SketchUp, Enscape Edición: Adobe Illustraitor, Adobe Photoshop, Affinity Desingner Motivo: Tesis de Grado Equipo: Individual Director: Memet Charum Bayaz

Parque Canoas

Vereda Canoas

Soacha, Cundinamarca

Parque y Museo

El proyecto surge de la necesidad de un equipamiento para la región de Soacha, planteando un parque y una serie de edifica ciones con uso cultural, deportivo y comercial, complementando el uso del lugar.

El Parque Metropolitano Canoas (Actualmente cerrado al Público) tie ne como características principales su topografía, Paisajismo y valor patrimonial, este ultimo debido a los petroglifos y pictogramas en los abrigos rocosos del lugar.

El área de intervención se ubica al sur de la Sabana de Bogotá, dentro del área de influencia del municipio de Soacha , una zona montañosa con pendientes variables y con afloramientos rocosos que le dan un valor paisajístico al lugar.

Museo Arqueológico Canoas

Axonometría gerneral Parque Canoas

Restaurante y Complejo de escalada

A
B C DE F

Propuesta General

Programa

Análisis Espacios y Programa

Pre-existencias

Estudio Geométrico - Axial Franjas Programáticas Propuesta General

46 Sectorización y análisis de
Pendientes
Contexto
regional
Huellas,
Memoria y Heridas
Análisis General y Específico
Menor Densidad Terreno
47

Tipología General

Pabellón y Galería, son los elementos principales en la idea base, permiten tener una apreciación del paisaje desde el interior de las edificaciones sin interrumpir las visuales propias del entorno desde el exterior, generando una integración tanto con el paisaje como con el parque en ge neral, dandole un lenguaje propio al proyecto.

48
Fachada
Posterior, Escala 1: 100
Detalle
Fachada, Escala 1: 100 Corte Fachada, Escala 1:50
Fachada
Acceso, Escala 1: 100
Fachada
Principal, Escala 1: 100
49 Cafetería Talleres Oficinas Camino Panoramico | Esquema descriptivo Axonometría
Bloque Oficinas
y
Talleres Planta, Escala
1:100
Corte Trasnversal Corte Longitudinal
Edificio BMuro Escalada Restaurante y Centro de Escalada Planta Piso 1, Escala 1:100 Fachada Principal Planta Piso 2, Escala 1:100 Corte Longitudinal, Escala 1:75
Edificio D Edificio c Auditorio Cafetería Entrada Auditorio Recepció n Sala Exposición Temporal Sala 1 Baños Circulación Parque Circulación Museo Sala 2 Sala 3 Baños Camino Acceso Salida Emergencia Camino Panoramico | Esquema descriptivo Museo, Bloque 1 y 2 Detalle Museo, Escala 1:200 Auditorio Principal Planta, Escala 1:100
52
Fachada Talleres y Oficinas Acceso Area de Oficinas Oficinas
53 Restaurante
Muro de Escalada AuditorioCancha de Fútbol Cafetería Pasillo Área Talleres

Vivienda

EDIFICIO CALLE

(3) Diseño
51 Consolidación urbana apartir de la mezcla de usos Bogotá D.C., Chapinero 2020 Programa: Autodesk REVIT, Enscape Edición: Adobe Illustraitor, Adobe Photoshop Motivo: Enfasis Diseño Arquitectónico II Equipo: Individual Profesor: Gabriel Felipe Rodriguéz

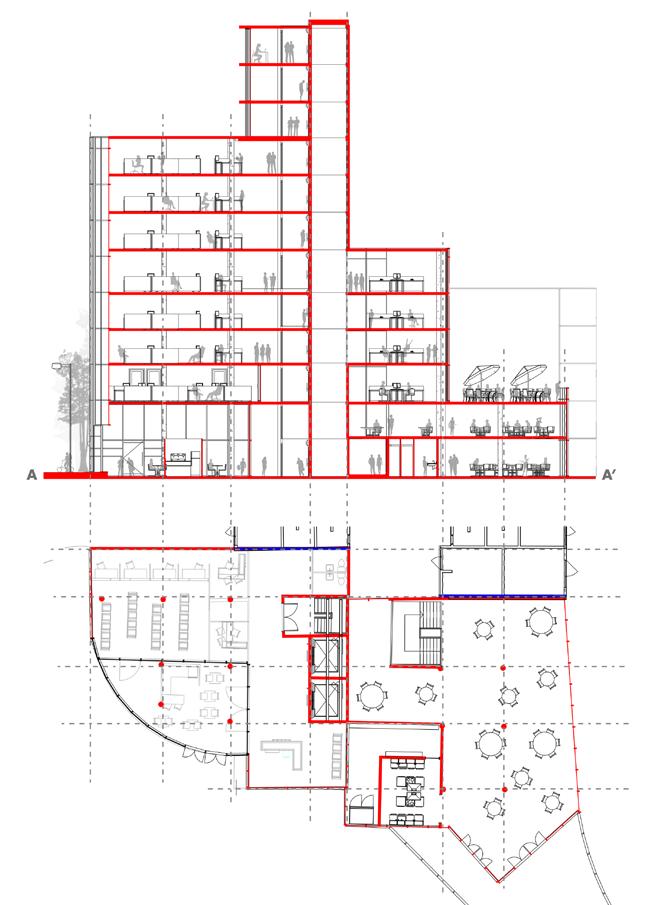
Edificio Calle 51

Edificio Híbrido

Localización esc. 1:500

Edificicio Híbrido, en el cual se mezclan cuatro usos principales: comecio, dotacional, oficinas y vivienda; Planteando espacios apartir del concepto del Raumplan propuesto por el arquitecto Adolf Loos, obteniendo espacios de doble altura con una espacialidad privilegiada.

La vivienda se adapta a las condiciones del mercado, proponiendo distintas tipologías de apartamento enfocado en dos tipos: Vivien da compartida y vivienda Tradicional; cuya caracteristica principal es la busqueda de las areas optimas que configuren un espacio, cómodo, seguro, ventilado y con limites muy claros entre lo privado, lo comunal y lo público. Para el cerramiento se proponen dos sistemas, uno tipo masa que bisca controlar la luz la privacidad de la vivienda y otro tipo malla que permite iluminar los espacios de trabajo, este ultimo complene tado con quiebrasoles, estos permiten marcar una diferencia entre la vivienda y los demas usos.

Contexto e Implantación

Usos Mixtos
Usos Propuestos Torre, Escala 1:250
Carrera 7 con Calle 51 Restrepo, Chapinero

Fachada

Fachada

Vivenda Compartida

56 Estructura Accesos Primer Piso
Occidental
Oriental Axonometría

Vivenda

57 Sectorización Costado Sur Usos
Tradicional

Area Oficinas,Accesos,Comercio y Equipamento

58
59 Usos Propuestos Torre, Escala 1:250
60
Fachada Carrera
7.
Facada
Calle 51.
Vista
Esquina Carrera 7 Con Calle 51.
61
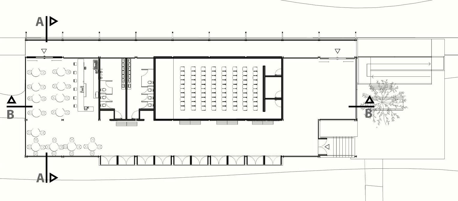
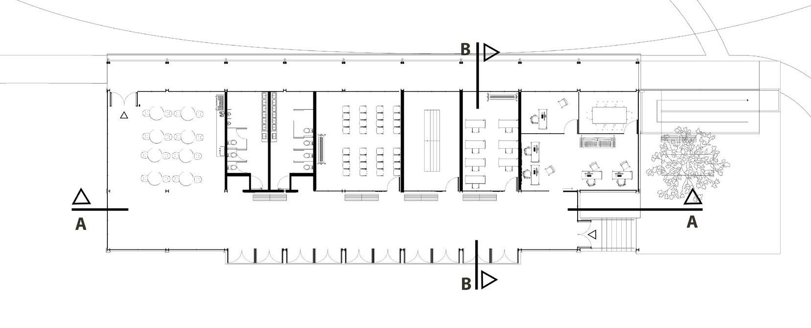
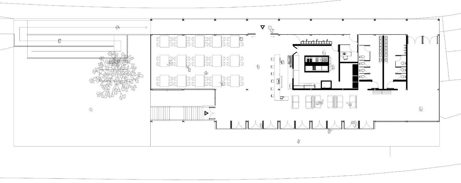
Plazoleta
Biblioteca |
Esquema
62
Biblioteca Acceso
a la
Biblioteca desde Carrera
7.
Plazoleta de Entrada Biblioteca
63
Sala de Lectura Auxiliar. Vista General Biblioteca. Sala de Lectura Principal.Sala De Lectura Principal. Recepción y Cafetería. Recepción área de Oficinas

Apartamento tipo | Vista General

64
65 Area social Habitación
Cocina Estudio Vista General Apartamento Vista General

Diseño vivienda

MITUO - CIUDAD TUNAL

urbana apartir de la mezcla de usos Bogotá D.C., El Tunal

:

REVIT, Enscape

Illustraitor,

Vertival de Lugar Urbano Equipo:

Motivo:

Esteban Baquero

Carolina Largo

Serna Hosie

Bermúdez Obregón

(4)
Consolidación
2019 Programa
Autodesk
Edición: Adobe
Adobe Photoshop
Taller
José
Laura
Profesores: Sebastián
Ramón

Ciudad Tunal El Tunal Bogotá Edificios Usos Mixtos

Localización esc. 1:500

El proyecto se elabora en Ciudad Tunal y busca una redesifica ción del sector buscando una consolidación total del mismo mex clando Comercio, vivienda, servicios y equipamentos, para esto se utilizan distintas estrategias compositivas y de diseño Urbano que empalman con las construcciones existentes aumentando el area construida sin demoler lo existente.

El sector se encuentra conformado por 6 conjuntos residenciales ce rrados y un equipamiento educativo, se conectan por medio de Ve hículares y callejones estrechos de uso peatonal. En el sector no hay comercio directo ni áreas verdes consolidadas. El comercio aparece en el barrio aledaño, generando separación entre ambas zonas, las zonas verdes existentes son únicamente espacios residuales sin ningún tipo de apropiación por parte de los residentes, se cuenta con el par que El Tunal, él tiene acceso controlado mediante rejas que impiden la circulación peatonal y vehícular y cuyo acceso es distante a la zona objeto del proyecto.

Contexto e Implantación

Usos Mixtos Usos Propuestos Torre, Escala 1:250
68 Planta Intervención, Escala 1:500 Vista Longitudinal Fachadas, Escala 1:500
69 Maqueta | Esquema Volumétrico
70 ÁREA DE INTERVENCIÓN AvenidaBoyacá Ronda Río Tunjuelo Parque Metropolitano El Tunal San Vicente Ferrer Tunjuelito Claret Portal Trasmilenio Cable Aéreo Biblioteca El Tunal Carrera 19 C Carrera 24 Implantación Sector El Tunal Escala 1:2000 Programa Flujos, Escala 1:500 Analisís General, Escala 1:2000
71
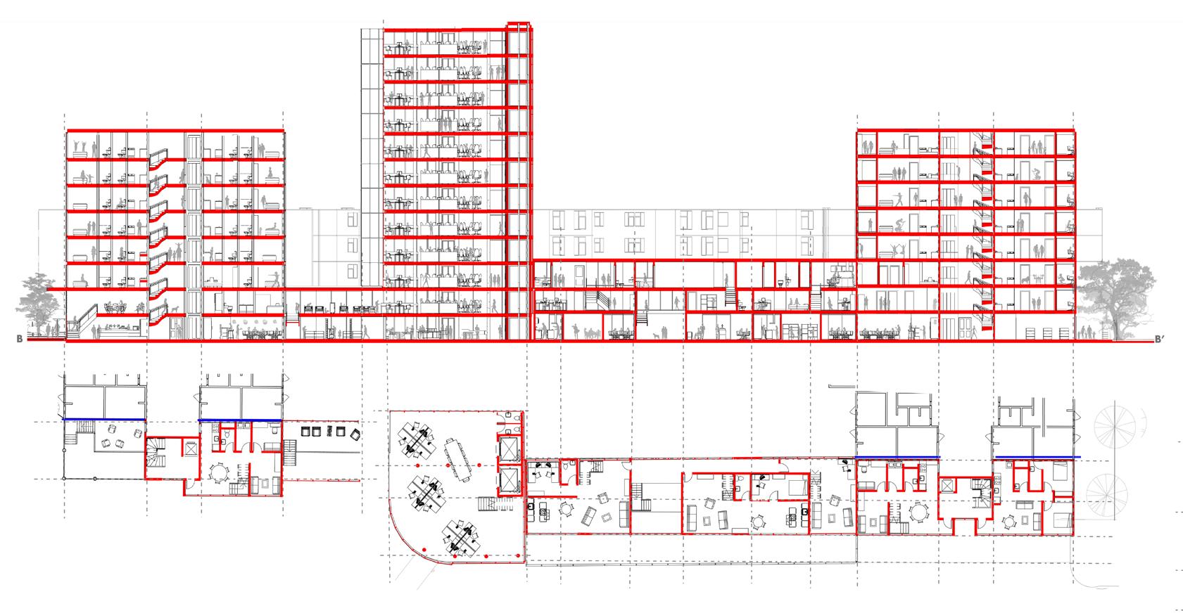
Detalle Area de Locales y vivienda Vista General Vista General

Plantas y Cortes Area Oficinas y Vivienda

Plantas y Cortes Area de Vivienda

Plantas y Cortes Area Oficinas

72
Axonometría
73 Vista General | Esquema
PORTAFOLIO 2022 Arq. José Esteban Baquero Tel: (+57) 320 294 02 72

Turn static files into dynamic content formats.

Create a flipbook
Issuu converts static files into: digital portfolios, online yearbooks, online catalogs, digital photo albums and more. Sign up and create your flipbook.