PORTFOLIO JEANNE URTIZVEREA
ARCHITECTE HMONP

![]()

25/05/1993
54 rue du Capitaine Dreyfus
93100 Montreuil
Mars 2020 - Juillet 2023 : Chargée de projet - CDI
Cyril Boucaud architecte dplg+architecte du Patrimoine
- Relevés
- Diagnostics monuments
- Esquisses / AVP / PRO-DCE
- Rédaction de pièces écrites ( CCTP, DPGF, RAO)
- Elaboration de dossiers de réponses aux appels d’offre
- Suivi de chantier
- Communication avec les entreprises, bureaux d’études, maitrises d’ouvrages ( privées et publiques )
Octobre 2019- mars 2020 : collaboratrice - CDD - PAB architecture
- Etudes de faisabilité
- Aménagement intérieur / Concept design
Juillet 2018-Septembre 2018 : Soja architecture - Paris
Janvier 2017 - Avril 2017 : ASA Active Sociale Architecture - Kigali Rwanda
Septembre 2016 - Janvier 2017 : ABP Atelier Benjamin Peiro, Paris
Juillet 2015 : AAPP - Agence d’architecte Philippe Prost, Paris
Février 2014 : Lambert-Lenack architectes urbanistes - Paris
Coordonnées : 07.86.28.70.27
jeanneurtiz@gmail.com
2021 : HMONP, félicitation du jury, ENSAVT Paris-Est
2019 : Diplomée d’état en architecture - Master Transformation ENSAVT Paris-Est
2016 - 2017 : Année de Césure
2015 - 2016 : Università degli Studi Roma Tre Architettura, Rome Italie
2012 - 2019 : Licence - Master, ENSAVT Paris-Est
2011-2012 : Université Panthéon Sorbonne Paris 1 1ère année d’Histoire de l’art et Archéologie
Juin 2011 : Baccalauréat série Littéraire mention AB, Lycée Victor Durury, Paris
Suite Adobe
Indesign - Illustrator
Photoshop
Pack Office
Word - Excel- Powerpoint
Logiciel CAO - DAO
Autocad - Archicad en cours d’apprentissage
Modélisation 3D
Rhinocéros 3D
Francais - langue maternelle
Anglais - Niveau B2
Italien - niveau B2
2018 : Concours
Emergency Housing in Paraguay Arch sharing - équipe finaliste
2017 : Séminaire
Challenging Practice
Architecture sans frontières
2017-2018 : Vendeuse et conseillère - Galerie Sentou
Handball : 4 anséquipe départementale, Paris Handball
Piano, 7 ans, conservatoire
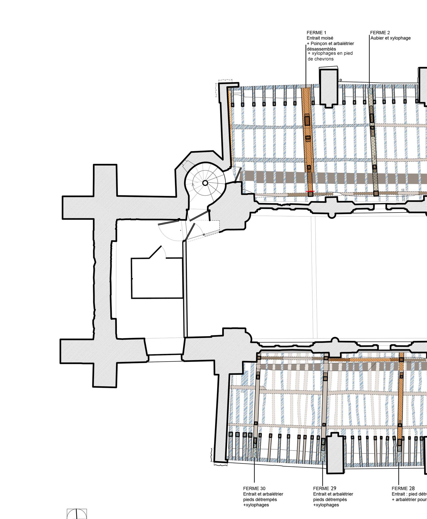
RESTAURATION DES CHARPENTES ET DES COUVERTURES
Classée MH - Mission complète - MOA publique
Phases : Diagnostic - AC - PRO
L’Eglise Saint-Jean, classée au titre des monuments historiques, présente depuis de nombreuses années des désordres importants, principalement en couverture, créant des pathologies sur les voûtes et sur les charpentes de manière plus importantes encore.
L’’ensemble des couvertures est en tuiles plates à l’exception de celles du clocher, en ardoise. Les charpentes des bas-coté datent du XVII et XVIII e siècle et sont en chêne, en assemblage traditionnel de demi-fermes. La charpente de la nef date quant à elle du XVe siècle et est en chêne à chevrons formant fermes.
Le diagnostic - retranscrit graphiquement dans les carthographies des pathologies - a permis d’établir les préconisations à suivre et de préparer le dossier d’autorisation sur classé, ainsi que les documents du PRO.




Projet d'agence - Cyril Boucaud architecte


RESTAURATION DES CHARPENTES ET DES COUVERTURES
Inscrit MH - Mission complète - MOA publique
Phases : Diagnostic - AVP - PC - PR0 en cours
Le musée d’Art et d’Histoire Paul Eluard de la Ville de Saint-Denis est installé dans un ancien couvent carmélite réhabilité entre en 1976 et 1981.
Présentant des problèmes de couvertures, d’isolations et par conséquent de charpente, la ville a voulu entreprendre des travaux de restauration.
La stratigraphie historique met en lumière les bâtiments les plus anciens et leur supposée typologie, afin de comprendre l’évolution et les modifications du bâti, et de pouvoir rétablir aux mieux les dispositions d’origine, notamment ici les couvertures et lucarnes.













Site classé - Mission complète - MOA privée - ERP
Phases : Relevé - Esquisse - AVP - PRO - DCE
Analyse des offres en cours
Le monastère des bénédictines est implantésur une parcelle de 36 391 m2. Composé de plusieurs bâtiments, le monastère est en partie un ERP, dans le cas le plus souvent de retraites spirituelles.
Le projet concerne le réféctoire de la communauté et la cuisine, implanté dans un bâtiment en brique et charpente bois, largement vitré. La cuisine, utilisée pour la préparation des repas des hôtes, est considérée comme un ERP.
Le projet propose l’agrandissement de la cuisine et du réféctoire, en créant de nouvelles façades, permettant à la fois de redonner une proportion et un rythme aux bâtiments, et de l’isoler thermiquement avec des matériaux écologiques et responsables.
Ainsi, les murs et la toiture seront isolés en fibre de chanvre, tandis que les murs de facade se composent d’une ossature en chêne avec bardage chêne, isolation en béton de chanvre et enduit chaux chanvre à l’intérieur.

Réhabilitation
Projet d'agence - Cyril Boucaud architecte


Coupe projet du réféctoire et de la cusine - PRO
Diagnostic - MOA publique
Phase : Diagnostic
L’Eglise Saint-Pierre, présente depuis de nombreuses années des désordres importants, et notamment structurels, mettant en cause la stabilité de l’édifice et sa pérennité. L’état sanitaire de l’église a amené la commune à entreprendre un diagnostic général afin de définir un programme de travaux de restauration et de hiérarchiser les urgences de restauration.
L’église date du XIIe siècle et s’agrandit progressivement jusqu’au XVIIe siècle. Sa charpente à chevrons formant fermes est de très belle
De nombreuses fissures sur les voûtes des chapelles Sud et du chevet nécessitent une mise en sécurité d’urgence et une mise sous surveillance.

Projet d'agence - Cyril Boucaud architecte


Mission complète - MOA publique
Phases : Diagnostic extérieur et intérieur - AVP - DP - PRO - Suivi de chantier
Il s’agit ici d’un projet de restauration d’une église datant du XIXe siècle, en pierre de Saint-Maximin et mortier et rocaille, charpente traditionnelle en chêne, et couverture en ardoise naturelle.
Le travail de diagnostic a permis ici de mettre en lumière de nombreuses pathologies, et notamment des dégradations pierres.
Les couvertures en ardoises ont été complétement refaites à l’identique, la charpente traitées dans son ensemble et certains bois changés. Les pierres cassées ont été remplacées, les joints ciments purgés et les parements rejointoyés à la chaux.
Les techniques de restaurations traditionnelles, mise en oeuvre à l’extérieur comme à l’interieur ont permis de restaurer l’église de la manière la plus pérenne et écologique possible.





Projet d'agence - Cyril Boucaud architecte

TRANSFORMATION D'UNE GRANGE EN SEJOUR
MOA privée
Il s’agit ici d’un projet effectué pour des particuliers souhaitant réhabiliter l’ancienne grange accolée à leur maison pour en faire un séjour. Ils souhaitaient également la création d’un meuble sur mesure, qui intégrerait un poêle, la télévision, et des rangements, bibliothèques.
Nous avons donc proposé tout d’abord de créer une ouverture pour relier la grange à la cuisine, et de refaire un enduit à la chaux à pierres vues, d’isoler le plafond, l’intertie de la pierre et l’épaisseur des murs ne nécessitant pas leur isolation.
Pour le meulble, nous avons proposé deux versions qui permettent de retrouver l’échelle de la pièce. La première «encadré», avait pour but de se fondre le plus possible dans la pièce, laissant apparaitre le mur enduit et se retournant pour créer une banquette acueillant des rangements. La seconde version, qui a été choisie par les clients, part plutot de li’dée de «modeler» une masse, faisant ressortir le meuble comme un objet distinct.


Projet personnel - avec C.Charpin architecte HMONP






Ce projet a été ralisé dans le cadre du concours
Kaira Loro Competition, qui demandait la création d’un lieu sacré à Tanaf, un village sénégalais. Tanaf connait une diversité de religions et de communautés, il s’agissait donc ppour nous de créer un lieu dans lequel chaque individu pourrait pratiquer sa spiritualité librement. La grave sécheresse de la région, ainsi que l’importance de l’eau comme symbole dans la religion, nous a conduit à faire de la collecte d’eau le point central du projet.
La première partie se compose de terre compréssée et symbolise les racines du baobab, menant judqu’à l’espace clos, composé de brique d’adobe. Ces murs sont pensé comme des moucharbieh, laissant entre air et lumière à l’intérieur.
Enfin la toiture est pensée en bambous tressés, inspirée par l’impluvium, servant ainsi a collecter et recupérer l’eau de pluie dans le bassin central de l’espace sacrée.




Au Paraguay, 1 400 000 habitants vivent dans les logements informels, étant ainsi les plus vulnérables au fréquentes et violentes innondations touchant le pays. Les logements devaient donc être faciles à être monter et démonter pour offrir de manière temporaire un lieu de vie confortable, avec des qualités architecturales permettant une évolution et une appropriation de leur logement par les habitants. Construits sur pilotis, nous avons cherché à standardiser le plus possible d’élements les composants, permettant d’une part de réduire le plus possible le coût, et d’autre part faciliter une construction rapide par les habitants. La trame structurelle est régulière et le remplissage se composent de panneaux d’OSB isolés, assemblés avant la construction. Leurs dimensions permet à une personne seule de les porter, et leur facilité d’assemblage permet une construction rapide. Les habitants peuvent choisir où placer les ouvertures, et comment cloisonner l’espace intérieur. La toiture en pente permet de récupérer les eaux de pluies, filtrées et sauvegardées dans un reservoir d’eau, pouvant étre connecté à un ou plusieurs logement.
Ce projet a été sélectionné par le jury dans les projets finalistes et publié par arch-sharing.


Explication de montage par 5 personnes maximum, de l’hebergement


Dans l’hypothèse de la réactivation du réseau ferré, découlant de l’analyse de sité réalisée en amont, il m’a semblé important de réfléchir à l’énergie consommée par ce moyen de transport. Il se trouve que beaucoup de recherches sont en cours pour récupérer l’energie perdue lors du freinage des trains, qui représente 30 % de la consommation. Ce projet propose donc de créer un laboratoire de recherche ferroviaires accompagné d’un espace publique permettant de rendre en partie visible ces tests, et de sensibiliser à l’économie energétique.
Le projet s’implante sur l’ancienne zone de triage des trains, partiellement abandonnée, caractérisée par des fins de voies ferrées. Malgré sa situation d’enclave, le site est facilement accessible, et sa proximité à l’Avre et le paysage de la friche lui offre de grandes qualités.
Les laboratoires viennent s’implanter à l’Est de la parcelle, et se dévellopent ainsi en trois pôles. Le parcours des chercheurs se fait donc de manière transversale, tandis que les bâtiments s’implantent longitudinalement. A l’Ouest se dévellope le parc public qui se lit transversalement, et se divise en plusieurs séquences : l’Avre, l’accès, les jeux pour enfants, la place publique, le jardin. Le traitement du sol séquence cet espace publique. Ces espaces publiques sont en relation avec l’usage des bâtiments qui se trouvent à proximité. Enfin, la passerelle est l’élément qui lie. Elle traverse donc le site et certains bâtiment, pensée de sorte à ce que le moins de point porteur contraignent la circulation au RDC. Ils sont marqués par des portiques qui signifient également les accès depuis le RDC par des escaliers hélicoidales.




Sous la direction de Julien Boidot, Sonia Leclerc, Jean


TRANSFORMATION-REEMPLOI-EXPOSITION
Master transformation - 4e année
A partir d’un scénario prospectif où une partie des ressources liées au mode industriel de construction dominant a disparu, il s’agissait de transformer une zone commerciale en interrogeant le rôle de l’architecte dans la transformation et la mise en progrès de bâtiments ordinaires. Le but était d’imaginer une architecture spécifique issue de cette pénurie sous l’angle de la construction, de sa résilience programmatique, de son climat et de son énergie.
Nous avons choisit, après l’analyse des différents bâtiments existants, de créer un lieu qui permettrait de réutiliser les matériaux présents, et ainsi un espace pour le réemploi, qui stockerait, vendrait et sensibiliserait. Le Pôle réemploi est voué à accueillir tout un processus permettant le remploi de matériaux de construction. Une partie de ces matériaux, physiquement impossible à remployer, seront acheminés dans des organismes complémentaires . Les autres seront traités au sein du bâtiment grâce à des machines adaptées. Nous avons donc étudié les différentes méthodes et outils, redéfinit les lois actuellement en place, et fait un inventaire de tous les matéraiux à disposition sur le site. Le projet est donc à la fois un lieu de stockage, un exemple de construction en réemploi, et une mise en scène, valorisant le matériaux, comme dans un musée, par sa passerelle qui permet aux visiteurs de comprendre les processus du réemploi, du choix de l’éléments à son stockage, en passant par son démontage, son traitement etc...





avec A.Parcheta, A.Tran, L.Tilly, N.Privé sous la drection de Julien Boidot, Sonia Leclerc Jean Souviron et Mathias Rollot


Axonométrie