Chicago Integrative Design Studio | Fall 2025
Virginia Polytechnic Institute and State University
Julian Dunn + Danny Robles
Affordable Housing Complex in Belmont Cragin
In Consultation with STLARCHITECTS
![]()
Chicago Integrative Design Studio | Fall 2025
Virginia Polytechnic Institute and State University
Julian Dunn + Danny Robles
Affordable Housing Complex in Belmont Cragin
In Consultation with STLARCHITECTS
3001 North Cicero Ave, Chicago IL


Our project aims to emulate the services of a community institution by inverting the availability to the public through porosity and permeability. The circulation inspires the form by acting as a conduit through pre existing infrastructure – intertwining the spaces of living and learning
By extending the community fostered by the school (teachers, students, children, and parents), we can bring a more lively community to an automobilefocused main street.
This project is about fostering social approachability in our affordable housing project in the harsh industrial environment of Cicero,(We do this through our materiality by making the community housing wrapped in a light airy facade and frame, social sustainability within the existing context(providing programs along the harsh roads of Cicero with opportunity and activating the greater street of cicero,, and finally the community creation within the site thought the interior courtyard further creating a social approach to a sustainable housing project within the harsh surrounding street context of north Cicero.


Belmont Cragin has historically been a car and bus-oriented neighborhood that evolved from a manufacturing hub into an area dominated by car dealerships, commercial shops, and restaurants. Transportation in the area has remained primarily bus-based throughout its development, reflecting its working-class, transit-dependent character.




In order to create a community within a community, we pulled from an existing one. Laughlin Falconer is a K-7 Elementary School situated just 2 blocks west of North Cicero. We used the proximity of the school to pull a work and education based demographic to populate the main street. The program follows a circular path to and from the school, acting as a conduit for those working or attending.

Our study of nearby community buildings revealed a prevailing institutional character, enclosed, heavy, and protective, often set back from the street and disconnected from public life. In response, our project inverts these qualities by opening the building to the community, transforming closure into porosity through lightness, transparency, and inviting ground-level engagement.









Openings of thresholds that allow visual, spatial, and social exchange between interior and exterior spaces

The capacity to allow movement, flow, or transfer of people, light, and noise through spaces.
In order to create a an inviting building to the people that repels the inherent negative elements of a busy street, we looked at permeability and porosity. An approachable structure that encourages the flow of people while filtering noise, light, and inspires community.




No more than 100 feet of travel distance to site from moved bus stop.



Public transportation and infrastracture were acknolwedged to allow for greater accessibility in the area. A crosswalk was added to create a direct path to the school and the bus stop was shifted north to be closer to the site.

By adding elements such as crosswalks, greenery, and wayfinding at the human scale, the area becomes more walkable and approachable. What was once a busy main street will now be a tightly-knit community for those who wish to live and learn.
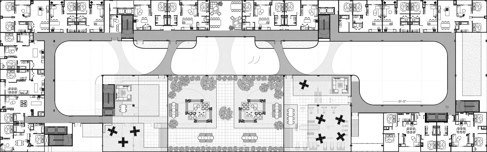
Circulation to and from the neighboring school informs the programmatic layout of the space. Spaces that are open to the public with higher foot traffic such as the cafe and bodega are situated at the corner. Large public paces such as the art gallery and basketball court are at the center of the site, allowing them serve as community hubs.
Bridging the masses aims to figuratively intertwine the spaces of living and learning.
AMENITIES
Apartment Lobby
Art Studio/Gallery Space
STEM Lab
Gaming Lounge
Workshops
Restaurant
Cafe
Bodega
Basket Ball Court
Health, Wellness, and Fitness Rooms
Communal Gardens and Greenspace
71 Apartment Units





This mixed use planned development hosts several amenity spaces that promote and foster community, walkability, and social sustainability. The site sits on a roughly 50,000 sq ft lot adjacent to North Cicero currently occupied by a dealership and parking lots
Building on this context, the project reimagines the site as a civic crossing— transforming an auto-oriented parcel into a porous, pedestrian-focused environment. Public programs are positioned along Cicero to engage the street, activate the ground plane, and establish the building as a recognizable neighborhood destination.
Above and within this active base, housing and shared amenities are carefully layered to balance openness and privacy. Through screened façades, courtyards, and interconnected circulation, the project fosters daily interaction while creating a resilient framework for long-term community growth.



AMENITIES
Apartment Lobby
Art Studio/Gallery Space
STEM Lab
Gaming Lounge
Workshops
Restaurant
Cafe
Bodega
Basket Ball Court
Health, Wellness, and Fitness Rooms
Communal Gardens and Greenspace
71 Apartment Units











INTERIORS + DETAILS


Varying levels of intimacy are facilitated through the sizes and program of each space. Louder public program is strategically situated along busy main street so as not to disturb quieter program while also encouraging pedestrian entry, creating a more walkable urban plan.

This mixed use planned development hosts several amenity spaces that promote and foster community, walkability, and social sustainability. The site sits on a roughly 50,000 sq ft lot adjacent to North Cicero currently occupied by a dealership and parking lots.










The 2’ raised plinth is utilized to clearly distinguish the transition from the busy public space to a communal, private one.

The gym and wellness center are positioned along Cicero as a robust, public-facing program. Acting as a buffer between traffic and housing, this active zone absorbs noise while anchoring the building as a visible community resource.

The courtyard is carved from the center of the massing as a shared interior landscape. It brings light, air, and visual connection deep into the building while creating a calm, communal counterpoint to the surrounding urban infrastructure.

The library and makerspace form the intellectual and social core of the project. These spaces invite informal learning and collaboration, reinforcing the intertwining of living and learning as a daily, shared experience.

The housing units are organized to balance privacy with connection to shared spaces. Layered thresholds, screens, and circulation allow residents to remain engaged with the community while maintaining domestic comfort.




The screen facade encases the residential floors creating a visual and figurative barrier from the public. It’s composed of steel expanded metal mesh. The inherent shape of the material creates varying levels of transparency given the level of natural light it is exposed to and where you are standing in relation to the building.






Expanded Steel Metal Mesh
Shear-cut sheet metal that creates varying levels of transparency depending on the angle you view it

Maple Wooden Ceiling Slats
Lines the underside of balconies to mitigate street noise while diffusing natural light

White Portland Cement (Post-Tensioned)
Lightly colored masonry reduces passive heat gain and contributes to the building’s “light” design
SCREEN + PROGRAM + COMMUNITY

San Sebastian, Spain
The screen facade encases the residential floors creating a visual and figurative barrier from the public. It’s composed of steel expanded metal mesh. The inherent shape of the material creates varying levels of transparency given the level of natural light it is exposed to and where you are standing in relation to the building.



The screen facade shows the success of controlling natural sunlight exposure within the building through porous materials




ARCHITECTS + PADDY DILLON, London, United Kingdom
2023
The screen facade encases the residential floors creating a visual and figurative barrier from the public. It’s composed of steel expanded metal mesh. The inherent shape of the material creates varying levels of transparency given the level of natural light it is exposed to and where you are standing in



The program of Roundhouse Works effectively combines the needs for multifaceted creative hobbies. This creates an accessible and open space in an urban setting allowing for a perpetual cycle of community and creativity in an area -- sustaining people and their potential



Roundhouse demonstrates how a shared interior void can organize diverse programs while remaining open and accessible to the public. Similarly, our courtyard acts as the spatial heart of the project, sustaining daily interaction and community life by bringing light, air, and collective activity into the center of the building.
At Roundhouse, recreational space functions as a social anchor that draws a wide range of users into the building. Our basketball gym extends this idea by placing active, communal programming along Cicero, using movement and visibility to energize the project while buffering residential spaces from traffic and noise.
Roundhouse’s integration of creative workshops and learning spaces fosters a continuous cycle of making, sharing, and education. Our makerspace and library reinterpret this strategy by intertwining learning with daily life, reinforcing the project’s core concept of living and learning as inseparable, community-driven experiences. potential
Taipei China
The screen facade encases the residential floors creating a visual and figurathe material creates varying levels of transparency given the level of natural light it is exposed to and where you are standing in relation to the building.








8
7




Longest Span: 32’
Shortest Span: 18’ 7/8”















• GFCI Receptacles - Counter Spacing: GFCI protected receptacles on countertops shall maintain 3-foot minimum spacing between outlets.
• Back-to-Back Receptacle Prohibition: Receptacle outlets shall not be installed back-to-back within the same stud cavity.
• Minimum Receptacle Spacing: General receptacle outlets shall maintain 6-foot minimum spacing along wall surfaces.”
ACCESSIBILITY + EGRESS FIRE SAFETY
ACCESSIBILITY + EGRESS
Net SF Residential (TYP Plan) = 15,851.21
Net SF Residential (TYP Plan) = 15,851.21 sq.ft
Floor Area/Person (Residential) = 125 sq.ft
Occupancy Load Residential = 127
Total Resident Occupancy = 127 Persons
4 Residential Fire Stairs
Sprinkled Door 1 Egress Capacity = (# of Occupants) x 0.15 127 x 0.15 = 19.05” 19.05”/4 (Doors) = 4.8” Calculated Egress Width: 4.8” Code Required Width: 32” Actual Width: 40” Stair 1 Egress Capacity = (# of Occupants) x 0.20 127 x 0.20 = 25.4” 25.4”/4 (Stairs) = 6.4” Calculated Egress Width: 6.4”
Code Required Width: 44” Actual Width: 48”
ACCESSIBILITY + EGRESS
1-Hour Fire Rating
2-Hour Fire Rating
ZONING + CODE MATRIX


















A special thank you to Jose Luis de La Fuente, Tracey Salvia, and Chip von Weise for constructive feedback, profound knowledge of the profession, and above all, patience.
- JDR
