Portfolio | Jay Dragon

Page 1

JAY DRAGON architectural portfolio

JAY DRAGON

The architectural field is my professional career, creative outlet, connection to the arts, and above all, my fuel. I practice architecture as an opportunity to not only design a physical form or building, but also to design from the inside within. Human nature has historically responded with unique and personal connections upon the spaces they enter and use. This intriguing concept of public spaces evoking unique and personal reactions on the individual is an ongoing source of fascination. I am driven to create different experiences for clients who strive to enhance and unify spaces for their users. am driven by the mission of seeing architecture beyond a physical form of a building, but instead, an opportunity to create or enhance a human experience. I continually strive to foster my passion for design, learn new skills and seek roles that can help me achieve this goal.

CONTENTS THE EARLY DAYS EDUCATIONAL PROFESSIONAL COMPETITVE EDGE CONTACT 4 - 5 6 - 19 22 - 39 40 - 43

THE EARLY DAYS

Being raised by an artist mother and a engineer father, I innately had an appreciation between these two differing worlds. Starting as early at age 5, my drawings would often take various forms of homes, buildings, city skylines, and floorplans. Grasping inspiration from famous architects, such as Frank Lloyd Wright and Bertrand Goldberg, I became increasingly fascinated in Architecture. Drawing was seen not only as a hobby, but also as a root of passion for architecture and design, which kept me wanting to learn more...

earlier childhood drawings |

selected free-hand artwork

EDUCATIONAL EXPERIENCE

After receiving my Bachelor's degree in Architecture at the University of Illinois at Chicago, I pursued a career in architecture through various part-time assistance jobs with mentors & professors, including internships. Desiring more insight, challenge, and explorations within the field, I enrolled into the two-year Graduate Program at the University of Michigan, ultimately to receive a degree in Masters in Architecture.

PORTFOLIO EDUCATIONAL JAY DRAGON 6 THE EARLY DAYS CONTACT PROFESSIONAL COMPETITIVE EDGE
Giving graduate commencement speech University of Michigan, 2015.

University of Illinois at Chicago | Spring 2012

Designing a golf course inside an urban environment required extensive research and visitations, which led to a field trip to Biloxi, Mississippi. Since golf courses are known for predominantly flat landscape, the design strategy was to create a mountainous surface divergent of the city’s grid. This provides the opportunity of integrating residential and commercial spaces subsided beneath the extruded mounds of land. The housing units, although subterranean, contain openings onto the course to allow an interaction between the landscape and the home. In the end, an urban agenda is presented by having a community operate independently and peacefully

PORTFOLIO EDUCATIONAL JAY DRAGON 7 THE EARLY DAYS CONTACT PROFESSIONAL COMPETITIVE EDGE
axonometric
View from 4th green
THE GREEN TOP

WALKLAND DRIVE

University of Michigan | Systems Studio

The Mews and Laneways are prime examples of streetscapes, which bring to light the involvement of the automobile as a means of integration between the space of the car and the space of the person.

Our project aims to address the street in three manners...

(i) the way in which the circulation of space integrates between the car and the user

(ii) as a means to provide slippage where the standing space of the automobile can also be an extension of the living space

(iii) the establishment of the street as the residential open forum. Density is integrated into the project as tall thin residential units cased horizontally, giving every unit access to circulation frontage.

STREET | Arch 562: Systems Winter 2014 | Vivian Lee & James Macgillivray

morphology and precdent reseach: London Mews + Toronto Laneway

The Mews and Laneways are prime examples of streetscapes, which bring to light the involvement of the automobile as a means of integration between the space of the car and the space of the person. Our project aims to address the street in three manners (i) the way in which the circulation of space integrates between the car and the user (ii) as a means to provide slippage where the standing space of the automobile can also be an extension of the living space (iii) the establishment of the street as the residential open forum. Density is integrated into the project as tall thin residential units cased horizontally, giving every unit access to circulation

The Mews and Laneways are prime examples of streetscapes, which bring to light the involvement of the automobile as a means of integration between the space of the car and the space of the person. Our project aims to address the street in three manners (i) the way in which the circulation of space integrates between the car and the user (ii) as a means to provide slippage where the standing space of the automobile can also be an extension of the living space (iii) the establishment of the street as the residential open forum. Density is integrated into the project as tall thin residential units cased horizontally, giving every unit access to circulation frontage.

density

forms

program

PORTFOLIO EDUCATIONAL JAY DRAGON 9 THE EARLY DAYS CONTACT PROFESSIONAL COMPETITIVE EDGE
Walk
WorkStore House
Work/Live LiveLiveLive Live Drive Walk Bike Park/Store Park Work Live Store Live Live PastPresent 18’-26’ 24’-30’ 18’-24’ 8’-10’ 20-60’ 18’-26’ 24’-30’ 18’-24’ 20’-60’ 8’-10’ RESIDENT Occupation PEDESTRIAN Occupation STREET OUTLINE street
street
Quiet + Private Guarded Entrance Blended Street Surface Personable Scale Personal Plant Vegetation Unit Delineation Man Made Form Lyrical Lines
Walk Drive Park Play WorkStore House House House
House Work/Live LiveLiveLive Live Drive Walk Bike Park/Store Live PastPresent 18’-26’ 24’-30’ 18’-24’ 8’-10’ 20-60’ 18’-26’ 24’-30’ RESIDENT
PEDESTRIAN Occupation STREET OUTLINE street density street forms street scale street program + adjacencies Quiet + Private Guarded Entrance Blended Street Surface Personable Scale Personal Plant Vegetation Unit Delineation Man Made Form Lyrical Lines urban morphology and precdent reseach: London Mews + Toronto Laneway THE STREET | Arch 562: Systems Winter 2014 | Vivian Lee & James Macgillivray Walk Drive Park Play WorkStore House House House House House Work/Live LiveLiveLive Live Drive Walk Bike Park/Store Park Work Live Store Live Live PastPresent 18’-26’ 24’-30’ 18’-24’ 8’-10’ 20-60’ 18’-26’ 24’-30’ 18’-24’ 20’-60’ 8’-10’ RESIDENT Occupation PEDESTRIAN Occupation STREET OUTLINE street
street
street
street
+ adjacencies Quiet + Private Guarded Entrance Blended Street Surface Personable Scale Personal Plant Vegetation Unit Delineation Man Made Form Lyrical Lines
urban
THE
Drive Park Play
House House House House
density street forms
scale + surface street program + adjacencies
House
Occupation
scale + surface
+
MEWS
LANEWAY STREETSCAPE RESEARCH

overall axonometric showing site context

Pervious unit research and layout

Looking at how both the car and commercial spaces could enhance a dense, yet liveable residential experience overall axonometric of site

PORTFOLIO EDUCATIONAL JAY DRAGON 11 THE EARLY DAYS CONTACT PROFESSIONAL COMPETITIVE EDGE ISOMETRIC UNIT TYPE UNIT BREAKDOWN SECTION PLAN 1 (8ʼ0” A BOVE GROUND) PLAN 2 (1 8ʼ0” A BOVE GROUND) PLAN 3 (28ʼ0” A BOVE GROUND) LIVE PARK SLEEP SLEEP SLEEP EAT STUDY DINE|COOK STUDY|WORK SHOP|WORK LIVE LIVE LIVE|PARK SLEEP SLEEP SLEEP EAT EAT| LIVE SLEEP SLEEP SLEEP SLEEP SLEEP SLEEP EAT EAT EAT BATH BATH EAT LIVE LIVE LIVE LIVE STUDY STUDY STUDY STUDY SLEEP EAT STUDY LIVE PARK SLEEP SLEEP EAT STUDY *garage can become extra living room CIRCULATION UNIT C UNIT 1 C UNIT 1 C UNIT 2 C UNIT 2 RG UNIT 1 RG UNIT 1 RG UNIT 2 RG UNIT 2 RG UNIT 3 RG UNIT 3 RG UNIT 3 RG UNIT 3 RA UNIT 1 RA UNIT 1 RA UNIT 2 RA UNIT 2 RA UNIT 3 RA UNIT 3 RA UNIT 2T RA UNIT 2T RA UNIT 3T COMMERCIAL COMMERCIAL RESIDENTIAL RESIDENTIAL (ground access with garage) RESIDENTIAL (upper access without garage) SF: 825 sq feet Occupancy: 23 Restroom: 1 SF: 1355 sq feet Occupancy: 38 Restroom: 1 SF: 2310 sq feet Occupancy: 12 Bdrm: 3-4 Bath: 2.5 SF: 1900 sq feet Occupancy: 10 Bdrm: 2 Bath: 2 SF: 1570 sq feet Occupancy: 10 Bdrm: 2 Bath: 1.5 SF: 1010 sq feet Occupancy: 5 Bdrm: 1 Bath: 1 SF: 1355 sq feet Occupancy: 7 Bdrm: 2-1 Bath: 1 SF: 1320 sq feet Occupancy: 6 Bdrm: 2 Bath: 1.5 SF: 1120 sq feet Occupancy: 6 Bdrm: 2 Bath: 1.5 SF: 800 sq feet Occupancy: 4 Bdrm: 1 Bath: 1 SF: 700 sq feet Occupancy: 4 Bdrm: 1 Bath: 1 SF: 1600 sq feet Total # units: 61 Average square footage: 99,815 sq ft Total # units: 144 Average square footage: 170,760 sq ft SUMMARY Lobby that becomes point of access between housing rows and also to the upper mews Occupancy 50 Restroom: 2 C UNIT 3 C UNIT 3 * 6 UNITS 17 UNITS 38 UNITS 6 UNITS 5 UNITS 27 UNITS 16 UNITS 30 UNITS 10 UNITS 20 UNITS 30 UNITS 29'10-1/2" 15'0-1/2" 13'2" 40'0" 15'0-1/2" 13'2" 40'0" 6'11-1/2" 8'2" 39'6" 39'6" 24'0" 20'1" 7'8-3/4" 40'0" 10'10-1/2" 13'10" 9'2" 11'7" 6'1-1/2" 9'11" 30'0" 9'11" 30'0" 10'11-3/4" 11'5-3/4" 6'1-1/2" 10'11-3/4" 11'5-3/4" 6'1-1/2" 30'0" 30'0" 20'0" 14'0" 40'0" 40'0" 14'0" 24'0" 7'8-3/4" 12'0" 14'4" 7'8-3/4" 12'0" 14'4" 19'7" 21'0" 17'0" 19'7" 21'0" 17'0" 40'0" 11'4-1/2" 19'7" 40'0" 30'0"
UNIT TYPES & DISTRIBUTION
PORTFOLIO EDUCATIONAL JAY DRAGON THE EARLY DAYS DETAIL 02 DETAIL 01
bedroom view living room view
Sou Scale
kitchen view detailed wall section through single unit
South o North Section Scale 1/4”=1ʼ
1/16”=1ʼ N
Enlarged Walk Plan Scale
enlarged south ground plan walkway courtyard view plaza view

THE SHAKER WAY

University of Michigan | Winter 2015 | Thesis

Reimagining suburbia as a parametric assemblage of parts opens up new sub/urban typologies and agendas. The image of the home could be seen less as the compartmentalization or ‘packing’ of its constituents inside an already pre-planned box. Though expense and time is being saved through this favored marketing strategy, the differentiation, flexibility, and individual expression is unfortunately lost. Giving a potential homeowner the freedom to design their own home, through the selection and mixing of parametric elements, could ultimately lead to unique housing types that extend beyond the box.

housing elements study

shaker heights elements catalog

PORTFOLIO EDUCATIONAL JAY DRAGON 15 THE EARLY DAYS CONTACT PROFESSIONAL COMPETITIVE EDGE
PORTFOLIO EDUCATIONAL JAY DRAGON 16 THE EARLY DAYS CONTACT PROFESSIONAL COMPETITIVE EDGE elements
assembled
PORTFOLIO EDUCATIONAL JAY DRAGON 17 THE EARLY DAYS CONTACT PROFESSIONAL COMPETITIVE EDGE elements
rendered
PORTFOLIO EDUCATIONAL JAY DRAGON 18 THE EARLY DAYS CONTACT PROFESSIONAL COMPETITIVE EDGE
overall axonometric
cross-section ground level plan
PORTFOLIO EDUCATIONAL JAY DRAGON 19 THE EARLY DAYS CONTACT PROFESSIONAL COMPETITIVE EDGE studio 1 bedroom 2 bedroom 3 bedroom residential unit types

PROFESSIONAL EXPERIENCE

Firm:

Pappageorge Haymes Partners

Project Description:

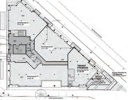
Kenect is a 227-unit mixed-use tower that’s located at 500 N. Milwaukee Ave. consisting of a four story low-rise building and a 14 story high rise immediately behind the low-rise building. The converging street intersections gives shape to the building's unique triangular form, as well as fosters an inviting street level presence.

Contribution & Involvement:

- 3D modeling & renderings

- Interiors finish & flooring pattern layouts

- Construction Documentation

- Weekly coordination with MEP consultants .

PORTFOLIO JAY DRAGON PROFESSIONAL CONTACT THE EARLY DAYSEDUCATIONAL COMPETITIVE EDGE 20
N MILWAUKEE
500
Chicago, IL
ground level plan

Five-story residential building located in Lakeview neighborhood of Chicago. This is the secondary phase of an adjacent reuse mixed-use project at 3001 N Southport Avenue. The project proposes to hold seven 2-3 bed residential dwelling units and 13

PORTFOLIO JAY DRAGON PROFESSIONAL CONTACT THE EARLY DAYSEDUCATIONAL COMPETITIVE EDGE 21
Streetview entry axonometric model

CENTRAL STREET Evanston, IL

Firm:

OKW Architects

Project Description:

2-story new construction buiding featuring 20 units with 10 accessible units. Located within an older residential neighborhood in northern Chicago area.

Contribution & Involvement:

- Site analysis & visits

- Thorough code & ADA analysis

- Unit layouts and design

- Renderings & elevation studies

- Exterior finish selections and material boards

- Construction documentation

exterior material finish selec-

PORTFOLIO JAY DRAGON PROFESSIONAL CONTACT THE EARLY DAYSEDUCATIONAL COMPETITIVE EDGE 22

Firm: OKW Architects

Project Description:

4-story new construction ground-up senior living facility comprising of independent, assisted, and memory care living units. The building to be situated within a residential neighborhood, which required extensive zoning & local board approval processes.

Contribution & Involvement:

- Unit layouts and design

- Renderings & shadow site analysis studies

- Thorough code & ADA reviews

- Construction documentation

- Public & board approval meetings

PORTFOLIO JAY DRAGON PROFESSIONAL CONTACT THE EARLY DAYSEDUCATIONAL COMPETITIVE EDGE 23
typical independent living unit | 1BR exterior view from intersection exterior wall section enlarged wall section details
THE SHERIDAN SENIOR LIVING

INFOSYS OFFICES

Firm: Shive-Hattery

Project Description:

Renovation of approximately 65,552 gross square feet of tech focused office space of an existing warehouse building. Design intent was to incoporate vibrant pops of color throughout an overall industrial aesthetic for this tech-driven company.

Contribution & Involvement:

- Schematic design

- Finish selections with Interior Designer

- Construction documentation

- Construction administration

- Marketing & final project photography

entry lobby
Austin, TX
PORTFOLIO JAY DRAGON PROFESSIONAL CONTACT THE EARLY DAYSEDUCATIONAL COMPETITIVE EDGE 25 Filename 7192530_N2.tif Description Filename 7192530_N3.tif DescriptionCaption Infosys Austin Project Name Infosys - Austin, TX Filename 7192530_N12.tif Description Infosys Austin Open Collaboration Space Project Name Infosys - Austin, TX Filename 7192530_N11.tif DescriptionCaption Infosys Austin Break Room Project Name Infosys - Austin, TX overall building section N-S
special interior detailed sections
Coffee bar Open collaboration employee cafe

SONOCO THERMOSAFE OFFICE

Arlington Heights, IL

Firm: Shive-Hattery

Contribution & Involvement:

- Schematic design

- Office furniture inventory & selection

- Finish selections & palette creation for overall office refresh

- Construction documentation

- Construction administration & regular site/punch-list visits

- Project management and coordination w/ in-house MEP

FLOORING FINISH PLAN - OPTION 1 - COOL SCHEME

PORTFOLIO JAY DRAGON PROFESSIONAL CONTACT THE EARLY DAYSEDUCATIONAL COMPETITIVE EDGE 26
LVT: Tarkett - Sumac - Terrain Location: Break Room, Reception, Copier Areas CPT: Mohawk Group- Tactile - Granite Location: Open Office CPT: Mohawk Group - Tactile - Soladite Location: Conference Rooms & Offices P3 Paint 1: (Main Paint): Benjamin Moore - Ice Mist Paint 2: (Accent Paint): Benjamin Moore - Graystone Paint 3: (Accent Paint): Benjamin Moore - Blueberry Paint 4: ( Accent Paint): Benjamin Moore - Champion Colbat Paint 5: (Accent Paint): Benjamin Moore - Cabana Green Countertop: Formica Bleached Concrete Plastic Laminate: Wilsonart - Snow Geo Location: Milwork Tile: Ceramic Technics Subway Tile Restroom walls and backsplash P4 P2 P1 P5 CPT: Shaw - Common Tile - Cyan Location: Collaboration Areas Tile: Ceramic Technics Porcelain Tile - Silver Matte Flooring OPEN OFFICE RESTROOMS WALL PAINT Wall Base - Johnsonite - Gateway
overall finish floor plan overall interior finish scheme

DIAMOND HEADACHE CLINIC Chicago, IL

Firm: Shive-Hattery

Project Description:

Reception area renovation and overall finish refresh to an existing healthcare clinic located within the

Contribution & Involvement:

- Schematic design

- Rendering & presentations

- Finish selections with Client

- Construction documentation

- Construction administration

PORTFOLIO JAY DRAGON PROFESSIONAL CONTACT THE EARLY DAYSEDUCATIONAL COMPETITIVE EDGE 27
waiting room conference room reception + entry wall

33 W MONROE REFRESH Chicago, IL

Firm: Lamar Johnson Collaborative

Project Description:

Full Lobby and Amenity levels refresh of existing commercial office building located in the Chicago Loop. This refresh design aims to integrate an overall warmer, more inviting & visually appealing finish palette to the 10-story high main lobby. Also introducing new updates & spaces for a coffee bar, dining area, a 'speakeasy' lounge, & amenity lounge.

Contribution & Involvement:

- Schematic & Design development phases

- Finish palette setup & selections

- Coffee bar + cafe layout design & planning

- Construction documentation

- Furniture selection & package bid process

- Weekly MEP coordination & site visits

PORTFOLIO PROFESSIONAL CONTACT THE EARLY DAYSEDUCATIONAL COMPETITIVE EDGE 29 LJC | 33 W MONROE PRESENTATION 03.07.2022 LOBBY LOBBY AXON EAST WHITE VINYL FILM ON GLASS TO LIGHTEN UP THE ROOM GRAB-N-GO ZONE WITH BUILT-IN BOOTH ANGLED, PLASTER WALLS, WITH VERTICAL LED LIGHT STRIP VIEW TO SECOND FLOOR LOUNGE ARTISINAL LIGHT SCULPTURE MARBLE AND WOOD COFFEE BAR 19 LJC 33 W MONROE PRESENTATION 06.08.2022 COFFEE BAR LOUNGE LJC 33 W MONROE PRESENTATION 06.08.2022 LJC 33 W MONROE PRESENTATION 06.08.2022 MULTI-PURPOSE SPACE LJC 33 W MONROE PRESENTATION 06.08.2022 BLEVEL 2 coffee bar | axonometric COFFEE BAR + LOUNGE DESIGN LOBBY & ATRIUM FINISH UPDATES | axonometric cross-section coffee bar | back elevation coffee bar + cafe rendering lobby lounge amenity lounge overall lobby finish palette VIEW NOTES GENERAL NOTES KEYED NOTES EXISTING STONE TO REMAIN. ALL EXISTING STONE TO BE CLEANED AND RESEALED. ALIGN FINISH FACE OF NEW FURRED STUD WALL TO FINISH FACE OF EXISTING ESCALATOR SIDE 1. SEE SHEET G0.011 FOR GENERAL FINISH NOTES 2. SEE SHEET A2.505 FOR FINISH SCHEDULE 3. ALL EXISTING STONE TO REMAIN TO BE CLEANED AND RESEALED. GC TO PROVIDE CLEANING PRODUCTS FOR REVIEW & APPROVAL. EXISTING WALL FINISH TO REMAIN GL SS PA E SC EEN RA SE SO D SUR AC S -1 FRONT AC S R P L D GH NG UND RNE TH FACE O M LWORK @ OE K C EE SE T O DETA L REFR ERA ED GRA -N-GO SH L NG W TH TOP D PLAY CAS P O S S A ON W LOWE ED H GH AD COU TE E F-S RV U EN L & OND M NT BA W RA H RECE TACL GROMME S NGL D VE T C L F N WA L W H L S ER N SH WCL T EC ANGU AR ME AL B ONZ B R TOC N H M L-3 LOAT N W D S ELV NG OL D S RF CE BAC SP A H SEM LO EE TR NS ER HA F-HE GH SW G DOOR 1' 0" 3' 6" ALL EQUIPMENT SHOWN FOR REFERENCE ONLY -FOOD & BEVERAGE VENDOR TO PROVIDE EQUIPMENT; REFER TO FOOD & BEVERAGE DRAWINGS FOR MORE INFORMATION. 1'0" 1' 0" 7' 8" 11' 1/2" 13' 7 1/2" 4' 6" 4" 2" OPEN FOR EQUIP 4' 1/2" OPEN FOR EQUIP 3' 1" 1' 3" OPEN FOR EQUIP 5' 1" 6" 3" 3' 7" 2' 6" 1' 7" 2' 3" 2' 3" 2 11 1' 6" 1' 0" 2' 0" 6 4 3' 0" 3" SS-1 PL-1 PL-1 PL-1 SS-1 PL-1 PL-1 4" 6" SS-1 SS-1 SS-1 5 SS-1 18 18 311 511 311 2" WIDE X 1/2" THICK FLAT RECTANGULAR BRONZE BAR STOCK; PROVIDE CONTINUOUS METAL PLATE SUPPORT ANCHORED TO A HEAVY GAUGE STUD CONSTRUCTION KNEE WALL BEHIND BACKSPLASH WOOD SHELVING W/ STEEL SUPPORT AS NEEDED 5 A4.601 TYP. 6 A4.601 TYP. 2' 10" 1 10 2' 2" 2" 3" 1' 3"2' 0"2' 0" OPEN FOR EQUIP 1/2"1' 0"2' 7"1' 6" OPEN FOR EQUIP 6" 1' 2"3"2' 10"2" 4" EQ EQ EQ EQ EQ 18 PL-1 PL-1 SS-1 PL-1 SS-1 3 CURVED PORTION OF MILLWORK; FINISH TO BE PL-1 PL-1 3' 6"1' 0" A3.104 13 0A2 1' 2" 2' 7 1/2" 58 6 A4.601 12' 4" A4.301 GFI GFI 40"40" GFI 40" D D EQ EQ EQ EQ EQEQ SS-1 CURVED PORTION OF MILLWORK; FINISH TO BE PL-1 EQEQEQEQ 3 35 EAST WACKER DRIVE, SUITE 1500 CHICAGO, IL 60601 Ph 312.658.0747 33 W MONROE AMENITY AmTrust 33 W Monroe Chicago, IL A3.104 COFFEE BAR 103 -AXON VIEW 3/8" 1'-0" A3.104 COFFEE BAR 103 -OVERALL EAST ELEVATION (INSIDE) 3/8" = 1'-0" A3.104 COFFEE BAR 103 -OVERALL WEST ELEVATION (INSIDE) LEVEL 1 -COFFEE BAR RENDER VIEW DRAWING ISSUE DESCRIPTIONDATE VIEW NOTES GENERAL NOTES KEYED NOTES EXISTING STONE TO REMAIN. ALL EXISTING STONE TO BE CLEANED AND RESEALED. ALIGN FINISH FACE OF NEW FURRED STUD WALL TO FINISH FACE OF EXISTING ESCALATOR SIDE 1. SEE SHEET G0.011 FOR GENERAL FINISH NOTES 2. SEE SHEET A2.505 FOR FINISH SCHEDULE 3. ALL EXISTING STONE TO REMAIN TO BE CLEANED AND RESEALED. GC TO PROVIDE CLEANING PRODUCTS FOR REVIEW & APPROVAL. EXISTING WALL FINISH TO REMAIN G A S AN L SC EE R SED SO D SUR A E SS- RON ACE S R ED L GH NG UND RN A H AC O M WO K @ OE K K SE EC ON DE A L R F GE A ED GRA -N-G HE V NG W H OP D P A C SE O ST T ON W L W RED E G T DA COU T R E F-SE VE U EN & COND MEN AR W T AS R CE TACL GR MMET NG ED V RT CA N WA L W TH P A TE N H WC-1 F A R CT NGU A ME A B ON E AR S OCK F N H M -3 O T G WOOD SH L NG SO D SU FA E AC S L SH SS-1 MP OY E R NS ER HA F-HE GH W NG OOR 7' 8" 11' 1/2" WOOD SHELVING W/ STEEL SUPPORT AS NEEDED 35 EAST WACKER DRIVE, SUITE 1500 CHICAGO, IL 60601 Ph 312.658.0747 A3.104 COFFEE BAR 103 -AXON VIEW

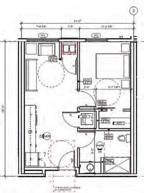
750 N AVERS AVENUE Chicago, IL

Firm: Lamar Johnson Collaborative

Project Description:

Planned development of a 4-story mixeduse residential building compromising of 60 dwelling units with emphasis on affordable housing incentives. Retail/restaurant tenant spaces are placed along street level in hopes to enhance surrounding community of Humboldt Park.

Contribution & Involvement:

- Design development

- Unit space planning & kitchen designs

- Thorough accessibility and code reviews

- Construction documentation

- Weekly coordination w/ MEP

overall unit plan

LEVEL 100' -0" LEVEL 100' -0" LEVEL 114' -0" LEVEL 114' -0" LEVEL 124' -8" LEVEL 124' -8" LEVEL 135' -4" LEVEL 135' -4" T/ROOF SLAB 146' -0" T/ROOF SLAB 146' -0" 0.9 UPPER PARAPET 157' -10" T/ UPPER PARAPET 157' -10" G2 A3.402 T/LOWER PARAPET 148' -4" T/LOWER PARAPET 148' -4" 7.3 D2 A3.402 28' 0" 25' 0" 14' 3/8" 20' 5/8" 14' 1/4" 10' 3/4" 0" 24' 25' 21' 11" 17' 16' 0" 23' 10" ELEV LOBBY C301 ELEV LOBBY C401 MECH C503 A3.503 A3 Sim A3.504 C3 Sim A3.507 Sim A3.508 Sim C3 A3.603 6.4 5.10 7.2 8.2 35 EAST WACKER DRIVE, SUITE 1500 CHICAGO, IL 60601 Ph 312.658.0747 1/8" 1'-0" A3.401 G4 BUILDING SECTION E-W 1 A4.006 9 W-1 D-1 RANGE AND HOOD VENT MW BELOW DW REF 266 REMOVABLE A4.006 8 7 6 265 263 268 REMOVABLEREMOVABLE A4.006 4 5 U06 U02 U03 U10 U07 U02 U01 0B3 0B/C6 0A3 0B3 0B/C3 0B/C3 0C3 0A3 0A3 0A3 3' 261 9 5 /8 61 0 1 /2 27 0B6 0B/C3 260 260 260 TA-12 TA-16 TA-14 TA-8 REMOVABLE SINK CABINET. FLOOR AND WALL TO BE FINISHED UNDER CABINET. PROVIDE FASCIA AND FINISHED SIDE PANELS, 36" IN WIDTH DRAWING TITLE DRAWING NO. A Job # 3 1 750 N. AVERS 750 N. AVERS AVE., CHICAGO, ILLINOIS A4.006 UNIT 1-1-M - ENLARGED PLANS, RCPS, ELEVATIONS 21_006352 548 CAPITAL DEVELOPMENT UNIT TYPE 1-1-M FLOOR PLAN SECTION 504 MOBILITY UNIT 3/8" = 1'-0" A4.006 4 UNIT TYPE 1-1-M KITCHEN SOUTH DRAWING ISSUE #DESCRIPTIONDATE 90% ISSUED FOR REVIEW UPDATED GMP 04.28.2023 1ISSUED FOR PERMIT05.19.2023 4ISSUED FOR PERMIT06.02.2023 7ISSUED FOR PERMIT07.14.2023 LAUNDRY ATS 6.11PROVIDEDIN-UNIT SECONDARY BED CL L FT ATS 6.7 SECONDARY BED SQ FT ATS 6.7 A4.006 9 W-1 D-1 REMOVABLE A4.006 8 7 6 265 263 268 U06 U02 U03 U02 0B3 0B3 0B/C3 0B/C3 0C3 0A3 0A3 0A3 261 9 5 /8 61 0 1 /2 2 7 0B6 260 260 260 TA-12 TA-16 TA-14 TA-8 PT-01 PT-01/03 WB-01 GENERAL NOTES 1. ALL UNIT WINDOWS TO RECEIVE ROLLER SHADES 2. ALL UNIT BULK STORAGE -AS DESIGNATED BY DIAGONAL CROSS HATCH -TO BE AT LEAST 8'-0" MIN CLEAR HEIGHT 3. ALL UNIT CLOSETS AND LAUNDRY AREAS TO RECEIVE FINISHES OF ADJOINING ROOM U.N.O. 4. ALL FURNITURE AND ELECTRONIC EQUIPEMENT IS SHOWN FOR REFERENCE ON POTENTIAL USE OF SPACE. UNITS WILL NOT BE FURNISHED. ACCESSIBLE PATH 8'-0" AFF GYPSUM CEILING 9'-4 1/2" AFF GYPSUM CEILING BLOCKING IN TV WALL-REFER TO DETAIL HANGING STORAGE BEARING WALL OPENING REMOVABLE CABINET ADDITIONAL CABINET BLOCKING KEYNOTE LEGEND UNIT INFORMATION 218 TL-02 U02 TA-7 TA-9 TA-13 80 " TL-02 T-1 TA-15 TA-15 TA-11 80 TA-15 RG-1 RF-1 DW-1 TL-02 QZ-01 T / B O T T O M S H E L F 4 7 1 /2 " M A X FILLER 2' 9" MIN 3/4" MIN 1' 11 3/4" 3' 0" HOLD 2' 7 1/2" HOLD 2' 6 1/2" MIN 9" FILLER 11' - 2 3/4" 58 " H O L D 24 WM-01B WM-01A WM-01B RH-1 A5 A5 REMOVABLE SINK CABINET. FLOOR AND WALL TO BE FINISHED UNDER CABINET. PROVIDE FASCIA AND FINISHED SIDE PANELS, 36" IN WIDTH REMOVABLE CABINET FOR WORKSPACE. FLOOR AND WALL TO BE FINISHED UNDER CABINET. PROVIDE FASCIA AND FINISHED SIDE PANELS, 31 1/2" IN WIDTH. PROVIDE FILLER PANEL WM-01A F1 L-1 WM-01B A5 A4.602 A2 A4.602 D1 A4.602 A4 A4.602 E5 A4.602 FILLER 9" 2' 6" FILLER 2' - 6" 3' - 0" 2' - 0" D5 A4.602 21 0 " M A X 14' 1 1/4" 80 1 /4 1 4 1 /2 9 4 3 /4 25 29 C1 A4.602 FILLER 35 EAST WACKER DRIVE, SUITE 1500 CHICAGO, IL 60601 Ph 312.658.0747 4 5 6 3 750 N. AVERS AVE. 750 N. AVERS AVE., CHICAGO, ILLINOIS 60651 548 CAPITAL DEVELOPMENT 218 GRAY-BOX EQUIPMENT TO BE INSTALLED AT WASHING MACHINE SIDE. ARCHITECTURAL WALLS TO BE SIZED TO ACCOMMODATE THIS EQUIPMENT. CONTRACTOR TO VERIFY PRIOR TO FRAMING. 260 PROVIDE IN-WALL REINFORCING FOR GRAB BARS IN THIS LOCATION. REFERENCE SHEET A0.001 FOR LOCATION AND MOUNTING HEIGHT INFORMATION. 261 PROVIDE REMOVABLE SHOWER BENCH. REFERENCE SHEET A0.001 FOR LOCATION INFORMATION. 263 60" X 66" CLEAR FLOOR SPACE TO REMAIN. LAVATORY AND VANITY MAY ENCROACH AS INDICATED. 265 CONTRACTOR TO PREPARE SCHEDULED PARTITION TO RECEIVE IN-WALL MEDICINE CABINET. REFER TO ELEVATIONS FOR MOUNTING INFORMATION. 266 PROVIDE IN-WALL BLOCKING FOR A TELEVISION IN THIS LOCATION CENTERED AT 3'-6" AFF. 268 CROSSHATCHED AREAS THROUGHOUT 1-BEDROOM UNIT INDICATE BULK STORAGE REQUIREMENTS, 9 SF. MIN. AREA MUST BE FREE OF ALL SHELVING, HANGING, ETC. 3/8" = 1'-0" A4.006 9 LAUNDRY DETAIL 3 N 3/8" = 1'-0" A4.006 6 UNIT TYPE 1-1-M BATH SOUTH 3/8" = 1'-0" A4.006 7 UNIT TYPE 1-1-M BATH EAST 3/8" = 1'-0" A4.006 4 UNIT TYPE 1-1-M KITCHEN SOUTH NORTH DRAWING ISSUE #DESCRIPTIONDATE 90% ISSUED FOR REVIEW UPDATED GMP 04.28.2023 1ISSUED FOR PERMIT05.19.2023 4ISSUED FOR PERMIT06.02.2023 7ISSUED FOR PERMIT07.14.2023 LAUNDRY ATS 6.11PROVIDEDIN-UNIT SECONDARY BED CL L FT ATS 6.7 SECONDARY BED SQ FT ATS 6.7 SECONDARY BED MIN ATS 6.7 PRIMARY BED CL L FT ATS 6.75'-0"6'-10" PRIAMRY BED BED SQ FT ATS 6.7120128 PRIMARY BED MIN ATS 6.710'-0"11'-1" COUNTERTOP LF ATS 6.56 10.9 UPPER CABINETS L FT ATS 6.54 8.5 BASE CABINETS L FT ATS 6.55 8 DINING RM SEATS ATS 6.5 REQ DINING RM ATS 6.5 KITCHEN DINING SEATS ATS 6.54 4 GENERAL ST SQ FT ATS 6.41020.3 BULK STORAGE CB FT IHDA 127272 ENTRY CLOSET FT ATS 6.33'-0"3'-0" LIVING RM MIN LR WALL ATS 6.211'-6"13'-5" LIVING RM SQ FT IHDA 6150150 BATHROOM(S) ATS 6.11 1 UNIT SQ FT ATS 6.1600604 UNIT SQ FT + 15% IHDA 6604604 UNIT 1-1-M SECTIONREQ 1 BEDACTUAL LEVEL 01 100' -0" LEVEL 01 100' -0" LEVEL 02 114' -0" LEVEL 02 114' -0" LEVEL 03 124' -8" LEVEL 03 124' -8" LEVEL 04 135' -4" LEVEL 04 135' -4" T/ROOF SLAB 146' -0" T/ROOF SLAB 146' -0" 10 0.9 UPPER PARAPET 157' -10" UPPER PARAPET 157' -10" G2 A3.402 T/LOWER PARAPET 148' -4" T/LOWER PARAPET 148' -4" 7.3 D2 A3.402 28' 25' 0" 14' 3/8" 20' 5/8" 14' 1/4" 10' 3/4" 24' 0" 25' 0" 21' 11" 17' 0" 16' 0" 23' 10" 0 8 0 8 1 0 4 ELEV LOBBY C301 ELEV LOBBY C401 MECH C503 A3.503 Sim A3.504 Sim A3.507 C3 Sim A3.508 A5 Sim C3 A3.603 6.4 5.10 7.2 8.2 LEVEL 01 100' -0" LEVEL 100' -0" LEVEL 02 114' -0" LEVEL 114' -0" LEVEL 03 124' -8" LEVEL 124' -8" LEVEL 04 135' -4" LEVEL 135' -4" T/ROOF SLAB 146' -0" T/ROOF SLAB 146' -0" 10 0.9 UPPER PARAPET 157' -10" T/ UPPER PARAPET 157' -10" G2 A3.402 T/LOWER PARAPET 148' -4" T/LOWER PARAPET 148' -4" T/PENTHOUSE SLABS 147' -4" 7.3 D2 A3.402 28' 0" 25' 0" 14' 3/8" 19' 5/8" 14' 1/4" 10' 3/4" 0" 24' 25' 21' 11" 17' 16' 0" 23' 10" ELECTRICAL C203 ELECTRICAL C303 MECH C503 ELECTRICAL C403 MECH C502 A3.507 C3 Sim A3.508 A5 Sim 6.4 5.10 7.2 B1 A5.102 8.2 1/8" 1'-0" A3.401 G4 BUILDING SECTION E-W 1 1/8" 1'-0" A3.401 G2 BUILDING SECTION E-W 2
kitchen elevation typical type 'A' one bedroom unit

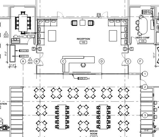
BANDWITH CHICAGO

Chicago, IL

Firm: Lamar Johnson Collaborative

Project Description:

Adpative reuse & renovation of existing 25,000 sq ft industrial casket factory building to a community center & performing arts center for non-profit organization, BandWith. The building will include recording studios, music library, dance studio, practice rooms, and office spaces for BandWith organization.

Contribution & Involvement:

- Design development, 3D modeling

- Site design & planning assistance

- Interior Design lead & finish selections

- Construction documentation

- Furniture & equipment vendor coordination

- Community engagement & zoning process

© Lamar Johnson Collaborative 2022 03.07.2022 CONCEPTUAL TEST FIT BANDWITH LOYAL CASKET SITE Exterior views of Existing Building © Lamar Johnson Collaborative 2022 2 03.07.2022 CONCEPTUAL TEST FIT BANDWITH LOYAL CASKET SITE Exterior views of Existing Building existing site photos proposed site plan
PORTFOLIO JAY DRAGON PROFESSIONAL CONTACT THE EARLY DAYSEDUCATIONAL COMPETITIVE EDGE 35 landscape site plan Schematic Lamar Johnson Collaborative ? OUTDOOR GARDEN AND PERFORMANCE SPACE ALLEY FOOD TRUCK Sidewalk S CALIFORNIA AVE W ADAMS ST TENTS NEW PARKING AREA 336 PEOPLE Copyright BANDWITH 04/18/2023 PREFERRED OPTION - EVENT 1 0'8'16' 32' N 7' - 0" 18' - 0" 22' - 0" 18' - 0" 9' - 0" 16' - 0" 22' - 0" 11' - 0" 5' - 5" OUTDOOR GARDEN AND PERFORMANCE SPACE 2 3 4 5 6 7 8 12 13 14 15 16 17 18 19 NEW CURB CUT NEW PARKING AREA NEW TREES 2yd trash 2yd trash 2yd trash PAINTED STEEL FENCE WITH GATE PAINTED STEEL FENCE WITH GATE 10 11 9 5327 sf 20 ADA 8'10" 8'0" 11'0" 1 6'0" S CALIFORNIA AVE 10'0" 2793 sf 29'2" 4' TALL TYP ORNAMENTAL METAL FENCE REQUIRED BY LANDSCAPE ORDINANCE 7'-0" MIN LANDSCAPE BUFFER REQUIRED BY LANDSCAPE ORDINANCE NEW DRIVEWAY MAY TRIGGER POLICY TO REDO ENTIRE ALLEY NEW APRON WILL BE REQUIRED 20 SPACES FLEXIBLE SPACE FOR LOADING OR FOOD TRUCK PARKING 2' PARKING ROLLOVER BUFFER 0'8' 16' 620 SF OF GREEN OR 3.5 PARKING TOTAL HARDSCAPE OPTION 1

Open built-in shelving; constructed of plywood with smooth finish

Open built-in shelving; constructed of plywood with smooth finish

Concealed storage underneath open shelving for additional album record storage, equipment, or wire management.

Workstation surface large enough for four monitors; constructed of plastic laminate; finish to match adjacent plywood shelving

Tackable wall covering within shelving niches

Front-facing vinyl record album shelving display for added visual interest

Concealed storage underneath open shelving for additional album record storage, equipment, or wire management.

Workstation surface large enough for four monitors; constructed of plastic laminate; finish to match adjacent plywood shelving

Concealed storage underneath open shelving for additional album record storage, equipment, or wire management.

Tackable wall covering within shelving niches

Workstation surface large enough for four monitors; constructed of plastic laminate; finish to match adjacent plywood shelving

Front-facing vinyl record album shelving display for added visual interest

Eclectic lounge furniture

Concrete flooring with polished finish

Tackable wall covering within shelving niches

Front-facing vinyl record album shelving display for added visual interest

Eclectic lounge furniture

Concrete flooring with polished finish

New brick cladding over existing stairweell wall

PORTFOLIO PROFESSIONAL CONTACT THE EARLY DAYSEDUCATIONAL COMPETITIVE EDGE 36 BandWith Chicago Design Development | 05.16.2023 Music Library 2 1 214 SF COFFEE FOOD SERVICE AREA 36 73 SF CORRIDOR 37 59 SF RESTROOM 40 61 SF RESTROOM 39 32 SF UTILITY 41 P.O.S. UP NEW CONCRETE SLAB FROM SIDEWALK TO ENTRANCE RAMP 99'-6" 100'-0" NEW EXTERIOR WALL ? NEW GLAZED ALUMINUM STOREFRONT 4 5 NEW WINDOWS Glass -Top Electric Combination Appliance. F LEVEL 01 100' - 0" B.O. BEAMS 112' - 10 1/4" BUILT-IN 3/4" PLYWOOD OPEN SHELVING RECORD TURNTABLES CD CASETTE TAPE RECORDER PLAYERS VINYL RECORD ALBUM DISPLAY 11'6" NOTE: EQUIPMENT BY OWNER, TYP. SHOWN FOR REFERENCE ONLY 1' 2" FRONT EDGE OF CONTINOUS OPEN SHELVING ON EAST WALL ACOUSTICAL WALLCOVERING VINYL RECORD ALBUM DISPLAY 2'10" ACOUSTICAL WALLCOVERING C D E 1/4" = 1'-0 ENLA 1/4" = 1'-0 ENLA 1/4" = 1'-0" ENLARGED PLAN -COFFEE SHOP 1/4" = 1'-0" ENLARGED PLAN -MUSIC LIBRARY 1/4" = 1'-0" ENLARGED PLAN -SINGLE-USER RESTROOM 3/8" 1'-0" A2.201 MUSIC LIBRARY -EAST ELEVATION 3 4 A 11' 6" LEVEL 01 100' - 0" 11' 6" NOTE: EQUIPMENT BY OWNER, TYP. SHOWN FOR REFERENCE ONLY 3/8" = 1'-0" A2.201 9 MUSIC LIBRARY -EAST ELEVATION 3/8" = 1'-0" A2.201 10 MUSIC LIBRARY -NORTH ELEVATION A 11' 6" TACKABLE WALL COVERING LEVEL 01 100' - 0" VINYL RECORD ALBUM DISPLAY 11' 6" NOTE: EQUIPMENT BY OWNER, TYP. SHOWN FOR REFERENCE ONLY VINYL RECORD ALBUM DISPLAY 2'10" 3/8" = 1'-0" A2.201 9 MUSIC LIBRARY -EAST ELEVATION 10 MUSIC LIBRARY -NORTH ELEVATION
NORTH ELEVATION EAST ELEVATION ENLARGED PLAN BandWith Chicago Design Development | 05.16.2023
F G 1 214 SF COFFEE & FOOD SERVICE AREA 36 32 SF UTILITY 41 P.O.S. UP NEW CONCRETE SLAB FROM SIDEWALK TO ENTRANCE RAMP UP 100'-0" 99'-6" 100'-0" NEW EXTERIOR WALL ? ? ? NEW GLAZED ALUMINUM STOREFRONT EXISTING STEEL COLUMN B 4 DW DUAL COFFEE MACHINE PULLOUT TRASH (UNDER CAB.) REF MW WORK SURFACE STORAGE ABOVE 150 SF KITCHEN 08 GREASE TRAP (UNDER SINK) ICE MACHINE (UNDER CAB.) Glass -Top Electric Stove/Oven Combination Appliance. F 3 4 92 SF SECURITY RECEPTION 02 185 SF VESTIBULE 01 6' 2 1/2" 6' 0" 4' 0" 4' 0" SECURITY RECEPTION DESK; SOLID SURFACE COUNTERTOP W/ INTEGRATED CABINET STORAGE OPERABLE SECURITY WINDOW WITH BULLETPROOF GLASS 2' 0" 9'7" LEVEL 01 100' - 0" B.O. BEAMS 112' - 10 1/4" BUILT-IN 3/4" PLYWOOD OPEN SHELVING RECORD TURNTABLES CD & CASETTE TAPE RECORDER PLAYERS VINYL RECORD ALBUM DISPLAY 11'6" NOTE: EQUIPMENT BY OWNER, TYP. SHOWN FOR REFERENCE ONLY 1' 2" FRONT EDGE OF CONTINOUS OPEN SHELVING ON EAST WALL ACOUSTICAL WALLCOVERING VINYL RECORD ALBUM DISPLAY 2'10" ACOUSTICAL WALLCOVERING Lamar Johnson Collaborative Copyright C D E F C 5/11/2023 10:21:27 AM 1/4" = 1'-0 ENLA 1/4" = 1'-0 ENLA N 1/4" = 1'-0" ENLARGED PLAN -COFFEE SHOP 1/4" = 1'-0 ENLA ENLARGED PLAN -SINGLE-USER RESTROOM 1/4" = 1'-0" ENLARGED PLAN -KITCHEN 1/4" = 1'-0" ENLARGED PLAN -VESTIBULE & RECEPTION 3/8" = 1'-0" A2.201 9 MUSIC LIBRARY -EAST ELEVATION 3/8" = 1'-0" A2.201 10 MUSIC LIBRARY -NORTH ELEVATION 1 3 4 LEVEL 01 100' - 0" B.O. BEAMS 112' - 10 1/4" BUILT-IN 3/4" PLYWOOD OPEN SHELVING RECORD TURNTABLES CD & CASETTE TAPE RECORDER PLAYERS VINYL RECORD ALBUM DISPLAY 11'6" NOTE: EQUIPMENT BY OWNER, TYP. SHOWN FOR REFERENCE ONLY 1' 2" FRONT EDGE OF CONTINOUS OPEN SHELVING ON EAST WALL ACOUSTICAL WALLCOVERING VINYL RECORD ALBUM DISPLAY 2' 10" ACOUSTICAL WALLCOVERING 3/8" = 1'-0" A2.201 9 MUSIC LIBRARY -EAST ELEVATION 3/8" = 1'-0" A2.201 10 MUSIC LIBRARY -NORTH ELEVATION LEVEL 01 100' - 0" NOTE: EQUIPMENT BY OWNER, TYP. SHOWN FOR REFERENCE ONLY LEVEL 01 100' - 0" B.O. BEAMS 112' - 10 1/4" BUILT-IN 3/4" PLYWOOD OPEN SHELVING RECORD TURNTABLES CD & CASETTE TAPE RECORDER PLAYERS VINYL RECORD ALBUM DISPLAY 11'6" NOTE: EQUIPMENT BY OWNER, TYP. SHOWN FOR REFERENCE ONLY 1' 2" FRONT EDGE OF CONTINOUS OPEN SHELVING ON EAST WALL ACOUSTICAL WALLCOVERING VINYL RECORD ALBUM DISPLAY 2'10" ACOUSTICAL WALLCOVERING 3/8" = 1'-0" A2.201 9 MUSIC LIBRARY -EAST ELEVATION 10 MUSIC LIBRARY -NORTH ELEVATION
Music Library
NORTH ELEVATION EAST ELEVATION
3 A B 5 426 SF MUSIC LIBRARY 09 Base Bid: Channel Glazed Wall Alternate Bid: Glazed Operable Interior Partition. Acceptable Manufacturers: Muraflex Slliding Dirtt -Folding Modernfold -Folding Falkbuilt -Sliding Full Heigh Built-in Plywood Open Shelving with Integrated Work Surface; Refer to Interior Elevations 13' 6" A2.201 9 10 NOTE: EQUIPMENT BY OWNER, TYP. SHOWN FOR REFERENCE ONLY NEW WINDOWS 1/4" = 1'-0 ENLA ENLARGED PLAN -MUSIC LIBRARY 1/4" = 1'-0 ENLA 1/4" = 1'-0" ENLARGED PLAN -SINGLE-USER RESTROOM B.O. BEAMS 112' - 10 1/4" BUILT-IN 3/4" PLYWOOD OPEN FRONT EDGE OF CONTINOUS OPEN SHELVING ON NORTH WALL PAINTED GYP. BD. WALL BEYOND B.O. BEAMS 112' - 10 1/4" BUILT-IN 3/4" PLYWOOD OPEN FRONT EDGE OF CONTINOUS OPEN SHELVING ON NORTH WALL PAINTED GYP. BD. WALL BEYOND E F 3 2 1 127 SF OFFICE STORAGE 38 214 SF COFFEE & FOOD SERVICE AREA 36 73 SF CORRIDOR 37 59 SF RESTROOM 40 61 SF RESTROOM 39 32 SF UTILITY 41 P.O.S. NEW DOOR IN EXISTING OPENING EXISTING STEEL COLUMN A B 4 5 426 SF MUSIC LIBRARY 09 Base Bid: Channel Glazed Wall Alternate Bid: Glazed Operable Interior Partition. Acceptable Manufacturers: Muraflex Slliding Dirtt -Folding Modernfold -Folding Falkbuilt -Sliding Full Heigh Built-in Plywood Open Shelving with Integrated Work Surface; Refer to Interior Elevations 13' 6" A2.201 9 10 NOTE: EQUIPMENT BY OWNER, TYP. SHOWN FOR REFERENCE ONLY NEW WINDOWS 4 F 3 4 92 SF SECURITY RECEPTION 02 185 SF VESTIBULE 01 6' 2 1/2" 6' 0" 4' 0" 4' 0" SECURITY RECEPTION DESK; SOLID SURFACE COUNTERTOP W/ INTEGRATED CABINET STORAGE OPERABLE SECURITY WINDOW WITH BULLETPROOF GLASS 2' 0" 9'7" LEVEL 01 100' - 0" B.O. BEAMS 112' - 10 1/4" BUILT-IN 3/4" PLYWOOD OPEN SHELVING RECORD TURNTABLES CD & CASETTE TAPE RECORDER PLAYERS VINYL RECORD ALBUM DISPLAY 11'6" NOTE: EQUIPMENT BY OWNER, TYP. SHOWN FOR REFERENCE ONLY 1' - 2" FRONT EDGE OF CONTINOUS OPEN SHELVING ON EAST WALL ACOUSTICAL WALLCOVERING VINYL RECORD ALBUM DISPLAY 2'10" ACOUSTICAL WALLCOVERING 1/4" = 1'-0" ENLARGED PLAN -MUSIC LIBRARY 1/4" = 1'-0 ENLA 1/4" = 1'-0" ENLARGED PLAN -SINGLE-USER RESTROOM 1/4" = 1'-0" ENLARGED PLAN -VESTIBULE & RECEPTION 3/8" = 1'-0" A2.201 9 MUSIC LIBRARY -EAST ELEVATION 3/8" = 1'-0" A2.201 10 MUSIC LIBRARY -NORTH ELEVATION LEVEL 01 100' - 0" B.O. BEAMS 112' - 10 1/4" A 11'6" INTEGRATED 24" DEPTH WORKSTATION DESK SURFACE BUILT-IN 3/4" PLYWOOD OPEN SHELVING NOTE: EQUIPMENT BY OWNER, TYP. SHOWN FOR REFERENCE ONLY FRONT EDGE OF CONTINOUS OPEN SHELVING ON NORTH WALL TACKABLE WALL COVERING PAINTED GYP. BD. WALL BEYOND B.O. BEAMS 112' - 10 1/4" BUILT-IN 3/4" PLYWOOD OPEN SHELVING 1' 2" 3/8" = 1'-0" A2.201 9 MUSIC LIBRARY -EAST ELEVATION LEVEL 01 100' - 0" B.O. BEAMS 112' - 10 1/4" A 11'6" INTEGRATED 24" DEPTH WORKSTATION DESK SURFACE BUILT-IN 3/4" PLYWOOD OPEN SHELVING NOTE: EQUIPMENT BY OWNER, TYP. SHOWN FOR REFERENCE ONLY FRONT EDGE OF CONTINOUS OPEN SHELVING ON NORTH WALL TACKABLE WALL COVERING PAINTED GYP. BD. WALL BEYOND BUILT-IN 3/4" PLYWOOD OPEN 3/8" = 1'-0" A2.201 9 MUSIC LIBRARY -EAST ELEVATION
ENLARGED PLAN
EAST ELEVATION ENLARGED PLAN MUSIC LIBRARY
PORTFOLIO PROFESSIONAL CONTACT THE EARLY DAYSEDUCATIONAL COMPETITIVE EDGE 37 Collaborative SHOP | AXONOMETRIC COFFEE SHOP FLOOR PAINTED CMU FINISH PALETTE LJC 33 W MONROE PRESENTATION 06.08.2022 BandWith Chicago Lamar Johnson Collaborative FLOOR WALLS MILLWORK PAINTED CMU FINISH PALETTE coffee bar elevations finish palette interior rendering COFFEE SHOP | ELEVATIONS F 13 A4.401 B.O. JOISTS 8'4" 1' 2" 2' 10" 4' 0" F12 F12 F12 F12 10' 5" 12 A4.401 SIM F BIN SINK FLOOR-MOUNTED GREASE INTERCEPTOR 1' 2" 2' 10" 4'0" B.O. JOISTS 8'4" 2 OPEN TO STORAGE 2' 0"2' 6" 1' 6" 2'10" B.O. JOISTS 8' 4" 2'10" 2'10" F F A4.401 4 B.O. JOISTS 8' 4" 2'10" 2'10" 4' 2 1/4" 2' 0"4 1/4" NOTFOR CONSTRUCTION 35 EAST WACKER DRIVE, SUITE 1500 CHICAGO, IL 60601 Ph 312.658.0747 BandWith Chicago 148 S. California Ave, Chicago IL Community Performing Arts Center ISSUE FOR GMP 3/8" = 1'-0" A4.105B 1 COFFEE BAR -SOUTH ELEVATION 3/8" = 1'-0" A4.105B 3 COFFEE BAR -NORTH ELEVATION COFFEE & FOOD SERVICE AREA -WEST ELEVATION 3/8" = 1'-0" A4.105B 7 CENTER COFFEE BAR -NORTH ELEVATION DRAWING ISSUE DESCRIPTIONDATE ISSUE FOR GMP10/13/2023 13 A4.401 B.O. JOISTS 8' 4" 1'2" 2'10" 4' 0" F12 F12 F12 F12 10' 5" 12 A4.401 SIM F -BIN SINK FLOOR-MOUNTED GREASE INTERCEPTOR 1' 2" 2' 10" 4' 0" B.O. JOISTS 8' 4" F NOTFOR CONSTRUCTION 35 EAST WACKER DRIVE, SUITE 1500 CHICAGO, 60601 Ph 312.658.0747 Chicago 3/8" 1'-0" COFFEE BAR -SOUTH ELEVATION 3/8" 1'-0" A4.105B 3 COFFEE BAR -NORTH ELEVATION B.O. JOISTS 8' 4" F12 F 3-BIN SINK FLOOR-MOUNTED GREASE INTERCEPTOR 1' 2" 2' 10" 4' 0" B.O. JOISTS 8' 4" 2 2' 10" NOTFOR CONSTRUCTION 35 EAST WACKER DRIVE, SUITE 1500 CHICAGO, 60601 Ph 312.658.0747 BandWith Chicago 148 S. California Ave, Chicago IL Community Performing Arts Center ISSUE FOR GMP COFFEE BAR -SOUTH ELEVATION COFFEE BAR -NORTH ELEVATION AREA -WEST ELEVATION CENTER COFFEE BAR -NORTH ELEVATION DESCRIPTIONDATE ISSUE FOR GMP10/13/2023 COFFEE SHOP | ELEVATIONS 13 A4.401 B.O. JOISTS 8' 4" 1'2" 2'10" 4'0" F12 F12 F12 F12 10' 5" 12 A4.401 SIM F 3-BIN SINK FLOOR-MOUNTED GREASE INTERCEPTOR 1'2" 2'10" 4' 0" B.O. JOISTS 8' 4" 2 1' 6" 2' 0"3' 3" 3' 3 1/4" FILLER 1' 6" 19 A4.401 4 A4.401 2' 10" B.O. JOISTS 8'4" 10 A4.401 OPEN TO STORAGE 1' 6" 2' 0"2' 6" 1' 6" 2' 10" B.O. JOISTS 8' 4" 2' 10" 2' 10" FILLER 1' 9" W/ EQPT VERIFY4" A4.401 19 8 A4.401 B.O. JOISTS 8'4" 2' 10" 4'0" F A4.401 4 B.O. JOISTS 8' 4" 2' 10" 2' 10" 4' 1/4" 2' 0"4 1/4" NOTFOR CONSTRUCTION 35 EAST WACKER DRIVE, SUITE 1500 CHICAGO, 60601 Ph 312.658.0747 Lamar Johnson Collaborative DRAWING TITLE DRAWING NO. C Job # BUILDING MAP BandWith Chicago 148 S. California Ave, Chicago IL A4.105B INTERIOR ELEVATIONSCOFFEE SHOP 005987 Community Performing Arts Center ISSUE FOR GMP 3/8" = 1'-0" A4.105B 1 COFFEE BAR -SOUTH ELEVATION 3/8" = 1'-0" A4.105B 3 COFFEE BAR -NORTH ELEVATION 3/8" 1'-0" A4.105B COFFEE & FOOD SERVICE AREA -EAST ELEVATION 3/8" 1'-0" A4.105B COFFEE & FOOD SERVICE AREA -WEST ELEVATION 3/8" = 1'-0" A4.105B 6 CENTER COFFEE BAR -SOUTH ELEVATION 3/8" = 1'-0" A4.105B 7 CENTER COFFEE BAR -NORTH ELEVATION DRAWING ISSUE DESCRIPTIONDATE ISSUE FOR GMP10/13/2023 13 A4.401 B.O. JOISTS 8'4" 1' 2" 2' 10" 4' 0" F12 F12 F12 F12 10' 5" 12 A4.401 SIM F -BIN SINK FLOOR-MOUNTED GREASE INTERCEPTOR 1' 2" 2' 10" 4'0" B.O. JOISTS 8'4" OPEN TO STORAGE FILLER 1' 9" W/ EQPT VERIFY4" A4.401 19 B.O. JOISTS 8' 4" 2' 10" F A4.401 B.O. JOISTS 8' 4" 2'10" 2'10" 4' 1/4" 2' 0"4 1/4" NOTFOR CONSTRUCTION 35 EAST WACKER DRIVE, SUITE 1500 CHICAGO, 60601 Ph 312.658.0747 DRAWING TITLE BUILDING MAP BandWith Chicago 148 S. California Ave, Chicago IL Community Performing Arts Center ISSUE FOR GMP 3/8" 1'-0" A4.105B 1 COFFEE BAR -SOUTH ELEVATION 3/8" 1'-0" A4.105B 3 COFFEE BAR -NORTH ELEVATION COFFEE & FOOD SERVICE AREA -WEST ELEVATION 3/8" 1'-0" A4.105B 7 CENTER COFFEE BAR -NORTH ELEVATION DRAWING ISSUE DESCRIPTIONDATE ISSUE FOR GMP10/13/2023 F 13 A4.401 B.O. JOISTS 8' 4" 1' 2" 2' 10" 4' 0" F12 F12 F12 F12 10' 5" 12 A4.401 SIM F 3-BIN SINK FLOOR-MOUNTED GREASE INTERCEPTOR 1' 2" 2' 10" 4'0" B.O. JOISTS 8' 4" 19 A4.401 2 OPEN TO 2' 0"2' 6" 2'10" B.O. JOISTS 8' 4" 2'10" F B.O. JOISTS 8' 4" NOTFOR CONSTRUCTION 35 EAST WACKER DRIVE, SUITE 1500 CHICAGO, 60601 Ph 312.658.0747 DRAWING TITLE DRAWING NO. Job # BUILDING MAP BandWith Chicago 148 S. California Ave, Chicago IL A4.105B INTERIOR ELEVATIONSCOFFEE SHOP 005987 Community Performing Arts Center ISSUE FOR GMP 3/8" 1'-0" A4.105B COFFEE BAR -SOUTH ELEVATION 3/8" 1'-0" A4.105B COFFEE BAR -NORTH ELEVATION AREA -EAST ELEVATION AREA -WEST ELEVATION CENTER COFFEE BAR -SOUTH ELEVATION CENTER COFFEE BAR -NORTH ELEVATION DRAWING ISSUE DESCRIPTIONDATE ISSUE FOR GMP10/13/2023 E B.O. JOISTS 8'4" VERIFY4" 2'10" B.O. 8' 35 EAST WACKER DRIVE, SUITE 1500 CHICAGO, IL 60601 Ph 312.658.0747 11.30.2024 BandWith Chicago 148 S. California Ave, Chicago IL Community Performing Arts Center ISSUE FOR PERMIT ELEVATION DESCRIPTIONDATE ISSUE FOR PERMIT09/15/2023 SV SV SV V V V 1 COFFEE CIRCULATION 37 RESTROOM 40 RESTROOM 39 UTILITY 41 3 A3.401 41 0B3 0B3 0B3 A4.105B 1 7 A4.105 5 U.C. WASTE RECEPTACLES A4.106 14 8 A3.502 1'3" 1'3" 0A2 1' 6"7 3/4"2' 6" 1'3" 13 A4.401 98 1 11 5 6 E F 3 2 1 3 A3.401 8 A3.502 F8 F8 F8 F8 F8 F8 F8 3' 5"3' - 5"3' - 5" 10' 6" F8 F8 F8 F8 F8 F8 3' - 6" 3'6" 3' 6" 5' 2" 3'5" 10" F12 F12 F12 F12 F12 F12 F14 F9A F9A F9A F9A F6 F6 ? 3'6 5/8" COFFEE & FOOD SERVICE AREA 36 STORAGE 38 CIRCULATION 37 RESTROOM 39 RESTROOM 40 OFFICE 38A 7' -6" CLG-1 7' -8" ACT-2 7' -8" ACT-2 7' -6"CLG-1 7' -6"CLG-1 F8 F8 1'3 1/2" 2'8" 2'8" 2'8" 2 1 OPEN TO BEYOND 41 1' 6" 12' 2 1/2" 10' - 2 1/8" WD-1 3' - 5" 3' 5" 3' 5" 10' - 8 1/2" WD-2 PL-5 SS-2 PL-5 F12F12F12 F12 F12 F12 19 A4.401 4 A4.401 4'1" MAX 2'10" 4'1" 2' 10" 2' 10" F12 2 RAMP UP TO FINISH FLOOR; 1:12 MAX SLOPE E35A PAINTED EXPOSED DUCTWORK PT-1; REFER TO MECH EXPOSED WOOD CEILING JOIST FLOOR MOUNTED POWDER-COATED METAL HANDRAIL W-8 PT-1 A3.504 18 A3.504 14 WD-1 PL-5 B.O. JOISTS WD-1 SS-2 E F WD-1 SS-3 PL-5 2'10" EXISTING MASONRY WALL; TO BE CLEANED & REPAINTED 23 A4.401 F POTENTIAL SIGNAGE BRANDING LOCATION; BY OWNER METAL SINGLE-RAIL HANDRAIL, MTL- FINISH EXISTING CMU WALL TO BE CLEANED REPAINTED, PT-2 PT-2 B.O. JOISTS 8'4" WD-1 FRONT FACE WOOD PANELING WD-2 FRONT FACE TAMBOUR WOOD PANELING PL-5 CONTINOUS TOE KICK FINISH UNDER PANELING ACCESSIBLE COUNTER TRANSACTION AREA GLASS PASTRY DISPLAY CASE 3/8" = 1'-0" A4.105 3 COFFEE SHOP -WEST ELEVATION 3/8" = 1'-0" A4.105 4 COFFEE SHOP -EAST ELEVATION COFFEE BAR -SIDE ELEVATION COFFEE SHOP -NORTH ELEVATION 3/8" = 1'-0" A4.105 7 COFFEE SHOP -SOUTH ELEVATION A4.105 8 COFFEE BAR AXONOMETRIC TO BEYOND MAX SLOPE E35A BUILT-IN PLYWOOD COUNTER-HEIGHT BAR SEATING WD-1 FRONT FACE WOOD PANELING WD-2 FRONT FACE TAMBOUR WOOD PANELING PL-5 CONTINOUS TOE KICK FINISH UNDER PANELING EXISTING COLUMN TO REMAIN & BE REPAINTED ACCESSIBLE COUNTER TRANSACTION AREA GLASS PASTRY DISPLAY CASE COFFEE SHOP EQUIPMENT TO BE PROVIDED BY OWNER, TYP. NOTFOR CONSTRUCTION 35 EAST WACKER DRIVE, SUITE 1500 CHICAGO, IL 60601 Ph 312.658.0747 A4.105 8 COFFEE BAR AXONOMETRIC
PORTFOLIO JAY DRAGON PROFESSIONAL CONTACT THE EARLY DAYSEDUCATIONAL COMPETITIVE EDGE 38
community room recording studio BandWith offices Music Library entry
main entry from street level
PORTFOLIO JAY DRAGON COMPETITIVE EDGE CONTACT THE EARLY DAYSEDUCATIONALPROFESSIONAL 40 COMPETITIVE EDGE Lobby Classrooms Customer Edu Lecture Hall Conference Rms Mechanical Indoor Tech Gym Break Rm Classrooms Lockers Lecture Hall GarageGarageSpaceSpace ParkingStudentAdministrationCustomer Lobby Classrooms workCOMED ARENA Spring 2012 Lobby Classrooms Customer Edu Lecture Hall Conference Rms Mechanical Indoor Tech Gym Break Rm Classrooms Lockers Lecture Hall GarageGarageSpaceSpace ParkingStudentAdministrationCustomer Lobby Classrooms workCOMED ARENA Spring 2012
ground level upper lobby level
16
lower lobby level

MICROHOME 2020

INTERNATIONAL DESIGN COMPETITION

Inspired by architecture in Tokyo and Amsterdam, The FulFill Home adequately transforms a mere 6 foot width by 40‘ foot alleyway located in Chicago, IL. The two neighboring buildings nest this narrow floor plan, giving ample vertical potential to offer the same comfort and flexibility of an average sized urban home. With the integration of spacesaving modular furniture, multilevels, and sustainable design, the home presents a new typology to both tiny home architecture and an enhanced urban living.

PORTFOLIO JAY DRAGON COMPETITIVE EDGE CONTACT THE EARLY DAYSEDUCATIONALPROFESSIONAL 43 final board
PORTFOLIO JAY DRAGON CONTACT THE EARLY DAYSEDUCATIONAL COMPETITIVE EDGE PROFESSIONAL 44
PORTFOLIO JAY DRAGON CONTACT THE EARLY DAYSEDUCATIONAL COMPETITIVE EDGE PROFESSIONAL 45 JAY DRAGON jaydragon27@gmail.com 630 | 620 | 8308 www.issuu.com/jdragon27

Turn static files into dynamic content formats.

Create a flipbook