UOR Summit

Page 1


RECREATION

8: 8 00 AM 9:00 AM 10:30 AM – 11:20 AM

Check-in and Breakfast

Breakfast t Keynote

Breakout Sessi s ons 1

11:330 AM – 12:20 PM 12:20 PM 1:30 PM – 2:20 PM 2:30 3 PM – 3: 3 30 PM 6:00 PM

Breakout Sessions s 2

Luunch an a d Awards

Breaakout Seessions s 3

Facili l tateed Networrking

Dinner e at Utah Lake Statte e Park k

AGENDA AND PRESENTATION SCHEDULE | OCT 14

SCALE THE OUTDOORS

From the Hil H l to the Trails

HEALTHY COMMUNITIES, STRONGER CONNECTIONS:

Building Bridges A Across Sectors - Get Healthy hy Utah

10:30 AM11:30 AM1:30 PM 10: 3 0 A M 11: 3 0 A M 1: 3 0

EMPOWERING KIDS TO BE OUTDOORS & ACCESS TO WINTER SPORTS

S SC 206A

STEM IN THE WILD:

Discover, Discuss and Network with Outdoor Professionals

SC 206B OPERATIONAL RESILIENCE

Mental Health and Outdoor Recovery for Veterans Warrior Revival

SC 206C WHO DONE IT Grants Edition

SC 206H

CONFLICT COMPETENCE

MINI-TRAINING

How to Productively and Build Bridges

SC 208

Leading into the 2034 Olympics

SC 206A

BUILDING BRIDGES

Between M Moto ot rized and Nonmotori or zed Winter Backcount un ry Users with Avalanche h Edducation

SC 206B

MORE THAN JUST OUTDOORS

Finding New Wayys To Enhance Outddoor o Programmiming

SC 2066C

BUILDING COMMUNITY THROUGH YOUTH OUTDOOR PROGRAMS

Girl and Her Backpack

SC 2066H

CONFLICT COMPETENCE

MINI-TRAINING

How to Productively and Build Bridges

SC 208

SC 206A

ACCESS FOR ALL Funding and Partnerships in Inclusive Recreation

SC 206B A YOUNGER GENERATION’S TAKE ON OUTDOOR RECREATION

SC 206C

YOUR POLICY CRASH COURSE

SC 206H

PADDLE TOGETHER

How to Build Inter-Agency Collaboration

SC 208

BUILDING BRIDGES ROOM: SC 206A

10:30 AM

SCALE THE OUTDOORS

Utah’s outdoor recreation access plays a foundational role in supporting the state’s technology sector, accounting for 10% of Utah’s overall economy. According to recent survey data, 79% of Utah’s tech workforce identifies access to outdoor recreation as the primary factor in their decision to live and work in the state. This presentation will explore how investments in parks, trails, and outdoor infrastructure strengthen Utah’s position as a hub for tech talent and business growth. By fostering collaboration between the outdoor industry, the tech sector, and state leadership, Representative Doug Owens (HD 33) is working to advance legislation that expands outdoor recreation resources while conserving natural landscapes.

11:30 AM

HEALTHY COMMUNITIES, STRONGER CONNECTIONS:

Building Bridges Across Sectors - Get Healthy Utah

In an increasingly siloed world, the shared goal of building Healthy Utah Communities offers a powerful foundation for collaboration. In this interactive session, participants will use a guided power mapping process to identify current and potential partners across sectors—schools, health systems, local government, businesses, and grassroots organizations to advance outdoor recreation initiatives. Through facilitated discussion and hands-on activities, attendees will explore where influence and interest align, identify opportunities, and leave with a clear picture of who to engage next. This practical, energizing workshop equips participants with tools to build bridges, strengthen partnerships, and take outdoor recreation to the next level.

BUILDING BRIDGES ROOM: SC 206A

1:30 PM

EMPOWERING KIDS TO BE OUTDOORS & ACCESS TO WINTER SPORTS

Leading into the 2034 Olympics

Part 1-Every Kid Outdoors is a legislative initiative empowered by the Utah Division of Outdoor Recreation. The program provides resources, opportunities, and information that enable Utah families to spend more time outdoors. The Adventure Challenge launched in January 2025 with a dualistic approach to engaging families and youth: free monthly events hosted by the EKO team across the state, and encouraging families to complete the 15 Adventure Challenge themes independently. The program has seen exponential growth. This session will consider adjustments to the program and approach in 2026 and share some of the EKO success stories of 2025. Part 2-In preparation for a future Olympic and Paralympic Games in Utah, the Utah Olympic Legacy Foundation initiated its “Sport 2034” project, which aims to increase youth participation in winter sports in Utah, with a particular focus on traditionally underrepresented populations. So far the UOLF has increased participation in its winter sport programs by 60%, aiming to double by 2034. This session will share some of the successes and also challenges associated with growing youth winter sport participation.

EXPLORE ROOM: SC 206B

10:30 AM

STEM IN THE WILD:

Discover, Discuss and Network with Outdoor Professionals

STEM shows up everywhere in outdoor recreation—from fixing a mountain bike chain to teaching visitors how to read the sky for changing weather. You're already doing it, even if you don't call it STEM! In this interactive session, we’ll jump into a hands-on role-play, then trade stories about the hidden science, tech, engineering, and math in our daily work. You'll walk away with fresh ideas for talking about STEM in ways that connect with youth, visitors, and colleagues—plus new connections with other outdoor professionals who see the outdoors as a natural classroom.

EXPLORE ROOM: SC 206B

11:30 AM

BUILDING BRIDGES

Between Motorized and Nonmotorized Winter Backcountry Users with Avalanche Education

Utah’s winter backcountry is both a stunning and contested space, often divided between motorized users — snowmobilers and snowbikers — and non motorized backcountry skiers and snowboarders. At the Utah Avalanche Center (UAC), we believe fostering mutual respect and shared safety goals is essential. We also recognize that public lands and untracked powder are limited, deeply valued by all, and worth stewarding together. That’s why we've worked intentionally to build trust across communities.

This presentation will explore how UAC is bridging divides through inclusive avalanche forecasting, targeted education, and grassroots engagement. We've expanded into motorized-dominant areas and hired a dedicated Motorized Education Coordinator to meet riders where they are, in their communities and on machines.

By partnering with local snowmobile clubs, the DNR, search and rescue teams, and educators, we've helped foster a growing culture of collaboration and shared responsibility in avalanche terrain.

We'll share successes, challenges, and lessons learned, from motorized-specific avalanche awareness events to community-driven programs. And we want your input. Join us as we continue building bridges between all who depend on Utah’s backcountry for adventure and connection.

EXPLORE ROOM: SC 206B

1:30

PM

ACCESS FOR ALL

Funding and Partnerships in Inclusive Recreation

Creating outdoor spaces that are truly inclusive requires more than good intentions—it takes collaboration, funding, and real-world examples that show what's possible. This session will bring together a panel of changemakers who have successfully implemented accessibility initiatives across a variety of outdoor settings, from hiking trails to recreation programs. Moderated by Kenneth Jardine of Extreme Motus, the discussion will highlight how partnerships between organizations, government entities, and communities can break down barriers and expand access for people with mobility challenges.

Attendees will learn about the many grants and funding opportunities available to support accessibility improvements and how Extreme Motus and others are helping organizations navigate the process. Whether you're just beginning to explore accessibility or looking to take your existing efforts to the next level, this session will offer practical strategies, inspiring stories, and a chance to ask questions during a live Q&A. Together, we'll explore how building bridges between ideas, resources, and people can create a more inclusive outdoor future.

CONNECT ROOM: SC 206C

10:30 AM

OPERATIONAL RESILIENCE

Mental Health and Outdoor Recovery for Veterans Warrior Revival

This presentation at the 2025 Utah Outdoor Recreation Summit will explore the transformative impact of the EXPLORE Act on veteran access to outdoor recreation, with a focus on Utah-based initiatives. The EXPLORE Act, a landmark bipartisan package, enhances access to public lands for veterans, active-duty military, and underserved communities by streamlining permitting processes, modernizing infrastructure, and supporting programs such as the Military and Veterans in Parks Act.

Warrior Revival, a nonprofit based in Sandy, Utah, exemplifies the Act’s potential by offering therapeutic retreats, mentorship, and recreational events—including fishing tournaments and hikes—to support veterans' transition to civilian life.

This session will also include a panel of veterans who have personally benefited from outdoor recreation programs. Their stories will offer firsthand insight into how time spent in nature has supported their mental health, strengthened social connections, and provided purpose after military service. Together, we will explore how Utah can lead the nation in making the outdoors more accessible and healing for those who served.

CONNECT ROOM: SC 206C

11:30 AM

MORE THAN JUST OUTDOORS

Finding New Ways To Enhance Outdoor Programming

User interest in extended (and expensive) outdoor experiences is waning. Participants seem less interested in traditional outdoor experiences like camping and hiking, and more interested in micro-adventures or things they can do on their own. This session explores several ideas of how to add to traditional outdoor experiences to increase interest and participation, and ultimately stewardship.

1:30 PM

A YOUNGER GENERATION’S TAKE ON OUTDOOR RECREATION

Why is it important to engage youth and education in the discussions surrounding outdoor recreation? This is a panel discussion including administrators, teachers, and students who have taught and experienced outdoor recreation in their educational journey. We will discuss the views and perspectives from each of these participants about the importance of Outdoor recreation in their programs and classes. More importantly, we will observe the opinions of the next generation, which will impact outdoor businesses, associations, government organizations, and education. The panel will also discuss their experience with the UCORE grant and the opportunities it has afforded them.

SUSTAIN ROOM: SC 206H

10:30 AM WHO DONE IT Grants Edition

Discover the process of securing outdoor recreation grants in Utah with a "who done it" theme. This presentation uses a murder mystery framework to explore grant applications. Attendees will analyze information to understand the requirements for obtaining funding for outdoor recreation projects. Learn to identify grant opportunities, understand application needs, and develop proposals. By the end, you'll have the skills to navigate outdoor recreation grants and realize your projects.

11:30

AM

BUILDING COMMUNITY THROUGH YOUTH OUTDOOR PROGRAMS

Girl and Her Backpack

Girl & Her Backpack is a Utah-based nonprofit creating transformative outdoor experiences for teen girls ages 11–17. Through events, Adventure Teams, and multi-day backpacking camps, the organization helps participants build confidence, community, and leadership skills. Focused on equity, Girl & Her Backpack provides gear, food, transportation, and scholarships so cost and access are never barriers. In 2025 the group expanded its school-based Adventure Teams to reach charter and Title 1 schools across the state. In this session, founder Ashley Kinney will share lessons from running volunteer-led, equity-driven programs and highlight stories of teens finding strength and belonging in the outdoors—offering practical insights for nonprofits, retailers, and state partners who want to grow youth engagement in their own communities.

SUSTAIN ROOM: SC 206H

1:30 PM

YOUR POLICY CRASH COURSE

You are invited to learn how a bill becomes a law in Utah! Attendees will learn how to be involved in Utah's legislative process from a variety of perspectives and roles. This will primarily focus on the state legislative process, but feel free to come with your questions about how to get involved at the municipal, county, or federal level.

WORKSHOP: SC 208

10:30 AM AND 11:30 AM

CONFLICT COMPETENCE MINI-TRAINING

If you work on outdoor recreation planning and management, you will have to navigate situations in which people don't see eye to eye and have different needs. In other words, you will have to navigate conflict. This mini-training will provide a basic framework and skills for how to productively navigate conflict in your personal and professional life. It will also show how dealing with conflict productively can help you “build bridges” and get better outcomes for yourself, your organization, and your community.

1:30 PM

PADDLE TOGETHER

How to Build Inter-Agency Collaboration

One of the priorities of the Utah Lake Authority is to promote recreation on the lake. However, this involves a multitude of partners, including various cities, Utah County, DWR, State Parks, DWQ, CUWCD, JSRIP, private landowners and more. How do we ensure everyone is working together to do what is best for the lake?

THANK YOU SPONSORS!

DINNER SPONSORS

H OS T VENUE

PLATINUM SPONSORS

BRONZE SPONSORS

EXHIBIT OR SP

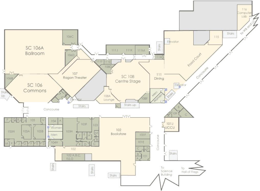
Key:

Bathrooms

Stairs / Elevators

Ballroom

SORENSEN CENTER

FIRST FLOOR

Key:

Bathrooms

Stairs / Elevators

Breakout Rooms

SORENSEN CENTER

SECOND FLOOR

UTAH DIVISION OF OUTDOOR RECREATION

Jason Curry is the Director of the Division of Outdoor Recreation. In this role, he leads the administration of all outdoor recreation grant programs in the state. The division has a contingent of sworn law enforcement State Rangers and is also responsible for the management of the state's OHV and Boating programs. The Division is also responsible for supporting the outdoor industry businesses and partners to ensure a healthy outdoor recreation economy. Jason graduated from the University of Utah with a degree in Economics. He has worked in Natural Resources for 24 years, including leadership roles in land management, law enforcement, wildfire, and public relations. He previously served as Vice Commander and Training Officer for the Davis County Sheriff’s Search and Rescue Team, and worked many years on Incident Management Teams throughout the US. Prior to his position at DOR, he served as the Deputy Director of the Division of Forestry, Fire & State Lands. Jason is a lifelong outdoor recreation zealot and is an experienced mountain biker, snowmobiler, OHV rider, backcountry & alpine skier, climber, sailor, and backpacker.

EVAN BEITSCH

FEDERAL GRANTS COORDINATOR

UTAH DIVISION OF OUTDOOR RECREATION

Evan Beitsch is the Federal Grants Coordinator at the Utah Division of Outdoor Recreation and currently oversees the Recreational Trails Program and the Land and Water Conservation Fund. Evan is passionate about anything and everything outdoors and loves exploring the diverse landscapes of Utah with his wife and dog. When he’s not out adventuring, Evan is partnering up with communities and stakeholders throughout the state to enhance outdoor recreation through collaborative, sust–ainable, and community-focussed grant projects.

AARON BURGESS

Born and raised here in the Salt Lake Valley, graduating high school in 1997 and leaving for the US Army also in 1997. Serving 8 years in the Army as a 12B, then changing over to the US Air Force as Security Forces, serving 17 years until retiring in 2023.

My time with Warrior Revival has been such a blessing, allowing me to participate in outdoor activities as well as volunteer helping other veterans. Being able to get outdoors to enjoy the beauty of nature and build new relationships with fellow veterans is truly lifesaving.

VETERAN | WARRIOR REVIVAL

TIMOTHY BEST

EDUCATOR | DIRECTOR, DAVIS SCHOOL DISTRICT

Dr. Timothy Best joined the Davis School District in 1998, following six years of teaching and coaching in the Granite School District. Tim has been an educator for 33 years. Currently, the Healthy Lifestyles Director for Davis School District, Tim oversees the secondary schools’ athletic programs, driver education, K-12 Health, K-12 Physical Education, Unified Sports, and Title IX compliance inathletics.

Dr. Best was named the Utah Teacher of the Year in 2004. He received the Certificate of Excellence from the Governor of Utah for his work in the field of Equity and Inclusion. Tim has presented at over 200 conferences nationwide. In 2017, he piloted the Healthy Body, Healthy Minds program, which received national recognition. Schools reduced their instructional time by 10% and replaced that with movement. Their end-of-level test scores significantly outperformed those of the control schools. Outside of work, he enjoys spending time with his wife, three children, and two grandchildren. You may have seen Tim on the basketball court officiating high school, college, and WNBA games. Tim is a member of the Chippewa tribe.

LUKE BODENSTEINER

CHIEF OF SPORT DEVELOPMENT

UTAH OLYMPIC LEGACY

Luke Bodensteiner is the Chief of Sport Development for Utah Olympic Legacy, and GM of the Olympic and Paralympic venue Soldier Hollow.

Formerly an executive of U.S. Ski & Snowboard as Chief of Sport, Luke led the U.S. Ski & Snowboard Teams, the national training and education Center of Excellence in Park City, Utah, its sport science and medical programs, coach education and club development, athlete identification and development, athlete career and education programming, and club-level competition and ranking systems. Luke led three U.S. Olympic ski and snowboard teams (2010, 2014 and 2018), overseeing athletes who won a record 53 Olympic medals.

Prior to joining U.S. Ski & Snowboard, Luke was a cross country racer for the U.S. Ski Team, competing in the Olympics in 1992 and 1994. He is the author of “Endless Winter” chronicling his experiences in the lead-up to, and during the 1994 Games. Luke was a two-time NCAA champion at the University of Utah and is a Crimson Club Hall of Fame member. In addition to his degree from the University of Utah, he holds an executive certificate in Olympic sport management from the Kellogg School of Business.

Luke has also been involved with Olympic-related board governance as a member of the Board of Trustees of the Salt Lake Organizing Committee for the 2002 Olympic Games, a founder and President of the Soldier Hollow Legacy Foundation, delegate to the International Ski Federation, and Chairman of the USOC’s strategic working group for athlete career and education, which designed and launched the USOPC’s current efforts to assist Olympic athletes with education and professional career development.

RYAN BROMBEREK

EXPERIENTIAL EDUCATION MANAGER

UVU OUTDOOR ADVENTURE CENTER

Ryan Bromberek is the Experiential Education Manager at Utah Valley University’s Outdoor Adventure Center, where he oversees program development and Adventure Trip Leader training. He holds degrees in Recreation, Park and Tourism Administration with an emphasis in Adventure Education and Outdoor Recreation from Western Illinois University, where he also served as a graduate assistant and co-instructor for the 40th anniversary of the ECOEE program. Ryan’s background includes working in SCUBA-based adaptive programs and outdoor behavioral healthcare, where he helped achieve the first accreditation for a community-based adventure therapy program. He is passionate about inclusive, experiential learning and developing accessible outdoor programming for all.

JESSA BRIGGS

AMERICORPS VISTA GET HEALTHY UTAH

Jessa graduated from Idaho State University with one H.B.A. in History and two B.A.s in English and Global Studies. She has spent the following years in the nonprofit sector, advocating for better quality of life for her community.

Jessa is serving her second AmeriCorps VISTA year with Get Healthy Utah. The AmeriCorps VISTA program, which was established in 1965 as part of the War on Poverty, strives to create or expand programs that empower individuals and communities in overcoming poverty. VISTA members serve in areas such as education, public health, climate, and access to benefits, helping local organizations make sustainable change.

ASHLEY BROWN

EVERY KID OUTDOORS PROGRAM SPECIALIST

UTAH DIVISION OF OUTDOOR RECREATION

Ashley Brown works for the Utah Division of Outdoor Recreation and is the Every Kid Outdoors Program Specialist. Empowering people to enjoy time in nature is central to all of her work endeavors, which, in addition to the EKO program, include writing Urban Trails: Salt Lake City (published by Mountaineers Books), hosts a weekly segment on KRCL’s RadioACTive called “Take A Hike,” and writes for various publications as a freelance journalist.

She is a Utah native from Pleasant Grove who spent her childhood playing in the foothills of Mount Timpanogos. Access to the wilderness from a young age shaped her life around natural exploration. Her love of nature and the call to stewardship influence every facet of her occupations and vocations. It is in the quiet of wild places where she finds wholeness.

A deep connection and appreciation for Utah’s geography inspired her to write Urban Trails: Salt Lake City. She also has a background of working with children as a Montessori teacher, a place-based learning guide at Wasatch Mountain Institute, and a family consultant. These skills come together in her role as the Every Kid Outdoors Program Specialist, where she works with a stellar team to achieve the inspirational mission of facilitating opportunities for all of Utah’s youth to connect with nature.

An appreciation for music and arts supplements her time in wild places. Creating plant-based meals, especially with produce from the backyard garden, is one of her favorite pastimes. When she is not playing outside, interviewing a community rockstar, or whipping up a vegan feast, she might be soaking in a novel, playing chess over a bottle of wine, or on the dance floor jiving to live music.

ERICK BURGOS

VETERAN | BOARD MEMBER, WARRIOR REVIVAL

Erick Burgos, M.B.A., M.S. in Outdoor Recreation, is a 22-year Navy veteran and a passionate outdoor enthusiast dedicated to helping himself & veterans through the healing power of nature. Since retiring from active duty, Erick has continued to serve the veteran community with passion and purpose. As a Board Member with Warrior Revival, Erick collaborates on developing outdoor programs—such as guided hikes, backpacking trips, and immersive retreats—that foster healing, community, and purpose for veterans. Drawing on his military leadership experience and academic background, he specializes in creating inclusive, adaptive outdoor initiatives that promote mental health, resilience, and connection among those who have served.

TERI DAVIS

EDUCATOR | PHYSICAL EDUCATION SPECIALIST

Teri, an outdoor enthusiast, has dedicated over 24 years to teaching Physical Education. Her preferred subjects within PE are fishing and archery. She has experience instructing at all grade levels, including Adapted Physical Education, and currently serves as the Physical Education Specialist for the Utah State Board of Education. Teri's hobbies encompass backpacking, hiking, mountaineering, stained glass, water sports, snow sports, scuba diving, and traveling. Her garage is well-equipped with outdoor gear, similar to an REI store.

KELLY CANNON-O’DAY

COMMUNICATIONS & EVENTS MANAGER

UTAH LAKE AUTHORITY

Before joining the Utah Lake Authority, Kelly worked for 13 years in journalism, the last eight of which were at The Salt Lake Tribune. She was a reporter, web manager, news planner, editor and community engagement manager during that time. Born and raised in Provo, Utah, Kelly earned a Bachelor’s of Science from Utah Valley University in English Literature. She is currently earning a Master’s of Theology and Leadership at Gonzaga University and is expected to graduate in 2026. She and her husband are also the favorite aunt/uncle to 11 nieces and nephews. Kelly’s responsibilities at the Utah Lake Authority include event planning and management, communications, public relations, social media and website management, public information, marketing, community engagement and more. Her favorite spot on Utah Lake is the Provo River Delta.

EXTREME MOTUS

Kenny Jardine is passionate about the outdoors and believes everyone deserves access to nature. As a grant writer and Chief Business Development Officer at Extreme Motus, he helps parks and organizations remove mobility barriers through innovative all-terrain solutions. Kenny specializes in securing alternative funding sources and has helped fund dozens of accessibility projects. He also works closely with partners to develop sustainable programming that ensures lasting impact.

CHASE ELGGREN

STUDENT | UNIVERSITY OF UTAH

Chase Elggren is majoring in psychology at the University of Utah with a minor in political science. His future plans include attending law school at the University of Utah. For the past three years, he has worked at Snowbird, gaining valuable experience that has shaped his love and appreciation for recreation in Utah’s wilderness areas.

REGINA FREY

CHEMISTRY PROFESSOR

UNIVERSITY OF UTAH

Regina Frey is a Professor of Chemistry at the University of Utah. Her work centers on improving student learning and success in STEM, with a particular focus on strategies that make science more accessible and engaging for diverse learners.

LISA MEERTS-BRANDSMA

ASSISTANT PROFESSOR

DEPARTMENT OF PARKS, RECREATION AND TOURISM

Lisa Meerts-Brandsma is an Assistant Professor in the Department of Parks, Recreation, and Tourism at the University of Utah. Drawing on more than a decade of experience in the outdoor industry, her research focuses on how outdoor experiences foster meaningful growth and development for youth.

RYAN GRASSLEY & SAM DURST

ADAPTIVE ADVENTURE ADVOCATES

Ryan and Sam are lifelong friends on a mission to make the outdoors accessible to all.

Ryan, a military veteran and passionate adventurer, has explored the world on motorcycle, hitchhiking and documented his travels on the popular YouTube channel HalfThrottle. Inspired by his global journeys, he now shares that love for exploration with his best friend Sam, using the Extreme Motus all-terrain wheelchair.

Sam, born with cerebral palsy, is a dedicated student, volunteer, and outdoor enthusiast. With the help of adaptive gear and a determined spirit, he’s tackled everything from hiking trails to downhill skiing and scuba diving. As the face of Extreme Motus, Sam inspires others to push past limitations.

Together, Sam and Ryan are breaking barriers—creating content, building community, and proving that adventure is for everyone

Kim Weaver is a PhD student in Chemistry at the University of Utah. With experience as a park ranger at Zion National Park and as a STEM educator, his research explores creative approaches to making STEM concepts approachable in everyday contexts.

KATIE FRY

CLINICAL PSYCHOLOGIST

DEPARTMENT OF VETERANS AFFAIRS

Katie Fry, Ph.D., M.B.A., is a clinical psychologist at the Department of Veterans Affairs and the owner of the Center for Trauma Recovery and Wellness. She has dedicated her career to supporting military personnel and veterans, specializing in trauma recovery and the challenges of reintegration into civilian life. Katie believes that healing after service requires more than clinical treatment—it calls for renewed purpose, connection, and the restorative power of the outdoors. Guided by this belief, she founded Warrior Revival, a 100% volunteer-run nonprofit organization co-created with service members, veterans, and their families. Together, they design meaningful experiences that promote connection, build resilience, and foster a sense of belonging beyond the uniform.

JUSTIN LEE

DEPUTY DIRECTOR

UTAH LEAGUE OF CITIES AND TOWNS

Justin is the Deputy Director for the Utah League of Cities and Towns. Prior to joining the League, Justin spent 11 years working for three different lieutenant governors (Bell, Cox, and Henderson), serving for 4 years as Director of Elections for the State of Utah. During that time Justin once accidentally tackled the Governor during a game of flag football and still kept his job. Justin has a BA in Political Science from the University of Utah, and a MA in Political Science from Utah State University.

MORGAN HADDEN

PROGRAM COORDINATOR GET HEALTHY UTAH

Morgan Hadden, MPH, MBA, is a public health professional with a strong background in community health and cross-sector collaboration. She holds a Master of Public Health from Utah State University and a Master of Business Administration from Western Governors University.

Morgan currently serves as the Program Coordinator at Get Healthy Utah, a nonprofit organization dedicated to creating a culture of health through system-level change. In this role, she leads initiatives to build partnerships across sectors, advocates for policies that support healthy eating and Active living, and supports cities and towns striving to earn the Healthy Utah Community designation. She is passionate about fostering strong, healthy communities and believes lasting impact comes through collaboration and shared effort.

NATALIE RANDALL

Natalie Randall, the managing director of the Utah Office of Tourism and Film, is instrumental in shaping Utah's global and domestic tourism strategy. She has a strong background in both policy and business, having held leadership roles with the Utah Tourism Industry Association and San Juan County's Economic Development and Tourism. Randall has been recognized by Utah Business Magazine as a Business Leader and one of 30 Women to Watch. When she's not working, Natalie loves exploring Utah's outdoors with her family.

UTAH OFFICE OF TOURISM

DANYA RUMORE

DIRECTOR THE WALLACE STEGNER CENTER

Danya Rumore, Ph.D., is the Director of the Wallace Stegner Center Environmental Dispute Resolution (EDR) Program, a Research Professor in the S.J. Quinney College of Law, and a Clinical Associate Professor in the Department of City and Metropolitan Planning at the University of Utah. She is also the Founder and a Co-Director of the Gateway and Natural Amenity Region (GNAR) Initiative. Danya is a facilitator, collaborative process designer, and conflict resolution professional. She has taught thousands of professionals the skills of collaboration, negotiation, conflict resolution, facilitation, and effective communication. Danya holds a doctorate in Environmental Policy and Planning from the Massachusetts Institute of Technology. She was the 2018 recipient of the Rob Williams Award for Emerging Environment and Public Policy Leaders and the 2025 recipient of the Utah Council on Conflict Resolution Peacekeeper Award.

JOHN-LUKE SHROEDER

STUDENT | UNIVERSITY OF UTAH

John-Luke Shroeder is a psychology major expecting to graduate in the spring of 2026 from the University of Utah with minors in Business and Human Development and Family Studies. He is looking to attend graduate school after completing his undergrad and am hoping to be a therapist in the future. He has extensive experience with outdoor recreation including things like skiing, camping, and backpacking.

CRYSTAL SHOCKLEY

EDUCATOR | ADVISOR, GET OUTSIDE CLUB

Crystal Shockley is a high school educator passionate about introducing students to the outdoors through movement and adventure. She was honored as Teacher of the Year by SHAPE for her innovative approach to teaching Individual Lifetime Activities, with a special focus on outdoor recreation. Crystal’s love for hiking, biking, climbing, skiing, backpacking, and exploring fuels her mission to inspire the next generation to embrace outdoor opportunities. She also serves as an advisor for her school’s Get Outside Club and mountain bike team, where she helps students discover new ways to connect with nature, build confidence, and develop lifelong healthy habits.

PITT GREWE

HEAD OF SOCIAL AND ENVIRONMENTAL IMPACT ALLTRAILS

Pitt has been working in the outdoor industry for 20 years. From resort operations to public service, he has always focused on helping people get outside and find a connection with our public lands. In this role, he drives the strategy behind AllTrails' mission to help protect trails, protect the planet, and ensure safety for everyone outdoors. Before joining AllTrails, Pitt served as the Director of the Division of Outdoor Recreation in the state of Utah. He loves working with the many outdoor recreation stakeholders to increase funding, harbor collaboration and educate communities on the benefits of getting outside. He is always up for an adventure on a trail, a river, a cliff face, or in the snow.

LJ WILDE

FOUNDER HUCKLEBERRY HIKING

LJ Wilde is the founder of Huckleberry Hiking, a Cache Valley company dedicated to breaking mobility barriers and helping families make memories in the mountains. What began as a project to help his daughter Luci—who uses a wheelchair—has quickly grown into a product now used by families in all 50 states and 25 countries.

A father of six and lifelong outdoor enthusiast, LJ brings both heart and expertise to his work. He earned bachelor’s and master’s degrees in mechanical engineering from Utah State University and built his career at Inovar and Juniper Systems, where he honed skills in product design, manufacturing, and innovation.

In 2019, LJ engineered a rugged, trail-capable hiking cart so his family wouldn’t have to leave Luci behind or give up exploring the outdoors. By 2023, he left full-time employment to finish development and share this innovation with other families.

LJ is committed to family values, stewardship of the outdoors, and building an inclusive community where adaptive equipment, programs, and infrastructure open trails to everyone.

DOUG OWENS

REPRESENTATIVE DISTRICT 33

FOUNDER | UTAH OUTDOOR PARTNERS

Doug Owens was born and raised in Salt Lake City and graduated from the University of Utah and Yale Law School. Doug practiced law for over 30 years and is serving his third term in the legislature, where he has focused on preserving the Great Salt Lake, clean air, and public land issues.

Doug is the founder of Utah Outdoor Partners, a non-profit organization launched to raise awareness of the value of Utah's outdoors and promote the creation of parks, trails, and other recreation infrastructure to keep pace with population growth. These initiatives aim to value conservation and outdoor recreation as central to the state’s long-term prosperity.

DAVID SHALLENBERGER

REPRESENTATIVE DISTRICT 58

David Shallenberger grew up in Utah Valley and graduated from Orem High School before earning a degree in Mechanical Engineering from Brigham Young University and a law degree from Willamette University. Throughout his career, he has worked with both major utility companies and small communities to design and implement large-scale energy and water conservation projects.

Elected to represent District 58, David began his legislative service earlier this year. Outside of his work, he’s an avid paraglider, hiker, mountain biker, and skier who brings an engineer’s mindset and a deep appreciation for Utah’s outdoors to everything he does.

MO REEDER

VICE PRESIDENT OF STRATEGIC PARTNERSHIPS

NEUMONT COLLEGE OF COMPUTER SCIENCE

Mo Reeder is the Vice President of Strategic Partnerships at Neumont University, where he builds bridges between industry, students, and community through corporate relations, enterprise projects, military initiatives, and the university’s Industry Advisory Board. He also serves on the Board of Governors at 47G and as Chapter Chair of Silicon Slopes SLC and Co-Chair of its Military Chapter, helping strengthen Utah’s tech and veteran ecosystem.

Beyond his work in education and tech, Mo co-founded Sleeping Lessons Records, an indie cassette label for ambient and experimental sound. Under the name Mauricio, he DJs entirely on cassette and produces creative projects ranging from the Shrine Series to Culture Club at Edison House. Whether in partnerships or art, Mo brings the same energy: connecting people, sparking ideas, and building community.

INDIA NIELSEN

DEPUTY DIRECTOR OF OPERATIONS

UTAH DIVISION OF OUTDOOR RECREATION

India Nielsen is a native Utahn and proud Weber State Wildcat. She joined the Office (now Division) of Outdoor Recreation shortly after finishing her Master of Public Administration degree with a parks and recreation focus. She served in the State Elections Office under Lt. Governor Cox for four years and loves obstacle course racing, backpacking, the Jordan River, and her rescue cat.

TARA MCKEE

DEPUTY DIRECTOR OF GRANTS AND OUTDOOR INDUSTRY RELATIONS

UTAH DIVISION OF OUTDOOR RECREATION

Tara is deeply committed to ensuring outdoor recreation is accessible to every Utahn. Her involvement at the state level began with the 2012 writing of Utah’s Outdoor Recreation Vision and the establishment of the Office of Outdoor Recreation in 2013.

She has since played a key role in numerous initiatives, including the Utah Outdoor Recreation Summit, the Utah Outdoor Recreation Grant, the Utah Trails Forum, and its annual conference. A dream project, the Mountain West Trails Conference, launched in May 2024 with over 500 attendees. Crucially, Tara continues to work with the state’s outdoor product industry as they navigate uncertain economic winds, helping them find opportunities through state or federal grants. She has also hosted small outdoor product companies at trade shows to provide direct support.

In 2025, she and her team launched Utah’s Every Kid Outdoors Adventure Challenge, a program created in late 2024 and expanded in 2025 to meet today’s needs, helping children ages 5-17 leave their screens behind and spend more time in nature, engaging in outdoor recreation.

In 2022, the Office of Outdoor Recreation transitioned to the Department of Natural Resources and has since grown to over 40 full-time employees. As deputy director, she now leads the division’s grants and youth engagement team, overseeing more than $50 million in funding for community recreation infrastructure and youth programs statewide. Tara holds a Bachelor of Science in Geography with an emphasis in Travel and Tourism from Brigham Young University.

NATE QUIGLEY

FOUNDER AND CEO CHATBOOKS

Nate and Vanessa Quigley are co-founders of Chatbooks, a subscription-based photo book company based in Lehi, Utah. Since its launch in 2014, Chatbooks has helped millions of customers create easy and affordable photo books through its mobile and web apps. The company’s mission is to connect and strengthen families, and it is now expanding its offerings into a comprehensive Family Memory System that includes both printed products and digital experiences.

Before co-founding Chatbooks, where he now serves as CEO, Nate was Chief Executive Officer of LiveTV, LLC, an in-flight entertainment and communications company. He previously co-founded and served as President of Eleven Technology, a mobile enterprise software company focused on the consumer goods industry. Nate began his career as a management consultant at McKinsey & Company after earning a B.S. in Accounting from Brigham Young University. Nate also earned an M.B.A. from Harvard Business School.

After years away from the West, Nate and Vanessa returned to Utah—where they met during their undergraduate years—to start Chatbooks. Drawn back by the mountains and the wide range of outdoor recreation opportunities they love, they are passionate about fostering a company culture that values creativity, accomplishment, family, and work-life integration. As a result, Chatbooks has received numerous workplace awards, including

Fortune’s #1 Best Workplace for Women (Small and Medium Business category, 2021) and Top Workplaces’ #1 Technology Company (150–500 employee category, 2023). In 2017, Nate and Vanessa each received Ernst & Young’s Entrepreneur of the Year award for the Mountain West Region.

MEGAN ZOLLINGER

RECREATION DIRECTOR

PLEASANT GROVE CITY

Megan Zollinger is a dedicated recreation professional based in Utah, currently serving as the Recreation Director for Pleasant Grove City. With a background in recreation and an MBA from Utah State University, Megan has built a dynamic career in both nonprofit and municipal recreation. She began her journey at the Idaho Falls YMCA and later worked for Salt Lake County Parks & Recreation, where she gained valuable experience in program coordination, budgeting, and community engagement. Known for her strong leadership, attention to detail, and passion for creating meaningful experiences, Megan is committed to fostering a sense of community through innovative and inclusive recreational programs. Most recently, she has led efforts in the adaptive recreation realm, connecting cities across Utah County to form a coalition focused on serving children with disabilities. Thanks to her passion and leadership, the Pleasant Grove Recreation Center has introduced adaptive fitness classes, adaptive personal training, and inclusive social opportunities in the past year—creating a more welcoming and supportive environment for all.

https://utconcierge.qualtrics.com/jfe/form/SV_5itzBNsJMNc6XI2

Turn static files into dynamic content formats.

Create a flipbook
Issuu converts static files into: digital portfolios, online yearbooks, online catalogs, digital photo albums and more. Sign up and create your flipbook.