DWD E-portfolio

Page 1

D E T A I L E D D R A W I N G I D S 6 0 8 0 4 JAZWA SHAFEE IBRAHIM 0347265

Assignment 2 Assignment 1

T A B L E O F C O N T E N T S

Assignment 3 01 23 35

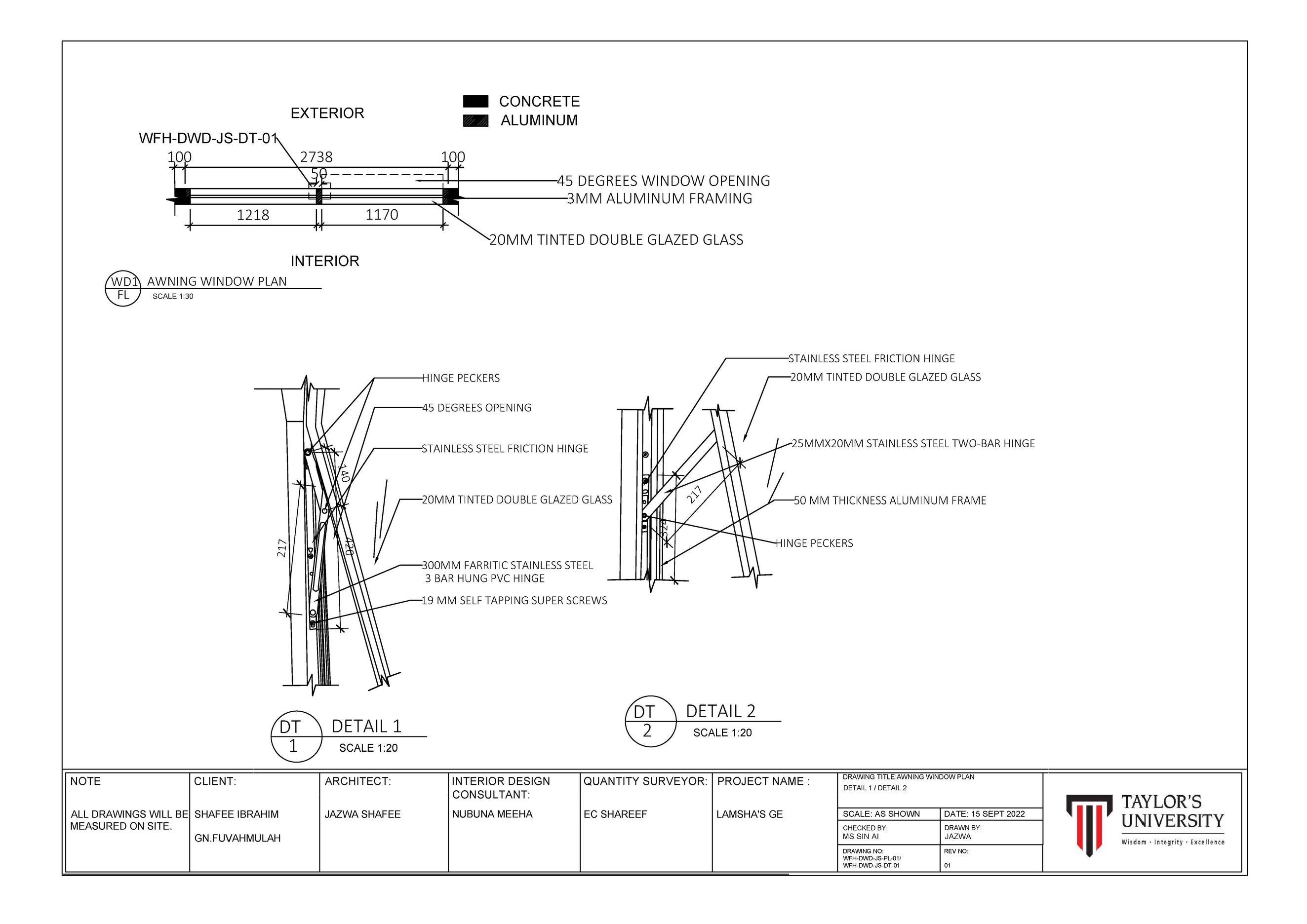
A S S I G N M E N T 3

R E F L E C T I O N

The Malaysian government created the UBBL-Uniform Building By Law, which is a street drainage and building act law. It specifies the structural requirements of the building in terms of design and material specifications.

This design makes use of natural materials like wood and steel. Some materials were used to cover certain other costs, such as marble flooring costs, in order to reduce costs. Many sustainable materials were used in this design to reduce the overall carbon footprint of the construction process.

Because it was the final assignment, it was extremely difficult. Despite these difficulties, I have learned a great deal throughout this process. The final assignment included all of the drawings we learned because this module covered all of the elements of detailed drawings.

This assignment was very challenging since it was the final assignment. Even with these challenges, I have learned a lot throughout this process. Because this module covered all of the elements of detailed drawings, the final assignment included all of the drawings we learned. It was both enjoyable and stressful to complete this assignment.

A S S I G N M E N T 2

A S S I G N M E N T 1

R E F L E C T I O N

Despite the fact that CAD was a familiar software to me, I still had a lot to learn. This assignment ignited the process. It was a little difficult at first. I struggled with it, but with the help of the lecturer, I completed the assignment. In comparison to the other two assignments we completed, this one was satisfactory.

Turn static files into dynamic content formats.

Create a flipbook
Issuu converts static files into: digital portfolios, online yearbooks, online catalogs, digital photo albums and more. Sign up and create your flipbook.