Skip to main content

NQU-Archi 5th Grade Ruei,Jyue Li Architecture Portfolio

Page 1

李睿爵 Ruei-Jyue Li 金門大學建築學系五年級

+886987616613

jaylee90222@gmail.com

身為建築設計工作者,在學習的路上必定

要時常關注社會,體貼人心,並在一件件

設計項目中善盡社會責任。過往的四年以 來深知生活在偏遠地區的不便,為更了解 社會現況,在三年級時成為本校的學生會 會長,改善學生在校園的學習環境與空間。

在課業上,本人也不斷挑戰自我,自二年 級以來投身於大小各類設計競賽當中,檢 視自身能力的同時也將金門文化展現於亞 洲地區,以及於四年級時遠赴中國瀋陽之 遼寧省設計院實習,透過實操項目使我更

了解建築設計項目的競標過程,在建築的 路上不斷耕耘。

軟體&技能

-建築設計與建模

AutoCad

Sketch Up

Rhino

-美術設計與後期

Adobe Photoshop

Adobe Illustrator

Adobe InDesign

Adobe Premeire

-BIM建築資訊模型

Archicad

Revit

-渲染

Lumion

Enscape

D5 render

興趣與愛好

2019「陽光照在國境邊」淨灘活動

企劃總召

2022 「金門大學學生社團評鑑」

學生會 特優獎

2022 「中華傑出青年社團」

金門大學學生會 優等獎

獲獎經歷

2022海峽兩岸高校文化與創意大賽

-海報設計 優等獎

2022海峽兩岸四校聯合評圖競賽

- 佳作

2022集美兩岸大學生攝影競賽

- 三等獎

2022金門大學校頒殊榮 -競賽傑出獎

社會貢獻經歷

2022 「金門縣好人好事代表運動」

大學組 好人好事代表

2021參與「台灣學生聯合會」

春季工作坊-隊輔

2022參與「國際青年文化高峰會」

2020參與「高雄市毒品防治基金會」

領袖訓練營

2023 瀋陽國際花牛藝術工作坊

藝術講師

■ 自我簡介
新星獎 ◆◆◆◆◇ ◆◆◆◆◆ ◆◆◆◇◇ ◆◆◆◆◆ ◆◆◆◆◆ ◆◆◆◆◇ ◆◆◆◆◇
◆◆◆◇◇
2023中國高等院校設計作品大賽 -入圍 2023亞洲青年設計新秀賽 -三等級
◆◆◆◆◆
◆◆◆◆◆ ◆◆◆◆◇ ◆◆◆◆◇
攝影 旅行 古蹟調研 競賽 校內貢獻經歷
2
SAMPLE REELS 2022-2023 作品集‧目錄 02 文化園區建築規劃設計 Cultural Park Archictecture Planning and Design ■ 錦鱗村文化園區暨溪岸公園設計 10-15 01 校園建築規劃設計 Campus Architecture Planning and Design ■ 賢庵小學暨幼稚園設計 04-09 06 其他設計 Other Design ■ 渲染、模型、海報 28-31 05 大學校園整體規畫概念設計 University Campuses Conceptual Planning and Design ■ 吉林藝術學院易地整體規畫概念方案 24-27 03 文化體育中心建築設計 Culture and Sport Center Architecture Design ■ 本溪市文體中心概念方案 16-19 04 工業產業園建築規劃設計 Industrial Park planning and architectural design ■ 保羅集團鏈融產業園方案設計 20-23 07 建築攝影 Architectural Photography ■ 瀋陽故宮、杭州雷峰塔等 32-33 3

"昇"長計畫

2023/03-2023/04

設計組員:李睿爵;曾名楷、劉展佑

設計摘要

本設計旨在討論基於永續校園原則所創造的金門 離島地區小學校園,基地位於金門縣金城鎮。該 學校師生全體人員約400人。本項目採用去中心

化設計,非傳統權威式設計,旨在為金門學齡童 創造更人性化之學習環境,並提供在地建設更多 創意與議題構想。

01
多媒體示意 4
指導教授:張文德 教授
■ 基地周遭分析 ■ 基地便利性分析 ■ 基地受眾分析 ■ 區位動線分析 ■ 基地區位分析 ■ 歷史文脈分析 ■ 人群活動分析 步行動線分析 停車動線分析 貨物運輸動線分析 車輛動線分析 人行便利性分析 景觀優勢分析 噪音分析 車行便利性分析 金門縣 金城鎮 賢庵里 基地 ■ 幼兒空間認知分析 5
■ 植栽生態分析 ■ 單元空間透視
資訊時代空間設計
戶外活動分析
景觀節點示意
小學流線分析 ■ 幼兒園流線分析
6
悠悠步道 沉下式廣場 地景空間

基地面積:15335m 2

建築投影面積:4900m 2

樓地板面積:19500m 2

建蔽率:32%

容積率:125%

綠化率:15% 地下停車場數量:

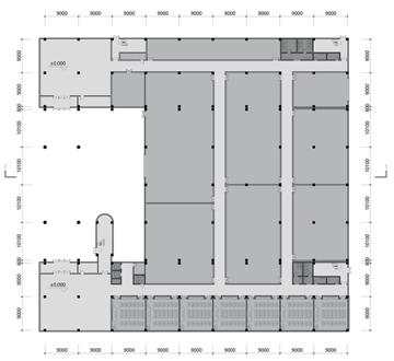
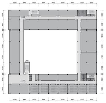
■ 總配置圖 ■ 平面圖 ■ 空間配置邏輯 ■ 地上一層平面 操場層平面 地上二層平面 地下一層停車場平面
汽車45格 1.圖書室 2.演藝廳 3.三年級教室 4.表演教室 5.社會教室 6.四年級教室 a.閱覽區 b.幼兒教室 1.電腦教室 2.會議室 3.溫室 4.體育器材室 1.消防設備間 2.強電設備間 3.弱電設備間
1.校長室 2.教師辦公室 3.哺乳室 4.二年級教室 5.一年級教室 6.音樂教室 7.自然教室 8.桌球教室 9.警衛室 a.多功能集會廳 b.辦公室 c.遊戲空間 d.幼兒教室 1 a b 2 3 2 2 4 1 3 5 4 4 6 3 5 1 1 a c 3 d 7 9 6 8 2 b 4 5 7
4.排汙間 5.下沉廣場
■ 小學配置分析 ■ 幼稚園配置分析 ■ 信息時代互動變遷 ■ 設計行為意象 ■ 校園碎型空間 ■ 形體生長分析 驚喜 陰蔽 眺望 互動 1 3 2 4 5
1.東南向立面 2.東北向立面 3.西北向立面 4.AA'向剖面
8
5.BB'向剖面
校園正入口示意
幼稚園建築示意 下沉式廣場示意 木構雙拋曲線遮棚 9
小學部建築示意
中央廚房建築示意

02 日銜山

山帶寒晶

錦鱗村文化園區暨溪岸生態規劃

2023/04-2023/06

設計組員:李睿爵、何承洋、陳楷勛

指導教授:張旭福 教授

設計摘要

本設計以抽象圖像和拼接圖表達文化傳承的過

去、現在和未來意象。主題包含踏源、入江和尋 夢,分別代表對過去、現在和未來的思考。踏源

是從資訊中了解和探索過去,入江是個人視角觀 察現在和近年事件,尋夢探索未來的變數時空。

遂影結合踏源和入江,啟發觀眾思考未來。

獲 2023亞洲青年新秀獎 三等級 新星獎

多媒體展示 10
■ 基地區位分析 ■ 區位日照分析 ■ 景觀意象分析 ■ 劇院軸測分析 ■ 文化特色分析 ■ 漳州風貌分析 ■ 設計風格參考 11
■ 總配置圖 ■ 地面層空間配置 ■ 劇院夜景意象 ■ 街道夜景意象 ■ 地上一層平面 ■ 人群活動分析 ■ 景觀節點示意 A A' B B' 12

本設計以抽象圖像和拼接圖表 達文化傳承的過去、現在和未 來意象。主題包含踏源、入江 和尋夢,分別代表對過去、現 在和未來的思考。踏源是從資 訊中了解和探索過去,入江是 個人視角觀察現在和近年事 件,尋夢探索未來的變數時空。

遂影結合踏源和入江,文化館 成為尋夢場所,啟發觀眾思考 未來。

加入「好奇」「吸引」「體驗」 「引導」「轉換」等元素創造 有趣的空間。延伸規劃至河岸 和基地二,形成統一的文化空 間。建築設計以疊加、拼接和 斜屋頂展現地標性。

■ 地上二層平面 ■ 地上三層平面 ■ 地上四層平面 ■ 青年旅社軸測分析 ■ 單位空間透視 ■ 文化館軸測分析
13
■ 畫廊空間示意 ■ 中央簷廊示意 ■ 生態公園日景 ■ 文化館入口示意 ■ AA'向剖面圖 ■ BB'向剖面圖 ■ 東南向立面 ■ 東北向立面 14
■ 體育公園夕景 ■ 生態公園公演 ■ 古早味美食街 ■ 夜景鳥瞰示意 ■ 青年旅舍夜景 ■ 古文物展廳 15

03 遼寧省本溪市文體中心 概念方案設計 2022/11-2023/01

設計團隊: 遼寧省建築設計研究院 建築設計研究所

設計主創: 王洋 建築設計研究所所長 方案設計: 孫鐵映、邪無阻、王思源、李睿爵 深化設計:閻一丁、邪無阻

設計摘要

本設計為本溪市唯一一座市級中大型文體中心工

程,位於太子河新城開發區,市級體育運動、文 化藝術、教育培訓等多項公共功能為一體的公共

文化建築,結合地域與文化特徵,以"工人精神" 為核心概念,力求營造一處富有人文情懷、開放

共享的建築場所,並於2023/02/13中標"本溪市 文體中心工程總承包(EPC)項目"。

16

本專案用地位於太子河新城開發區。西側

緊鄰威龍路,南側緊鄰 濱河北路 ,地塊北側長

度約95米,南側長度約71米,西側長度約84

本專案用地位於太子河新城開發 區。西側緊鄰威龍路,南側緊鄰

米,東側長度約122米 , 用地面積12065.38

濱河北路,地塊北側長度約95

平方米。

米,南側長度約71米,西側長度

根據道路條件要求,場地四周退線10米,

穿孔版的紋理表達

地塊可建範圍北側長約76米,南側長約56米,

西側長約71米,東側長約103米,可見範圍內

約84米,東側長度約122米,用 地面積12065.38平方米。

面積為8156.11平方米。

根據道路條件要求,場地四周退

線10米,地塊可建範圍北側長約

地塊呈不規則四邊形,且各邊之間均沒有 較好的相互關係。基地周邊交通便利,配套設 施齊全,地理位置較好。

76米,南側長約56米,西側長

約71米,東側長約103米,可見 範圍內面積為8156.11平方米。

地塊呈不規則四邊形,且各邊之 間均沒有較好的相互關係。基地 周邊交通便利,配套設施齊全, 地理位置較好。

建築控制線內面積 8156.11㎡

鏽蝕鋼板+輕鋼龍骨 逐級退台建築形式

場館尺寸 Venue size 游泳館(休閒健身場地場地): 場地尺寸:長27.4m,寬20m 游泳館最小淨面積:1400㎡左右 LDI. DESIGN 印象·本溪 楓葉之都 中國鋼都 穿孔板的紋理表達 銹蝕鋼板+輕鋼龍骨
設計構思 Design conception 東北山城 本溪市工人文化宮概念方案設計 平山區 明山區 溪湖區 南芬區 本溪滿族自治縣 SITE 本溪市 關門山國家森林公園 觀音閣水庫風景區 本溪水洞 平頂山森林公園 區位分析 Location analysis 本溪市工人文化宮概念方案設計 區位周邊 Location arounds 明山區政府 Mingshan District Government 佳兆業 Kaisa 本溪市三十二中學 Benxi 32 Middle School 威寧站 Weining station 本溪市交警隊車輛管理所 Benxi Traffic Police Vehicle Management Office 本溪市三十四中學 Benxi 34 Middle School 牛心台站 Beef heart stations 牛心台中心小學 Niuxintai Central Primary School 中心醫院 Center hospital 威寧學校 Weining school 基地 本溪市工人文化宮概念方案設計 用地面積 12065.38㎡
逐級退台的建築形式
場館尺寸 網球場(訓練場地): 場地尺寸:長23.77m,寬10.97m 緩衝區尺寸:邊線外4.03m 短線外7.12m 網球場最小淨面積:1300㎡左右 籃球場(訓練場地): 場地尺寸:長28m,寬15m 緩衝區尺寸:不小於2m 籃球場最小淨面積:1150㎡左右 本溪市工人文化宮概念方案設計 場館尺寸 Venue size 羽毛球(訓練場地): 場地尺寸:長13.4m,寬6.1m 緩衝區尺寸:不小於2m 羽毛球場最小淨面積:1400㎡左右 乒乓球場(訓練場地): 場地尺寸:長2.74m,寬1.525m 緩衝區尺寸:長邊4.63m 短邊2.238m 乒乓球場最小淨面積:900㎡左右 本溪市工人文化宮概念方案設計 ■ 基地區位分析 ■ 基地區位分析 ■ 道路分析 ■ 運動場地分析 ■ 地理分析
17

本溪市工人文化宮概念方案設計

建築立面突顯耐候鋼板、玻璃、

的歷史、現在和未來。

依據基地形狀生成建築基本體量。 對體量進行削減,形成內部庭院。

沿街一側建築形成逐級退台,打造多層 次的內外部空間形態。

對建築進一步進行削減與增補,強調入 口等重要空間,增強形體多樣性

在建築外側包裹穿孔板,通過孔隙疏密實現紋 理變化

內部牆體採用銹蝕鋼板,同時對建築細節進 一步完善,建築方案基本形成

 運動場館

運動場館 瑜伽、健身 工會活動

浮雕、雕塑、精神堡壘表達本溪 職工不忘初心、銳意進取、開創 未來的精神。建築端部設置寬大 的觀景視窗,為使用者提供開闊 視野和室外延展空間,並成為城 市展示之視窗

本溪市工人文化宮概念方案設計

總平面圖 用地紅線 威 寧 大 街 產 業 大 道 主 入 口 次 入 口 網球場 羽毛球場 乒乓球場 籃球場 健身瑜伽 工會辦公 庭院 2F 2F 2F 建築入口 建築入口 停車場 技術經濟指標 項目 數量 單位 備註 規劃建設總用地面積 21873.08 ㎡ 32.25畝 總建築面積 10400 ㎡ 地上建築面積 10400 ㎡ 機動車停車位 100 輛 建築基底面積 4909 ㎡ 建築密度 47.2 % 綠地率 31 % 容積率 0.48
形體生成 Body generation
功能分析 Functional analysis
圖例
包括籃球館、網球館、 羽毛球館、乒乓球館、羽毛球館 共計8980平方米  健身場所 包括瑜伽館、健身房 共計800平方米  職工活動中心 包括培訓室 指導室 諮詢室、小劇場等 共計620平方米 本溪市工人文化宮概念方案設計 ■ 空間配置分析 ■ 形體生長分析 ■ 地上二層平面 ■ 5.4m夾層平面 ■ 地下一層平面 ■ 地上一層平面
拉毛石材的質感,以此對應本溪
18
功能分析 Functional analysis -1F 1F 1F夾層 2F 2F夾層 職工活動區 乒乓球館 羽毛球館 康復理療 健身 瑜伽 籃球館 游泳館 網球館 商業 商業 停車場 設備用房 本溪市工人文化宮概念方案設計 ■ 日照街景示意 ■ 日照鳥瞰示意 ■ 入口正門示意 ■ 室內游泳池示意 ■ 街景立面示意 ■ 各層空間配置分析 19

04

保羅集團鏈融產業園 規劃建築方案設計

2022/09-2022/10

設計團隊: 遼寧省建築設計研究院 建築設計研究所

設計主創: 王洋 建築設計研究所所長

方案設計: 王振宇、王思源、李睿爵

設計摘要 本項目設計於遼寧瀋陽瀋撫新區,用地面積為21 公頃,為二類工業用地。其中業主多為醫療健康 產業背景,故此設計旨在提供該地區構建健康產 業集群,打造全新人性化園區,以組團為設計單 元,一期用地主要為整園區之形象展示,用作呈 現產品及商家門面。

20
多媒體展示

該地塊位於沈撫改革創新示範區汪家南單 元內,用地面積為21.59萬㎡、用地性質 為二類工業用地。

東側金橙街退讓綠地68m,南側金帆路 退讓綠地30m,西側金橙西一街退讓綠地 32m,北側同城四路退讓綠地5m。四個方 向建築退線均為10m。

地塊容積率控制指標為 ≥ 1 , 建築密 度 ≥ 35.0%,綠地率 ≥ 7.5%且 ≤ 20.0%。建 築高度不大於30m。行政辦公及生活服務 設施用地 ≤ 7.0%,行政辦公及生活服務設 施計容面積 ≤ 15.0。

土地價值

城市介面

工業用地四周臨街,有較好的交

通便利性,故本專案地塊的土地 價值由用地四周向內逐漸降低。

工業用地四周臨街,有較好的城市 展示面,故本項目地塊的城市展示 性由用地四周向內逐漸降低。

工业用地四周临街,有较好的交通便利性,故本项目地块的土地 价值由用地四周向内逐渐降低。 工业用地四周临街,有较好的城市展示面,故本项目地块的城市 展示性由用地四周向内逐渐降低。

場地東側為市政綠地不可開口,場地 西、北、南側緊鄰城市道路車行交通 便利,適宜佈置場地車行主次入口。

A h u n ng S h m D s gn o h n nd

基地規劃結構

一軸:

一轴:

一個空間主軸 貫穿南北,控 制整個地塊的 空間結構

个空间主轴贯穿南北, 控制整个地块的空间结构 两带: 两条绿带贯穿东西,合理 的控制地块的尺度 多节点: 在空间轴和绿带的交点, 重点打造多个景观节点, 由此提升整个园区的品质。

兩帶: 兩條綠帶貫穿 東西,合理的 控制地塊的尺 度

多節點: 在空間軸和綠 帶的交點,重 點打造多個景 觀節點,由此 提升整個園區 的品質。

21

同城四路(规划道路) 金帆路 金橙街 金橙西 一 街(规划道路) 视点-A 视点-B 视点-C 视点-D 382.00m 384.02m 545 48 m 584 72 m 金帆路(规划道路) 三环东街8号路(规划道路) 基地SITE 21.59公顷 同城四路(规划道路) 金帆路 金帆路(规划道路) A B C D 金橙街(规划道路) 该地块位于沈抚改革创新示范区汪家南单元内, 用地面积为21.59万㎡、用地性质为二类工业用地。 东 侧 金 橙 街 退 让 绿 地 6 8 m , 南 侧 金 帆 路 退 让 绿 地 3 0 m , 西 侧 金 橙 西 一 街 退 让 绿 地 3 2 m , 北 侧 同 城 四路退让绿地5m。四个方向建筑退线均为10m。 地 块 容 积 率 控 制 指 标 为 ≥ 1 . 0 , 建 筑 密 度 ≥ 3 5 . 0 % , 绿 地 率 ≥ 7 . 5 % 且 ≤ 2 0 . 0 % 。 建 筑 高 度 不 大于30m。行政办公及生活服务设施用地≤7.0%, 行政办公及生活服务设施计容面积≤15.0。 现有农田 现有农田 现有农田 现有农田 现有农田 现有农田 现有农田 防护绿地 用地红线 建筑控制线 ANALYSIS Architectura P ann ng Scheme Des gn of Chain ndustr al Park 土地价值VALUE 城市界面 NTERFACE
同 城 四 路 金 帆 路 金 橙 西 街 金 橙 街 同 城 四 路 金 帆 路 金 橙 西 街 金 橙 街 ANALYSIS 场地价值评估 Va ue e a a on 链融产业园建筑规划方案设计 A h e u a P ann g S heme D s o Cha n ndu a Pa k 人行便利性PEOPLE ACCESS 车行便利性AUTO ACCESS 场 地 东 侧 为 市 政 绿 地 不 可 开 口 , 场 地 西 北 、 南 侧 紧 邻 城 市 道 路车行交通便利,适宜布置场地车行主次入口。 场地东侧为市政绿地不可开口,场地西、北、南侧紧邻城市道路, 人行交通便利。 同 城 四 路 金 帆 路 金 橙 西 街 金 橙 街 同 城 四 路 金 帆 路 金 橙 西 街 金 橙 街 ANALYS S 规划结构 P a n g c e 链融产业园建筑规划方案设计
田地 田地 田地 田地 田地 核心主轴 景观绿轴 景观绿轴
P
本溪市 沈阳市 S T 沈抚新区 浑南区 新民市 京哈高速 新鲁高速 抚顺市 铁岭市 辽阳市 30KM 50KM 100KM 沈康高速 京哈高速 沈吉高速 丹阜高速 沈海高速 辽中环线高速 辽中环线高速 三环路 沈抚大道 四环路 ANALYS S 项目区位 P o e c n 链融产业园建筑规划方案设计 A h u a n ng h m De n C a n d s a P k 1km 3km 7km 浑河 浑南东路 南 环 线 四 环 路 民家站 M n Ra wa S a on 深井子站 Sh n ng Ra w y S a on 浑南中路 金 橙 街 沈抚新区城际铁路 沈抚新区城际铁路 ANALYS S 区域交通 R g n 链融产业园建筑规划方案设计 c c a P n n c eme D g o Ch n u a
■ 基地區位分析 ■ 基地周遭分析 ■
車行便利 人行便利
場地東側為市政綠地不可開口, 場地西、北、南側緊鄰城市道路, 人行交通便利。

A h c a P n n S h m D s gn o C a n du a

一期经济技术指标表

链融产业园建筑规划方案设计 c u n g h me D n h du a P

10 23488 ㎡

设备用 房 地上设备用房 - 906 ㎡ 地下设备用房 - 628 ㎡

其他 门卫、垃圾房 - 99 ㎡

ANALYS S 技术指标 e h nd a

4 计容面积 - 111187 ㎡

5 容积率 - 1 23 -

6 建筑密度 - 46 90 %

7 绿地率 - 17.86 %

8 停车位 ≥214 辆

期厂房面积指标表

序号 名称 栋数 厂房建筑面积 办公建筑面积 计容面积 建筑面积合计

用地性质:M2 二类工业用地 用地面积:90043㎡ 总建筑面积:71493㎡ 容积率:1 23 建筑密度:46 90% 绿地率:17 86% 建筑高度≤13 05m

d 链融产业园建筑规划方案设计 A h e u a P nn n S hem De gn o Cha n n us P k
同城四路(规划道路) 金橙街 金橙西 一 街(规划道路) 三环东街8号路(规划道路) 一期用地范围 90043㎡ 同城四路(规划道路) 金帆路 金帆路(规划道路) 金橙街(规划道路) 现有农田 现有农田 现有农田 现有农田 现有农田 现有农田 用地红线 建筑控制线 382 00m 384.02m 545 48 m 584 72 m 235 7m 总平面图 Gen a a ou A h c a a n g S h me D s gn Ch n du a P k 链融产业园建筑规划方案设计 A ch ec ura P ann ng Scheme Des gn o Cha n ndus r a Park 房面积指标表 公建筑面积 计容面 - 2439 - 3036 - 4071 4 钢构 标准厂房 2 982 422 2386 644 3454 644 4376 822 5720 - -
ANALYSIS 期用地条件 L nd Co
用地条件
序号 名称 栋数 数值 单位 1 总用地面积 - 215867 ㎡ 2 期用地面积 - 90043 ㎡ 3 总建筑面积 - 71493 ㎡ 其 中 框架标准厂房 20 46372 ㎡ 钢构标准厂房
计容面积合计 1 框架-标准厂房 1600㎡ 6 1626 - 2439 9756 14634 2 框架-标准厂房 2000㎡ 2 2024 - 3036 4048 6072 3 框架-标准厂房 2700㎡ 12 2714 - 4071 32568 48852 4 钢构-标准厂房 1400㎡ 2 982 422 2386 2808 4772 5 钢构-标准厂房 2000㎡ 2 1405 644 3454 4098 6908 6 钢构-标准厂房 2500㎡ 4 1866 644 4376 10040 17504 7 钢构-标准厂房 3200㎡ 2 2449 822 5720 6542 11440 总计 - 30
- 69860 110182 期经济技术指标表 序号 名称 栋数 数值 单位 1 总用地面积 - 215867 ㎡ 2 期用地面积 - 90043 ㎡ 3 总建筑面积 - 71493 ㎡ 其 中 框架标准厂房 20 46372 ㎡ 钢构标准厂房 10 23488 ㎡ 设备用 房 地上设备用房 - 906 ㎡ 地下设备用房 - 628 ㎡ 其他 门卫 垃圾房 - 99 ㎡ 4 计容面积 - 111187 ㎡ 5 容积率 - 1 236 建筑密度 - 46 90 % % 辆 N LY S 结构形式 田 地 地 框架厂房 钢构厂房 N 户型分布 链融产业园建筑规划方案设计 地 地 地 1 0㎡厂房 1 0㎡厂房 1 0㎡厂房 5 ㎡ 厂房 2 0㎡厂房 1 0㎡厂房 1 0㎡厂房 设备间 市政道路 车行道路 车行出入口 田 田 地 A A S 车行分析 链融产业园建筑规划方案设计 红色面砖 深灰色真石漆 浅灰色真石漆 无色透明玻璃 红色面砖 深灰色真石漆 浅灰色真石漆 无色透明玻璃 ANALYSIS 方案 立面材质 a a e m e 链融产业园建筑规划方案设计
n 框架厂房立面材质 n 钢构厂房立面材质 橙色GRC构件 深灰色真石漆 浅灰色真石漆 无色透明玻璃 橙色GRC构件 深灰色真石漆 浅灰色真石漆 无色透明玻璃 ANALYSIS a de m e 链融产业园建筑规划方案设计 A h c a P an n S h m D s gn o C a n du Pa n 框架厂房立面材质 n 钢构厂房立面材质 方案二立面材质 ■ 中央道路示意 ■ 立面材質分析 用地條件 用地性質:M2 二類工業用地 用地面積:90043㎡ 總建築面積:71493㎡ 容積率:1.23 建築密度:46.90% 綠地率:17.86% 建築高度 ≤ 13.05m 22
- -
ANALYS S 模数化控制 Ro d na y 链融产业园建筑规划方案设计 A c c a P nn ng heme De g o ha n ndu a n 立面开窗模数控制原则 3 6M 3 9M 4 5M n 柱网及层高线模数控制原则 3 6M 3 9M 4 5M 0 9M 1 2M 0 6M 4M 1 2M n 钢构厂房正立面图 ANALYS S 标准产品设计 d e n 链融产业园建筑规划方案设计 P n S m C d 产品B 建筑面积2714㎡ 层平面图 ANA YS S 标准产品设计 n 链融产业园建筑规划方案设计 P n S m C u 产品C 建筑面积2714㎡ 层平面图 二层平面图 ■ 日照鳥瞰示意 ■ 日照廠房示意 ■ 廠房結構分析 ■
23
各類廠房平面

05

吉林藝術學院易地建設新校區項目 概念性規畫方案設計

2022/11-2023/01

設計團隊: 遼寧省建築設計研究院 建築設計研究所

設計主創: 王洋 建築設計研究所所長 方案設計: 孫鐵映、王思源、王振宇、李睿爵 深化設計:閻一丁、邪無阻

設計摘要

吉林藝術學院於22年11月開始徵集該校易地新 校區開發案的規劃方案,項目位置於吉林長春式 淨月技術產業開發區,占地面積約為42公頃。本

設計基於功能主義將教學、交流、體育等功能以 軸線劃分,並在基地中兩部份地塊以長達600公

尺之空中連廊連接,整體以"無界"為概念核心。

24
■ 吉林藝術學院新校地與舊校址實地考察 ■ 初期規劃手稿 ■ 初期規劃手稿上色 ■ 體育軸線 ■ 上:精模完成 下左:概念模 下右:素模 25

■地上一層平面

■地上二層平面

■地上四層平面

本人於此項目當中主要負責普 通教學樓、劇院、交流中心之 建築設計。

普通教學樓提供非藝術專業課 使用,量體以階梯式切割,中 央設置包圍式小廣場。

大劇院以飛鳥形象作抽象化,

中央劇場可容納約2000名觀

眾, 兩側延伸之建築則為國

際交流中心,附設小型劇場。

■ AA'剖面

■ 基地區位分析 ■ 劇院暨交流中心三層平面 ■
劇院暨交流中心地下一層平面
劇院暨交流中心日照鳥瞰
■地上三層平面 ■地上五層平面
26
■ 夜景鳥瞰示意 ■ 圖書館立面展示 ■ 行政大樓正門 ■ 星光音樂廳示意 ■ 雪景鳥瞰示意 27
06 其他設計 ■ 商業暨辦公高層建築設計 ■ 文化體育中心建築設計 ■ 科技實驗小學校園概念規劃 ■ 私人宅邸建築設計 ■ 工人文化宮概念方案 28
■ 手工建築模型製作 29
兩岸和平主題海報設計 【游洋憶夢】 獲 第12屆海峽兩岸高校文化 創意大賽 -海報設計 優等獎 109級 全校性演唱比賽 【金韻獎】 主題海報及相關周邊設計 109級 全校性趣味競賽活動 【金大戰神武鬥賽】 主題海報及相關美術設計 ■ 海報設計 30

(左)瀋陽國際藝術工作坊 第十四期藝

術講師 主題: 閩南傳統建築之藝術保存價值

(右)金大建築系-世界建築結構展

主題:西班牙都市陽傘、葡萄牙里斯本東 站等項目之結構系統講解

■ 建築演講與分享
31
07 建築攝影 32
33
34

Turn static files into dynamic content formats.

Create a flipbook