

![]()


Denver, CO

Cost of Living in Denver: before rent, a single person in Denver spends $1300/mo
Average Rent: $2,000/850sqft or $2.35/ sqft
Congregate living allows you to cut costs on rent, entertainment, utilities, transportation, and groceries, as well as cuts down on loneliness, builds a community, and fosters friendship.

The cost of housing in the United States is increasingly unaffordable for nearly every age group. Congregate living offers affordable, and often sustainable, housing opportunities for those lucky enough to find them.
It’s unknown how many co-housing communities there are in the United States, but there have been roughly 160 built from the ground up with co-housing in mind, and roughly 1600 that have been built into existing buildings.












Andyrahman Architect, Surabaya, Indonesia
Boarding house that takes on affordability, biophilia, and climatic challenges. It is two stories and houses 13 individuals.
Boarding houses are mostly banned in the United States. This is due to the conjecture that they bring about urban decay, as it is mostly lower income residents that would be seeking these out. It is also due, in part, to the idea of the nuclear family, and wanting single households to be the only occupiers of one dwelling unit.
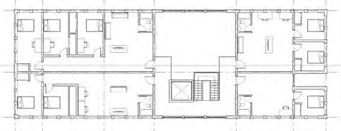
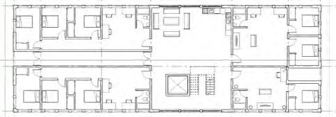
Traditional dormitories, like the one here done by JE Dunn at CU Denver, offer multiple adults to live together under the same roof and share amenities like bathrooms and sometimes even a kitchen, while still separating their sleeping spaces to only be 1-4 persons per room.
Dormitories are not much different from boarding houses, as each resident really only gets their own/a shared bedroom and whatever amenities are available per building, but they aren’t seen as dirty or wrong as they house students of one institution, which is a shared existence.
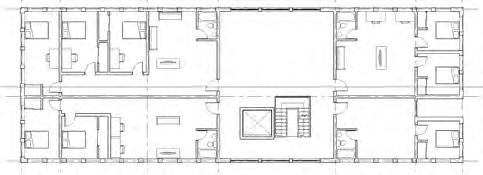
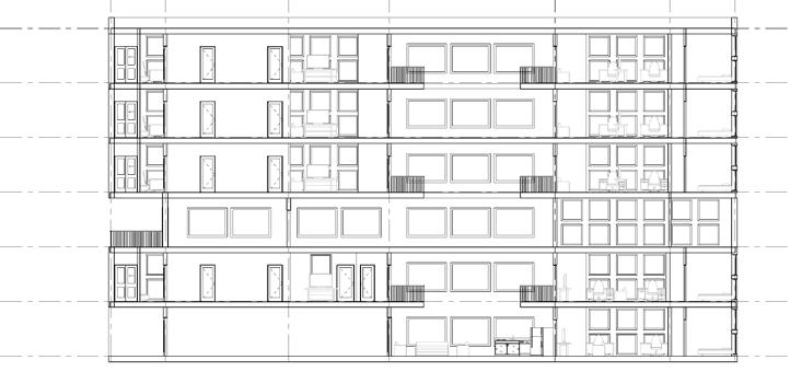
Modern dormitories take a step away from boarding houses. This double double in West Hall at Regis University is a prime example of that. Instead of one big room for two individuals with a bathroom shared by the floor, the bathroom is now shared by two (smaller) two person rooms. Some modern dormitories even feature living rooms or kitchens, making the shared living experience lessen.
These new-age dormitories are more expensive than the traditional kind as they are sought out for more, understandably so, but remove any community feelings.
Fraternities are another example of community living that is normally overlooked. This house in Boulder houses up to forty men in private or shared bedrooms, with communal restrooms and living rooms, and features a full, industrial style kitchen.
What makes fraternities legal is the shared living experience of both attending the same university and being in a brotherhood of sorts, i.e. having a shared experience.




West Palm Beach, FL















Wichita, KS



Zoning: LI (Limited Industrial)
Setbacks:
Front: 20 ft
Side: 0/5 ft
Rear: None
Max Height: 80 ft + 2 ft increase/1 ft add. Setback
2009 Wichita-Sedgwick County Unified Zoning Code (Last updated June 27, 2023)




















One semester, I had made a lot of hard decisions that led me to focus on my dreams rather than what architecture school planned, and threw myself into the furniture design class I’d been taking. My greatest passion throughout my life has been working with wood, with the focus of furniture design being more recent. I had been waiting for a chance in my college career for my schedule to allow woodworking or furniture focused classes and it finally came in fourth year spring. This class gave my life meaning through one of the hardest times in my life, so it was very obvious as to why so much of my time was spent working on the projects and why my designs were so challenging.
The class begins like most introductory woodworking classes: a cutting board. Since I have prior experience and multiple homemade cutting boards, I decided to go with a more challenging shape than my peers, and pay great attention to the edge treatment of the whole thing, which took more time than I’m willing to admit.
The second project is “Minimalist Intersections” and focuses on western wood joining techniques, mostly lap and mortise and tenon joints. My chosen intersection was needle and thread coming in and out of fabric, represented by the ash wood. The cherry base is shaped like a needle, which includes the wood’s imperfections into the design.




Minimalist Intersections project

The final project of this class is entering in a furniture design competition, of which the prompt is “What Music Looks Like”. The class all completed projects with the prompt in mind, though not all of us made tables. The size guidelines set by Thom was a fair 24”x18”x18” which allowed us to not take on a project too large to complete in the seven weeks we were given from design to due date.
The inspiration to my table is the song “26” by the band Paramore which was released in 2017, after the band’s peak popularity and allowed for deeper lyrics. Once I heard this song, I had planned to eventually write a short film inspired by it, but since furniture is what I know and like, this opportunity had to be taken.
The lyrics that most influenced the design are translated most in the one feature that makes this table different from the known image of table: the top bends and becomes an uneven surface. The table itself is broken, but still alive, because its pieces have been put back together, despite appearing differently than before. The more literal translation is the dark walnut is darkness while the spalted maple is light like hope, and each contain fragments of each other inside.








Following the woodworking class, I decided to take a furniture design class that this time focused more on the history of furniture rather than woodworking. Craftsmanship took the back seat in this class while design took the driver’s seat.
The class had three main projects, first was a picture frame to get everyone comfortable working in the shop, for which I chose some walnut I had leftover from the previous semester.
The second was a project focusing on democratic design, and the challenge was to design and build a piece of furniture that would either be done entirely with recycled materials or done with cheap materials anyone could get their hands on. For this project we also had to provide an assembly guide so that anyone could use our designs, therefore it was important to document the amount of material being used and what it would look like taken apart. The chair is what I designed for this prompt, and I used a single 4’ by 4’ sheet of plywood to make a full scaled and half scaled chair (even had some leftover) for my cat and I, inspired by Gerrit Rietveld’s Zig Zag Chair.
The final project was to simply find a need in your life and resolve it with one piece of furniture, so for this I chose to make a plant shelf. I have one south facing window in my apartment that receives the perfect amount of sunlight for most household plants to thrive in and more plants than I can count, so I needed a way of displaying them without taking up my entire dining table. The shelf itself posed many joinery opportunities, and I chose simple yet elegant connections.



While on board the ISS, astronauts like to enjoy the same foods they’d have on earth. Currently, food combinations that involve dry and wet foods have to be packaged separately to keep from compromising the dry foods. While mixing the foods, the crew has to remove them from their packaging and risk taking pieces of them to the eye or losing them due to the micro-gravity. We must find a way to mix these foods, like yogurt and granola, without opening the packaging to the open air.

On the ISS, astronauts eat dry foods from bags that have been vacuum sealed to prevent mold growth. Due to the microgravity, anything that comes out of the bags that doesn’t go directly into their mouths will float around the station and there’s nothing that will keep crumbs contained. Wet foods are thermostabilized. The thermostabilized bags are pliable while the vacuum sealed bags are not. An issue we face while trying to mix is: how immobile the contents of the vacuum sealed bag are.


