portfolio.

OBJECTIVE
Bachelor Of Architectural Engineering 2019-2024.
Graduation Project:
International General Certificate of Secondary Education (IGCSE).
Internship at BIM Lab Architecture and Planning Company
Jordan River Foundation
King Hussein Cancer Foundation
Internship at Bim Lab Architecture and Planning Company
Academic Work - JU
AquaGenia (Hydrogenesis a State of Becoming Through Water)
Coral Air Architecture
Rapid Refugee Urban Planning (Hay Al-Tafaileh)
Internship Work - BIM Lab
Other Work
Villa Nofal
Freehand Sketches
Zarqa River
Water Treatment Plant
Tertiary Treatment
Users of the Project
Pilot
Primary
Secondary
Evaluation Of Water Quality
Implementation Of Innovative Agricultural Techniques
Design Precepts
Morphology
Fibonacci Sequence Grid
The Journey From Treatment to Sustainability
Site Plan
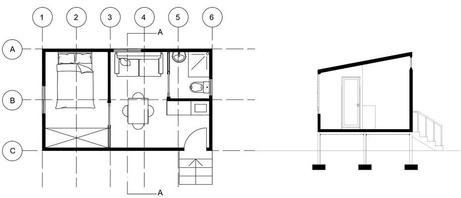
Floor Plan
South Western Elevation
3D Section
Circulation Diagram
In Architecture
Biomimicry In Architecture
Design Drivers
Adaptive Features
Adaptability
Energy Efficiency
Structural System
Materiality
Concept
Morphology
Left Elevation
Rapid Refugee
ACCESSIBILITY TECHNOLOGY AVAILABILITY OF RESOURCES
Economic Sustainability
Social
Environmental
Natural Hazards
Climate
• BIPV • The energy produced= power*time
Cellular Concrete
Steel Framing
Front Elevation
05. Hay Al-Tafaileh
Goals and Objectives
3D Exterior Shots