作品集

Page 1

INTERIOR DESING

PORTFOLIO

JASMINE YU

2022 - 2024

CONTENTS

簡歷 resume 關於我 about me 02

住宅設計 Residential Design

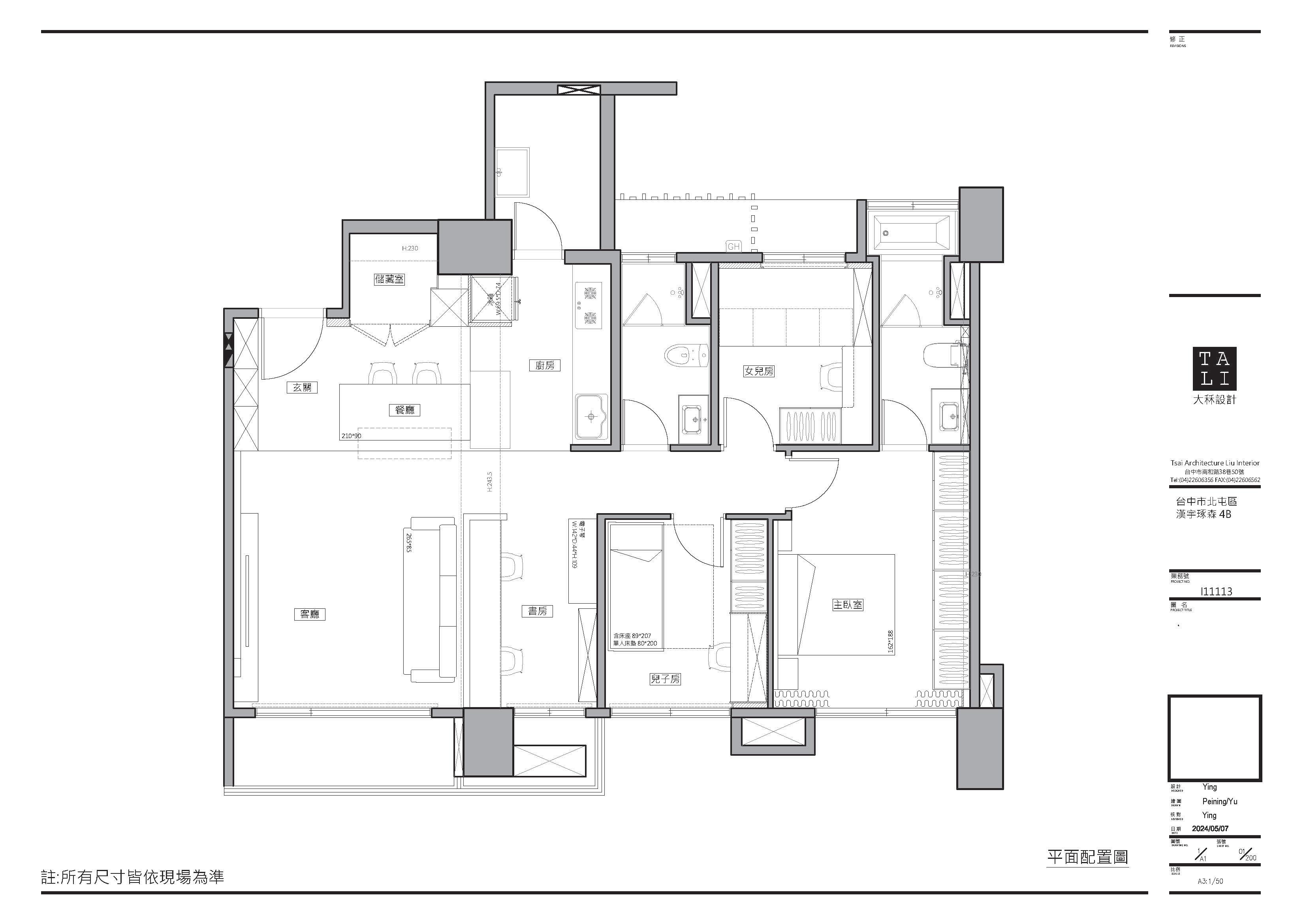
漢宇琢森 LIN 05-08

YEH 09-12

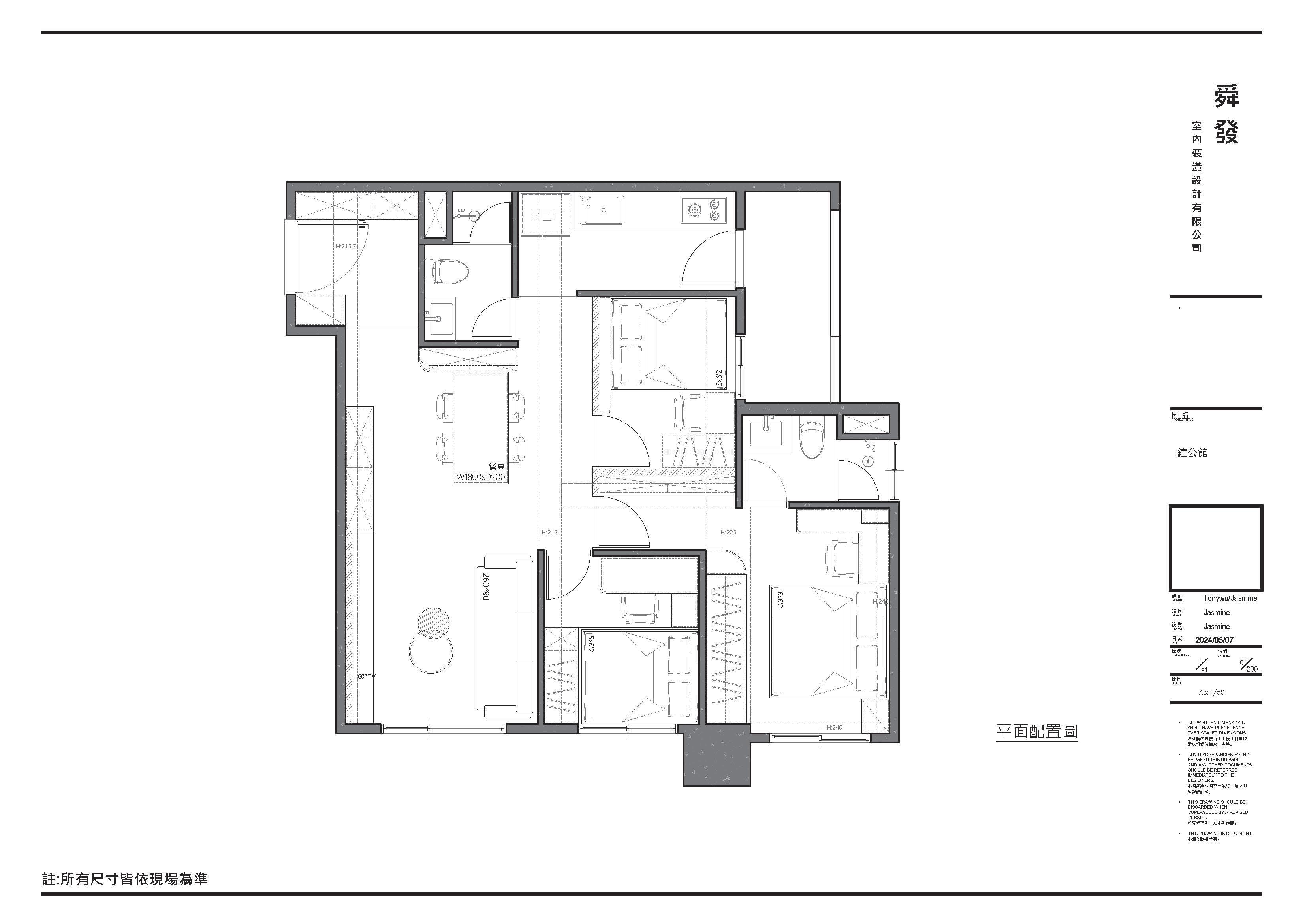
CHUNG 13-14

afternoon tea 23-24 商空設計 retail space design

牙醫診所 dentist clinic 21-22

HSU 15-16

CHEN 17-18

泰山
勝美敦美
築願景
楓樹四季
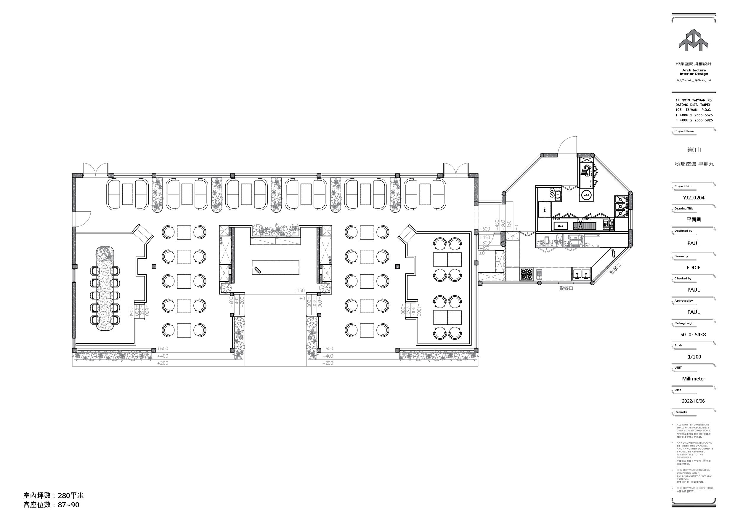
粉那麼濃

關於 我

YU,JO-CHIEH

1996.9.16

jasmine09160@gmail.com 0975-079-104

台南應用科技大學 - 室內設計

靜修女子高級中學 - 商業科

2019/07-2020/03 博森設計

2020/05-2021/05 悅集設計

2019/07-2022/09 汎鋐模型

2022/11-在職中 大秝設計

Adobe Photoshop

Adobe Illustrator

Microsoft Office

SketchUp

Enscape

Lumion

AutoCAD Vray

about
me
余若婕

我的名字是余若婕,家中排行第二唯一的女性,因父母在我小時候因各自的安排與 想法不同而將我交給爺爺奶奶帶,因而養成了我獨立的性格及自我規劃的能力。

在大學四年,離開從小生活的環境來到南部求學,陌生的環境及跨領域的學習,帶

給我很大的衝擊力,所有東西都需要從頭來一遍,不管是與同學間的相處還是以前就很

嚮往但從未接觸過的室內設計,正是我的ENFP人格讓我能夠在短時間內融入新環境,結 交新朋友。

進入社會從事室內設計後,除了專業軟體和設計想法之外,與廠商和業主之間的溝

通更是至關重要的一環,我善於以不同的角度思考問題,並將他們融入我的立場及考量 中。施工期間經常透過遠程溝通的方式,與現場的師傅們溝通並解決問題,我不僅學會 了靈活安排行程,更加強了我的細心觀察和細微分析能力。

善於溝通、細心和ENFP型的性格使我成為一個適應力強、富有活力和創造力的人。

我期待著在未來的工作和生活中,不斷學習、成長,並與更多的人建立深厚的關係,一 同邁向美好的未來。

關於我 2

RESIDENTIAL DESIGN

新成屋 / 漢宇琢森
住宅設計 06

DESIGN PROJECT

漢宇琢森 / 施工現場

住宅設計 08
新成屋 / 築願景
住宅設計 10

DESIGN PROJECT

楓樹四季 / 施工現場

住宅設計 12
新成屋 / 泰山
住宅設計 14
新成屋 / 楓樹四季
住宅設計 16
新成屋 / 勝美敦美
住宅設計 18

RETAIL SPACE DESIGN

DESIGN PROJECT

牙醫診所
商空設計 22

DESIGN PROJECT

粉那麼濃
商空設計 24

EVERYTHING FOR DESIGN

Turn static files into dynamic content formats.

Create a flipbook
Issuu converts static files into: digital portfolios, online yearbooks, online catalogs, digital photo albums and more. Sign up and create your flipbook.