Architecture Portfolio | Jase Owens

Page 1


Seth Kennedy - Jase Owens

CONTACT

Phone: (636) 698-4122

Email: jowens1480@gmail.com

REFERENCES

Dan Rockhill: dan@rockhillandassociates.com

Chris Junkin: chris@hatchet.nyc

Ryan Montana: rmontana@rosemann.com

PROGRAM PROFICIENCIES

• Revit

• Vectorworks

• Rhino

• SketchUp

• Enscape

• Adobe InDesign

• Adobe Photoshop

• Adobe Illustrator

• Adobe Lightroom

OTHER WORK EXPERIENCE

Resident Assistant

@ The University of Kansas Student Housing

Community Service Chair @ Krehbiel Scholarship Hall

Vice President @ Krehbiel Scholarship Hall

R E S U M E

PORTFOLIO LINK

https://issuu.com/jaseowensarchitecture/ docs/owens_jase_arch508

WORK EXPERIENCE

Architectural Designer @ Hatchet Design-Build August 2024 - February 2025

While at Hatchet I was responsible for producing a wide variety of drawings and renderings to aid in the schematic design, design development, and construction documentation phases. I primarily worked on Brooklyn brownstone renovations.

Designer @ Studio 804 August 2023 - May 2024

Studio 804 is a graduate level design build program at the University of Kansas that designs and builds a home in two semesters. My primary role as a designer for Studio 804 was the design and installation of the building’s mechanical systems. Aside from that, I assisted with nearly every other aspect of the building’s design/construction (floor plans, detail drawings, concrete, framing, WRB, etc.). I was also responsible for documenting the project as it progressed.

Architectural Intern @ Rosemann & Associates June 2023 - August 2023

During my time interning at Rosemann & Associates I worked on a handful of different housing projects ranging from low income to market rate. I addressed red lines in CD sets, assisted on punch walks, reorganized material libraries, and created several Revit models for a housing renovation project.

• • •

EDUCATION

Holt High School • Graduated in 2019

Master of Architecture, The University of Kansas • August 2019 - May 2024

01 TWIN SPRINGS

Hot spring resort • Mammoth Lakes, CA

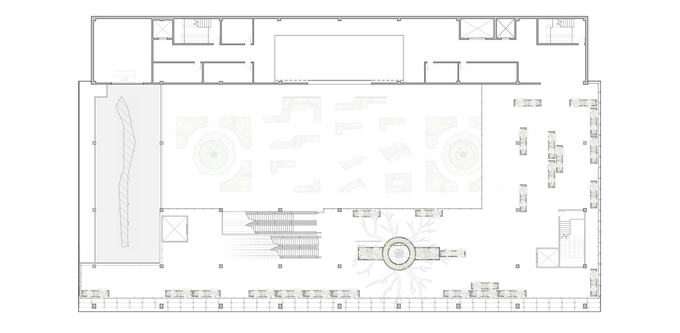
A small scale convention center with a focus on year-round operation • Seattle, WA

03 STUDIO 804

Documentation of my contributions to Studio 804 • Lawrence, KS

SKETCHING & PHOTOGRAPHY

A collection of sketches and photographs from various times and places

01 TWIN SPRINGS

BACKGROUND: Twin Springs was designed as a companion resort to a natural hot spring located in Mammoth Lakes, California. Due to the remote nature of the site, anything manmade would run the risk of disrupting the natural scenery. This design aims to strike a balance between overall visual permeability and while still setting itself apart in the environment.

PROGRAM: The sawtooth configuration of the living pods allows for individualized views from the front and backside of each one of them. This pod arrangement also gives users easy access to the nearby hot spring. The consistent angle found throughout the design allows wider views within the living areas, dining room, and pods. The building also steps down along with the topography of the site to allow for a more expansive view from the southern side. The topographical design also allows the building to easily pump water from the spring up to the southern roof, down the entryway waterfall, through the twin streams, and then all the way to the pool. Finally, a portion of the building’s electrical needs are taken care of by the solar panels that populate the roofs of resort.

PERSPECTIVAL SECTION

NORTH ELEVATION EAST ELEVATION

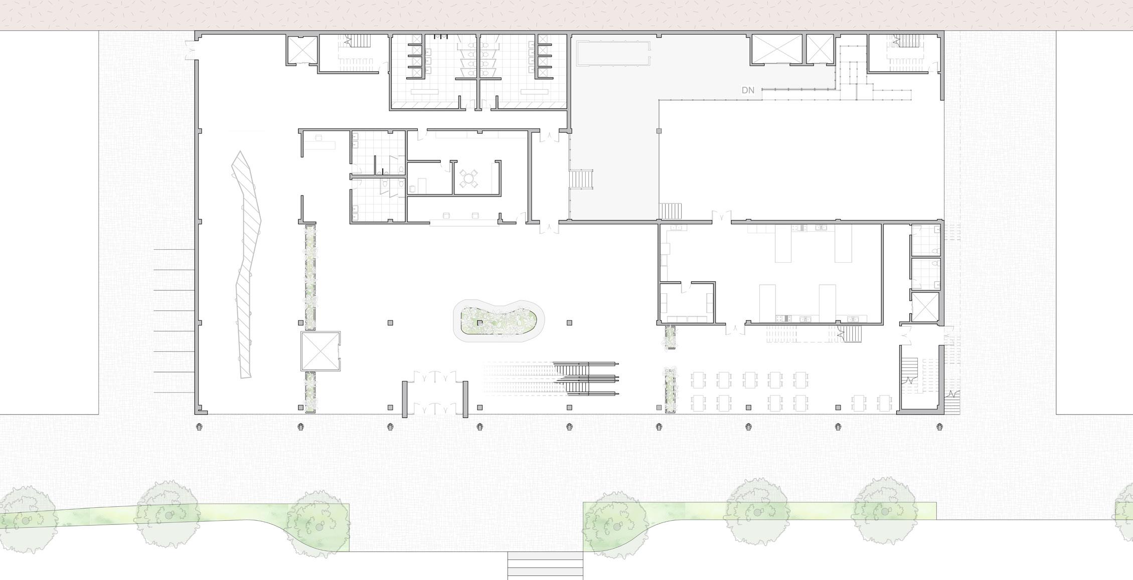
BACKGROUND: Located in the heart of downtown Seattle, Taproot is a small scale convention center/assembly house designed with the goal of hosting small to medium sizes events all year long. The glass of the expansive event space leans out towards the waterfront in much the same way a flower might lean toward the sun. This organic language is juxtaposed with the rigidity of the building’s stone base, giving the project the appearance of a potted plant of some kind.

PROGRAM: The 118,000 square foot building is comprised of six floors, a restaurant, a rock wall than spans 4 stories, and a vast event space with three potential configurations: a concert venue, a botanical garden, and a nightclub.

CONCEPT DIAGRAM

FORM DIAGRAM

1. ALASKAN WAY 2. WESTERN AVE.
SEATTLE GREATWHEEL
SEATTLE AQUARIUM 5. PIKE’S PLACE MARKET 6. FERRY

SOUTH ELEVATION

Wall Section

Seth Kennedy - Jase Owens

03 STUDIO 804: 436 INDIANA STREET

ABOUT STUDIO 804: Studio 804, Inc. is a not-for-profit 501(c)3 corporation committed to the continued research and development of sustainable, affordable, and inventive building solutions. The University of Kansas Department of Architecture offers this comprehensive education opportunity for graduate students entering the final year of the Master of Architecture program. Students work on all aspects of the design and construction processes over the course of a nine month academic year. This includes all mechanical/ electrical systems, construction documents, estimates, working with zoning and code officials, site layout, concrete, framing, roofing, siding, setting solar panels, and more.

MY WORK WITHIN THE STUDIO: We began the design work on our house in August of 2023 and finished construction in May of 2024. My specific area of responsible within the studio was the design and installation of the mechanical systems, as well as the photographic documentation of the entire project. I spent the design phase refining the overall parti alongside the rest of the studio while simultaneously researching various types of mechanical systems to determine what was most suitable for our design. Once that design began to solidify, I was able to narrow the scope of my research and begin designing the system in earnest. My research into homes of comparable sizes, as well previous Studio 804 projects, led me to develop an HVAC plan that used a combination of a ducted mini split unit and two wall mounted mini split units. The ducted unit would provide heating and cooling for the entirety of the first floor while the wall mounted units would to the same for the second. In addition to these units, we would also install an energy recovery ventilator (ERV) to provide a continuous supply of fresh air into the home. Once I got approval on the general concept of my plan, I had the opportunity of working with a mechanical subcontractor to size the ductwork and HVAC equipment. I met with them several times to iron out the issues with my system and to oversee the installation of the larger HVAC equipment. Due to the protracted schedule that the studio operates under, that installation ended up happening at the same time as the plumbing and electrical installations, so I was responsible for a fair amount of on site MEP coordination. Afterwards, I installed the ERV and all of its associated ductwork.

Aside from HVAC and documentation specifically, I also put together documentation to work towards the home’s LEED Platinum rating, assisted during concrete pours, put up sheathing, sealed joints to make the home air tight, and assisted with many other tasks on and off site.

Turn static files into dynamic content formats.

Create a flipbook
Issuu converts static files into: digital portfolios, online yearbooks, online catalogs, digital photo albums and more. Sign up and create your flipbook.
Architecture Portfolio | Jase Owens by Jase Owens - Issuu