Skip to main content

PORTFOLIO ARCHITECTURE

Page 1


PORTAFOLIO ARQUITECTURA

hello, it’s me...

Soy Jesús Alexander, arquitecto con casi dos años de experiencia en el desarrollo de proyectos ejecutivos.

Mi trabajo se ha enfocado en diseñar espacios funcionales y estéticamente equilibrados, adaptándolos al contexto y las necesidades de cada usuario. He participado en proyectos de vivienda unifamiliar, multifamiliar y remodelaciones en distintas ciudades del norte del Perú y también en Puebla, México, lo que me ha permitido enriquecer mi perspectiva profesional y diseñar con una visión más amplia.

Me apasiona viajar y descubrir nuevas formas en que la arquitectura dialoga con su entorno. Esta curiosidad constante influye en mi trabajo, llevándome a explorar soluciones innovadoras y sensibles al lugar. Además, cuento con habilidades en herramientas de dibujo y modelado arquitectónico, lo que me permite desarrollar propuestas con un alto nivel de detalle y visualización.

Siempre busco oportunidades para crear espacios que inspiren y mejoren la vida de las personas.

¡Te invito a conocer mi trabajo!

Jesús Otero

Arquitecto

22 años | 09 abril Piura | Perú +51 933 602 135 jaoa.2407@gmail.com

2023 2025 2023

Educación

Universidad Nacional de Piura | Piura, Piura, Perú Título en Arquitectura y Urbanismo

Departamento R | Ampliación | Talara, Talara, Perú Airbnb San Antonio | Remodelación | Los Órganos, Talara, Perú 2019 2024

sept, 2024 nov, 2024

ene, 2024 agos, 2024

Benemérita Universidad Autónoma de Puebla | C.U, Puebla, México Pasantía Internacional | semestre 10

Experiencia

Diseñador de proyectos ejecutivos | Piura, Perú Profesional independiente

Edificio Las Tortugas | Vivienda Multifamiliar | Los Órganos, Talara, Perú Casas Morquencho | Vivienda Unifamiliar | Los Órganos, Talara, Perú Casa Zorritos | Vivienda Unifamiliar | Zorritos, Tumbes, Perú Casa NJ | Vivienda Unifamiliar | Piura, Piura, Perú

Auxiliar Arquitecto Proyectista | Puebla, México Studio Prisma Habita

Cadista - Diseñador Gráfico | Piura, Perú

Fac. de Arquitectura y Urbanismo | ACROM Consultores | Milko Arq

Habilidades

Softwares

Diseño | AutoCad | Rhinoceros 3D | SketchUp

Visualización | Enscape

Diagramación | Adobe Suite | Photoshop / Illustrator / InDesign Documentación | Microsoft Office | Word / Excel / Power Point

Idiomas

Nativo | Español Intermedio | Inglés Básico | Francés

Intereses

Música | Adele Películas | Comedia, Romance, Suspenso Viajes | México, Argentina Fotografía | Arquitectónica

1|

contenido

Centro Cultural Interactivo

cultura / servicios comunales / urbanismo proyecto de tesis / grado de Arquitecto ubicación / Piura, Piura, Perú

Estadio + Instalaciones Deportivas

recreación / espacios deportivos proyecto académico / semestre 7 ubicación / Sullana, Piura, Perú

Albergue Municipal

2|

3|

hospedaje / hotel de tres estrellas proyecto académico / semestre 6 ubicación / Talara, Piura, Perú

Casa NJ

proyecto ejecutivo / vivienda unifamiliar año / marzo, 2024 ubicación / Piura, Piura, Perú

Edificio Las Tortugas

proyecto ejecutivo / vivienda multifamiliar año / mayo, 2023 ubicación / Los Órganos, Talara, Perú

Otros Proyectos

años / 2023 / 2024 ubicaciones / Los Órganos, Piura / Zorritos, Tumbes / Puebla, México

Viajes + Fotografía Arquitectónica

4|

años / 2023 / 2024 locaciones / México, Argentina, Perú

proyectos seleccionados

pág 19.

pág 07.

pág 25.

pág 31. pág 37.

41. pág 43.

pág

1 | proyecto de tesis

Centro Cultural Interactivo

Regeneración urbana e

Identidad Cultural Regional

cultura / servicios comunales / urbanismo proyecto de tesis / grado de Arquitecto ubicación / Piura, Piura, Perú softwares / AutoCad | Rhinoceros | Photoshop | Illustrator

Como parte de mi proyecto de tesis para obtener el grado de arquitecto, y tras un análisis territorial de la ciudad de Piura, presento el diseño del Centro Cultural Interactivo. Este proyecto se enmarca dentro de una propuesta de regeneración urbana con el objetivo de fortalecer la identidad cultural de la comunidad.

Para su ubicación, se ha seleccionado estratégicamente un terreno en el área central de la ciudad, lo que permite establecer conexiones urbanas con otras infraestructuras culturales del entorno. Además, el diseño busca articular dos de las principales avenidas de Piura, las cuales presentan un desnivel topográfico de hasta tres metros entre ellas. De este modo, el Centro Cultural Interactivo no solo se configura como un espacio para la expresión y preservación cultural, sino también como un elemento clave en el proceso de transformación urbana de la ciudad.

área del terreno | 6094.70 m2

perímetro | 368,05 ml vías principales | Av. Sullana, Av. Loreto

vías secundarias | Jr. Callao, Jr. Huánuco

Evolución volumétrica

Planta Azotea

Explanada al aire libre Servicios higiénicos

Cuarto contra incendios

Depósito

Tercera planta

Talleres de Dibujo y Pintura

Talleres de Artes Plásticas

Salones de Música

Salones de Baile y Danza

Ludoteca

Salón de Usos Múltiples

Servicios Higiénicos / Vestidores

Primera planta

Recepción

Cafetería

Souvenirs

Videoteca

Auditorio

S. Exposición temporal Anfiteatro Sala de curadores Servicios higiénicos Personal de Servicio

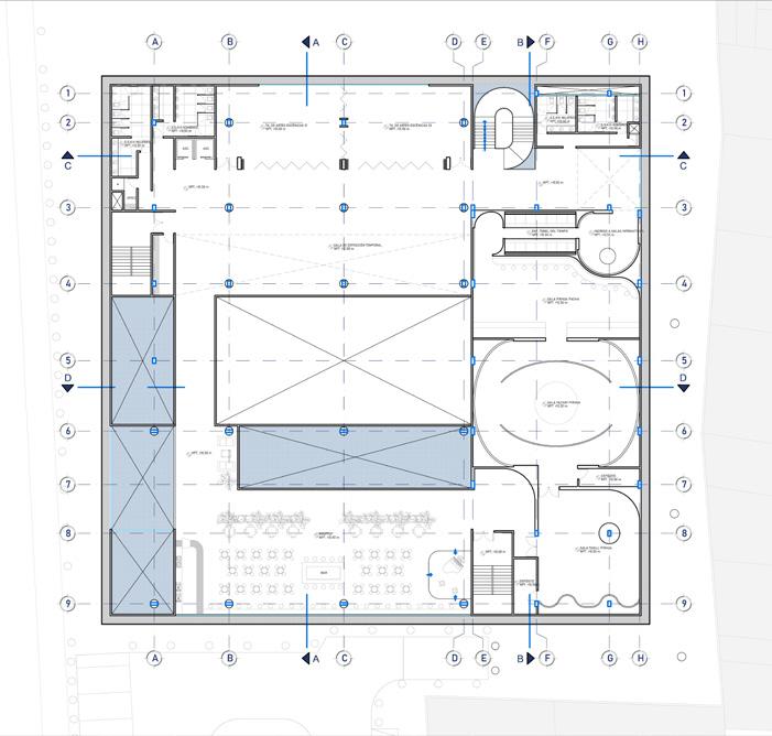
Programa Arquitectónico

Distribución espacial| Primera Planta Boulevard cultural, videoteca digital, souvenirs, cafetería, auditorio

Sala de Exposición Temporal Salas de Exposición Permanente

Talleres de artes escénicas Rooftop Servicios Higiénicos

Alameda Gastronómica Venta de artesanías

Explanada de eventos Platea de Auditorio Servicios higiénicos Oficinas Administrativas

Distribución espacial| Segunda Planta Alameda gastronómica, venta deartesanías, explanada de eventos

Segunda planta
Cuarta planta
Patio Central + Anfiteatro | Primera Planta visualización arquitectónica
Alameda Gastronómica | Segunda Planta visualización arquitectónica

Videoteca - Sala digital | Primera Planta visualización arquitectónica

Distribución espacial| Tercera Planta Talleres y salones, Salón de usos múltiples

Distribución espacial| Cuarta Planta Salas inmersivas, rooftop

Distribución espacial | Planta Azotea Explanada al aire libre

Talleres de dibujo y pintura | Isometría arquitectónica

Talleres de cursos de oficio | Isometría arquitectónica

Talleres de artes plásticas | Isometría arquitectónica

Experiencia Inmersiva | Sala Yachay Pihua

1| Ingreso a Salas Inmersivas| Exposiciones permanentes

2|

3|

4|

Túnel del tiempo| Sala Pirhua Pacha
Sala inmersiva de música| Sala Takill Pirhua
Fachada interactiva Videomapping Cultural| Render Nocturno

2 | proyectos académicos

Estadio +

Instalaciones Deportivas

recreación / espacios deportivos proyecto académico / semestre 7 ubicación / Sullana, Piura, Perú softwares / AutoCad | Rhinoceros| Enscape | Photoshop |

Este proyecto, desarrollado en el séptimo semestre, propone un complejo deportivo en Sullana, Piura, junto al río Chira. La propuesta responde a la fuerte identidad futbolística de la ciudad, incorporando un estadio con capacidad para 30,000 espectadores, un pabellón multideportivo y hospedaje para delegaciones.

Ubicado en un terreno de más de siete hectáreas, con un área adicional de tres hectáreas para estacionamiento conforme al RNE y normativas FIFA, el estadio alcanza los 35 metros de altura en seis niveles. Su diseño incluye áreas comerciales, restaurantes, cafeterías y un museo dedicado a la historia futbolística local.

Quinta Planta | Autocad + Photoshop

Segunda Planta | Autocad + Photoshop

Cuarta Planta | Autocad + Photoshop

Sexta Planta | Autocad + Photoshop

Primera Planta | Autocad + Photoshop
Tercera Planta | Autocad + Photoshop

Sistema Constructivo | Axonometría Explotada

La estructura se basa en un sistema independiente de anillos de compresión y tracción, apoyados en 15 columnas radiales. La cubierta optimiza la iluminación sin afectar la visibilidad. Además, el proyecto integra espacios públicos y un malecón con vistas al río Chira, fortaleciendo su conexión con el entorno.

1| 15 apoyos radiales

2| Cubierta de EFTE

3| Armadura metálica

4| Anillo de compresión

5| Anillo de tracción

Albergue Municipal

Hotel de 3 estrellas

hospedaje / hotel de tres estrellas proyecto académico / semestre 6 ubicación / Talara, Piura, Perú softwares / AutoCad | Revit| Enscape

PLAYA LOBITOS

Desarrollado en el sexto semestre, este proyecto plantea un hotel municipal de tres estrellas en la playa de Lobitos, Talara, con el objetivo de fortalecer el turismo y generar ingresos para la comunidad.

Ubicado en un terreno de 1,949 m², el diseño se distribuye en dos niveles, organizando los espacios en ejes radiales y concéntricos para maximizar las vistas al océano Pacífico. El programa incluye terrazas, piscina, salas de estar y 20 habitaciones (12 dobles y 8 matrimoniales), garantizando confort y funcionalidad.

El proyecto busca integrar la arquitectura con el paisaje costero, aprovechando la orientación y la ventilación natural para mejorar la experiencia del visitante, promoviendo un turismo sostenible en la región.

Render Perspectiva | Vista hacia la playa visualización arquitectónica

Render Perspectiva | Frontis Noreste visualización arquitectónica

3 | proyectos ejecutivos

1|Ingreso |2|Estacionamiento |3|Vestíbulo |4|Hab. de visitas |5|Baño de visitas |6|Sala |7|Comedor |8|Cocina |9|Patio

proyecto ejecutivo / vivienda unifamiliar año / marzo, 2024 ubicación / Piura, Piura, Perú softwares / AutoCad | Rhinoceros| Enscape área construida / 200 m2

Este proyecto de vivienda unifamiliar fue desarrollado en un terreno compacto de 90 m², logrando una distribución eficiente que permite una superficie construida de 200 m². La propuesta arquitectónica contempla dos niveles y una terraza, diseñada para un matrimonio joven, priorizando la optimización del espacio y el confort.

El diseño busca maximizar cada metro cuadrado tanto en planta como en sección, incorporando espacios a doble altura que generan una sensación de amplitud y continuidad visual en las áreas sociales. Se plantea un esquema de circulación fluido que conecta los ambientes de manera armoniosa, promoviendo una experiencia espacial dinámica y funcional.

Un patio interior central actúa como elemento regulador del clima, aportando ventilación cruzada e iluminación natural a los distintos espacios de la vivienda. Además, considerando las condiciones climáticas de la ciudad, se han diseñado techos altos y cubiertas inclinadas que facilitan la disipación del calor y optimizan el manejo pluvial, contribuyendo a la sostenibilidad del proyecto.

Casa NJ
Vivienda Unifamiliar

Visualización Arquitectónica

1| Habitación Principal

2| Cocina Concepto Abierto

3| Sala/Comedor a Doble Altura

4| Render Nocturno / Fachada

Edificio Las Toturgas

Vivienda Multifamiliar

proyecto ejecutivo / vivienda multifamiliar año / mayo, 2023 ubicación / Los Órganos, Talara, Perú softwares / AutoCad | Rhinoceros| Enscape | Photoshop área de terreno / 140 m2

El Edificio Las Tortugas es una propuesta de vivienda multifamiliar diseñada para optimizar el uso del espacio en un terreno de 140 m². El proyecto responde a la creciente demanda de viviendas urbanas eficientes, combinando unidades residenciales privadas con áreas de alquiler que generan una alternativa de inversión sostenible para los propietarios.

El programa arquitectónico se desarrolla en cinco niveles. En la planta baja, se ubica un departamento de tres habitaciones con acceso independiente, priorizando la privacidad y funcionalidad. En el segundo y tercer nivel, se proyectan departamentos de dos habitaciones, complementados con una habitación externa destinada al alquiler, permitiendo una mayor flexibilidad en el uso del espacio.

El cuarto nivel está diseñado para maximizar la rentabilidad del edificio, incorporando cuatro habitaciones de alquiler, cada una con las condiciones adecuadas de habitabilidad y confort. Finalmente, en la última planta, la propuesta se remata con una terraza de uso común para los residentes, promoviendo la convivencia y el esparcimiento dentro del conjunto.

El diseño del edificio integra estrategias de ventilación e iluminación natural, optimizando el rendimiento energético y garantizando el confort térmico de los espacios interiores. Además, se han considerado materiales y sistemas constructivos adecuados para garantizar la durabilidad y eficiencia del proyecto en un entorno urbano dinámico.

1| Sala Comedor Cocina

2| Habitaciones equipadas

3| Perspectiva Área Común Visualización Arquitectónica

4 | otros proyectos

Casas Morquencho

Viviendas unifamiliares

proyecto ejecutivo / viviendas unifamiliares año / mayo, 2023

ubicación / Los Órganos, Talara, Perú softwares / AutoCad | Rhinoceros|Enscape área de terreno / 300 m2

Casa Zorritos

Vivienda unifamiliar

proyecto ejecutivo / vivienda unifamiliar año / julio, 2023 ubicación / Zorritos, Tumbes, Perú softwares / AutoCad | Rhinoceros|Enscape área de terreno / 300 m2

Casas Vista Flor

Vivienda unifamiliar

visualización / post-producción arquitectónica año / septiembre, 2024 ubicación / Puebla, Puebla, México software / Photoshop

viajes + fotografía

Casa Gilardi | Ciudad de México, México fotografía macro de detalle

Fac. Derecho UBA | Bs. Aires, Argentina perspectiva /regla de los impares / ritmo y repetición

Museo Internacional del Barroco | Puebla, México regla de los tercios

Lugar de la Memoria e Inclusión Social| Lima, Perú líneas diagonales y dirección visual
Museo Soumaya |Ciudad de México, México fotografía macro de detalle / ritmo y repetición
Atardecer en Cholula| Puebla, México línea de horizonte / regla de los tercios
Lima la “no” gris| Lima, Perú uso de planos / regla de los tercios

Enmarcar elementos

1| Calle de los dulces | Puebla, México

2| Casa Gilardi | Ciudad de México, México

Paseo de los Sapos | Puebla, México diagonales / regla de los tercios
Lugar de la Memoria | Lima, Perú diagonales / regla de los tercios
Edificio E | Piura, Perú diagonales / regla de los tercios
Casa Curutchet| La Plata, Argentina escala / perspectiva / regla de los tercios
Casa Gilardi| Ciudad de México luz y color / líneas diagonales
Chichen Itza| Yucatán, México líneas diagonales / regla de los tercios

Turn static files into dynamic content formats.

Create a flipbook