

PORTFOLIO
CUSTO JAMES 2024
CONTENTS ACADEMIC
CULTURE CENTER 01 02 03 04 05
BACHELOR THESIS
summer 2022 spring 2022
HERITAGE RENOVATION
autumn 2021 summer 2021
RESIDENTIAL BUILDING
spring 2020

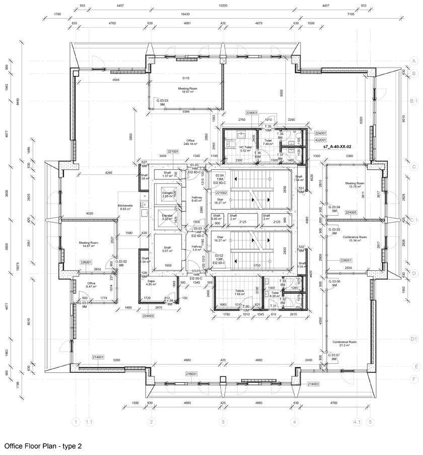
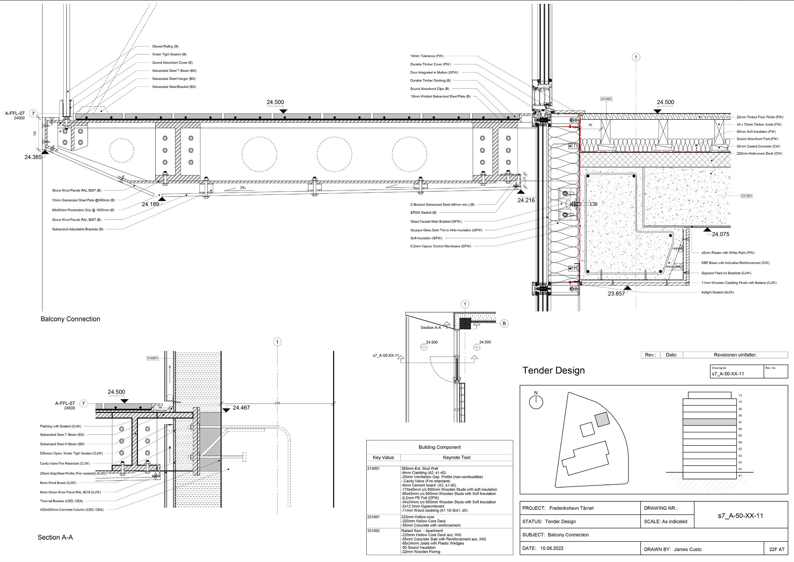
01 FREDERIKSHAVN TOWER


This project consisting of an 11-story mixed-use building situated in a town located on the northeast coast of the Jutland peninsula in northern Denmark named Frederikshavn. The name translates to “Frederik’s harbour” and is well known for fishing and its industrial harbours.
The project is part of a master-plan of 6336m2 that replaces an old abandoned fishery with business and residential buildings that will revive the entire area. The master-plan consists of 3 parts; a shopping mall, 2 towers and residential area of single family housing.
The main focus of this project was on the tallest tower. The 11-story tower consists of a mixture of 24 apartments, 4 offices, a cafeteria and a restaurant located at the top. The design was inspired by the colours and elements found at shores and beaches of Denmark such as sand, weathered wood and coastal dune vegetation.










02 SOLAR RADIATION ON PARAMETRIC ARCHITECTURE

It can be extremely difficult to achieve the right balance between the optimal amount of daylight while preventing overheating in buildings designed in the style of Deconstructivism. Due to their complex shapes and geometrys, conventional solar shading techniques cannot be applied effectively. The main reason for this issue is the geometrical curves of a facade can face the sun in many various angles at the same cardinal orientation which would require separate calculations for each angle to achieve the optimal balance of daylight and overheating.
This bachelor thesis mainly focused on the parametric elements and the calculations required to achieve the said balance using conventional software for constructing architects in Denmark known as Revit. The process included; the method and stages to build the parametric model and elements, followed by the method and stages of running solar radiation (kWh/m2) simulation. The results from the simulation were then used to optimise the building’s parametric elements as mentioned above.
In recent years various techniques and designs were made to implement optimal shading in parametric architectural buildings. This thesis was inspired by a well reowned building situated in Abu Dhabi named Al Bahar Towers. The unique sunshade system consists of thousands of dynamic elements that adjust throughout the day to control solar heat gain and reduce energy consumption. However this required motorised elements which can have a heavy impact on costs and maintenance. This thesis’ scope was to achieve a similar approach but much more cost effective while still maintaining the concept and its effectiveness.





The context for this thesis was designed in Sydney, Australia. Using both the urban model and solar path analysis of Sydney, the yearly solar radiation was accurately measured for each panel. The entire analysis process was conducted in Rhino & Grasshopper, connected directly to Revit using the Rhino-Inside-Revit plug-in, while the modeling was completed entirely in Revit.
The values generated by the yearly solar radiation analysis from Grasshopper were imported into Revit for each individual panel. These values determine how open or closed each panel should be installed.
Based on the values obtained, the panels that receive the least direct sunlight (marked in blue) can be adjusted to allow more daylight inside the building without causing overheating, whereas the panels that receive the most direct sunlight (marked in red) are adjusted to reduce direct sunlight and prevent the building from overheating.



PORTFOLIO





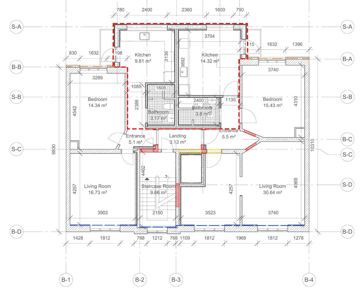
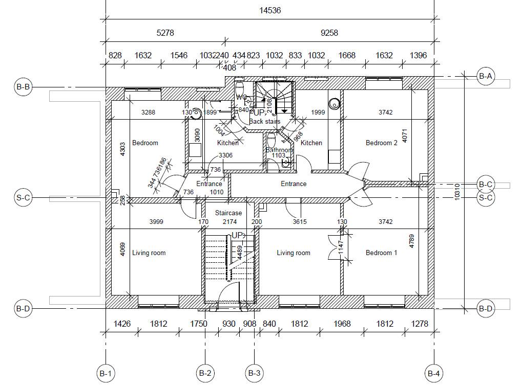
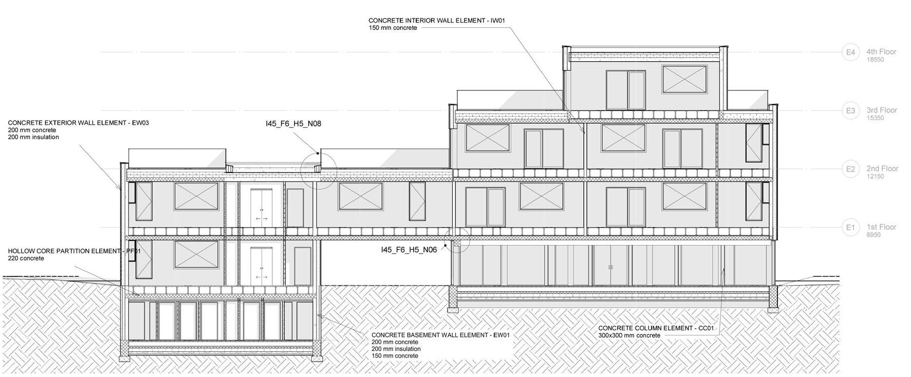
The renovation of the 1921 apartment block on J.M. Mørksgade in Aarhus transformed the 5-story building into a modern, sustainable residence while preserving its historic charm. Each of the ten apartments was upgraded with new kitchens, bathrooms, and private balconies. Accessibility was enhanced with the addition of an elevator, retro fitting of insulation and internal connections to both the basement and courtyard. All technical installations were updated, and a new laundry room was established in the basement. The project went beyond standard building regulations by integrating sustainable solutions, ensuring the block meets contemporary living standards while maintaining its architectural heritage.

PROPOSED LAYOUT


EXISTING LAYOUT

ORIGINAL 1921 DRAWINGS

REVIT MODEL OF PROJECT





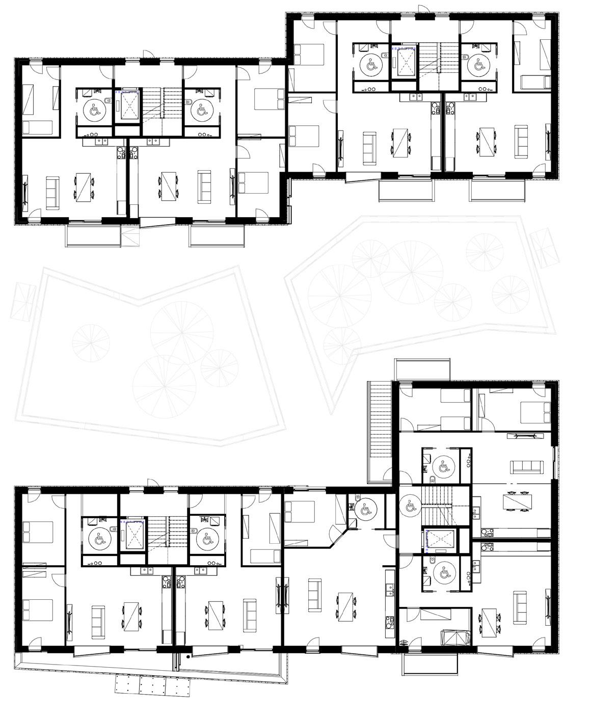
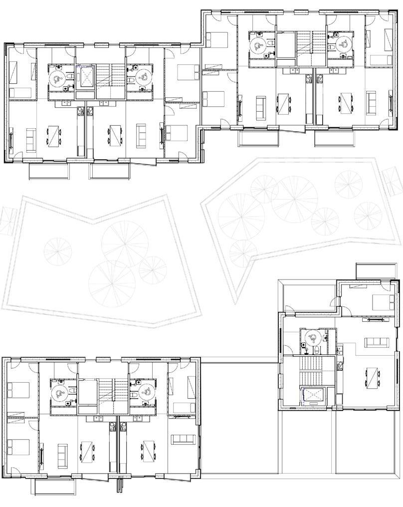
04 RESIDENTIAL BUILDING

Located in Aarhus, the second-largest city in Denmark, encompasses a 3000 m2 residential area with 3-4 stories of apartments and a business area. The basement consists of storage areas, whereas the uppermost story features a penthouse constructed from lightweight materials. The ground floor incorporates a 200 m2 business area with glass façades adjacent to a 'gate' allowing access to the courtyard and the blocks located at the back of the project.
The vision of this architecture is meant to fit perfectly into the new dense urban district in Åbyhøj. The district’s mission is to attract young people, the elderly, and families with children. The client is keen on supporting the sustainable transition of the construction sector, so this project is designed with multiple sustainable initiatives.
The building is designed with adaptive reuse in mind, meaning it can be transformed for another use instead of being demolished, such as becoming an elderly home in the future. This strategy is considered sustainable because of the reduction in building materials needed to transform a space and the reduction of energy consumption and resources associated with demolishing a structure and building a new one to replace it.








One of the main requirements of this project was rapid construction. To tackle this, the project was designed in modules ' that were meant to streamline the: design, planning, construction and buildability of the project.
Modules are layouts/ blocks that can be stacked on each other while can also be removed for versatility. To break the monotonous design of the modules a stepping design was approached with a variety of balcony designs.







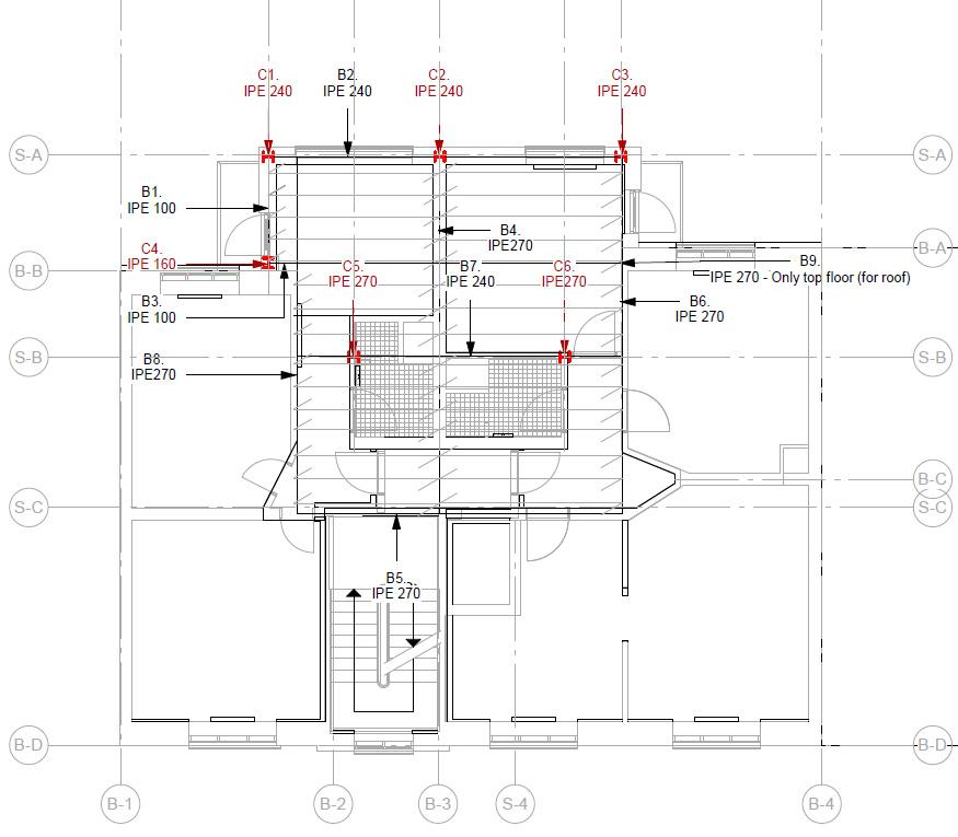
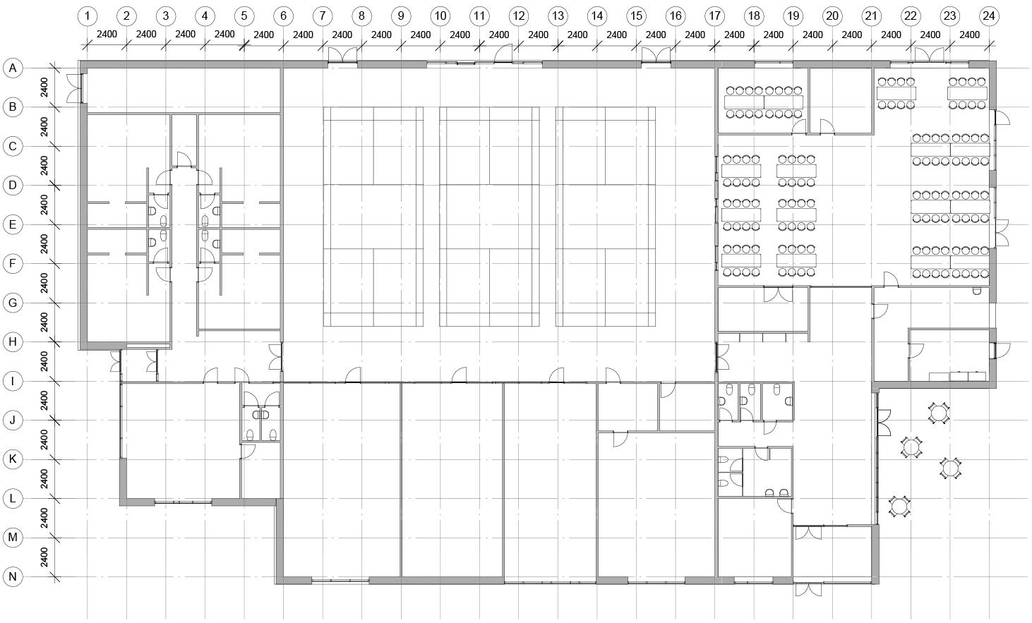
05 CULTURE CENTER

The municipality of Horsens required a culture center for multi-purpose use and to facilitate the rapidly increasing population of youths located on the East side of mainland in Denmark. The project encompasses a total of 1500m2 with the main building of 340m2 used for indoor sports and smaller adjacent buildings for canteen, offices, showers and changing rooms. The building also has a large parking area and can facilitate 200 people during peak hours. All fire regulations were taken into account in relation to the high number of visitors to make this project possible.
This project was specifically required to be built using prefabricated concrete and wood elements. The process of the project was to monitor and provide all the necessary documentation through all phases including designing of concrete elements for fabrication and project coordination, logistics for installation of the elements.
PORTFOLIO




CONTENTS EMPLOYMENT
01 02 03 04 05
TOWER DESIGN
winter 2019
SUMMER HOUSES
winter 2024
BANK RENOVATION
winter 2018
BOUTIQUE HOTEL
summer 2018
VARIOUS VISUALS
2018 - 2024

01 ST TOWER

The client desired an overall luxurious tower that would highlight the success of his company. Located in the urban parts of Malta, the ST Tower features a total of 16 floors and a mezzanine at the very top. The lower floors are designated for office space, whereas the higher floors are intended for residential use. The top floor houses a luxurious restaurant with a suspended mezzanine offering a 360-degree view of Malta's landscape.
PORTFOLIO



02 DANISH SUMMER HOUSES





03 APS BANK
The owner of a famous local bank known as APS approached our company with a propsal to renovate the facade and interior design of one particular branch situated in Mosta.
The bank was located in a sensitive area; infront of a parish church also famously known as the third largest unsuspended dome in the world.
The design had to be harmonious with the surroundings and went through several changes to endorse the approval by the municipality, as the proposal from the client was modern therefore, a combination of both rustic and modern design had to be compromised.







04 BIRGU HOTEL
Birgu city, a hidden gem rich in history and character, offered an old abandoned building ready to be revived to host people once more. This boutique hotel, with seven rooms and luxurious bathrooms, embraces the rich history of Birgu. The design of all rooms was is a fusion of modern elements and medieval hues inspired by the Kavalier era.
The design included a short brief history printed on the wall along the wallpaper to give guests historical insight of the city. In one particular bedroom, specific fabric colours were selected based on an iconic Maltese fishing boat, also known as “Luzzu” which traditionally has vibrant yellow and blue colours.









05 FREELANCE WORK

VILLA - SKANDERBORG, DENMARK
PORTFOLIO

OFFICE
RENOVATION - SAN GWANN, MALTA