Portafolio Jairo Arias Acuña

Page 1


P E R F I L

Arquitecto con cinco años de experiencia profesional, desarrollada íntegramente en oficinas de arquitectura. Durante este período he participado activamente en diversas etapas del desarrollo de proyectos, desde la conceptualización y diseño arquitectónico hasta la elaboración de documentación técnica y gestión de permisos municipales. Esta trayectoria me ha permitido adquirir una comprensión integral del proceso proyectual, así como habilidades específicas en representacióngráfica,normativasurbanasycoordinaciónmultidisciplinaria. He trabajado en equipos de distintas escalas y metodologías, lo que me ha entregado una alta capacidad de adaptación y colaboración, así como una visión crítica para abordar proyectos tanto de arquitectura residencial como de rehabilitación patrimonial y diseño interior. Esta experiencia me ha permitido fortalecer mi criterio proyectual, mi capacidad de gestión y mi compromiso con la calidad del diseño y la viabilidad técnica de las propuestas.

C O N T E N I D O

PROYECTO DE TÍTULO

00. DIRECCIÓNDEDESARROLLOCOMUNITARIOYBIBLIOTECAPÚBLICALASBARRANCAS

PROYECTOS

01. SEDECOMUNITARIAWILLIAMSREBOLLEDO

02. CENTROCOMUNITARIOFUNDACIONALDEPAINE

03. LICITACIÓN PÚBLICA ‘4 BARRIOS’

HABILITACIÓNPASEORECREACIONALLOSHÉROES,PAINE

HABILITACIÓNPLAZAPASAJE8,MACUL

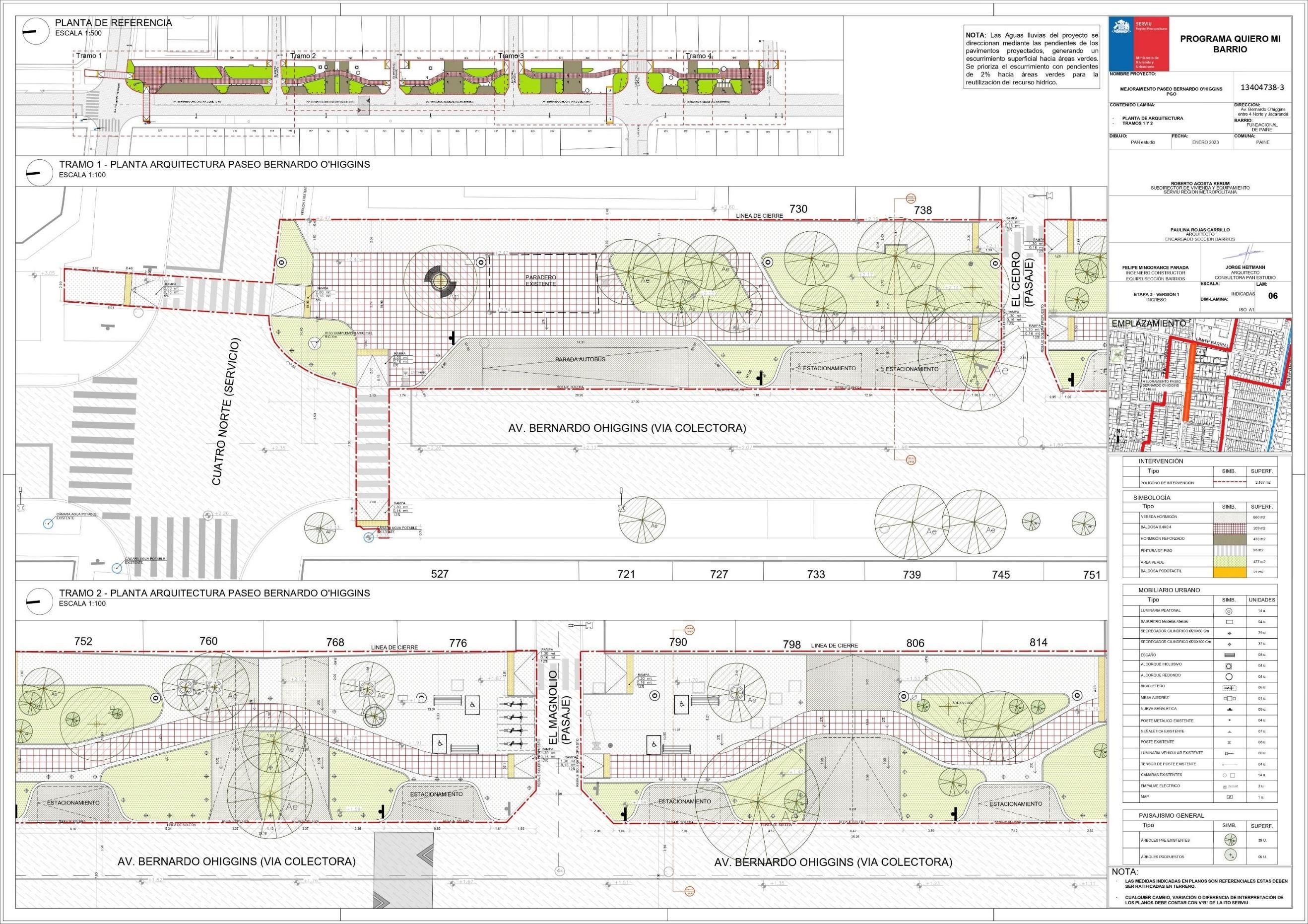
MEJORAMIENTO PASEO BERNARDO O’HIGGINS, PAINE

HABILITACIÓNCIRCUITORECREATIVOPASAJE9,MACUL

04. MEJORAMIENTOESPACIOPÚBLICOLONGITUDINALCURAUMA – VALPARAÍSO

05. REMODELACIÓNCOLEGIOSALESIANOSSEDENORTE,TALCA

‘DIRECCIÓN

00. PROYECTO DE TÍTULO

DE DESARROLLO COMUNITARIO Y BIBLIOTECA

PÚBLICA LAS BARRANCAS’

Actualmente, tratar la noción de “lo local” en contextos urbanos metropolitanos parece una tarea difícil, dadas las variables que configuran las metrópolis contemporáneas como la ciudad de Santiago. Esta búsqueda, la de particularidades dentro de la gran ciudad, decanta en el concepto del “desarrollo local”. El desarrollo local es el intento por armonizar cambios de un sector en específico, elevar las oportunidades sociales de los pobladores mediante el trabajo en conjunto de los distintos actores locales. Surgen, entonces, interrogantes como: ¿existe cabida para lo local dentro de contextos urbanos? ¿Pueden existir sectores de la ciudad donde se pueda analizar y ejecutar la idea del desarrollo local?

Este proyecto de título plantea resolver estas interrogantes y pretende abrir líneas de análisis y propuestas que aborden microsistemas culturales en contextos metropolitanos mediante el desarrollo local de sectores en particular. El título “Dirección de desarrollo comunitario y biblioteca pública Las Barrancas”, habla del desafío programático que le da cuerpo real al concepto de desarrollo local. También incluye la localización de la propuesta. La intención de esta memoria es determinar cómo se desarrolló el Tema y por qué se trabajó en este sector en particular.

Año 2019. Proyecto aprobado con distinción.

01. SEDE COMUNITARIA WILLIAMS REBOLLEDO

Arquitecto principal a cargo del diseño, desarrollo de planimetrías y coordinación de especialidades.

Proyecto desarrollado en la oficina ‘PAN Estudio’, en el contexto de la Licitación Pública ‘DISEÑO DE ARQUITECUTRA Y ESPECIALDIADES DE LOS PROYECTOS QUE PREFERENTEMENTE INCLUYEN SEDES, EN BARRIOS WILLIAMS REBOLLEDO, CAUPOLICÁN – LAS TORRES UV N°15, FUNDACIONAL DE PAINE Y CARMELA MIRA, DEL PROGRAMA DE RECUPERACIÓN DE BARRIOS, REGIÓN METROPOLITANA’ .

Año 2022.

El proyecto surge como una iniciativa para fortalecer la vida comunitaria y proporcionar un espacio multifuncional adaptado a las necesidades de la comuna. Como arquitecto principal, asumí la responsabilidad integral del proyecto, abarcando desde su desarrollo conceptual hasta la coordinación con especialidades técnicas y la gestión con autoridades municipales. El diseño prioriza la funcionalidad y la conexión con el entorno local.

02.

CENTRO COMUNITARIO FUNDACIONAL DE PAINE

Arquitecto principal a cargo del diseño, desarrollo de planimetrías y coordinación de especialidades.

Proyecto desarrollado en la oficina ‘PAN Estudio’, en el contexto de la Licitación Pública ‘DISEÑO DE ARQUITECUTRA Y ESPECIALDIADES DE LOS PROYECTOS QUE PREFERENTEMENTE INCLUYEN SEDES, EN BARRIOS WILLIAMS REBOLLEDO, CAUPOLICÁN – LAS TORRES UV N°15, FUNDACIONAL DE PAINE Y CARMELA MIRA, DEL PROGRAMA DE RECUPERACIÓN DE BARRIOS, REGIÓN METROPOLITANA’.

Año 2022.

El proyecto es un espacio concebido para potenciar la integración social y ofrecer un lugar versátil para el desarrollo de actividades culturales, educativas y recreativas en la comuna. Como arquitecto principal, lideré el desarrollo del diseño arquitectónico, coordiné las especialidades técnicas y gestioné los procesos con las autoridades municipales. El proyecto busca armonizar funcionalidad y sostenibilidad, reflejando las necesidades y el carácter local de la comunidad.

03. LICITACIÓN PÚBLICA ‘4 BARRIOS’

En el marco de la Licitación Pública "DISEÑO DE ARQUITECUTRA Y ESPECIALDIADES DE LOS PROYECTOS QUE PREFERENTEMENTE INCLUYEN SEDES, EN BARRIOS WILLIAMS REBOLLEDO, CAUPOLICÁN – LAS TORRES UV N°15, FUNDACIONAL DE PAINE Y CARMELA MIRA, DEL PROGRAMA DE RECUPERACIÓN DE BARRIOS, REGIÓN METROPOLITANA", se desarrollaron proyectos cuatro comunas

distintas: Curacaví, Macul, Paine y San Miguel, enfocados en revitalizar áreas clave para el uso y disfrute de las comunidades locales. Mi contribución consistió, en los proyectos de espacio público, en brindar apoyo en el diseño arquitectónico y en el desarrollo de planimetrías, asegurando la coherencia técnica y la integración de soluciones funcionales que respondieran a las necesidades de los habitantes de cada sector. Estos proyectos destacan por su enfoque en la mejora del entorno urbano y la promoción de la interacción comunitaria.

Proyecto desarrollado en la oficina ‘PAN Estudio’.

Año 2022.

04. MEJORAMIENTO ESPACIO PÚBLICO LONGITUDINAL CURAUMA – VALPARAÍSO

Arquitecto principal a cargo del diseño, desarrollo de planimetrías y coordinación de especialidades.

Apoyo en presupuesto y Especificaciones Técnicas.

Coordinador de Aprobaciones en Municipio (Parques y Jardines, Tránsito, DOM y Alumbrado Público).

Coordinador de Aprobación SERVIU.

Proyecto desarrollado en la oficina ‘CAW Arquitectos’, en el contexto de una licitación pública.

Año 2024.

El proyecto se emplaza y considera el espacio público peatonal de los bandejones centrales y laterales de la avenida

Curauma norte y sur, entre calle Los Acantos y Av. Lomas de la Luz (retorno Ruta 68).

Superficie aproximada: 86.807 m2.

La longitud aproximada es de 2.4 kms.

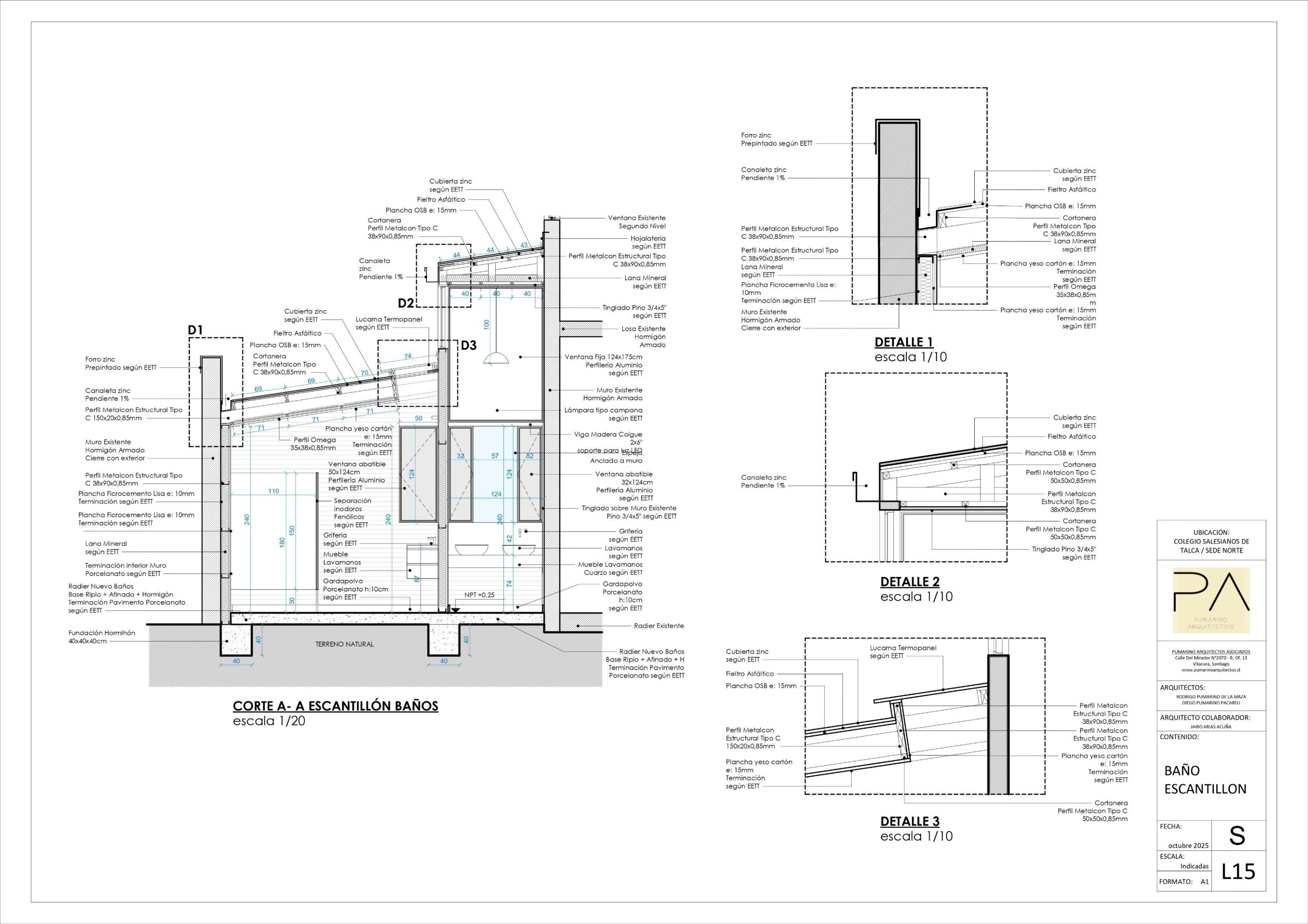
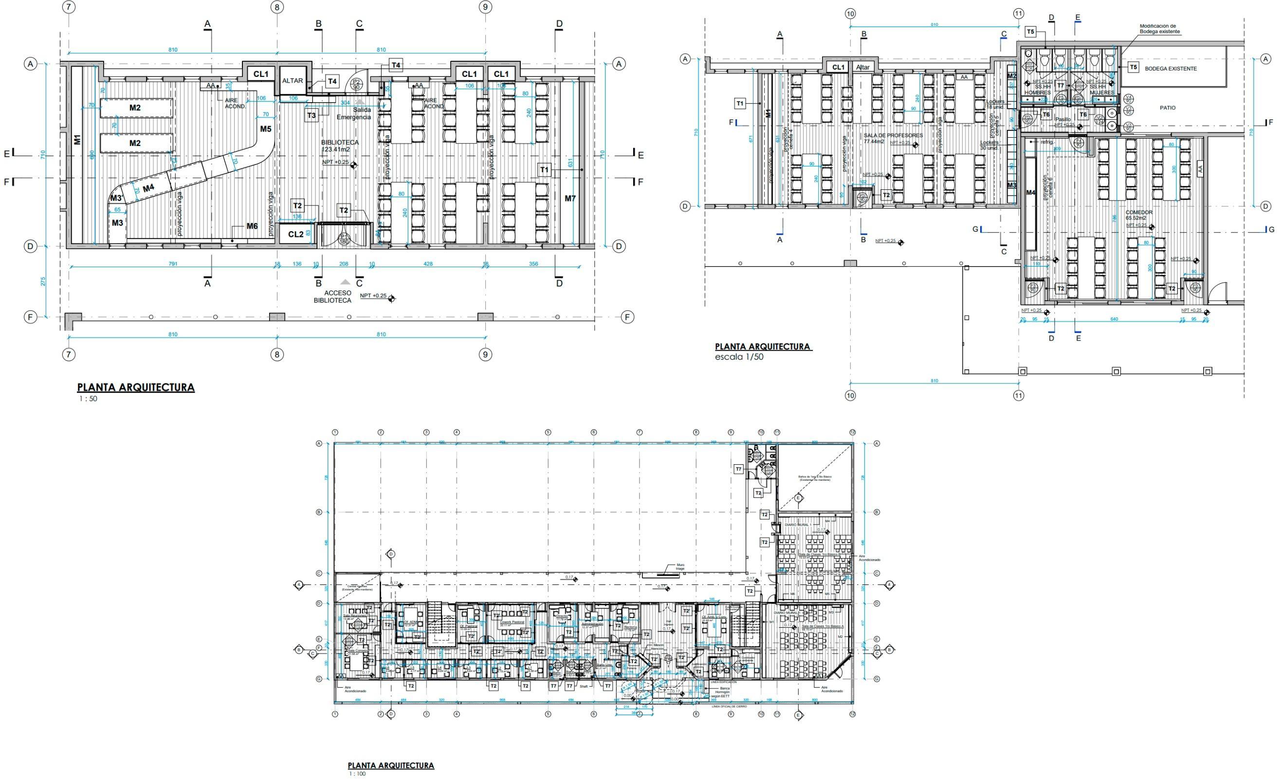
05. COLEGIO SALESIANOS SEDE NORTE, TALCA

Arquitecto Colaborador. Proyecto

Proyecto desarrollado en la oficina ‘Pumarino Arquitectos’.

El proyecto corresponde a la remodelación del Colegio Salesianos Sede Norte de Talca, desarrollado en tres etapas que comprenden la renovación de la biblioteca, la sala y comedor de profesores, y el área administrativa del establecimiento, sumando aproximadamente 800 m2 de intervención. Como arquitecto colaborador, estuve a cargo del desarrollo integral del proyecto, incluyendo la elaboración de planimetrías, modelado y representación 3D, coordinación de especialidades y visitas a terreno. El trabajo buscó actualizar y optimizar los espacios existentes, mejorando su funcionalidad, confort y coherencia con la identidad institucional del colegio.

Año 2025.

Turn static files into dynamic content formats.

Create a flipbook
Issuu converts static files into: digital portfolios, online yearbooks, online catalogs, digital photo albums and more. Sign up and create your flipbook.
Portafolio Jairo Arias Acuña by jairo - Issuu