Portafolio_TX_Ostos_Acosta_Jairo

Page 1

ARQUITECTURA

JAIRO JAIR OSTOS ACOSTA

• PERFIL PROFESIONAL:

Soy estudiante de Arquitectura del décimo ciclo en la Universidad Peruana de Ciencias Aplicadas (UPC) con una sólida formación académica y experiencia práctica Tengo capacidad para poder desenvolverme ante las competencias presentadas tanto a nivel individual como a trabajos en equipo Además, cuento con buen criterio de diseño y amplio conocimiento usando diversos programas de arquitectura tanto 2D y 3D

• INFORMACIÓN:

NOMBRES Y APELLIDOS:

Jairo Jair Ostos Acosta

CORREO:

jairo.ostos1296@gmail.com

NÚMERO DE CONTACTO:

954 641 095

UBICACIÓN:

S.J.L. - Lima

FECHA DE NACIMIENTO:

17/05/1996

ARQUITECTURA | DÉCIMO CICLO

Universidad Peruana De Ciencias

Aplicadas - Facultad De Arquitectura

Lima, Santiago De Surco

SECUNDARIA COMPLETA | 2011

Colegio Anton Makarenko

Lima, San Juan de Lurigancho

• EXPERIENCIA PROFESIONAL

Asistente de Inspector Técnico | Junio

2023 - Octubre 2023

Municipalidad Distrital De La Molina

• FORMACIÓN COMPLEMENTARIA

Taller De Diseño En Oklahoma (USA) | 2019

Proyecto de creación de un museo y tratamiento paisajista para el Centro de Estudios Históricos Militares del Perú. El cual se desarrollo en conjunto con alumnado de Landscape Architecture de la Oklahoma State University (OSU)

• COMPETENCIAS

Competencias Profesionales: Comunicación | Proactividad | Adaptabilidad

Idiomas: Inglés Básico

Software:

INFORMACIÓN PERSONAL
FORMACIÓN ACADÉMICA

06

ARQUITECTURA Y CONSTRUCCIÓN ARQ. OSORES / ARQ. YAÑEZ

07

TALLER DE INTEGRACIÓN ARQ ALVARIÑO / ARQ BENITA

08

ARQUITECTURA Y CIUDAD ARQ. ECHEGARAY / ARQ. BEJARANO

EJERCICIO PROFESIONAL ARQ. ALVARIÑO / ARQ. PACHECO

ÍNDICE
09

01. Introducción al Diseño Arquitectónico

La Fábrica

El encargo solicitado fue la creación de una Galería en la cual se expondría una Marca Aleatoria. Como inicio de composición espacial, se llevó a cabo un ejercicio de uso de planos y líneas para crear espacios Se crearon cinco volúmenes los cuales eran intersecados para generar composiciones espaciales más interesantes.

02. Arquitectura y Arte

Trabajo Parcial

El encargo solicitado fue el diseño de un Mausoleo para el artista Jesús Rafael Soto Se inicio realizando un análisis de las obras del mencionado artista con la finalidad de conocer su estilo artístico. Inspirado en sus obras se buscó desarrollar espacios que se asemejen a los que el desarrollaba. Para realizar dicha composición se usaron líneas y planos.

Trabajo Final

Es esta parte del taller el proyecto encargado fue la creación de una edificación tomando como referencia el estilo de la Arq. Zaha Hadid. Primero se estudio el movimiento arquitectonico que la mencionada arquitecta desarrollaba en sus obras, el cual era el Deconstructivismo. Finalmente, inspirado en sus proyectos se busco desarrollar volumenes que se asemejen a los que ella desarrollaba y asi poder lograr realizar el proyecto.

03. Arquitectura y Entorno

Trabajo Parcial

El proyecto a desarrollar fue un Museo de Joyas en el distrito de Barranco Primero se realizó un análisis del entorno urbano y se plasmo en una primera propuesta abstracta que refleje la intención de diseño. Finalmente el proyecto se adecuo al entorno y la forma de la vía principal, asimismo, el escalonamiento de los volúmenes representa el movimiento de las olas debido a su cercanía al mar

• Maqueta Abstracta

• Propuesta Final

TRABAJO FINAL

El encargo solicitado fue la creación de un Multifamiliar en el distrito de Barranco Se empezó realizando un análisis del contexto urbano inmediato para identificar los estilos arquitectónicos utilizados en el lugar. Esta información fue primordial para desarrollar el diseño debido a que la fachada no debía evidenciar la altura que iba a tener la edificación ya que mayormente eran viviendas de 2 pisos, además de adaptarse al estilo del entorno.

• Elevaciones

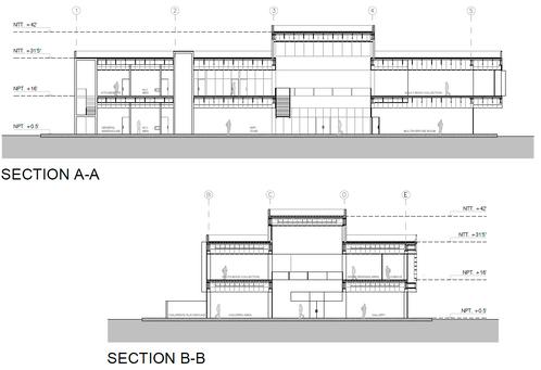
04. Arquitectura y Funcionalidad

Centro de Artes Escénicas

El encargo a desarrollar en el taller fue un Centro de Artes Escénicas ubicado en el distrito de Jesús María. En este proyecto se buscó la interacción visual entre el publico y el artista. Para ello se diseño una plaza interior que genera mayor relación visual entre espacios académicos y sociales.

• Cortes

• Escantillón

• Planta 1 • Planta 2

05. Arquitectura y Medio Ambiente

Museo de la Memoria de la Guerra

La propuesta de diseño empleada en el Museo de la Memoria de la Guerra en el Perú trata de reflejar los traumas ocasionados por las guerras. Se opto por colocar un volumen rectangular, adosado al edificio ya existente, el cual simboliza la paz Este volumen es interrumpido por otros tres en diagonal que representan sucesos de guerra alterando la paz.

• Plantas

• Corte

• Elevaciones

06. Arquitectura y Construcción

Mercado Gastronómico

El encargo solicitado fue diseñar un mercado gastronómico y cultural En este proyecto busco incrementar el turismo y comercio atrayendo a los extranjeros y locales que frecuentan la zona del Ovalo de Miraflores La dificultad del proyecto fue combinar sistemas constructivos y generar una conexión con el proyecto ubicado en la manzana contigua al terreno.

• Planta 1 • Corte Isométrico • Planta 2 • Corte Isométrico

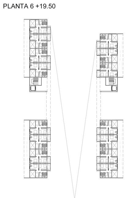
07. Taller de Integración

La Quinta

En un comienzo se planteaba el proyecto con un gran patio en el interior que sirva como lugar de interacción para las personas; además de generar diversos escalonamientos en la volumetría. Finalmente se planteo el agrupamiento de las viviendas con la finalidad de generar una mayor conexión visual entre los residentes de la quinta. Asimismo, se genero una vinculación con el espacio exterior mediante terrazas y se marcaron los ingresos a la edificación mediante triples alturas.

• Corte

• Planta 1

• Planta 2

• Elevaciones

• Escantillón

08. Arquitectura y Ciudad

Regeneración Urbana

El proyecto consta de una edificación hibrida y el planteamiento de una regeneración urbana. La primera planta del proyecto es permeable y cuenta con variedad de espacios públicos y zonas comerciales. En cuanto al segundo nivel, el proyecto se integra y forma un fuerte vinculo con la nueva

propuesta de la plaza urbana elevada Gracias a esta permeabilidad el edificio puede ser transitado libremente sin un recorrido determinado

• Primer Nivel

• Tipologías

• Plantas

• Segundo Nivel

• Corte

• Vistas

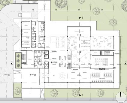
09. Ejercicio Profesional

Biblioteca en San Antonio-Texas

Como primera propuesta se busco separar la parte de servicio del paquete de biblioteca los cuales serian vinculados mediante el espacio social. Luego de diversos cambios se logro llegar al diseño final el cual mantiene la primera propuesta y se ubico la zona de niños en el primer piso para evitar riesgos al subir escaleras; además que pueden ser controlados desde diversos espacios a los cual este se conecta visualmente. En el segundo piso se desarrollan la zona de jóvenes y adultos en una planta abierta para mejor iluminación y evitar corredores ciegos.

• Plot Plan

• Plantas

• Corte

• Elevaciones

• Axonometría

• Escantillón

Gracias. Jairo Jair Ostos Acosta jairo.ostos1296@gmail.com +51 954 641 095

Turn static files into dynamic content formats.

Create a flipbook
Issuu converts static files into: digital portfolios, online yearbooks, online catalogs, digital photo albums and more. Sign up and create your flipbook.