PORTAFOLIO Jaime Gonzalez 2023

Page 1

Jaime David Gonzalez Rosario. Trabajos del 2019 al 2022

Selección de trabajos paisajistas.

Investigaciones y propuestas arquitectónicas de carácter urbanistas.

Aplicación de conocimientos gráficos, diagramados y organización de elementos digitales.

EXTRA

Diseños interioristas dentro de proyectos arquitectónicos previamente presentados.

01 02 03 04 INTRODUCCION DISEÑO GRAFICO PROYECTOS PAISAJISMO ARQUITECTÓNICOS URBANiSMO 05
Contenido:
Selección de proyectos arquitectónicos de carácter académico y en el ámbito laboral. Selección de trabajos paisajistas.
06

“La arquitectura es más que muros y columnas, es el principal ente que participa en la concepción de la sociedad actual, capas de transformar su entorno, su contexto, la cultura y la economía”.

Jaime David Gonzalez Rosario.

ARQUITECTÓNICOS

PROYECTOS SELECCIONADOS

PROYECTOS ARQUITECTÓNICOS 04

02

CASA EL PINTO Propuesta de vivienda en zona del sur de Republica Dominicana.

MERCADO TROPICAL

Proyecto de Diseño arquitectónico Universitario de 7mo semestre.

03

PLAZA COMERCIAL PARADISE VILLAGE

Propuesta plaza comercial para constructora INNOVASOL en Bavaro punta cana. 05

06

ESTUDIO 444

Propuesta de edificio oficinas de arquitectura,

TOWNHOUSE WHITESAND

Propuesta de villa tipo townhouse para zona exclusiva de whitesand, Bávaro Punta cana.

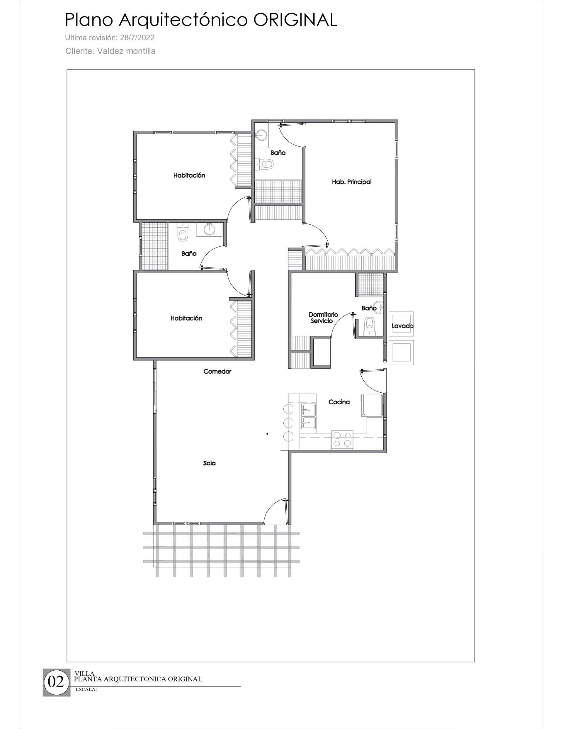
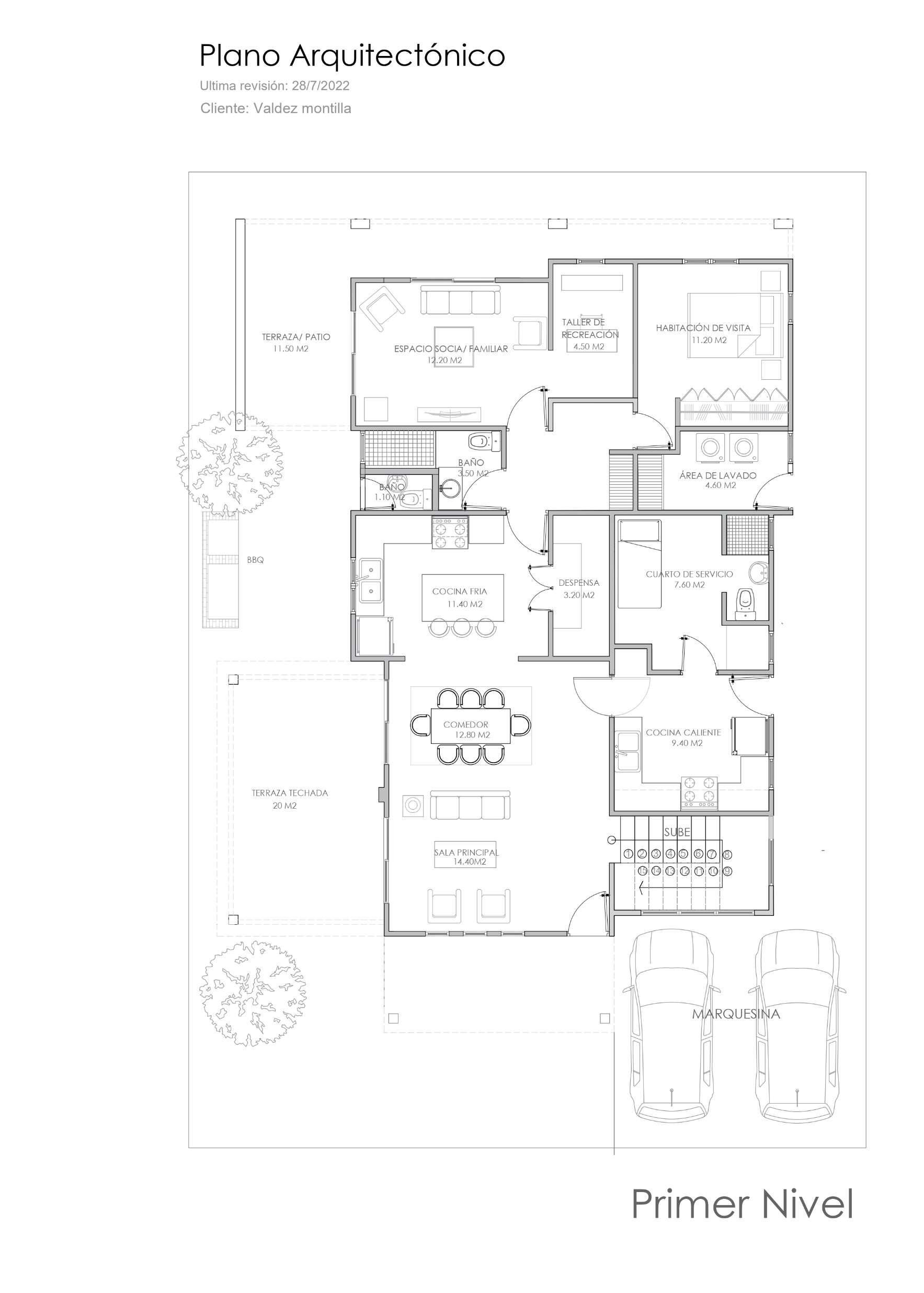
VILLA MONTILLA VALDEZ

Remodelacion de vivienda unifamiliar en la exclusiva vecindad de punta cana, ciudad la palma.

01

CASA EL PINTO. 2020

Propuesta de vivienda en zona del sur de Republica Dominicana.

Como si se tratase de una visión, vino a mi este diseño, tan simple pero fresco, donde aplique uno de los principios mas básicos de la arquitectura, la extracción Ya que visualizaba un cubo al cual penetre con una circunferencia , eliminando así la esquina

Con una alta inspiración en la arquitectura mexicana, la casa el pinto se define como una residencia solicitaría, abierta al exterior, interactiva con el contexto y equilibrada; debido a que con pocos elementos se mantiene en un increíble equilibrio visual

La intensión de la rotonda no es mas que el usuario experimente como si la fachada pertenecía a esta gran pieza redonda de la cual fue arrancada y en su centro solo queda un minimalista jardín seco

En la planta arquitectónica es fácil de identificar la utilidad de esta casa y es que, aunque pretende ser una vivienda para la zona sur de la Republica Dominicana, esta no esta conformada por espacios tradicionales del país, mas bien es un espacio de vacacionar, de puro ocio, meditación y aislamiento de la sociedad, algo así como lo que encontrarías en esas películas de suspenso, una vivienda rosada en medio de la nada, donde los días son cálidos y las noches de heladas brisas.

Primer Nivel Segundo Nivel 1.Galeria/ recibidor 2 entrada/ vestíbulo 3 sala de estar / sala común 4 estudio 5.cocina 6.escaleras 7.área de comedor 8. terraza 9 Piscina 10. Desierto 11. Family room 12 Habitacion 1 13 Baño común 14 Habitacion compartida abierta 15 Habitacion principal 16.Balcon común 12 13 15 16 14 11 04 03 02 01 06 05 07 08 09 10

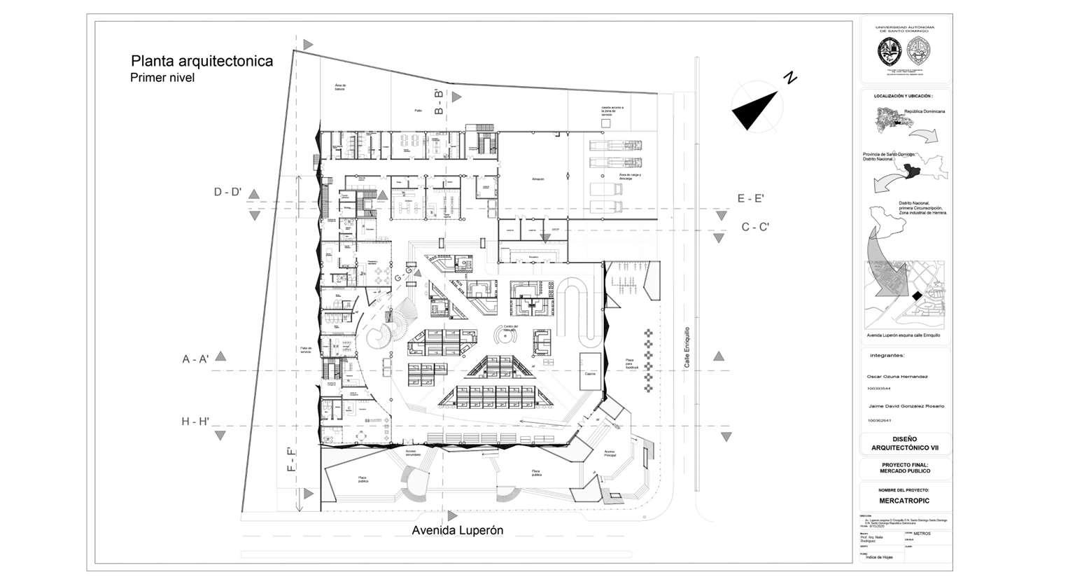
MERCATROPIC.

EL MERCADO COMO UN ESPACIO CULTURAL. SOCIAL Y ECONOMICO.

Propuesta para aprobar diseño arquitectónico 7. Proyecto de mercado publico para Santo Domingo Oeste.

El proyecto del mercado municipal se encuentra ubicado en la avenida Luperón esquina av. Enriquillo, Santo Domingo Oeste, República Dominicana.

.

Por medio de la ubicación y localización, encontrarnos con este ente arquitectónico será la bienvenida visual que bridara al ciudadano, un punto focal que transforma todo un entorno en un nuevo contexto, posicionándonos ante una imponente entrada que se ve jerarquizada por perdida fugaz del portal principal que según vamos ascendiendo nos vamos encontrando con este marcado acceso, la concepción plástica se ve influenciada por un equilibrio oculto asimétrico de carácter ascendente donde la verticalidad y la horizontalidad no influyen en sus fachadas principales

La presencia de dos factores abióticos en el interior es digna de resaltar y estos son el aire, que recorre con facilidad el espacio y proporciona frescura en el ambiente y la presencia de la luz que juega un importante papel en la experiencia sensorial ya que funciona como reflectores naturales ante un espectáculo colorido y sensorial

El objetivo del proyecto es la contemporaneidad y la evolución morfológica de la tipología arquitectónica de un mercado tradicional que busca la adaptación de un entorno ya existente pero con una visión trascendental y sea capaz de adaptarse al panorama progresivo de la ciudad de Santo Domingo conjunto a las incidencias bioclimáticas de un país tan tropical como es Republica Dominicana,

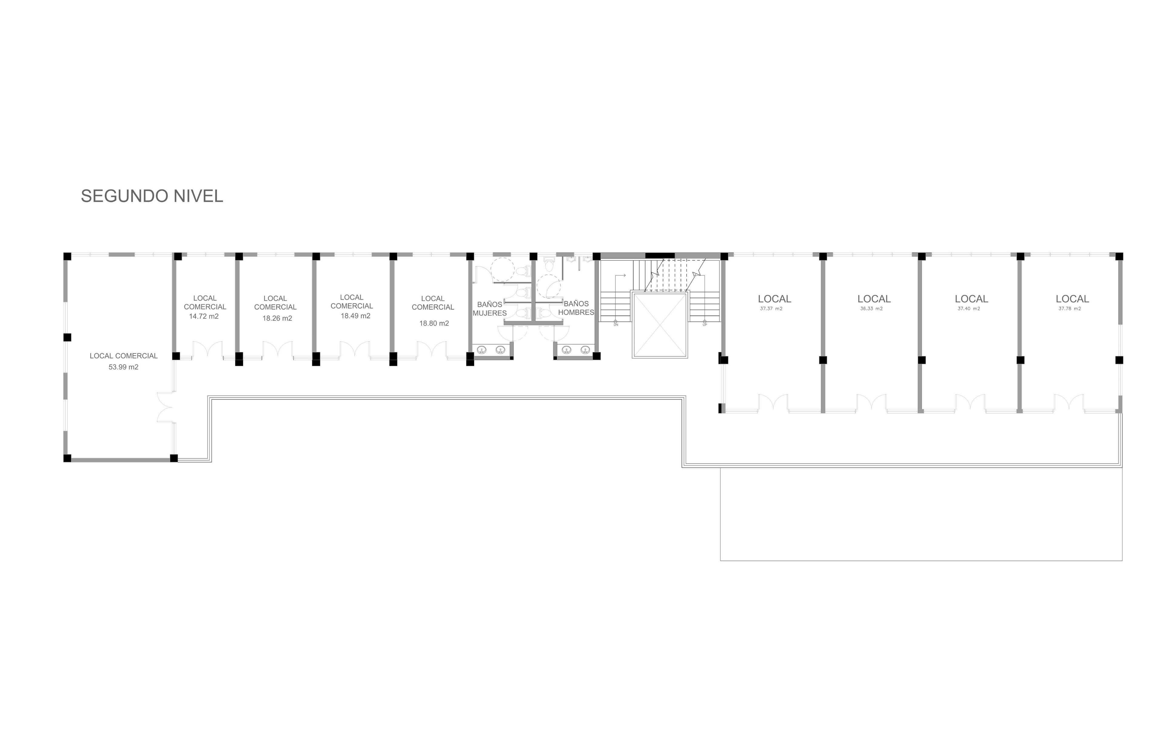
PLAZA COMERCIAL PARADISE VILLAGE

ARQUITECTURA COMERCIAL. FUNCIONAL Y RENTABLE

Propuesta plaza comercial para constructora INNOVASOL en Bavaro punta cana.

La plaza comercial Paradise village se caracteriza por ser un diseño contemporáneo, fresco y minimalista, que resalta por sus acabados modernos y sus terminaciones simples

Un espacio comercial capaz de acoger distintas actividades con el fin de satisfacer las demandas de los miembros residentes del complejo y a su vez residentes vecinales Un Lugar flexible capaz de brindar micro áreas con distintos servicios y confort

ESTUDIO 444

ARQUITECTURA FORMAL Y FUNCIONAL

Propuesta de edificio oficinas de arquitectura,

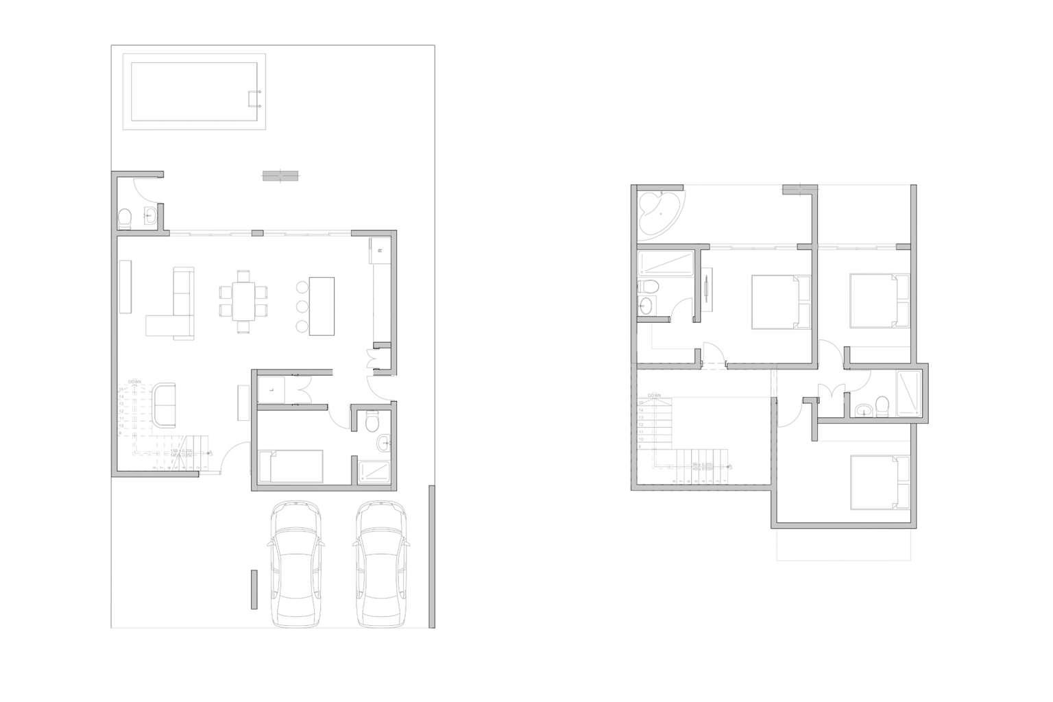
TOWNHOUSE WHITESAND

ARQUITECTURA COMERCIAL RENTABLE

Propuesta de villa tipo townhouse para zona exclusiva de whitesand, Bávaro Punta cana.

La plaza comercial Paradise village se caracteriza por ser un diseño contemporáneo, fresco y minimalista, que resalta por sus acabados modernos y sus terminaciones simples

Un espacio comercial capaz de acoger distintas actividades con el fin de satisfacer las demandas de los miembros residentes del complejo y a su vez residentes vecinales Un Lugar flexible capaz de brindar micro áreas con distintos servicios y confort

PRIMER NIVEL SEGUNDO NIVEL
5
01 02 08 07 03 04 05 06 09 10
07 07 07 04 02 01 03 05 06
1 Jardin 2 Marquesina 3 Sala/ recibidor 4 Sala de estar
Comedor 6 Cocina 7 Area de lavado 8 habitación de servicio. 9.baño de visitas. 10.Patio.
1 Habitacion 1 2 habitación2 3 Baño común 4 Habitacion principal. 5.Walking closet. 6.Baño Principal. 7. Balcones.

VILLA MONTILLA VALDEZ

ARQUITECTURA COMERCIAL. FUNCIONAL Y RENTABLE

Remodelación de vivienda unifamiliar en la exclusiva vecindad de punta cana, ciudad la palma.

PAISAJISMO

AREA SOCIAL PARADISE VILLAGE

Propuesta de espacio social para complejo de villas en bavaro.

Esta área verde se define como un espacio lúdico, social y flexible, capaz de acoger distintas actividades para satisfacer las necesidades de los huéspedes, con el dimensionamiento ideal para la realización de eventos familiares.

Su amplio recorrido, su claro sendero y su lineal desarrollo, este espacio promete ser un escape visual que brinde paz y tranquilidad a todo aquel que busque una conexión con el exterior.

01

PAVIGRAMA. “GRAVAQUINE”

Luminaria de pincho. MALLA CICLONICA. (cerramiento y división)

FUKIEN TEA (arbusto para cubrir instalaciones electricas)

Crotón amarillo y rojo

“”crotomami”” (Codiaeum variegatum)

PRESENTACIÓN MOODBOARD

CESPED

BERMUDEZ

PALMA ARECA (Palma dividir)

PALMA REAL ROYAL PALM COMUN GRAMA

RESTAURACIÓN AVENIDA 27 DE FEBRERO

La respuesta a este problema es evidente, y es que estos primeros tramos de la avenida 27 de febrero son los mas problemáticos, son los que mas presentan conflicto urbano, paisajístico y arquitectónicos.

Crear una propuesta que sea capaz de contemplar soluciones puntuales pero que a la vez se adapte a la realidad que aun azotara por años a la zona y que sea capaz de ser funcional, simple pero estética. El objetivo de la renovación urbana es el de identificar partes de la ciudad que no están siendo aprovechadas o están deterioradas, y transformarlas con la intención de darles mayor calidad de vida a las personas que viven en o alrededor de la zona afectada.

La idea del proyecto es Dividir en la isleta en tres tramos que representen su realidad inmediata. Brindando esplendor, embellecimiento y renovación paisajística pero a la vez coherente con la fuerte realidad urbana que no cambiara de la noche a la mañana. AUTODENOMINÁNDOSE COMO UNA PROPUESTA FUNCIONAL Y REALISTA.

02

UBICACIÓN

Republica Dominicana Provincia de Santo Domingo Distrito Nacional
Circunscripción
1ra
América

MoodBoard

Site plan

Plano arquitectónico

00

NUEVO PERFIL URBANO BARRIO CIENEGA

El barrio de la ciénaga, perteneciente al sector Domingo Savio, del Distrito Nacional fue seleccionado para ser modelo impulsor de la recuperación de la rivera del rio Ozama, con distintos objetivos, como son:

Recuperación del cinturón verde.

Disminuir la contaminación del rio Ozama.

Explotar el valor económico que puede bridar el rio Ozama.

Inculcar una cultura que se preocupe por este cuerpo de agua tan importante y comencemos a proyectar la ciudad hacia el y no a sus espaldas.

Aprovechar el potencial visual que puede brindar un rio en una ciudad.

Tema general: Arquitectura y medioambiente / Subtema general: Arquitectura sostenible / Tema especifico: La arquitectura sostenible como agente de servicio y de cambio en el desarrollo urbano sustentable / Vehículo arquitectónico: Nuevo perfil Urbano para la ciénaga “Borde ecológico Ozama”

73

Turn static files into dynamic content formats.

Create a flipbook
Issuu converts static files into: digital portfolios, online yearbooks, online catalogs, digital photo albums and more. Sign up and create your flipbook.
PORTAFOLIO Jaime Gonzalez 2023 by Jaime David Gonzalez Rosario - Issuu