Interior Design Portfolio
Jaime Curtis
ENTREPRENEURSHIP
Size: 1596 Sqft
Software: Revit, Rhino, Enscape, Photoshop
![]()
Interior Design Portfolio
Jaime Curtis
Size: 1596 Sqft
Software: Revit, Rhino, Enscape, Photoshop
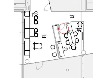
The Entrepreneurship Center is in the middle of the floor plate located on the second floor which connects to labs and office spaces. The client challenged us to create a more visually stimulating space that could support functional collaboration for the users and reduce clutter. This new design offers a dynamic approach, allowing for more flexible and diverse uses in the center. In the workspace, there are now three offices, a coffee counter with a sliding barn door, and a variety of seating areas. The client was really happy with this approach because every space served a better purpose.
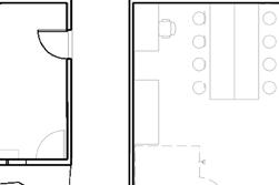
LOUNGE AREA - ADDED COFFEE BAR WITH BARN DOOR
CEILING PLAN - LEVEL 2
CONSTRUCTION PLAN - LEVEL 2
CONFERENCE ROOM - SEATS SIX PEOPLE WITH ADDED FELT WALL FOR ACOUSTICS
Size: 8,500 Sqft
Software: Rhino, Enscape, Photoshop, Illustrator
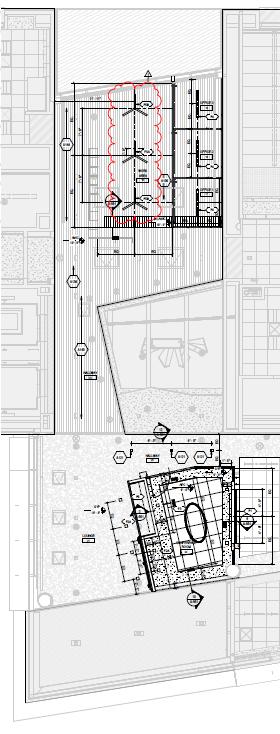
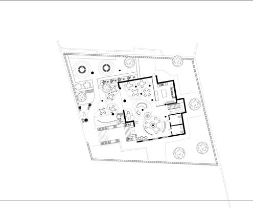
Collectivity is a cultural center that is based in an old 1950s Villa in Beit Hanina, Jerusalem. The Villa was transformed into a space that focuses on culturally enriching activities that supports and engages the local people to feel connected and rejuvenated. It connects the people of Beit Hanina to food, art, music and nature.
Design Approach and Implementation: Balance of structure and delicates. The use of arches to delegate different spaces and create a harmony with the exterior and interior boundary. Also contrasting it with more simplistic furniture pieces and nature.
The materials palette is based on the popular Israeli meal Hummus. Jerusalem is known for having some of the best hummus in the country. The site materials are selected to capture the beauty and simplicity of Jerusalem’s hummus. The materials are meant to be lighter and delicate to support the existing limestone walls and the lofted columns that connect the different spaces together.
Design Approach
Connecting the interior and exterior as well as both levels with lofted columns to allow a strong connection to nature
Programming Connecting people through Food, Art, Nature, and Music
Community
Create a Hub that brings people together with a multi-functional space through culturally enriching and supportive activities
The second floor houses the art exhibition and live music on the terrace. The opening through the two levels in the center helps encourage spatial organization while utilizing natural light to help brighten the space and connect to the outdoors.
Subtracting
Point Control/ Shape
Manipulation
Grid Movement
Group of Two
Size: 13,329 Sqft
Software: Rhino, Enscape, Illustrator, Photoshop
Pinching/ Pulling
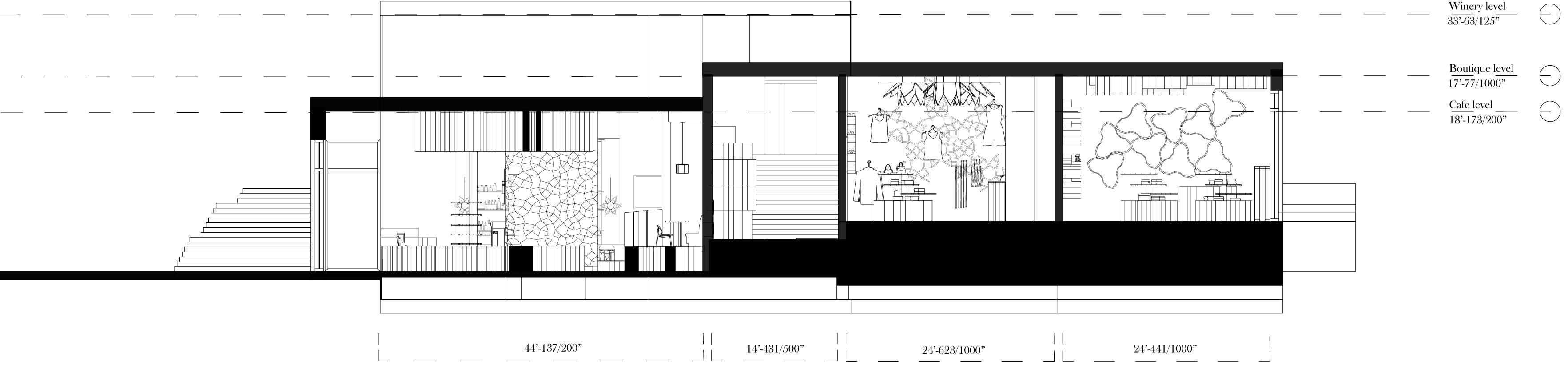
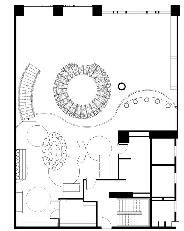
Oasis is a conceptual design for District S based in Beirut, Lebanon. The design goal was to create beautiful spaces that reflect the culture and wealthy atmosphere of Beirut. This location had many spaces to design that all needed to connect and create a universal plan for the public. The concept focuses on creating a self-care and leisure space for people to enjoy life. There are four different patterns used through the six zones. Each pattern was specifically placed in each zone to develop spacial designs as well as ornamental use throughout District S.
In the Winery, the focal point is the giant ceiling pieces that engulfs the space. These pieces are derived from a 2D Pattern that is also used to create the wine display barrels underneath. The ceiling also has pieces that glow and act as a light source to illuminate the space. In the winery, there are deeper colors of burgundy and grays to set an intimate and cozier feel to the space.
The Cafe/ Bar and Night Lounge is a great social setting for people to interact and take in the beautiful structural designs of District S. The design for this space was derived from the 2D flower pattern that branched out to become the step system, ceiling pieces, and the pods in this space. The steps were designed in a way to be interactive and allow people to climb up and mingle with friends. We also filled in the spaces where the pattern meets with a lightly blue tinted resin that appears to glisten when the natural sunlight hits it.
Size: 16,000 Sqft
Panasonic is an energy company that makes items to improve the lives and maintain the well-being of people. Our challenge was to redesign Panasonic headquarters in Mountain View, CA to encourage collaboration and incorporate the use of biophilic elements to connect with nature. The concept for Panasonic is a puzzle. After completing the site analysis, one of the biggest things the office lacked was communication. This idea of a puzzle will work to bring the different departments closer together and spark more communication. Puzzles signify connection and thinking out side the box to solve problems.
The Feature wall includes an organic shape derived from testing out different lines. The biophilic element connects clients and employees to nature and sparks Panasonic’s move towards green energy.
This wall was created for the sales department. It plays with the concept of puzzle pieces coming together to form a whole. I designed built-in seating spaces for people to work individually. This wall feature has biophilia elements to tie the space back to nature and green energy.
The ceiling grid is derived from a puzzle study that plays with the removal of pieces to provide relief and discover depth for a more intimate and active environment.
ELEVATION
HEIGHT 7’ 4-3/4” DEPTH 4’ 9”
Designed focus pods to allow for employees to work individually while encouraging open communication. The pods are created from one piece that is arrayed to form a semicircle.
CONCEPT OWL + TECHNOLOGY
Size: 4,143 Sqft
Software: Revit, Rhino, Enscape, Illustrator, Photoshop
Sweet Reads is a bookstore and candy shop that sparks people’s imagination and brings out the child that lives in everyone. It consists of geometric shapes and interesting structural elements that are captured from the idea of candy crystals. It translates the idea of the owl and technology by playing with old and new materials. This shop has a modern yet cozier feel by incorporating a warmer materials palette.
The First Friday Reading Area is a place where people can explore crafts and new books with authors. The dome is inspired by candy. It has a hard outer shell that acts as a shelter with crystallized stain glass for customer visibility.
CRYSTAL SHELVING + RECEPTION
The forms seen in this project explore the idea of power lines that grow and expand to connect an abundance of people together. This growth can be seen through the crystallized clustered light fixture.
Jaimeacurtis@gmail.com