Skip to main content

Academic Portfolio

Page 1

Portfolio Acedemic works 2015-2020

Hi, this is jahnvi dave | aspiring architect and designer

With a robust background of over a year in the dynamic field of design and architecture, coupled with over two years of leadership experience, I offer a wealth of expertise in utilizing technology, driving innovation, and guiding teams toward outstanding results.

I hold a bachelor's degree in Architecture from India. Currently, I am seeking to complete my CACB accreditation and aspire to become a member of the Ontario Association of Architects (OAA). I am eager to commence my internship and contribute to the field with my skills and knowledge.

Contact info

email: jahnvidave9@gmail.com

work no.: +1 4168468654

Linkedin: www.linkedin.com/in/jahvi-dave-159925127/

Conestoga College, ON, CA 2022 - 2023

L.J. School of Architecture 2015-2020

Graduated with a 3.7 GPA, equipped with a comprehensive understanding of architectural design principles with the research thesis topic: Psychology in learning spaces. Understanding of construction techniques, and project management.

Architectural Design

Proficiency in software (e.g., AutoCAD, Rhino)

Understanding of construction materials and techniques.

BIM software understanding (e.g., Revit)

Familiarity with sustainable design practices

Project management skills visual presentations and renderings

Junior Architect

J&D Architect, India

2020-2021

•Assisted in creating preliminary design sketches, 2D drawings in AutoCAD, and 3D models in Revit and Sketchup to help stakeholders visualize the early design concepts.

•Participated in client meetings, actively listening to their preferences and requirements, and incorporating feedback into the evolving design.

Learning Revit

Sustainability in design, Construction and manufacturing Introduction to Psychology

AI Urbanised Parametrized 2.0

Learning new softwares Singing Reading Stand up comedy English Hindi French
Revit Autocad Sketchup Rhino Photoshop Lumion Indesign Microsoft office
youth centre Institute of music and arts Internship Slum development Contents 01 02 03 04 05 Lake re-development

Institute of music and arts

Site Location: Idar, Gujaeart, India

Site area: 14184.96 sqm

Situated in an underdeveloped area of the city, this lakefront site holds immense potential for transformation into a stunning urban intervention. Nestled alongside a serene lake, with a neighboring village, ancient temples, and century-old trees, this project sought to breathe new life into the area. The goal was to create a space that would invite the entire community to engage with the previously overlooked water body.

Natural contours of the site Placement of building considering the contours

A lakefront site with varying levels presented a remarkable opportunity to weave together the captivvating allure of nature and the creativity of human architecture. The task was to design a space where the organic contours of the land meet the precision of well-planned design, resulting in a harmonious fusion of the built form.

01
Softwares used: autocad, photoshop, revit, sketchup, lumion
INSTITUTE AR. NILAM AR. RAGHUVIR            

REMARKS

KEY PLAN

LEGEND

REMARKS

LEGEND KEY PLAN
                            WALL PLASTER CENTERLINE FLOOR BRICK WALL CONCRETE
                         
PLASTER CENTERLINE FLOOR
WALL CONCRETE
WALL
BRICK

Youth centre

Site Location: Goa, India

Site Area: 4886.7 sqm

Situated in the vibrant city of Goa, our selected site for the Responsive Space Planning (RSP) project becomes the canvas for an innovative youth center design. Our primary goal is to infuse contextual architecture into the space, deviating from traditional norms by experimenting with diverse 3D forms and curves. The intention is to disrupt monotony and create an environment that not only caters to the multifaceted development of youth but also fosters their physical and cognitive growth.

Softwares used: autocad, photoshop, revit, sketchup, lumion

Built

form development

Raw curved entrance combined with traditional rectangular spaces to break monotony of traditional youth centre

02

The envisioned youth center encompasses a spectrum of facilities, including educational spaces, theaters, play zones, technological rooms, a reading room, as well as dedicated areas for yoga and a gym. The incorporation of these diverse spaces aims to offer a stimulating and adaptive environment, ensuring that the center remains a versatile and evolving platform for the youth of Goa.

Ground Floor Plan First Floor Plan

slum redevelopment

Site Location: ahmedabad, India

Site Area: 100400 sqm

This housing project focuses on one such slum redevelopment project in Ahmedabad west, nava vadaj which is one of the largest slum area in the city with almost 80,000 hutments and 1.5 lakhs of the population as per given data by AMC. The housing conditions in slums many homes are pucca construction while many have kuccha houses with nearby work area.

there are different communities residing together with their social and physical boundaries defining their area with certain elements like gates, different occupations, and housing typologies and clusters. Thus, this slum has been surveyed and studied under various expertise and a plan for redevelopment is proposed for the better living standards of human habitat.

03
Softwares used: autocad, photoshop, revit, sketchup, lumion

The whole area has been divided into 6 sectors containing 80,000 hutments and around 150,000 people.

Urban + Environmental Analysis

Issues Of Existing Slums

• Improper or no light and ventilation

• Health issues

• Lack of sanitary, toilets, etc.

• Poor quality of drinking water

• Overflow gutters in monsoon

• Communal riots

• Poor quality of micro climate of the area

• No education after primary schools

• Travelling for jobs and seasonal occupations

• Problems in monsoon like overflow of drainage diseases

• Inadequate space

Selling their pottery products on road Improper waste management Chandrabhaga nala on the backside of slum Open space in slum

In the meticulous planning of the built forms, sustainability emerged as a pivotal and integral factor, significantly influencing the entire design process. Recognizing the pressing need for environmental responsibility, our approach prioritized sustainable practices to ensure that the built environment harmonizes with ecological well-being.

hardscape vs softscape

Entry/exit from three primary roads shows controlled vehicle

Hierarchy of open spaces showcasing community space, walking space, vegetable market, clinic, rag picking, storage gathering space.

1

vehicular (green) vs pedestrian (red) movment network

2

Cluster design plays a pivotal role when conceptualizing a space tailored for the rehabilitation of a closely-knit community. The first type of cluster is designed to address specific rehabilitation requirements, providing an environment conducive to healing and growth by fostering a sense of unity and shared support. Additionally, the accompanying open space within this cluster serves as a communal area for activities that promote socialization, therapy, and overall well-being.

In contrast, the second type of cluster introduces a different set of functionalities, tailored to accommodate diverse needs within the rehabilitative community. The associated open space here is strategically designed to enhance the overall accessibility and adaptability of the area, providing room for various rehabilitation programs, recreational activities, and community events.

Cluster Cluster Unit plan
Proposed Solution Features

Occupation includes labour work to rikshaw driving, working in amc, rackpicking pottery, cattle, small shops, house keeping,

Females are busy in other works like rags picking, making handicrafts, as workers, going for cleaning homes of others, sweepers, etc.

Community of valmiki samaj i.E bhangi, chamar, thakore, kumbhar, varnkar lives here.

Building materials for Walls : mud, brick

Floor : kota stone, cement floor Roof : corrugated sheet, rcc slab

drafted the working plans and sections for the purpose of making a miniature at a different location

Internship

Internship at: Footprints E.A.R.T.H.

Architect Yatin Pandya

worked on a varity of projects from working drawings for institutions, presentation drawings for extension of a residence, a water park to working on making drawings for miniature temple structures from original ones

Softwares used: autocad, photoshop, revit, sketchup, lumion

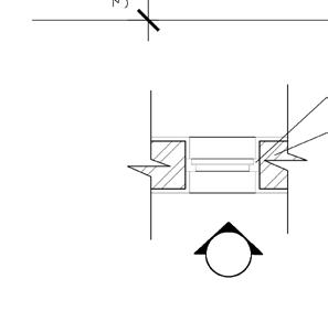
12" thk stone cladding stone plinth in elevation 0.20 0.10 0.15 0.20 0.55 0.05 0.10 0.40 0.15 0.10 0.50 0.05 0.15 0.25 0.65 0.55 0.05 0.20 0.40 5.40 A B C D E F G H J K L 1 2 3 4' 4 5' 5 6' 6 7 8 0.30 0.55 0.25 0.50 0.55 0.25 0.50 0.40 0.25 0.25 0.35 0.0 lvl 0.55 lvl 1.10 lvl 1.85 lvl 2.20 lvl 2.08 lvl 3.25 lvl 4.35 lvl 2.05 lvl 0.55 0.55 0.80 1.35 0.55 0.55 0.75 0.20 0.15 0.65 0.45 1.05 0.35 0.90 0.45 0.35 0.45 0.50 0.65 A B C D E 0.50 0.40 10 30 20 40 CM 10 30 20 40 CM SOLID BRICK FILLING stone column solid brick filling stone cladding stone column = 60mm R = 30mm plinth 4.30 0.25 0.05 0.10 0.20 0.15 0.05 0.50 0.05 0.15 0.20 0.10 0.05 0.25 0.15 0.15 2.50
04
12" thk stone cladding stone plinth in elevation 0.20 0.10 0.15 0.20 0.55 0.05 0.10 0.40 0.15 0.10 0.50 0.05 0.15 0.25 0.65 0.55 0.05 0.20 0.40 5.40 A B C D E F G H J K L 1 2 3 4' 4 5' 5 6' 6 7 8 0.30 0.55 0.25 0.50 0.55 0.25 0.50 0.40 0.25 0.25 0.35 A B 10 30 20 40 CM SOLID BRICK FILLING stone column T 60mm R 30mm 0.25 0.05 0.10 0.20 0.15 0.05 0.50 0.05 0.15 0.20 0.10 0.05 0.25 0.15 0.15 2.50

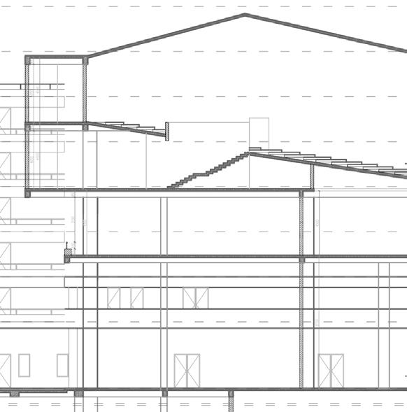
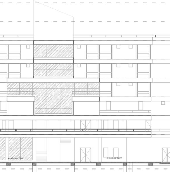
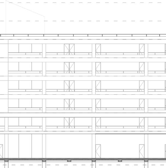
project details: a community center including housing blocks, theatre, office spaces, and recreational spaces

my contribution: produced the set of working drawing and 3d model on autocad and revit

drafted working sections in autocad and revit east section

courtyard view east elevation

05 lake re-development

Site Location: Shela, India

Site Area: 100400 sqm

The project aimed to uplift the significance of a village by breaking the singular mindset of its financially challenged residents. The design focused on providing opportunities for socio-economic and cultural development through three key aspects: women empowerment, religious tolerance, and social-vocational training.

TO INTEGRATE A NODE OF PUBLIC LIFE.

❑ METHEDOLOGY – THE PROGRAM REVOLVES AROUND THREE ASPECTS 1. WOMEN EMPOWERMENT

2. RELIGIOUS TOLERANCE

3. SOCIAL AND VOCATIONAL TRANING

❑ SCOPE – THE LAKE IN SHELA DISTRICT, SIGNIFICANT

the revival of the lake within the village serves as a catalyst for positive transformation in the urban fabric. by integrating the lake into the urban planning framework, a synergistic relationship is established, enhancing the overall quality of the built environment. the creation of a waterfront promenade and green spaces not only contributes to the aesthetic appeal but also fosters a sense of community and recreational engagement. the development of mixed-use zones along the lakefront injects vitality into the urban economy, offering commercial opportunities that uplift the financial well-being of the village. the incorporation of sustainable urban design principles, such as eco-friendly architecture and smart infrastructure, not only promotes environmental conservation but also ensures the long-term resilience of the urban space.

BASE MAP OF EXISTING SHELA GAMTAL AND LAKE LAKE FRONT
BY ENGULFED
AIM - THE AIM OF THE LAKE FRONT DEVELOPMENT BY ENGULFED VILLAGE IS THE UPLIFT THE SIGNIFICANCE OF SHELA GAMTAL.
OBJECTIVE – THE DESIGN MOVES TO BREAK THE SINGULAR MINDSET OF THE FINANCIALLY CHALLENGED CLASS OF PEOPLE. TO PROVIDE THE OPPORTUNITY OF THEIR SOCIOECONOMIC AND CULTURAL DEVELOPMENT BY IDENTIFYING AND ENHANCING AS WELL AS DEVELOP OTHER SKILLS. TO INTEGRATE A NODE OF PUBLIC LIFE. ❑ METHEDOLOGY – THE PROGRAM REVOLVES AROUND THREE ASPECTS 1. WOMEN EMPOWERMENT 2. RELIGIOUS TOLERANCE 3. SOCIAL AND VOCATIONAL TRANING ❑ SCOPE – THE LAKE IN SHELA DISTRICT, A SIGNIFICANT SCALE OF 17,000 SQM, IS SITTING UNUSED. THUS TAKING THE INITIATIVE TO DEVELOP THE LAKE FRONT OF 36,000 SQM, NOT ONLY HELPS IN SELF-SUSTAINING THE PEOPLE OF THE AREA BUT ALSO ADDS A SOCIOCULTURAL VALUE TO SHELA. THE VILLAGE IS SITUATED AT VERY VIBRANT LOCATION BETWEEN KNOWLEDGE ZONE, IMPORTANT HIGHWAYS AND UPCOMING RESIDENTIAL ZONE OF BOPAL. ❑ ISSUES OF SHELA GAMTAL NO AMTS OR BRTS TRANSPORT DIFFICULTY OF TRANSPORT LONG DISTANCE FOR EMPLOYMENT NO ENTERTAINMENT AROUND ONLY UPTO PRIMARY SCHOOLS ❑ OPPERTUNITIES OF SHELA GAMTAL A SPACE WHERE PEOPLE OF SHELA GIVEN AN OPPORTUNITY FOR EMPLOYMENT SEASONAL SALES FOR ALL FESTIVALS OF ALL COMMUNITIES THE COMMODITIES MANUFACTURED BY THE PEOPLE OF SHELA GAMTAL ▪ ACTIVITY CENTRE – VOCATIONAL TRAINING, COMPUTER TRANING, SPORTS CENTRE FOOD BAZAR, CRAFT BAZAR AS MAIN ATTRACTION OF THE AREA A PLACE FOR GLOBALIZATION – PLAZAS, CYBER ZONE, READING SPACE A MULTIPURPOSE HALL, CHILDREN PLAY AREA TOTAL NO OF HOUSES 256 POPULATION PER HOUSE URBAN DESIGN STUDIO SEM: YEAR: 201 L.J SCHOOL OF ARCHITECTURE Student Name Jahnvi Dave - 153541050006 SITE: SHELA GAMTAL Site Area: 42,700 SQM Drawing Name/Title SCALE: 47% TOTAL POPULATION males TOTAL LITERACY RATE EXISTING LAKE AND WATER LEVEL CURRENT USE OF LAKE BUNCH OF BANYAN TREES ON THE EDGE OF THE LAKE TP SCHEME OF SHELA GAMTAL AHMEDABAD DEVELOPMENT PLAN 2021 BASE MAP OF PROPOSED SHELA GAMTAL AND LAKE DEMOGRAPHIC DATA BASE MAP OF EXISTING SHELA GAMTAL AND LAKE LAKE FRONT DEVELOPMENT BY ENGULFED VILLAGE ❑ AIM - THE AIM OF THE LAKE FRONT DEVELOPMENT BY ENGULFED VILLAGE IS THE UPLIFT THE SIGNIFICANCE OF SHELA GAMTAL. ❑ OBJECTIVE – THE DESIGN MOVES TO BREAK THE SINGULAR MINDSET OF THE FINANCIALLY CHALLENGED CLASS OF PEOPLE. TO PROVIDE THE OPPORTUNITY OF THEIR SOCIOECONOMIC AND CULTURAL DEVELOPMENT BY IDENTIFYING AND ENHANCING AS WELL AS DEVELOP OTHER SKILLS.
Softwares used: autocad, photoshop, revit, sketchup, lumion
DEVELOPMENT
VILLAGE ❑
SCALE
THE PEOPLE OF THE AREA BUT ALSO ADDS A SOCIOCULTURAL VALUE TO SHELA. THE VILLAGE IS SITUATED AT A VERY VIBRANT LOCATION BETWEEN KNOWLEDGE ZONE, IMPORTANT HIGHWAYS
OF 17,000 SQM, IS SITTING UNUSED. THUS TAKING THE INITIATIVE TO DEVELOP THE LAKE FRONT OF 36,000 SQM, NOT ONLY HELPS IN SELF-SUSTAINING
AND UPCOMING RESIDENTIAL ZONE OF BOPAL.
NO
DISTANCE
NO
ONLY
PRIMARY SCHOOLS ❑ OPPERTUNITIES OF SHELA GAMTAL SPACE WHERE PEOPLE OF SHELA IS GIVEN AN OPPORTUNITY FOR EMPLOYMENT SEASONAL SALES FOR ALL FESTIVALS OF ALL COMMUNITIES THE COMMODITIES MANUFACTURED BY THE PEOPLE OF SHELA GAMTAL ▪ ACTIVITY CENTRE – VOCATIONAL TRAINING, COMPUTER TRANING, SPORTS CENTRE FOOD BAZAR, CRAFT BAZAR AS MAIN ATTRACTION OF THE AREA PLACE FOR GLOBALIZATION – PLAZAS, CYBER ZONE, READING SPACE A MULTIPURPOSE HALL, CHILDREN PLAY AREA CENSUS TOTAL TOTAL POPULATION SCHEDULED SCHEDULED WORKING CHILD(0 GIRL URBAN DESIGN STUDIO SEM: YEAR: 201 L.J SCHOOL OF ARCHITECTURE Student Name Jahnvi Dave - 153541050006 SITE: SHELA GAMTAL Site Area: 42,700 SQM Drawing Name/Title SCALE: 47% TOTAL POPULATION males females EXISTING LAKE AND WATER LEVEL CURRENT USE OF LAKE BUNCH TP SCHEME OF SHELA GAMTAL AHMEDABAD DEVELOPMENT PLAN 2021 BASE MAP OF PROPOSED SHELA GAMTAL AND LAKE
❑ ISSUES OF SHELA GAMTAL
AMTS OR BRTS TRANSPORT DIFFICULTY OF TRANSPORT LONG
FOR EMPLOYMENT
ENTERTAINMENT AROUND
UPTO
site plan

The design incorporated features such as a seasonal sales space for festivals, vocational and computer training facilities, a sports center, and a food and crafts area to attract visitors. Additionally, a multipurpose hall and a children’s play area were included, providing employment opportunities and enhancing the overall quality of life in the village.

Turn static files into dynamic content formats.

Create a flipbook