Portafolio Jessica Velásquez

Page 1

SEVEN HILLS

PORTAFOLIO ARQUITECTONICO DIRIGIDO PORARQ. JENNY FORERO
2001320042
JESSICAMILENAVELÁSQUEZ MEJÍA–
N Ú CLEO DE FUNDAMENTACI Ó N VIVIENDA B Á SICA

CALARCA- QUINDIO

El proyecto se desarrolló en el departamento del Quindío en el municipio de Calarcá con 4.5° de latitud norte y con altitud variable entre los 1573m sobre el nivel del mar ; posee una temperatura entre los 20° y 22° c siendo clima cálido

En cuanto a sus características naturales La luz que brinda en la mañana es de menos intensidad que en la tarde , la velocidad en el día de los vientos es de0.86m/s con dirección de norte a oeste y en la noche de 0.33 m/s circulando de forma diagonal , su principal vegetación es de especies como siete cueros ,robles arrayan y encenillo ,posee los tres pisos térmicos de cálido , frio y paramo en cuanto a la construcción se utiliza usualmente tapia pisada y bahareque

LOCALIZACION DE CALARCAEN EL DEPARTAMENTO DEL QUINDIO

El proyecto fue diseñado específicamente para una familia de 5 integrantes , conformada por un adulto mayor abuelo materno de 60 años dedicado a la ganadería , una pareja cuyo esposo y padre es agricultor y cafetero, una esposa y madre , ama de casa y profesora , tienen dos hijos uno mayor con 18 años dedicado al estudio y al futbol y una niña de 10 años dedicada al estudio y clase de arte los fines

SEVEN HILLS

Seven Hills es un proyecto desarrollado bajo unos niveles de determinantes naturales , pensada su construcción en el respeto al medio ambiente y el aprovechamiento del mismo lugar natural . esta diseñado bajo las características y necesidades de la familia para brindar soluciones a dichas necesidades con el propósito de brindar confort a una familia trabajadora

JERARQUIA PAUTA TRANFORMACION

EJES

DETERMINANTE NATURAL FINAL

MEMORIACOMPOSITIVA

El diseño abstracto se inició con una propuesta planteada con base al terreo la cual se desarrolló volumétricamente y con ayuda de los determinantes naturales se desarrolló la propuesta compositiva final con la que se realizó el proceso del proyecto presente.

Asolación y vientos

DETERMINANTES NATURALES

la construcción tendrá mayor luz en el oriente que en el occidente , poseerá un sistema de ventilación de rejillas que aprovecharan la circulación diagonal de los vientos.

Ejes y vistas

El eje principal que organiza el proyecto se direcciona por el rio ,organizando las cuatro visuales en la posición: noreste la vía ,sur-este- el rio , suroeste el terreno y dos árboles y nor-oeste el otro lado del terreno y su vegetación.

Topografía y vegetación

El proyecto se desarrolla en su altura teniendo en cuenta tres cotas de nivel en la parte superior del terreno , para beneficios climáticos se utiliza la naturaleza existente y se añade fitotectura para la aproximación y acceso.

Sonidos y olores

Se ubico en la última cota lejos de la vía para evitar los ruidos y disfrutar del sonido del rio y cuenta con unas rejillas de ventilación que por medio de la circulación diagonal de los vientos extrae los olores de la cocina y los baños

Losa de hormigón

MATERIALES

Para la construcción de la vivienda se utilizaron los siguientes materiales ; para la estructura interna como lo son las vigas , columnas y cimientos , se emplearon hormigón , con ciclópeo ; para las cubiertas planas que poseen un 3% de inclinación se empleara una losa de hormigón y finalmente para el relleno de los muros de toda la estructura se utilizara bahareque , en el terreno se realizaron dos excavaciones mínimas cuya tierra se empleara debajo de la estructura de la escalera adicionándolo al terrero para la estabilidad de esta .

Bahareque Cimiento ciclópeo

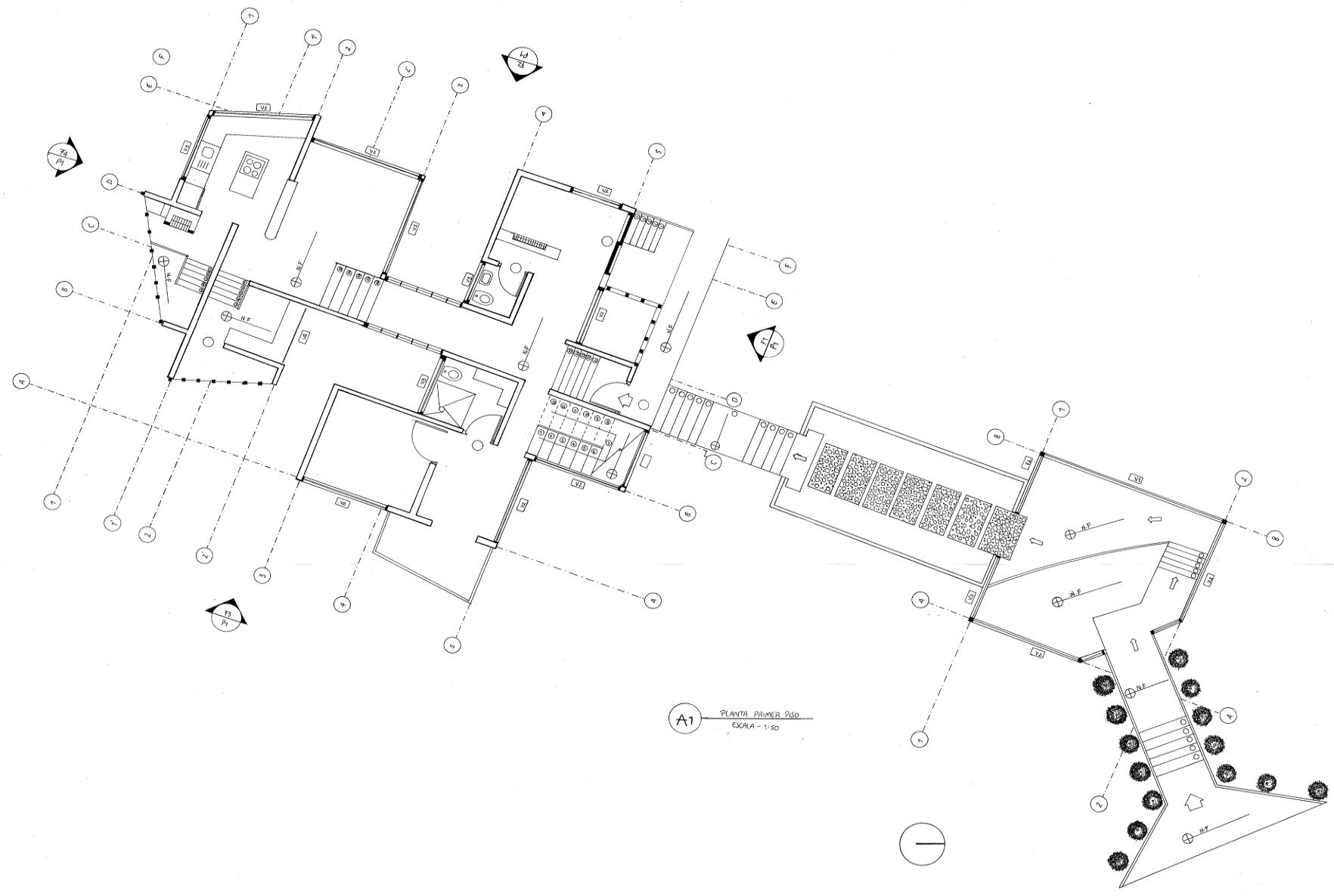
El proyecto se conforma por dos plantas arquitectónicas , el primer piso esta escalonado en 3 cotas de nivel , inicialmente se encuentra el acceso que vincula directamente con el eje que organiza el proyecto , en la primera cota de nivel se encuentra el acceso , un jardín y una sala al exterior , que vincula con la sala estar ,en la entrada principal se comunica por medio de unas escaleras con la segunda cota , en la cual se ubican las escaleras del segundo piso , la habitación del adulto mayor , el baño privado de esta habitación junto a una sala al exterior , el baño de la zona social y la sala estar y en la parte posterior en la misma cota se ubica la zona de ropas junto a un patio y en la tercera cota vinculada con unas escaleras se encuentra el comedor con la cocina y el BBQ .

PLANIMETRIA

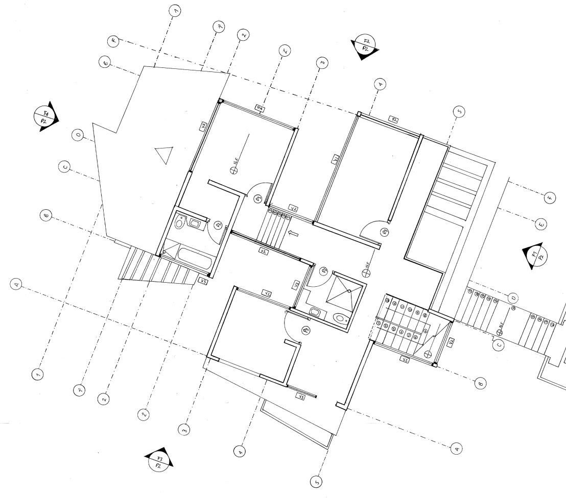
En la segunda planta se conserva la diferencia de altura en la parte posterior . en esta planta se ubica la zona privada con una habitación principal para la pareja aislada en la parte posterior , dos habitaciones sencillas para los dos hijos y un baño privado compartida por estas , también se encuentra el estudio con un balcón con visual al paisaje del rio

SEGUNDAPLANTA

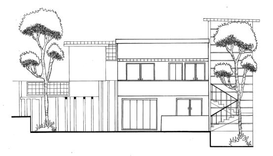
FACHADAS

F2 F1
F3 F4

EJES ,CIMIENTOS Y CUBIERTAS

CUBIERTAS

EJES Y CIMIENTOS

IMPLANTACION

BIBLIOGRAFÍA

IMÁGENES

• Materiales

http://biblioteca.sena.edu.co/exlibris/aleph/u21_1/alephe/www_f_spa/icon/8830/construccion_m uros_tapia_bahareque.html#

• Finca http://www.crq.gov.co/upload/introBanner/001.jpg

• Café http://agronegocioscr.com/wp-content/uploads/2011/08/MATA_DE_CAFE.jpg

• Finca Calarcá http://es.wikipedia.org/wiki/Calarc%C3%A1_(Quind%C3%ADo)

• Placa de hormigón http://civilgeeks.com/wp-content/uploads/2013/11/114.jpg

Turn static files into dynamic content formats.

Create a flipbook
Issuu converts static files into: digital portfolios, online yearbooks, online catalogs, digital photo albums and more. Sign up and create your flipbook.