Portfolio
Jacques Ernzer
![]()
Jacques Ernzer




Lebenslauf | 04-05
Fair Forum am Kurpark | 06-11
Rhein Terrassen | 18-23
Ein Garten für Kinder | 12-17 0 3 1 2 2022 2022 2024





2003 bis 2011
2011 bis 2018
22. Februar 1999, Luxemburg
13 um Millewee L-6550 Berdorf
Luxemburg
jacques.ernzer@gmail.com
2018 bis 2022
Ab 2023
Grundschule in Berdorf, Luxemburg
Gymnasium Lycée classique d‘ Echternach, Luxemburg
Diplôme de fin d‘ études secondaires, Fachgebiet bildende Künste, Note 1,0
Preis: APEA, Auszeichnung Klassenbester im Fachgebiet bildende Künste
Bachelorstudium an der RWTH Aachen University, Fachbereich Architektur Bechelor of Science, Gesamtnote 1,5 sehr gut
Masterstudium an der Technische Universität Wien, Fachbereich Architektur
Luxemburgisch C2
Deutsch C1
Französisch C1 Englisch B2+
Klasse B
ArchiCAD
AutoCAD
Revit
2015 2016 2017 2019
2022 bis 2023
2023
Photoshop
Illustrator
Indesign
SketchUp
Rhino Lumion Enercalc
MS Office
Schulpraktikum bureau d’architectes & urbanistes Romain Schmiz,Luxemburg
Schulpraktikum Glasbläserei Made by Seil, Berdorf
Schulpraktikum Ingenieurbüro SGI Ingénierie s.a. Luxembourg, Junglinster
Dreiwöchiges Baustellenpraktikum bei Novus Renovation Sàrl, Bissen
10 Monatiges Praktikum bei kadawittfeldarchitektur, Aachen
6 Monate in der Abt. Wettbewerb, 4 Monate in der Abt. Ausführung
2 Monatiges Praktikum Witry & Witry S.A., Echternach
ENGAGEMENT
2006 bis 2012
2007 bis 2017
2012 bis 2016
2016 bis 2018
2008 bis 2015
2022 bis 2023
Aktuell
Musikunterricht Musikschule in Echternach, Diplôme de la division moyenne
Querflöte in der Musikschule in Echternach, Diplôme 2ème mention
Musiker in der Harmonie Berdorf
Musiker im Symphonischen Orchester der Musikschule Echternach
Leichtathletik im Club Athlétique de l‘Est Grevenmacher
Mitglied bei Ingenieure ohne Grenzen Regionalgruppe Aachen
Aktives Mitglied bei Young Earth Builders, Wien
Zeichnen, Lesen, Mountainbike, Leichtathletik, Bouldern, Gesellschaftsspiele
Das Projekt „Fair Forum am Kurpark“ ist in ein Wohnbauentwurf mit 20 Wohneinheiten in Wien Oberlaa. Ausgangspunkt des Entwurfes ist das Bestandsgebäude Forum am Seebogen, das in einem zukünftigen Szenario als Materiallager verwendet werden soll. Die Bauteile des Bestandes, werden im Sinne des zirkulären Bauens, so weit wie möglich „Re-Used“.
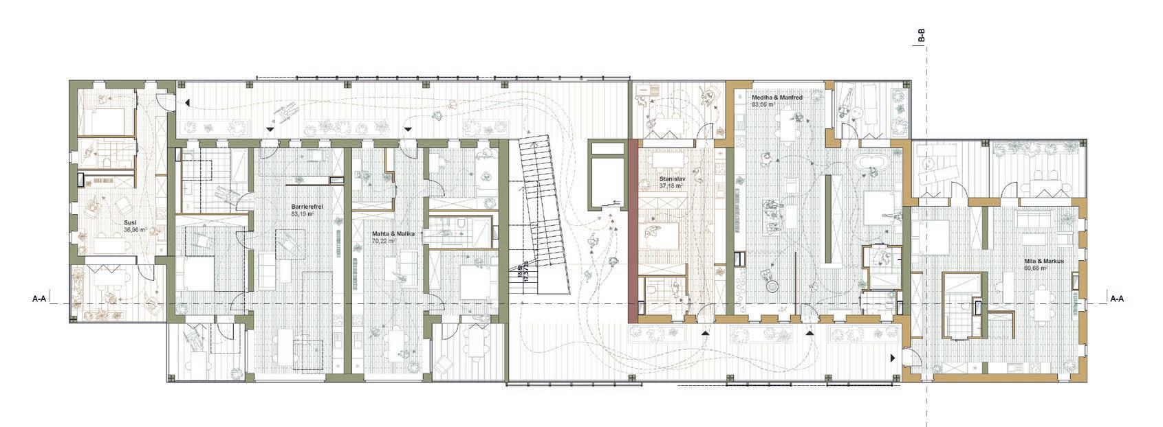
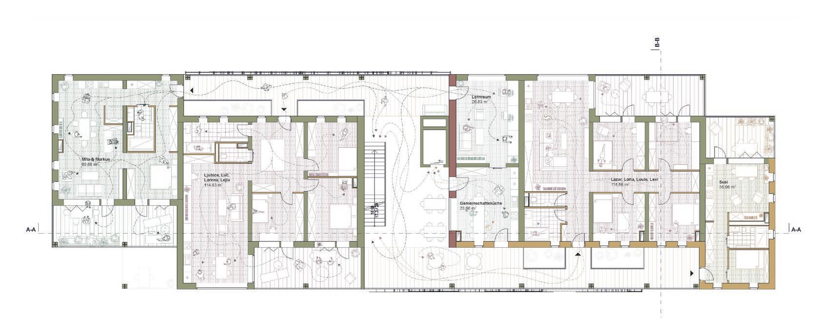
Ziel ist es ein „faires“ Gebäude für Nutzer und Umwelt zu schaffen. Dabei orientiert sich die architektonische Gestaltung bewusst am „Forum am Seebogen“, wobei ein zentraler Aspekt des Projekts die Grundrissoptimierung unter dem Motto „Fairer Wohnen“ ist. Die 3 Wohnungstypen S, M und L bieten hierfür Raum für alle Altersgruppen und sind so gestaltet, dass sie vielfältigen Wohnbedürfnissen gerecht werden und eine flexible Nutzung ermöglichen. Oberstes Ziel ist es das Gebäude so resilient zu gestalten, dass es solange wie möglich genutzt werden kann.
Ein besonderes Highlight des Projekts sind die großzügigen Gemeinschaftsräume, die den sozialen Austausch und das Gemeinschaftsgefühl unter den Bewohnern fördern. Zudem lädt eine Dachterrasse mit integriertem Dachgarten zum Verweilen und Entspannen ein.
Professor: Lehrstuhl Forschungsbereich Integrale Planung und Industriebau, Univ.Prof. Dipl.-Ing. Iva Kovacic | Team: Nora Böhm, Jacques Ernzer Leistungen: Konzeptentwicklung, Grundrissentwicklung, Bim-Modell, Gebäudepass | Tools: Archicad, Illustrator, Mr.Sketch | Datum: Sommersemester 2024


Das vorhandene Achsraster wird in der Breite beibehalten und in der Länge erweitert, um eine großzügigere Wohnfläche zu schaffen. Die Wohnungen und Laubengänge sind in einem Mix aus Ost-West-Orientierung angeordnet, um eine optimale Ausnutzung des natürlichen Lichts zu gewährleisten. Das Reuse Konzept zielt darauf ab, vorhandene Bauelemente und Materialien auf innovative Weise wiederzuverwenden. Hierbei werden die bestehenden Außenwände, Innenwände, Betonstützen, Holzstützen sowie die Treppen wiedergenutzt. Die Decken werden mit zusätzlichen Holzbalken verstärkt um die neuen Spannweiten aufzunehmen. Bei Neubauteilen liegt der Fokus auf nachwachsenden Rohstoffen, welche im Innenausbau in Form von Lehmziegel und Strohbauplatten Einsatz finden.

Betonstützen und Kernwand als ReUse-Betonstützen und ReUse Kernwand + Lehmziegel + Stahlbetonkernwand
Innenwände
als ReUse-Innenwände & Loggien-Sichtschutz + Strohbauplatten
Außenwände
als ReUse-Außenwände
+ Holz-Riegel-Außenwand + Stahlbetonkernwand
Decken
als ReUse-Decken
+ Holzdecken + Stahlbetonkerndecke
16x16 und 36x36 Stützen und Unterzüge
als ReUse-Stützen und ReUse-Unterzüge
Stahlbetontreppe, Fassadenelemente und Fenster als ReUse-Stahlbetontreppe, ReUse-Fassadenelemente und ReUse-Fenster


Längsschnitt | Grün: ReUse | Gelb: NawaRo | Rot: Neubau





Ansicht | Ähnlichkteit zum Forum am Seebogen
Gemeinschaftsflächen




Erdgeschoss | Öffentlicher Veranstaltungsraum | flexibel umgestaltbar

Dachgeschoss | Gemeinschaftsfläche mit Dachgarten




Tagesabläufe fiktiver Bewohner

1.+ 3. Obergeschoss | Wohnungen mit Laubengang als Ort der Begegnung

2. + 4. Obergeschoss | Wohnungen mit Gemeinschaftsräumen
1. Preis gewonnnen kadawittfeldarchitektur
An zentraler Stelle der Aachener Innenstadt- unweit des Kleinmarschiertores an der Franzstraße- ist eine Kita mit 6 Gruppen und zwei Einfeld Sporthallen geplant. Die Kita fügt sich auf selbstverständliche Weise in ihrer Höhenentwicklung und in ihrer Gebäudetiefe in den bestehenden Blockrand ein. Trotz der Enge des Baufeldes und der komplexen Topografie vor Ort ist das Ziel, den Kindern im Blockinneren möglichst viele nutzbare Gartenflächen zum Aufenthalt im Freien und maximalen Bezug zum Grünraum zu bieten. Im übertragenen Sinn entsteht tatsächlich ein „Kinder- Garten“.
Dies gelingt durch die Anordnung der Turnhalle am südwestlichen Ende des Grundstückes im Untergeschoss. Das Dach der Halle dient den Kindern als Garten, der ebenerdig an die erste Etage der Kita gekoppelt ist.
Im Eingangsbereich für Kindergarten und Sporthalle weicht die Gebäudekubatur zurück und weitet das enge Straßenprofil der Franzstraße. Es entsteht ein angemessener Vorplatz. Betritt man die beiden unabhängigen Foyers, kann man von beiden Seiten, in die darunter liegende Turnhalle blicken.
Wettbewerb: Neubau einer Kita mit mind. 5 Gruppen und zwei angegliederten Einfeld-Sporthallen , Aachen Deutschland | Auslober: Stadt Aachen Gebäudemanagement | Team von Kadawittfeldarchitektur: Roberto Ovalle, Winkelkotte Anne, Silvana Hecklinger, Renderkitchen, Mesh Landschaftsarchitekten | Leistungen: Konzeptentwicklung, Städtebau, Grundrissentwicklung, Schnitte, Ansichten, Fassadenschnitt | Tools: Archicad, AutoCad, Photoshop, Illustrator, Indesign | Abgabe : 09.06.2022


Ansicht Franzstraße | Höhenentwicklung beginnend mit Marschiertor

Franzstraße

Schwarzplan
Gartenseite Sporthallen

Großzügiger Außenbereich
UMKLEIDEN EINGANG



Adresse + Bring- und Holverkehr
Franzstraße

Natürliche Belichtung
Natürliche Belichtung
Vorbereich
Franzstraße
Belichtung Sporthallen
Abenteuerpfad

Fahrräder
Eingang Sporthalle
Eingang Kindergarten
Fahrräder Besucher
Grundriss Erdgeschoss | Eingangsbereich, Separate Eingänge Sporthalle / Kita

Grundriss 1. Obergeschoss | U3-Gruppen, Mehrzweckraum


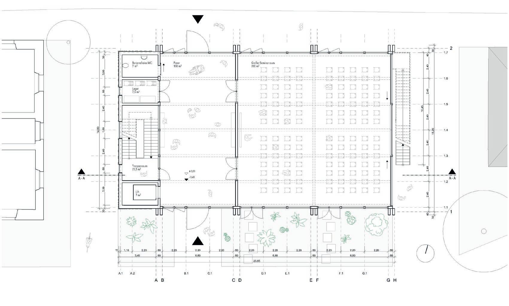
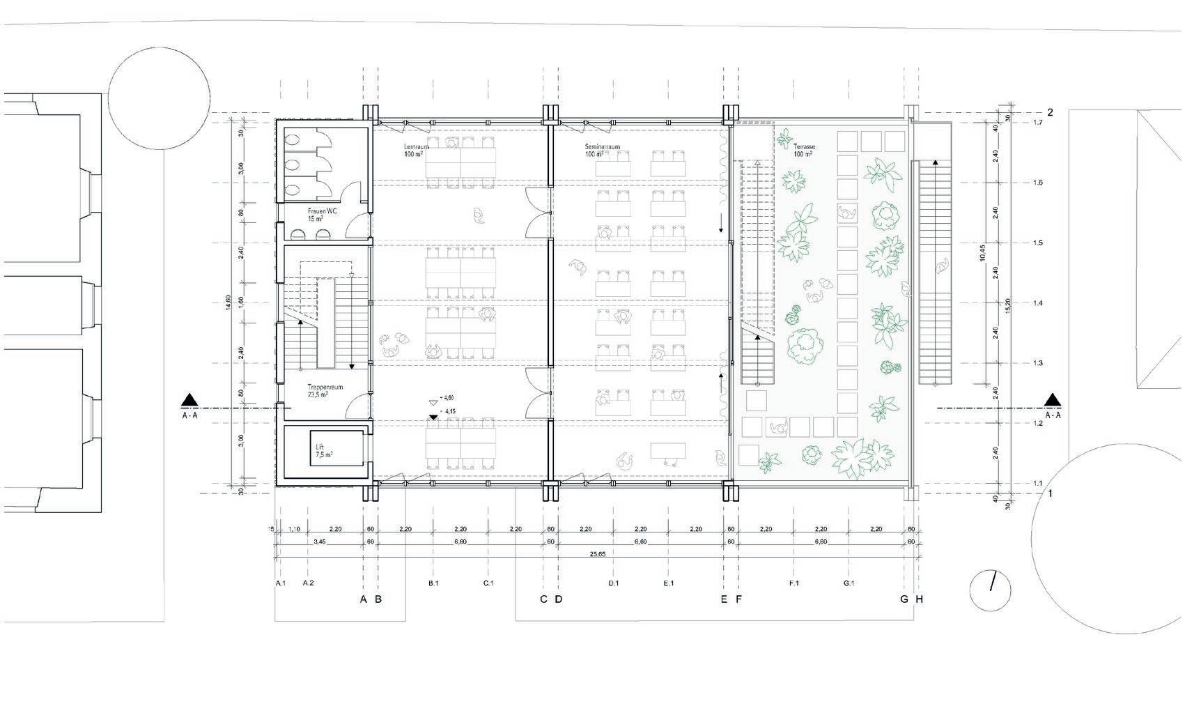
Das neue Hörsaalgebäude der Universität Bonn erstrahlt in neuem Glanz zwischen dem östlichen Abschluss des Galerieflügels des kurfürstlichen Schlosses und dem ehemaligen Lenné Haus, das sich in direkter Nähe zum Alten Zoll befindet. Zwischen den beiden Bestandsgebäuden erstreckt es sich als einladendes, offenes Terrassenhaus in Richtung Rhein. Auf den großflächigen Terrassen kann man die Aussicht auf diesen und auf den Hofgarten genießen. Durch eine klare Grundstruktur besitzt es flexibel anpassbare Räume für jede Gelegenheit.
Ursprünglich befand sich auf diesem Grundstück eine Orangerie der kurfürstlichen Schlossresidenz. Verschmolzen mit einer vermittelnden Haltung hat sich aus der ehemaligen Orangerie ein begrüntes Terrassenhaus mit großer Anlehnung an die Hängenden Gärten der Semiramis entwickelt. Die Offenheit, die das Gebäude ausstrahlt, bezieht sich auch auf den Park, der an der südlichen Seite liegt. Dort befindet sich der Haupteingang des Gebäudes.
Bachelorarbeit: Lehrstuhl Baukonstruktion Univ.-Prof. Dipl.-Ing. Hartwig Schneider | Co-Prüfer: Univ.-Prof. Dipl.-Ing. Uwe Schröder Lehrstuhl für Raumgestaltung | Team: Solo | Tools: Archicad, Photoshop, Procreate, Modell | Datum: Wintersemester 2020/21


Städtebaulich ist der Entwurf darauf bedacht, eine vermittelnde Haltung zwischen den beiden Bestandsgebäuden einzugehen. Das abgestufte Volumen des Terrassenhauses reagiert auf den großen Höhenversprung zwischen dem Ostflügel und dem Lenné Haus. Durch seine Orientierung nach Osten bildet es eine Überleitung zwischen beiden und vollendet die städtebauliche Achse des Schlosskomplexes bis zum Rhein. So entsteht ein kontrastreicher Gegenpart zum Alten Zoll, der sich hinter dem Lenné Haus, mit Blick auf den Rhein emporhebt.


Grundriss Erdgeschoss | Foyer und großer Seminarraum
Grundriss 1. Obergeschoss | Koppelbarer Seminar- / Lernraum


Grundriss 2. Obergeschoss | Arbeitsräume für Studenten

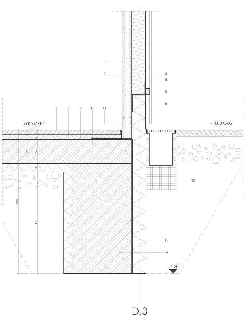
Fassadenschnitt | Doppelboden
Attikaabdeckung Hauptträger BSH 20/100
Fassade: Elementfassade Holzrahmenelemente Profil 8/20
Stütze KVH 20/60
Dachaufbau: Bepflanzung Substratschicht 320mm Wurzelschutzfolie Dränage 80mm Filterflies Kunstoffabdichtung Dämmung PS-Hartschaum 50mm Kertoplatte 50mm Dämmung Mineralfaser 250mm Akkustikpaneel Nebenträger BSH 20/50 Geländer Edelstahlnetz Sonnenschutz Graues Textil
Bodenaufbau: Doppelboden Trägerplatte aus Holz 50mm Hohlraum Installationen 350mm Trittschalldämmung 50mm Kertoplatte 50 mm Nebenträger BSH 20/50 Akkustikpaneel
Fundamentaufbau: Doppelboden Trägerplatte aus Holz 50mm Hohlraum Installationen 330mm Dämmung PS-Hartschaum 50mm Abdichtung Bitumenbahn Bodenplatte Stahlbeton 250mm Perimeter Dämmung XPS 100mm Trennlage Kapillarbrechende Kiesschicht

Südansicht | Terrassen Kubatur passt sich an Topografie an


Längsschnitt | Lernen im Grünen

Es ist soweit! Der Aachener Bend zieht um. Auf dem großen Kirmesplatz entsteht jetzt ein komplett neues Quartier, das den gemeinsamen Weg in die Zukunft gestalten soll, der Urban Future Bend.
Aus den Analysen ergeben sich viele Problme und Stärken, die die Grundidee der Neugestaltung prägen. Dazu gehören jedoch nicht nur lokale Trends, sondern auch globale, wie die Digitalisierung oder der Klimawandel. Ein möglicher Lösungsansatz für diese Probleme ist die Autarkie, die zunächst in einem „Reallabor“ erprobt werden soll, um später auf die ganze Stadt angewendet werden zu können. Unter Autarkie ist die Eigenversorgung mit den zum Überleben wichtigen Bedürfnissen zu verstehen, um das Quartier selbst krisenresilienter zu machen.
Als „Reallabor“ wird ein Gebiet bezeichnet, in dem eine mögliche Lösung, in diesem Fall die Autarkie, für bestehende oder vorhersehbare Probleme analysiert wird, indem sie real umgesetzt wird. Ziel des „Reallabors“ ist es aber nicht, ein komplett autarkes Quartier zu schaffen, sondern ein Experimentierfeld für autarke Systeme zu bieten. Der Bendplatz ist durch seine direkte Lage zu Forschungseinrichtungen, Industrie und Wohngebiet für ein Reallabor besonders geeignet. So soll auf der ehemaligen „grünen Wiese“ ein Schritt in Richtung Zukunft gemacht werden.
Professor: Lehrstühle für Städtebau, Landschaftsarchitektur und Planungstheorie | Team: Karin Chau, Soonkyo Jeong, Jannes Kruse, Ellen Meyer, Julia Töpke, | Leistungen: Konzeptentwicklung, Mobilität, Vertiefung Reallabor, Maßnahmenkatalog, Rendering | Tools: AutoCad, Revit, Lumion, Ps, Illustrator | Datum: Wintersemester 2020/21


DIE VISION | teilweise autarke Versorgung von ganz Aachen
Entwicklungsphasen
STEP 1
Repräsentative Lage durch Nähe zur Innenstadt und Stadteingang nutzen und Akteure auf Bend zusammenbringen Gemeinsame Erprobung von Autarkiekonzepten in kleinem Maßstab
DIE VISION | teilweise autarke Versorgung von ganz Aachen

Industrie Lindt
Nähe zu Stadteingang nutzen
STEP 2
Erprobung im ganzen Quartier Potenzialflächen nutzen
LEITBILDER QUARTIER
Entwicklungsphasen
STEP 1
Repräsentative Lage durch Nähe zur Innenstadt und Stadteingang nutzen und Akteure auf Bend zusammenbringen Gemeinsame Erprobung von Autarkiekonzepten in kleinem Maßstab
Nähe zu Stadteingang nutzen
Forschungsinstitute Melaten
Entwicklungsphasen
Industrie Lindt Nähe Innenstadt
Erprobung im ganzen Quartier Potenzialflächen nutzen STEP 2
Innenstadt Forschungsinstitute Melaten
Großer Rahmenplan | zukünftige potenzielle Weiterentwicklungen im Gebiet
Ausbreitung im ganzen Stadgebiet STEP 3
Ausbreitung im ganzen Stadgebiet
Neubau Lindt Fabrik
Museum

Neues Wohnen
Multifunktionale grüne Mitte
Wissenschaftsmuseum ZukunftsWelten
Reallabor Bend
Co-Working Co-Labs
Rwth Campus West Neubau
Pop-Up Park
C2C Sanierung ehm. Arbeitsamt
Entwurfsplan | Neubau Lindt Fabrik | Museum ZukunfstWelten

NACHHALTIGE ENERGIEVERSORGUNG
Maßnahmen


FLEXIBLE ARCHITEKTUR MUSEUM ZUKUNFT WELTEN

EXPERIMENTIERFELDER

Vertiefung Wissenschaftsmuseum ZukunftsWelten u. Multifunktionale grüne Mitte

Rendering Reallabor Bend
zweigeschossiges FOYER
ZukunftsWelten am
ZukunftsWelten
Richtung CAMPUS WEST Richtung PARK AUSTELLUNGSRÄUME
zweigeschossiges FOYER
Das Erdgeschoss der interaktiven Zukunftswelten Ausstellungen orientiert sich als Teil der Kulturachse zum zentralen Park und der Straße. Zudem öffnet es sich zu der Verbindung von Lindt und Co-Working mit den betonenden Funktionen Museum und grüner Bibliothek.
Das Erdgeschoss der interaktiven Zukunftswelten Ausstellungen orientiert sich als Teil der Kulturachse zum zentralen Park und der Straße. Zudem öffnet es sich zu der Verbindung von Lindt und Co-Working mit den betonenden Funktionen Museum und grüner Bibliothek.
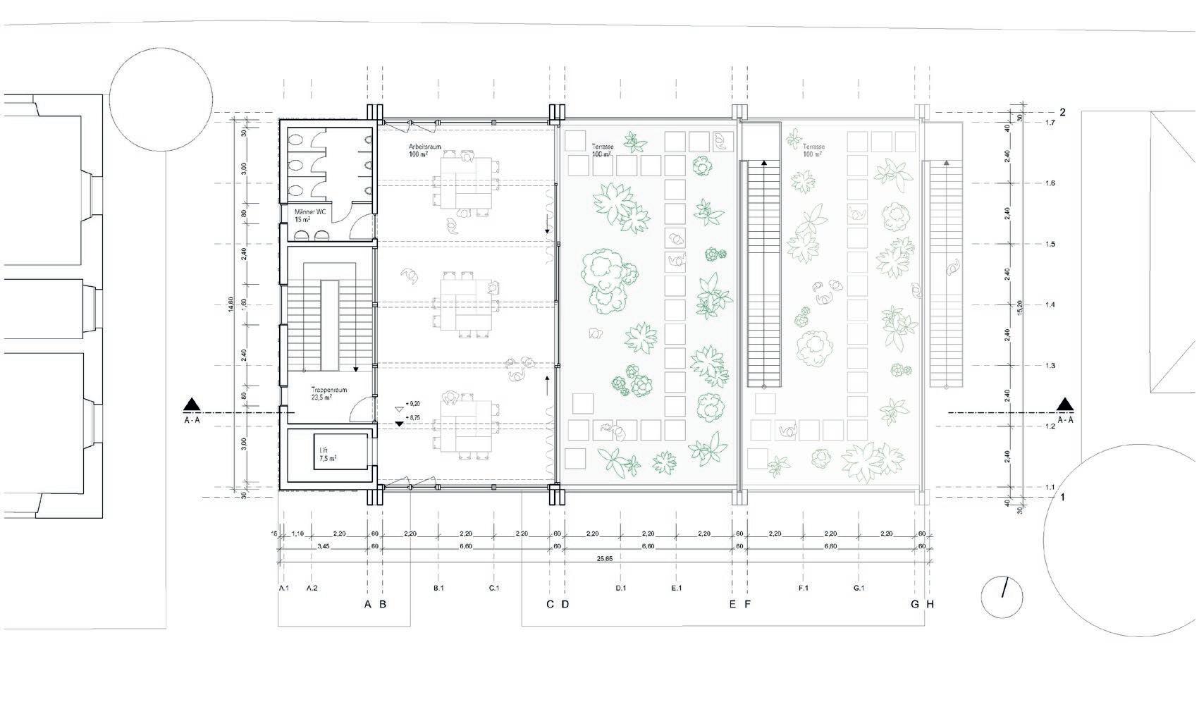
Das 1. Bis 3. Obergeschoss bilden die zentrale Ausstellungsfläche des Science Centers Zukunftswelten. Nach Experimenten und Informationen zu sozio-ökologischen Wenden oder Transformationen können hier in einem Dachgarten und Café mit Aussicht auf den Park die vielen Eindrücke verarbeitet werden.
Das 1. Bis 3. Obergeschoss bilden die zentrale Ausstellungsfläche des Science Centers Zukunftswelten. Nach Experimenten und Informationen zu sozio-ökologischen Wenden oder Transformationen können hier in einem Dachgarten und Café mit Aussicht auf den Park die vielen Eindrücke verarbeitet werden.
Konzept Museum ZukunftsWelten
Im obersten Geschoss der Zukunftswelten befindet sich mit dem Gewächshaus eine letzte Naturwelt. Hier können eine Vielfalt (vom Aussterben bedrohter) Pflanzen und Insekten gehalten werden um das Bewusstsein weiter zu schärfen. Außerdem kann der Schokowelten Teil über einen eigenen Kakaoanbau erweitert werden.
Im obersten Geschoss der Zukunftswelten befindet sich mit dem Gewächshaus eine letzte Naturwelt. Hier können eine Vielfalt (vom Aussterben bedrohter) Pflanzen und Insekten gehalten werden um das Bewusstsein weiter zu schärfen. Außerdem kann der Schokowelten Teil über einen eigenen Kakaoanbau erweitert werden.
Das Science Center Zukunftswelten ist der Motor für das Reallabor und die Stadt Aachen. Hier entsteht speziell mit Lindt und RWTH verschiedene interaktive Welten zum Thema ,,Wie wollen, dürfen müssen wir in Zukunft Leben?“. Lindt stellt in einer eigenen Schokowelt seine Nachhaltigkeits-ambitionen zur Schau.
Das Science Center Zukunftswelten ist der Motor für das Reallabor und die Stadt Aachen. Hier entsteht speziell mit Lindt und RWTH verschiedene interaktive Welten zum Thema ,,Wie wollen, dürfen müssen wir in Zukunft Leben?“. Lindt stellt in einer eigenen Schokowelt seine Nachhaltigkeits-ambitionen zur Schau.

Der Light Tower ist das neue Leuchtturmprojekt im Düsseldorfer Medienhafen. Das Gebäude fällt nicht nur durch einen ressourcenschonenden Betrieb auf, sondern produziert sogar unterm Strich 2,7 kWh/(m²a) mehr als es verbraucht und ist damit ein Plusenergiehochhaus.
Durch sinnvolle Verbindung von innovativer Technik mit Low-Tech Lösungen ist es uns gelungen, ein extrem effizientes Gebäude zu entwerfen. Nach dem Motto „Form Follows Function“ spielen auch die Kubatur und Ausrichtung eine wesentliche Rolle bei der Effizienz. Deswegen haben wir aus 4 Varianten die für uns nachhaltigste und die mit den meisten Lebensqualitäten weiterentwickelt. Durch die Nutzung aller natürlichen Energiequellen ist es uns gelungen, ein so umweltfreundliches Energiekonzept umzusetzen: Energiepfähle für die Erdwärme, eine Doppelfassade zur Nachtkühlung und Lüftung und transluzente in der Fassade integrierte Pv Anlagen für die Sonnenenergie. Durch ein ausgeklügeltes Speichersystem mit Batterien und Wasserstoff ist es auch möglich, die Energie auf lange Dauer zu speichern.
Professor: Lehrstuhl für Gebäudetechnologie, Univ. Prof. Dr. -Ing. Architekt Dirk Henning Braun | Team: Ramona Dordscheid, Jacques Ernzer Leistungen: Rendering, Konzeptentwicklung, Skizzen, Energiekonzept und Berechnung, Sonnenanalysen | Tools: RenderAI, Photoshop, Handzeichnungen, Revit, Lumion, Enercalc | Datum: Wintersemester 2020/21


Der dreieckige Grundriss des Gebäudes garantiert einen hohen Sonnenertrag, aber lässt dennoch im inneren Platz für ein großes Atrium. Dieses ist mithilfe der Doppelfassade zuständig für die komplette Belüftung des Gebäudes. Vorne nach Süden ausgerichtet befindet sich auf jeder 6. Etage ein kleiner Innengarten, der nicht nur für eine angenehme Atmosphäre sorgt, sondern auch das Innenraumklima durch Filterung und Luftfeuchtigkeit verbessert. Somit beeinflusst er auf positive Weise das gesamte Raumklima des Gebäudes.



Lageplan Düsseldorfer Medienhafen

Regelgeschoss Light Tower

Quelle Energietechnik

Netzstrom


Sonne

Erdreich

Außenluft

Photovoltaik 21,3 kWh/(m²a)

Energiepfähle 24,6 kWh/(m²a)

Atrium

Doppelfassade

Biomasse
Pflanzen

Lighting Analyse
Endenergiebilanz
Endenergiebilanz

Elektrolyseur (Sommer) Brennstoffzelle (Winter)
Wasserstoffspeicher 8,5 kWh/(m²a)

Batteriespeicher 550 kWh


Wärmepumpe

Übergabe und Verteilung Energiedienstleistung



Elektrischer Durchlauferhitzer

Betonkernaktivierung

Nachtkühlung



Heizung

Kühlung
Wärmetauscher Lüftung

Luftfeuchtigkeit Luftfilter


Aufwertung Innenraumklima
Verluste über Ba erie
Anrechenbarer Stroma us Ba erie
Anrechenbarer Stroma us PV
Lü en
Beleuchten
TWW-Erwärmung
Heizen
Kühlen




Doppelfassade




Unterflurkonvektor



Betonkerntemperierung


30 % Transparente Pv Module
Batterie (Kurzzeitspeicher)
Stromüberschuss
Wärmepumpe (reversibel)
Elektrolyseur (Umwandlung Rheinwasser)
Wasserstoffspeicher (Langszeitspeicher)


dez. Lüftungsgerät

(Kurzzeitspeicher)
Wärmepumpe (reversibel)

Betonkerntemperierung

Wärme
Brennstoffzelle (Stromversorgung + Spitzenlasten Heizung)
Wasserstoffspeicher (Langszeitspeicher)


Atrium Solarkamineffekt


Verbesserung der Luftqualität


Sommer: Die Räume werden über die Doppelfassade natürlich belüftet. Durch den Solarkamineffekt im aufgeheizten Atrium wird die Luft aus den Räumen über das Atrium nach Außen abgeführt. Die frische Außenluft wird durch Unterflurkonvektoren vortemperiert. Das Gebäude an sich wird mithilfe einer Betonkerntemperierung gekühlt.

Mit transparenten Pv Modulen, die an den Sonnenseiten als Glaspaneele integriert sind, wird im Sommer Strom erzeugt. Der gewonnene Strom treibt eine Erdwärmepumpe an, die die Erdenergie effizient in Kälte umwandelt. Als Kurzzeitspeicher für die Tag Nacht Nutzung werden Batterien benutzt. Der Stromüberschuss aus dem Sommer wird mithilfe der Elektrolyse in Wasserstoff umgewandelt und für den Winter in Wasserstofftanks gelagert. Diese fungieren somit als Langzeitspeicher.

Atrium Belüftung

Innenliegender Räume

Autarkie

Verbesserung der Luftqualität

Winter: Im Winter werden die Räume möglichst weitgehend natürlich belüftet, sei es über die Doppelfassade oder das Atrium. Gegebenfalls wird die natürliche Belüftung durch mechanische dezentrale Geräte in den Böden unterstützt. Das Gebäude wird dank einer reversiblen Wärmepumpe mit Energiepfählen auch im Winter mithilfe der Beton- kernaktivierung temperiert. Die Stromerzeugung findet nun mithilfe einer Brennstoffzelle statt. Durch die Abwärme bei der „kalten Verbrennung“ werden die Wärmespitzenlasten für das Heizen abdeckt. Gespeist wird das gesamte System durch den im Sommer produzierten Wasserstoff. Die Batterien werden als Kurzzeitspeicher eingesetzt, die das System im Gleichgewicht halten.
Durch eine intelligente Speicherung der sommerlichen Sonnenenergie kann das Gebäude sich sogar über den Winter komplett energieautark versorgen.


Die Gebäudeform ergibt sich aus zwei ineinanderverschränkten Quadraten. Daraus entstehen drei klar abgetrennte Bereiche: das offene Foyer, der geschlossene Backstagebereich und mittig der Eventsaal, der durch den Schallschutzring der anderen Räume geschützt wird. Der Backstagebereich ist eher geschlossen gehalten. Das Foyer hingegen wirkt offen, durch freie Boxen, die unter einen Trägerrost gestellt werden, der alle Baukörper zusammenfasst. Dadurch dass die Fassade zu den Stützen versetzt ist, entsteht das Bild einer Stadtloggia, bei der der Übergang zwischen Innen und Außen immer mehr fließend wird.











Ansicht Süd-Ost

Isometrischer Schnitt C-C
Grundriss OG im Original 1:50 | Foyer mit eingestellten Boxen, Musikhalle
Dachrand Detail

Fußpunkt Detail


Durchbruchsplan


Elektroschema Lüftungsplan
BSP - Decke
PV - Anlage

Stahlträgerrost
RLT Anlage
Holzlamellenfassade
Konzertsaal
Schallschutzwände aus BSP Platten
Dienstbereich
BSP - Wände
Öffentliche Nebenräume
BSP - Wände
Pfosten-Riegel Fassade
Treppenhaus
Betonmassivfertigteil
Bodenplatte Ortbeton
Eingespannte Stützen mit Stahlfallrohren
Betonfertigteil Fundament
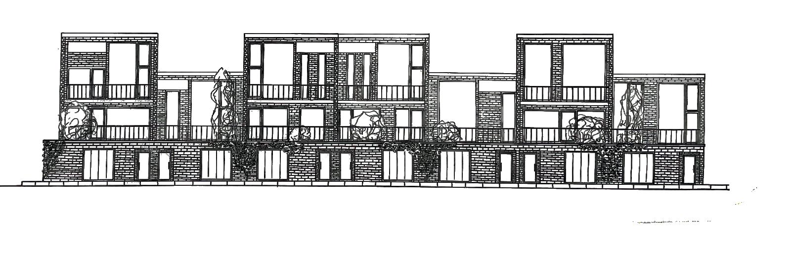
An der in Aachen gelegenen Grenze zu Vaals soll ein neues Quartier mit 7 modernen Wohneinheiten entstehen. Es soll Antworten geben auf die veränderten Bedürfnisse der Gesellschaft im Hinblick auf vielfältige Lebensweisen und den Trend zur Individualisierung. Durch flexible Grundrisse soll in einem Kontext urbaner Dichte trotzdem vielfältige Lebensqualität erzeugt werden.
Es entstehen 7 Hofhäuser mit privaten Innengärten, die sich durch eine Vielzahl an möglichen Grundrissvarianten an die Bedürfnisse der Bewohner anpassen können.
Dominiert werden diese durch eine Nord-Süd Ausrichtung, in der sich die Hauptachse befindet. Diese erzeugt durch mehrere Schwellen einen Übergang zwischen öffentlich und privat. Durch einen im Süden vorgelagerten Windfang gelangt man ins Herzstück der Anlage, den Hofgarten. Erst nachdem man diesen durchquert hat, gelangt man zur eigentlichen Wohnung. Eine Blickachse leitet den Blick direkt vom Garten durch die Wohnung bis in die offene Landschaft hinter dem Haus. Im Erdgeschoss befinden sich alle halböffentlichen, in den Obergeschossen die privaten Räume.
Professor: Lehrstuhl für Wohnbau, Univ.-Prof. ir. Wim van den Bergh Team: Solo | Tools: Modell, Handzeichnungen, Photoshop, Procreate Datum: Wintersemester 2019/20



Die Hofhäuser sind so ausgerichtet, dass diese den Maximum an möglicher Wohnqualität ausschöpfen. Im Süden sind die Vorgärten und Garagen angeordnet . Sie schützen die Bewohner vor Lärm, so dass man sich in dem dahinterliegenden hortus conclusus in der Sonne erholen kann. Die Südseite ist durch Loggien geprägt, die eine natürliche klimatische Anpassung ermöglichen. Ganz nach dem griechischen Vorbild der Typenhäuser von Hippodamus (Megaronhaus) bilden sie im Sommer einen Schutz gegen die Hitze. Im Winter dagegen lassen sie die wärmenden flachen Sonnenstrahlen bis tief in die Wohnung dringen und sorgen somit für angenehme Wärme und Raumatmosphäre. Dieser Effekt wird durch das Pultdach verstärkt und ermöglicht zugleich auch die Belüftung des Hauses über Dachfenster, die zugleich auch das Treppenhaus belichten.
Typologie griechisches Megaronhaus

Grundriss Varianten
Parzellierung

Grundriss OG | Original Handzeichnung 1:100

Grundriss EG | Original Handzeichnung 1:100

Ansicht Süd






Schnitt | Original Handzeichnung 1:50

Grundriss | Original Handzeichnung 1:50